TALLER DE DISEÑO ARQUITECTONICO 8 - CRITERIO DE DISEÑO

Page 1

CRITERIOS DE CRITERIOS DE DISEÑO DISEÑO

G-06 G-06 G-06

I N T E G R A N T E S :

KIMBERLY SANCHEZ TRINIDAD

MELA RICALDI PERALES

LESLIE GRANDA ALACOTE

JEAN PIERRE TICSE GAYOSO

JEAN PIERRE HUAMAN DE LA CRUZ

Arquitectura y Urbanismo

Apasionada por revitalizar comunidades a través de diseños urbanos sostenibles y dinámicos.

Granda

Alacote, Leslie

Arquitectura y Urbanismo

A través de mis diseños, busco transformar espacios urbanos en lugares que cuentan historias y fomentan la vida comunitaria.

Arquitectura y Urbanismo

Fusiono historia y modernidad en mis diseños urbanos, creando entornos que reflejan la identidad cultural de cada lugar.

Arquitectura y Urbanismo

Mi pasión es la planificación urbana inclusiva, desarrollando soluciones innovadoras que mejoran la vida en las ciudades

Arquitectura y Urbanismo

Mi enfoque en la planificación urbana integral busca mejorar la calidad de vida y crear entornos donde las personas puedan prosperar y conectarse.

DOCENTES: INTEGRANTES: Arq Omar Angelo Wincho Chi quillo Arq. Javier Alfredo Caballero Garriazo Sanchez T. Kimberly Granda Alacote, Leslie Ticse Jean Pierre
TALLER DE ARQUITECTURA VIII ANÁLISIS FUNCIONAL PROYECTO DE USO MIXTO L-01
Huamán Jean Pierre Ricaldi P. Mela
INTEGRANTES
Sanchez T. Kimberly Ticse Jean Pierre Huamán Jean Pierre Ricaldi P. Mela

UBICACION DEL TERRENO UBICACION DEL TERRENO

G-06 G-06 G-06
TERRENO

Av. Principales

Av Universitaria

Av. Mariano H.

Av. Secundarias

C. José Antonio

Jr. Carlos Cueto

Jr. Luis Enrique

Altura edificios cercanos

Condominio Atlantis (20 pisos)

PUCP Complejo Mac Gregor(12 pisos)

Edificios vivienda (20 ,14 y 19 pisos)

Ticse
Ricaldi
Mela TALLER DE ARQUITECTURA VIII ANÁLISIS FUNCIONAL PROYECTO DE USO MIXTO L-03
TERRENO
DOCENTES: INTEGRANTES: Arq Omar Angelo Wincho Chi quillo Arq. Javier Alfredo Caballero Garriazo Sanchez T. Kimberly Granda Alacote, Leslie
Jean Pierre Huamán Jean Pierre
P.
Perú - Lima Av. Universitaria
ELEGIDO
Cornejo
Coordenadas -12.0689628, -77.0772562 Zonificacion RDA Área del terreno Perímetro 543.8027 m Zona del terreno Características viales
Vistas del terreno 11939.1195 m2 zona I
Av. Mariano H.
C. José Antonio
Lima Provincias Lima Pueblo Libre
del terreno
Cornejo Ubicación

MICRO ANÁLISIS - TERRENO ELEGIDO

Restaurantes

Educacion

Áreas recreativas Comercio

Restaurantes

D'lorean Restaurante

La sazon del Roble

El Bravo Food

Las Brasas del RoblePolleria

Karis Restaurante

Mama Martha

Educacion

Facultad Ingenieria De Sistemas Y Telecomunicaciones UIGV.

Arco Iris I.E.I. N 58

Colegio Santa MarÍa

Mazzarello

Comercio

Artik Shop

Tambo U Católica

MiFarma

Minimarket Milagros

Mini Pris

Lavanderias LEON

Áreas recreativas

Parques las Americas

Parque Cueva

Parque Natan Rosenbach

Heller

Parque Cuatro Esquinas

Parque Galicia

INTEGRANTES:

DOCENTES: Arq Omar Angelo Wincho Chi quillo Arq. Javier Alfredo Caballero Garriazo Sanchez T. Kimberly Granda Alacote, Leslie
TALLER DE ARQUITECTURA VIII ANÁLISIS FUNCIONAL PROYECTO DE USO MIXTO L-04
Ticse Jean Pierre Huamán Jean Pierre Ricaldi P. Mela

CRITERIOS DE DISEÑO CRITERIOS DE DISEÑO

G-06 G-06 G-06

CRITERIOS DE DISEÑO

DOCENTES:

INTEGRANTES:

Arq. Javier Alfredo Caballero Garriazo Sanchez T. Kimberly

Arq Omar Angelo Wincho Chi quillo

Granda Alacote, Leslie
TALLER DE ARQUITECTURA VIII ANÁLISIS FUNCIONAL PROYECTO DE USO MIXTO L-05
Ticse Jean Pierre Huamán Jean Pierre Ricaldi P. Mela

CRITERIOS DE DISEÑO

El número mínimo de estacionamientos en una edificación comercial se determina en base al cuadro de cálculo de estacionamientos:

Las edificaciones para tiendas independientes, tiendas por departamentos, supermercados, tiendas de mejoramiento del hogar y otras tiendas de autoservicio deben estar provistas de servicios sanitarios para empleados, según lo siguiente:

De 1 hasta 6 empleados 1L, 1U, 1I

De 7 hasta 25 empleados 1L, 1U, 1I 1L, 1I

De 26 hasta 75 empleados 2L, 2U, 2I 2L, 2I

De 76 hasta 200 empleados 3L, 3U, 3I 3L, 3I

Por cada 200 empleados adicionales 1L, 1U, 1I 1L, 1I

Las edificaciones para locales bancarios y de intermediación financiera deben estar provistas de servicios sanitarios para empleados, según lo siguiente:

DOCENTES:

De 1 hasta 6 empleados 1L, 1U, 1I

De 7 hasta 25 empleados 1L, 1U, 1I 1L, 1I

De 26 hasta 75 empleados 2L, 2U, 2I 2L, 2I

Por cada 150 empleados adicionales 1L, 1U, 1I 1L, 1I

INTEGRANTES:

Arq. Javier Alfredo Caballero Garriazo Sanchez T. Kimberly

Arq Omar Angelo Wincho Chi quillo

Ticse Jean Pierre

Granda Alacote, Leslie

Huamán Jean Pierre

Ricaldi P. Mela

TALLER DE ARQUITECTURA VIII ANÁLISIS FUNCIONAL PROYECTO DE USO MIXTO L-06
N° DE EMPLEADOS HOMBRES MUJERES N° DE EMPLEADOS HOMBRES MUJERES

CRITERIOS DE DISEÑO

COMIDAS STAN DE ROPA

DOCENTES: INTEGRANTES: Arq Omar Angelo Wincho Chi quillo Arq. Javier Alfredo Caballero Garriazo Sanchez T. Kimberly Granda Alacote,
Ticse Jean Pierre Huamán Jean
Ricaldi
TALLER DE ARQUITECTURA VIII ANÁLISIS FUNCIONAL PROYECTO DE USO MIXTO L-07
Leslie
Pierre
P. Mela
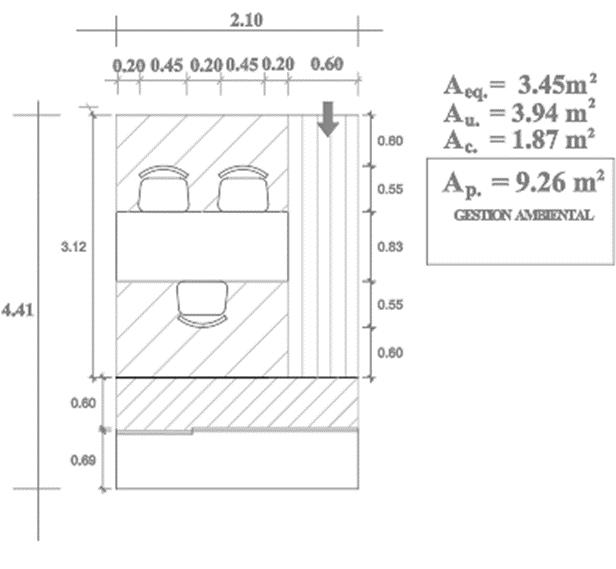
Área ocupada 4.86 Área total 11.31 Área circulación 2.74 MOBILIARIO Y/O EQUIPO CODIGO DESCRIPCION LARGO ANCHO ALTO CANTIDAD AREA 1 Cocina 0.75 0.56 0.85 1 0.42 2 Barra de atención 4.15 0.76 0.90 1 2.49 3 Lavatorio 0.78 0.52 0.85 1 0.40 4 Mesada 1.68 0.60 0.85 1 1.00 5 Refrigeradora 0.70 0.70 1.65 1 0.49 6 Banco - 0.28 0.45 6 0.061 MOBILIARIO Y/O EQUIPO CODIGO DESCRIPCION LARGO ANCHO ALTO CANTIDAD AREA 1 Cambiador 0.80 0.80 2 1 0.64 2 Silla 0.55 0.50 0.70 1 0.28 3 Estante 1.93 0.54 1.00 1 0.58 4 Mesa 1 80 0 50 1 10 2 0 89 Área ocupada 5.84 Área total 11.31 Área circulación 5 47

CRITERIOS DE DISEÑO

TIENDA DE ROPA

TALLER

TIENDA DE REGALOS

DOCENTES:

Arq. Javier Alfredo Caballero Garriazo

Arq Omar Angelo Wincho Chi quillo

INTEGRANTES:

Sanchez T. Kimberly

Granda Alacote, Leslie

Ticse Jean Pierre

Huamán Jean Pierre

Ricaldi P. Mela

VIII
MIXTO
DE ARQUITECTURA
ANÁLISIS FUNCIONAL PROYECTO DE USO
L-08
MOBILIARIO Y/O EQUIPO CODIGO DESCRIPCION LARGO ANCHO ALTO CANTIDAD AREA 1 cambiador 0 80 0 80 2 00 2 0 64 2 barra atencion 1.50 0.60 1.10 1 0.90 3 silla 0.54 0.54 0.60 1 0.29 4 estante 1.97 0.96 1.00 2 1.90 5 estante 3.60 0.96 1.00 1 1.80 6 lavatorio 0 56 0 48 0 90 1 0 27 7 inodoro 0.66 0.36 0.45 1 0.24 Área ocupada 15.16 Área total 30.16 Área circulación 15.00 MOBILIARIO Y/O EQUIPO CODIGO DESCRIPCION LARGO ANCHO ALTO CANTIDAD AREA 1 mesa 2 30 0 60 1 10 1 1 38 2 silla 0.54 0.54 0.7 1 0.29 3 estante 1.70 0.40 2.00 5 0.68 4 estante 4.10 0.40 1.10 1 1.64 5 computadora 0.47 0.07 0.30 1 0.03 Área ocupada 15.16 Área total 30.16 Área circulación 15.00

CRITERIOS DE DISEÑO

DOCENTES:

Arq. Javier Alfredo Caballero Garriazo

Arq Omar Angelo Wincho Chi quillo

INTEGRANTES:

Sanchez T. Kimberly Granda Alacote, Leslie
TALLER DE ARQUITECTURA VIII ANÁLISIS FUNCIONAL PROYECTO DE USO MIXTO L-09
Ticse Jean Pierre Huamán Jean Pierre Ricaldi P. Mela
LIBRERIA

CRITERIOS DE DISEÑO

TALLER DE ARQUITECTURA VIII ANÁLISIS FUNCIONAL PROYECTO DE USO MIXTO

ANÁLISIS URBANO DISTRITO DE PUEBLO LIBRE

DOCENTES:

Arq. Javier Alfredo Caballero Garriazo

Arq Omar Angelo Wincho Chi quillo

INTEGRANTES:

Sanchez T. Kimberly Granda Alacote, Leslie

Ticse Jean Pierre Huamán Jean Pierre Ricaldi P. Mela
L-10

CRITERIOS DE DISEÑO

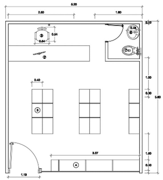
OFICINA DE LOGISTICA SECRETARIA Y ARCHIVOS

OFICINA DE LOGÍSTICA

ÁREA = 11.22 m2

ÁREA DE EQUIPAMIENTO 2.93 m2

ÁREA DE USO 3.82 m2

ÁREA DE CIRCULACIÓN 4.47 m2

TOTAL 11.22 m2

Arq Omar An q
ARQUITECTURA VIII
MIXTO L-11
Pierre ean Pierre Mela
FUNCIONAL DE USO

DOCENTES:

Arq. Javier Alfredo Caballero Garriazo

Arq Omar Angelo Wincho Chi quillo

MOBILIARIO Y/O EQUIPO

CODIGO DESCRIPCION LARGO

INTEGRANTES:

Sanchez T. Kimberly

Granda Alacote, Leslie

Ticse Jean Pierre

Huamán Jean Pierre

Ricaldi P. Mela

TALLER DE ARQUITECTURA VIII ANÁLISIS FUNCIONAL PROYECTO DE USO MIXTO L-12 ANCHO ALTO CANTIDAD 1 mesa 0.60 1.20 0.72 3 2 silla 0.47 0.41 0.55 9 3 mueble 0.75 1.72 0.43 1 4 inodoro 0.68 0.49 0.45 1 5 lavatorio 0.33 0.49 0.75 1
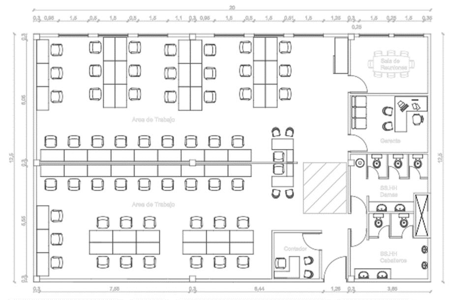
CRITERIOS DE DISEÑO OFICINA

CRITERIOS DE DISEÑO OFICINA COMPLETA

DOCENTES:

Arq. Javier Alfredo

Arq Omar Angelo Wincho Chi quillo

INTEGRANTES:

Caballero Garriazo Sanchez T. Kimberly Granda Alacote, Leslie
DE ARQUITECTURA VIII ANÁLISIS FUNCIONAL PROYECTO DE USO MIXTO L-13
Ticse Jean Pierre Huamán Jean Pierre Ricaldi P. Mela
TALLER
MOBILIARIO Y/O EQUIPO CODIGO DESCRIPCION LARGO ANCHO ALTO CANTIDAD 1 mesa 0 60 1 20 0 70 54 2 silla 0.47 0.41 0.55 57 3 esa gerente 1.76 1.63 0.70 1 4 silla gerente 0.52 0.54 0.46 1 5 mueble gerente 0.72 1.64 0.45 1 6 sillas de aten. 0.47 0.41 0.45 8 7 mesa de reunión 1.82 0.87 0.72 1 8 mesa contabili. 1.06 1.26 0.55 1 9 inodoro 0.68 0.49 0.45 5 10 lavatorio 0.33 0.49 0.75 4 11 urinario 0.27 0.36 0.55 2 12 archivero 0.72 1.80 2.10 1

Turn static files into dynamic content formats.

Create a flipbook
Issuu converts static files into: digital portfolios, online yearbooks, online catalogs, digital photo albums and more. Sign up and create your flipbook.