West of Nairobi
Tell +254 721 494 749



![]()
West of Nairobi
Tell +254 721 494 749



Prepared by:
Linda Matte Desin Director
Johnstone Mela Architectural Technician
As BasiGo moves into their new offices in Westlands, they are set to renovate the space, previously occupied by Adanian Labs. The project will focus on updating the administrative offices and creating recreational spaces for staff while maintaining the existing rustic aesthetic.
Since the renovation will not be highly intensive, the design approach will seamlessly blend with the current setup, incorporating warm, industrial-inspired elements with functional upgrades to enhance both workspace efficiency and employee well-being.






The existing damaged tiles will be replace where need. some in the whole floor and some just the cracked and broken.
For the meetings rooms there will be carpet that match the colour scheme


The leaking ceiling will require necessary repairs, followed by retouching and repainting in affected areas to restore a clean and well-maintained finish.


With the walls being heavily damaged, they will need to be scraped and repainted with a clean, fine white finish. Select areas may incorporate textured finishes to add depth and visual interest while maintaining a fresh and cohesive look.


This feature will be placed in the chill room, taking advantage of its open layout and spacious design to create a relaxed and inviting atmosphere.





Concept
The comfor will maximize


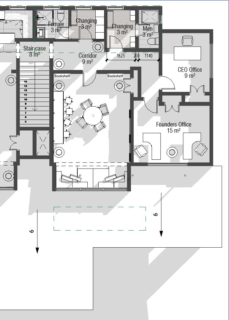
existing CEO office will be repurposed into the chill room, featuring a mini bar and comfortable seating areas to create a relaxed and social atmosphere for staff. This transformation maximize the space’s potential, offering a stylish yet functional retreat within the office.

The existing reception already has a well-designed aesthetic and finishes that are in fairly good condition, requiring minimal adjustments to maintain its appeal and functionality.






The idea here is to enhance the space by incorporating vegetation and BasiGo logos for a more refined aesthetic. The flooring will feature timber accents, adding warmth and a subtle traditional touch to complement the overall design.

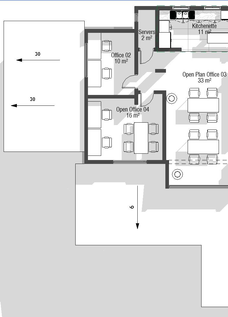
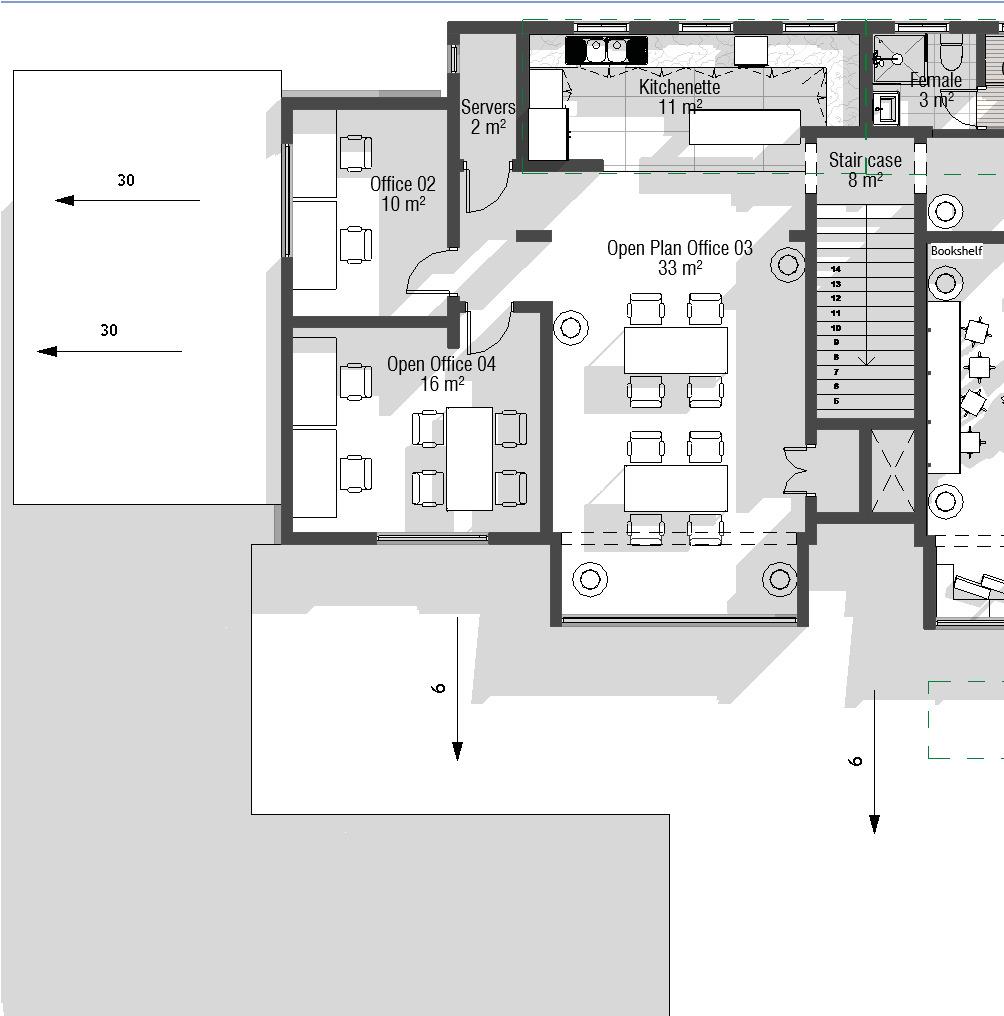
The existing offices feature white walls, recessed lighting, and beige floor tiles, creating a neutral and clean aesthetic that serves as a solid foundation for any design enhancements.






The walls will be enhanced with a few timber elements and wall-mounted plants to introduce warmth and a natural aesthetic, creating a more inviting and balanced atmosphere.

Existing washrooms.





The kitchen will be constructed in the designated spaces, allowing for a cohesive design that aligns with the overall aesthetic while providing flexibility for functional and stylistic enhancements.



kitchen will feature a black screed or resin finish with contrasting white granules, creating a sleek and durable surface. The cabinet doors will be crafted from grain adding warmth and texture to the space. The flooring will have a timber-textured ensuring a cohesive and natural aesthetic throughout the kitchen.

Like the kitchen, this will be a new construction, allowing for creative flexibility and fresh design ideas to ensure a cohesive and functional space that aligns with the overall aesthetic.



The color palette of white, black, and green will be maintained, ensuring consistency throughout the space while balancing a clean, modern look with natural elements.



Existing washrooms.





The new washrooms will feature a plant screen at the entrance, adding a natural element while enhancing privacy for both the men’s and women’s sections. Mirrors will be placed outside, accompanied by subtle artistic elements to elevate the design. A creative and visually engaging approach to signage will help distinguish the spaces, adding both functionality and character to the washroom area.




The outdoor terrace will be a good utility for games and recreation


Ceiling and sofits.
With extensive wiring for Wi-Fi and other electrical systems, concealing them would require signi cant ceiling installation. Instead of traditional methods, we will incorporate a steel mesh ceiling, allowing the wiring to become an intentional part of the design. is approach will add an industrial, artistic element to the space while maintaining accessibility for future modi cations. e mesh will also enhance ventilation and lighting distribution, contributing to a functional and visually dynamic ceiling design.
Art and deco.
Art will play a key role in breaking the monotony of the white walls, introducing depth and cultural expression. Steel artwork, inspired by African motifs and cra smanship, will be a focal element, adding texture and a bold, sculptural presence. is fusion of metalwork and traditional in uences will create a sophisticated yet authentic African aesthetic, seamlessly integrating art into the overall design.
Kitchenette.
e kitchens will feature screed countertops, o ering a traditional yet durable aesthetic. is will be complemented by rich grain timber cabinetry, adding warmth and texture. Green tiles will serve as a refreshing accent, creating a balanced and cohesive design that blends natural elements with timeless cra smanship.

lighting. e lighting xtures will blend modern design with handcra ed artistry, creating a unique balance between contemporary and traditional elements.
In key areas, black head pendant lights and sleek ceiling xtures will provide a striking contrast against the white walls, enhancing depth and sophistication.
For more relaxed, casual spaces, woven handcra ed lighting will be incorporated, adding warmth, texture, and a touch of African cra smanship to the ambiance.
black potted plants.
Nature will play a signi cant role in this design, with a carefully curated selection of plants to enhance the space. Broad-leaved varieties like Monstera deliciosa will be incorporated to introduce a lush, organic feel, creating a refreshing and dynamic contrast against the structured elements of the interior. ese plants will not only add visual appeal but also contribute to improved air quality and a calming atmosphere.

Work stations.
e design will feature a combination of grain wood, blackaccented plastic, and steel, creating a balanced interplay between warmth and modern industrial aesthetics.
Pegboards with small vase plants will add a dynamic and functional element, allowing for exible décor arrangements while bringing in greenery.
To further enhance the natural feel, woven rugs and mats will be incorporated, introducing texture and grounding the space with an organic, earthy touch.
Materials.
e oors in the o ce will be of timber texture and colour, material to be determined as per clients cost and timelines.
Kitchen backplash will have green ceramic tiles.
Walls will generally be matt white nish and some feature walls will be white stone textured.
Toilet walls and oor will have white tiles and some green accent tiles.
Ceilings will be painted white
partition wall.
For areas requiring a semi-open feel, steel mesh partitions will be used to maintain visual connectivity while providing subtle separation. ese partitions will add an industrial yet re ned aesthetic, allowing natural light and air ow to pass through while de ning spaces with a sleek, modern touch.
