Portfolio

meizzhanhady21@gmail.com Lombok, Indonesia.
Applying for MLA Landscape Architecture
Bartlett School of Architecture
University College London 2025
![]()

meizzhanhady21@gmail.com Lombok, Indonesia.
Applying for MLA Landscape Architecture
Bartlett School of Architecture
University College London 2025
North Lombok, Indonesia
Academic Project
Architecture Design Studio 1
Year 2020 - 2021
Supervisor:
Assoc, M. Galieh Gunagama, S.T., M.Sc.
- 1st Winner of Architectural Blue Ribbon Awards 2021 - Best 7 Works in Asian Contest of Architectural Rookie’s Awards 2021
“Amben Merenten” is the name of my third-year studio project in Architecture Design Studio 1. The name is inspired by the concept of the design: Amben refers to a seating space in the Berugak, a Sasaknese traditional building in North Lombok, and Merenten means brotherhood. This concept was derived from local values I encountered during my design research in the area.
The project responds to socio-cultural values found on-site by adopting a multi-layered approach. The hierarchy of space is represented through the attachment of different areas and varying floor elevations, which distinguish space programs and their intended users. For example, the elder members of the community are placed in higher amben, reflecting their hierarchical status in relation to younger age groups.
Spatial activities such as communal areas, traditional playgrounds, and spaces for UMKM (street vendors) are integrated with the existing street in front of the site, which is currently underutilized by residents. The goal is to transform this road from just a passageway for bikes into an extended public space, adding value and improving its function for the community.`












A sketch study depicting various types of traditional buildings in North Lombok during the field study, all sharing the same characteristic: the Amben, a platform designed for communal gathering.
Site context & local material resource radius

Site located in the heart of a sparsely populated settlement area. The owner’s house is situated on the property, and the land has been generously donated to establish a community space for the local people.

The
Some images of the traditional Amben/Berugaq
upper space is typically used by locals to store crops. This creates inspiration how to re-adapt into such a space in nowadays function.



























Bekasi City, Indonesia
Academic Project
Architecture Design Studio 2
Year 2021 - 2022
Supervisor:
Dr. Wiryono Raharjo, S.T., M.Ud Groups:
Sayyid Sayyaf, Yumna Rana Naura
Contributions: - Masterplan Concept, Housing Plug-in Modul, Canal Life-Space Intervention - Conceptual Diagram, Housing Block Design
- Finalist Of Architectural Blue Ribbon Awards 2022
The Indonesian government has a vision for 2040 to reduce the presence of informal settlements in large urban areas such as Jakarta, particularly in the outskirts of the capital, like Bekasi. One area with a high level of slum conditions is Bintara Jaya, where over 600 households live in slum-like conditions. There is an ongoing discussion among local authorities to formalize this area, but the concern is where the people currently residing here will go if they are displaced.
In response to this issue, I, along with two of my colleagues, took on this case study as part of our Architecture Design Studio 2 project, which addresses the challenges of ruralurban design in the future. I initiated this project by combining the studio’s brief with the real-world case study from the field.
My primary role in the project was to focus on a formal design approach as a response to government policy, while also considering the potential of the existing site. However, within this formalization, I integrated an informal urban kampung approach commonly seen in Jakarta, characterized by flexible spaces, varying access, and the implementation of low-cost building strategies. Additionally, the design responds to the existing canal, embracing it as the starting point of the design. Instead of buildings oriented towards the street, each block is oriented towards and faces the canal, bringing life to the canal as a public space. A forest buffer zone separates the settlement blocks from the Jakarta Outer Ring Road, serving as a transition that connects with the canal ecosystem. This design approach fosters a harmonious relationship between people and nature, creating a balanced interaction between the built environment and the natural landscape.








Informal Area Conditions



Conceptual Sketch Planning for Settlements Modul


Existing Mapping Analysis








The




























The availability of co-farming facilities, in response to the preferences of the majority of users, allows each residential block, with 250 m² of rooftop space, to produce up to 150 kg of vegetables per month.
solar panels that can accommodate electrical energy up to 40% of the use of shared space and communal areas.
The use of different materials for the unit provides flexibility to meet the user’s preferences and what they can afford
The communal space on the lower level fosters a sense of community and belonging, allowing residents to connect with neighbors both within and outside their block.

The rainwater harvesting system responds with the shape of a roof that catches rainwater and into a reservoir on the ground floor.
Light Weight Roof structure with the trasnparent material use to accomodate the roof farming bellow
The dwellings units are not integrated with the building structure, but can be built after the mass block components exist. so that it is modular and can be disassembled. In addition, housing also carries the concept of growing housing.









The use of lightweight and conventional structures made from steel and concrete, along with modular and precast innovations, aims to simplify the construction process.
The bridge links all the blocks, making them more accessible from both the ground and upper levels, enhancing the sense of a “Kampoeng” (community).

Juxtaposition of Healing-Living with Passive Cooling Design Approach
Gandaria City, South Jakarta
Profesional Project
Year 2024 - Now
Principal Architect: Realrich Sjarief
Contributions:
Advance Conceptual Development, Facade Design, Space Planning, 3D Model, 2D Drawings, Thermal Analysis
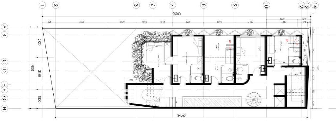
This project is one of the most exciting and rewarding experiences I’ve had at RAW Architecture. The Coliving project was commissioned to create a boarding house and accommodation in the heart of Gandaria City, South Jakarta. The challenge was to design within a small 7.5-meter-wide site in a densely urbanized area, while addressing environmental issues and combining residential, social, and business functions in one building.
I conducted research on boarding houses in Gandaria, studied competitors, and explored new trends in the industry. My idea was to create a “healing housing” concept that blends co-living spaces with public areas. I designed dynamic corridors to encourage interaction between tenants, allowing entire floors to be rented for communal activities.
Additionally, I incorporated vertical greenery based on research that calculates the ideal ratio of plants to building occupants. This greenery was integrated into both the interior and facade. The facade design also focused on reducing heat from the western sun using passive cooling strategies.
The project aims to provide a new way of living in Jakarta’s dense urban environment, which is fast-paced and full of tension. The building is designed to be a calm, peaceful habitat, offering an oasis amid the surrounding chaos. It contrasts with the crowded area, providing a space of tranquility for its users.























































Active Lifestyles and Community
North Lombok, Indonesia
Final Academic Project
Final Architecture Design Studio
Year 2022
Supervisor: M. Galieh Gunagama
Reviewer: Revianto B. Sentosa, Yulianto P. Prihatmaji
-Highest Grade for Undergraduate thesis Project
Kon Mara is my final undergraduate project, a proposal for a Youth Development Center in North Lombok, following the devastation caused by the 2018 earthquake that destroyed the local sports and cultural center. In addition to this, research on youth behavior revealed a trend of inactivity, with over 80% of youth leading sedentary lives. This highlighted the need for a space that promotes physical, mental, and social development while reconnecting the younger generation with their cultural heritage.
The design focuses on integrating outdoor spaces with human movement principles, creating an environment that encourages active engagement. The concept is deeply rooted in the cultural landscape of North Lombok, drawing inspiration from the axial alignment between Mount Rinjani and the sea. The building’s orientation follows this natural axis, ensuring a harmonious connection between the site, the architecture, and the surrounding landscape.
To optimize space functionality, I applied space syntax principles, carefully zoning the site by creating a coordinate matrix to identify ideal groupings for different functions. This approach resulted in a master plan that encourages interaction and outdoor activities. The buildings are arranged with low height to minimize environmental impact, while extended roofs provide cover for outdoor spaces, merging the built environment with nature seamlessly.







The site is uniquely located between residential areas and a vast paddy field. The surrounding buildings are mostly low-rise, so the design should complement the context and environment, seamlessly blending with both the settlements and the productive land.



Inspired by the Sasak urban legend and the tradition of “Betabeq,” where people bow to greet one another, the design embraces the values of respect, connection, and community.
Site (Caught in the middle) - between Settlements & productive land







Space Programme - Zoning Strategy









The strategy focused on analyzing the integration of activity nodes and their potential interactions. Each activity was assigned to the most suitable grid section for zoning. The site, covering 1.9 hectares, was divided into 48 grid sections, considering both existing conditions and the potential for the new Youth Development Center. The mapping results were then used to create a spatial relationship matrix, optimizing the layout and zoning based on the desired outcomes for each activity node.






























Masterplan Elevation


The multifunctional installation module supports activities like relaxing, exercising, and gathering. The sheltered area serves as a meeting space, while the roof is accessible to visitors. Stepped levels create spatial boundaries without the need for partitions.


The playground structure promotes active movement, while the soil mound reuses excavation surplus. This mound acts as an amphitheater, offering views of the informal field, traditional arena, and the public football field outside the site.




and





Roof vegetation is used to stimulate the sense of smell and encourage movement, with the choice of aromatic shrubs from native species that evoke strong scents, aiming to trigger childhood memories.






















I believe that architecture, when rooted in natural principles and a broader contextual understanding, has the power to create a lasting impact beyond being merely an artistic or visual statement. Meaningful design is not just about structures—it is about how spaces interact with the land and people in a profound and grounded way. This realization has drawn me toward landscape architecture, where I can refine my ability to design environments that seamlessly integrate built and natural elements.
My name is Meizzhan Hady, and my passion for design and sustainable built environments is driven by a deep appreciation for culturally grounded approaches and the creation of resilient urban spaces. Exploring landscape architecture as a discipline that shapes the relationship between nature, people, and the environment, I am committed to developing expertise in this field. My goal is to become a catalyst for transformative urban-rural development—one that prioritizes ecological balance while fostering environments that support both human and nonhuman life
Bachelor Degree in Architecture Studies
Department of Architecture, Universitas Islam Indonesia
Course included: Architecture Design Studio, Material and Construction, Urban studies, Placemaking, Building Information Modeling, Housing and Settlements, High Performance Building Studies.
Senior High School
SMA Negeri 1 Kayangan
Rolled Sciences Program and active with School Organization and Social Activities (OSIS and Technology Community)
Junior High School
SMP Negeri 1 Kayangan
Rolled Sciences Program and active with School Organization and Social Activities (OSIS and Technology Community)
Realrich Architecture Workshop, Jakarta
Intermediate Associate Designer
Job Included: Architectural Conceptor, Space Planning, 3D modeling and simulations Studies, Technical Drawing, Manage the team and Project Schedules, Coordination with the stakeholders (Client, Contractor, and Structure Engineer).
Kara Architecture, South Tangerang
Junior Architect Intern
Job Included: Architectural Concept Reseacher, 3D Modeling and Simulation Studies, 2D detail Drawing, Architectural Presentation Maker to present to the client, Architectural Visualization.
Supervisor Assistant, Yogyakarta
Deparment of Architecture, Universitas Islam Indonesia
Job Included: Mentoring students in the courses of Material and Construction, Tectonic and Craftsmanship, Building Structure and System, and Portfolio on Sustainable Building Technology; Assisting the lecturer in preparing the classroom before each lecture; Providing mentorship and assistance sessions for student assignments
DPPM, Universitas Islam Indonesia
Student Volunteer Program for Eco-Tourism Master Planning in Kali Opak, Yogyakarta
Best Model Awards in Asian Contest Of Architectural Rookies Award 2021
Asian United Architecture Association, World
Selected as the winner of the best architectural model video award among 19 participants from 12 countries in Asia.
Top 7 Finalist in Asian Contest of Architectural Rookies Awards 2021
Asian United Architecture Association, World
Selected as the Finalist architectural design awards among 19 student works from 12 countries in Asia.
1st Winner of Architectural Blue Ribbon Awards
Department of Architecture, Universitas Islam Indonesia
Selected as the winner among 10 shortlisted students work in 5th semester architecture studio
2nd Winner of Architectural Domestic Rookies Awards
AUA Indonesia
Selected as 2nd Winner among 35 Shorlisted Student Project in Indonesia.
Outstanding Student Recognition In the Academic Category Awarding institution
Department of Architecture, Universitas Islam Indonesia
Outstanding Student Recognition In the Academic Category Awarding institution
Department of Architecture, Universitas Islam Indonesia
Universitas Islam Indonesia Scholarship Awardee
Universitas Islam Indonesia
Indonesian Association of Urban Designer (IARKI)
Member
Excellent Community, Universitas Islam Indonesia
Community Service Organized by the Student Scholarship Association at Universitas Islam Indonesia
Karang Tal, RT 001/RW 001, Kayangan, North Lombok, Indonesia
linkedin: https://www.linkedin.com/in/meizzhan-hady24593b273 Instagram: Meizzh_ email: meizzhanhady21@gmail.com phone: +62 852 0520 9649
Managed a team of 4 students to develop the design and planning for an eco-tourism master plan in collaboration with the local community. Actively engaged with stakeholders on a weekly basis to gather aspirations and feedback from local residents.
DPPM, Universitas Islam Indonesia
63rd Community Service Program, Yogyakarta
Coordinated a group of 9 students to organize a community service program focused on education and a healthy environment in a underprivileged village.
Native Media and Publication
Building Information Modeling (BIM) | Microsoft Office Rhino 3D modeling Autodesk Archicad | AutoCad 2D 3D SketchUP Adobe Graphic Software (Illustrator, InDesign, Photoshop, Premierepro) Autodesk CFD Simulation | Agent Base Analysis Dialux Lighting Simulation | Rendering Animation Software (Enscape, Twinmotion, D5)