POR TFO LIO
meitaarethusa architecture
architecture selected














Satellite Terminals
O’Hare Int’l Airport, Chicago, IL, USA
Status:
Design Development
Additional Note:
Only limited information can be provided due to confidentiality nature of the project
Collaborated with SOM and JGMA, the team was selected to design the airport’s two satellite terminals as part of an international design competition, and will be the first team to break ground. In spite of the many challenges that the Covid-19 pandemic posed to the airline and construction industries, the design fis currently under budget and on track for construction, with on-site work on the airfield to prepare for construction already underway.
Inspired by the orchard that gave O’Hare its original name (“Orchard Field”), a tree-like structural system inside Satellite Concourse 1 eliminates almost half the columns at the gates, reducing congestion and enabling more efficient boarding and improved visibility for passengers.
The modern design is uniquely tuned to the climate of the Midwest, finding efficiencies that prioritize wellbeing while also improving environmental performance. The branching structural system reduces the embodied carbon of the building, while the building’s curved roof profile minimizes heating and cooling needs, strategically overhanging to create shade during peak sun conditions while central skylights create daylit waiting areas year-round. High-performance mechanical and electrical systems further reduce energy use and greenhouse gas emissions.



Inset House
Houston, TX, USA
2fl+Basement+Mezzanine
Status:
Planning Approved, Ready for Construction
This single family dwelling is designed with simplicity in mind. Amalgamation of boxes were created by laying out a plane covering the entire lot then adding and subtracting mass playfully to engage space and activities. Color to be kept minimal and light following local climate: white and grey, just enough to engrave spatial differences between planes.
Abundant penetration of natural lighting was emphasized by not only using wide windows but also skylights. To deal with significant Houston’s heat, we created a decorative screen under the skylight to not only filtering the direct radiation, but also to emulate a sense of time and season by subsequent changes in shadows.









Almost all interior spaces are designated to have a direct view towards front or backyards by flowing open space throughout the house. Floating bridge is connecting main house and outbuilding in consideration of minimizing resources by reducing the need of additional stairs.
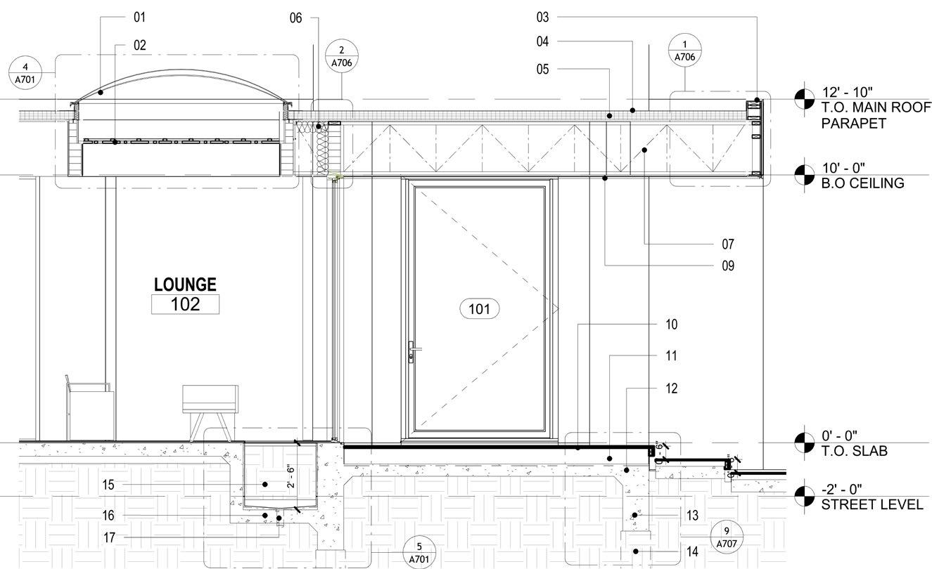
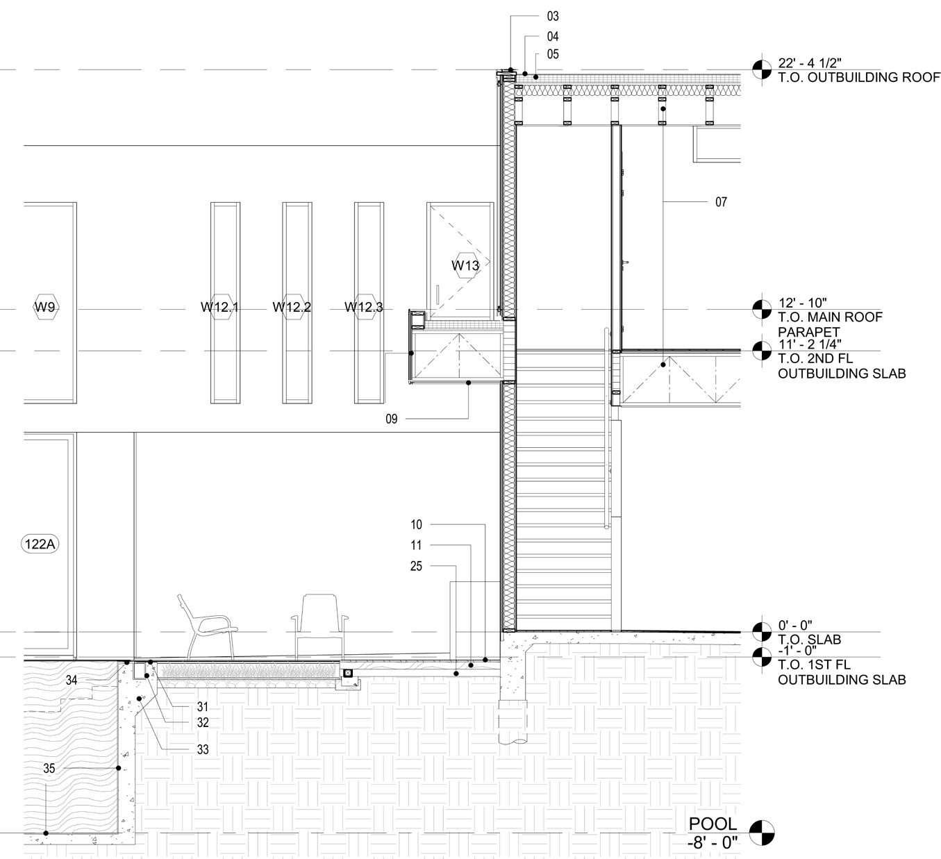
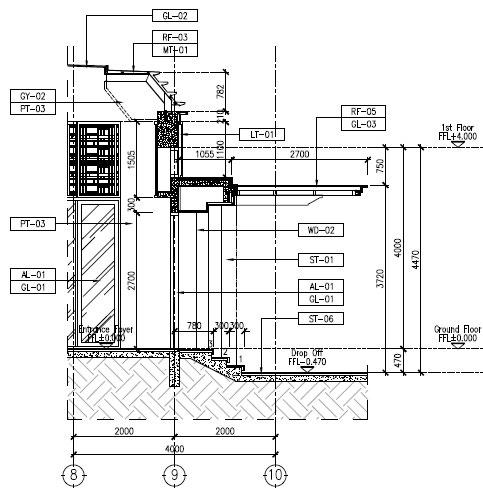
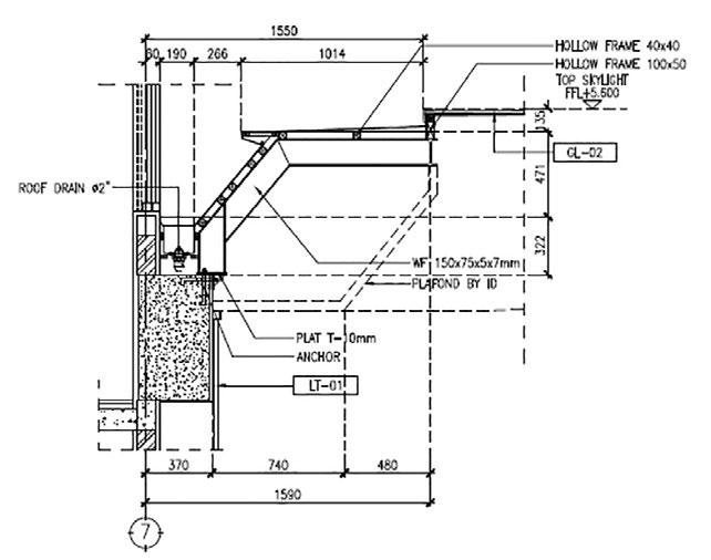
01. Artistic Skylight Domes or Eq.
02. Interior Metal Screen Shading System
03. Prefin. Metal Tapered Edge Parapet Cap Flash Over Peel & Stick Flash Typ.
04. TPO 60mil Roof Membrane Installed per MFR to wrap up interior side of parapet & over to plate Typ.
05. 4” Polyisocyanurate Roof Insulation Provide tapered sheets to achieve drainage per roof plan.
06. R-38 (8”) Icynene Thermal Blown-in Insulation
07. Roof Joist & Decking per Struct., Typ.
08. Roof Drain, Typ.
09. Traditional Stucco over Self-Furring Mtl Lathe, Off-White, Sand Texture
10. Synthetic Deck. Provide adequate board spacing of a min. 3/16” between board for drainage.
11. Treated Wood Joist. Height varies to follow float concrete. Min 1/4” space between board and concrete. Min. 16” spacing O.C. betweem joist.
12. Concete Slab per Str. under the Synthetic Wood Deck. Min. 1/4”/1’-0” float to slope.
13. Concrete Slab and Footing. See Struct.
14. Dowels Sleeved Pier Reinf. See Struct.
15. Metal Sheet for Outdoor Fireplace Slope to Drain
16. Indoor Planter Box with Geotextile Fabric Wrapping over Drainage Cells and Waterproof Membrane sloped to drain. Filled with Sandy Soil Mix on top of Clean Sand.
17. Concrete Box. See Struct.
18. Floor Drain
19. Cover Tape at TPO Roof Edge w/ Gutter
20. Single-Piece Steel Channel Gutter
21. Sheet Metal Downspout. Provide Splash Block Underneath
22. 2x12 SYP Beam. See Struct.
23. R-13 (5.5”) Icynene Thermal Blown-in Insulation
24. R-13 Icynene Thermal Blown-In Closed Cell Insul., Typ.
25. Pervious Synthetic Wooden Decking
26. Zinc/ Metal Roof Panel over Structural Steel Framing. See Struct.
27. Steel Beam. See Struct.
28. Flanged Gutter
29. Gluelam Beam. See Struct.
30. Metal Sheet for Outdoor Firepit. Sloped to Drain
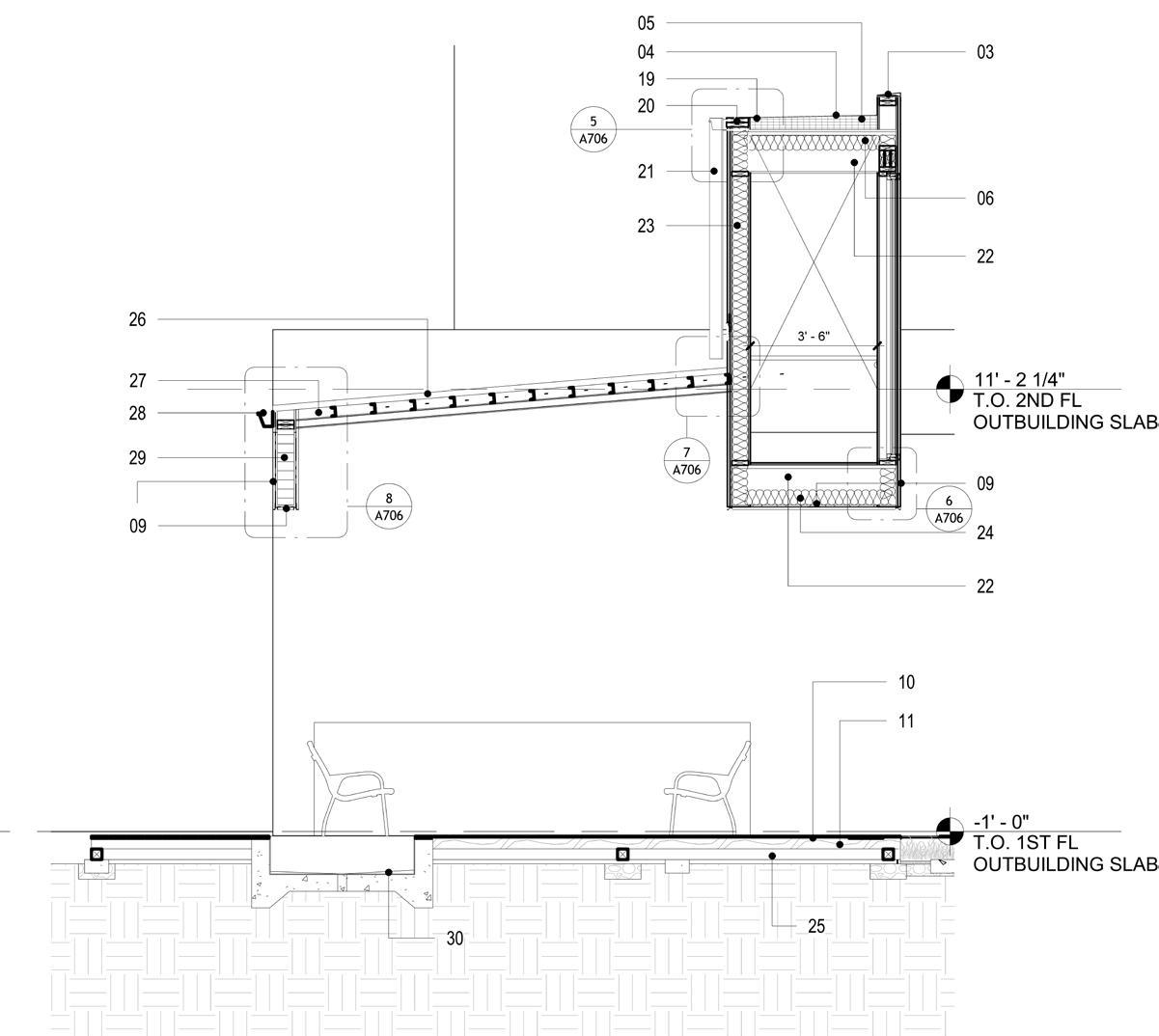
Pool and Waterfall
31. Marine-Grade Stainless Steel Plate to Support Cantilevered Patio by Pool Mfr. Apply Hi-Mod Epoxy or Eq.
32. Waterproof Membrane with Min. 2 Coats of Xypex or Eq.
33. Catch Basin
34. Slope on Pool Beam
35. Interior Tile Finish
36. HSS Steel Beam
37. Water Pump Pipe
38. 1” Glass Tiles
39. Water Resistant Board
40. Exterior Sheathing Over 2x WD Stud Framing. See Struct.
41. Water Tight Access Door
42. Gravel and Gravel Stop
43. Pump & Pool Equipment


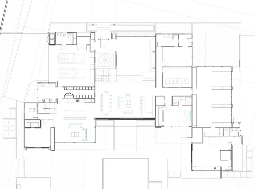
Contemporary Batak House Jakarta, Indonesia
Building : 25,203.69 sqft (2341.50 sqm)
+outdoor : 32,391.19 sqft (3009.24 sqm)
Site : 47,438.60 sqft (4407.19 sqm)
2fl+Basement+Mezzanine
Status: Handover
This 2+1.5 stories house was designed for a family with strong root in Batak Culture and tradition, in which requires the client to provide an ample space for regular family parties and ceremonies. Hence, the first floor is mainly dedicated for such occasions.
Providing space for various scale of parties and ceremonies put flexibility as top priorities. The 1st floor was thus developed as if it is a huge space separated by partition. To accommodate day to day life, rooms were created in layers: corridor entrance and courtyard to divide meeting room (public) with living/dining room (semi-public) and terrace and backyard (private). These spaces can then be easily connected into an indooroutdoor function area by opening partitions.
The nature and level of customization for this house required a development of 76++ pages of construction drawings to develop each details, not including shopdrawing from contractor and subcontractors, and almost 3 years of completion.



Material selection was essential in the design, Focusing on local materials -- wood, stone, metal -- was exteremely important to deliver a tropical experience, along with narrating the intimacy between materials, greeneries, and water bodies.





Having a great love for Batak Culture, the client requsted that the house would have a certain ‘Batak identity” on the facade. A customized, simplified version of Batak Traditional Roof was developed to address this. Furthermore, we incorporated two types of modern materials by overlaying them: metal plates to form the particular shape of Batak roof and bitumen shingles on top.





Space layout and architectural components were geared to response Jakarta’s hot and humid climate: generous shades, high ceiling, natural materials, and tropical landscape and vegetations





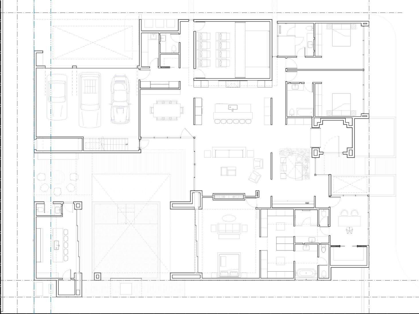
Barn House
Houston, TX, USA
Building : 5,565 sqft (517 sqm)
+outdoor : 10,144 sqft (942 sqm)
Site : 750,974 sqft (17,24 Acre)
3floors + Outbuilding/Workshop
Status:
Planning Approved, Ready for Construction
This house is designed with creating separation of activity in mind: living, hosting/entertaining, and working; without sacrificing privacy for each activity yet still maintain efficiency house footage and circulation.
To aim this flexibility, the dwelling is visually divided into four mass which connected by bridges and outdoor spaces. With the abundance site size-wise, views toward the outdoor could be directed on only the north and south side of the building, keeping the utmost privacy between each mass.
Since the site is located in a rural area, the form of barn house was deemed appropriate. This form was then explored to provide distinctiveness between function. Exterior materials thus being kept minimum to enhance this particularity even more.
On top of layout efficiency, sun path study was used to determine the best orientatio, reduce the energy consumption, and avoid the necessity of too much usage of window screen.


The owner of Barn House is onboard with the idea of material exploration, in which 3 different exterior finishes for were considered. Initially, the design aim to use hardie board panel for the entirerity of the facade. Unfortunately, installation and assurance were not granted from the vendors and the design eventually settled with a combination of standing seam metal to wrap throughout the sloped roof and exterior walls adjacent to it, whereas the rest of the exterior finish will be using hardie board panel of the same color.











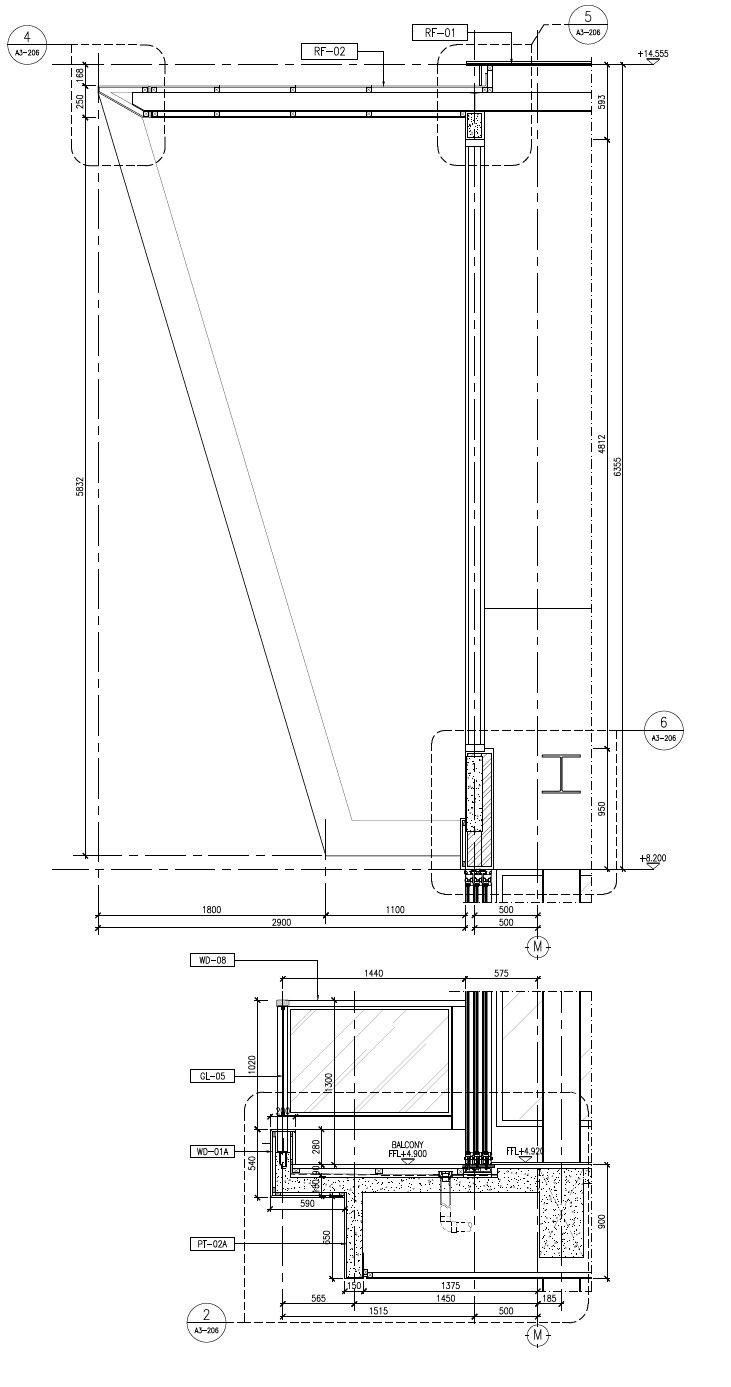
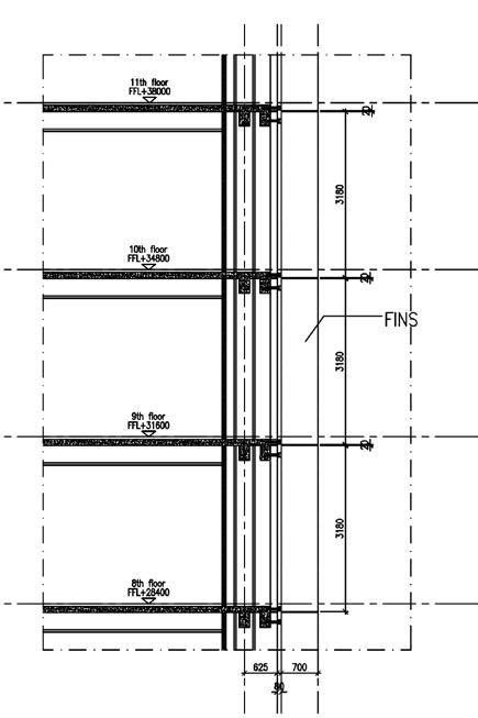
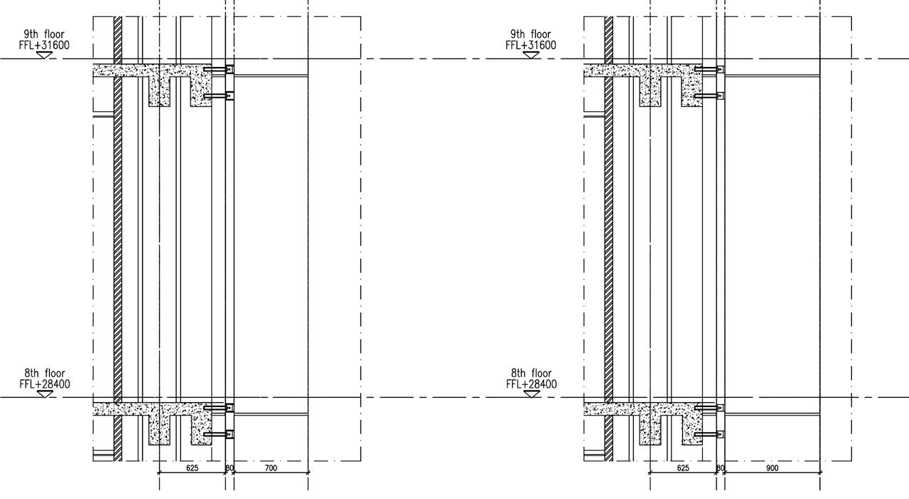
Grand Hyatt Hotel Renovation Jakarta, Indonesia
Renovation area:
Architectural Facade, Drop Off and Lobby, Restaurant and Pool @ 5th floor, Executive Suite Terrace, and Presidential Suite Glass House.
Status: Handover
The Grand Hyatt Hotel Jakarta was built in 1991 in the heart of the capital city. Following a rapid development in the area, the hotel was in need of a new face to welcome the current and upcoming market. The renovation covers architectural facade, interior design, and landscape, starting from the entrance gate and lobby, restaurant and swimming pool on the 5th floor, up to rental spaces on the highest floor of 26th.
The concept was to engage local approach by incorporating palm leaf tree pattern (so called nipah in bahasa) through the whole design. Introducing vertical lines on the facade was a chosen strategy to conform a more contemporary feeling and increase building’s prominence by making it seems taller. Vertical fins were added throughout the facade for this purpose, as it can also provide shades. All single glass openings were replaced with low-e coated double glasses unit to address leaking problem as well as significantly reduce building’s energy consumption caused by air cooling. The original imported red granite was also being replaced by local travertine stone.














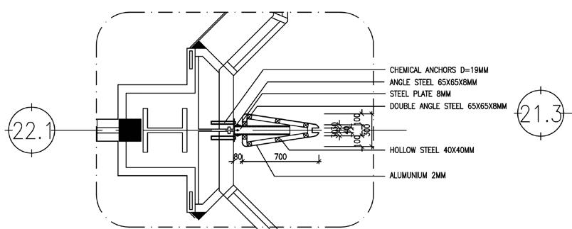
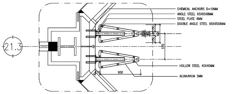
Fins Details | Section Fins Details | Plan
Vertical fins were customized using ACP (Aluminium Composite Panel) instead of metal sheet material. This is to ensure that the fins will be lightweight enough since possibility for structure reinforcement was very limited.




Angled House
Houston, TX, U.S.A.
Building : 10,218 sqft
+outdoor : 3,970 sqft
Site : 25,351 sqft
3floors + Rooftop
Role and Responsibility:
Collaboration with Owner as Lead Designer
Design Concept and Development
Construction and Permit Drawing
Material and Supplier Selection and Specification
Structural/MEP/Interior Coordination
Permiting Process
Status:
Planning Approved, Ready for Construction
Angled house is to pay tribute to an unorthodox client who is not afraid to challenge. Nothing designer love the most but owner who is open to eccentiricity. Since a big part of the house will be destined as a photography gallery (owner’s side activity), this disticnt visual of the architecture cannot be more revlevant.
The idea is to have interconnected angles wrapping the facade around the building. All the angels to be maintained at 240 to maintain the harmony. This “wrap” will be all finished with white stucco, whereas other componenents beinng “wrapped” will be of different materials (stone, wood, granite).



The project went through a significant number of iteration to be able to reach the balance despite its particularity, and to make sure that its functionality will not be compromised. This general concept of the house is then continue to the interior and landscape, accommodating angled lines of the same degree and otherwise clean finish.























Pasar Mama (Mother’s Market)
Papua, Indonesia
Area : 733,966.08 sqft (3,349.00 sqm)
No. of kiosk : 298 units
4floors
Status: Handover, Built with adjustment
Women in traditional Papua culture (mama-mama) are playing a major role in the family: earning salaries, taking care of her husband, her kid, and even her in laws. Ironically, their cultural norm is patriarchal, which means that men are the decision makerl they’re holding sovereign positions, entitled to join community meetings, and have the utmost power. This leads to common cases of domestic abuse in the community.
Papuan mama’s daily activities normally consist of bringing agricultural product by foot from villages to the city market, while bringing their small kids. They would spend the whole day in the market before going back home to feed the family.
This marketplace slowly transforms from merely a trading place to a safe place for Papuan Mama: it is a social platform to meet other mama, it is a playground for their kids, it is a place where they can relax and loosen up from day to day pressure.
This project aims to upgrade Papuan Mama safe place by providing more than a better trading space, but also to improve their quality of life. Education and healthcare facilities were added, along with proper sanitation, resting area, and a religious facility. By doing so, we hoped to empower the Papuan Mama by growing their own community and to build a better life for them and their children.
Papuan take a great pride of their indigenous identity. The building form was inspired by vernacular long houses of Papuan indigenous tribe where all important events are taking place. The aim was also to create a familiar atmosphere for Mamamama and to make it easier for them to adapt to the new space.


To ensure the possibility of this market to be a prototype for future development, the design was created to be simple and used mainly local materials, such as traditional brick made from cassava, thatch, and local wood. The design was also modular, giving flexibility to easily scale the building dimension according to the site availability.




This project was shortlisted in the World Architecture Festival (WAF) 2015 under category Future Project: Commercial Mixed-Use. This project was eventually built by Indonesian Government in 2018 with several adjustments.




River House
Houston, TX, U.S.A.
Building : 15,890 sqft (1476 sqm)
Site : 71,658 sqft (1.64 Acre)
2 floors (Renovation + Addition
Status:
Planning Approved, Ready for Construction
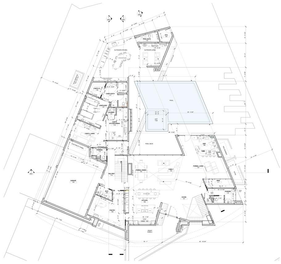
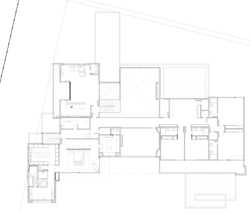
River House is what is called the soul of modern house in Houston, Texas. Intertwine of volume, color, and mass come into play in this 2 stories home for a family of 5. Aside for functionality being number 1 priority, space experience becoming the jewel of the design. There are different visual and scale to be delivered everytime residence or visitor is moving between spaces. To attempt this vision, application of different ceiling height, openings of various size and locations, and a number of courtyards were some of the utmost strategy.
Preserving the existing house’s form and structure is significant to reduce material waste. As the rear part of the site is still on natural grade flowing towards the river, construction around this area to be kept minimal and focus on landscaping and soil restrengthening. Existing trees to be minimally reduced as well. To blend with the forest-like surroundings, choice of material colors stay in natural palette: dark metal, wood, and light stone.



River House is what is called the soul of modern house in Houston, Texas. Intertwine of volume, color, and mass come into play in this 2 stories home for a family of 5. Aside for functionality being number 1 priority, space experience becoming the jewel of the design. There are different visual and scale to be delivered everytime residence or visitor is moving between spaces. To attempt this vision, application of different ceiling height, openings of various size and locations, and a number of courtyards were some of the utmost strategy.
Preserving the existing house’s form and structure is significant to reduce material waste. As the rear part of the site is still on natural grade flowing towards the river, construction around this area to be kept minimal and focus on landscaping and soil restrengthening. Existing trees to be minimally reduced as well. To blend with the forest-like surroundings, choice of material colors stay in natural palette: dark metal, wood, and light stone.



Dining + Bar





Bali-Japan Fusion Villa Bali, Indonesia
Building : 12,672.14 sqft (1177.28 sqm) Site : 15,431.46 sqft (1433.63 sqm)
2 floors
Status: Planning Approved, Under Construction
This private holiday villa is a part of Mandapa, a RitzCarlton Reserve in Ubud, Bali. The site is located on a layered hill facing a river. The unit is consisted of two floors with five bedrooms with private bathroom and a walk-in closet.
The client requested for a more modern appearance with touches of Japanese culture, in contrary with Mandapa’s original design. In effort of keeping its harmony with surrounding buildings, original colour and proportions were retained. The details, however, were simplified to provide a better connection with contemporary interior design.



The layered Balinese roof was modernized by using metal plates as the main material, surrounding a skylight. The metal plate was molded in a module similar to shingles for easy installation.


To maintain its original proportion, the building composition was visually broken down into 5 buildings with 2 different roof types: a classical dutch hip roof and layered roof inspired by Balinese temple.








































