Academic Portfolio of Selected Studio Works

Page 1

MEHEDI HASAN EMON

RESUME+ ACADEMIC PORTFOLIO

B.Arch: Military Institute of Science & Technology

It is my goal to create captivating spaces that harmonize functionality and aesthetics, integrating sustainability and innovation. Through collaboration and continuous learning, my aim is to leave an enduring legacy, shaping how people experience the built environment.

MEHEDI HASAN EMON

emehedi11@gmail.com, +880 1533091128

LinkedIn: https://www.linkedin.com/in/mehediemon

Education

Military Institute of Science & Technology

Bachelor Of Architecture Year|2022

CGPA: 2.95

BAF Shaheen College Tejgaon, Dhaka

Higher Secondary School Certificate| 2014

GPA 5.0

BAF Shaheen College Tejgaon, Dhaka

Secondary School Certificate| 2012 GPA 5.0

Work Experience

Architect

Army Officers’ Housing Scheme (AHS),

Jolshiri Abashon |20 April,2022- 31 May, 2023

Worked on residence design, authority approval drawing, landscaping and overall project management of a housing facilities.

Architectural Intern

Archeground Ltd. |Dec 7, 2019- Feb 10, 2020

Worked on A Khanka for a Fakir, As-salam Jame Masjid, Meyor Residence and verious projects

Awards & Activities

Gold Mention

Archtwist: Architectural Competition & Publication

Post Covid Interaction Space https://archtwist.com/result-of-postcovid-interaction/

Design of a Sacred Space- Crematorium https://www.inspireli.com/cz/awards/detail/2033

Participant

A Workshop on Parametric Architecture 2019, MIST|AIUB

A Workshop on Energy and Enviornmental Behaviour of Buildings 2018, MIST|CUET Language

Bangla| English

Skills and Interest

AutoCAD| SketchUp|Adobe Photoshop| Adobe InDesign| Adobe Illustrator| Revit| Rhino| Lumion| Twinmotion

Microsoft Word|Microsoft Excel|Microsoft PowerPoint|Model Making

3rd Place of Attendance

5th Inspireli Awards

Movies| Music|Books| Digital Illustration

Resume| Mehedi Hasan Emon
Contents Studio Projects 1 SUSTAINABLE HOUSING FOR COAL MINE WORKERS BARAPUKURIA COAL MINE VILLAGE, DINAJPUR 41 CRAFT CENTER DESIGNING A WORKSHOP AND EXHIBITION SPACE FOR ARTISANS AND ART ENTHUSIASTS 55 MONOSPACE A WRITTER’S RETREAT 51 FRAMING DHAKA SKY DESIGN OF A HIGHRISE 13 ELEGANCE IN HOSPITALITY DESIGNING A FIVE STAR BUSINESS HOTEL 20 MISE EN VALEUR RUPLAL HOUSE 25 A ‘MOSQUE’A SPRITUAL OASIS 37 A SINGLEFAMILY RESIDENCE 31 A HOME AWAY FROM HOME DESIGNING A MODERN FACTORY WORKER’S DORM 45 Rethinking ‘Home’ A Move Towards Adapting the New Normal Lifestyle

SUSTAINABLE HOUSING FOR COAL MINE WORKERS

BARAPUKURIA COAL MINE VILLAGE, DINAJPUR

Academic| Design Studio 5202| Individual Work| Undergrad Thesis

Professor: Sudipti Biswas| Syeda Jafriana Nancy| Shafinaz Sameen

Site: Barapukuria, Dinajpur

Site Are: 31.09 Acres

Site Plan

Physical Model| Cluster

|1|
1 2 2
Location Map| Barapukuria

SITE IS ADJACENT TO 3 VILLAGES. (SOUTH WEST ICHHABPUR, NOTH CHOWHATI & SOUTH EAST HAMIDPUR).

A PATHWAY CONNECTING THE TWO MAIN NODES CAN CREATE INTEGRATION OF

TYPE C 800 SQFT HOUSES. 80 FAMILIES.

ALONG THE PATHWAY THE AMENITIES FUNCTIONS ARE ARRANGED. THIS CREATES THREE DISTINCT ZONES.

These zones have their own Pond for water retention

TYPE A 370 SQFT HOUSES. 170 FAMILIES.

TYPE B 600 SQFT HOUSES. 100 FAMILIES.

3 4 Master Plan 3 7 8 9 4 5 6 4 2 10 1 1 Concept Development| Master Plan
1. Pond| 2. Coutryeard| 3. Central Field| 4. Primery School| 5. Mosque| 6. Health Care facilities| 7. Prangon| 8. Angon|9. Pran tor| 10. Bazar

BARAPUKURIA COAL MINE VILLAGE- is a housing project for the employees of the BARAPUKURIA COAL MINE COMPANY. The project site is in BARAPUKURIA, DINAJPUR in a village called CHAWHATI. The site in which the mild nature is the force to play with & become a vital component.

BARAPUKURIA COAL MINE COMPANY (A company of Petro Bangla) doing this project.

• Reduce use of materials which have high embodied energy

• Respect local climate: orientation, lighting and ventilation.

• Respect users and craft-people's participation in design and construction because freedom to design own spaces heightens aesthetic sensitivity.

• Respect local needs as well as aspirations because Sustainability in terms of global environmental point of view might be questionable but sustainability in terms of local needs and aspirations must not be ignored.

• The understanding of expectations that are not limited to basic needs but are also extended to sensitivity about light, smell, sound, view, breeze and openness.

6 5
Master Section 3d Visualization|Pond, Primary Road & Cluster conncetion 3d Visualization|Primery School, Mosque & Road Connection

Basic Unit| Save Land, increase BIO Capacity

BASIC UNITS ARE JOINED TO CREATE DIFFERENT SHAPE OF UNIT. I SHAPE & L SHAPE.|UNITS ARE ARRANGED AROUND AN INTIMATE SCALE COURTYEARD TO CREATE A CLUSTER

TWO SUCH CLUSTER SHARES COWSHED, GARBAGE DISPOSAL POINT & BIOGAS PLANT AND TUBEWELL.| THESE CLUSTERS ARE ARRENGED AROUND A CENTRAL COURTYEARD CREATING A MEGA CLUSTER.

TWO SUCH MEGA CLUSTER SHARES A POND CONNECTED BY ANGAN.

7 8 Isometric View of A Cluster Concept Development| Cluster

Angon, Prangon, Coutyard, Prantor Connection

10 9 3d Visualization|
11 12 3d Visualization| Unit & Courtyard Connection as well as Activities
of an Unit
Exploded Axenometric
Jutin Bamboo Purlin Bamboo Truss Jali Works Bamboo Collumn Mud Brick & Mud Plaster NCF Timber Stair

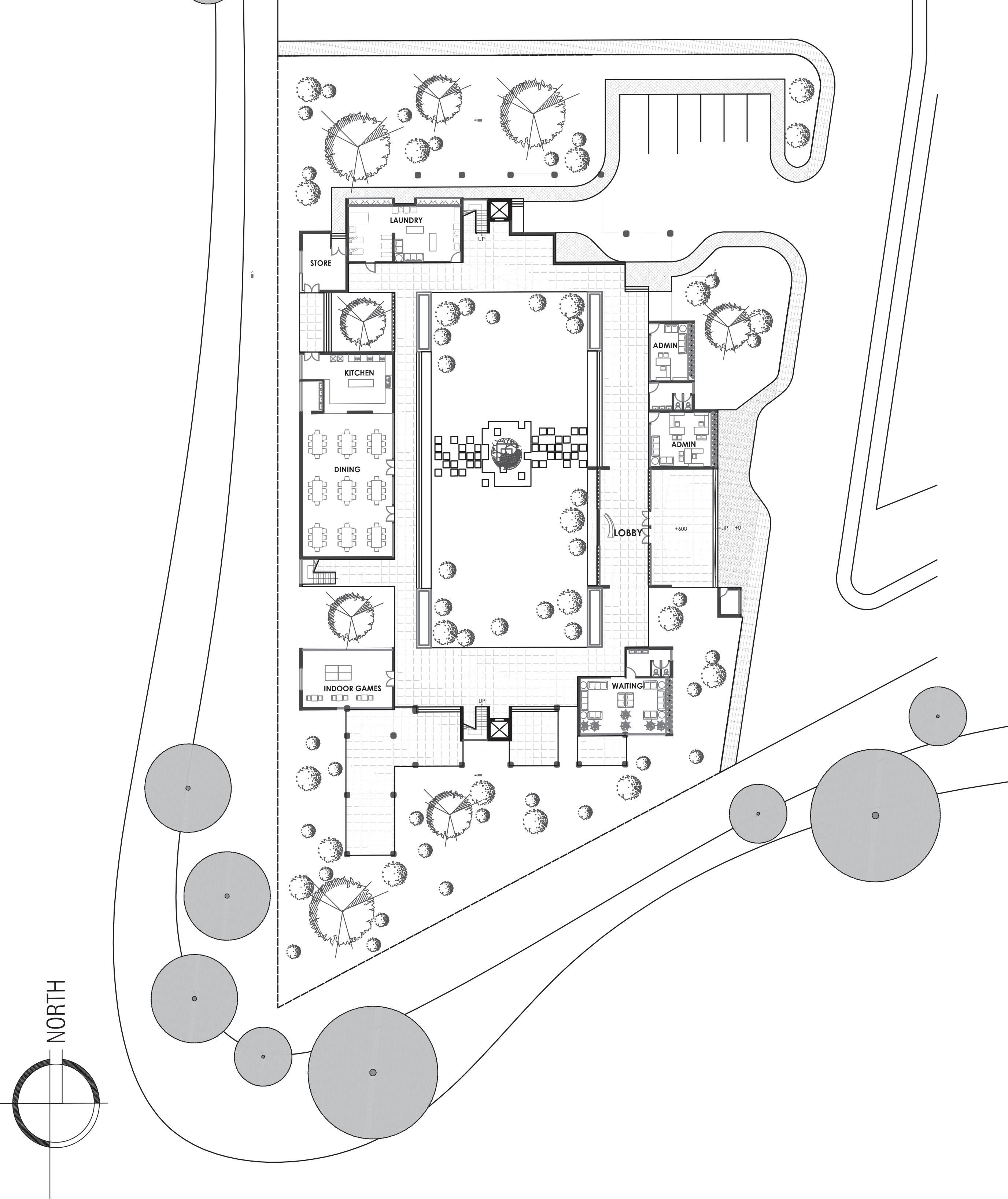
ELEGANCE IN HOSPITALITY

DESIGNING A FIVE STAR BUSINESS HOTEL

Academic| Design Studio 5102| Individual Work

Professor: Mohammad Sazzad Hossain| Syed Abu Salaque| AKM Saleh Ahmed Anik

Site: Navy House, Banglamotor, Dhaka Area: 2.44 Acres

14 |2|
13 fig: Site 3d Visualization| Atrium & Residential Part Facade Site Plan Location Map

A hotel is an establishment that provides paid lodging on a short-term basis. Hotel operations vary in size, function, complexity, and cost.

This project aims to-

• deal with complex unity of residential and non-residential functions in a practical

• Project design through program formulation on the basis of social and economic dynamics to design a feasible project that will meet the contemporary need.

• Thematic approach to Architectural design with focus on expression of vertical form.

15 16
17 18
Maquette Render| Hotel Entry Facade
West Elevation Section AA' South Elevation

Location| Ruplal House

MISE EN VALEUR RUPLAL

HOUSE

Academic| Design Studio 5102|

Individual Work

Professor: Mohammad Sazzad Hossain| Syed Abu Salaque| AKM Saleh Ahmed Anik

20 19 |3|
3d Visualization| South
West Facade

The best way of preserving buildings as opposed to objects is to keep them in use—a practice which may involve what the French call ‘mise en valeur’, or modernization with or without adaptive alteration. The original use is generally the best for conservation of the fabric, as it means fewer changes. Adaptive use of buildings is often the only way that historic and aesthetic values can be saved economically and historic buildings brought up to contemporary standards.

This project tries to

• Propose Adaptive reuse.

• Integrate the artifact within existing the urban fabric by creating proper access and visual exposure.

• Promote cultural tourism.

21 22 21 3d
Visualization| Ruplal House
23 24 Before After Comperision| Ruplal House

Top View|Mosque

A ‘MOSQUE’- A SPRITUAL OASIS

Academic| Design Studio 2202|

Individual Work

Professor: Manifa Rehnuam| Sadia Subrina| Raisul

Mostafa Sajib

Visualization| Mosque Prayer Space View

|4|
25 26
3d
27 28
Plan Sectional Perspective 3d Visualization| Women Prayer Space on the First Floor
Ground Floor
29 30 3d Visualization| Mosque Front Entry Facade

Top View|Worker's Dorm

A HOME AWAY FROM HOME DESIGNING A MODERN FACTORY WORKER’S DORM

Academic| Design Studio 2202|

Individual Work

Professor: Manifa Rehnuama| Sadia Subrina|

Raisul Mostafa Sajib

|5|
31 32
Maquette Render|Worker's Dorm
34 33
First Floor Plan Ground Floor Plan Section AA
East Elevation|Front Facade
35 36 3d Visualization| Dorm Central Court
|6|
A SINGLE-FAMILY RESIDENCE Academic| Design Studio 2102| Individual Work
37 38
Professor: Sudipti Biswas| Raihan Ahmed Chowdhury
Isometric View Top View 3d Visualization| Circular Court & Stair
39 40
Sectional Perspective 3d Visualization| Entry
South Elevation| Front Facade

CRAFT CENTER DESIGNING A WORKSHOP AND EXHIBITION SPACE FOR ARTISANS AND ART ENTHUSIASTS Academic| Design Studio 3102|

Individual Work Professor: Manifa Rehnuama| Sadia Subrina| Raisul Mostafa Sajib

Maquette Render

|7|
41 42 Top View
3d Visualization| Circular Ramp from Workspace to outdoor
43 44
Ground Floor Plan South Elevation 3d Visualization| Double Height Exhibition Space 3d Visualization| Circular Court by Workspace

Rethinking ‘Home’

A Move Towards Adapting the New Normal Lifestyle

Academic| Design Studio 4202| Individual Work (Study Part was done in group)

46 |8|
45 46
Top View
Professor: Syeda Jafrian Nancy| Sadia Subriana| Dristi Chakma
3d Visualization| Cluter View

BASICALLY HERE WE DECIDED TO PROVIDE A JOURNEY FROM ONE END TO ANOTHER END. SO WE DESIGNED A PEDESTRIAN PATHWAY AND PROVIDED THE COMMUNITY FACILITIES ALONG WITH THE PATHWAYS AND MAXIMUM IN THE CENTRAL YELLOW COLOUREDNSPACE. THE JOURNEY TERMINATED WITH COMMUNITY GREEN SPACES. WE ALSO PROVIDED A WATERBODY HERE.

HERE WE PLACED THE BUILDINGS AT 45 DEGREE MAINLY BECAUSE OF TWO CONCEPTUAL REASONS.

PROPER VENTILATION SYSTEM. PROVIDE PRODUCTIVE SPACE ON THE EDGE.

FOR ROTATING THESE BUILDINGS WE GOT PRODUCTIVE EDGES OF CERTAIN SHAPE. ALL THE

47 48
Ground Floor Plan
50 49 3d Visualization| Water Retention Lake & Surrounding Cluster

FRAMING DHAKA SKY

DESIGN OF A HIGHRISE

Academic| Design Studio 3202|

Individual Work

Professor: Mohammad Sazzad Hossain| Sabbir

Ahmed| Chowdhury Ali Imam

|9|
51 52 Top View Framing Dhaka Sky 3d Visualization| From Podium to above
53 54
3d
3d Visualization| From Podium to above Section
Visualization| Sky Frame 3d Visualization| Atrium

MONOSPACE A WRITTER’S RETREAT

Academic| Design Studio 2102| Individual Work

Professor: Sudipti Biswas| Raihan Ahmed Chowdhury

56 |10|
55 Top View 3d
Visualization| Entry Facade
57 58 57 Ground Floor Plan 3d Visualization| Interior View Sectional Perspective

Turn static files into dynamic content formats.

Create a flipbook
Issuu converts static files into: digital portfolios, online yearbooks, online catalogs, digital photo albums and more. Sign up and create your flipbook.
Academic Portfolio of Selected Studio Works by mehedi emon - Issuu