UNDERGRADUATE ARCHITECTURE PORTFOLIO_MeghnaHenry

Page 1

• NammaRaste,WRI& BBMP

• ModelMaking,Ar.Shaju

• ParametricWorkshop

,Ar.Rayal

• ArchicadWorkshop, Ar.Dominic

3InternshipProject OerlikonIndustrial Project 4InternshipProject ResidentialDesign 1AcademicProject Thesis: Explorative CommunitySchoolComplex 2AcademicProject–7thSem: Waste RecyclingPlant 5InternshipProject InteriorDesign

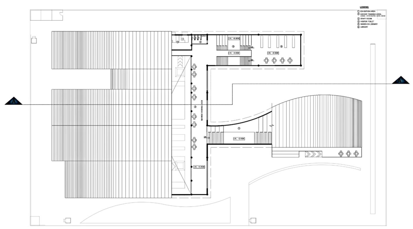
ExplorativeCommunity SchoolComplex

ACADEMICPROJECT:THESIS

Experientiallearningisbecomingmoresignificantin themodernworld.Itisnowessentialtoprovidean explorativestrategyateachstepofstudyinlightof NEP2020.Therefore,usingarchitecturetoachievethis goalisessential.

Withsufficientresearchintothelocalareaand educationalinstitutionscloseby,PRAGYAAhasthe potentialtoactasacenterforeducation.Itoffersa noveltypologyandviewpointforthecurrentorthodox schools.

1 Page-01

:Thisshapeisthemostcommoninnatureandoffersthedoubleadvantageof“fullfilling”and“optimalefficiency”.Thehexagonalmotifcanbedevelopedand geamountofspacewithoutrightangles,which

Linear and formal. In formal and no order. Formal and liberal.
Thesis:ExplorativeSchoolComplex.………………………….……..Page-02
The final culmination of Geometry.
Thesis:ExplorativeSchoolComplex.………………………….……..Page-03
Thesis:ExplorativeSchoolComplex.………………………….……..Page-04
Thesis:ExplorativeSchoolComplex.………………………….……..Page-05
Thesis:ExplorativeSchoolComplex.………………………….……..Page-06

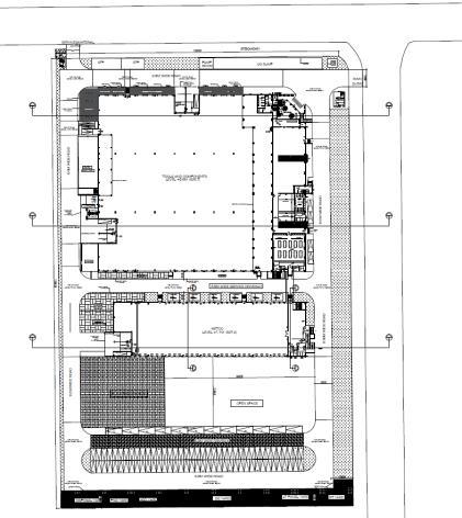
WasteRecyclingPlant

ACADEMICPROJECT:7THSEMESTER

Liminalspaceisthe‘in-between’locationofcultural action.The‘thirdspace’,therefore,isaplaceof opportunityforthegrowthoffreshideas.Thisproject looksatspacesinacitythatarenecessarybutnot desired:TheWasteRecyclingCenters.

Rethinkingandreimaginingawastesegregationunit alongwithotherassociatedfunctionsthisprojectis integratingtheperformativeaspectsofarchitectureinto thedesign.

Page-07
2
Academic7thSem:IndustrialProject.….…………………….……..Page-08
ELEVATION AA’
Academic7thSem:IndustrialProject.….…………………….……..Page-09
SECTION AA’ FIRST FLOOR PLAN SECOND FLOOR PLAN
Academic7thSem:IndustrialProject.….…………………….……..Page-10
Academic7thSem:IndustrialProject.….…………………….……..Page-11
Skylight with led light Space Frame with Skylight Flat space frame being pushed and pulled This one leaf is alternated to form 5 leaves of the roof Final roof form evolved
Academic7thSem:IndustrialProject.….…………………….……..Page-12
Section of the north façade which has the kinetic solar glass

PVDCoating ProductionIndustry

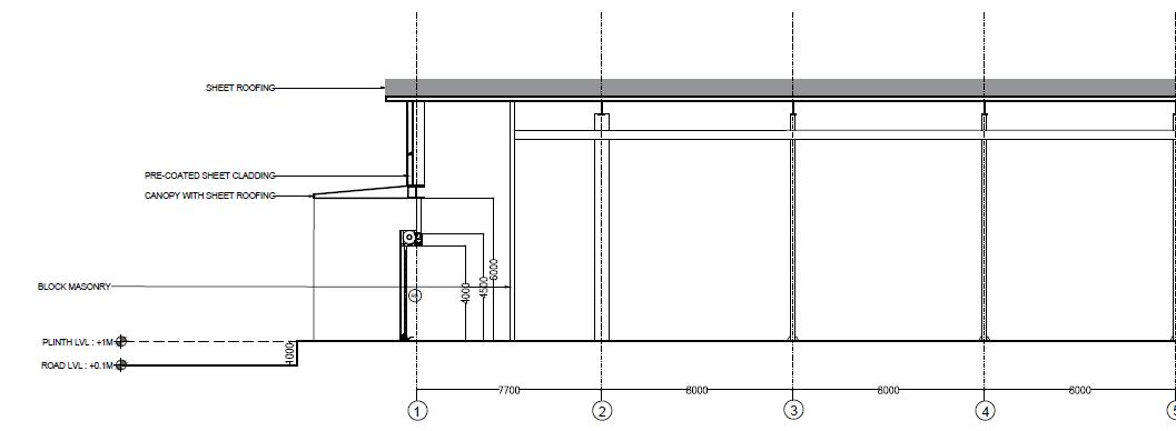
LIVEPROJECT-INTERNSHIP

INDUSTRIALPROJECT-Tumkur,India

Scopeoftheproject:APVDcoatingproductionIndustry. TheywantedanIndustrialwarehousewithanew outlook.AndtoMergeofficeandfactoryspaceand createaSinglebuilding.

SiteArea:27,850SqM

BuiltUpArea:GF:93200SqM

WorkAssigned:1.GeneratingSectionsandelevations

2.3DmodellingandRenders

Softwareused:CAD,SketchupandLumion

3 Page–13
Internship:IndustrialProject.……………………………………….……..Page-14
Internship:IndustrialProject.……………………………………….……..Page-15

ResidentialProject 4

LIVEPROJECT–INTERNSHIP

RESIDENTIALPROJECT-

KRPuram,Bengaluru,India

Scopeoftheproject:DuplexHousetobeaddedtoa singlestoreyhousefollowingvastwithBetter functionalityandspaciousrooms.

SiteArea:1100SqFt

BuiltupArea:FF:910SqFt,2F:850SqFt

WorkAssigned: 1.PlanningandDesigning

2.InteriorDesigning

3.3DmodellingandRenders

Softwareused:CAD,SketchupandLumion

Page-16
Internship:ResidentialPlanning………………………………………..Page-17
Internship:ResidentialPlanning………………………………………..Page-18

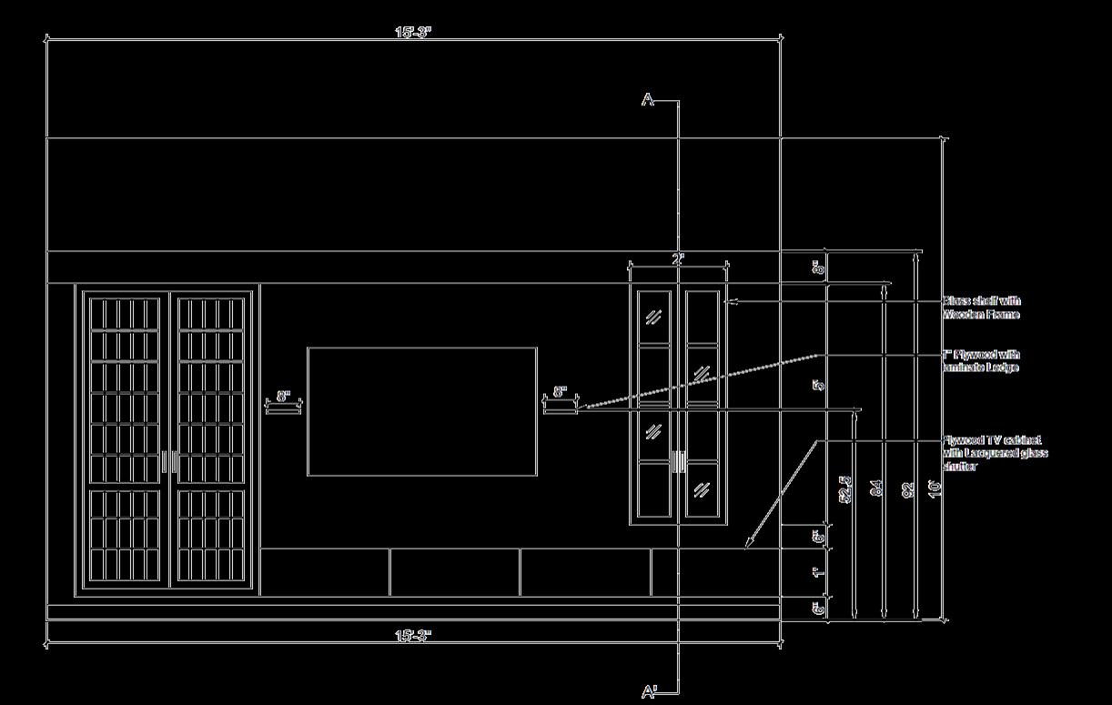
LIVEPROJECT:INTERNSHIP

Softwareused:1.SketchupandLumion InteriorDesignProject

INTERIORDESIGN-Jayanagar,Bengaluru,India

Scopeoftheproject:RenovationofBedroom,walkin closetandtoiletincontemporarystyleandsimplistic design.

Area:Bedroom:260SqFt,Toilet:63.5SqFt

WorkAssigned:1.DesigningInteriors

2.3DmodellingandRenders

Page-19 5
Internship:InteriorDesign…..……………………………………….……..Page-20
Internship:InteriorDesign…..……………………………………….……..Page-21

Urban DesignStudy 6

AsPartof NammaRaste:An ExhibitioncumConveningOrganized byBBMPandWRIIndia

Transforminghigh-capacitycorridorinthecity: AcaseofKanakapuraRoad,Bengaluru

KanakapuraBeingahighriskcorridorwasstudiedinaperiodof fivemonthsand5pilotstretcheswerestudiedindetailand potentialdesignstrategieswereproposedforthesame.

Thefivestretchesbeing:

1.SarakkiMarket

2.SarakkiJunction

3.SriMaheshwarammaTemple

4.KSITCollege

5.JnanaSweekarPublicSchool

Internship:UrbanDesign…..……………………………………….……..Page-22
Internship:UrbanDesign…..……………………………………….……..Page-23
Internship:UrbanDesign…..……………………………………….……..Page-24
Internship:UrbanDesign…..……………………………………….……..Page-25
Internship:UrbanDesign…..……………………………………….……..Page-26
Page-27 :
Page-28

Turn static files into dynamic content formats.

Create a flipbook
Issuu converts static files into: digital portfolios, online yearbooks, online catalogs, digital photo albums and more. Sign up and create your flipbook.