2025 Design Portfolio

Page 1


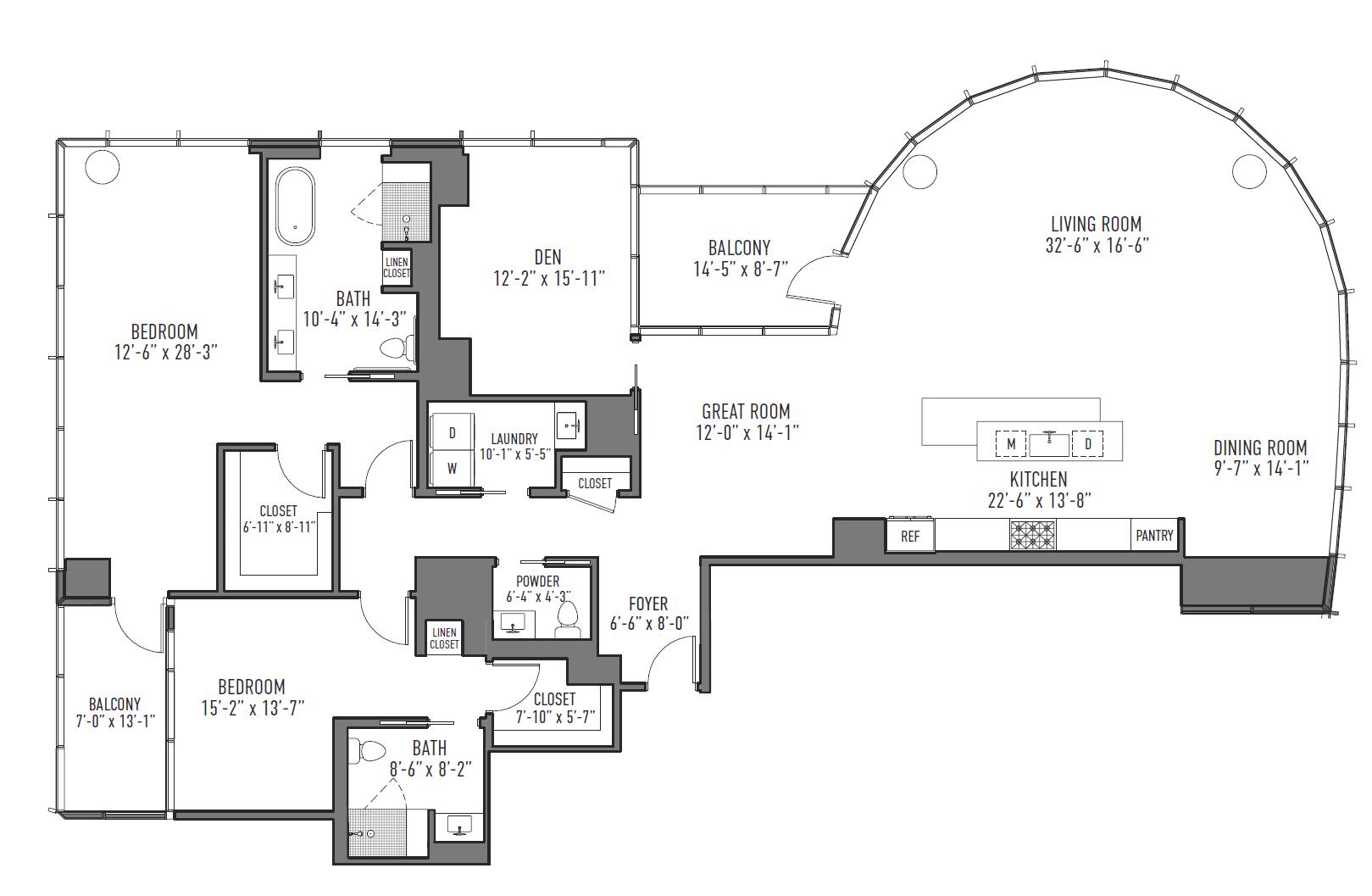
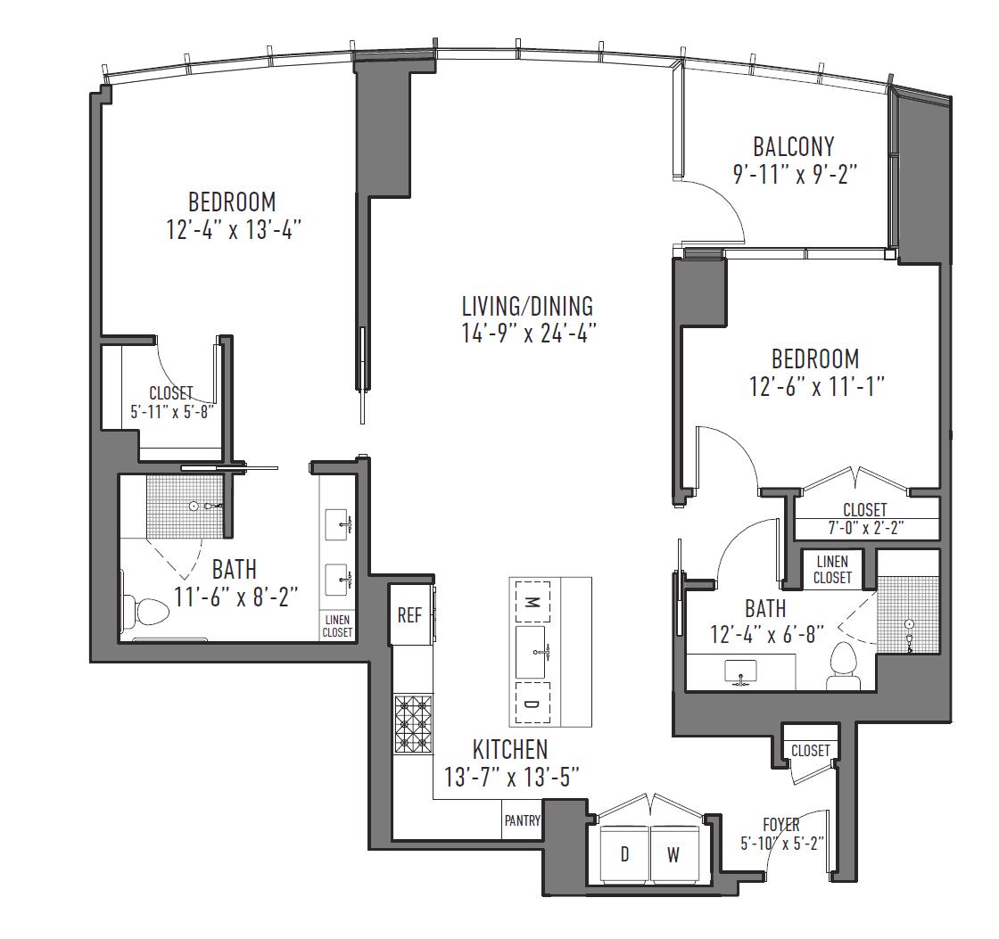
Rekindle House

Teammates : W Merkhipour, Tiangang Lu

Mentors : Andrew Metter, David Birninstool

Location : West Diversey, Chicago, IL

Assisted living facility with rehabilitation spaces for people with physical disabilities

Softwares used : Revit, Sketchup, Lumion, Photoshop, Indesign

Interconnected spaces creating harmony through co-ordination

Atelier Exchange

Teammate : Sahitya Arullalan Mentor : Tom Brock

Hybrid maker space in a post industrial revival site

Location: Goose Island, Chicago, IL

Softwares used : Revit, Sketchup, Lumion, Enscape, Photoshop, Indesign

Location, context and concept

Floor plans and program

Program

Sections

Placemaking on roofscape

Interior view of reception
Interior
Interior view of mezzanine library

Interior view of mezzanine art gallery

Aerial view of landscaped rooftop with cycle

Exterior view from road side

Glendale mall

Individual project

Mentor : Sunil Hingmire

Location : Revenue village, Baner, Pune, IN

Urban entertainment plaza for the rapidly developing Baner, a suburb of Pune,India. The program included 4 cinema screens, 2 foodcourts, a bowling alley, a cafe, art gallery, gym, sauna, squash courts, a bookstore, a gaming arcade and multiple shops

Softwares used : Revit, Sketchup, Lumion, Photoshop, Indesign

Location and concept

Hill as visible from the undeveloped site

Concept

Pune bring quite hot in the summer, the idea was to divert cool breeze into the central courtyard.

The floating bridge form also creates the illusion of a doorway welcoming people to the site.

The stepped profile of thge built form pays homage to the hills visible from the site.

Section

Mather Tysons

Team work

Professional work, SCB

Customization work for condos in a luxury senior living highrise in Tysons Corner, Virginia.

Patrons were offered the option to customize their condo and I was working towards co-ordinating thosde changes.

Different floor plans customized

Coonoor home

Individual project

Professional work, W Design

Studio

Location : Coonoor, Tamil Nadu, IN

Hillside holiday home for a family of four.

Had to be designed so as to maximise views from the house

Softwares used : Sketchup, Lumion, Photoshop, Indesign

Location and concept

Context

The site overlooks a valley and the adjoining and id deeply contoured

Form Development

Concept and design origin

Initial plan suggested by client to maximize panaoramic views of the site from the house

Material Selection

The client wanted to use Smart Glass for the house. This was factored into the design of the house right from the start.

Ground Floor
First Floor plan
Roof plan

Section through driveway

Interior view of lounge area
Section through staircase

Interior view of Kids’ bedroom

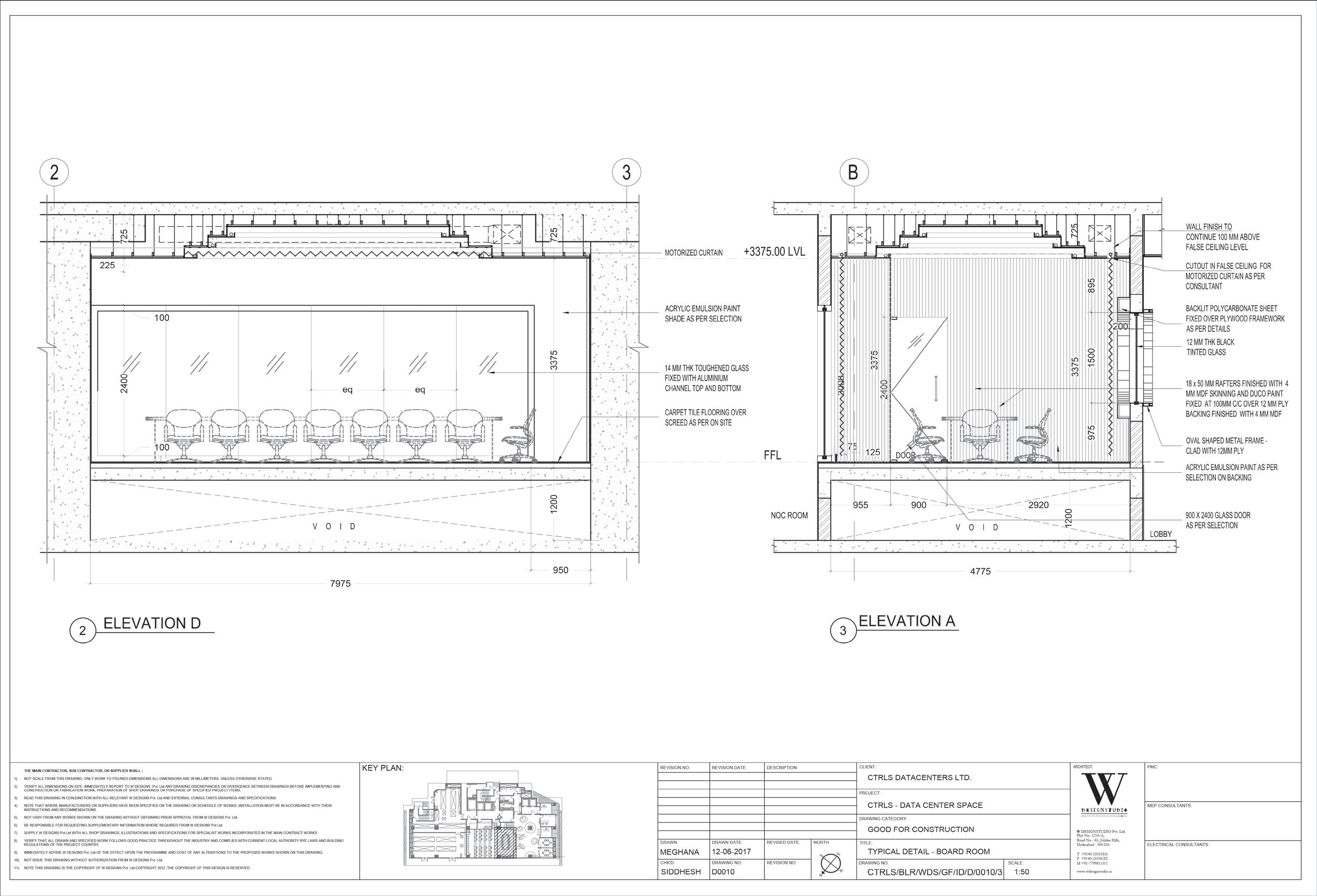
Control S Interiors

Team work

Professional work, W Design Studio

Interior design for the data centre of Control S, in Bangalore. Since the proposal is a data server centre for the IT hub of Bangalore, a contemporary and futuristic theme was chosen for the interiors, incorporating a lot of curved lines and forms in a clean neutral and minimal colour pallette.

Ground floor plan

First floor Reflected ceiling plan

First floor plan

View of office cabins near reception

View of reception area with boardroom in the back

DBS Bank Interiors

Team work

Professional work, W Design Studio

Interior design for the IT office of DBS Bank, in Hyderabad.

The design for the office was meant to have an open office and Agile feel.

Design Approach

The design for the Hyderabad office was Phase 2 of the office fit out project. Following up from phase 1, this phase focused on highlighting Shanghai and Hong Kong as micro environments within the office environment.

The design intent from the clients was a spirited and transparent office atmosphere.

The design approach focused on three mainstays

INDUSTRIAL + BOLD + EDGY

EVOLUTION OF JAALIS AS A DESIGN ELEMENT

Fusing jaalis derived from Hyderabad architecture with the DBS logo to create a unique signature for the interiors

View of Breakout spaces near the reception

View of break room
View of meeting rooms

rooms near the reception

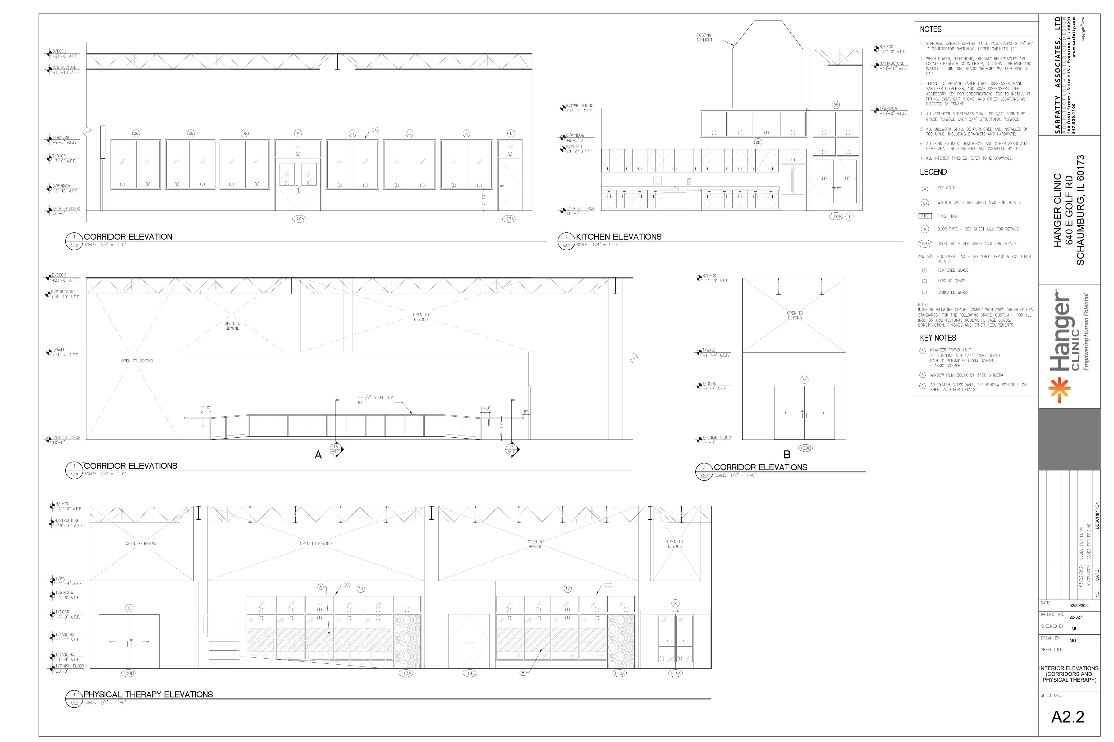
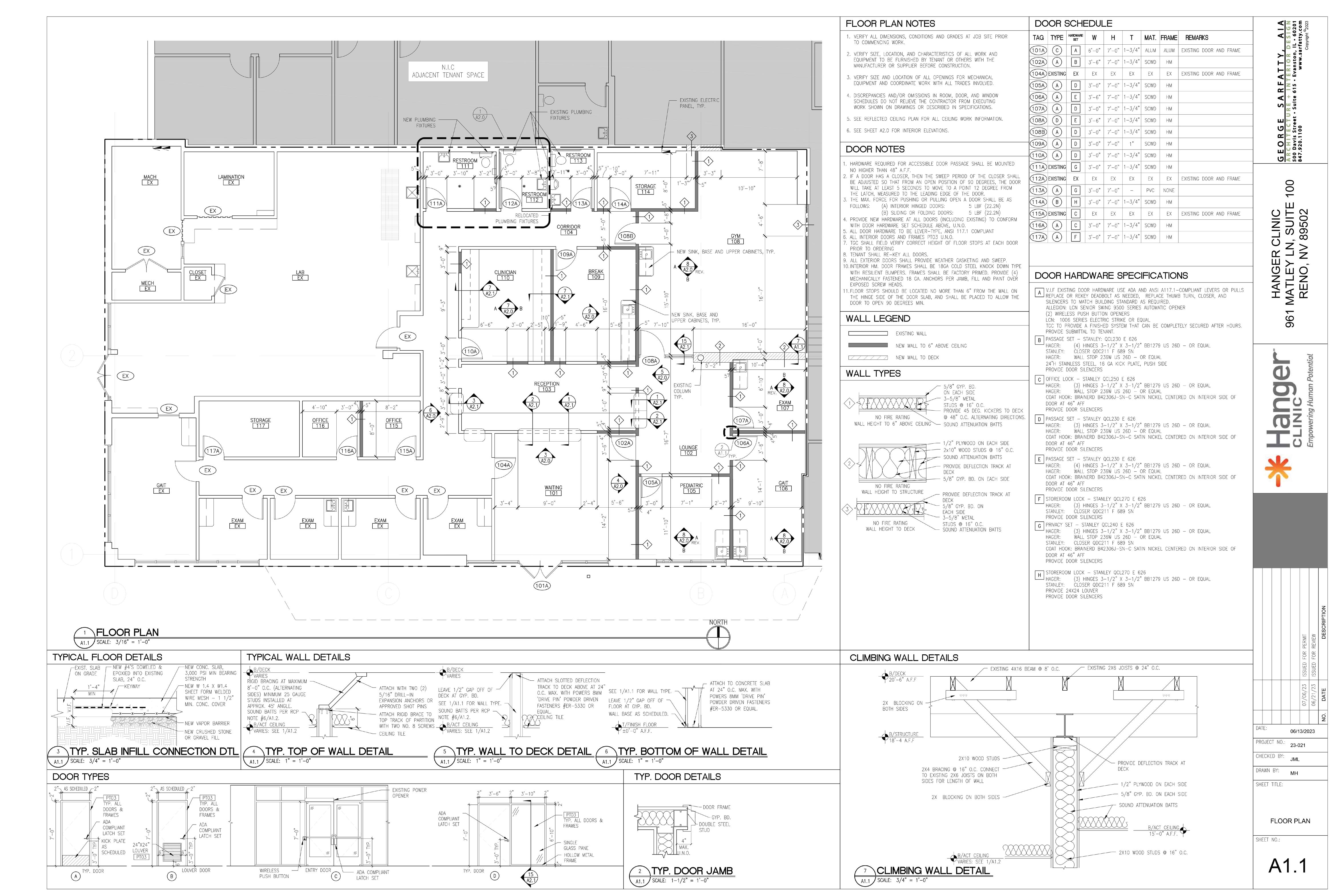
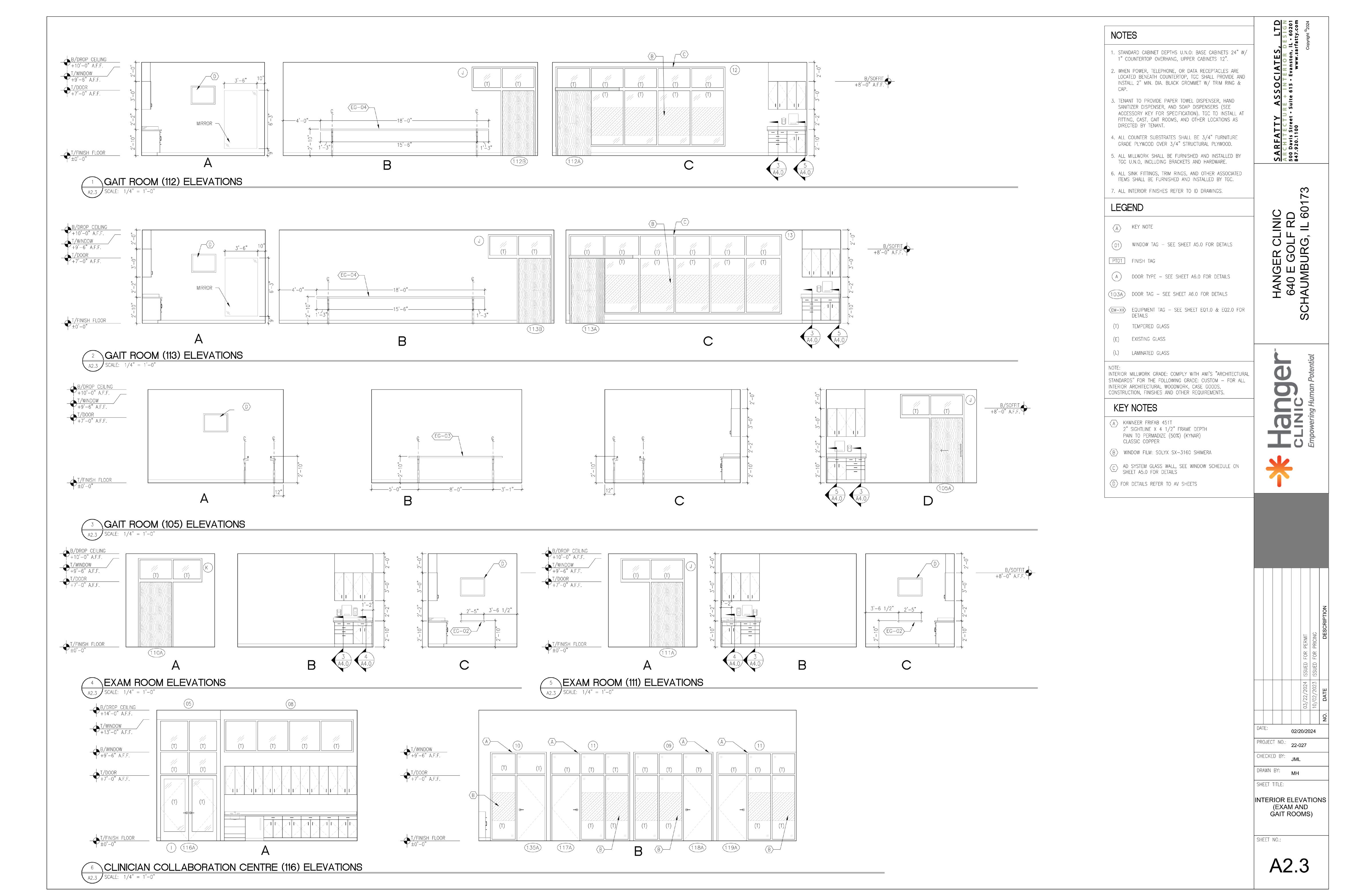
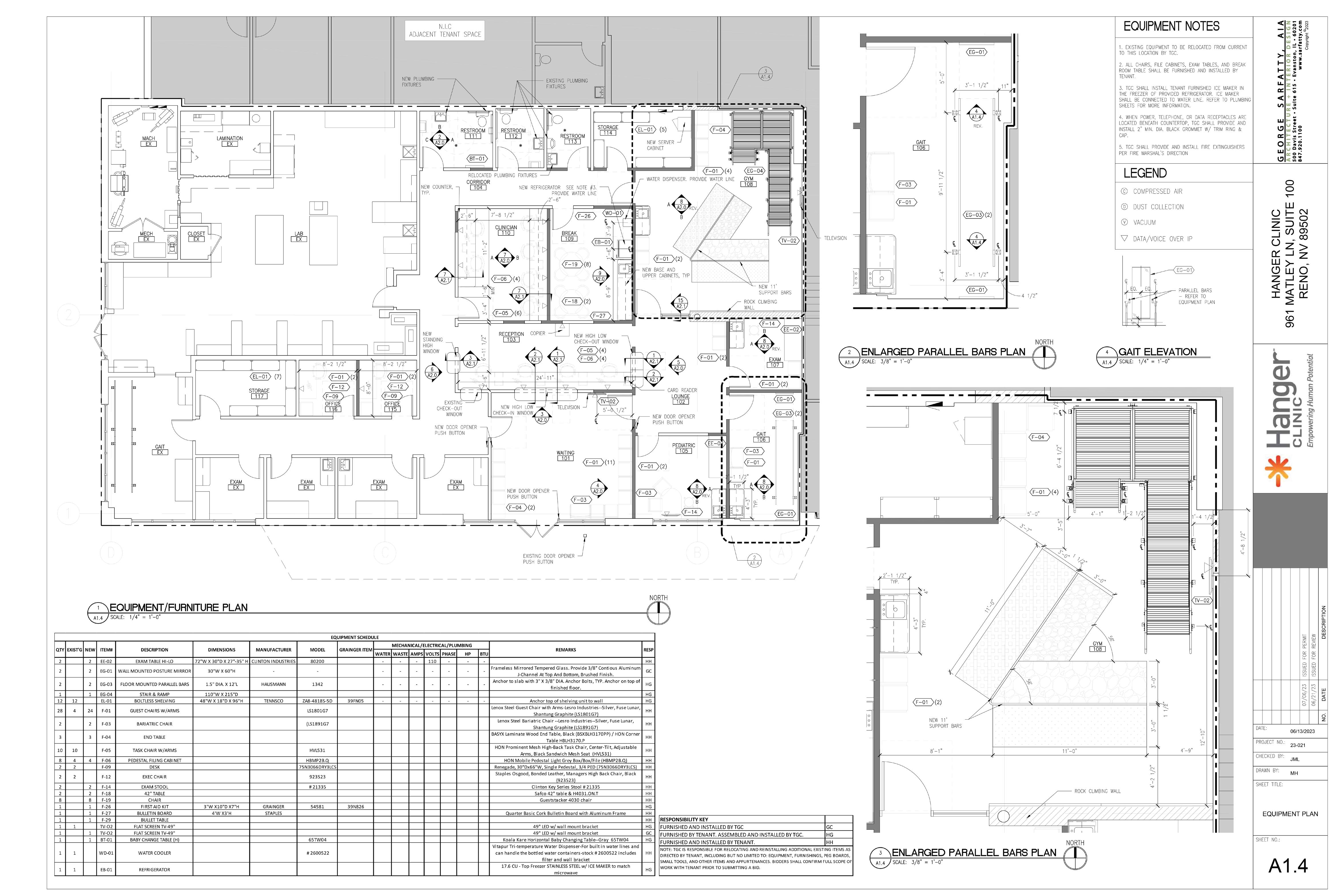
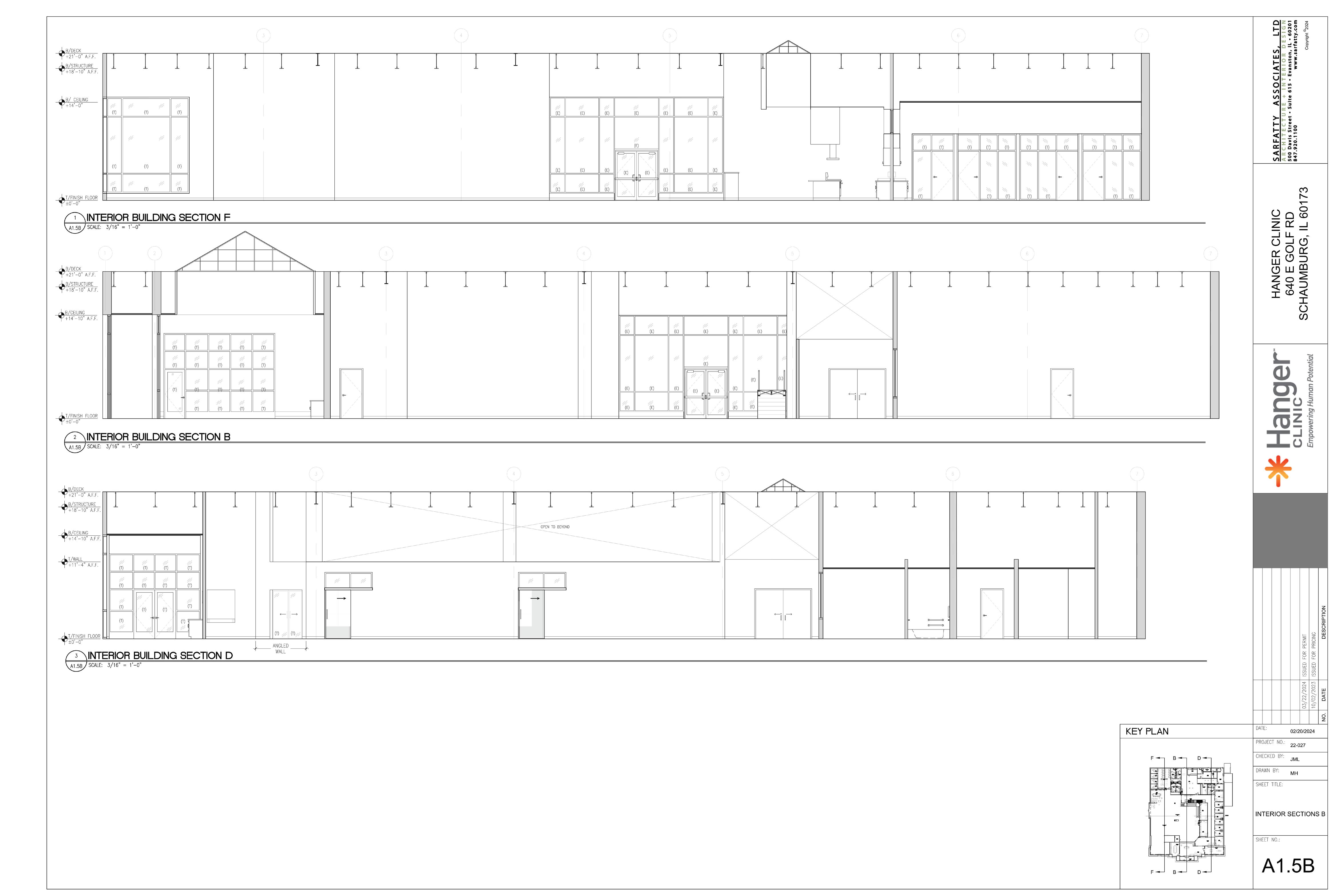
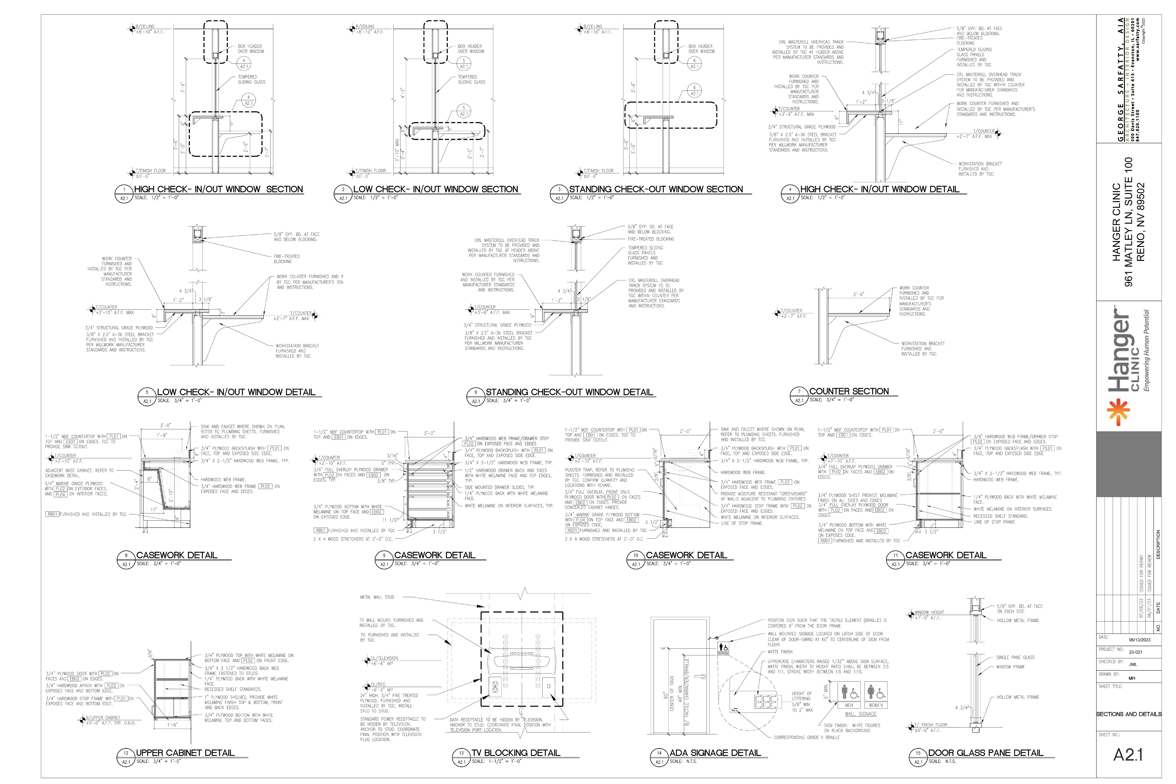
Hanger Clinics

Interior fit-outs

Professional work, Sarfatty Associates

Interior design and permit follow through for the prosthetic and orthotics clinics for client Hanger in various jurisdictions throughout the US. Shown here are Th Reno, NV project drects which were drawn independently and the Chicago Core cinic in Schaumburg, IL which was teamwork involving everyone in the office.

Turn static files into dynamic content formats.

Create a flipbook
Issuu converts static files into: digital portfolios, online yearbooks, online catalogs, digital photo albums and more. Sign up and create your flipbook.
2025 Design Portfolio by Meghana Hegde - Issuu