Megha Ramkumar| UG Architecture Portfolio| Manipal University

Page 1

Curriculum vitae

CONTENTS

RESIDENCE

MANIPAL

01
1
2

RESIDENCE

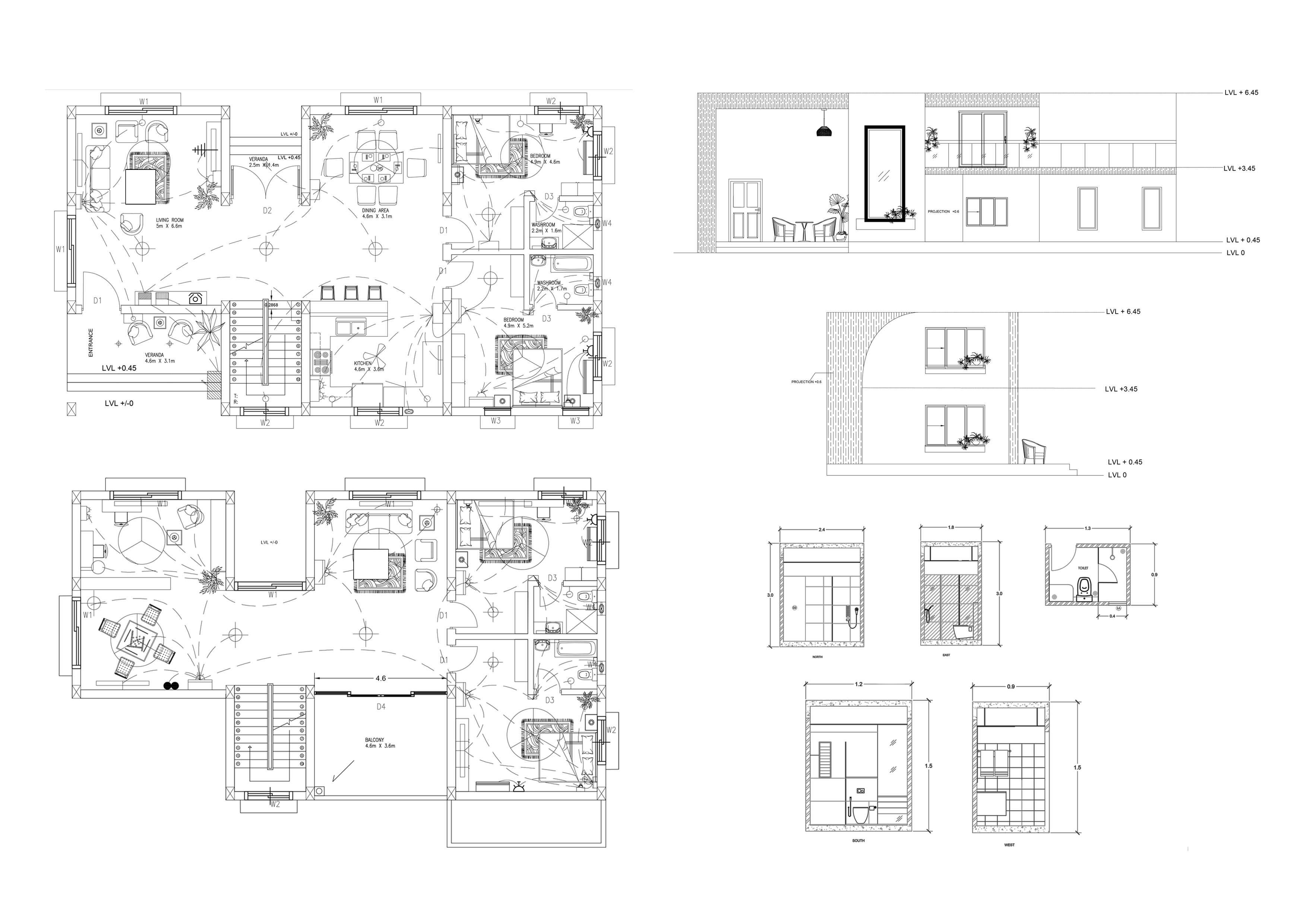
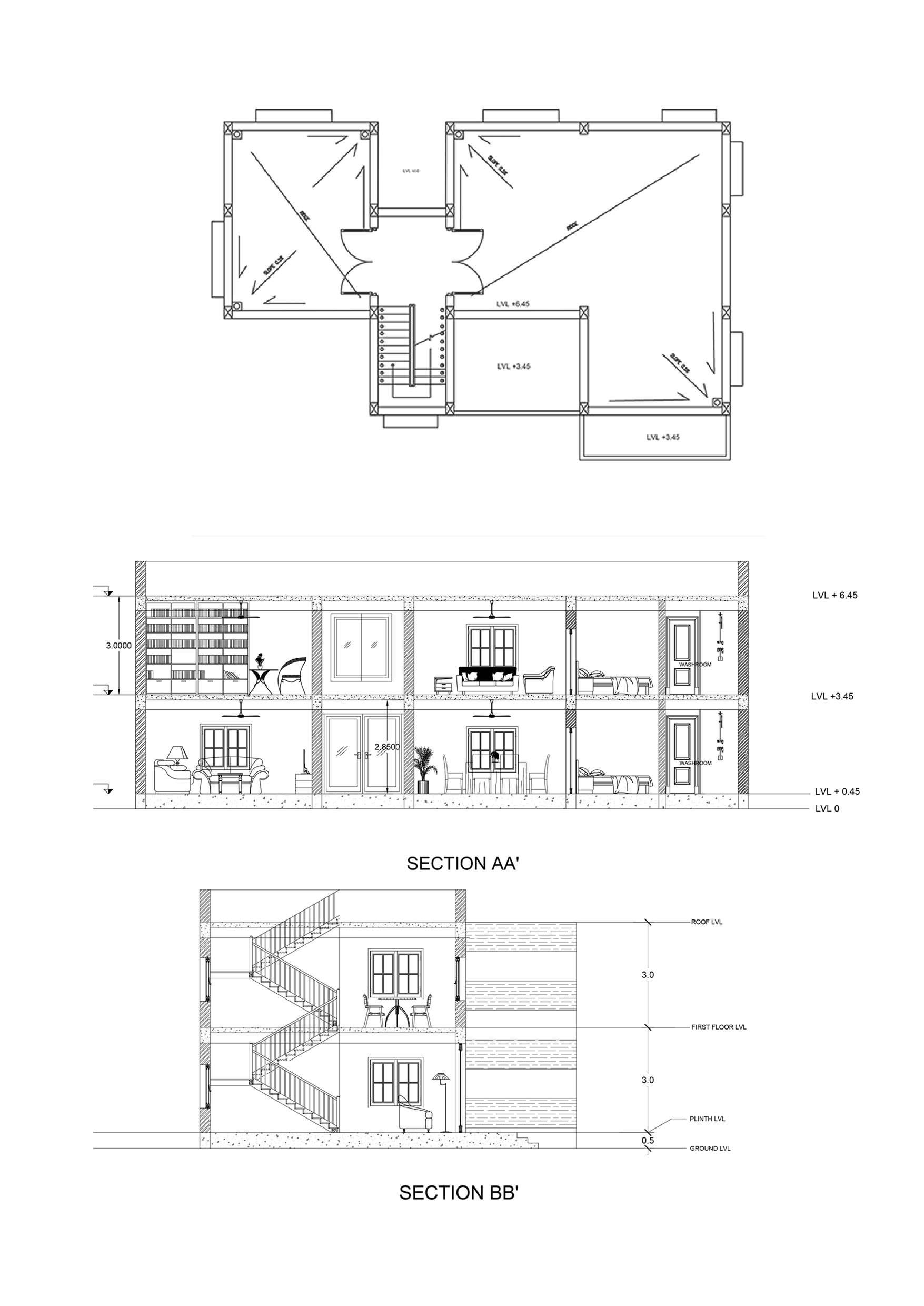
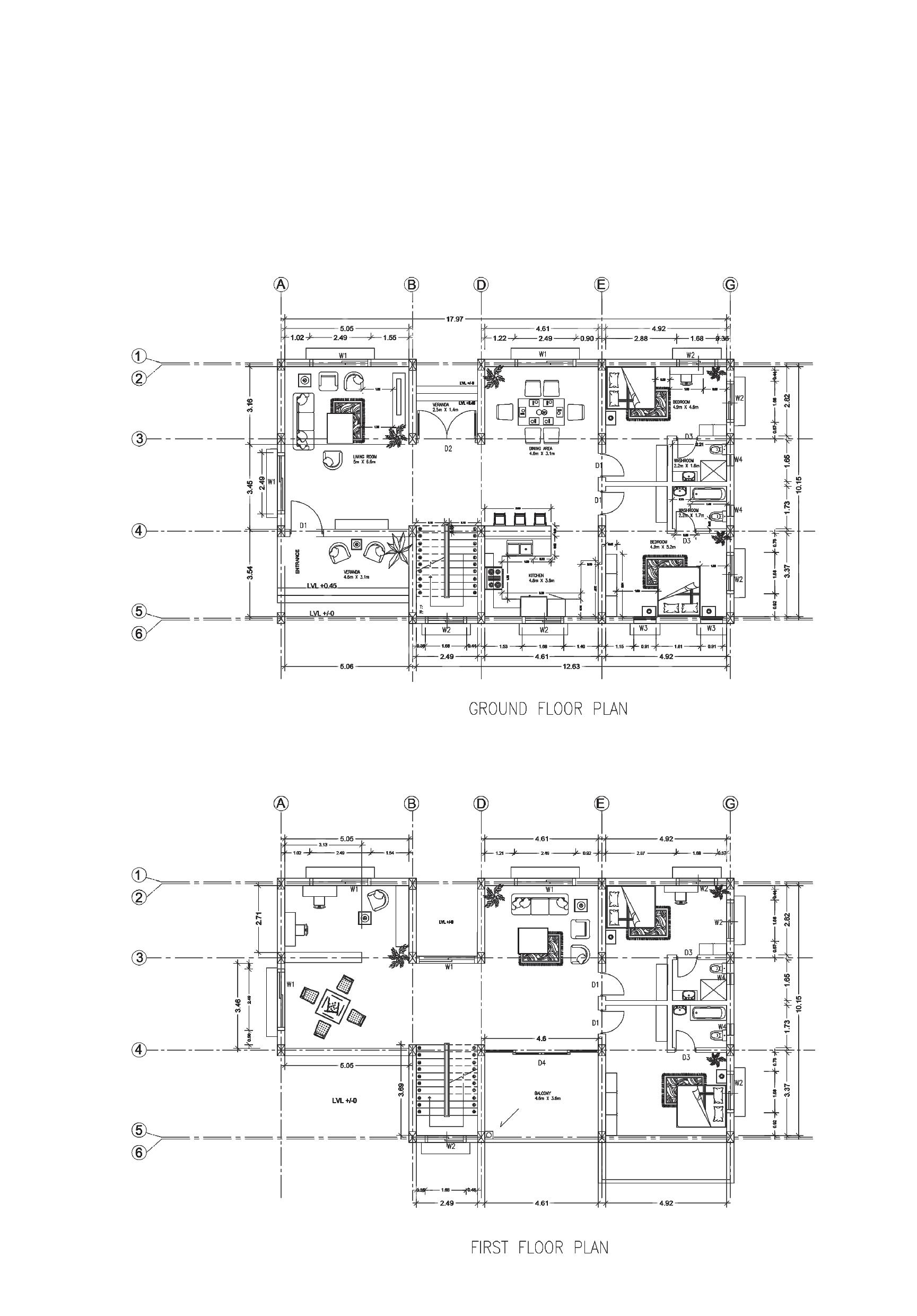
The brief was to design a residence in manipal to accommodate a family of 5; the clent and his wife, his 2 children and mother.

The residence aims to give all the rooms ample privacy and seperate the common areas from the private. The design tries to convey a seamless transition between the indoor and outdoor spaces. The same is transalated by the use of courtyards, glass doors & ample ventilation.

01 36 M 18
SITE
M
3
BEDROOM UTILIITY ROOM BEDROOM BEDROOM BEDROOM STUDY ROOM FAMILY ROOM TERRACE BALCONY LIVING ROOM DINING ROOM GARAGE KITCHEN POOJA ROOM 4
SECTION AA’ GROUND-0 LVL FIRST FLOOR - 3450MM ROOF LEVEL 6450 MM PLINTH LEVEL - 450MM FRONT ELEVATION 5
ENTRYWAY
VERANDAH 6
BEDROOM
7 02

MIG APARTMENTS MANIPAL

8

02MIG HIGH RISE APARTMENTS

The brief was to design a high rise residential area for the middle income group(MIG) located in and around Manipal.

The main challenge of this 30000sqm site was the steep contours which made the movement along the site difficult.

The site houses 3 residential towers. Each tower has a 12unit floor plan and a height of 39m above ground level.

Site Area: 30000sqm Ground Coverage: 7000 Total BuiltUp Area : 63,264sqm FAR: 2.10

CONCEPT

The fan moves by cutting the air between the blades. Which implies tht there are strong winds in between. Hence, the shape of the building allows ample amount of ventilation to enter the building

FORM DEVELOPMENT

VERTICAL BLOCK ATLEAST 15M HIGH (F OR HIGH RISE)

CREATING BUFFER SPACES IN BETWEEN THE BLOCK TO IMPROVE VENTILATION

MULTIPLYING SAID BLOCK TO 3 AND JOINING THEM WITH A COMMON CORE WITH RAIL-

9

TYPE A 90 SQM 108

1. ENTRY 2. SECURITY BOOTH 3. VISITOR’S PARKING 4. SERVICE AREAS 5. AMPHITHEATRE 6. LANDSCAPE AREA AREA PROGRAM 7. BASEMENT ENTRY 8. PEDESTRIAN PATH 9. BASEMENT EXIT 10. SWIMMING POOL 11. CLUB HOUSE 12. KID’S PLAY AREA 13. EXIT
PLAN 1 2 3 4 5 6 7 8 9 10 11 12 13 10 SL NO. SPACES AREAS NO. OF UNITS
SITE
1 1 BHK 80 SQM 18 2 2BHK 207
TYPE B 100 SQM 99 3 3 BHK 198 TYPE A 117 SQM 99 TYPE B 125 SQM 99 TOTAL: 423 UNITS

33,000mm

24,000mm 21,000mm

18,000mm

15,000mm 12,000mm

9000mm

6000mm

39,000mm 36,000mm 0mm

30,000mm 27,000mm 11

3000mm

SECTION
AA’
12
13
AMPHITHEATRE 14
03 15

PUBLIC LIBRARY PUNE

16

PUBLIC LIBRARY

The brief was to design a public library located on a main road in Yearawada, Pune

The aim was to make a safe spaces for the users to get away from the chaos outside and be able to enjoy a peaceful learning environment. The spaces inside were formed such that they connect the traditional environment and features of the digital era. The design being for a public library, it was necessary to include an auditorium, multipurpose hall and other communal spaces to make an interactive environment for the people in the city. The spaces are also designed to separate the communal spaces from the quiet, reading rooms.

SITE AREA: 15510 SQM

BUILT UP AREA: 3650 SQM

0
1 2 3 4 5 7 8
11
9
17

1. entry

2. security booth

3. pedestrian pathway

4. drop off point.

5. road to parking 6. parking

7. service entry 8. service areas 9. drop of for auditorium 10. exit

6 10
18
SITE PLAN
1. STUDENTS’ LIBRARY 2. KIDS LIBRARY 3. FIRE EXIT 4. WASHROOM 5. CCTV ROOM 6. AHU ROOM 7. LOBBY OF AUDITORIUM 8. AUDITORIUM 9. PUBLIC LIBRARY 10. COPY ROOM 11. BINDING ROOM 12. AHU ROOM 13. WASHROOM 14. FIRE EXIT 15. GROUP STUDY HALL FIRST FLOOR DAY 19 1 2 3 4 5 6 7 8 9 10 11 12 13 14 15
1. FOOD COURT 2. MULTI PURPOSE HALL 3. AHU ROOM 4. CCTV ROOM 5. FIRE EXIT 6. WASHROOM 7. PULIC LIBRARY 8. AUDIO-VISUAL ROOM 9. CONFERENCE HALL 10. FIRE EXIT 11. WASHROOM 12 AHU ROOM SECOND FLOOR NIGHT 20 1 2 3 4 5 6 7 8 9 10 11 12
SECTION 21
FOOD COURT

AXONOMETRIC VIEW

SECTION AA’ GROUND LVL 3450MM 6450MM 9450MM 450MM 22
ENTRANCE TO THE BUILDING
04
23
WORKING DRAWINGS & DETAILING
24
25
26

MISCELLANEOUS

05
27
28

CONTACT: +91 9946448389 | megharamkumar23@gmail.com

Turn static files into dynamic content formats.

Create a flipbook
Issuu converts static files into: digital portfolios, online yearbooks, online catalogs, digital photo albums and more. Sign up and create your flipbook.
Megha Ramkumar| UG Architecture Portfolio| Manipal University by Megha Ramkumar - Issuu