Portfolio

Page 1


ARCHITECTURE PORTFOLIO

Megha Pramod

Housing Design | Advanced Studio 1 Academic | Fall 2024

ULI Hines Competition 2025 Competition | Spring 2025 Academic

Mixed-Use Design / Undergrauate Thesis Academic | Undergraduate Semester 10

Media and Modelling Studio Academic | Fall 2024

High

Housing Community Design Professional | WWF Architects

CHAPTER 01

URBAN LIVING MATRIX

Project: Co-Housing

Subject: Advanced Studio 1 | Fall 2024

Instructor: Prof. Amy Stone

Location: South Downtown, Atlanta, Georgia, USA

Site Area: 17,000 sq. ft

This co-housing community is designed to create a holistic, close-knit environment where residents can form meaningful connections while living in harmony with their surroundings.The project, located on a corner lot with three street-facing sides, is designed to foster a strong sense of community while engaging with the surrounding urban environment. The housing units, with private homes clustered around shared communal spaces. The design maximizes street interaction while maintaining privacy, using a blend of inward-facing courtyards and strategically placed communal areas. By balancing the openness of public-facing facades with semi-private and private zones, the project creates a welcoming yet secure environment for residents.

The users of this co-housing building reflect the concept of a modern joint family, where multiple generations live together in a supportive, interconnected community. Similar to traditional joint family systems, this cohousing model encourages shared responsibilities, mutual care, and social interaction across age groups, while still providing personal privacy within individual units and also embracing contemporary values of sustainability and individual autonomy.

PEDESTRIAN CONNECTIVITY

ZONING AND URBAN ACCESS

PROGRAM DEVELOPMENT

Communal centre

The communal area is located at the heart of the community to ensure maximum engagement

Voids, terraces and Communal Pockets

Blocks are removed from the mass to create open spaces. Shared communal spaces are created on each floor by creating voids in the centre of the mass

Pedestrian path

Introducing the public path has shaped the building to create a welcoming entrance for the public and great vistas from the road

Open corridor bridge

Bridge like connections are created between the blocks to create more transperancy with the street and to give a glimpse of the community within

Program Structure

Two blocks of units are placed with an amenity per floor and leasable spaces are provided at the ground level

Service core

Two service cores are placed in the building on either side for vertical circulation

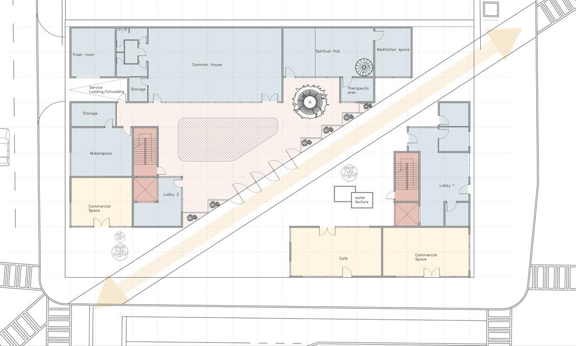
GROUND FLOOR

The ground floor seamlessly integrates public and community spaces. A diagonal pedestrian path cuts through the plan, creating an inviting and accessible entry. Street-facing commercial facilities enhance visibility, while a café fosters transparency and social engagement. A lowheight passage at the entrance provides visual connectivity to the lively courtyard, with pivoted gates symbolizing openness and inviting public participation.This seamless transition blurs the boundary between private and public realms.

Typical floors accommodate two expansive units, each comprising 3-4 private units that share a common living, dining, and kitchen area. This layout promotes intergenerational interaction and intentional housing, allowing residents to select neighbors based on their needs and preferences. Each floor features a dedicated amenity, encouraging vertical circulation and fostering a connected community. Additionally, units open into a shared relaxation lounge, providing a welcoming space for residents to gather, unwind, and strengthen social bonds, reinforcing a sense of belonging and collective living within the building.

The detailed axonometric diagram effectively illustrates the interaction between various spaces, highlighting the careful balance between communal engagement and individual privacy. The common area serves as a central hub, promoting interaction between the two larger units on each floor, fostering a sense of community.

Open garden terraces, strategically placed along the corridor and facing the courtyard, act as vibrant spaces for residents to connect and engage with one another. These open areas encourage interaction, while maintaining a clear visual connection across different levels. The compact units within the larger floor plans ensure privacy for families or individuals, providing personal retreats within the broader communal context.

SHARED KITCHEN

SHARED TERRACES

The design incorporates three unit types: Studio, 1-bedroom, and 2-bedroom apartments. Each unit is compactly designed to provide comfortable living spaces while encouraging residents to step out and engage with others in shared areas or on private terraces connected to the units. This approach fosters a balance between personal privacy and community interaction, promoting a vibrant and socially connected living environment.

2 Bedroom Unit
1 Bedroom Unit
Studio Unit

Scale: 1/8”= 1’- 0 ”

SECTION AA’

AXONOMETRIC DIAGRAM

Communal interaction betwwen terraces

Shared living / kitchen

Common House
FRONT ELEVATION

SUSTAINABLE DESIGN STRATEGIES

The project integrates several sustainable strategies to minimize environmental impact and enhance user comfort. Thoughtful building orientation and consideration of the sun path optimize energy efficiency, while green roofs and vegetation mitigate heat and promote biodiversity and courtyard for better microclimate.

Courtyard: To improve natural microclimate and ventilation
Daylighting and natural ventilation in the units
Solar Panels to harness solar energy
Natural ventilation in the open spaces ans hrough the building
Bioswales and stormwater management
Building Orientation

CHAPTER 02

THE LOCAL SHIFT

Project: ULI Hines Student Competition 2025

Semester: Spring 2025

Professors: Ellen Dunham Jones, Howard Wertheimer, Rick Porter, Joel Jassu

Faculty Advisors: Perry Yang

Professional Advisors: Micheal Sena, Sanil Paul Group Members: Megha Pramod, Jeel Patel, Ojaswi Chaitiawadi, Jenny Ma, Byron

Location: Cleveland, Ohio

The Local Shift aims to revitalize Cleveland’s east side through Redefine, Reconnect, and Rejuvenate, focusing on smallscale, community-driven urban renewal. By fostering economic self-sufficiency, enhancing social and physical connectivity, and promoting environmental sustainability, the project seeks to stimulate organic growth while preserving local identity. Investments in local businesses, skill training, transit networks, inclusive housing, and green spaces ensure long-term sustainability and resilience. With a strategic mix of financial tools and phased development, The Local Shift envisions a thriving, adaptable neighborhood that balances immediate community needs with future growth, setting a precedent for equitable urban regeneration.

GRASSROOT EMPOWERMENT

LOCAL SCALE DEVELOPMENT

POST INDUSTRIAL IDENTITY

Once shaped by the Erie Canal, Cleveland’s downtown flourished as a cultural and economic hub, while the east side declined into disrepair. Today, we envision the east side as a third anchor, emphasizing small-scale developments and entrepreneurship. By redefining its identity, we create an impactful future for this overlooked community.

Economy & growth

Economic inequality among neighborhoods caused by focused development in certain regions.

Connectivity, Culture & Community

Absense of connectivity and community spaces in low-income areas highlights the need for cultural and social investment.

Limited access to good civic spaces affects rejuvenation and daily needs, impacting quality of life.

Supporting and providing a platform for small business to grow to unlock diverse economic potentials at local level.

Connecting with St. Clair Ave to bring in opportunities for community engagement and cultural development.

Linking existing and proposed green spaces through the site, while providing easy access to daily amenities.

Dick Goddard Way
Horizon Academy

Urban Framework : Street type and Character

The design promotes walkability with pedestrianfriendly block dimentions weaved into the neighborhood fabric, slow car streets, transit stops for broader connectivity, and dedicated bike and pedestrian routes for seamless access.

StormWater Management: A system of water channeling into retention ponds.

Using contour levels to identify ridges and valleys on-site, and creating a green softscape spine to channel water runoff in accordance with street slopes. This strategy helps harness stormwater through bioswales, collecting it in the retention pond.

SECTION THROUGH THE MAIN E-W STREEET

Carriageway

THE COMMUNITY SPINE

I just pulled in the car for some food, but look at these beautiful products in that shop.

- Bryce, Traveller at I-90

Last week woodwork, this week coding! I am so excited by the diverse courses that I can take here. There is so much learning.

-Sam, Student at the youth training program

Workspaces and brewery at the Lake, definatey a good investment.

- Dylan, Real estate developer in Downtown

This is such a great opportunity to expand my business network and increase my outreach. I’ll finally be able to buy that vacant plot near my house and expand business further.

- Kelly, Small business owner

With this new bus stop, I have not actually pulled my car out to go around in the neighborhood.

- Tracy, Local resident

Getting back in touch with my art is so great, especially with this whole opportunity to showcase it to people to sell.

- Gina, Artist

One hour class of Yoga outdoors and I realized how much I had been neglecting my physical and mental health till now.

- Riya, Student at CWRU

Wow, this offbeat stop offers ecotours as well! Also, look at this stunning view, what a beautiful city.

- Ty, Traveller at the Interstate 90

I am so glad that everything that I need for hosting this impromptu dinner for my friends, is literally at 5 minutes walking distance from home.

-Misha, Resident at St.Clair

Wait, I can actually bike all the way to downtown starting here? That too with the Lake view?

- Shanon, Sports enthusiast

CHAPTER 03

EXUBERENCE INTERGENERATIONAL COMPLEX

Project type: Individual

Semester: Undergraduate Semester 10

Category: Mixed-Use

Project Location: Dubai Science Park, Al Barsha, Dubai, UAE

Subject: Architectural Thesis

Built-up area: 18,256 sq.m

Faculty In Charge: Abraham Samuel

Exuberance Intergenerational complex is an outcome of the thesis design topic that focusses on Intergenerational Spaces for senior citzens and children in built envionments. It is a proposed mixed-use complex includes recreational amenities as well as housing for the UAE’s older population. The recreational facility focuses on intergenerational zones that bring together children and the elderly. The aim of the project is to foster active ageing of senior citizens in UAE. The idea of a vertical village is devised, with Public plaza and facilities in the lower stratum, recreational facilities for seniors and children in the mid stratum, and a Community Park with apartments for senior citizens in the upper stratum. These three major requirements juxtapose the various building uses in a hierarchy to foster diversity of cross-programming and support inter-generational bonding and promote active ageing in place.

Ikigai (‘a reason for being’) is a Okinawan origin Japanese concept referring to something that gives a person a sense of purpose, a reason for living. It can be acheived from an early stage in life. Understanding ones ikigai can be from exploration by children to adopting passion by senior citizens. Architecture plays a predominant role in creating environments for attaining a sense of purpose within each individual. These platforms can be created by incorporating Architectural phenomenology for all the desired spaces to foster growth and healing.

Sketches of Spaces

DESIGN DEVELOPMENT

FUNCTIONAL ZONING

The two major functions are placed on site. The senior citizens centre is placed towards the east of the side considering the north-east wind direction and larger mass of the component.

CURVATURE

The building form is curved to blend in with the context of the community. The retail spaces are extended outward for better connectivity.

VISUAL CONNECTIVITY

Two major streets are created for public engagement. Opening on ground level and first level are made for cross ventilation and visual connectivity.

DISINTEGERATION

The two blocks are stretched out to break away and create a retail space inspired by traditional souq in between. The intergenerational spaces are placed in the first level creting a more safe and secure environment to foster intergenerational interactions.

INTROVERTED ZONES

Courtyards are added for creating introverted open spaces for the function. First floor is pulled outward for natural shade from the harsh solar radiation.

PUBLIC ENGAGEMENT

Public plaza becomes a hub for bringing community together. Green pockets are provided with seating as socializing zones.

Gross Motor Area

Senior citizens centre is located to the east of the site. Functions are categorized within the building by analysisng the requirements of the senior citizens residing in UAE. The block is mainly divided into 4 zones: Vocational Centre, Recreational zone, Wellness zone and Residential zone.

1.Lobby

2.Café

3.Formal loung

4.Marketing and commu department

5.AVAC control room

6.BMS Room

7.Surveillence room

10.Electrical room 11.Mechanical room

12.Tele. Room 13.LV room

14.CEO room

15.Director’s Room

16.Accounts Room

Garden

18.Conference room

Dept 20.Staff Breakout Space 21.Makerspace Lab

room

room

room

room

prayer room

Prayer room 28.Central Amphitheatre 29.Main Kitchen

hall

room

SECOND FLOOR - RESIDENTIAL ZONE

RETAIL ZONE

The retail zone is planned with the traditional souq layout. At the start the public is greeted by a public plaza and restaurants and food kiosks. Futher ahead the retail stores catering to the publics needs are placed along the two major streets with pocket green spaces in between.

ROOFING DETAIL

The roof comprises of Solar tiles. These roof shingles are composed of three separate layers. The innermost layer is the high-efficiency solar cell. The middle layer is film that covers the cell and makes it invisible to people. The outermost layer is tempered glass.

MULTI - SENSORY GARDEN

Sensory gardens for the elderly provide intimate, colorful environments designed to allow visitors to soak up the sounds, smells, sights, and even tastes contained within the garden.

SENSORY GARDENING

CHAPTER 04 CHROMATIC MORPHOLOGY

Project type: Individual

Semester: 10

Category: Mixed-Use

Project Location: Dubai Science Park, Al Barsha

Subject: Architecture Thesis

Built-up area: 14,256 sq.m

Faculty In Charge: Abraham Samuel

Our primary concept revolves around transforming the rigid orthogonal geometry of the plan into a fluid, curvilinear form, inspired by the dynamic works of Ar. Zaha Hadid. Her exploration of angles and curves in architecture served as the foundation for our approach.

The design process started by superimposing her expressive paintings onto the plan, which led to the exploration of multiple variations. This approach allowed the vivid colors and forms in her artwork to shape the spatial composition. These iterations evolved into dynamic, elevated walls that captured the concealed layers and motion within her paintings, infusing the building’s massing with a sculptural rhythm.

Confetti ‘The Peak’

Source : https://www.archdaily.com/798362/the-creativeprocess-of-zaha-hadid-as-revealed-through-her-paintings

Source : https://www.archdaily.com/798362/the-creativeprocess-of-zaha-hadid-as-revealed-through-her-paintings

The lower three floors draw inspiration from Confetti ‘The Peak’, where the brighter contrasts and dense composition of the painting inform a grounded, solid architectural expression. These floors are characterized by heavier structural elements and a sense of enclosure, mirroring the painting›s intensity and visual weight. As the building ascends, the design transitions to the lighter and more open qualities of Victoria City Aerial.

FLOOR PLANS WITH SUPERIMPOSED PAINTINGS

Victoria City Aerial

WALL SECTION explaining how brightness of an image determines the wall height

CHAPTER 05

THE VOXEL

Project type: Individual Semester: 7

Category: Mixed-Use Tower

Project Location: Dubai Silicon Oasis

Subject: Architecture Design

Built-up area: 35,840 sq.m

Faculty In Charge: Dr. Niva Mahanta

The Design proporsal revolves around and uniquely adapts its methods to cope with the climatic conditions of Dubai. By adding voids and terraces to a typical high rise, the project attempted to break the tower’s impenetrable appearance. These voids would have green spaces and provide a respite from the bustle of the neighborhood. As elevated parks, the terraces replace the ack of parks in the community for the working class. Its raised podium mass captures a significant vista of the community. Smaller terraces on each floor for the offices for easy access and a quick break from their work. The middle portion of the towers are connected via a common gathering niche furthering enhancing the tower connectivity whilst the crown of the tower hosts large double height offices with green voids hence the name “Voxel”.

The site is located in Silicon Oasis. it is located between Dubai International Airport and Dubai seaports. The proposed site area: 24,210 sq.m. Future development area: 17,500 sq.m

Dubai Silicon Oasis’ (DSO) spans 7.2 square kilometres and is amongst the most developed frameworks in the region.

Automated cellular technology is a technique used in design to generate various pixels or cells and develop various arrangements to suitably fit the pattern generated.

The design is inspired by the concept of cellular automation to generate a form that suitably accomodates the functionality of the building. The cells on the periphery terminate at certain levels to become a terrace garden the users of a floor.

SITE PLAN

Conceptual mass development

Programs and organization

Curve and connect

Public Engagement

Split

The Dynamics

The Open Spaces + Sky Garden

The podium level of the voxel houses retail spaces, a lavish food court, 2 large restaurants with outdoor dining, a gaming hub and a clubhouse. The commercial tower with podium is provided with over 200 surface parking with 3 drop offs and a loading-unloading deck; 600 basement parkings with 2 lift core access and a Level 1 parking with over 50 parking spaces that provides direct access to the first level of the building. Provision of a skylight at the circulation foyer that connects retail, foodcourt and the gaming zone at level 2 adds openness and grandeur while terrace access is provided at various areas to enhance the connection with the outdoors and nature.

The restaurants on the ground level have outdoor dining that has natural shade from the building as they are placed by creating a niche. The clubhouse on the level 1 and 2 comprising of a luxurious spa, a gymnatium, swimming pool, library and practice studios is a perfect getaway for the office users as well as visitors. Moreover, the podium level has a rejuvination hub with tennis and badminton courts and a rooftop swimming pool to provide a complete fitness experience. It can be accessed by both commercial tower staff as well as visitors.

SECTION BB’

SCALE 1:500

Pocket terraces and gardens at each level offer quick breakout spaces, fostering relaxation and visual connectivity to enhance a sense of belonging in modern workspaces.

Visual connectivity of terraces

The central atrium opens to the sky, with escalators enhancing vertical connectivity and a dynamic sense of ascent.

The podium level houses clubhouse amenities, fostering community engagement and seamless indoor-outdoor connectivity.

Central Atrium

SUSTAINABLE SITE

AND TRANSPORTATION DESIGN

Selecting a previously developed site and connecting the project land with walkways and ramps enhances accessability to site as well as public transportation.

OPTIMIZED DAYLIGHTING

The office units are placed in order for all units to receive optimum glare free daylight during the day thereby reducing the lighiting costs

GREY WATER SYSTEM

Collecting the grey water and filtered through a progressive filtration technology, and the water is pumped via dripper irrigation to area to landscape areas.

RENEWABLE ENERGY PRODUCTION

Rooftop solar panels 1mx1.5m which can yield a power of 320watts are provided to generate electricity for the building needs. The number depending on the energy requirements.

OCCUPANCY SENSORS

Occupancy and daylighting sensors are used in spaces to reduce lighting when spaces are not occupied or daylight is sufficient.

ENHANCED BUILDING ENVELOPE

Efficient facade system acts as a sun shading device that reduces the cooling load inside the building

NATIVE LANDSCAPING

Coelachyrum piercii which is a native grass is used for landscaping, in the roof-top gardens as well as the terrace gardens of the office. Shrubs such as Aerva Javanica , Atriplex Leucoclada are also used along with ghaf trees fro vegetation on site.

PAVEMENT THAT HARNESSES ENERGY

Pave Gen Flexible paving slabs generate energy from footsteps and car motion in ramps converting kinetic energy to electricity and permeable pavers are used in the hardscape to allow water seapage into the ground.

SECTIONAL DETAILED VIEW 1

1. CERAMIC PANELS COATED WITH TITANIUM DIOXIDE

2. ALUMINIUM FRAME

3. DOUBLE GLAZED UNIT GLASS PANEL WITH VACUUM CAVITY.

4. CURTAIN WALL FRAME

1. CERAMIC FINS COATED WITH TITANIUM DIOXIDE

2. ALUMINIUM FRAME

3. LOW -E DOUBLE GLAZING

4. CURTAIN WALL FRAME

5. GYPSUM BOARD FALSE CEILING

6. POST TENTIONED CONCRETE SLAB

7. AIR CONDITIONING DUCTS

8. MARBLE FLOORING 25MM

9. PERIMETER CEILING BATTENS

10. CLAMP BRACKET

EAST-WEST FACADE

East and the West facades of the towers are provide with vertical louvers in the same system to prevent the harsh sunlight. Vertical louvers panels composed of TiO2 coated ceramic fins are irregularly placed on equally distributed on the alumimiun grid system using clipper clamps for easy installation.

The grid is then attached to the curtain wall system using clamp bracket and isolator clip which is anchored to the concrete floor using continous steel channel.

The facade is composed of ceramic panels coated with titanium dioxide paint, known for its inherent ability to reduce pollution by eliminating harmful Nitrogen Oxides from the air through ‘photo catalysis’a process where light accelerates a naturally occurring chemical reaction called photolysis. Photocatalysis results in the rapid conversion of Nitrogen Oxides into harmless soluble Nitrate salts removed from a building’s surface by rainfall.

Considering the busy neighborhood having TiO2 facade on such a significant structure can substantially reduce air pollution. The north and south facade is equipped with parametric glazing with the facade panels.

Openings are articulated based on the sun paths at each elevation. Glazing width and frequency is higher in the northern facade to maximize glare free lighting.

SECTIONAL

CHAPTER 06

THE SERAI RESIDENCE

Project Type: Professional

Project Location: PROPOSED PRIVATE VILLA @ Plot JPMVIL002_003, Jumeirah Park, Dubai, UAE

Built -up Area: 974.52 sq.m

Year: 2021

Comapany Name: Wanders Werner Falasi Consulting Architects, Dubai Team: Megha Pramod, Mohammad Ismail

Project Status: Completed 2022

The Villa project was designed for a client during the internship. I was invovled in all the tasks from the concept design to the schematic design phase. My tasks included site analysis, conceptual development, 3D modelling, development of detailed drawings such as floor plans, elevations, sectional drawings and details. The concept evolved around a combination of traditional and modern architecture. Architecture design where landscape seamlessly connects with indoor creating harmonious atmosphere for healthy modern lifestyle is portrayed with the structure. Chamfering the facade frames the louvered wall treatment and the floor to ceiling curtain wall. Innovative solutions behind this design in contemporary style with biophilic elements impact the structure deeply.

The project is located in Jumeirah Park, Dubai. Jumeirah Park which is a secure and incorporated residential community of creatively designed villa clusters bordered by manicured greenery. The ecological environment and family-oriented amenities within this development make it the most attractive residential address in Dubai. Hence the villa design is developed by using a unique way to combine the traditional and contemperory architecture of villas located in the region.

M.Arch, Advanced Standing, Year 1

Georgia Tech, Atlanta, Georgia, USA

mpramod7@gatech.edu

+1 857 225 6112

MEGHA PRAMOD

Turn static files into dynamic content formats.

Create a flipbook
Issuu converts static files into: digital portfolios, online yearbooks, online catalogs, digital photo albums and more. Sign up and create your flipbook.