MEGAN KORTENHOF
ARCHITECTURE: GRADUATE + UNDERGRADUATE SELECTED WORKS
0.1 0.2 0.3 0.4 0.5
![]()
ARCHITECTURE: GRADUATE + UNDERGRADUATE SELECTED WORKS
0.1 0.2 0.3 0.4 0.5

SEMESTER: FALL 2023
INSTRUCTOR: CHRISTIAN UNVERZAGT
PROJECT TEAM: MEGAN KORTENHOF

Film has an incredible ability to connect with people, therefore holding immense potential to reveal and center societal matters. This proposal capitalizes on this sentiment by revitalizing a dying institution, the movie theater. The Talkie aims to integrate the power of film and conversation as a community resource to grapple with contemporary problems.
Situated within a society that is becoming increasingly individualistic, creating space for communities to converse and connect is extremely valuable. The proposal, located in the Kerrytown neighborhood of Ann Arbor, Michigan, addresses this by centering around a procession that integrates gathering areas within interstitial space. This is done through a central ramp and mesh screens that not only work to dismantle the common parking lot to theater design, but also navigates the site's topography and reconnects the upper part of the neighborhood to the lower at a crucial intersection. Beyond the creation of comfortable spatial qualities, the mesh becomes screens in which to project media onto, allowing the art to seep into public space. By prioritizing accessible outdoor space, the entire site becomes a greenspace for the neighborhood and works to remove the traditional restrictions to the institution.
below:
northeast-facing section of the procession from provisions to theater







top left: fourth and seventh floors, highlighting the collective terraces
bottom left: standard unit typologies
right:
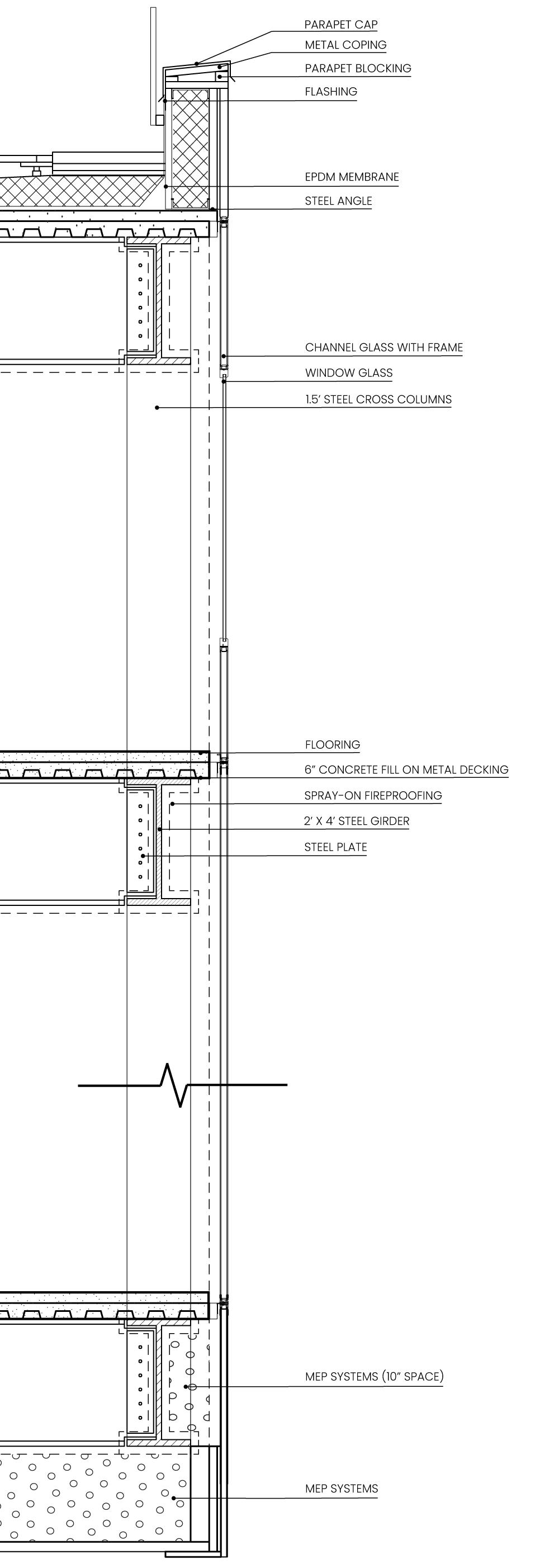
wall section through upper floor steel superstructure and channel glass facade
With parking situated above the public-facing ground floor, the upper levels are devoted to residential spaces, incorporating semi-private amenities for residents. Three expansive terraces provide space for connection: a recreational area for fitness activities, a communal space with flexible seating arrangements and leisure amenities, and a serene pollinator garden on the seventh floor, providing a retreat amongst urban life. The units are diverse in typology and arrangement, catering to the varied needs of a wide audience.
To accomplish this, the design utilizes a steel superstructure, hanging from three cores to maximize floor plan flexibility and minimize the need for restrictive columns and structural walls. A cohesive language of channel glass wraps the expressive structure and unifies all facades, maintaining simplistic forms and aesthetics across housing and parking areas. Channel glass brightens living spaces naturally, offering privacy and curated views through variously sized windows scattered across the structure. This choice of material reflects Detroit's industrial history and distinguishes the building from its surroundings, while also providing effective insulation and daylighting benefits.



SEMESTER: SPRING 2021
INSTRUCTOR:
DAVID NEWTON
PROJECT TEAM: MEGAN KORTENHOF + TYMAREE KRUSEMARK

Common Ground re-thinks the 21st century library. The design builds on the central role traditional libraries play in their communities by providing spaces for community members to exercise democratic processes without hidden regulations, a consumer agenda, or a destructive culture. This proposal creates a central community hub in South Lincoln, NE, that reunites an individualistic community through the architectural experience of the building in its exhibition of diverse activities and space for encounters between the users.
The design capitalizes on the concept of a social condenser; of significant importance is reigniting its political roots in a nonpartisan and productive way. This process functions best in an environment that strikes the appropriate balance between energetic and grounded, leading to the push and pull, one-story circular form. The circular design effectively emphasizes the intersections of public space through a central ring that bleeds into the various program areas. Users will be drawn together in the intersection of a multitude of programs with an intentional lack of visual seclusion.


This wide, central intersection allows for various configurations hosting conversation and debate lacking in previous condensers, specifically promoting democratic processes. Within the intersection, a central depression in the floor functions as a versatile seating and gathering space. Reconfigurable dividers provide surfaces to project media upon and create new divisions of space to aid in these processes. The building's asymmetrical circular form lends itself to non-hierarchical organizations and created sectors that attend to environmental and view framing concerns. This organizational strategy is continued into the landscape, extending main formal lines to create gathering spaces varying in size and program.



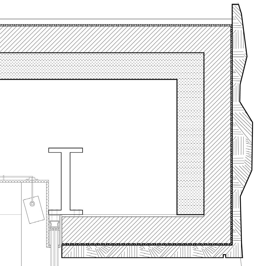
left: wall section
top right: wall-to-ceiling and exterior finish details
bottom right: wall-to-floor visual seperation detail created by supply ducts
Materials for this proposal curate feelings of innateness and civil importance through a monotone palette of taupe concrete finishes. The color serves as a unifier between large contrasts such as an oversized, jagged sand cast finish on the exterior and a smooth, velvety finish on interior surfaces. The rest of the envelope consists of glass with minimal joinery to give the appearance of voids among the heavy concrete masses.
Moments of significant expression lie in the exterior columns and both floor-to-wall and wall-to-ceiling connections. This detail serves one of the proposal's main goals, specifically to expose the structure and celebrate the solid qualities of civic architecture. Vertical divots where the walls meet the floors and ceilings suggest separate parts, making the floor appear as a platform for the community.
SEMESTER:
FALL 2020
INSTRUCTOR:
SARAH DEYONG
PROJECT TEAM: MEGAN KORTENHOF + ETHAN BOERNER

This proposal for a Student Learning Commons offers a new home for thinkers, creators and activists at the University of Nebraska-Lincoln. The design is both literally and metaphorically a flexible framework, constructed mainly out of wood, to house the ever-changing needs of the community. The design advances UNL's mission on diversity and anti-racism, proactively integrating anti-ableist spatial strategies, and other inclusive narratives.
The proposed building bisects the existing, large and underutilized central quad into two smaller quads while strengthening the connection to 14th street and the city beyond. The west block of campus is dedicated to educational activities, and the east block to resources, recreation and mixed-use spaces. Each side of the building corresponds to the program of the quads they face. Through the use of dark, natural wood for the structure, floors and ceilings spatially foregrounds framed views of trees on the quad, bringing natural daylight and exterior views into the interior.
below: west-facing section perspective


The proposal draws on universal design research to incorporate anti-ableist spatial strategies. Through easy to navigate organization, the elimination of stairs and ramps on the ground floor, visual connections between circulation and program, acoustic and texture considerations, and diverse study environments and furniture, the building aims to regulate experiences between all users. Furthermore, the program leverages existing campus programs such as the food pantry, town and gown events, and community outreach. UNL considers all outdoor space on campus public, a sentiment the proposal strives to capitalize on by activating a streetscape with large sliding door entrances along both sides of the structures, allowing the program to spill out onto the street and the adjacent quads. This not only utilizes the benefits of integrating nature and education but presents opportunities to bring community events onto campus. Food trucks, pop-up vendors, and organized protests then flourish in a well-trafficked area of campus, increasing the students' interactions with these activities. By integrating these spatial strategies and novel program, the new Student Learning Center can become a place for groups and individuals who strive for a more just future.


SEMESTER:
INSTRUCTOR:
GEOFFREY THÜN

left: southern portion of site, spanning from central Arizona to just across the U.SMexico border produced with Vanessa Lekaj
right:
timeline mapping of indigenous homelands, present day reservations, and the reinforcement and occupation of these spaces through military installations
It is well knows that the U.S. Military has an affinity for the desert, but the narrative of why, how, and the consequences it carries are not. The narrative is especially absent among "experientialists": a familiar archetype in the desert who come to revel in the landscape's sublime otherworldliness, but often leave without knowledge of its unresolved histories and how they shape this terrain. Perceptive Lands targets these visitors in an aspiration to complete the picture by revealing two contending existences within the desert, that of the U.S Military and that of the indigenous population. These ongoing histories manifest as a parasitic relationship. Far too often, the lasting consequences of militaristic colonization are at the expense of a marginalized community whose lands are perceived as sacrificial.
By capitalizing on what experientialists are after, the proposal foregrounds these lesser-known narratives through sensorial architectures. One may feel awe at one site... sorrow, or tension in another, or maybe all three at once. This strategy manifests into a collection of five interventions across Arizona's complex geographies and ecologies, each addressing a military front: settlement, defense, depletion, surveillance, and borderlands. Ranging in various scales, mediums, and exposures, these interventions do not seek to provide solutions, but instead to spark the awareness and conversations that lead to them.

Borderlands //
A sunken structure containing a periscope-like viewfinder, aimed at the U.S.-Mexico Border. The viewfinder utilizes digital layers to reveal the life within the borderlands; annotating animals, insects, flight paths, and beyond. The viewfinder aims to call attention to the unnatural intrusion and its specific disregard for the surrounding native populations, threatening their mobility. Especially as a “strengthening” of the wall continues to be proposed.
Defense //
An insertion into a decommissioned Inter-Continental Ballistic Missile silo from the cold war. The red circulation route slightly hovers over the existing structure, guiding visitors through the intricate workings of national defense. The installation specifically curates the experience of the silo to cumulate in an intimate encounter with the missile itself, working to convey the massiveness of the intrusions and extractions inflicted on the desert and its people, in the name of defense.


