Megan Frank, Virginia Tech Interior Design Portfolio 2025

Page 1


Virginia Tech Interior Design Portfolio

As an interior design student with a passion for art, I focus on creating spaces that are both functional and visually captivating. The culmination of art and design inspires my work, allowing me to craft interiors that balance creativity and purpose. My designs prioritize harmony and usability, reflecting a commitment to transforming spaces into meaningful experiences.

megan.rva@gmail.com https://www.linkedin.com/in/megan-frank-ab203a286/

THERME

ARTIST ATELIER PERSONAL WORKS

OTHER PROJECTS

Workplace | Chicago, Illinois

Fall 2024 | Individual Revit, Photoshop

The 2024 Steelcase NEXT Student Design Competition invites interior design students to envision a 16,000-square-foot workplace for NEXT, an independent global creative advertising agency expanding into Chicago. Participants are challenged to design a dynamic environment that supports diverse work behaviors—from focused individual tasks to hybrid collaboration and analog team brainstorming— while reflecting NEXT’s mission to leverage creativity to influence change and impact culture. The competition emphasizes the integration of inclusive design principles and the creation of spaces that foster collaboration and support the creative process.

THERME

Retail Boutique | Los Angeles, California Spring 2023 | Individual Sketchup, Photoshop

Design a new boutique retail shop. The renovated space to be sits on a corner of two narrow streets in a neighborhood that is being revitalized. Students will choose which city to place this retail establishment. The Brand should promote sustainability and social justice.

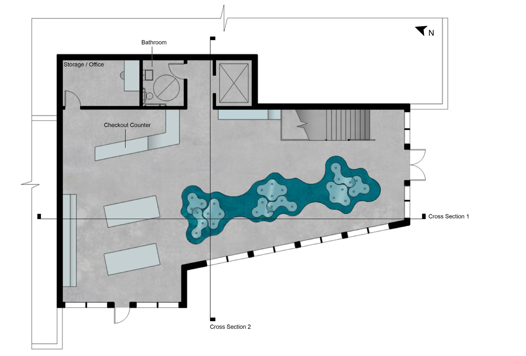
Throughout history public pools and bath houses have brought community together regardless of class and background. Located in Rodeo Drive Los Angeles, Thermae boutique embodies the idea of community with work from an eclectic collection of local artists, including clothing, ceramics, jewelry, prints, and original artworks. Straight lines and harsh corners refer to the strict organization of ancient pools and bath houses.

Merchandise is zoned by product to continue the concept of strict organization within the space. Organic curvilinear tables and light fixtures proved contrast to the strict organization of the shell of the space. These shapes are inspired by reflections on the water’s surface and the shadows they create on the bottom of a pool.

Multiple Parti diagrams were created to determine the ideal layout of the space, considering adjacency, egress, and accessibility. Ultimately the design was organized around a diagonal grid.

Floorplan L1 NTS
Floorplan L2 NTS

Exploded Axonometric NTS

Cross Section

A: Poured polished concrete in teal blue Applications: Flooring L1 and L2

B: Osculati flexible LED strip light

Applications: Curvilinear lighting fixtures

C: Paint samples

Applications: Walls and doors

D: Poured polished concrete in classic gray Applications: Flooring L1 and L2

E: Cloverleaf Sofa by Verpan Applications: Seating on L2

F: Green Cast clear acrylic

Applications: Curvilinear tables

G: Marazzi ceramic wall tile

Applications: Check out counter

Products sold in Therme include locally handmade jewelry, pottery, prints, books, fine arts, and clothing. As seen in the perspectives and sections, the art is a part of the design of the space.

Cross Section 1 NTS
Cross Section 2 NTS

ARTIST’S ATELIER

Residential, Exhibition| Madrid, Spain

Fall 2022 | Individual Sketchup, Photoshop

Create a living, work and exhibition space for an artist with a design solution using a maximum of five 12’cubes. The client is a visual artist that the student will create.

The concept of my space revolves around the progression of public to private space through movement and levels. You enter through the highest and most public space, the gallery. As you move downstairs you pass through the artist’s workshop then down again to the private living space. The floor plan is very open to make the space feel as large as possible, while still retaining privacy. The colors and materials used are neutral and natural to complement the view.

Sierra Flores is a 28 year old Peruvian American female. She was born in New York City, USA and currently resides in the mountains outside of Madrid. Her Peruvian culture is very important to her, so it was important to showcase her heritage inside the space. Flores is a mixed media artists who creates art using acrylic paint, pens, pencils, and digital means. Her hobbies include reading and horticulture. Natural light is essential to the space in order to look after her plants and keep her motivated to work throughout the day.

Floorplan

Cross Section 1 NTS

PERSONAL WORK

ARTWORKS ABROAD

In the Summers of 2023 and 2024 I spent over five weeks traveling around Europe, both independetly and with Virginia Tech. I traveled to many countries including Italy, Portugal, Switzerland, France, Germany, Denmark, The Czech Republic, and The UK. While abroad I documented my travels throguh sketches, collage, and photography.

2026 CALENDAR

Illustrated on paper using only black ink. This project is an experiment into text and graphics, as well as a challenge for myself to create personal works on a larger scale. I have plans to screenprint copies to share with others.

FASHION DESIGN

All pieces were designed and handmade by me. I use a variety of techniques including machine sewing, hand dewing, crochet, and beading

MISCELLANEOUS WORKS

Other personal works across different mediums inclusing jewelry making, ceramics, drawing, and painting

OTHER PROJECTS

SPACE CASES

Fall 2022 | Individual

Physical Model, Sketchup, Photoshop

REPOSE

Spring 2024 | Group: Chris Learish, Symphoni Daniels Revit, Enscape, Photoshop

megan.rva@gmail.com https://www.linkedin.com/in/megan-frank-ab203a286/

Turn static files into dynamic content formats.

Create a flipbook
Issuu converts static files into: digital portfolios, online yearbooks, online catalogs, digital photo albums and more. Sign up and create your flipbook.