MEDINA
CONTENTS.





PROFESSIONAL WORK.
DEWBERRY PROFESSIONAL DESIGNER

AT DEWBERRY
had the privilege of being mentored by Nathanael D. Custer, Director of Design, which allowed me to grow not only as a designer but as a well-rounded architectural professional. Over the course of two years, I was immersed in all phases of design and documentation, gaining comprehensive exposure to the technical, regulatory, and business aspects of the profession.
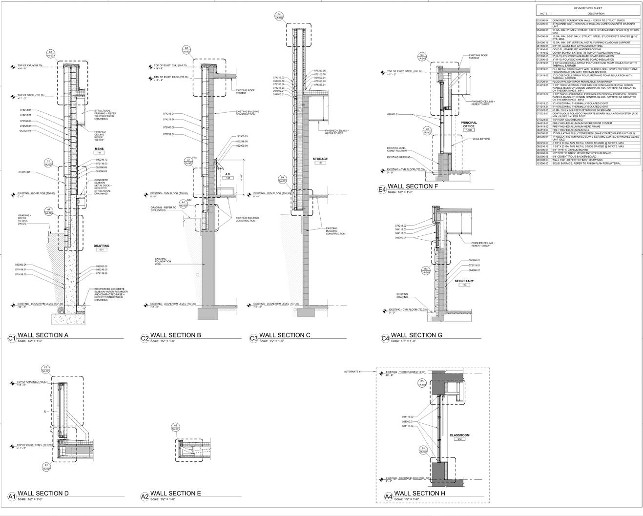
developed a strong understanding of how to translate conceptual design into buildable solutions that align with project budgets, construction methods, and client priorities. I learned how to evaluate drawings through the lens of material performance, cost, and long-term durability - balancing aesthetics with practicality. On the business side, was trained to track progress against budgets, participate in the bidding process, and manage scope effectively.
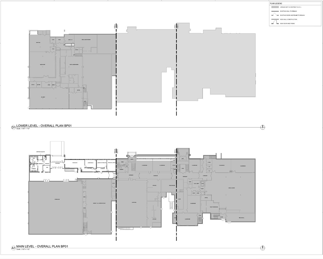
Through various justice and education projects, applied code analysis, fire safety standards, and ADA compliance across design solutions. worked on space planning and layout optimization, developed wall assemblies for specific programmatic needs - including high-security and impact-resistant areas - and coordinated closely with multiple disciplines.
This experience has equipped me with a holistic understanding of architecture - from early design vision and technical detailing to coordination, budget management, and real-world constructability.





ROOTED IN CONSTRUCTION, GROWING THROUGH DESIGN
My architectural foundation was built long before ever opened a design program. Growing up on construction sites, I learned the craft of building firsthand - roofing and framing homes with my father, laying concrete and bricks with masons, and working on full-scale residential projects from the ground up. That early, tactile understanding of construction instilled in me a deep respect for the process and the people who bring drawings to life. My experience has brought me an understanding of project leadership, while also engaging in community-focused design. Now, in practice at a professional firm, I have expanded my technical skillset - developing drawing sets in Revit across a variety of wall systems. have gained working knowledge of code research, project phases, RFIs, and the bidding process.
While I continue to grow with every project, my foundation in both craft and design allows me to approach architecture with clarity, curiosity, and a grounded understanding of how ideas become reality





TAship.
UNIV. OF ILLINOIS
TEACHING ASSISTANT











KUTSUGORU.
TEAM: JAIR, POOJA, KINJAL
ROLE: DESIGN + PROJECT MANAGEMENT SOFTWARE: REVIT


KUTSUGORU
In the heart of Shibuya (Tokyo, Japan), the team sought to explore ways of incorporating luxury with Japanese culture. Through this process we tested our knowledge in structures to execute a difficult design involving shifting plates inspired by the Japanese Koi fish.






















The floor plates were shifted to allow the vegetation to be exposed by the sun and to give visitors stunning views of the city. Each section was divided to destinguish the levels of privacy (Public, Semi-Luxury, and Luxury).










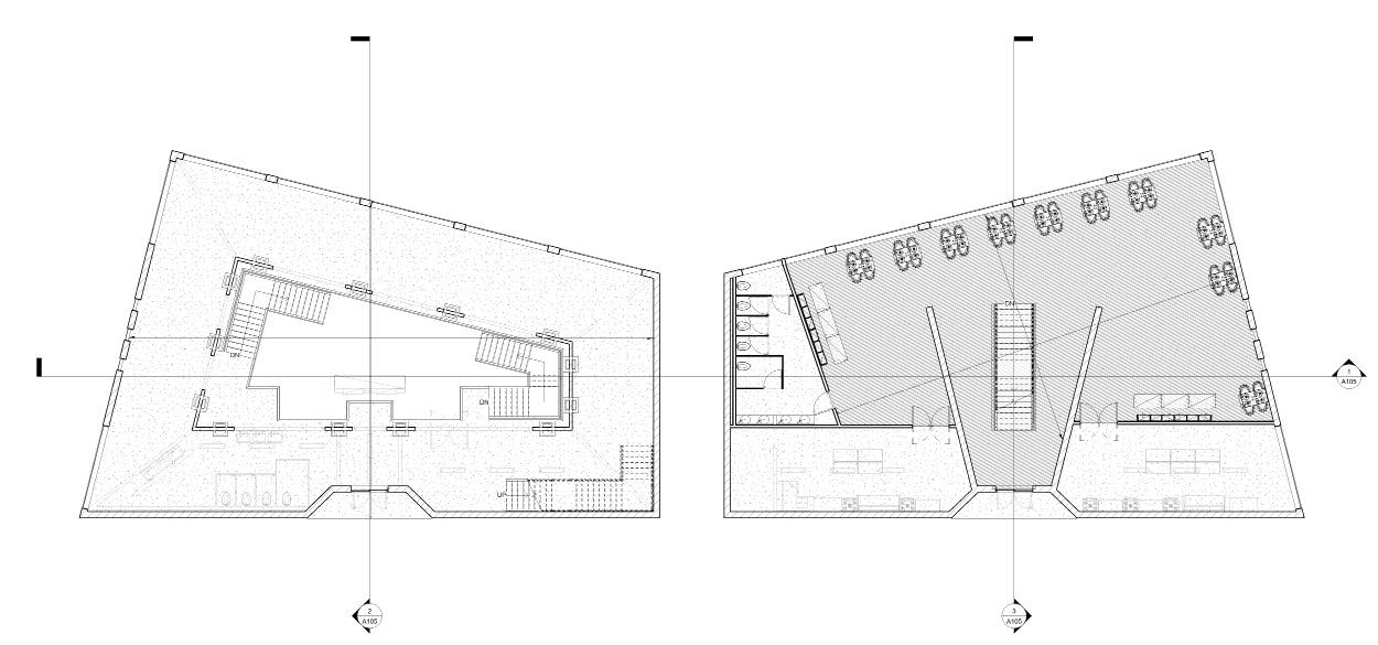
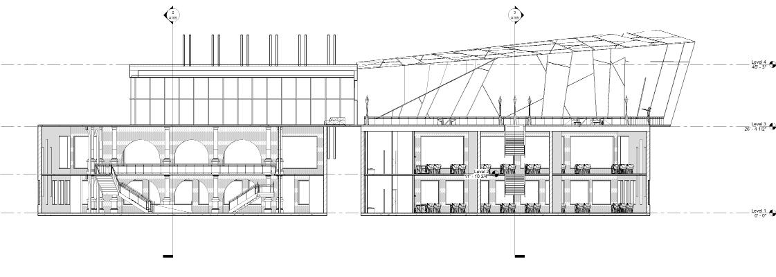
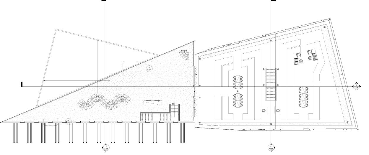
SONORAN DESERT, ARIZONA
EL ANTRO.
EL ANTRO takes places in an apocalyptic setting. Instead of viewing the world as being in danger, I viewed the world as already at its end to force myself to design a space that brings people of all backgrounds together to share knowledge and skills. Learn from the past, enjoy the present, and plan for the future.
EL ANTRO uses ETFE material, wood, and rammed earth as means of construction. Research was also done to enhance the health & well-being of the project’s occupants.
HWB PRINCIPLE: CONNECTION TO NATURE
DESIGN STRATEGIES: Creating green spaces within the building.
HWB EXPECTED OUTCOME:
1. Improving mental health & well-being.
2. Providing fresh and healthy ood o the community.
3. Teaches the community and allows collaboration.
4. Stress elief
ORIGINAL SOURCE: - MHP
HWB PRINCIPLE: PHYSICAL ACTIVITY
DESIGN STRATEGIES: Irresistible stairs.
HWB EXPECTED OUTCOME:
1. Promotes a healthy lifestyle.
2. Helps improve mental health and decreases the chance of health issues like high blood p essure
ORIGINAL SOURCE: - DEI Creative in Seattle, W (n.d.). Building Features. Retrieved December 7 2021, from https://bullittcente org/building/ building-features/active-design/ - MHP



HWB PRINCIPLE: MULTISENSORY EXPERIENCE
DESIGN STRATEGIES: Use of natura materials such as earth and wood o help create sense of connection to nature; Translucent exterior allows comfortable natural lighting; Screen walls deÞne border without secluding spaces; Vegetation creates visually pleasing view and a good smell.
HWB EXPECTED OUTCOME:
1. Creates a sense of privacy without isolating paces.
2. Stimulates senses o create pleasing experience
3. Connects people o one another through shared experiences and connects people o the building and nature.
ORIGINAL SOURCE: - MHP - Pallasmaa, Juhani. The Eyes of the Skin: Wiley 2012.
HWB PRINCIPLE: SOCIAL INTERACTION
DESIGN STRATEGIES: Open multi-purpose space & garden easily accessible at ground evel, cultura spaces fo education and practice at Þrst evel, & harvesting spaces fo furthe collaboration at second le el.
HWB EXPECTED OUTCOME:
1. Provides freedom o control & organize spaces o Þt persona needs.
2. Promotes collaboration & socia interactions.
ORIGINAL SOURCE: - MHP
An increasing amount of people are becoming more aware of their carbon footprint, yet many seem to be attracted to urban regions. Attempting to find a balance, research, site visits, and community engagements were carried out to design CALAVERA. This project uses bricks from abandoned and destroyed buildings to build a gallery and restaurant for Lake Geneva’s community.













V






