Arenalokaal editie Reek, Schaijk, Zeeland, Herpen, Ravenstein en Langenboom week 12-2025

Page 1


Meld kandidaten aan voor de nieuwe rubriek ‘Vrijwilliger van de Maand’ Arena en De Potter eren lokale helden

REGIO – Vanaf april introduceren weekblad Arena en restaurant De Potter in Schaijk een nieuwe rubriek: Vrijwilliger van de Maand. Dit initiatief is bedoeld om de stille krachten die onze gemeenschap draaiende houden in het zonnetje te zetten.

John Potjes, uitbater van De Potter, kwam met het idee voor de rubriek. Geïnspireerd door een vergelijkbaar succesvol project in Twente, benaderde hij Sergio Boutkan, uitgever van ArenaLokaal. “Tijdens een horecatour hoorde ik over dit initiatief”, vertelt John. “Het leek me geweldig om ook in onze regio vrijwilligers, die vaak achter de schermen veel waardevol werk verrichten, maandelijks in ‘t zonnetje te zetten.” Sergio reageerde direct enthousiast: “Vrijwilligers zijn het cement van de samenleving. Met deze rubriek willen we hen de waardering geven die ze verdienen. We roepen onze le-

zers op kandidaten aan te dragen. Ken je iemand die zich belangeloos inzet voor anderen? Iemand die bijvoorbeeld al jaren actief is bij een (sport)vereniging, boodschappen doet voor een zieke buur of mantelzorg verleent? Laat het ons dan weten!” >> 3

‘Schaijk bouwt ook!’ presenteert plan gemeentewerf

SCHAIJK -  Op 18 maart vond in een bomvolle zaal van De Phoenix in Schaijk een informatieavond plaats, georganiseerd door de vereniging in oprichting ‘Schaijk bouwt ook!’. Het evenement, geleid door initiatiefnemer Chris School (foto), stond in het teken van de dringende woningbehoefte in Schaijk en de presentatie van een CPO-plan (Collectief Particulier Opdrachtgeverschap) voor de locatie van de voormalige gemeentewerf aan de Runstraat. ‘Schaijk bouwt ook!’ wil daar ‘betaalbare woningen voor starters en senioren’ realiseren.

De massale opkomst van zowel jonge starters als senioren onderstreept de nijpende woningnood in Schaijk. Chris School opent de avond met een duidelijke boodschap: “In Schaijk is een enorme behoefte aan betaalbare woningen voor zowel starters als senioren. Samen staan we sterk (de vereniging heeft inmiddels al bijna 1000 leden, red.) en kunnen we deze uitdaging aangaan en oplossingen realiseren.”

Hertenpark De Bokkesprong in Schaijk zoekt dierenverzorgers

SCHAIJK - Hertenpark De Bokkesprong in Schaijk is op zoek naar vrijwilligers voor de dagelijkse verzorging van de dieren. Met een groep vrijwilli gers zorg je samen voor het welzijn van de dieren en het park. Tijden en dagen in overleg. Mocht je meer willen weten of interesse hebben, dan kun je contact opnemen met Wim Peters via 0486-461669.

Ook de gemeente Maashorst heeft plannen voor herontwikkeling van de gemeentewerf. Deze omvatten het beschikbaar stellen van een deel van het terrein voor de bouw van carnavalswagens door stichting Carnaval de Moeslanden voor een periode van vijftien jaar. Daarnaast is er een intentieverklaring getekend met woningcorporatie Mooiland voor de realisatie van 25 tijdelijke sociale huurwoningen voor zogeheten ‘lokale spoedzoekers’. Kritiek op gemeentelijke plannen Onder de circa 200 aanwezigen klinkt er de nodige kritiek op deze bouwplannen van de gemeente die specifiek zijn bedoeld voor lokale spoedzoekers.

3

Onderling Kunstgenot uit Reek speelt drie maal Intern

REEK - Intern is de nieuwe voorstelling van On derling Kunstgenot uit Reek. De toneelvereniging brengt 28, 29 en 30 maart dit schouwspel op de planken in Het Wapen van Reek. Bereid je voor op een bijzondere inkijk in het leven binnen een GGZ-instelling, waar de grens tussen patiënt en professional soms verrassend dun is. Intern neemt het publiek mee naar de wereld achter ‘gesloten deuren’. Een wereld waar iedereen zijn eigen verhaal heeft, waar emoties hoog oplopen en waar een lach en een traan dicht bij elkaar liggen. Alle avonden start de voorstelling om 20 uur. Een kaartje kost 10 euro. Neem contact op via 0620363087 of toneelgroepreek@hotmail.com.

v v

Wingerd 17 Schaijk I vraagprijs: € 389.000,- k.k.

Woonoppervlakte: 108 m²

Perceeloppervlakte: 114 m²

Inhoud woning: 383 m³

Externe bergruimte: 5 m²

Bouwjaar: 1974 (renovatie 2021)

Energielabel: C

Zeer nette, fraai afgewerkte, verrassend ruime en instapklare tussenwoning. De woning is gelegen op een rustige locatie in groene woonomgeving op

Helstraat Reek I vraagprijs: € 215.000,- k.k.

lichtinval.

Perceel: 1.515 m²

BERGHEM JULIANASTRAAT 28-30

Nieuwbouwlocatie

Verhuurd

Perceel totaal 2940 m2

Met bouwvergunning voor commerciële ruimtes 770 m2 en 10 appartementen alsmede circa 60 parkeerplaatsen.

Aanvaarding: n.o.t.k. Koopsom: op aanvraag

Te huur Bedrijfsruimte

Bedrijfshal ca. 1008 m2

Incl. kantoor en kantine ca. 60 m2

3x overheaddeur, goede isolatie

Gladde betonvloer

Led verlichting in de hal

Milieu klasse t/m 3.2

Aanvaarding: n.o.t.k. Huurprijs: op aanvraag

Op 4 april in deze krant

Oplage 64.000 - 161.000 huishoudens

Vacature plaatsen? patrick@arenamediacentrum.nl

Te huur kantoorruimte

In bedrijfsverzamelgebouw op kleinschalig industriepark - Unit bg linkerzijde - Unit 1e verd. rechts

Aanvaarding n.o.t.k. HUURPRIJS op aanvraag

Kopen of verkopen

Huren of verhuren o.g. adviezen

Maak vrijblijvend een afspraak en wij informeren u over uw en onze mogelijkheden

Makelaardij

Pastoor van Winkelstraat 20 SCHAIJK 0486-463144

Goothoogte: Maximaal: 4,5 m

Bouwhoogte: Maximaal: 9 m

Landelijke gelegen potentieel bouwkavel aan de Helstraat net buiten de bebouwde kom van Reek met aan de achterzijde een kilometers ver prachtig weids uitzicht op de landerijen!

Deze riante kavel van maar liefst ca.1.515 m² is uitermate geschikt voor het bouwen van een eigentijdse vrijstaande woning met bijgebouw en riante tuin.

Winkelstraat 2 Ravenstein I vraagprijs € 499.500,- k.k.

Woonoppervlakte: 148 m²

Perceeloppervlakte: 103 m²

Inhoud woning: 567 m³

Overige inpandige ruimte (kelder): 12 m²

Bouwjaar: 1939

Energielabel: Niet van toepassing i.v.m. monumentale status.

In het hart van het gezellige, levendige en historische vestingstadje Ravenstein gelegen, sfeervolle stadswoning met patiotuin, tuinberging en achterom.

De woning, verrassend royaal, wordt gekenmerkt door een fijne en praktische indeling met goede leefruimten en ademt door de aanwezigheid

van diverse originele stijlkenmerken één en al sfeer! Het gezellige en bourgondische vestingstadje Ravenstein kent een prachtig eeuwen oud centrum in de vesting met leuke winkels, speciaalzaken, terrasjes en restaurants, dit alles op loopafstand van de rivier de Maas en haar prachtige uiterwaarden.

NIEUW
NIEUW
loopafstand van centrum Schaijk en wordt gekenmerkt door veel natuurlijk
TE KOOP
SCHAIJK INDUSTRIEPARK 15 TeHuur

De

Potter trakteert vrijwilligers op geheel verzorgde

Vervolg van voorpagina

Hoe nomineer je een vrijwilliger?

Stuur een mail naar redactie@arenalokaal.nl met de volgende gegevens:

* Naam en contactgegevens (woonplaats, telefoonnummer en e-mailadres) van de vrijwilliger (of het groepje vrijwilligers).

* Een motivatie van maximaal 200 woorden waarom deze vrijwilliger(s) in aanmerking komt/komen voor de titel ‘Vrijwilliger van de Maand’. Let op: de kandidaten moeten woonachtig en/of actief zijn binnen

het verspreidingsgebied van ArenaLokaal, namelijk: Reek, Schaijk, Zeeland, Langenboom, Herpen (en omliggende kerkdorpen), Ravenstein (en omliggende kerkdorpen), Overlangel, Grave, Escharen, Gassel en Velp.

Uit de inzendingen van de lezers selecteren ArenaLokaal en De Potter maandelijks de ‘Vrijwilliger van de Maand’. De gekozen vrijwilliger mag, samen met een partner of collega-vrijwilligers, komen genieten van een volledig verzorgde lunch bij restaurant De Potter in Schaijk. “Het

lunch

is een kleine geste om onze waardering te tonen voor hun grote inzet”, geeft John Potjes aan.

Nomineer vrijwilligers! Vrijwilligers zijn onmisbaar voor een sterke en betrokken gemeenschap. Met de rubriek ‘Vrijwilliger van de Maand’ willen ArenaLokaal en De Potter deze lokale helden de erkenning geven die ze verdienen. Dus ken je iemand die deze titel verdient? Nomineer hem of haar dan snel en help ons om samen de vrijwilligers in onze regio te eren.

’Wrang dat onze eigen inwoners mogelijk achter het net vissen’

Vervolg van voorpagina

Deze term verwijst naar woningzoekenden die ‘vanwege een uitzonderlijke situatie dringend woonruimte nodig hebben’. Dit kan bijvoorbeeld gaan om gescheiden personen, vergunninghouders (statushouders), mensen die uit een instelling komen of arbeidsmigranten. De gemeente streeft ernaar deze diverse groep, die snel een woning nodig heeft, te ondersteunen met tijdelijke huisvestingsoplossingen. Tijdens de bijeenkomst uiten sommige aanwezigen hun zorgen over deze plannen. Er heerst angst dat slechts een zeer klein deel van die tijdelijke woningen daadwerkelijk aan inwoners van Schaijk zelf zal worden toegewezen. “Het is wrang dat onze eigen inwoners, die al jarenlang wachten op een woning,

Arenalokaal

Verschijnt elke vrijdag in Reek, Schaijk, Zeeland, Herpen, Ravenstein, Langenboom, Grave, Gassel, Escharen en Velp.

Oplage: 16.500 exemplaren

Uitgever: Arena Mediacentrum BV Runstraat 15 5374 AA Schaijk T: 0486 - 46 31 12 www.arenalokaal.nl

Arenalokaal Arenalokaal

Advertenties: Patrick Vergeer patrick@arenamediacentrum.nl advertentie@arenamediacentrum.nl M: 06- 50 61 74 26

Redactie: Sergio Boutkan sergio@arenamediacentrum.nl redactie@arenamediacentrum.nl

M: 06 - 46 62 56 51

Eindverantwoording: Sergio Boutkan

Krant niet ontvangen? Vul het formulier in op www.arenalokaal.nl/ bezorgklacht of bezorging@ arenamediacentrum.nl.

mogelijk achter het net vissen”, aldus een bezorgde inwoner. Als tegenhanger van de gemeentelijke plannen presenteert Chris School het CPO-plan van ‘Schaijk bouwt ook!’. “Een veel beter plan dan dat van de gemeente. Ons plan voorziet namelijk in de bouw van permanénte starters- en seniorenwoningen op de gemeentewerf, een locatie die ideaal is vanwege de centrale ligging nabij belangrijke voorzieningen zoals scholen, winkels en huisartsen.”

School benadrukt daarnaast de voordelen van een CPO-project: “Door samen te werken als toekomstige bewoners kunnen we niet alleen kosten besparen, maar ook woningen realiseren die volledig aansluiten bij onze behoeften.”

‘Schaijk bouwt ook!’ is vastberaden het CPO-plan te realiseren en roept

de gemeente op tot samenwerking. De vereniging heeft al stappen ondernomen, zoals het oprichten van een CPO-vereniging en het voorbereiden van een subsidieaanvraag bij de provincie. School sluit de avond af met een krachtige oproep: “Laten we samen met de gemeente en woningcorporaties werken aan een toekomst waarin iedereen in Schaijk een passende woning kan vinden.” De avond maakt eens te meer duidelijk dat er in het dorp sterke behoefte is aan permanente, betaalbare woningen voor starters en senioren. Het voorgestelde plan biedt hiervoor een kansrijke oplossing. Het is nu aan de gemeente en andere betrokken partijen om in overleg te treden met de vereniging en samen te werken aan een toekomstbestendig woningaanbod voor Schaijk.

Davey Turnhout en Chris School te gast bij het Zondagcafé in Schaijk

SCHAIJK - Op zondag 30 maart is het laatste Zondagcafé Schaijk van dit voorjaar. Aan de tafel in dorpshuis De Phoenix schuiven wederom twee hoofdgasten aan en Ton Cruijsen praat met hen.

De eerste gast is Davey Turnhout. Cabaretier en stand-upcomedian en woonachtig in Schaijk. In januari ging zijn tweede show CHAOS in première. Een voorstelling waarin hij het taboe rondom seksueel misbruik probeert open te breken door over zijn eigen ervaring te spreken. Als tweede gast schuift oud-wethouder Chris School aan. Hij is terug van weggeweest en actief als nooit tevoren. Na ‘Reek Bouwt’ heeft hij zijn grenzen verlegt naar Schaijk en is ook hier een kruistocht voor woningbouw begonnen onder de noemer: ‘Schaijk bouwt ook’.

Jan de Leur en Betty Visschers lichten daarnaast een tipje op van de sluier over de activiteiten dit jaar van de Stichting Vier Vrijheid Schaijk. Op 30 maart maken we ook kennis met een nieuwe columnist, Theo Potjes alias De Potter. Voor de live-muziek zorgt BAM (Mari Wingens en Bart van Uden).

Het Zondagcafé start op 30 maart om 14 uur in de foyer van De Phoenix. De deur is open vanaf 13.30 uur. Het is een café, dus mag er ook flink gebuurt worden met een drankje erbij. De toegang is gratis.

Dtv Kompas

Het Zondagcafé wordt opgenomen door de Videoclub Maashorst en op zondag 6 april om 10 uur uitgezonden als een Dtv Kompas-uitzending op Dtv Maashorst.

freddy

De toestand in de wereld

In de vorige eeuw was er een radioprogramma dat “De toestand in de wereld” heette. Van 1956 tot 1999 werd dat programma elke week op zondagmiddag om 1 uur op de radio uitgezonden. Moet je nagaan: op de radio, op zondagmiddag en dan over een onderwerp als de toestand in de wereld. De radio staat tegenwoordig volgens mij alleen aan op een muziekzender, met tussendoor verkeerssituatie. De zondagmiddag naar een ernstig radioprogramma luisteren? Hahaha. Je mag er niet meer aan denken. Maar toen waren het andere tijden. Dreigende tijden. Over Israël en Palestina, over Rusland en diens zin in een groter stuk Europa. Daar gingen veel mensen wel eens extra voor zitten. En pas daarna naar de zondagse vrije-dag-besteding, zoals voetbal, familie en voetbal. Wat de onderwerpen betreft is er niet veel veranderd. In Israël en Gaza is het nog steeds een ramp. Rusland is alweer in oorlog. De Verenigde Staten hebben een nieuwe leider. Een soort Pinokkio, wiens neus al niet meer groter kan worden. Iemand die straks misschien wel met de Nobelprijs voor de Vrede gaat lopen, als hij een eind aan de oorlogen kan maken. En, aan elke oorlog komt eens een eind. Al duurt het soms tachtig jaar, weten wij als beschaafde Nederlanders. Maar ook op kleine schaal zijn er toestanden. Wat te denken van leerlingen op het Voortgezet Onderwijs, die onder grote druk hun rusteloze leven lijden. Want, schrik niet, hun ouders kunnen al hun cijfers gewoon via internet inzien. Niet meer één keer per trimester als ze met hun rapport thuiskomen, nee nee, na elk proefwerk dreigt het zwaard van Damocles op hun nog zwakke nekjes neer te dalen. En daar worden de jongelui zenuwachtig van. Onzeker ook. Een beetje slimmerik zou het natuurlijk als excuus kunnen gebruiken: “Ja pap, ik heb mijn Engels proefwerk verknald, omdat ik zenuwachtig werd van het idee dat jij over mijn schouder meekeek. Zou jij het leuk vinden als je baas constant in je nek loopt te hijgen bij alles wat je doet? Of niet doet?” Een niet te onderschatten toestand in Nederland, deel van de toestand in de wereld is het maatmanloon. Ik had er eerlijk gezegd nog nooit van gehoord. In het kort komt het hierop neer: maatmanloon wordt gebruikt om te kijken wat een werknemer met een beperking nog zou kunnen verdienen. Het woordje “nog” zegt mij al voldoende. Een ander actueel toestandje in de wereld gaat over pensioenfondsen. Toch al niet mijn beste vrienden. Waarom niet? Toen ik begon met werken verdiende ik heel weinig. Op het laatst best meer dan genoeg. Mij was bij de start verzekerd dat mijn pensioen berekend zou worden over mijn eindloon. Helaas werd dat enkele jaren voordat ik zo ver was veranderd in een berekening van het middelloon. Nou, dat scheelde meer dan een slok op een borrel. Die pensioenfondsen “wachten met extra beleggen in wapens”…

column
(foto: Lisa Koninkx)

t/m zaterdag open van 8.00 tot 20.00 uur. Zondag van 09.00 tot 18.00 uur.

Gratis

je verkeerskennis opfrissen?

Veilig Verkeer Nederland organiseert in opdracht van de gemeente Maashorst in samenwerking met de VVN Werkgroep Maashorst gratis opfriscursussen voor 50+ automobilisten.

Opfriscursus fiets met praktijk Tijdens de Opfriscursus fiets met praktijk leren onze trainers je hoe je als fietsers veilig door het verkeer gaat. Dit allemaal met praktische tips, foto’s en stellingen over veilig fietsen. Na de lunch krijg je (indien gewenst) een gratis fietsspiegel geïnstalleerd door een lokale fietsenmaker, die ook controleert of jouw fiets goed voor jou staat afgesteld. We sluiten de middag af met een praktijk-onderdeel bestaand uit oefeningen met en zonder fiets, om veilig en fit aan het verkeer te blijven deel-nemen.

De opfriscursus Fiets met praktijk vindt plaats op ● Maandag 7 april 2025 van 10.00-15.00 uur in Schaijk Let op: neem je fiets mee

Opfriscursus Auto

Een 2-daagse Opfriscursus Auto waarin een gecertificeerde rijinstructeur je bijpraat over oude en nieu-we verkeersregels, -situaties, -borden en waarin je verkeerskennis wordt bijgespijkerd

De 2-daagse Opfriscursussen auto vinden plaats op:

● Dinsdag 15 en 22 april 2025 van 09.30 – 11.30 uur in Schaijk

● Donderdag 15 en 22 mei 2025 van 09.30 – 11.30 uur in Uden

● Woensdag 3 en 10 september 2025 van 09.30 – 11.30 uur in Uden

● Dinsdag 21 en 28 oktober 2025 van 09.30 – 11.30 uur in Reek

Let op: je wordt beide dagen verwacht en bent in bezit van rijbewijs cat. B

Aanmelden

Ben je 50+, woonachtig in de gemeente Maashorst en geïnteresseerd? Meld je dan aan via onze website www.vvn.nl of met behulp van de QR-code. Een week van tevoren ontvang je van ons de locatiegegevens in je mail.

Voor vragen kun je ons telefonisch bereiken op 088-5248850.

Let op: Deelname is gratis, maar vol=vol! Denk om jouw veiligheid in het verkeer

Inspiratie voor jouw badkamer, toilet of woonvloer

Ontzorging van ontwerp tot realisatie

Volledige installatie van A tot Z Ook voor onderhoud aan bestaande installaties

Specialist in duurzame installatietechniek

DE
MOOISTE
BADKAMERS
KOMEN GEWOON UIT SCHAIJK

Bloemisterij Van der Linden opent in Schaijk:

‘Droom gaat in

vervulling’

SCHAIJK – In hartje Schaijk, aan het Kapelanieplein 4, opende dinsdag 18 maart Bloemisterij Van der Linden de deuren. De nieuwe bloemenzaak wordt gerund door Aniek Schel-van der Linden en haar broer Jan van der Linden. Arena nam dinsdag een kijkje in de fraaie nieuwe winkel en sprak met Aniek en Jan over hun plannen. “Het is geweldig om te zien hoe iedereen betrokken is en ons steunt.”

Na het sluiten van DFM Bloemen en Planten in Schaijk in december 2024 ging het balletje aan het rollen. Aniek werkte bijna tien jaar bij de DFM-vestiging in Schaijk toen de vorige eigenaar haar vroeg of ze interesse had om er een eigen zaak te beginnen. “Ik hoefde daar niet lang over na te denken, want het was altijd al mijn droom om een eigen bloemenzaak te hebben”, vertelt Aniek. “Deze kans krijg ik nooit meer, en al helemaal niet op zo’n mooi centraal punt in het centrum van Schaijk, het dorp waar ik geboren en getogen ben en heel veel mensen ken.”

Vertrouwde gezichten

Met haar ruime ervaring weet Aniek precies hoe alles reilt en zeilt in de winkel. Ze heeft het oude team overgenomen, waardoor klanten vertrouwde gezichten blijven zien. “Allemaal mensen met groene vingers en passie voor bloemen. We zijn dus een ingespeeld team en weten wat we aan elkaar hebben”, legt ze uit.

Jan van der Linden

Aniek gaat dit avontuur niet alleen aan; haar broer Jan van der Linden ondersteunt haar op de achter-

grond. Jan is kinderarts in ziekenhuis Bernhoven in Uden en helpt zijn zus vooral op administratief en boekhoudkundig vlak. “Ik doe het vooral om mijn zus te helpen, een eigen bloemenzaak is haar grote droom. En het is heel leuk om samen te sparren over allerlei zaken”, zegt Jan. “Ook is het mooi dat we de naam Van der Linden gebruiken voor de bloemisterij, omdat we uit een echte Schaijkse familie komen.”

De rest van de familie deelt het enthousiasme. Broer Gijs helpt af en toe een handje mee en ook Anieks man Martijn en hun kinderen Liza en Guus staan vierkant achter het project. “Het is geweldig om te zien hoe iedereen betrokken is en ons steunt”, zegt Aniek.

Passie voor bloemen

Anieks passie voor het bloemenvak begon al op jonge leeftijd. Na de basisschool ging ze naar de Groenschool in Den Bosch, gevolgd door een bloemenopleiding bij Helicon (tegenwoordig Yuverta, red.) in Nijmegen. Ze deed ervaring op bij verschillende bloemenzaken en werkte bijna tien jaar bij DFM in Schaijk. Nu gaat haar droom van

Lenteperikelen

Enkele weken geleden was het opeens lente in Nederland en dat is ook voor mij als eenzame wandelaar een leuke bijkomstigheid. Tenslotte is er geen stok achter de deur meer die mij enthousiasmeert om de paden op te gaan. Maar op deze dag piepte het zonnetje al vroeg door de vouwen van ons slaapkamergordijn als wilde de zon zeggen: “Kom op Jan, ik ben er al”.

De auto werd geparkeerd bij het Inkakamp en om de lezer enig idee te geven waar we waren, we liepen richting ‘Rooster Weversweg’. Dus de ingang van het natuurpark ‘De Maashorst’ en daar ligt een rooster in de weg om de koeien binnen te houden. Op dat punt gaan wij dan rechts langs die poort en vervolgen de weg langs ‘den draod’, dus langs de afrastering. Als je die route loopt heb je grote kans om dieren te zien. Je kunt daar heel ver de weides op kijken, er is altijd wel een Tauros of een paar Exmoorpony’s. Enkele jaren geleden werd daar vlak voor onze neus een veulen geboren en zoiets zijn de pareltjes van wat je te zien krijgt, temeer als je het ook nog kunt fotograferen.

een eigen bloemisterij in vervulling.

‘Kwaliteit en maatwerk’ Kwaliteit staat centraal bij Bloemisterij Van der Linden. De zaak biedt verse en persoonlijke bloemboeketten voor diverse gelegenheden en in verschillende prijsklassen. Bruids- en rouwboeketten worden op aanvraag gemaakt, waarbij telefonisch of per e-mail contact kan worden opgenomen om de wensen te bespreken. “We willen de kwaliteit van de bloemen hoog houden en maatwerk leveren”, benadrukt Jan.

‘Veel leuke reacties’

Op de eerste dag, dinsdag 18 maart, was het direct een drukte van belang in de winkel. Aniek vertelt: “We hebben al heel veel leuke en positieve reacties gehad van mensen, onder meer over de mooie bloemen en dat de winkel zo overzichtelijk is. En we hebben al veel bekende gezichten gezien.”

Openingstijden en contact Bloemisterij Van der Linden, gevestigd aan het Kapelanieplein 4 in Schaijk, is geopend van dinsdag tot en met zaterdag. Op dinsdag tot en met vrijdag van 9 tot 17.30 uur en op zaterdag van 9 tot 16 uur. Op maandag is de winkel gesloten. Voor bestellingen en meer informatie kun je terecht op de website www.bloemisterijvanderlinden.nl. Of neem contact op via info@bloemisterijvanderlinden.nl of 0644088111.

De lente was ook gearriveerd in ‘ons bosse’, de vogels floten in diverse talen. We zagen de buizerd volop in actie op de vlakte en… er was een kalfje geboren bij de familie Tauros. Verderop zagen we de Exmoorpony’s behoorlijk ruig met elkaar stoeien, kortom: genieten. Opeens werd de aandacht getrokken door het geluid van ijzer op ijzer en dat klinkt dan weer als een kerkklok. De veroorzakers waren twee ‘golden girls’ die met hun Nordick Walking-sticks for seniors (lichtbuis met een strikje) op de afrastering stonden te meppen. Toen ik riep dat ze dat niet moesten doen, riepen zij: “Ja maar ze maken mekaar kapot!”

Maar even uitleggen. Ook bij de jongens van de familie Exmoor was het lente en daardoor werd hun voortplantingsdrift geactiveerd. De meisjes moesten nog even wachten, want de heren moesten eerst laten zien hoe sterk ze zijn. Dus werd er heel ruig gestoeid. Een van die deugnieten kreeg het zelfs voor mekaar om zijn vriend/broer op zijn rug te krijgen. Een andere pony dook met zijn hoofd onder de borst van de rivaal waardoor die zijn evenwicht verloor. Daarna wachtte hij dan tot het slachtoffer weer overeind was en begon het spektakel weer opnieuw en ook de ene die slachtoffer was, bleek sterker dan wij dachten, want ook hij kreeg een ander paardje plat. Bij zoiets moet je stil zijn en vooral ook achter de draad blijven en het getimmer van de gouwe meisjes werkte als ophitsend voor de dieren. Als ik zoiets van zo dichtbij mag zien dan bevries ik, want zelfs je telefoon uit je zak halen wordt door die dieren opgemerkt en dan raken ze afgeleid. Na afloop van de voorstelling kwamen twee pony’s naar de draad en ik vind het dan zo moeilijk om ze niet over hun hoofd te aaien. Ze kijken je met die mooie oogjes aan en tenslotte heb ik als hondenman altijd koekjes bij me. Maar ik doe het niet, echt niet. Niks aaien en niks voeren, anders gaan ze straks aan het hek staan zeuren en wij moeten als bezoekers begrijpen dat we er meestal NIET zijn voor deze dieren. Ze zijn niet zielig en vermaken zich zonder ons heel prima. Ze hebben op de Maashorst voldoende te eten en als het niet zo is dan zorgen de verzorgers wel voor hooi of zo. De dames liepen richting het rooster en opeens zagen ook zij de twee taurossen die elkaar besprongen. Twee meisjes uiteraard, want Hercules de stier doet straks het echte werk! De dames met hun sticks hielden zich in en bovendien hadden ze hun wonderstok nodig om overeind te blijven.

Op de terugweg liepen we door natuurplek Nabbegat. Toen we daar de zandweg achter Has van Beusekom wilden oversteken, werd onze aandacht getrokken door een vogel die heel laag cirkeltjes boven het gras vloog. We wisten het zeker omdat we het geluid herkenden, dit moest een kieviet zijn. We besloten om voorzichtig door te lopen, want die kieviet bewaakt een ei en die kun je maar beter met rust laten.

’s Avonds zat bij het journaal dit bericht: “Geurt Elemans uit Ravenstein vindt eerste kievitsei’... potverdulleme!

Jan van As

Shoppen in Zeeland!

Toneelvereniging Excelsior presenteert kindervoorstelling ‘Kamperen kun je leren’

ZEELAND -  Toneelvereniging Excelsior uit Zeeland presenteert op zondag 6 april de kindervoorstelling ‘Kamperen kun je leren’ in zaal De Heische Tip. Deze vrolijke voorstelling is speciaal gericht op basisschoolkinderen, maar ook ouders,

grootouders en andere belangstellenden zijn van harte welkom.

Er zijn twee voorstellingen gepland: om 11 uur en om 14 uur. De entree bedraagt 5 euro en kaartjes zijn verkrijgbaar aan de zaal vanaf 30

minuten voor aanvang. De voorstelling duurt ongeveer 50 minuten.

Foto: v.l.n.r.: Ellen Laurenssen, Wendy Bens, Carin Kuijpers, Nelly van den Elzen, Janne Blom en Annelies Vollenberg.

Filmavond brengt Zeeland van 1986 tot leven

ZEELAND – Op vrijdag 28 maart houdt Filmgroep Objectief een bijzondere filmavond in het Dorpshuis van Zeeland, waarbij het dorpsjournaal van 1986 centraal staat. Deze unieke gelegenheid

biedt inwoners de kans om herinneringen op te halen en een nostalgische blik te werpen op het dorpsleven van bijna vier decennia geleden.

Het dorpsjournaal van 1986 is een van de laatste producties die met smalfilm werd opgenomen, voordat de overstap naar videoapparatuur werd gemaakt. Destijds zag ook het logo van Objectief er anders uit, wat bijdraagt aan het nostalgische karakter van de vertoning. De film bevat een reeks onderwerpen die het rijke verenigingsleven en de gemeenschapszin van Zeeland in die tijd weerspiegelen. In deel 1 van het journaal komen evenementen zoals het Pony Concours, damesvoetbal, de Gildedag en touwtrekwedstrijden aan bod.

Daarnaast wordt stilgestaan bij het 25-jarig priesterschap van pastoor Jans, het klunen en activiteiten van tennisvereniging Set ‘77. Deel 2 richt zich op de drumband, de hofkapel en het bejaardenhuis PMC met de ‘Fiets mee 1986’ actie. Ook wordt aandacht besteed aan de onderscheiding van Jan Huvenaars en de verbetering van de Middenpeelweg.

Naast het dorpsjournaal presenteert Objectief een segment getiteld “oude dia’s in een nieuw jasje”. Hierin wordt het vredesspel (foto) ‘Zie de mens’ uit 1988, vastgelegd

door Ria Boley, getoond. Verder zijn er beelden van een kunstveiling ten behoeve van Amnesty International, het gouden huwelijksjubileum van het echtpaar Verstraten-Broeren (Puttelaar) en reclamedia’s van de Kerkstraat Noord uit vervlogen tijden.

De filmavond vindt plaats in het Dorpshuis van Zeeland en begint om 20 uur. De zaal is geopend vanaf 19.30 uur. Rond 21 uur is er een korte pauze voorzien. Deze avond belooft een reis door de tijd te worden, waarbij de rijke historie en het gemeenschapsleven van Zeeland in de jaren ‘80 opnieuw tot leven komen.

Als in een warm bad…

#WINKELNINGRAVE – Lingerie Dessous in Grave heeft haar nieuwste collectie badmode binnengekregen. Eigenaresse Kelly (foto) presenteert een selectie van hoogwaardige merken die zowel stijl als comfort bieden. Klanten vinden bij haar badmode in de maten 36 tot en met 50. (foto’s: StadjeaandeMaas.nl)

Merken als Bomain, Chantelle en Cyell staan bekend om hun uitstekende pasvorm en de hoogwaardige kwaliteit van de stoffen. Voor dames die de voorkeur geven aan een beugel in hun badpak of bikini, is het merk Chantelle een aanrader. Het merk Cyell biedt stijlvolle ontwerpen met stevige cups, speciaal voor de grotere maten. Klanten worden van harte uitgenodigd binnen te lopen, de collectie te bekijken en aan

te passen.

Naast badmode biedt Lingerie Dessous tevens een assortiment kwalitatieve heren- en damessokken van het merk Falke. Deze sokken staan bekend om hun duurzaamheid en comfort, wat ze tot een uitstekende keuze maakt voor dagelijks gebruik.

Kelly heeft daarnaast een speciale selectie wandel- en sportsokken van Falke aan de collectie toegevoegd, ideaal voor klanten die op zoek zijn

naar extra ondersteuning tijdens hun sportieve activiteiten. De pas vernieuwde winkel is tevens het adres voor de mooiste nachtmode voor zowel dames als heren. En tot slot kun je er terecht voor kwaliteits-herenondergoed. Hiermee speelt Lingerie Dessous in op de behoefte aan comfortabele en stijlvolle nachtkleding en ondermode voor iedereen.

Lingerie Dessous is gevestigd aan de Hoofschestraat 15z in Grave. Voor vragen of meer informatie kunnen klanten contact opnemen via 0486472428 of kelly_ouwens@hotmail. com.

Lokaal aandacht voor

‘De Nieuwe Winkelstraat’ De Graafse binnenstad blijft telkens verrassen door het gevarieerde waren- en dienstenaanbod. Het centrummanagement richt zich daarbij met name op het landelijk bekende begrip ‘De Nieuwe Winkelstraat’. Al jaren geleden werd in Grave het idee omarmd om de binnenstad niet alleen te zien als

Openingstijden

Maandag t/m zaterdag van 08.00 tot 21.00 uur en zondag van 09.00 tot 19.00 uur

winkelgebied, maar veel meer als een verzamelplaats waar ontmoeten, beleven, recreëren en werken aan gezondheid hand in hand gaan met het doen van dagelijkse boodschappen. Het leek er even op dat binnenstadgebieden in omvang af zouden nemen toen het aantal winkels enigszins afnam, maar naar nu blijkt wordt de vrijkomende ruimte vooral ingezet om het aanbod in diensten en horeca uit te breiden. Een van de opvallendste locaties die binnenkort als winkel annex bedrijfsruimte beschikbaar komt, is het statige pand (foto) waar Gustav Interiors gevestigd was. Binnen ondernemerskringen wordt al nagedacht over de invulling van deze

unieke ruimte aan de Rogstraat 17. Wat zou het leuk zijn als het winkelaanbod in de Rogstraat weer snel up-to-date is nu daar tal van leuke ontwikkelingen plaatsvinden. Een gevarieerde horeca draagt ook in sterke mate bij aan het waardevol verblijven en ontmoeten. Alle aandacht is erop gericht nieuwe ondernemers te interesseren voor drie zaken die nu niet benut worden: Het Poortwachtershuis, Het Grote Broertje en Het Herboren Aapje. Centrummanagement Grave wil startende ondernemers dan ook graag helpen bij het vinden van de juiste locatie. Zij nodigen geïnteresseerden uit om eens een kijkje te nemen op de ondernemerswebsite www.vastgoedgroepgrave.nl.

Jeroen Mol Uitvaartbegeleider bestaat 5 jaar

Een luisterend oor, gericht op ‘samen’

GRAVE – Vijf jaar is Jeroen Mol in Grave en naaste omgeving bezig met zijn Uitvaartonderneming: “Het is inderdaad een onderneming, maar ik houd niet zo van dat woord. Ik voel me en ben uitvaartverzorger. Alles wat ik daarbij doe, doe ik het liefst samen met familie of andere nabestaanden.”

“Samen is voor mij het kernwoord in mijn dankbaar beroep. Ik ga altijd voor een afscheid met een goed gevoel voor later. In perfecte harmonie, met een luisterend oor, goede raad en inleving in de plaats die de overledene in familie en omgeving innam. Het afscheid moet volgens mij persoonlijk zijn, volgens de wens van de familie. Een voorbeeld over de plaats waar de afscheidsdienst plaatsvindt. Dat kan in de kerk, het crematorium, maar ook in bijvoorbeeld in Catharinahof, of in De Brouwketel. Of in een zaal of op een plaats die de familie wil, of die de overledenen heeft aangewezen. Eigenlijk kun je zeggen dat alles mogelijk is, tenzij het bij wet is verboden. Een voorbeeld van een advies? Ik had een uitvaart van iemand met een Indische achtergrond. De koffie na afloop kwam ter spraken. Wat daarbij?. Ik opperde spekkoek. Dat was snel beslist en bleek ook een succes”.

“Ik ben geboren in Den Bosch, als zoon van Rinus + en Mien Mol-Wouters. Op mijn derde zijn we naar Grave gekomen. Hier groeide ik op deed er mijn scholen en begon er met mijn werkzame leven. Ik was jarenlang werkzaam in de voedingsindustrie: brood en vooral heerlijke vlaaien”. Die vlaaien werden wereldberoemd in Grave. Bij een verloting of bingo van verenigingen wist men zijn telefoonnummer uit het hoofd. Een gratis vlaai was een dankbare ondersteuning van de prijzenpot. Zijn sociaal gevoel was hier al ruimschoots aanwezig. “Ik was ook een vaste hulp bij de aankomst van Sinterklaas. Werd Piet, met hart en ziel”. Deze eigenschappen, sociaal en hard werken, waren goud waard voor zijn toenmalige werkgever. “En toen stapte ik over naar de uitvaartbranche. Voor velen een verrassing, maar zelf had ik er een heel goed gevoel bij. En weer gaf ik alles voor de laatste zorg die je mensen kunt geven”. Inmiddels zijn vijf jaren verstreken.

‘Samen maken we het verschil’ “In 2020, het begin van het coronatijdperk, heb ik de grote stap naar de zorg voor een passende uitvaart

gemaakt. Ik heb stage gelopen bij diverse uitvaartorganisaties en heb daar enorm veel geleerd. Maar omdat ik me zeer betrokken voelde, ging ik er ook zelf over nadenken. Wat zou er anders kunnen? Hoe zou ik het persoonlijker kunnen maken? Niet als ondernemer, maar als uitvaartbegeleider met ook eigen ideeën en vooral blijven openstaan voor de wensen van nabestaanden. En daar ook alle mogelijke moeite voor doen. Zoeken naar een persoonlijk en respectvol afscheid, in welke situatie een gezin of familie zich ook bevindt. Uiteraard is er een stappenplan. Na een overlijden moet familie eerst de huisarts bellen, die langskomt om het overlijden officieel vast te stellen. Daarna kan men mij bellen en dan begint ons overleg en bespreken we wat wensen zijn. De tijd tussen overlijden en uitvaart is kort en we moeten dan ook snel handelen. En vooral beslissingen nemen. Ik ben erbij om te kijken of alle zaken besproken worden en om adviezen te geven of suggesties te doen. Samen werken aan een goed afscheid. Ook op het oog kleine dingen kunnen belangrijk zijn en het verschil maken. De definitieve keuzes worden uiteindelijk door de familie/nabestaanden gemaakt en ik zorg voor een liefdevolle uitvoering daarvan. Soms werk ik daarbij samen met partners in de uitvaartzorg. We maken gebruik van elkaars expertise en kunnen elkaar aanvullen. Er is eigenlijk best veel samen met de familie te regelen. Van rouwkaarten , opbaring thuis of in mijn onlangs geopend Afscheidshuis, waarin ik het huiskamergevoel heb geprobeerd te creëren. Maar ook wensen ten aanzien van cremeren of begraven. Waar? En hoe? Daar gaat het om. Ook financiële consequenties kunnen worden besproken. Ik geef volledig openheid van zaken, zodat niemand na afloop voor verrassingen komt te staan”.

Toekomst

Jeroen: “Elke uitvaart komt bij me binnen. Ook al weet ik dat we alles samen tot in de kleinste details hebben besproken, wil ik graag dat de

Reek Bouwt spoort gemeente Maashorst aan tot snelle realisatie nieuwbouwwijk

REEK -  Het bestuur van Reek Bouwt dringt aan op versnelling van de plannen voor een nieuwe woonwijk aan de Mgr. Borretstraat in Reek. In een recente brief aan het college van B en W van de gemeente Maashorst benadrukt voorzitter Chris School het belang van voortvarendheid en daadkracht in dit proces.

Reek Bouwt constateert met tevredenheid dat de gemeente Maashorst, zowel op ambtelijk als bestuurlijk niveau, aandacht heeft voor de gewenste woningbouw in Reek. De medewerking aan de uitwerking van het CPO-plan voor de locatie Scheenen 7 wordt gewaardeerd en gezien als een compliment. Daarnaast is er tevredenheid over de ondersteuning van het idee om het bouwplan zowel op het gebied van betaalbare woningbouw als duurzaamheid als voorbeeldproject voor de regio te positioneren.

familie/nabestaanden er een goed gevoel voor later aan overhouden. Na elke uitvaart bel ik even met mijn vrouw over hoe het gegaan is. En dan weer snel naar de familie. Ik blijf tijdens de uitvaart graag op de achtergrond. Maar tijdens de dagen vóór de uitvaart, ben ik er voor de familie. Ook is er natuurlijk nog de nazorg. Die bestaat bijvoorbeeld uit het ophalen van de as, een eventuele grafsteen, asbestemming, afwikkeling verzekering wat ik doe om de mensen hiermee niet lastig te vallen in hun periode van rouw”. Jeroen Mol zou er nog uren over kunnen praten. Het wordt steeds drukker. Hij heeft succes met zijn werkwijze. Maar hij doet niet meer dan hij aankan: “Ik neem een bepaald aantal uitvaarten aan. Als ik denk of voel dat een nieuwe aanvraag net iets teveel wordt, geef ik hem door naar een collega. Ik wil er voor 100% zijn voor de mensen die ik op dat moment aan het begeleiden ben”.

Freddy Klooté

De provincie heeft een subsidie toegekend, specifiek bedoeld om duurzaamheidsaspecten te verankeren in het project. Een voorwaarde hierbij is dat het plan regelmatig de publiciteit zoekt. In de brief wordt vermeld dat de gemeente Maashorst momenteel onderhandelt over de mogelijke aankoop van gronden aan de Mgr. Borretstraat voor de realisatie van een nieuwe woonwijk van circa 60 woningen. Eerder is afgesproken dat er eind 2024 duidelijkheid zou zijn over dit uitbreidingsplan. Reek Bouwt begrijpt dat de uitwerking tijd kost, maar dringt erop aan nu echt door te pakken. Er is immers afgesproken dat er in het eerste kwartaal van 2025 duidelijkheid zou zijn over de nieuwbouwwijk.

Chris School benadrukt: “Voor de leefbaarheid van onze kern Reek is de uitwerking van de woningbouwplannen van levensbelang.” Hij voegt daaraan toe: “We willen met klem wijzen op de noodzaak om nu echt door te pakken en vaart achter de zaak te zetten.”

Reek Bouwt verneemt graag zo snel mogelijk, maar uiterlijk in het eerstvolgende bestuurlijke overleg tussen wethouder Van Lankvelt en vertegenwoordigers van DOP, de laatste stand van zaken en wenst inzicht in de verdere planning.

Tevredenheid is er over de uitkomst van een ambtelijk overleg waarbij ook vertegenwoordigers van woningcorporatie Mooiland aanwezig waren. Er is overeenstemming bereikt om minstens 30% van de sociale huurwoningen in het nieuwbouwplan uit te voeren als grondgebonden woningen. Als referentieproject zijn hiervoor de woningen aan de westzijde van de Wethouder Zegersstraat ingebracht.

Het plan voorziet in verschillende woningtypen: rug-aan-rug-woningen, rijtjeshuizen, tweekappers en patio’s voor senioren. Wat er uiteindelijk wordt gebouwd, hangt af van de concrete belangstelling vanuit Reek en van mensen die willen terugkeren naar het dorp.

Meld je aan!

Van 18 maart t/m 31 maart

Stap

in een wereld vol verhalen op Het Hooghuis

Scan de QR-code voor meer informatie of kijk op onze site hethooghuis.nl

Liselot van Brakel

Prettig

leven zoals u gewend bent

Sfeer proeven bij Het Gouden Hart Residentie Mariëndaal

Heeft u of iemand in uw omgeving behoefte aan zorg op maat? Onze residentie biedt een fijn en veilig thuis voor ouderen met een (lichte) zorgvraag, zoals somatisch of geheugenproblematiek. Kom naar het koffie inloopmoment om sfeer te proeven en te ervaren wat onze woonzorglocatie te bieden heeft:

Appartementen voor senioren die zelfstandig met of zonder zorg willen wonen variërend tussen 33m² en 77m², allemaal met eigen badkamer.

Diverse luxe woonmogelijkheden, ook voor echtparen.

Tal van voorzieningen en activiteiten waarbij vrienden & familie altijd welkom zijn om aan te schuiven.

Kom naar ons koffie inloopmoment!

Sfeer proeven? Loop op elke eerste woendag van de maand vrijblijvend binnen tussen 10.00 en 12.00 uur. Er is dan volop gelegenheid om de locatie te bekijken, het zorgteam te ontmoeten én al uw vragen te stellen. Of u nu interesse heeft in wonen, werken of een andere reden heeft om ons te bezoeken, u bent van harte welkom voor een kop koffie of thee en een praatje.

Wilt u meer weten of liever een afspraak maken?

Scan dan de QR code of ga naar hetgoudenhart.nl

Interesse om te werken op één van onze woonlocaties? Ook dan bent u welkom tijdens het inkoopmoment.

www.schrijen.com

Boxmeer,

Scan voor informatie vrijblijvend

APRIL

‘Expositie’ – “Koesteren”

Mijmeren bij oude foto’s van ‘ons’ durp. Bij het ontstaan van herinneringen en het koesteren van deze prachtige regio en Boxmèrse dorpsverhalen. Een tentoonstelling voor jong en oud, met veel liefde samengesteld.

Locatie: Schrijen, Hollesteeg 1a Boxmeer | v.a. 11.00 u.

Informatie: www.schrijen.com/agenda-2025

Scan de QR en bekijk deze en alle evenementen van 2025

Bezoek de agenda op onze website

We organiseren momenten van ‘samenzijn’ waarin herinnering, tijd en verbinding met en voor elkaar centraal staan.

Daar waar natuur, recreatie en herinnering samenkomen.

Dat wat mensen verbindt.

Boxmèr

KERKBERICHTEN

H. Antonius Abt Schaijk-Reek  SCHAIJK: 23 maart: Eucharistieviering 9.30.

Misintenties: Jo en Marietje Derks-Jordens, Overleden familie Zwaans, Mientje Lammers-van Lier. 30 maart: Eucharistieviering 9.30. Misintenties: Mari van Schaijk, Henriëtte Spijkers-van de Burgt.

REEK: 22 en 29 maart: Geen Eucharistieviering.

MEDEDELINGEN: Vanwege de winterperiode zijn de ochtendvieringen tot 31 maart in de Pastorie om 9 uur. We zijn op zoek naar mensen die D’n Doper willen rondbrengen. Heb je interesse om dit 4x per jaar een paar straten te doen? Meld je dan bij de secretariaten.

St. Sebastianuskerk Herpen 29 maart: Om 19 uur m.m.v. het

Gemengd Koor voor: Ben (verj.) en Riek van der Veer-Berkers en Margreet de dochter.

Ravenstein-Huisseling-DemenDeursen-Neerlangel

HUISSELING: 30 maart: H. Eucharistieviering 11 uur.

Neerloon, St. Victor Overlangel, St. Ant. Abt

NEERLOON: 22 maart 19 uur: 3e zondag veertigdagentijd.

Eucharistieviering. Misintenties: Cor van Haren, Mar-Jeanne Poelmans, Jan Wadners, Jozef Arts en Willie Arts.

H. Jacobus de Meerdere Zeeland 30 maart 9 uur: H. Mis.

Misintenties: Jaargetijde Dien van den Elzen-Jansen, Lamber, Martien, Jan en ouders van den Elzen en familie Siroen en vrienden.

Misintenties 2 weken van te voren inleveren. Misintenties die voor maandagavond 18 uur ingeleverd zijn komen in de Arena. Brievenbus Jacobuszaal (Parochie). De bijdrage voor misintenties is 13 euro m.i.v. 1 januari 2025. Hierbij zijn extra namen inbegrepen. Nicola van Zeeland-Dekkers, 0486-451692.

Infoavond parochie H. Johannes de Doper

SCHAIJK -  Parochie H. Johannes de Doper houdt 3 april om 19.30 uur een bijeenkomst voor parochianen uit Neerloon, Overlangel, Keent, Ravenstein, Huisseling, Deursen-Dennenburg, Demen, Dieden, Neerlangel, Herpen, Koolwijk, Schaijk en Reek. De bijeenkomst in De Phoenix in Schaijk staat in het teken van vooruit kijken.

stil. Er wordt hard gewerkt op allerlei fronten, en we kijken daarbij nadrukkelijk naar de toekomst van onze parochie. Wat voor een parochie willen we zijn en hoe gaan we daar samen met de parochianen inhoud aan geven. Deze avond willen we daarvoor benutten. Natuurlijk wisselen we informatie uit, maar we gaan ook met elkaar aan de slag.

Pastoor Jacques Grubben (foto) over dit initiatief: “We zitten als parochiebestuur en pastoraal team niet

Deze avond is weer een stap in de dialoog en leidt naar verwachting ook tot hernieuwde energie.”

Cursus Uitdagingen van het samengesteld gezin

OSS - Nieuw liefdesgeluk vinden na een scheiding of verlies is prachtig, maar in een samengesteld gezin brengt dat uitdagingen met zich mee. Hoe ga je om met de kinderen van je partner? Hoe zorg je ervoor dat je gezin een eenheid wordt? Volksuniversiteit Oss houdt de cursus ‘Uitdagingen van het samengesteld gezin’, waarin deelnemers praktische

inzichten en handvatten krijgen om hun samengesteld gezin te laten slagen. De cursus, gegeven door Anna Rensen, pedagoog, scheidingscoach en ervaringsdeskundige, vindt plaats op 2, 16 april, 7, 21 mei en 4 juni van 19.30 tot 21.45 uur in de voormalige John F. Kennedyschool, Vlasakkers 1 in Oss. Kosten 135 euro. Inschrijven: Volksuniversiteitoss.nl.

Een ‘brave burger’

Tijdens een rondleiding, die ik voor externe bezoekers in de gevangenis verzorgde, werd mijn aandacht getrokken door enkele mannen die in de recreatiezaal bezig waren met opruimen. De recreatiezaal is een ruimte op de leefafdeling waar gedetineerde mannen bijvoorbeeld een soepje kunnen opwarmen, een spelletje kunnen spelen, een potje kunnen biljarten of kunnen kaarten met elkaar. Het gebruik maken van de recreatieruimte mag alleen op een vastgesteld uur binnen het vaste en repeterende dagprogramma. De rest van de dag is deze ruimte niet toegankelijk voor de mannen. Ze verblijven dan op hun eigen cel of zijn aan het werk op de arbeid. Omdat er veel gebruik wordt gemaakt van dat uurtje, is het altijd een gezellige drukte in de recreatieruimte.

Er stond een man naar ons te kijken. Ik liep naar hem toe om te vragen hoe het met hem ging en wat hij had gekookt. Hij begon meteen uitgebreid te vertellen. Hij vertelde, zonder te weten dat ik de directeur was, dat de directeur echt niet snapte dat de winkellijst uitgebreid zou moeten worden. Het allerliefste met vers vlees en groenten zodat hij eens iets anders zou kunnen koken. De winkellijst is een lijst waar gedetineerden een keer per week boodschappen, zoals shag, postzegels en kruidenierswaren kunnen bestellen. Wel op eigen kosten uiteraard. Bovendien begreep de directeur volgens hem niet dat het heel erg was dat hij niet overgeplaatst kon worden naar de gevangenis van zijn keuze. Hij was bovendien van mening dat het belachelijk was dat hij met een andere gedetineerde op een cel moet zitten en dan ook nog niet eens zelf kan kiezen met wie hij op die cel moet zitten. Hij beklaagde zich tegen mij dat dit iedere dag ten koste gaat van zijn privacy. Volgens hem verzwaarde dit onnodig zijn straf. Kortom; de man was van mening dat de directie van Grave en die hierboven totaal geen rekening met hem hielden.

Op mijn vraag wie die hierboven dan zijn, gaf hij te kennen dat hij sprak over onze politieke leiders in Den Haag die volgens hem het beleid bedachten. Hij gaf aan dat dat de brave burgers niets meer te zeggen hebben. Een voorbeeld hiervan was dan volgens hem ook dat hij niet overgeplaatst kon worden omdat alles was wegbezuinigd. Hij gaf aan dat hij, sinds hij in de gevangenis in Grave zat, helemaal niets meer te zeggen had.

Toen ik hem vroeg of hij zichzelf, ondanks dat hij al geruime tijd in de gevangenis zat, ook zag als brave burger begon hij hard te lachen.

Hij zei met een knipoog: “Jazeker! Dat ben ik de meeste tijd…, maar soms ook niet!”

Carla Wijnhoven, vestigingsdirecteur PI Grave

Wanneer een dierbare

Wanneer een dierbare

komt te overlijden, staat de wereld even stil. Ik zorg ervoor dat u er niet alleen voor staat en ben uw steun en toeverlaat in de voorbereiding, tijdens en na de uitvaart.

komt te overlijden, staat de wereld even stil. Ik zorg ervoor dat u er niet alleen voor staat en ben uw steun en toeverlaat in de voorbereiding, tijdens en na de uitvaart.

Wencke Niks-Leussink

Wencke Niks-Leussink

‘In een wereld die steeds verder polariseert, is openbaar onderwijs belangrijker dan ooit’

REGIO – 17 tot en met 21 maart staat in het teken van de Week van de Openbare Scholen. Bedoeld om de kwaliteiten van het openbaar onderwijs, ‘daar waar verhalen samenkomen’, méér onder de aandacht te brengen. En dat is nodig, vinden ook Hanneke Bens, Marieke Jansen – Kellendonk en José Martens van Invitare Openbaar Onderwijs. “Lang niet iedereen weet wat openbaar onderwijs écht inhoudt. Terwijl het belang ervan, in een wereld waar verschillen steeds vaker leiden tot verdeeldheid, alleen maar groter wordt.”

Het verschil tussen openbare en bijzondere scholen vervaagt. “Het lijkt allemaal gewoon meer op elkaar dan vroeger”, vindt Marieke. “Of moet ik zeggen, alle scholen zijn op openbare scholen gaan lijken?”

Toch is er nog altijd een wezenlijk onderscheid. José: “Dat zit ‘m vooral in de manier waarop we naar kinderen kijken, vanuit ons DNA. Een voorbeeld: burgerschapsonderwijs is inmiddels verplicht voor elke school in Nederland. Maar op een openbare school is dit al zó vanzelfsprekend, dat daar geen methode of lespakket voor nodig is. We weten niet beter dan dat we kinderen leren verantwoordelijk te zijn voor zichzelf én de ander. En dat iedereen meedoet, ongeacht geloof, cultuur of achtergrond. Prachtig, toch?”

Mini-maatschappijtjes

Ze vervolgt: “Juist nu de maatschappij zo verhardt en polariseert, is openbaar onderwijs belangrijker dan ooit. Op onze scholen komen kinderen uit alle hoeken van de samenleving samen. En ieders verhaal doet ertoe. Kinderen ontdekken hier wie ze zijn, waar ze voor staan en dat hun stem ertoe doet. Maar ze leren ook: je bent niet alleen op de wereld, die ander hoort er net zo goed bij.”

Hanneke: “Eigenlijk zijn onze scholen minimaatschappijtjes op zich. Kinderen leren hier het leven, met elkaar. En dan niet als voorbereiding op het ‘echte’ leven, want school ís het leven. Dat betekent ook dat er wel eens conflict is, bijvoorbeeld omdat je het niet met elkaar eens bent. Helemaal niet erg, want als je in dialoog blijft brengt je dat vaak juist dichter bij elkaar. Als je dan door de school loopt en ziet dat dit ook écht werkt, dan ben je hartstikke trots.”

“Onbekend maakt onbemind”, vult Marieke aan. “Daarom is het zo belangrijk om uit je bubbel te stappen.

En elkaar te ontmoeten. Ik durf echt te stellen dat dat begínt bij het openbaar onderwijs.”

Ook typisch openbaar onderwijs: kijken naar het kind en álles wat bij het kind hoort. Marieke: “Wat je in de klas van het kind ziet, is maar een deel van het verhaal. Je wil ook verbinding maken met wat er ‘aan de binnenkant’ gebeurt. En met wat er verder allemaal nog speelt in hun leventje. Daarom betrekken we ook ouders heel nauw bij alles wat we doen.”

Hanneke: “Alles wat kinderen meemaken, nemen ze mee de school in. Als er buiten school iets gebeurt, zoals een ruzie op een kinderfeestje, dan kunnen we niet zeggen: dit is niet van ons. Want als het impact heeft op het kind, dan moeten we er iets mee.”

Het levert een vaak hechte band op tussen de school en thuis. Marieke: “Ouders voelen zich niet alleen betrokken, maar ook verantwoordelijk voor de school en de gemeenschap die we samen creëren.” Zoals na de kerstviering vorig jaar, toen ouders spontaan besloten de hele school mee op te ruimen. “Toen ik van een ouder een bezem wilde overnemen, en zei dat dit echt niet hoefde, zei ze: ‘Marieke, dit is ook mijn school, hè.’ Dat vond ik zó tof.”

Toch is openbaar onderwijs niet altijd een vanzelfsprekende keuze. Marieke: “Ouders hebben er soms een wat zweverig beeld bij. Samen kumbaya zingen in de kring, dat idee. Of ze associëren openbaar onderwijs met de vrije school, terwijl dat toch echt een ander onderwijsconcept is.”

Hanneke: “We maken juist heel duidelijke afspraken over wat we van elkaar verwachten en hoe we met elkaar omgaan. En we begrenzen. Stevig ook, als dat nodig is. Respectloos gedrag bijvoorbeeld, daar zijn we uitgesproken tégen. Inclusie betekent niet dat alles maar moet

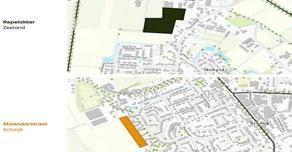
Maashorst: honderden vluchtelingen in Molenaarstraat Schaijk en Repelakker Zeeland

MAASHORST - De gemeente Maashorst wil op drie locaties, waaronder in de Molenaarstraat in Schaijk en op de Repelakker in Zeeland, honderden vluchtelingen gaan opvangen. Dat maakte het college van B en W donderdagmiddag bekend.

De gemeente wil de opvang van vluchtelingen combineren met oplossingen/woonvormen voor (autochtone) woningzoekenden. “Op die manier kunnen de nieuwe locaties bijdragen aan de woningbehoefte, vooral onder starters op de woningmarkt”, aldus het college. Met haar plannen zegt het college “tegemoet te komen aan de wensen van inwoners om verschillende doelgroepen te combineren.”

Informatiebijeenkomst op 9 april

kunnen. Het betekent juist dat we een veilige omgeving creëren, door duidelijke grenzen te stellen.”

Differentiëren

Een ander vooroordeel: dat het openbaar onderwijs de opvangplek is voor de ‘moeilijke’ kinderen, voor de lastpakken. José: “Het klopt dat als kinderen op een andere school vastlopen, ze hier vaak wél een plek vinden. Wij geven een kind nu eenmaal niet op, dat is geen optie. Ook geloven we niet in lastige kinderen. Gedrag heeft altijd een oorzaak. Daar gaan we naar op zoek want dan kun je er wat mee. Je ziet kinderen hier vaak dan ook helemaal opbloeien.”

Hanneke: “Onze mensen zijn experts in differentiëren. De focus ligt altijd op de persoonlijke groei van ieder kind. Of het nu gaat om extra zorg, sociale ondersteuning of juist het uitdagen van een kind dat meer wil en kan. Elk kind krijgt hier de kans om zich voluit te ontwikkelen, op het eigen niveau.”

Marieke: “In sollicitaties geef ik ook mee dat werken op een openbare school écht wel iets anders van je vraagt, als leerkracht. Je moet stevig in je schoenen staan en pedagogisch ijzersterk zijn. Hier werken stuk voor stuk vakmensen. En juist dát maakt ons onderwijs buitengewoon goed.” (Bron: Invitare)

Foto: Hanneke Bens (links) is schoolleider op Openbare Basisschool Hartenaas in Grave. Marieke Jansen-Kellendonk (rechts) is schoolleider op Openbare Basisschool De Bonckert in Boxmeer. Beide scholen maken deel uit van Invitare, een organisatie voor primair openbaar onderwijs met 9 scholen. Ook José Martens (midden) was lange tijd schoolleider bij Invitare. Inmiddels is zij verantwoordelijk voor de kwaliteitszorg binnen de stichting.  Meer info: www.invitare.nl.

Of er in Schaijk en Zeeland daadwerkelijk animo bestaat voor het ‘combineren van doelgroepen’ zal onder meer blijken tijdens de informatiebijeenkomst voor inwoners die staat gepland voor woensdag 9 april. Burgemeester Hans van der Pas: “Bij de verdere uitwerking worden de raad en inwoners betrokken. Omwonenden ontvangen een brief met uitnodiging, maar iedereen is welkom. Op donderdag 10 april organiseren we een informatieavond voor de gemeenteraad. Later volgen nog bijeenkomsten per locatie, ook wel omgevingsdialogen genoemd.” Tijdens de informatiebijeenkomst op 9 april wordt het voorstel voor de nieuwe woon- en opvanglocaties toegelicht. Ook kunnen deelnemers aan de bijeenkomst vragen stellen en eventuele zorgen delen. “De gemeente heeft wellicht nog niet op alle vragen antwoord, maar kan vragen en suggesties meenemen in de verdere uitwerking. Daarbij staat niet ter discussie of we wel of niet vluchtelingen moeten opvangen. Dat is een wettelijke verplichting en die verantwoordelijkheid nemen we in Maashorst serieus. Maar uiteraard is er alle ruimte om vragen te stellen, suggesties te doen en zorgen te uiten”, aldus de burgemeester. Aanmelden voor de informatiebijeenkomst kan via asielopvang@gemeentemaashorst.nl. Vermeld naam en adres van degenen die komen. De drie locaties die de gemeente wil gaan ontwikkelen zijn:

* Boekelsedijk in Uden (voor ongeveer 500 bewoners, waaronder in elk geval 300 asielzoekers)

* Repelakker in Zeeland (voor ongeveer 250 bewoners)

* Molenaarstraat in Schaijk (voor ongeveer 250 bewoners).

Op de 3 locaties wil de gemeente verschillende doelgroepen combineren. De locaties kwamen als meest geschikt naar voren in het onderzoek dat de gemeente de afgelopen maanden deed. “Daarbij is specifiek gezocht naar mogelijkheden om vluchtelingenopvang te combineren met huisvesting voor andere woningzoekenden, zoals jongeren en starters. De voorgestelde locaties voldoen aan de uitgangspunten die de gemeenteraad vaststelde voor de opvang van vluchtelingen en ze bieden voldoende ruimte om diverse typen woonruimte te combineren. Ook voldoet de gemeente met deze locaties aan de wensen die inwoners inbrachten via de dialoogsessies, online enquête en het draagvlakonderzoek in 2024. Velen vroegen de gemeente daarbij om verschillende doelgroepen bij elkaar te huisvesten, en de opvang zoveel mogelijk te verspreiden over de kernen, op korte afstand van voorzieningen en woningen.”

In totaal moet Maashorst zo’n 750 vluchtelingen opvangen. “Daar zijn we als gemeente aan gehouden door de spreidingswet en regionale afspraken. Op dit moment worden al zo’n 450 mensen opgevangen in de gemeente: 300 asielzoekers en 150 Oekraïners. Voor een groot aantal mensen moeten we dus nog ruimte vinden.”

Daar komt bij dat de huidige asielopvanglocatie in het Van der Valkhotel in Uden per 1 oktober 2026 eindigt. Dat is bij de start van de opvang zo afgesproken. Burgemeester Van der Pas: “Dé perfecte locatie voor het realiseren van vluchtelingenopvang en woonruimte bestaat niet. Daar zijn we ons van bewust. Toch moeten we een keuze maken om te voorkomen dat er volgend jaar vluchtelingen letterlijk op straat staan of dat er onnodig met mensen wordt ‘geschoven’.”

Het voorstel is om op de drie locaties gefaseerd tijdelijke woon- en opvangvoorzieningen te gaan ontwikkelen. Het voorstel wordt nu voorgelegd aan de gemeenteraad. Die bespreekt het in zijn vergaderingen van april en mei. Daarna wordt het voorstel verder uitgewerkt tot concrete ontwikkelplannen in samenwerking met onder andere het COA. Met woningcorporaties gaat de gemeente in gesprek over wat hun rol in deze ontwikkeling zou kunnen zijn. Ook volgen er nog meerdere momenten waarop de gemeente in gesprek gaat met omwonenden van de locaties, als onderdeel van de procedure aanvraag omgevingsvergunning. Meer info: www.gemeentemaashorst.nl/asielopvang.

nieuws van ons

Informatie 1 januari 2022 ons

landvancuijk.nl

Week 12 • vrijdag 21 maart 2025

Bezoekadres: Louis Jansenplein 1 • 5431 BV Cuijk • 0485 854 000 • landvancuijk.nl

Terugblik Bomenweek

Dodenherdenkingen 2024 in Land Van Cuijk

Van 8 tot en met 14 maart 2025 stond het Land van Cuijk in het teken van bomen, groen en een duurzame toekomst. De Bomenweek was een week vol activiteiten. Inwoners, scholen en groenprofessionals werkten samen aan een groener en duurzamer Land van Cuijk.

Een week vol groene acties en betrokkenheid

Het jaarthema 2024 van het Nationaal Comité 4 en 5 mei is “Vrijheid vertelt: opmaat naar 80 jaar vrijheid”. Hiermee vraagt het comité – in het jaar dat de lustrumviering van 80 Jaar Vrijheid in september van start gaat – aandacht voor de littekens die de Tweede Wereldoorlog achterliet en die nog steeds zichtbaar zijn. Vrijheid is onlosmakelijk verbonden met de vrijheid van de ander. Onder andere de oorlog in Oekraïne en de onrust in het Midden Oosten tonen hoe kwetsbaar vrijheid is. Het is daarom belangrijk stil te staan bij dit thema.

De week begon op 8 maart met het uitdelen van gratis bomen aan inwoners door IVN. Op 9 maart was het NK Maasheggenvlechten. Een bijzondere demonstratie van deze eeuwenoude techniek. Het was een unieke ervaring voor het college en onze inwoners. Zij konden zelf proberen een heg te vlechten.

Boominfodag

Koninklijke onderscheiding aanvragen?

Zaterdag 4 mei om 20.00 uur is het in de gemeente Land van Cuijk op veel plekken stil. Herdenkingscomités en dorpsraden geven rond dat tijdstip op een waardige manier inhoud aan de Nationale Dodenherdenking. Leden van het college van burgemeester en wethouders en raadsleden houden bij de verschillende monumenten in de gemeente toespraak en leggen een krans.

Op 13 maart was het tijd voor de Nederlandse Boominfodag. Een bijeenkomst met lezingen voor boomspecialisten, groenprofessionals en beleidsmakers. Hier werd kennis gedeeld over bomen en klimaatadaptatie. Ook werden er nieuwe inzichten gepresenteerd over de rol van bomen in een veranderend klimaat.

Met de Lintjesregen zijn ook dit jaar in Land van Cuijk weer veel mensen in het zonnetje gezet. In Nederland is een Koninklijke onderscheiding de hoogste blijk van waardering voor inzet voor de medemens en voor de samenleving. Kent u ook iemand die een lintje verdient? U kunt hem of haar voordragen. Op www.lintjes.nl vindt u veel informatie. Neem vooraf altijd eerst

een duurzamer Land van Cuijk. Maar we zijn nog niet klaar! We blijven ons inzetten voor vergroening en het creëren van een klimaatbestendig Land van Cuijk. Bedankt aan iedereen die heeft meegewerkt aan het succes van deze Bomenweek!

schoolplein. Ook hebben we inwoners gevraagd hun bijzondere bomen te delen.

Laatste boomfeestdag

Iedereen is van harte welkom op de verschillende herdenkingslocaties in Land van Cuijk. Kunt u niet deelnemen? Toon uw betrokkenheid dan door de Nederlandse vlag halfstok te hangen. Wilt u meer weten? De locaties en aanvangstijden van de herdenkingen vindt u hieronder. De verschillende programma’s vindt u op de website van de gemeente: www.gemeentelandvancuijk.nl/dodenherdenking-2024.

Daarnaast was er voor de kinderen een kleurwedstrijd. Hiervan hebben we veel mooie tekeningen ontvangen. De winnende school, de Nienekes uit Cuijk, zal binnenkort hun gewonnen boom feestelijk planten op het nieuwe

Kern Locatie

Op 10 maart was in Haps de laatste Boomfeestdag van het plantseizoen 2024 - 2025. Leerlingen van groep 4 van basisschool De Bongerd plantten enthousiast bomen en een bosplantsoen bij het Ommetje op bedrijventerrein

Laarakker. Dit was een leerzame ervaring waarin kinderen spelenderwijs meer leerden over de waarde van natuur.

Beugen Parochiekerk Maria ten Hemelopneming en Herdenkingssteen bij kerk.

Boxmeer Petrusbasiliek, Hotel Riche en Boxmeers Oorlogsmonument Rapenstraat

Aanvang programma

uur

Veilig en gelukkig met je geld middag

Cuijk Martinuskerk, Joods monument Maasveld, Barmhartige Samaritaan Stationsplein

Woensdag 27 maart, 14.30 uur -16.30 uur Bibliotheek Cuijk

Grave Historisch Stadhuis, Torenplein en Synagoge

Geld maakt niet gelukkig, zegt het spreekwoord maar zorgen over geldzaken kunnen zeker maken dat je je minder gelukkig voelt. Om je tips en tricks te geven die jou helpen je zekerder te voelen over je financiën en je de weg te wijzen naar de juiste organisaties die je hierbij kunnen ondersteunen, organiseert de bibliotheek in samenwerking met de gemeente Land

Landhorst Dorpshuis De Stek, Landhorst, standbeeld de Peelwerker

Maashees Monument voor omgekomen Dorpsgenoten op plein voor Antoniuskerk

van Cuijk en de Rabobank opnieuw een informatiemiddag over geldzaken. Met sprekers, muziek en zang, een leuke geldquiz en een informatiemarkt van organisaties die helpen bij geldzaken, belooft dit een gezellige en informatieve middag te worden.

Mill Myllesweerd, St. Willibrorduskerk, Herdenkingsmonument Acaciahof

Oeffelt Parochie Maria, Moeder van de Kerk, Oeffelt

uur

uur

uur

uur

Deelname aan deze middag is gratis, meld je wel vooraf even aan. Ga naar www.biblioplus.nl/agenda en zoek in de agenda naar 27 maart. Inloop vanaf 14.00 uur.

Overloon H. Theobalduskerk, 14 Oktoberplein, Bevrijdingsmonument 18.45 uur

Sambeek Monument Torenstraat 54 19.30 uur

VierlingsbeekGroeningen Koningskerkje, Oorlogsmonument 19.00 uur

Katwijk (12 mei)

H. Martinuskerk Katwijk en Monument voor Nederlandse Militairen 10.00 uur

Wegomleidingen en afsluitingen bij doorgaande wegen door de bebouwde kom, provinciale en rijkswegen, spoorwegovergangen of bruggen worden gepubliceerd op deze gemeentepagina.

Kijk voor overige actuele

wegwerkzaamheden op: www.gemeentelandvancuijk.nl/wegwerkzaamheden

De Grote Afsluiter: 90.000 Bomen De afsluiting van de Bomenweek was een symbolisch moment: het planten van de 90.000e boom. Wethouder Maas plantte samen met de winnaar van een speciale wedstrijd de boom op de Appelgaard in St Agatha. Deze boom markeert het behalen van een ambitieus doel: het planten van 90.000 bomen. Één boom voor elke inwoner van Land van Cuijk. Een indrukwekkende stap in onze gezamenlijke inzet voor een groenere, gezondere en klimaatbestendige toekomst.

contact op met de afdeling Kabinet van de burgemeester, telefonisch via 0485854000 of via een mail aan kabinet@landvancuijk.nl De medewerkers kunnen u helpen met het aanvraagproces. Aanvragen kunnen het hele jaar door worden ingediend, maar voor de lintjesregen 2025 moeten deze vóór 1 juni 2024 zijn ingediend bij de gemeente.

Kunstencentrum Land van Cuijk krijgt naam Louis

Het nieuwe kunstencentrum voor de gemeente Land van Cuijk krijgt de naam Louis. De naam is gekozen uit meer dan honderd inzendingen die de gemeente heeft ontvangen. Inwoners was gevraagd mee te denken over een naam voor het kunstencentrum dat het aanbod van kunst- en cultuurlessen samenbrengt.

en kleinkunstenaar Louis Davids als inspiratiebron voor iedereen die zelf muziek maakt of bijvoorbeeld in een musical wil spelen.

Meld je aan

Met de 90.000 bomen dragen we bij aan

De naam Louis verwijst in eerste instantie naar Louis Jansen, voormalig burgemeester van Cuijk. Dit jaar is het precies 70 jaar geleden dat hij het initiatief nam voor de oprichting van een streekschouwburg, de huidige Schouwburg Cuijk. Nu is er dus opnieuw een cultureel initiatief voor de streek, waarmee zijn inzet voor cultuur in het Land van Cuijk wordt voortgezet.

Korte termijn pacht landbouwgrond

De inzender van de winnende naam mag als dank een jaar lang gratis een cursus volgen bij Louis. Momenteel wordt hard gewerkt aan de inrichting van het kunstencentrum, dat na de zomer van start gaat met cursussen op het gebied van onder meer muziek, zang en musical. Doel is zoveel mogelijk kinderen en volwassenen de kans te geven om kunst en cultuur te beoefenen en ervaren.

De gemeente Land van Cuijk heeft recent het beleid “duurzame pachtgrond uitgifte”, bedoeld voor de pacht van gronden voor een korte periode, vastgesteld. Vaak gaat het om percelen landbouwgrond, die op termijn ook voor andere doeleinden kunnen worden ingezet (woningbouw, natuurontwikkeling, ruilgrond o.i.d.). Zolang er nog geen concrete plannen zijn, worden ze kortdurend verpacht. De looptijd van pacht voor de korte duur was tot op heden beperkt tot 1 jaar.

De naam Louis eert niet alleen de lokale historie van de gemeente op cultureel gebied, maar refereert ook aan de vele kunstenaars en artiesten met deze naam. Zo zijn er trompettist Louis Armstrong, de schrijver Louis Couperus

Onlangs is er een eerste inschrijfperiode geweest. Niet alle percelen zijn na deze inschrijvingsronde gegund. Daarnaast zijn er nog enkele andere percelen beschikbaar gekomen uit reguliere pacht. De beschikbare percelen worden via een openbare procedure verpacht.

Louis is nog op zoek naar gediplomeerde kunstvakdocenten en overige aanbieders van kunst- en cultuurcursussen. Heb je interesse om lessen te verzorgen voor het nieuwe kunstencentrum? Stuur dan een e-mail met je cv naar colette@kunstencentrum.nl. Je ontvangt dan zo snel mogelijk meer informatie.

Militaire oefening 6 t/m 13 mei 2024

De gemeente gaat met ingang van 2025 de beschikbare landbouwpercelen op een andere wijze geliberaliseerd

De oefening wordt gehouden in het kader van training voor militairen van de Koninklijke Landmacht. Praktisch gezien houdt dit in dat de militairen mogelijk met voertuigen en ook te voet opdrachten uitvoeren. Deze activiteiten zullen naar alle waarschijnlijkheid bij dag en nacht plaatsvinden.

Voor algemene klachten waarbij geen sprake is van schade, kunnen burgers/ omwonenden contact opnemen met de Sectie Communicatie van

in pacht uitgeven. De looptijd van de pachtovereenkomsten wordt thans in principe bepaald op 6 jaar. Echter bij de nu beschikbare percelen zijn er een aantal percelen bij waarvan nu op voorhand al duidelijk is dat deze maar voor één jaar verpacht kunnen worden in verband met concrete plannen voor deze gronden. Lees verder op onze website: www.gemeentelandvancuijk.nl/ pacht2024

13 Lichte Brigade. Dit kan via mail: communicatie.13LTBRIG@mindef.nl

Indien er door de oefening schade is ontstaan dan kunt u dit onder vermelding van de militaire eenheid zoals kenteken voertuig, datum en tijd, plaats, soort schade etc. melden aan:

Sectie Claims Ministerie van Defensie

Postbus 90004

3509 AA Utrecht

Telnr: 088-9562951

Email: JDVclaims@mindef.nl

• dinsdag 30 april 2024

hulp bij belastingaangifte

Vanaf 1 maart tot en met 30 april is het weer de periode om de aangifte inkomstenbelasting in te vullen. Dit is voor veel mensen een lastige klus. Want wat mag je nu wel of niet aftrekken, hoe zit het met de zorgkosten en zijn er misschien andere teruggaven waar je recht op hebt? Op deze speciale pagina belastingaangifte geven we tips en laten we zien waar je in het Land van Cuijk terecht kunt voor hulp bij je belastingaangifte. Want leuker kunnen we het niet maken, wel makkelijker!

Hulp bij belastingaangifte en toeslagen

Heb jij ondersteuning nodig bij je aangifte inkomstenbelasting over 2024 en/of voorgaande jaren? Of heb je vragen over toeslagen (zorgtoeslag, huurtoeslag, kinderopvangtoeslag, kindgebonden budget)? Dan kun je kosteloos terecht bij de Sociaal Raadslieden van Sociom. Maak een afspraak via srw@sociom.nl of neem contact op via 0485-700500. Er wordt dan zo snel mogelijk een afspraak met je gepland op een Sociom locatie bij jou in de buurt.

Om voor de ondersteuning van de Sociaal Raadslieden in aanmerking te komen, wordt gekeken naar inkomen en vermogen. Als je buiten de gestelde voorwaarden valt maar wel kosteloos ondersteuning nodig hebt bij het doen van je belastingaangifte, kun je telefonisch contact opnemen met de Belastingdienst voor het maken van een afspraak via 0800-0543 of mailen via afspraken.belastingdienst.nl

Algemene links

Consumentenbond

ANBO-PCOB tipgids

In de tipgids van ANBO-PCOB staat veel informatie die kan helpen bij het invullen van de belastingaangifte. Bijvoorbeeld welke zorgkosten aftrekbaar zijn en welke niet.

De tipgids is gratis aan te vragen via de website van de Algemene Nederlandse Bond voor Ouderen. Ga naar https:// Anbo-pcob.nl/thema/belasting of scan de QR code.

Op de website van de Consumentenbond wordt een stappenplan gegeven over hoe je de belastingaangifte het beste kunt aanpakken. Met tips om het maximale uit je aangifte inkomstenbelasting te halen. Ga naar www.consumentenbond.nl en zoek op zelf aangifte doen of scan de QR code.

Invullen en printen in de bibliotheek

Op alle Bibliotheeklocaties in Land van Cuijk staan computers met daarop het belastingprofiel. Je kunt hier gratis en veilig je belastingaangifte doen en ook gratis de aangifte uitprinten. De medewerkers van het Informatiepunt helpen je bij vragen of maken een afspraak voor hulp bij jouw belastingaangifte bij één van de betrouwbare partners. De computers en de ondersteuning zijn de hele belastingperiode beschikbaar, dus tot en met 30 april.

Belastingspreekuur

De Bibliotheek organiseert op alle vestigingen een belastingspreekuur. Overal komt een specialist langs die ter plekke helpt met het invullen van het belastingformulier. Het is wel belangrijk om tijdig een afspraak met de specialist te maken, zodat er op dat moment ook tijd voor je kan worden ingepland. De belastingspecialist is op verschillendelocaties tot en met 31 maart aanwezig. www.biblioplus.nl/levenlangleren/ belastingaangifte.html

GGD Hart voor Brabant

Samen maken we gezond gewoon

Na bezoek in 't groen: tekencontrole doen!

Met de lente in aantocht gaan we weer meer naar buiten: tuinieren, wandelen of buiten spelen en sporten. Hierdoor heb je weer meer kans op een tekenbeet. Teken kunnen ziektes overbrengen, zoals bijvoorbeeld de ziekte van Lyme. Het is daarom belangrijk om te weten hoe je een tekenbeet voorkomt en wat je moet doen als je toch bent gebeten. Op de website van de GGD lees je wat je kunt doen om een tekenbeet te voorkomen én wat je moet doen als je toch gebeten bent. www.ggdhvb.nl/teken

Lezing

Mediawijsheid voor ouders van jonge kinderen

Kinderen worden op steeds jongere leeftijd geconfronteerd met beeldschermen. Maar wat is het effect daar eigenlijk van? En hoe ga je daar als ouder mee om?

In deze ouderavond geeft mediapedagoog Harry Hol tips en informatie over schermen en kinderen. En vooral helpt hij ouders om daar zelf (betere) keuzes in te maken.

NIX18

Er is behoorlijk veel bewijs dat het drinken van alcohol slecht is voor het brein van pubers dat nog minstens tot hun 24ste volop in ontwikkeling is. Daar komt bij dat als je jong begint en veel drinkt, de kans groter is dat je later verslaafd raakt aan alcohol. Maak jij de afspraak van NIX met je puber? Bekijk voor tips rondom Helder Opvoeden onze kennisclips op https://www.ggdhvb.nl/cursus/helder-opvoeden-hoe-doe-je-dat/ of kijk op www.helderopvoeden.nl

Spreker: Mediapedagoog Harry Hol van Bureau Jeugd en Media

Datum: 9 april 2025

Tijd: 19:30 – 21:00 uur

Locatie: MFA De Valuwe, Cuijk

je hier gratis aan!

Vragen over seks en wil je weten hoe het écht zit?

Ben jij jonger dan 25 jaar en heb jij vragen over liefde, seks, condoomgebruik en anticonceptie? Op Sense.info kun je terecht met al jouw vragen. Of kom langs op het Sense spreekuur van GGD Hart voor Brabant. Daar spreek je anoniem en gratis met een verpleegkundige. En heb je onveilig gevreeën en twijfel je of je een soa hebt? Maak dan online een afspraak voor een soa test. www.ggdhvb.nl/liefde-en-seks

Wil je meer weten over gezondheid of

opvoeden? Neem deel aan één van onze gratis activiteiten!

Geregeld organiseren wij presentaties, cursussen en webinars. Dat doen we voor ouders en opvoeders, voor scholen en professionals in de gemeente.

• Mediawijsheid voor ouders van jonge kinderen. Kinderen worden op steeds jongere leeftijd geconfronteerd met beeldschermen. Maar wat is het effect daar eigenlijk van? En hoe ga je daar als ouder mee om? In deze ouderavond geeft mediapedagoog Harry Hol tips en informatie over schermen en kinderen. En vooral helpt hij ouders om daar zelf (betere) keuzes in te maken. – 9 april – 19:30-21:00 uur. Locatie: MFA De Valuwe, Cuijk. Meld je gratis aan via:

Meld je aan via www.ggdhvb.nl/webinars. Kun je niet live kijken, maar wil je het webinar wel terugkijken? Schrijf je dan ook in. Je ontvangt een terugkijklink.

• Mijn lijf, jouw lijf. Elk kind ontwikkelt zich lichamelijk en sociaalemotioneel. Leren omgaan met je lijf, gevoelens en je omgeving horen daarbij. 1 april 20.00-21.00 uur

• Wat ouders moeten weten over vapen! On demand (willekeurig moment te bekijken)

• Cursus Peuter in Zicht: een oudercursus over opvoeden van peuters. De cursus bestaat uit 4 bijeenkomsten. Volgende editie: 6, 13, 20, 27 mei 19:30-21:30 uur.

Meld je aan via:

• Cursus Opvoeden & Zo: De cursus Opvoeden & Zo helpt ouders van kinderen in de leeftijd van 4 tot 12 jaar om het contact met hun kind plezieriger te laten verlopen. Je leert omgaan met ongewenst gedrag en goed gedrag stimuleren.

De cursus bestaat uit

6 groepsbijeenkomsten van 2 uur. Volgende editie: 15, 22 mei, 5, 12, 19, 26 juni in Sint Anthonis.

Meld je aan via:

Meld

Vergaderingen en bijeenkomsten raad Land van Cuijk

De eerste en derde donderdag van een raadscyclus, die steeds vier weken duurt, staan in het teken van beeldvorming. De tweede donderdag vergaderen de commissies en op de vierde donderdag de raad. De raad werkt volgens het model van Beeldvorming, Oordeelsvorming en Besluitvorming. Openbare vergaderingen en bijeenkomsten van de raad beginnen in de regel om 19.30 uur.

Thema-avonden

Op donderdag 20 maart a.s. vindt een thema-avond plaats. De avond start om 19.30 uur met het onderwerp Veiligheid. Daarna wordt een technische toelichting gegeven over de resultaten van de inwonersconsultatie over AZC Grave.

Op de derde donderdag van deze cyclus, 3 april, is geen thema-avond gepland.

Commissies

Op donderdag 27 maart a.s. vergadert de commissie Omgeving.

Raadsvergadering

Op donderdag 10 april a.s. vindt de raadsvergadering plaats.

Agenda’s en stukken

Op https://lvc.bestuurlijkeinformatie.nl/ vindt u de agenda’s en de stukken van vergaderingen en bijeenkomsten van de raad. Ook te bereiken via de website van de gemeente (www.landvancuijk.nl). U vindt er ook steeds de actuele informatie m.b.t. aanvangstijd en locatie.

Vergaderingen volgen

Via internet kunt u een vergadering live volgen of een eerdere

vergadering terugkijken. Ga naar https://lvc.bestuurlijkeinformatie.nl/. Het maken van beeld- en geluidsopnames is alleen toegestaan wanneer u dit vooraf heeft gemeld bij de griffie (via griffie@landvancuijk.nl) of voorafgaand aan de vergadering meldt bij de voorzitter, en de gegeven aanwijzingen volgt.

Spreekrecht

U kunt gebruikmaken van het spreekrecht over de geagendeerde onderwerpen. Tot uiterlijk 12.00 uur op de dag van de raads- of commissievergadering vraagt u spreekrecht aan via griffie@ landvancuijk.nl. Er zijn regels voor het inspreken. Zo zijn er bepaalde onderwerpen waarover u niet kunt inspreken. Bij de commissies spreekt u in bij het desbetreffende agendapunt, bij de raad aan het begin van de vergadering.

Spreek bij voorkeur in bij een commissie. De raad heeft dan nog meer tijd om uw inbreng te wegen en te betrekken bij het uiteindelijke besluit.

Meedoen en meepraten

Tijdens de beeldvormende thema-avonden is er ook ruimte om mee te doen en mee te praten. Dit is afhankelijk van de onderwerpen en vorm waarin deze worden behandeld. Ook staat dan het inwonerspodium op de agenda. Hierbij kunt u een nieuw onderwerp onder de aandacht van de raad brengen. Aanmelden kan tot uiterlijk 12.00 uur op de dag van de thema-avond via griffie@landvancuijk.nl. We gaan graag met u in gesprek!

Informatie

De griffie helpt u graag verder. U kunt ons bereiken via griffie@landvancuijk.nl.

80 jaar vrijheid

Oproep aan organisatoren

Dit jaar worden er in het Land van Cuijk meerdere evenementen georganiseerd in het kader van 80 jaar vrijheid. Misschien wilt u een van de leden van het college van burgemeester en wethouders hiervoor uitnodigen. Vriendelijk verzoeken wij u om uitnodigingen te sturen via de gemeentelijke website www.gemeentelandvancuijk.nl

Ga naar www.gemeentelandvancuijk.nl/formulieren/ burgemeester-of-wethouders-uitnodigen en vul de gevraagde gegevens in. U ontvangt dan een reactie of een van de leden van het college aanwezig kan zijn. De burgemeester en de wethouder(s) komen graag als dat in hun agenda past. Maar gelet op het aantal evenementen zullen ze misschien niet alle uitnodigingen kunnen accepteren.

Het is ook mogelijk om raadsleden uit te nodigen. Raadsleden kunt u uitnodigen via de griffie. Gebruik daarvoor het e-mailadres griffie@landvancuijk.nl

We wensen u veel succes met de organisatie van uw evenement.

Gemeentebestuur Land van Cuijk

t r o n .

W a t k a n j e v e r w a c h t e n v a n d e a v o n d ? M

Informatie over het puberbrein Informatie over alcohol en drugs Interview met een ervaringsdeskundige Handvatten en tips

e e a e v r n u e p e e n l o l e s e i K e nformatie nformatie nterview andvatten eze Nie c d

Deze gratis avond is bedoeld om te informeren en onderling over dit onderwerp in gesprek te gaan Niemand wordt persoonlijk aangesproken V

mand persoonlijk aangesproken 2

Het gemeentenieuws digitaal lezen? Dat kan via www.kliknieuwsdemaasdriehoek.nl

Alweer

een assurantiekantoor gestopt in Schaijk. Wij nemen al uw verzekeringen 1 op 1 over.

U kunt elke dag binnenlopen op ons kantoor van 09.00 tot 12.30 uur op Kapelanieplein 5 te Schaijk.

(tegenover de Jumbo)

Wij kunnen de overstap dan direct in orde maken. U bent dan dezelfde dag nog verzekerd via ons kantoor.

Stap nu over naar van der Wijst assurantiën, en ontvang een dinerbon van € 50,=

Wij blijven uw tussenpersoon voor alle verzekeringsen financiële zaken.

Verzekeringen • RegioBank • Hypotheken • Belastingaangifte

Wij zijn een klein team met oog voor persoonlijk contact. Kies voor het gemak van alles onder 1 dak.

www.wijst.net • 0486-464930

Uitnodiging ontmoeting Natuurgebied de Maashorst

Ben je benieuwd naar natuurgebied De Maashorst? Kom dan dinsdagavond 25 maart naar de Ontmoeting natuurgebied De Maashorst. Een brede informatie- en participatiebijeenkomst voor inwoners, ondernemers en belangengroepen. Gemeenten Bernheze, Maashorst en Oss, Staatsbosbeheer en Waterschap Aa en Maas beheren als partners het natuurgebied en organiseren de bijeenkomst. Je bent van harte welkom.

We praten je bij over de ontwikkelingen, projecten en activiteiten in natuurgebied De Maashorst. Deze keer staan de cultuurhistorische OERschatten van De Maashorst centraal.

Waar en wanneer?

Datum: Dinsdag 25 maart

Tijd: Het programma begint om 19.30 en eindigt rond 21.30 uur Locatie: De Pul, Kapelstraat 13 Uden

Over OERschatten

Richard Jansen, docent aan Universiteit Leiden, vertelt over het leven in de prehistorie en Romeinse tijd aan de hand van unieke cultuurhistorische OERschatten die zijn gevonden in De Maashorst. Centrale vraag; wat kunnen we nú doen met deze bijzondere vondsten? Hoe kun je deze waarde als ondernemer in een product of je dienstverlening benutten.

Film De poten van de bizon

Filmmaker Maarten Peels vertelt over en toont zijn korte film over de prehistorie: De poten van de bizon. De film is opgenomen in De Maashorst. Een mooi voorbeeld van hoe je cultuurhistorie in zichtbaar maakt.

Gesprekstafels over diverse onderwerpen

Je kunt ook meedoen aan een van de gesprekstafels zoals: Vraag het de boswachter, Ondernemen rond De Maashorst & subsidies en OERschatten & archeologie, Breuklijn en water en Studentenonderzoek interactie. Je kunt vragen stellen en ideeën en tips delen.

Inwoner, organisatie en ondernemer, we ontmoeten je graag

We kijken er naar uit je te ontmoeten op 25 maart! Neem gerust andere gasten mee; de bijeenkomst is voor iedereen die betrokken is bij natuurgebied De Maashorst. Meld je aan via de QR-code. Ook zonder aanmelding ben je welkom. Lees meer op natuurgebieddemaashorst.nl/nieuws

Lening Maashorst: starters kunnen duurder kopen

Het college van B en W van de gemeente Maashorst stelt voor aan de gemeenteraad om de Verordening starterlening aan te passen. Daardoor kunnen starters die in aanmerking willen komen voor de starterslening duurder kopen. Met de wijzigingen sluit de regeling beter aan op de huidige woningmarkt, waar de prijzen de laatste jaren flink zijn gestegen. Het maximale leenbedrag blijft €30.000,-.

De huidige verordening Starterslening uit 2022 stelt de maximale koopprijs of koop-/aanneemsom op €275.000,-. Door de prijsstijgingen van koopwoningen is het voor starters steeds lastiger om een woning te kopen. De belangrijkste wijziging is dat de maximale koopprijs niet langer een vast bedrag is, maar voortaan gekoppeld wordt aan 85% van de betaalbaarheidsgrens die door het Rijk wordt vastgesteld. Dit

Nieuwe openbare laadpalen

In de week van 24 maart 2025 plaatst Vattenfall InCharge nieuwe laadpalen in Schaijk en Uden. Dit gebeurt op de volgende plekken:

• Netjeshof 1, Schaijk

De Biezen 1, Schaijk Luitstraat 75, Uden

Deze adressen geven een indicatie. De laadpaal kan ook aan de overkant of in een zijstraat komen te staan. De gemeente heeft hierover al besloten. Er is geen bezwaar meer mogelijk.

Meer laadpalen nodig Er komen steeds meer elektrische

auto’s. Daarom moeten we genoeg laadpalen plaatsen. Wij werken hiervoor samen met Provincie NoordBrabant en Provincie Limburg. Vattenfall InCharge plaatst tot augustus 2028 nieuwe laadpalen. Vanaf 2025 gebeurt dit twee keer per jaar.

Nu zijn er ongeveer 200 openbare laadpalen in Maashorst. Extra laadpalen komen op plekken waar veel vraag is of waar dat in de toekomst wordt verwacht. Het doel is dat elke kern in Maashorst een laadpaal op loopafstand heeft.

betekent dat de maximale koopprijs waarvoor ook een starterslening kan worden afgesloten in 2025 stijgt naar €344.250,-. Daardoor komen meer woningen binnen het bereik van starters, zonder het leenbedrag te verhogen. Dit is in lijn met omliggende gemeenten.

De gemeenteraad van Maashorst beslist op 3 april over de wijziging van de verordening.

Slim opladen

De nieuwe laadpalen hebben een scherm met prijs- en laadinformatie. Op drukke momenten kan de laadsnelheid tijdelijk omlaag gaan. Zo blijft het elektriciteitsnet stabiel. Met deze laadpalen dragen we bij aan de klimaatdoelen voor 2030 en 2050.

Laadprijzen veranderen

In 2025 past Vattenfall de laadprijzen aan. De kosten kunnen per laadpaal verschillen, zelfs binnen dezelfde straat. Check daarom altijd de prijs in je laadpasapp om verrassingen te voorkomen.

De gemeenteraad vergadert weer. Kijk even of je niks belangrijks mist!

De gemeenteraad bespreekt onderwerpen en neemt beslissingen, namens jou en alle andere inwoners. Daarom zijn raads- en commissievergaderingen openbaar en zetten we de voorlopige agenda in de krant en online.

Aankomende donderdag 27 maart 2025 staat er om 19.30 uur een vergadering van de commissie Ruimte, Economie & Financiën op het programma. Dit betekent dat raadsleden zich verdiepen in het onderwerp en een standpunt innemen, maar nog niets beslissen. Hiernaast vind je de voorlopige agenda van de commissievergadering.

Staat er in de agenda iets bij wat je belangrijk vindt?

Kom dan gerust kijken bij de vergadering. Dat kan op twee manieren:

1. Vanaf de publieke tribune in de raadzaal

2. Online via de live-uitzending

Houd er wel rekening mee dat tijdens de vergadering kan worden besloten om een agendapunt niet te bespreken, als geen enkele fractie dat wil.

De publieke tribune van de raadzaal vind je in het gemeentehuis (Markt 145 in Uden). Je kunt naar binnen via de West-ingang. Aanmelden is niet nodig. Online kijken kan via https://gemeenteraad. gemeentemaashorst.nl. De vergaderingen zijn via die link ook terug te kijken.

Wil je graag je mening geven over een onderwerp?

Maak dan gebruik van je spreekrecht. Meld dit uiterlijk om 12:00 uur een dag vóór de vergadering waarop je wilt inspreken. Dit kan via de griffie, het team dat de gemeenteraad ondersteunt: griffie@gemeentemaashorst.nl of 0413-28 10 33. Zij kunnen je ook uitleggen wat de spelregels zijn van het spreekrecht. Ook voor andere vragen kun je bij de griffie terecht. Ze helpen je graag.

Dit is de voorlopige agenda van de commissievergadering Ruimte, Economie & Financiën van 27 maart 2025

• Wijzigingen omtrent huisvesting van arbeidsmigranten Verordening Starterslening 2025 Wijzigen grondexploitatie Reek-Zuid

Meer weten over een agendapunt? Je vindt alle bijlagen en toelichtingen terug via de gratis iBabs Pro app of via https://gemeenteraad.gemeentemaashorst.nl

Regels

voor huisvesting internationale werknemers

Het college B en W van Maashorst heeft nieuwe uitvoeringsregels vastgesteld voor de huisvestiging van internationale werknemers. Hiermee kan de gemeente onder andere makkelijker controleren op kwaliteit van de huisvestiging, correctie inschrijving in de Basisregistratie personen (BRP) en arbeidsuitbuiting.

Internationale werknemers, vaak aangeduid als arbeidsmigranten of seizoenwerkers, zijn van groot belang voor de lokale, regionale en Brabantse economie. Veel bedrijven in de agrarische sector, logistiek, voedingsmiddelenproductie en andere industrie kunnen zonder deze internationale werknemers niet of niet optimaal functioneren. “Het is dan ook belangrijk dat we als gemeente zicht en regie houden op de huisvesting van internationale werknemers”, zegt wethouder Franko van Lankvelt (Wonen). “Daarmee kunnen we ook beter misstanden en oneerlijke concurrentie voorkomen.”

De regels sluiten aan bij het eerder vastgestelde beleidsprogramma Wonen en Zorg. Op 3 april besluit de gemeenteraad over de Verhuurverordening.

Met toepassing van de uitvoeringsregels kan de gemeente: beter zicht en regie houden op de locaties voor en de kwaliteit van de huisvesting voor internationale werknemers;

• controleren op correct gebruik van het nachtregister; controleren op correcte inschrijving volgens de Wet BRP; zicht houden op nakoming van de regels en richtlijnen van de Wet goed verhuurderschap, de Verhuurverordening en de verhuurvergunning;

• eventuele zorg- of veiligheidsvragen eerder in beeld krijgen; eventuele arbeidsuitbuiting of andere vormen van mensenhandel eerder melden bij de juiste instanties; informatie bieden over onderwerpen waarvoor internationale werknemers bij de gemeente of het regionale informatiepunt terecht kunnen.

Een vergunningstelsel waarborgt zowel de kwaliteit van huisvestiging als de leefomgeving. Het helpt om verkamerde woningen af te bouwen, woningen beschikbaar te maken voor woningzoekenden en parkeerdruk en andere vormen van overlast in de woonwijken te verminderen.

Wat is jouw mening over de mobiele milieustraat?  Vul de enquête in!

In 2024 heeft de gemeente een proef gedaan met een mobiele milieustraat. Deze stond drie keer op acht verschillende locaties in onze dorpen. Bij de mobiele milieustraat kon je gratis recyclebaar afval en klein chemisch afval inleveren; afval dat niet in de gewone afvalcontainers hoort én in een grote boodschappentas past. Bijvoorbeeld harde plastics, kleine accu’s en elektrische apparaten, piepschuim en verfblikken.

Nu de proef voorbij is, gaan we bekijken of we doorgaan met de mobiele milieustraat. Daarom willen we graag ook jouw mening weten.

• Heb je de mobiele milieustraat bezocht? Wat vond je ervan?

• Had je er nog niet van gehoord? Zou je het handig hebben gevonden?

• Wat kan er beter, of vind je het niet nodig?

Laat het ons weten door de enquête in te vullen op www.maashorstaanhetwoord.nl Dit kan van 19 maart tot en met 9 april. Of scan de QR-code!

Bekendmakingen 10 t/m 14 maart 2025

De officiële bekendmakingen van gemeente Maashorst staan op www.overheid.nl en www.officielebekendmakingen.nl. Als service publiceren wij op deze Gemeente-Pagina een kort overzicht van de besluiten en bekendmakingen. Je kunt aan dit overzicht echter geen rechten ontlenen. De complete tekst staat op de genoemde websites. Daar kun je jezelf ook aanmelden voor een e-mailservice. Je krijgt dan automatisch bericht als er nieuws is voor (naar keuze) jouw buurt, wijk, woonplaats of de hele gemeente. Ook via de app ‘Over uw buurt’ kun je op de hoogte blijven van alle relevante meldingen voor jouw woon-/ werkadres. Kijk op www.overheid.nl voor meer informatie.

• Ontwerpbesluit voor de uitoefening van het horecabedrijf door een paracommerciële rechtspersoon aan Bossestraat 8 te Schaijk, 102783

• Toestemming voor het gebruik van een horecavergunning aan Pastoor Spieringsstraat 1 te Uden, 102823

Omgevingsvergunningen

Aanvraag

Odiliapeel

• Oudedijk 83, tijdelijk verhuren kamers aan vier arbeidsmigranten en afwijken omgevingsplan, 19212

• Oudedijk 86, verbouwen / vergroten hygiënesluis (omgevingsplan en technisch), 19071

Reek

• Monseigneur Suijsstraat 37,

plaatsen 4 lichtmasten veld 3 sportpark (omgevingsplan), 18518

Schaijk

• Pastoor van Winkelstraat 27-29, vervangen dak woning en aansluitende schuur (omgevingsplan), 19136

Uden

• Aalstweg 5, slopen 2 dugouts, plaatsen 4 prefab dugouts en aanpassen hekwerken (omgevingsplan), 18391

• Meerhoek 612, kappen 2 eikenbomen in achtertuin, 19389

• Oostwijk 8, toevoegen bestemming ‘showroom’ en afwijken regels in omgevingsplan, 20251

• Vlasstraat 5, uitbreiden woning en bouwen carport en afwijken regels omgevingsplan (omgevingsplan),

18671

• Voortweg, bouwen woning met bijgebouw (omgevingsplan), 18680

Volkel

• Zeelandsedijk, toevoegen energieopslagsysteem aan zonnepark en afwijken regels omgevingsplan (omgevingsplan), 18324

• Zeelandsedijk 10, reviseren BOSpomp en herinrichten tankplaats (omgevingsplan en technisch), 19617

Zeeland

• Kreitsberg en Reekseweg, realiseren landschapslandbouw, plaatsen tiny houses en afwijken omgevingsplan, 19165

Aanvraag verleend

Reek

• Burgemeester Wientjensstraat 8, verbouwen woning (omgevingsplan en technisch), 413

Schaijk

• Bossestraat 20, wijzigen voorgevel d.m.v. plaatsen 2 nieuwe kozijnen (omgevingsplan), 13146

Uden

• Burgemeester Buskensstraat 18, kappen boom in achtertuin, 10998

• Heufkensweg 4, bouwen carport en dakkapel (omgevingsplan) /

Van jouw GFT+E naar waardevolle compost  Haal gratis een kuub compost

Door groente-, fruit- en tuinafval én etensresten (GFT+E) gescheiden in te leveren, draag je bij aan een duurzamere wereld. Dit afval wordt namelijk omgezet in compost: een natuurlijke bodemverbeteraar die planten laat groeien, de grond gezond houdt en helpt om vocht en CO2 vast te houden.

Als bedankje voor het scheiden van groenafval kunnen inwoners op zaterdag 22 of 29 maart gratis

een kuub compost ophalen bij de composteerder in Uden. Perfect voor je tuin!

Waar: Van Berkel, Mariniersstraat 4, Uden

Wanneer: Zaterdag 22 of 29 maart  Hoe laat: Tussen 9.00 en 14.00 uur  Hoeveel: Maximaal 1 kuub per huishouden (minder kan natuurlijk ook)

aanvraag is vergunningvrij, 7103 / Gemeenteblad 109270 en 109591

• Volkelseweg 32, realiseren cursusruimte d.m.v. sluiten overkapping (omgevingsplan), 16753

• Wachtendonk 806, gebruiken woning voor kamerverhuur en afwijken omgevingsplan, 17439

Aanvraag ingetrokken

Schaijk

• Duifhuisstraat 4, intrekking omgevingsvergunning voor niet gerealiseerde stal, 101980 Volkel

• Kloosterstraat, kappen 1 Fraxinus en 1 Prunus, 8027

Meldingen

Andere meldingen (geen vergunningplicht)

Uden

• Aldetiendstraat 19C, brandveilig gebruiken van een groepszorgwoning, 11314

• Wachtendonk 806, brandveilig gebruiken bestaande woning met vier afzonderlijke kamers voor kamerbewoning, 19376 / Gemeenteblad 109116, 109127, 109135, 109323 en 109492

Evenementenvergunning

Aanvraag

Schaijk

• Bossestraat 10, Avondvierdaagse Schaijk van 10-06-2025 t/m 13-062025, 19765

Verleend

Zeeland

• Vlasroot, Avondvierdaagse Zeeland 20-5-2025 t/m 23-5-2025, 18396

Turn static files into dynamic content formats.

Create a flipbook
Issuu converts static files into: digital portfolios, online yearbooks, online catalogs, digital photo albums and more. Sign up and create your flipbook.