
CONTACTS


![]()



2020 - aujourd'hui
Architecte chef de projet, Tunis.
Res Nozha, El Manar II Tunis, Tunisie.
Téléphone
Adresse (+216) 53 350 832
Web med.elyes.chebil@gmail.com linkedin.com/in/MED-ELYESCHEBIL
Au cours des mes 5 années d’expérience, j’ai eu l’occasion de travailler sur des projets aux programmes variés et à différents phases en tant qu’architecte assistant ou chef de projet. Curieux, créatif et motivé, je suis capable de développer des conceptions architecturales fortes et originales. J’aime travailler en équipe et motiver mes collègues à fin d’acquérir de nouvelles connaissances et renforcer les compétences acquises.
Professionnelles:
Travail simultané sur plusieurs projets à différentes phases
Travail en équipe. Communication avec les différents intervenants.
Créativité. Rigueur. Minutie.
Informatique:
Autocad. Sketchup. Lumion. V-ray. Revit. Ms Office. Adobe Suite.
Linguistiques:
Arabe (langue maternelle). Français (Bon niveau). Anglais (Bon niveau).
2022- aujourd'hui
2019 – 2020
Apex architectural design,Tunis. Association Espoir du désert,Tunis. MaddConception, Tunis.
2017 – 2018
Studio2A, Bizerte.
Travail sur des projets à usage mixte (Logements, bureaux, commerces). Compétences accrues en communication et coordination. Gestion de projets à différentes phases. Connaissances approfondies des normes et techniques de construction.
Architecte bénévole
compétences accrues en négociation et gestion de projets avec un budget restreint. Coordination et gestion de chantier.
Architecte dans une agence.
Travail sur des projets à usage mixte. Compétences renforcés en D.A.O (Autocad) et rendu 3D (Sketchup,Lumion,V-ray). Premier contact avec des clients. Participation aux concours nationaux. Compétences accrues en coordination avec les différents intervants. Autonomie.
Architecte stagiaire dans une agence
Travail sur des projets principalement résidentiels. Compétences renforcées en D.A.O (Autocad). Amélioration des compétences en détail technique.
2025
Colors made, Tunis.
2013-2019
Université Ibn Khaldoun Tunis.
Certification Revit ACP
Niveau professionnel
Certication ID: ADSK-156-20286
Diplôme national d’architecture
Certificat Autodesk Revit 2018
Niveau débutant / intermediaire
Colors Made, Tunis.
2018 2012
Lycée Mixte, Bizerte.
Baccalauréat
Sciences expérimentales
Ce carnet reprend une sélection de travaux réalisés durant mon cursus en architecture ainsi que mes travaux professionnels.
Sur cette période pleine d’expérience et de défis, j’ai eu l’opportunité de m’impliquer et de découvrir un large éventail d’aspect dans l’architecture.
Ces œuvres définissent l’architecte et l’artiste que je suis et la manière de penser que j’ai développé.
Un architecte créatif, rigoureux et précis. Passionné par le design, soucieux du détail et cherche à améliorer les qualités des espaces dans toutes ses complexités en faisant alliance entre esthétique, fonctionnalité et technique.
Salle Omni-sport
Tazi Group
Centre de culture et des affaires
Maison M
Maison S
Cabinets

Concours national d’architecture
Site:ElMourouj,Tunisie
Usage:Sportif 2019

Il s’agit d’un concours national effectué lors de mon second stage professionnel. Ce projet a été fait en équipe.
L’équipe se compose de :
-Deux architectes sénior.
-Deux architectes stagiaires.
-Un architecte d’intérieur.
-Un ingénieur génie civile.
Programme projeté et organigramme fonctionnel

J’ai commencé par faire un organigramme fonctionnel suivant les recommandations présentes dans le programme fournis. J’ai aussi déterminé la nature des relations entre les espaces et d’ autres informations tels que la dimension du terrain, gradins, unités de passages et les normes de sécurité incendie.

terrain et accés
Le terrain a une surface de de 12 103 m² mais la surface qu’on peut bâtir par rapport au cahier de charge est de 1815m². Le terrain est quasiment plat, il y a une pente de 2% sur l’axe sud-est / nord-ouest.
Plan du terrain



Accés et distribution des fonctions


On a choisi de partir avec ce type de portique (en bleu) qu’on a disposé en alternance. Cette disposition crée un aspect de dynamisme. Les portiques vont être fait en treillis soudés, c’est une solution qui a deux avantages : le poids et le prix. Le dépassement des portiques (en rouge) va être revêtu de polycarbonate pour éviter l’éblouissement des joueurs et pour fournir un éclairage naturel uniforme à l’intérieur de la salle.

Façade Sud











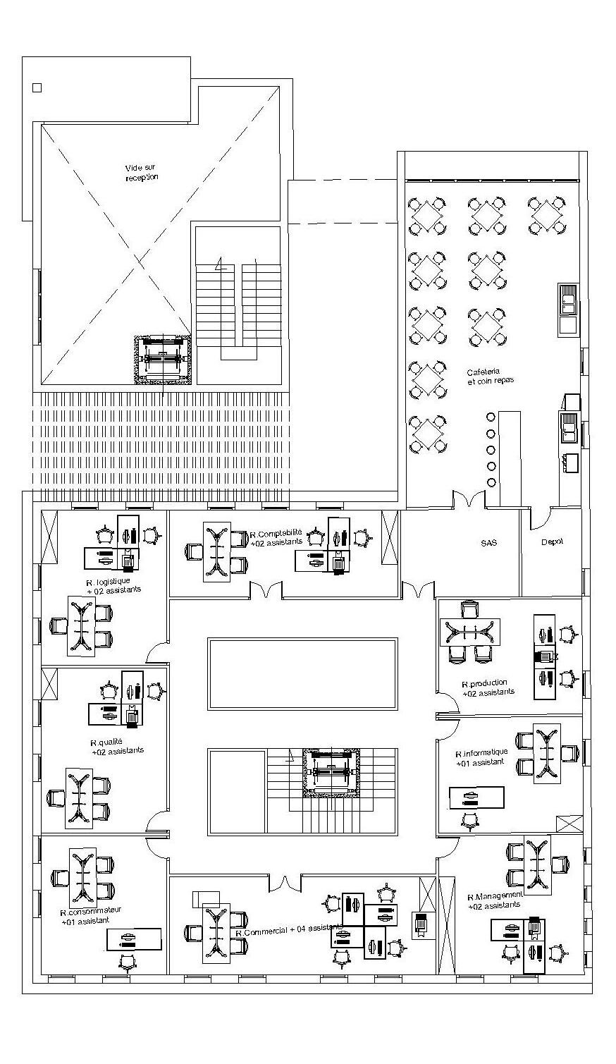
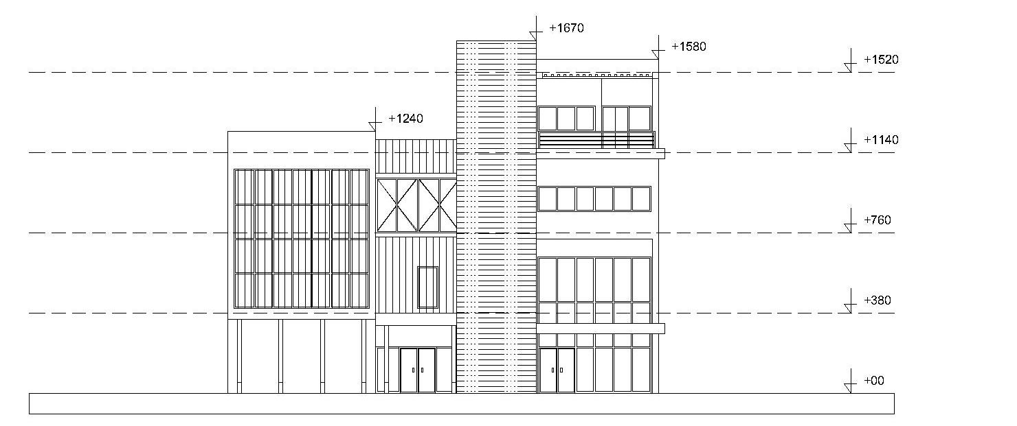
Administration TAZI GROUP
Administration d’un groupe industriel
C’est le projet d’une administration d’une usine de lait située à Oran, Algérie. Une des exigences du client est la sépration entre la direction et l’administration et aussi entre entrée publique et entrée privée. Le programme est composé de :
-Une administration.
-Une direction.
-Un espace de vente.
-Un laboratoire.
-Un espace de consommation.
-Une salle de réunion.
-Une suite PDG.
Genèse du projet
1. Occupation et séparation : J’ai commencé avec un premier volume principal puis j’ai créé un évidement qui sert à séparer la direction de l’administration et crée un passage. Cet évidement va canaliser le flux piéton vers l’administration.



2. Emergence et liaison : J’ai ensuite augmenter la hauteur des deux niveau (+2 niveaux pour l’administration et +3 niveaux pour la direction) pour accueillir les fonctions projetées. Au niveau du 2e étage j’ai créé un volume (passerelle) entre la direction et l’administration, c’est la seule communication entre les deux volumes que le client veut.















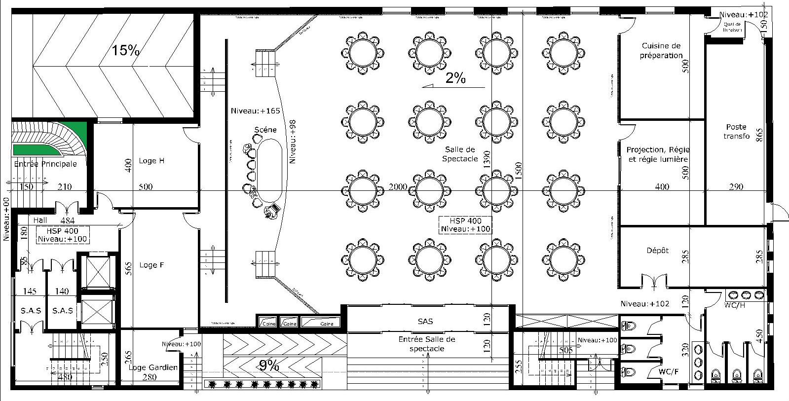
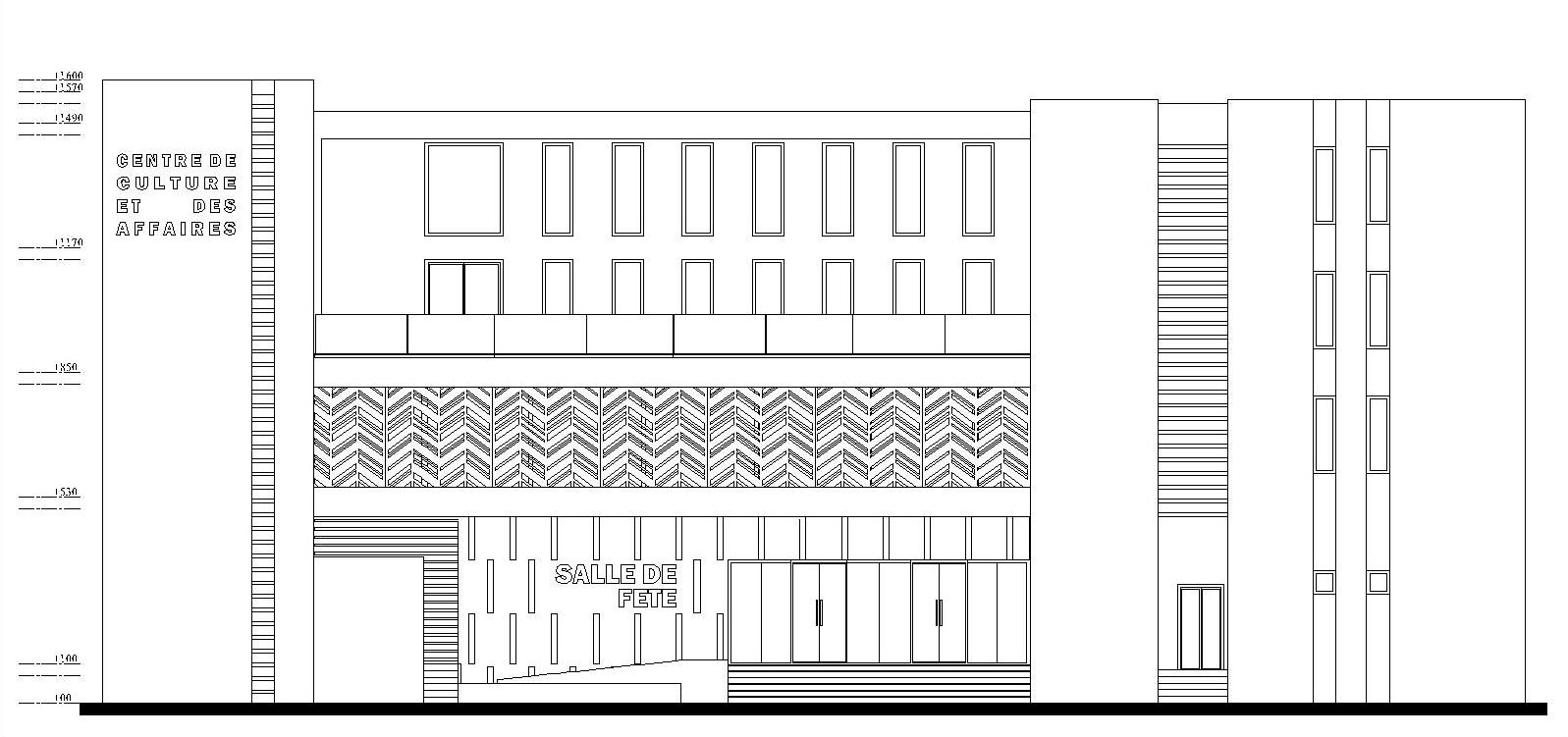
Centre des cultures et des affaires
Concours national d’architecture
Site:Moknine,Tunisie
Usage:Mixte Administratif/Commercial 2021
Le programme comporte :
-Une salle de fête.
-Une galerie commerciale.
-Un espace socio-culturel (espace de consommation et bibliothèque).
-Un espace bureautique.
Le surface totale du projet est de 2730m².
Genèse du projet
1. Occupation:
Suivant les entrées nécessaires, j'ai commencé par crée un grand volume borné de deux petit volumes, pour créé des blocs pour la circulation verticale. Les volumes de circulation verticale vont aussi servir de repère urbain.


2. Connection:
J'ai créé un volume qui lie les deux volumes de circulation pour qu'il serve de connection sur la façade et qu'il accueille les vitrines des boutiques.




Façade principale







Le client possède un lot de terrain donnant sur la mer. Il voulait une conception d’une maison moderne comportant un salon, une cuisine et salle à manger, trois chambres et une suite parentale. Le lot de terrain est d’une surface de 1200 m².
Dans cette conception, j’ai mis l’accent sur la vue sur mer. Donc, j’ai positionné le salon, la cuisine, la salle à manger et la suite parentale sur la vue. J’ai aussi mis une grande terrasse et une piscine à débordement pour profiter de la vue encore plus.
Pour la façade, je voulais créer une transparence dans le bâtiment, c’est pour cela que j’ai mis des baies vitrées de part et d’autre du bâtiment.












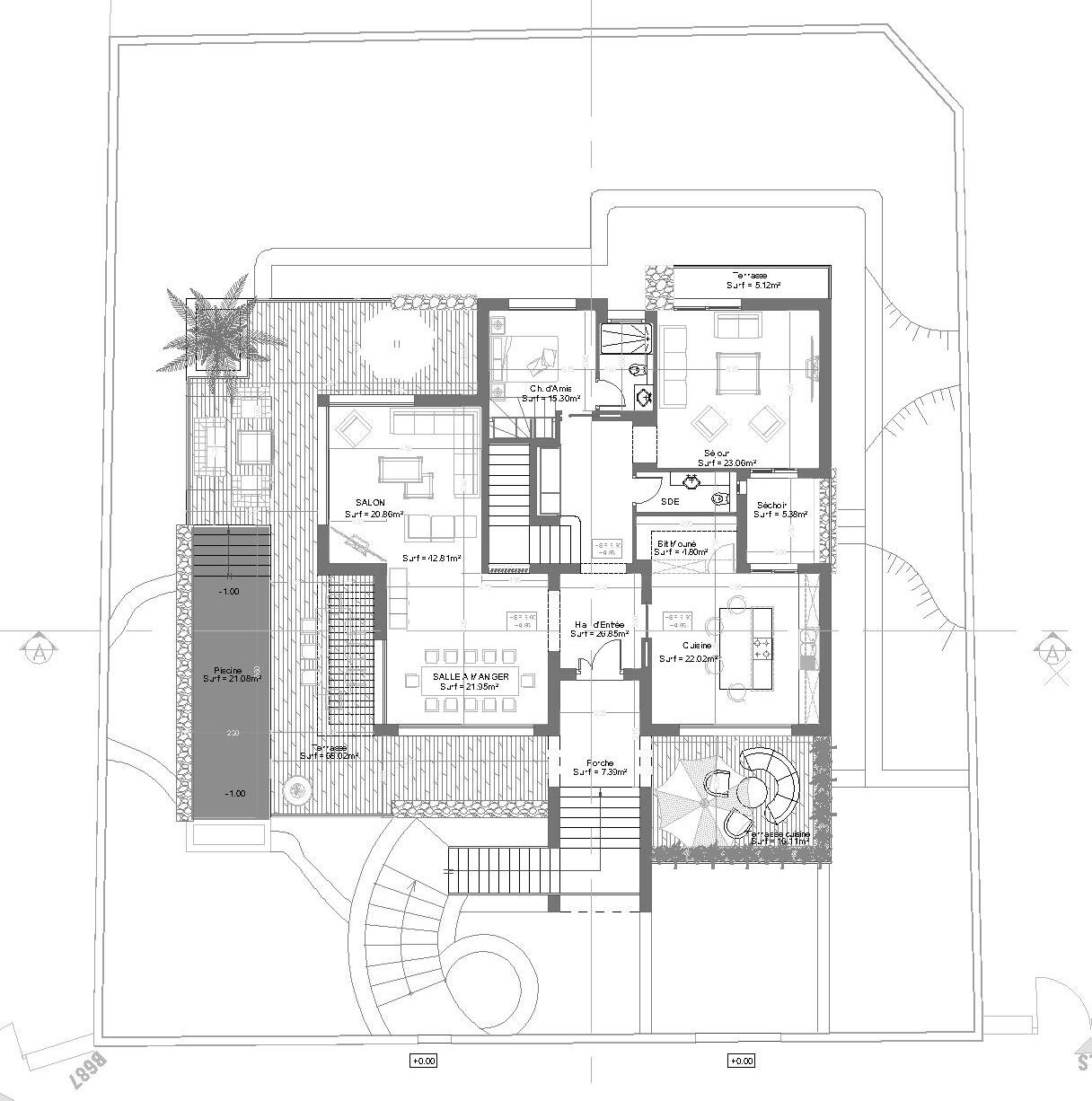
Le projet est une villa dans un lot de terrain plat de 764m² bornée par le sud-ouest d’une clôture de 9m d’hauteur. Le projet se compose de : Un salon, un séjour, une cuisine, une salle à manger, 4 chambres dont une suite parentale et une chambre invité et un bureau.
moodboard
Pour savoir ce que le client veut en terme de style de conception, j’ai commencé par faire une Moodboard. La Moodboard comporte plusieurs photos de villas avec des paramètres similaires (programme et terrain). Introduction


Après avec fixé le style avec le client, j’ai décidé d’inverser le programme et de mettre la partie jour au 1er étage et la partie nuit au rez-de-jardin. Cette décision a été prise à cause de la grande clôture de 9m qui borne le terrain (On a besoin de plus de lumière pour la partie jour que la partie nuit). L’accès à la maison se fait au 1er étage par l’intermédiaire d’un escalier. La piscine est aussi au 1er étage à côté de la terrasse de la salle à manger.

Plan 1e étage




Façade nord-est
Façade sud-est





Pour cette partie du portfolio, j’ai décidé de regrouper 3 projets de cabinets que j’ai fait dans ces dernières années. Un cabinet dentaire double,un cabinet dentaire dans un dispensaire et un cabinet de neuropsychologue.
Introduction I.Cabinet double - 2021
Ce projet consiste à réaménager un cabinet individuel en cabinet double. Je me suis mis d’accord avec le client de mettre les deux chaises d’opération dans la grande salle puisque les alimentations en eau et air comprimé y sont déjà installé. Puis j’ai créé deux salles d’attentes séparées. En même temps, le local manquait d’âme et de décoration, alors j’ai composé avec divers papier peints, lattes de bois et tableaux pour raviver le cabinet. J’ai aussi opté pour une moquette en PVC pour le revêtement sol puisque c’est un matériau qui est facilement nettoyable.
Plan projeté





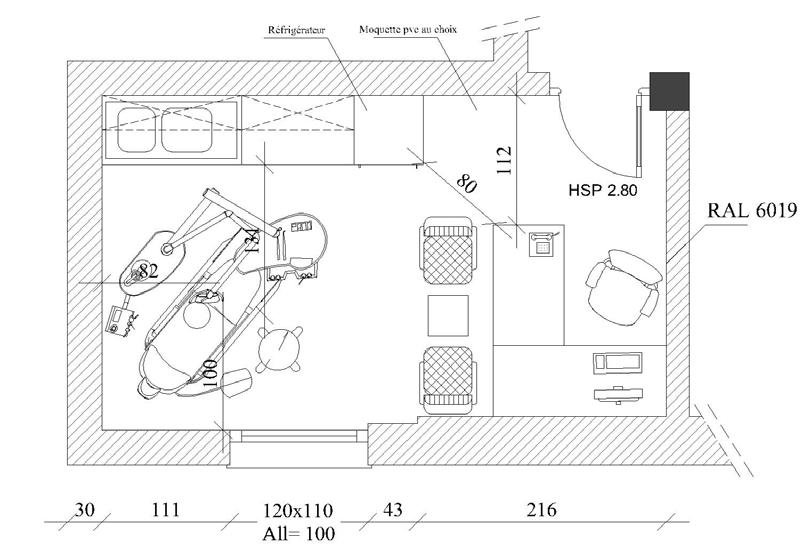
II.Cabinet dans un dispensiare - 2021
Il s’agit d’un de mes projets bénévoles avec l’association rose de l’espoir. Le projet consiste à concevoir un cabinet dentaire dans un dispensaire avec des aides qu’on négocie avec des fournisseurs locaux.
Après négociations, seulement la chaise d’opération a été acheté avec les fonds de l’association. Le reste (mobilier, électroménager et sanitaire, papier peint et peinture, revêtement sol et main d’oeuvre) ont été fournis gratuitement.

Plan projeté



Le projet consiste à réaménager un cabinet. Une des lacunes du local est qu’il comporte top d’espace d’attente et toutes les autres fonctions sont dans une seul pièce. Je me suis met ‘accord avec le client de garder le mobilier puisqu’il est presque neuf. Le client voulait aussi ajouter d’autres fonctions : l’hypnose et un coin de photographie pour les réseaux sociaux. J’ai décidé que l’hypnose et le coin réseaux sociaux seront dans la même pièce (précédemment une salle d’attente) parce que les deux fonctions nécessitent une ambiance conviviale et décontractée.

Plan projeté

















Agence d'une banque
Sousse, Tunisie
Surface: 143 m²
Année: 2019
Plans, tableau de menuiserie et bordereau des prix. Logiciels utilisés: Autocad, Ms office.
Maison R+1
Bizerte, Tunisie
Surface: 208 m²
Année: 2021
Logiciels utilisés: Autocad, Sketchup, Lumion
Extension d'une villa: 2 chambres + SDB
Les berges du lac 2,Tunis, Tunisie
Surface: 38 m²
Année: 2021
Logiciels utilisés: Autocad, Sketchup, Lumion
Aménagement d'une patisserie
El Aouina,Tunis, Tunisie
Surface: 22m²
Année: 2021
Logiciels utilisés: Autocad, Sketchup, Lumion
Bureau de change
El Aouina,Tunis, Tunisie
Surface: 32 m²
Année: 2023
Logiciels utilisés: Autocad, Sketchup, Inscape
Réaménagement d'une station de service
Grombalia, Nabeul, Tunisie
Surface: 155 m²
Année: 2023
Logiciels utilisés: Autocad, Sketchup, Lumion
