ARCHITECTURE WORK BOOK

Page 1

HADJPORTFOLIOMOKHNACHESIFEDDINEArchitecte

HADJ MOKHNACHE SIF EDDINE

Architecte de formation, Artiste peintre au todidacte, je vacille entre l’art et la technique pour offrir une conception viable et plaisante

Appartement EL achour

Appartement El Cheraga

Bloc Administratif-Ben Aknoun

MadHouse design Agency- Jijel

Content

Villa Echouhada- EL Oued

Bloc administratif Amouda Type de projet : Equipement public Lieu : Ben Aknoun, Alger Année : 2021 Niveaux : ProfessionalR+14Project

Le Bloc administratif de BenAknoun se présente sous un style moderne américain, imposant avec une volumitrie brute et imposante, il s’eleve a plus de 60 m dans le ciel avec ces 14 niveaux; Une in crustation repérable dans le Future skyline de la ville.

Dans une idée d’affirmer la position de centre administratif et gouvernemental que la ville de BenAknoun prend, la nécissité d’un projet d’une telle envergure s’imposer; Un bloc Administratif, qui se place dans un contexte déja pré-éta blis, avec l’ambition d’etre plus un repère qu’un simple batiment administratif.

Le batiment est couronné d’un loft spacieux, avec un accées réservé a la terrasse et a la piscine couverte,dominant ainsi la ville de BenAknoun

Loin de son aspect brutaliste et monumentale, le batiment offre un cadre de vie professionnelle et personnelle agréable a travers ses terrasses super posées sur plusieurs niveau du batiment, pour ainsi pouvoir profiter des panoramas inprenable sur la ville, loin de toute pollution sonores, visuelle et olfactive .

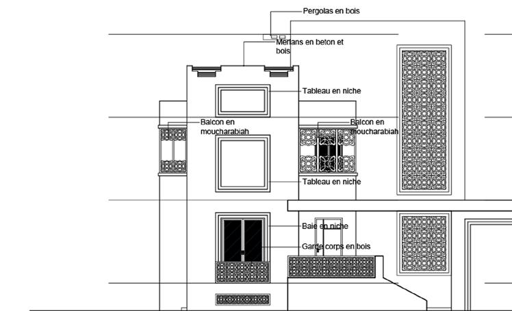
Villas Echouhada Type de projet : Résidentiel Lieu : Oued Souf Année : 2021 Niveaux : R+1 + terrasse accessible Professional Project

La Villa Echouhada est une composition de deux unité résidentiel séparé, des duplexe qui s’inscrivent dans le contexte et le style de construction Saharien, Avec des rappelle de l’architecture arabo-musulmane.

La ville s’offre une architecture épuré et rafiné de part sa composition geométrique et volumétrique, avec un passage entre deux pour acceder a des espaces plus intimes dans une pensée d’hierarchie spatiale, aussi que s’offrir une protection récéproque des rayons du soleil et vent chaud du climat saharien.

Le choix des texture granulé et des couleurs sobres sont le fruit d’une reflexion et une intégration au site et au climat de la région, le tout en gardant une cohérence et cohésion entre element batis et element naturel

la répition des moucharabiah autour des baies et des garde corps offre un rappelle et une cohérence du tout ensemble.

L’architecture arabo musul mane propose un large éventail de vocabulaire architectural adéquat au région saharienne. L’utilisation des claustra et moucharabiah a double fonc tion ; protection contre les rayons du soleil dans un sens technique, et une esthetique for cé avec le choix du bois comme materiau local .

La terrasse de la villa est couron née par des merlans moderne ponctué par des garde corps en bois local .

Les baies, fenetres et portes fenetre sont ornée avec de la geometrie gradué , ainsi meme les façades aveugle, présenté comme des tableaux a présenté a l’exterieur.

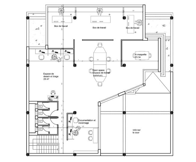
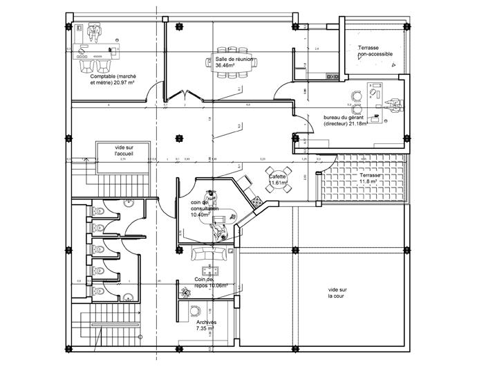
MadHouse Design Agency Type de projet : Equipement Lieu : AcademicNiveauxAnnéeJijel:2016:R+2project

N’ayant qu’une seule façade, le défis était de faire ressortir des elements a la fois esthetique et coherente dans l’idée du projet, sans pour autant faire obsactle, en plus des contrainte du terraint, a la fonc tionnalité principale du projet, a savoir, un bureau d’étude pluridisciplinaire.

Le projet Madhouse Design est issue d’une reflexion architecture fonctionnelle et une intégration urbain, il se dis tingue de l’environnement par ses formes geometrique directe et une volonté de faire contraste avec les elements aux alentour pour une meilleure valorisation .

Le rez-de-chaussée est une plateforme pour tous les corps d’état technique d’un projet, ainsi qu’un accueil pour le public, a la fois pour les receptions et orientations, ainsi que pour les exposition artistique et architecturale, dans le but de présenter les efforts au grand public.

Le Premier étage est destiné a la partie administrative et de gestion du bureau, c’est aussi la liaison entre maitre d’oeuvre et maitre d’ouvrage avec des espaces de consultations et des bureau de gestion et de la direction générale.

Le 2eme étage est l’espace de production, de creation et de matérialisation des idées, besoins et volonté des clients, dans ce but, il est organisé comme un tableau blanc dans les parois sont annulé pour laisser un espace libre et aussi pour inciter a toute forme de creation libres sont pré-idialisation.

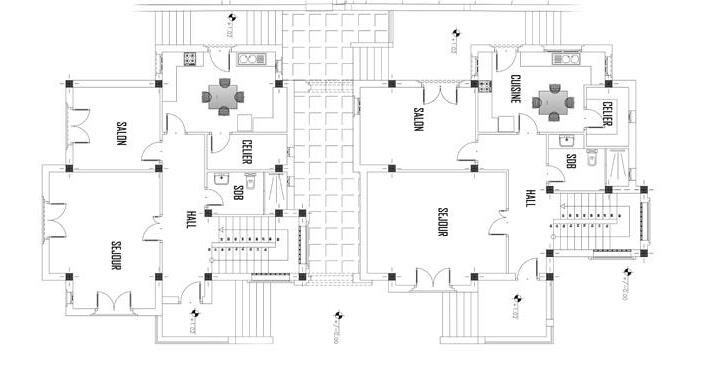
Appartement El Achour Type de projet : Résidentiel Lieu : ProfessionalAnnéeAlger:2020project

Cuisine

Séjour

Chambre Chambre Parentale SDB

La visite de l’appartement nous a permis de prendre le relevé technique et une idée de l’espace, le diagnotique fait était que les espaces comme concue, seront étroit et que l’es pace d’accueil avait plus de surface qu’il en fallait et que ça serais un plus pour les autres es paces avec une deuxieme etudes plus poussé.

WC

SDB Véranda Balcon Cuisine ChambreParentaleChambre SDB Salon Degagement Debaras A:13.69 H:----P:16.35mm²m A:17.27 m² P:17.51 m H:---- m A:14.68 m² P:22.44 m H:---- m A:12.14 m² P:15.04 m H:---- m A:13.83 m² P:18.52 m H:---- m A:2.30 m² P:6.28 m H:---- m A:4.38 m² P:8.95 m H:---d'entréeHallmAllège : 1.00 m m0.75:Allège03Détail m0.50:Allège02Détail Détail 01 Nevada Linteau revetis en pierre Linteau revetis en pierre

Basé sur le diagnostique fait sur chantier, et les besoins et volonté du client, une proposition en a découlé qui visé justement a répondre aux nécissité et de proposé un cadre de vie plus agreable avec des espaces plus ergonomique.

Chambre d’enfant le séjour

Chambreséjourparentale

Le

Appartement El Cheraga Type de projet : Résidentiel - interior design Lieu : ProfessionalAnnéeAlger:2022project

Proposition en plan Proposition en 3D TITRE PromotionCheminOuledBloc A3 - Plan duplex 1er niveau 1009080705040302151112131416171819 0601 Ascen. d'aérationGaine d'aérationGaineS=4.70m²Balcon TerrasseS=140.91m² 01 02 03 04 05 06 Elec. Gaz. Tél. Eau. S=7.49m²Hall +27.56m +27.71m Duplex S.T=161.99m²S=224.59m²F5 S=1.92m²W.C. +27.71m 0,46 4,63 0,23 1,63 0,46 2,96 1,41 3,87 0,46 1,16 1,73 1,45 0,35 3,35 0,230,120,120,71 1,61 0,12 1,16 2,00 0,46 0,83 1,21 2,31 1,21 5,85 1,15 2,43 0,402,160,353,182,490,120,462,431,680,870,12 0,461,422,681,210,230,353,700,351,390,351,682,311,680,120,980,121,160,930,690,690,98 2,721,390,460,230,692,490,69 0,35 3,35 0,23 0,23 2,31 0,12 1,55 3,20 0,461,420,122,020,466,95 2,68 0,98 2,57 0,52 2,85 2,430,931,16 0,12 0,351,404,26 4,511,04 0,12 ImageImageImageCuisineSéjour Salle mangera Hall Chambre SDB CuisineSéjour Salle mangera Hall ChambreSDB d'entréHall

N°97 lot la cadat , les sources , Bir Mourad Rais, Alger E-mail : BETTél/FaxarchitecteBR@gmail.com:(021)448927BELABBASRIAD&ARCHITECTURECONSEIL BUREAU D’ARCHITECTURE ET D’ETUDES TECHNIQUESPromotion El Wifak II Ouled Fayet - Cheraga

de synthèse - hall et escalier Image de synthèse - Salle de bain principale

Image de synthèse - cuisine - salle a manger

Image de synthèse - Séjour

Image de synthèse - cuisineImage de synthèse - Séjour

To Be Continued...

Turn static files into dynamic content formats.

Create a flipbook
Issuu converts static files into: digital portfolios, online yearbooks, online catalogs, digital photo albums and more. Sign up and create your flipbook.