Portfolio_Clark_2025

Page 1


INTERIOR DESIGN PORTFOLIO

Welcome to Madi Clark’s 2023 Portfolio.

EXPERIENCE

Interior Design Intern

• Progressive AE

Interior Design Intern

• Hooker Dejong, Inc.

Participant of ACE Mentorship

• West Michigan Firms & Companies

Assistant

• Skinny House Interiors

Revit

Adobe Suites

AutoCAD

Enscape Rhino

SketchUp

EXTRA-CURRICULAR SKILLS

LTU Material Lab Assistant

• 2024 - Present

LTU IIDA Social Chair

• 2024 - Present

LTU IIDA President

• 2023 - 2024

Neocon Chair Cordinator

• 2023

LTU IIDA Student Ambassador

• 2022 - 2023

EDUCATION

Lawrence Technological University

• 2021-Present

Hi, I am Madi!

As an Interior Designer, I strive to make a lasting impact on people’s lives by creating environments that promote longevity, well-being, and a deeper connection to the spaces they inhabit. My goal is to design better living environments that foster health, comfort, and sustainability. Inspired by organic forms and the integration of nature, I aim to provide smart, thoughtful design solutions that enhance everyday experiences and improve quality of life for the long term.

I love the work I am involved in. I focus on every detail to ensure my designs are functional and unique.

My information is listed below. Feel free to message me on any platform!

Madi Clark

616-438-1137

mclark4@ltu.edu

linkedin.com/in/madi-clark-580356231

GRAND RIVER SURGICAL CENTER

The Grand River Surgical Institute is a cardiovascular surgical outpatient center designed to promote healing and well-being through empathetic, innovative design. Located off the Beltline and Bradford Street, the facility takes inspiration from the nearby Grand River, using its natural curves to shape pathways that mimic walking along a river. This approach fosters calm and direction while supporting the needs of patients, visitors, and staff with functional and welcoming spaces.

Unique techniques such as, lights on in use patient rooms, helps support the staff and visually show active rooms. Consistency in the rooms was important for nursesease of use. Lastly promotion daylight when possible serves a connection for patients and staff to feel connection to nature.

Created in: Illustrator | Photoshop | Revit | Enscape

Senior Fall Semester | 2024

NURSE HALLWAY

TILEBAR

SHAW CONTRACT CARPET TILE

MOMENTUM PT-3
MAHARAM TEXTILE
CAMBRIA QUARTZ
WILSONART TRACLESS LAMINATE
CAMBRIA QUARTZ
MANNINGTON HOMOGENEOUS FLOORING
MOMENTUM PT-3
MOMENTUM SILIKA
Acoufelt Billow Steelcase Wendelbo Mango
NURSE HALLWAY

DUUP

Multidiciplinary Project (Credit: Madi Clark Gavin Weber, Gloriana Sua, Lauren Fife, Megan Miller, Sophia Grosan)

DUUP(Detroit Urban Upcycled Products) is helping Detroit get involved in the recycling process. Not only does DUUP provide a convenient curbside experience, but users can earn points and shop for sustainable products in store or on the app! Overall, DUUP aims to create a community and connect Detroit’s residents to an exciting system.

Created in: Adobe Illustrator | Revit | Enscape | Rhino | Photoshop

Junior Spring Semester | 2024 | Group Project

CULTURAL CENTER

The cultural center envisioned for Mexicantown aims to foster creativity and bolster community success by infusing the vibrant spirit and rich culture of Mexico into the heart of Detroit, Michigan. Mexicantown, with its thriving atmosphere, requires support to strengthen its foundation. The architectural design of this facility seeks to serve as a beacon of Mexican culture, offering educational opportunities to enlighten individuals about this heritage.

In terms of aesthetics, the design employs a carefully balanced color scheme, with a predominant use of neutral tones that serve to accentuate the building's adaptability and versatility. The space configuration will be tailored to encourage social interaction, fostering an environment where people can cultivate meaningful relationships within the community.

Junior Year Fall Semester | 2023

Preserved Pieces in Vestibule Preserved Pieces from Existing Building

Wood Hexagon Paneling Original Ceiling
Douglas Fir Wood Paneling LVT Shaw
Terracotta Pattern Tile
Dark Wood Veneer

COFFEE TO COCKTAILS

The Coffee to Cocktails project transformed a vintage building into a space that transitions from a cozy coffee shop during the day to a comfortable and charming cocktail bar at night. The project focused on creating an inviting atmosphere through warm wood tones, comfortable seating, and flexible lighting. Large windows allow natural light to flood the space during the day, while sheer curtains soften the light. As evening sets in, warm, amber-toned lighting fixtures create a cozy ambiance, and a dimmer switch allows the lighting to be adjusted to match the mood. The result is a versatile and welcoming space that makes people feel at home and comfortable, whether they’re looking for a cozy spot to work or a relaxing place to enjoy cocktails. This space was worked on for a total of six weeks to transform this space.

Sophmore Year Spring Semester| 2023

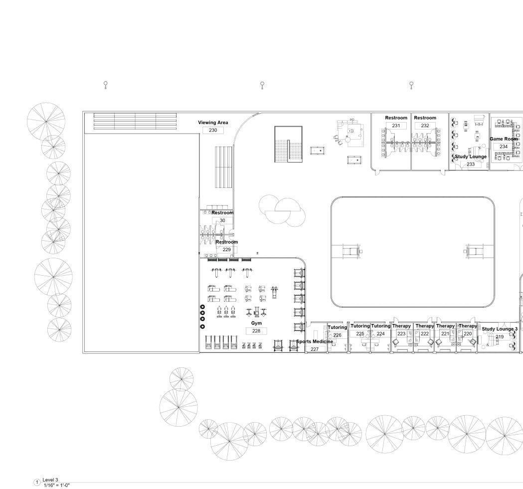
SECOND FLOOR PLAN

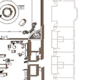
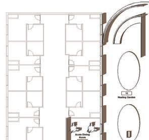
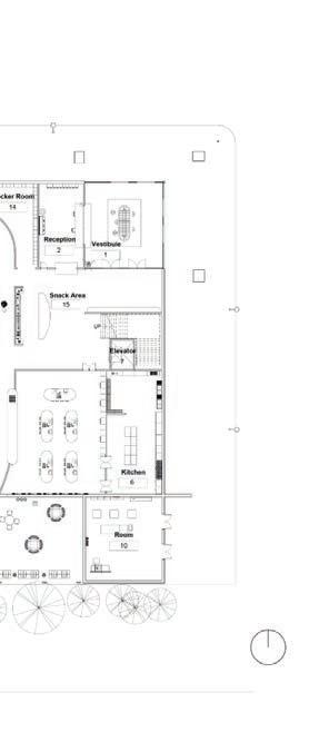
MEMORY CARE FACILITY

This project focuses on the partial renovation of a hypothetical memory care facility based on the real life memory care building called Pine Hills. The Our location is set in Boulder, Colorado, influencing many decisions within the design. The following areas will be examined: the entry/family area, dining, staff space, theater, courtyard, game room and healing garden. The goal of this project is to create desirable spaces for those suffering from memory loss and those around them through the usage of materials, lighting, furniture and spatial configuration.

Sophmore Year Fall Semester | 2022

Created in: Revit/Enscape/Photoshop/Illustrator

NOVAS RESORT & SPA

Novas Spa and Resort brings nature into the interior of the building and connects the establishment to the outdoors. Novas harmonizes the unique features of Arizona with the building’s interior to enhance a users overall experience during their visit. Features will include touches of black in elements and latest technology to modernize the space. The space utilizes bright natural light to amplify the feeling of the outdoors. While maintaining the warmth through sunlight, the spaces are incorporating cool tones to offset the warmth. On top of this, wood elements are scattered throughout to magnify biofillic design. With this approach, Novas encourage a sound mind and sound body.

Sophmore Year Spring | 2023

Created in: Revit/Enscape/Photoshop/Illustrator

CT - 1 Midori Green
CT - 2 Shiny Black
WC - 2 Cloudy Ink
PC - 1 Manor White
LI - 1 Hawby Linen 11145
PES - 1 Pine
WC - 1 Scribble Terracota
PES - 2 Herbal
CPT - 1 Birch
LVL - 1 Walnut

AFTER HOURS

Multidiciplinary Project (Credit: Madi Clark, Haley Dehna, Hannah Resnick, Matthew Kempa, and Daniel Carbajal)

To create a non-profit community organization serving Detroit, driven by participatory research and real-time data from high school students in the city. Our aim is to provide accessible support and resources for Detroit high school students after school hours. This includes showcasing the interior of the community center, complete branding, web design, social media design, and two products to promote this non-profi t.

Junior Spring Semester | 2024

Created

mclark4@ltu.edu

Turn static files into dynamic content formats.

Create a flipbook
Issuu converts static files into: digital portfolios, online yearbooks, online catalogs, digital photo albums and more. Sign up and create your flipbook.