PORTFOLIO | MICHAIL BINIOS

Page 1

MICHAIL BINIOS - PORTFOLIO

CONTENTS

p 04 | Post-Mortem Network

Competition Entry, 2019 - Community Award

p 08 | Occupy Polykatikias

Architectural Design VII, 2020

p. 14 | Tinder Social

Urban Design I, 2019

p 18 | Mobil Park

Diploma Thesis, 2022

p 24 | Places of Glamour / Prevalent Aesthetics

Research Thesis, 2022 / Post-graduate Essay 2023

Post-Mortem Network

Individual Project

Community Award | Publication: 10. DYING, Chapter 3, pp. 133-134 Entry for ‘Dying’ Competition from Non-Architecture September 2019

The Post-Mortem Network contemplaits the alternative future of burials in an imaginary Metropolis. The design concept stems from identifying as the corporate entity that attempts to solve the problem of over-population and the need for a cost effective, yet sentimental way of mourning. Graveyards in the form of towers are placed throughout the Metropolis, where the recently departed are collected, stored, and disposed of, while simutaniously a public space of mourning is created in front of the tower. The system operates in the form of an app that creates a social feed for those in mourning:

‘ Introducing the Post-Mortem Network, the Network that helps you and your city!

The rules are simple:

Step 1: Download the app.

Step 2: Enroll your loved one (We collect them for you!).

Step 3: Wait 2-3 days, to be summoned for their disposal.

Step 4: Proceed to your local Post-Mortem Tower.

Step 5: Visit the Eternal Gardens and wait for your code to show up on the screen.

Step 6: After disposal, you can now Pay Respects (Just hit the PR button!).

Step 7: Watch your PR show up on the Network Feed Screen, for everyone to see!

After your loved one is disposed of, we make sure to collect all the decomposition gases. This way, we minimize their CO2 footprint, while CH4 is redistributed back to all social groups, in the form of clean energy.

Use the Post-Mortem Network for a more sustainable future, today! ’

Functional Image Comic spread that showcases the last trip of user #KD6-3.7. Perspective view of the city tower and section of the public space.
Technical Image Axonometric that analyzes the different parts of an individual tower system. Sections of the individual parts.

Occupy Polikatikias

Project with V. Nistikaki

Supervisor: Panos Dragonas | panos.dragonas@gmail.com

Architectural Design Studio, University of Patras 38°14’33.0”N 21°43’57.9”E - Patras, Achaia, Greece

7th Semester, October 2019 - February 2020

Contribution to this project includes

Site Study

Design Strategy Conception

Design of Plans, Sections and 3D Models

Production of Architectural Plans, Sketches and Drawings

Production of Renderings

The ‘Occupy Polikatoikias’ project analyzes the Polikatoikias (Greek Appartment Blocks) as the Open-Source buildings of the Cold War Era. As time progressed, the original 1950s multy-storey aparment building for the Greek middle-upper class transformed through its programmatic uses, and gradually welcomed all social groups for housing, shops and in the most recent era, galleries, museums and workshops. This project attempts to examine the future of the Polikatoikia, once it is liberated from its existing economic context. Maintaining its Open Source characteristics, the apartment block is gradually remodeled to a self organized and self sustainable building, through the installation of a grid that constitues a modular system.

DESIGN STRATEGY

The proposal forms a METALLIC GRID which is bound to the existing concrete structure, while the old floors and ceilings are selectively removed, allowing experimentation on all of the building’s dimensions.

Woodworking WORKSHOPS with INDUSTRIAL ELEVATORS are established in the first floors of all the block in each building forming a multi-block manufacturing collective, where modular pieces are made by and for the users of the Polikatoikia, that are later assembled and attached to the metallic grid to form MINIMUM LIVING STRUCTURES and furnishing.

The sustainability of the block is supported by rows of SOLAR PANELS facing south on each building, while corridors of HYDROPONIC VEGETATION are part of each Polikatoikia.

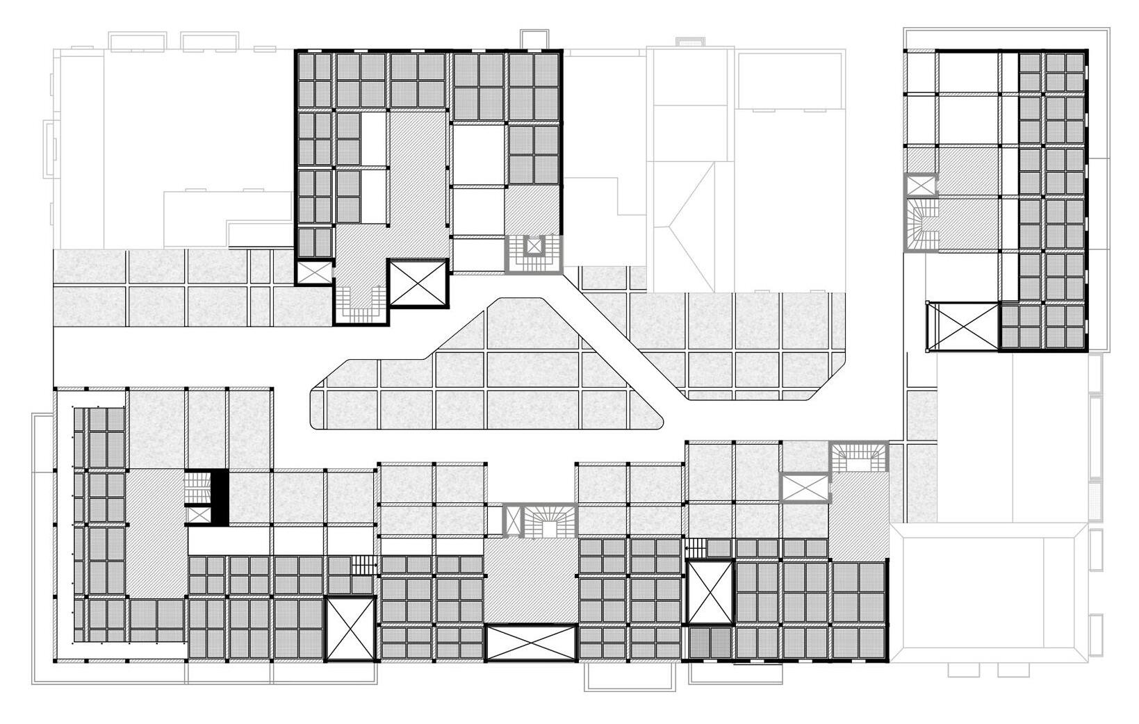
Typical Floor Plan
Rooftop Plan

Tinder Social

Project with M. Kapetanaki

Supervisor: Leonidas Papalamprapoulos | ldlp.architecture@gmail.com

Urban Design Studio, University of Patras 37°59’02.6”N 23°41’53.7”E - Athens, Attiki, Greece

5th Semester, October 2018 - February 2019

Contribution to this project includes

Site Study

Design Strategy Conception

Design of Plans, Sections, and 3D Models

Production of Architectural Plans, Sketches and Drawings

Tinder Social is a tale of privatization through the scenario of a fictional Tinder owned park in the city of Athens. The area of Eleonas is perceived as the industrial heart of Athens, where in the latest years multiple attempts of gentrification have been made against the low income population that have found shelter there. In this scenario, the well known dating app reuses this space to construct a thematic part around dating, creating a hybrid of privatized public space that can operate under a very specific coprorate governance of living habits.

Μια υπερδομή που περιέχει κατοικίες στην μορφή μιας μικρής αμερικανικής προαστιακής κοινότητας

A hyperstracture containing living spaces in the form of small scale american suburbs functions as the hotel, where the users of the park are invited to stay. The park itself is containted by the existing avenues, which are transformed to shopping boulevards by the use of billboards that advertise the park’s facilities. Along the boulevards, a system of open-source structures is designed, offering spaces to companies that wish to provide to the park’s activites

λειτουργεί ως το ξενοδοχείο, όπου οι χρήστες της εφαρμογής μπορούν και διαμένουν. Το πάρκο οριοθετείται από τους υπάρχοντες δρόμους της περιοχής, όπου τοποθετούνται σειρές από Billboards, οχυρώνοντας το πάρκο και τις προγραμματικές χρήσεις. Κατά μήκος των λεωφόρων, κατασκευάζεται σύστημα ανοιχτής δομής, που φιλοξενεί συνεργαζόμενες εταιρείες που προσφέρουν τις υπηρεσίες του πάρκου.

Mobil Park

Individual Project

Supervisor: Leonidas Papalampropoulos | ldlp.architecture@gmail.com

Diploma Thesis, University of Patras

February 2021 - September 2022

The main theme of this project is the repurposing of off-shore oil rigs for the design of a motel park. The starting point of the research was the birth of the travelling guides, which were created from oil companies in an attempt to familiarize car-based tourism to the wider public, setting off the five-star hotel rating system that is still in use today.

Firstly, the practices of companies that translate their technological advancements to everyday politics are analyzed, while the case of ExxonMobil is studied furtherly, as the creator of the first travel guide. Then, the structure of the offshore oil rigs that will be used in the Greek coasts are researched, leading to the choice of systematic typologies.

Parts of the semi-submersible oil rigs are then recycled and repurposed as the facilities of the motel park, positioned statigically on the Egnatia Odos, which is part of the European Route 90, as a means of promoting international automobil based tourism.

Finally, according to the standards of the five-star rating system of the travel guide, three major stops are designed across the route, that offer the services of accommodation, athleticism and amusement.

Masterplan | Main Route Built Environment Wetland Low Plantation Crop Plantion Forest Field
Oil Rig State Modification Columns / Pontoons / Passages ---> Accommodation Hub Oil Rig Tower ---> Fun Tower Platform Grid ---> Athletic Club Final State
Accomodation Hub Section Accomodation Hub Plan Accomodation Hub Suite Axonometric
Fun Tower Axonometric
Accomodation Hub Perspective View

Places of Glamour

Individual Project

Supervisor: Leonidas Papalampropoulos | ldlp.architecture@gmail.com

Research Thesis, University of Patras September 2021 - February 2022

The first part of this research concerns the historic material practices of ‘Glamour’, as a form of aesthetical social power, from the medieval ages to the Cold War era. Further, the concept of ‘Domesticity’ is analyzed in the context of the progress of the modern house from shelter to personal commodity, according to the gender roles of its age. The psychological effect of Glamour is studied, based on the studies of envy, emulation and sublimation. The Honeymoon Resorts in Pocono’s are then showcased, as the primary example for a performative gendered architecture that uses Glamour as its mechanism of creating role models and the spaces around them.

Prevelant Aesthetics: The Dimensions of Glamour

Individual Project

Supervisor: George Parmenidis - Course: Architecture as a Field of Research II: On the Conceptual Framework and Body of Research by Design

National Technical University of Athens February 2023 - June 2023

After the study of the historical phases of Glamour, its relevance is being researched in the context of contemporary Athens. Given that each historical phase deplores its own typologies and vocabulary of describing the prevelant architectural object, each typology is marked on the map of the city, and is then connected with its neighbouring typologies of the same phase, through a parametrical network.

Furtherly, the syntactical relations of each typology are then redrawn as a radial diagram, thus creating the semantic network of typologies of Glamour. In this way, the dimensions of Glamour as a means of creating and redefining prevelant aesthetics is showcased, offering a second reading of the architectural object in the contemporary urban landscape.

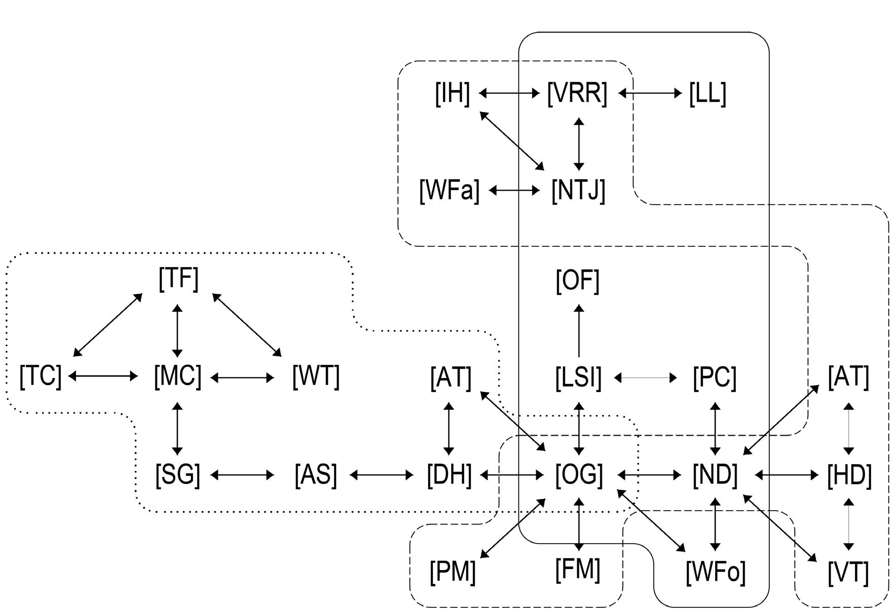
Διάγραμμα Συνακτικού Δικτύου

1. Τυπολογίες ‘Μεταφυσικού’ Αποπροσονατολισμός (Thaemlitz) [LSI], [NLP], [PC], [OF]

Τεχνολογική Εμβίθυση (Thrift) [NTJ], [VRR], [LL]

Επιβολή στο Φυσικό (Mukerji) [ND], [OG], [LSI], [PC], [WFo]

2. Τυπολογίες ‘Αριστουργήματος’

Επένδυση/Υλικότητα (Berger) [MC], [WT], [TC], [TF], [WC], [SC], [SG]

Artificial Infinity (Burke & Phillips) [OG], [DH], [AS], [AT]

3. Τυπολογίες ‘Εξιδανεκευμένου’ Εγκλειστικότητα (Kim) [ND], [HD], [AT], [VT]

Ανοιχτότητα Διαχείρισης (Colomina) [FM], [OG], [IH], [PM]

Καινοτομία (Phillips) [IH], [NTJ], [TC], [VRR], [WFa]

Μachine no.3
Cold War Perfomativity
issuu.com/mbinios/docs/portfolio-mbinios

Turn static files into dynamic content formats.

Create a flipbook
Issuu converts static files into: digital portfolios, online yearbooks, online catalogs, digital photo albums and more. Sign up and create your flipbook.