

PORTFOLIO MELANIE BIGENHO
INTERIOR DESIGN

CONTACT
714-615-9741 melanie.bigenho@gmail.com Portland, OR

portfolio booklet

BIOGRAPHY
MELANIE BIGENHO is a recent graduate from PCC emerging into the Interior Design industry with longstanding interests in art, drawing, watercolor, and home decorating and remodeling. Identifying as "indoorsy", Melanie thrives in designing intimate residential and hospitality interiors using the science of design such as ergonomics, functionality, and organization.
In her free time, she dances ballet, tends to her houseplants, and enjoys a slow morning with a cupofmatcha.
TRADITIONAL FARMHOUSE KITCHEN
Deepa Doshi and Owen O'Brien live in upstate New York with their four-year-old daughter, Priya. Deepa, 5'-2", loves to bake and takes on the role of cleaning up dinner She prefers lots of surface area and a roomy kitchen. Accessibility for Priya will allow her to learn to prepare her own snacks and to help her mother cook Owen, 6'-1", is a self-proclaimed foodie and grill master.
Together, they prefer a farm-to-table approach to meal prep and take pride in their backyard herb and vegetable garden Seating for entertaining small groups as well as accessibility for their parents with mobility restrictions is also on their wish list.
Aesthetically, they would like to incorporate visual elements from Deepa's Indian heritage alongside natural wood and a pop of color.

RENDERED RANGE WALL ELEVATION

RENDERED BAKING CENTER WALL ELEVATION


SPACE PLANNING
Work Stations Spaced to Avoid Conflict of Multi Person Work Flow
Natural Light and Air Flow Achieved by use of Thoughtful Window Placement
Drawer and Cupboard Inserts for High Functionality and Convenience
UNIVERSAL DESIGN
Wide Traffic Aisles
Multiple Height Counters
Pull Out Step Stool
Table Serves as Island Work Area as well as Seating with Wheelchair Access




ELECTRICAL LEGEND
LIGHTING LEGEND

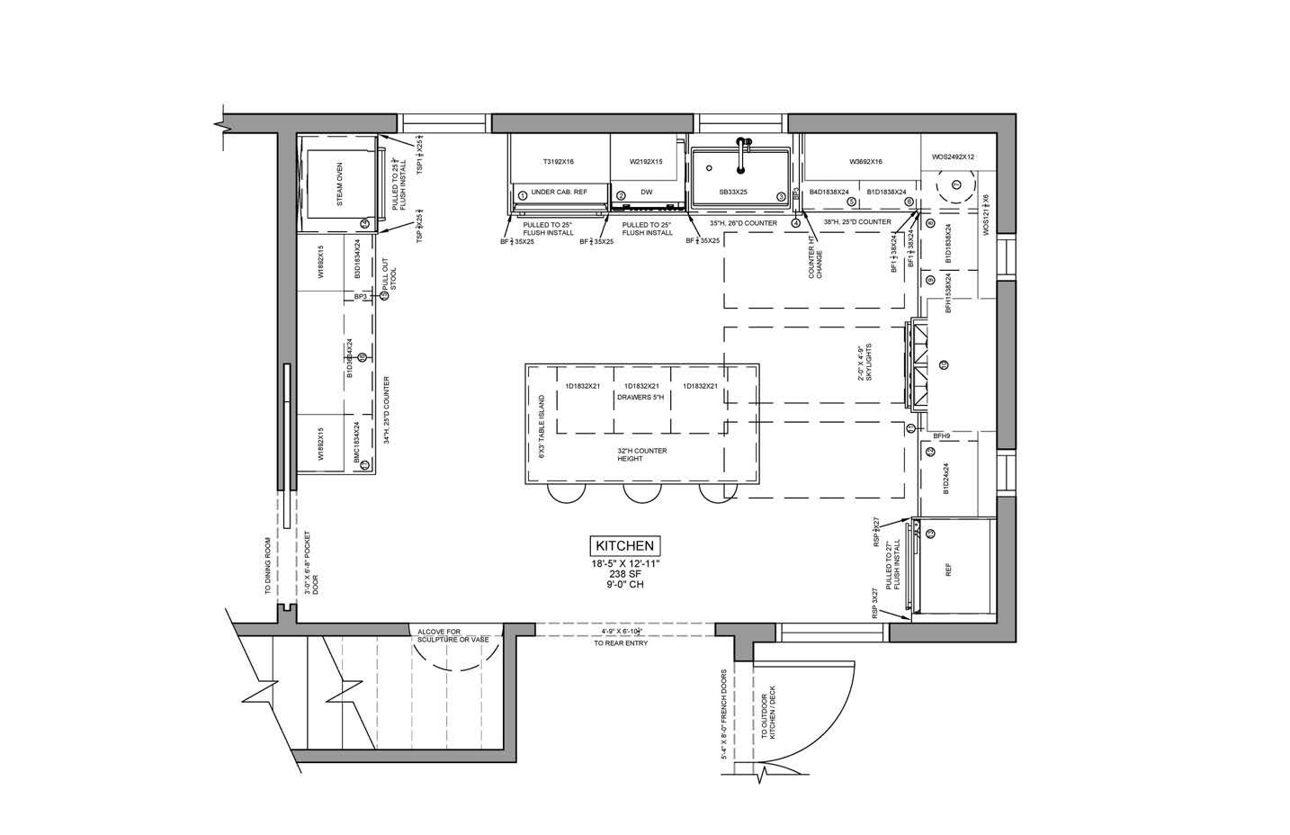
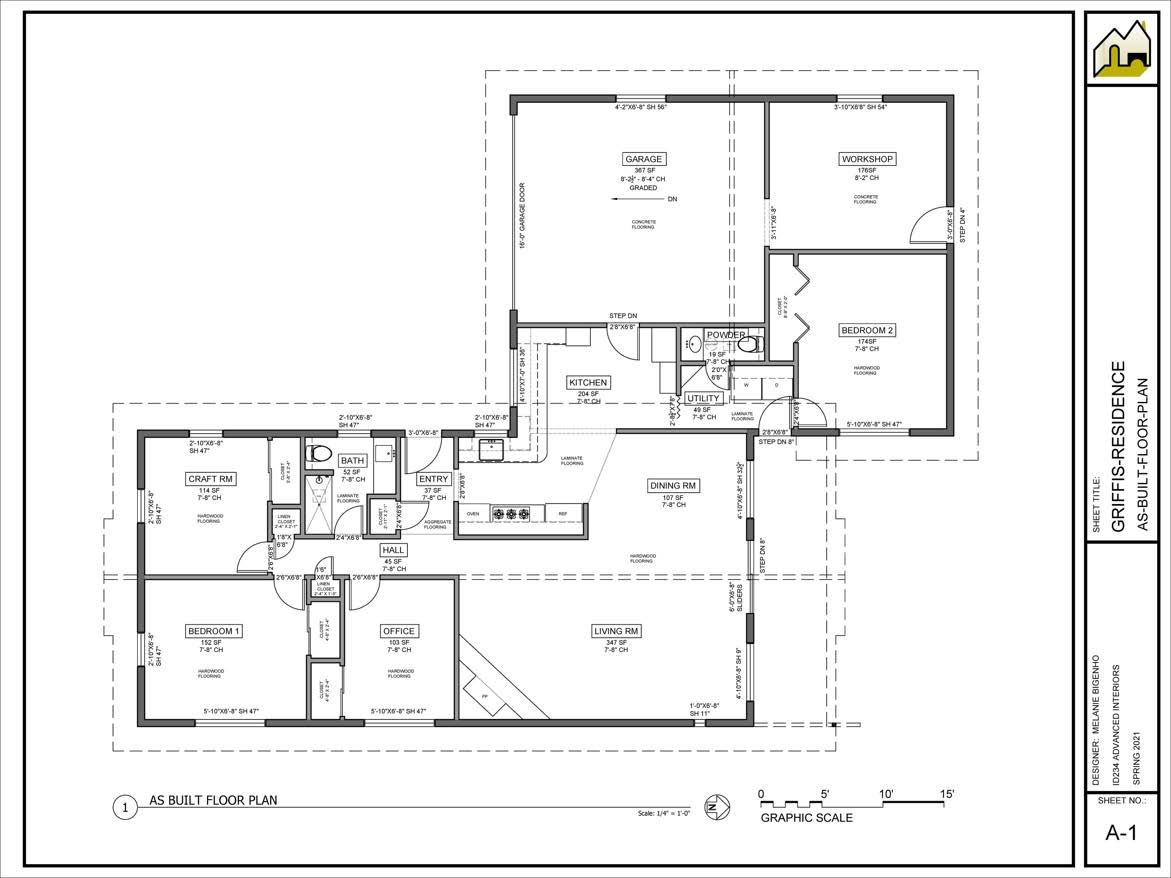
FLOOR PLAN

LINEAR CABINET PULLS
Easiertooperateforuserswithhand andgripmobilityissues



Farm Style TableFeaturingDrawers,PowerOutlets, ExaggeratedTurnedLegs



KITCHEN FAUCET
Lever handle; Pull down spout with 3functionsprayhead; 1.5GPM


Lower Cabinet MaterialWalnut
Upper Cabinet PaintEgretWhite
BACKSPLASH MOSAIC TILE
Flooring
Pendants over Table

WEST ELEVATION - SINK WALL


CROWN MOLDING UNDER-SHELF FINIALS

PAINT SELECTIONS
EcoSelect;ZeroVOC; GreenguardGoldCertified

Trim PaintEgretWhite
Wall PaintAlabaster



Cabinet + Mid-Rise Range
Wall PaintHighStrung

BASE MOLDING
CABINET CROWN MOLDING





NORTH ELEVATION - RANGE WALL


SOUTH ELEVATION - BAKING CENTER
TRANSITIONAL RUSTIC BATHROOM
In addition to their kitchen, the Doshi-O Brien family has also decided to remodel their library turned bathroom of their foursquare home to be a serene, family-forward space with accessibility in mind first and foremost. Their in-laws, who have mobility limitations, visit for extended stays and requested a barrier-free shower and seating throughout for rest Ample storage, high functionality, a seamless connection to the outdoors, and sustainable selections are also critical to the design
Aesthetically, they like a warm, rustic and textural palette and like their kitchen project, would like to pull some inspiration from Deepa s Indian heritage

RENDERED SINK + FIREPLACE WALL ELEVATION

FLOOR PLAN

SUSTAINABILITY
Low Flow Fixtures
Consciously Sourced Products
Alternative "Look" Materials Greener than their Original Counterpart

UNIVERSAL DESIGN
Clearances
Visitability
Walk-In Tub , Rest Areas
Family Use
INDOOR | OUTDOOR
Biophilia
Blending of Boundaries
Organic Silhouettes + Materials
Landscaped Private Patio
Elements - Earth, Air, Fire, Water
PLAY WITH LINES
Circles + Semi Circles
Arches
Elongated Rectangles
Soft, Organic Shapes Offset Uniformity



EAST ELEVATION




Patio Floor Tile
Accent Wall Tile
LINEAR GAS FIREPLACE
Highefficiency,clean burningfueloffers healthyindoorairquality and99%lesspollutants thanitswood-burning predecessor.
Double-paneglassand co-linearventsystem allowfacadeand adjacentsurfacesto remainatemperature safetothetouch.




LEVER HANDLES + PULLS
Easier to operate for users with handandgripmobilityissues


Swivels to accommodate users of differingheights

Shallow sink height paired with floating vanity allows a user in a wheelchair to roll rightuptovanitywithnoobstructions. FollowsADAdimensionalclearances.



RAW LAVA STONE VESSEL SINK
VANITY MIRROR




NORTH ELEVATION A
INTERIOR HARDSCAPES
Ceramic tiles and composite materials selected over natural stone provide more sustainable options. Lower lifetime carbon footprint; less invasive extraction process; more local sourcing and shipping.
WalnutShowerSeat
Accent Wall TileArden
Floor + Wall TileNirvana
NORTH ELEVATION B
PAINT SELECTIONS EcoSelectzeroVOC;



Wall PaintAlabaster
Cabinetry PaintAnewGray
Door + Window Trim PaintCitronella






LIVE EDGE WALNUT
FLOATING BENCH
Fireplaceseating extendingintoflush wrap-aroundtub andfaucetdeck.
SHOWER BENCH
Seating,pairedwith ahandheldshower andnothreshold entry,allowfora rangeofphysical abilitiesandcomfort.



MID-CENTURY MODERN RANCH
Corrinna Griffis is a Mid-century Modern enthusiast, a passion that spills into several of her hobbies as well as visions for her home. She collects MCM furniture, an ongoing process, such as Kent Coffey Perspecta and Broyhill Brasilia pieces She also rides scooters sews vintage dresses, and quilts these hobbies having dedicated rooms in her house. Most importantly, she loves to entertain. She s often throwing dinner or barbeque parties for friends and family She s passionate about cooking especially for entertaining, and while the living areas flow well for parties, Corrinna could use a better functioning kitchen space
While her main goal for the house is to create punchier, mid-century architectural details to her period-accurate ranch home she is also is interested in creating a better living room furniture layout, harnessing more natural light, revamping the color palette, and a total remodel of the addon bedroom suite.


INSPIRATION
CLIENT'S MCM FURNITURE COLLECTION
KentCoffeyPerspectaHutch(Left)
BroyhillBrasiliaRecordCabinet(Below)

BOW-TIEARCH


DESIGN DEVELOPMENT




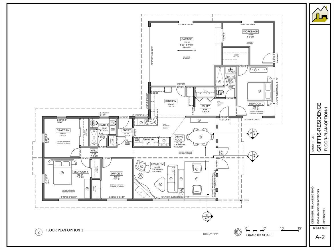
FLOOR PLAN


MID-CENTURY MODERN "BOW-TIE" ARCH
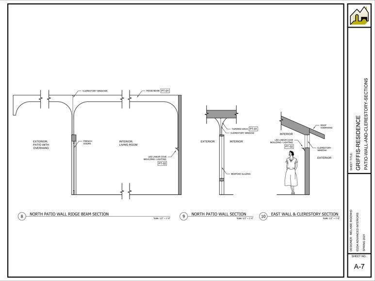
The "bow-tie" elements seen in the client's furniture collection served as inspiration for the patio feature wall and many other curved architectural elements and furniture silhouettes throughouttheliving+diningroomdesign.




RIDGE BEAM SECTION NORTH WALL SECTION EAST WALL SECTION
NORTH ELEVATION - PATIO WALL



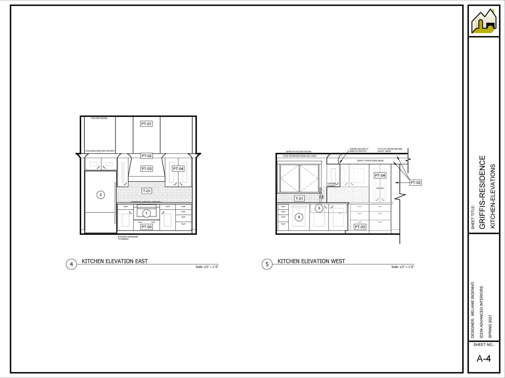
WEST ELEVATION - SINK WALL
EAST ELEVATION - RANGE WALL


CONTEMPORARY TUDOR MEDIA WALL
The Carman family decided to redesign their recreation room in their 1927 Tudor Style home in Portland, Oregon. The design includes new flooring, a media wall, and a wet bar with plenty of storage and display Honoring the traditional Tudor style of the home’ s heavy woodwork, high paneled walls, and deep, sophisticated palette, the design took shape with Tudor silhouettes in a contemporary style to modernize the aesthetic and functionality for present day needs. Classic shapes such as the Tudor Arch over the fireplace are modified, suiting the linear theme of architectural elements proposed in this design
The Carman’ s new recreation room embodies a feeling of warmth, texture, utility, and a welcoming space for the whole family to gather.





HAND RENDERED FLOOR PLAN
Hardwood Flooring
Terrazzo Flooring
Quartz Counter + Hearth
Schluter Floor Trim





HAND RENDERED MEDIA WALL + WET BAR ELEVATION
Birdseye Veneer
Upper Cab Panels
Tile Backsplash
Paper Bark Veneer

PHOTOSHOP RENDERED MEDIA WALL + WET BAR ELEVATION


RENDERED
SKETCHUP MODEL WITH ENSCAPE PLUG-IN

