
I N T E R I O R D E S I G N E R
















Construction Administration Submittal review
Bluebeam markup
Language to convey nuanced appearance & clear expectations
STEEL TUBING, ELECTRICAL HOUSING, DUCT WORK CELEBRATED
ORGANIC TEXTURES BRING SOFTNESS TO INDUSTRIAL ELEMENTS
GROUNDING BLACK WOOD & METAL MESH ACCENTS





ACCENT WALLCOVERING AT THEATER ENTRY
ARMSTRONG ACOUSTIC WOOD CEILING
STAINED POLISHED CONCRETE
RAISED SIDE TABLES
FABRIC WRAPPED ACOUSTIC PANELS AND ANTIQUED MIRRORS WITH WOOD TRIM DETAILS
REMOVED SUSPENDED CEILING
CARPET TILE THROUGH GAME ROOM & BOWLING LOUNGE
DECORATIVE SCREENS SCONCE AT ENTRY
ACCENT WALLCOVERING




SEATED ARCADE GAME







Finishes & light fixtures sourced 3D modeling Sketchup
Sent to 3rd party renderer
Redlined 3rd party rendering for final approval












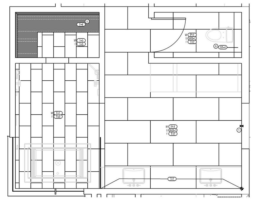
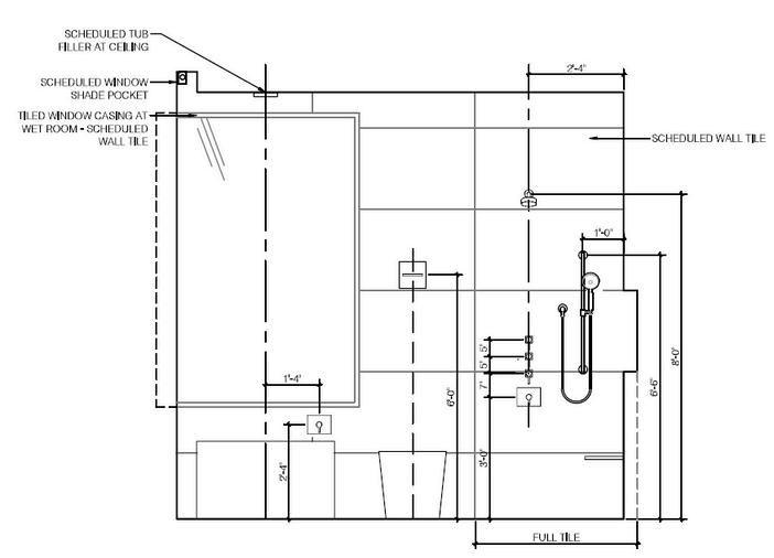
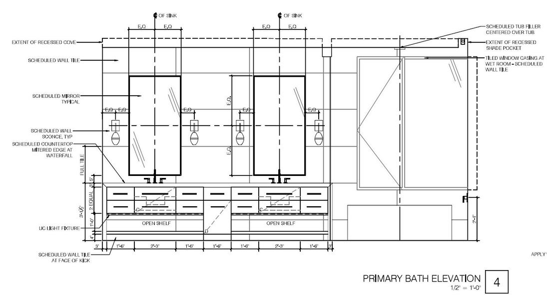
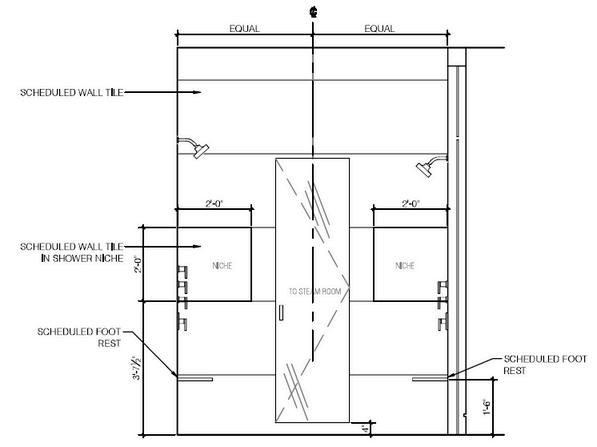
Drafting Plans
Elevations








Finishes, plumbing fixture, & hardware sourced Confirmed accurate sizing in plans & elevations

Palette development



H A N K Y O U