Portfolio Mayra Machado

Page 1


PORTFOLIO.

/ SELECTED WORKS

ARCHIT. MAYRA MACHADO

| ARCHITECT AND PROJECT MANAGER

CONTACT ME:

e-mail: machadom.mayra@gmail.com

phone: +1 917 526 8336

74-27 93rd avenue, Woodhaven, Queens, NY 11421

LinkedIn: linkedin.com/in/mayra-alejandra-machado-mendoza-8566a62b0

I’m a driven and results-oriented Architectural Project Manager with 6+ years of international experience delivering high-impact projects. Proven track record of successfully designing and managing large-scale government initiatives, retail, office spaces, public schools, luxury multifamily buildings and hotels.

Passionate about transformative architecture, leverage my expertise in strategic planning, team leadership and effective communication to drive meaningful change. My multicultural background and commitment to sustainability inform my approach to innovative design solutions.

Best regards

Mayra Machado Mendoza Architect and Project Manager

• EDUCATION

Bachelor´s degree in Architecture and Urbanism

Pontifical Catholic University of Peru (PUCP) - Lima, Perú

PMI Project Management Course basic and advance level Certificate - (40hrs)

National University of Engineering (UNI) Lima, Perú

APM (Agile Project Management) - LPM (Lean Project Management) (40hrs)

Telefonica Movistar Foundation - Online

PMP Certification International Course - (80hrs)

Projectum Institute - Online

PROCORE Architect Certification

PROCORE Learning - Online

Diploma in Design and Illustration

Leo Design Institute Lima, Perú

OSHA 30 - Hours Certification

OSHA Education Center Online

AutoCAD technical specialist

CEPS - UNI Lima, Perú

LANGUAGES

SOFT SKILLS • WORK EXPERIENCE

PROJECT MANAGER - MSC CONSTRUCTORA SAC

03.2023 - 04.2024 Lima, Perú

Led Ministry of Housing Project, acquiring 1,750 Temporary Housing Modules for emergency response

Executed educational module projects for PRONIED (Ministry of Education) in vulnerable areas

Delivered 110 modules in Selva, 64 in Coast, and 54 in Sierra within established deadlines

Managed architectural project teams, ensuring agency approval, contract documentation, and construction administration

Dedicated to serving vulnerable communities through sustainable architecture

Proven expertise in emergency response and disaster relief projects

Committed to improving educational infrastructure and accessibility

SITE ARCHITECT - MR ARQUITECTOS ASOCIADOS

07.2022 - 02.2023 Lima, Perú

Supervising the successful remodeling of 5 floors at Casa Andina Premium

Hotel

Developing comprehensive project costs, budgets and schedules

Coordinating subcontractors, reviewing fabrication drawings and ensuring timely delivery

Overseeing construction processes in the field

Project planning, coordination and execution

Quality control, ensuring exceptional finishes and standards

Timeline monitoring, meeting deadlines and budgets

Cost management, optimizing resource

CONSTRUCTION MANAGER - GESTIÓN UNO

09.2021 - 06.2022 Lima, Perú

Managed production process for IPESA office remodeling and expansion

(6,243 sq ft)

Coordinated team and paperwork production, including architectural drawings

Resolved design conflicts through the RFI process

Reviewed and approved technical details and specifications

Conducted risk control and mitigation strategies

Monitored subcontractors and material suppliers

Ensured quality control and assurance

QUALITY CONTROL MANAGER - INMGENIO / 08.2020 - 08.2021 Lima, Perú

• Ensured quality control for 6-story multifamily building with A1 finishes

• Achieved LEED certification

• Conducted rigorous quality control inspections to ensure compliance with project specifications

• Managed and monitored protocols with subcontractors, addressing deviations and implementing corrective actions

• Compiled and maintained comprehensive documentation for Quality Dossier

PROJECT ARCHITECT CONSORCIO CAROLINA / 01.2019 - 03.2020 Lima, Perú

• Design and execution of remodeling and expansion works for hotels, casinos and retail stores.

• Manage multiple projects simultaneously: 5 forks restaurant in Pucallpa, 3 clothes stores in Ica, and 1 hotel in Lima.

• Conceptualized and developed architectural designs}

• Conducted site supervision and quality control

• Prepared and managed project schedules and budgets

• Coordinated subcontractors and suppliers

PROJECT MANAGER CC METRO LINEA 2 DE LIMA / 01.2018 - 12.2018 Lima, Perú

• Managed review and update of technical files for Lima Electric Train stations Line 2

• Prepared descriptive reports and coordinated with specialists

• Ensured compliance with regulatory requirements

• Reviewed drawings and techical details

ASSISTANT PROJECT MANAGER - PISSANO SAC y DESARROLLADORA 01.2016 - 10.2017 Lima, Perú

Supervised luxury multifamily development (2 buildings)

Managed project timelines and deadlines

Coordinated subcontractors and laborers

Selected finishes for kitchens, closets, bathrooms, floors and coverings

Ensured quality control and adherence to standards

Coordinated design and finish selection

Verbal and written communication

Presentation skills

Conflict resolution

Negotiation

Leadership and Teamwork

Problem-solving

Decision-making

Time Management and Organization

Problem-Solving and Analytical Skills

Risk management

Quality control

Stakeholder engagement

Adaptability and Flexibility

Budgeting and cost control

Design thinking

SOFTWARES AND TECHNICAL SKILLS

ACADEMIC PROJECTS

08. 03. 07. 02. 06. 01. 09. 04. 10. 05.

CASA ANDINA PREMIUM HOTEL REMODELING

“POLLO” RIVER PUBLIC PLAYGROUND

ALPACA SAWU PROJECT / THESIS PROJECT

“INTENSE” MULTIFAMILY BUILDING

EDUCATIONAL MODULE PROJECTS / COSTA, SIERRA Y SELVA

TEMPORARY HOUSING UNITS FOR EMERGENCY RESPONSE

MODULAR PUBLIC SCHOOLS / COSTA,

PREFABRICATED MODULES FOR PERU’S NATIONAL ARCHAEOLOGY MUSEUM IPESA OFFICE BUILDING REMODELING

ACADEMIC PROJECTS

2014-2015 / PUCP

| HEALTH TECHNICAL HYBRID BUILDING

Location: Lima Peru

Type: Hybrid Building

My role: project designer

Year: 2014

Mixed-Use Building Project: Integrating Health Education and Community Spaces

This project presents a holistic mixed-use development incorporating private and public realms, addressing health-related requirements while synergizing with the adjacent Santa Rosa Hospital. The design seamlessly integrates architectural innovation, academic excellence and community engagement.

DIAGRAMA DE ACTIVIDADES

The program comprises a Technical Medical Education Center for healthcare training, a multimedia Media Library, a social Café, flexible Common Areas for community interaction and dynamic Exhibition Spaces for showcasing healthcare innovations. These components foster a vibrant ecosystem promoting education, socialization and community wellness.

Architecturally, the project embodies contemporary sustainable design principles, incorporating green building technologies and optimizing natural ventilation and daylighting through a ventilated façade. Adaptive spaces ensure flexibility, while universal accessibility ensures equitable access. Context-sensitive urban integration harmonizes the development with its surroundings.

Notably, the building’s volumetric composition generates a vibrant public square, serving as a communal hub for neighbors and the floating population.

This shared space fosters social connection, community engagement and urban vitality, rendering the building a milestone in the urban fabric. By integrating civic and educational functions, the project revitalizes the city’s social core.

Urban design objectives prioritize creating an iconic community landmark, stimulating local commercial and educational activity and enhancing connectivity with Santa Rosa Hospital. Ultimately, the project fosters improved quality of life through accessible healthcare education, community engagement and socio-economic growth.

ESTRATEGIAS PROYECTUALES

ESTRATEGIAS PROYECTUALES

ESTRATEGIAS PROYECTUALES

/ PROJECT STRATEGIES

UBICACIÓN DEL LOTE

CARÁCTER DE VOLUMETRÍA

PROJECT LOCATION

UBICACIÓN DEL LOTE

UBICACIÓN DEL LOTE

UBICACIÓN DEL LOTE

El proyecto se emplaza en un lote aledaño al hospital Santa Rosa. La ubicación de esquina le da una jerarquía importante dentro de la trama urbana. El lote se ubica en una zona altamente transitada debido a la atividad educativa y al equipamiento de salud, que genera una hran confuencia de trabajadores, estudiantes y poblacion flotante

UBICACIÓN DEL LOTE

UBICACIÓN DEL LOTE

El proyecto se emplaza en un lote aledaño al hospital Santa Rosa. La ubicación de esquina le da una jerarquía importante dentro de la trama urbana. El lote se ubica en una zona altamente transitada debido a la atividad educativa y al equipamiento de salud, que genera una hran confuencia de trabajadores, estudiantes y poblacion flotante

El proyecto se emplaza en un lote aledaño al hospital Santa Rosa. La ubicación de esquina le da una jerarquía importante dentro de la trama urbana. El lote se ubica en una zona altamente transitada debido a la atividad educativa y al equipamiento de salud, que genera una hran confuencia de trabajadores, estudiantes y poblacion flotante

INTENCIÓN URBANA

URBAN INTENTION

INTENCIÓN URBANA

INTENCIÓN URBANA

El instituto técnico para la salud busca generar una relación a diversas escalas entre el hospital y el entorno urbano

CARÁCTER DE VOLUMETRÍA

The project is located on a plot adjacent to Santa Rosa Hospital, leveraging its strategic corner location within the urban grid. The area is highly trafficked due to educational and healthcare activities, generating a steady flow of workers, students and transient populations VOLUMETRIC CHARACTERISTICS

CARÁCTER DE VOLUMETRÍA

The project features two distinct volumes:

CARÁCTER DE VOLUMETRÍA

CARÁCTER DE VOLUMETRÍA

CARÁCTER DE VOLUMETRÍA

El proyecto esta compuesto basicamente por dos volumenes, uno contiene los programas fijos y privados como lo son los las aulas de estudio y consultorios, y el que se ubica en la esquina, los programas semipúblicos, como lo es la mediateca, área de recreación y cafetería.

El proyecto esta compuesto basicamente por dos volumenes, uno contiene los programas fijos y privados como lo son los las aulas de estudio y consultorios, y el que se ubica en la esquina, los programas semipúblicos, como lo es la mediateca, área de recreación y cafetería.

1. A fixed, private volume housing study rooms and consultation offices.

2. A corner volume hosting semi-public spaces, comprising the media library, recreation area and café.

TRANSICIÓN DE ESCALAS

El proyecto esta compuesto basicamente por dos volumenes, uno contiene los programas fijos y privados como lo son los las aulas de estudio y consultorios, y el que se ubica en la esquina, los programas semipúblicos, como lo es la mediateca, área de recreación y cafetería.

TRANSICIÓN DE ESCALAS

TRANSICIÓN DE ESCALAS

El instituto técnico para la salud busca generar una relación a diversas escalas entre el hospital y el entorno urbano

The Technical Health Institute seeks to establish a interconnected relationship at multiple scales between the hospital and the urban environment, promoting harmonious integration.

El instituto técnico para la salud busca generar una relación a diversas escalas entre el hospital y el entorno urbano

INTENCIÓN URBANA

INTENCIÓN URBANA

INTENCIÓN URBANA

TRANSICIÓN DE ESCALAS

Los volúmenes que se anexan a la volumetria principal, de carácter público, permiten generar relaciones a diversas escalas en un mismo edificio, desde la plaza publica que respeta el caracter peatonal y barrial, hasta el gran volumen que corona el edificio y resalta el carácter de hito urbano, propio de un edificio de escala

ESCALA METROPOLITANA

The building aspires to be a prominent urban landmark at the metropolitan scale, featuring a striking vertical volume harmoniously integrated with the surrounding urban context

MONUMENTAL

Se busca que el edi cio sea un hito urbano a escala metropolitana. Por ello se propone un volumen marcadamente vertical, el cual también respeta las alturas de su entorno urbano.

Se busca que el edi cio sea un hito urbano a escala metropolitana. Por ello se propone un volumen marcadamente vertical, el cual también respeta las alturas de su entorno urbano.

ESCALA MONUMENTAL

Se busca que el edi cio sea un hito urbano a escala metropolitana. Por ello se propone un volumen marcadamente vertical, el cual también respeta las alturas de su entorno urbano.

PLAZA SPACE

VACIO PLAZA

A volumetric void creates a public plaza at street level, linking the exterior and hospital. This plaza extends the street, providing a recreation area, meeting point and shaded space for residents and transient populations

VACIO - PLAZA

VACIO - PLAZA

VACIO - PLAZA

Se genera un vacio en el volumen que permite generar una plaza pública a nivel de calle la cual sirve de nexo entre el exterior y el hospital. Esta plaza es una prolongacion de la calle, la cual sirve como nueva zona de recreación, punto de encuentro y área de sombra para tanto los vecinos, como la alta cantidad de población otante

Se genera un vacio en el volumen que permite generar una plaza pública a nivel de calle la cual sirve de nexo entre el exterior y el hospital. Esta plaza es una prolongacion de la calle, la cual sirve como nueva zona de recreación, punto de encuentro y área de sombra para tanto los vecinos, como la alta cantidad de población otante

Se genera un vacio en el volumen que permite generar una plaza pública a nivel de calle la cual sirve de nexo entre el exterior y el hospital. Esta plaza es una prolongacion de la calle, la cual sirve como nueva zona de recreación, punto de encuentro y área de sombra para tanto los vecinos, como la alta cantidad de población otante

TRANSICIÓN DE ESCALAS

TRANSICIÓN DE ESCALAS

Los volúmenes que se anexan a la volumetria principal, de carácter público, permiten generar relaciones a diversas escalas en un mismo edificio, desde la plaza publica que respeta el caracter peatonal y barrial, hasta el gran volumen que corona el edificio y resalta el carácter de hito urbano, propio de un edificio de escala metropolitana.

Los volúmenes que se anexan a la volumetria principal, de carácter público, permiten generar relaciones a diversas escalas en un mismo edificio, desde la plaza publica que respeta el caracter peatonal y barrial, hasta el gran volumen que corona el edificio y resalta el carácter de hito urbano, propio de un edificio de escala

The annexed public volumes facilitate multifaceted scale relationships within a single structure, spanning from the pedestrian-friendly public plaza to the crowning volume emphasizing metropolitan-scale urban landmark character.

METROPOLITAN SCALE
ESCALA METROPOLITANA
VACIO PLAZA
ESCALA MONUMENTAL
ESCALA METROPOLITANA
VACIO PLAZA
ESCALA

DIAGRAMAS CONCEPTUALES

/ CONCEPTUAL DIAGRAMS/

ESCUELA TÉCNICA DE SALUD

FISIOTERAPIA

PEDIATRIA

OBSTETRIC A

TRANSICIÓN DE ESCALAS

PROGRAMA SEM PÚBLICO

MEDIATECA

RECREACION

ESPACIO PÚBLICO

ELEVACIONES

/ GENERAL SECTION / ARCHITECTURAL ELEVATIONS

ELEVACIÓN

DETALLE DESPIECE

PANEL GIRATORIO DE SUPERBORAD 6MM CON TEXTURA LISA COLOR MARRÓN CON MARCO

METÁLICO ACABADO EN GRIS DE 5CM X 10 CM

MÉNSULA DE ACERO GALVANIZADO ACABADO EN PINTURA NEGRA ANCLADO A LA LOSA PARA SOPORTAR PANEL GIRATORIO

VANO FIJO DE VIDRIO TEMPLADO TRANSLUCIDO E:6MM

LOSA COLABORANTE E:12.5CM

FALSO TECHO HUNTER DOUGLAS METÁLICO LUZASON 84B

VANO FIJO DE VIDRIO TEMPLADO TRANSLUCIDO E:6MM

VIGUETA METALICA DE ACERO GALVANIZADO 10CM X 15CM

VIGA METÁLICA DE SECCION “I” ACABADA EN PINTURA NEGRA 42CM X 25CMM

PERFIL DE ACERO GALVANIZADO ACABADO EN PINTURA GRIS 5CM X 10CM

BARANDA DE VIDRIO TEMPLADO TRANSLUCIDO E:8MM

LOSA DE CONCRETO

CIELO RASO DE DRYWALL ESTRIADO

de Marte, lo cual destaca la escala metropolitana caracteristica de la zona. El proyecto se emplza en la zona donde confluyen la av. 28 de Julio y la Via. El proyecto propone revitalizar la manzana a partir de abrir una calle en ella a que sirva de conexion entre el parque y el exterior, generando un espacio umbral entre estas dos realidades urbanas opuestas y generando continuidad dentro de la escala peatonal. El proyecto se desarrolla a partir de 3 elementos básicos rescatados de la zona, como lo son, el patio comun caracteristico de las quintas republicanas, un basamento que alberga un programa comercial de vivienda que se conecta a diversa escalas con el exterior y las 4 torres de vivienda que destacan dentro de la imagen urbana para perfilarse como hito de la ciudad. Estas torres se alzan dejando un espacio libre comun que para generar una conexion visual.

ESTRATEGIAS PROYECTUALES

/ PROJECT STRATEGIES

VIVIENDA MULTIFAMILIAR EN SANTA BEATRIZ

| MULTIFAMILY HOUSING IN SANTA BEATRIZ

Location: Lima Peru

Type: Multifamily building

My role: project designer

Year: 2015

VIVIENDA MULTIFAMILIAR EN SANTA BEATRIZ

Located in Hernan Velarde Park, this multifamily housing project blends into a unique urban landscape characterized by eclectic academic-style mansions from the 1920s and 1930s. Despite being surrounded by chaotic urban activity and high vehicular flow, the project harmonizes with nearby landmarks like the National Stadium, Exposition Park and Campo de Marte.

The project’s design introduces a connecting street, creating a seamless transition between the park and surrounding urban environment. This pedestrian-friendly approach ensures continuity and flow, revitalizing the block’s presence within the metropolitan area.

Inspired by local characteristics, the project incorporates communal patios reminiscent of republican-era estates. Basement-level commercial and residential spaces connect to diverse urban scales, while four prominent residential towers define the urban skyline. The towers rise, creating communal open spaces for visual connections, integrating with the urban context and striking a balance between commercial and residential elements.

The project’s design prioritizes pedestrian-centric principles, fostering community interaction and public engagement. By incorporating natural ventilation and lighting, the spaces promote sustainability and comfort.

CERCADO

El proyecto de vivienda multifamiliar se ubica en el parque Hernan Velarde reconocido por su entorno urbano peculiar con casonas de diversos estilos academicistas, que datan de los años 20” y 30. La manzanasubsiste dentro de un etonrno urbano caotico y de alto flujo vehicular y de confluencia comercial, ya que esta rodeado por la via expresa y la av. 28 de Julio. Asi mismo tambien existen espacios publicos importantes como el estadio Nacional, el Parque de la Exposicion y campo de Marte, lo cual destaca la escala metropolitana caracteristica de la zona. El proyecto se emplza en la zona donde confluyen la av. 28 de Julio y la Via. El proyecto propone revitalizar la manzana a partir de abrir una calle en ella a que sirva de conexion entre el parque y el exterior, generando un espacio umbral entre estas dos realidades urbanas opuestas y generando continuidad dentro de la escala peatonal. El proyecto se desarrolla a partir de 3 elementos básicos rescatados de la zona, como lo son, el patio comun caracteristico de las quintas republicanas, un basamento que alberga un programa comercial de vivienda que se conecta a diversa escalas con el exterior y las 4 torres de vivienda que destacan dentro de la imagen urbana para perfilarse como hito de la ciudad. Estas torres se alzan dejando un espacio libre comun que para generar una conexion visual.

El proyecto de vivienda multifamiliar se ubica en el parque Hernan Velarde reconocido por su entorno urbano peculiar con casonas de diversos estilos academicistas, que datan de los años 20” y 30. La manzanasubsiste dentro de un etonrno urbano caotico y de alto flujo vehicular y de confluencia comercial, ya que esta rodeado por la via expresa y la av. 28 de Julio. Asi mismo tambien existen espacios publicos importantes como el estadio Nacional, el Parque de la Exposicion y campo de Marte, lo cual destaca la escala metropolitana caracteristica de la zona. El proyecto se emplza en la zona donde confluyen la av. 28 de Julio y la Via. El proyecto propone revitalizar la manzana a partir de abrir una calle en ella a que sirva de conexion entre el parque y el exterior, generando un espacio umbral entre estas dos realidades urbanas opuestas y generando continuidad dentro de la escala peatonal. El proyecto se desarrolla a partir de 3 elementos básicos rescatados de la zona, como lo son, el patio comun caracteristico de las quintas republicanas, un basamento que alberga un programa comercial de vivienda que se conecta a diversa escalas con el exterior y las 4 torres de vivienda que destacan dentro de la imagen urbana para perfilarse como hito de la ciudad. Estas torres se alzan dejando un espacio libre comun que para generar una conexion visual.

CERCADO DE LIMA PARQUE HERNAN VELARDE LIMA

TRANSPORTE PÚBLICO

CERCADO DE LIMA

CORTE

COLUMNAS METALICAS DE ACERO

/ AXO CONSTRUCTIVE DETAIL/ MULTIFAMILY HOUSING

CELOSIA CORREDIZA CON MARCO

METALICO ACABADA EN PINTURA BLANCA

GALVANIZADO SECCIÓN“H” D DE

20CMX15CM ACABADA EN PINTURA GRIS

MAMPARA CORREDIZA DE VIDRIO

TEMPLADO TRANSLUCIDO DE 8MM

CON MARCO DE ACERO GALVANIZADO DE 10CM X8CM

VIGA DE CONCRETO BARANDA DE GALVANIZADO

VIGAS METALICAS DE ACERO

GALVANIZADO SECCIÓN“H” D DE

20CMX15CM ACABADA EN PINTURA GRIS

MÓDULOS CESTAS DUPLEX

/ GUIDELINES

“POLLO RIVER PUBLIC PLAYGROUND

2016 / CIAC PUCP

Location: Otuzco La Libertad, Peru

Type: Public space

My role: Project Designer

Year: 2016

The strategic positioning of Otuzco between Trujillo and eastern cities establishes it as a critical intersection. Visitors engage in economic, commercial, and social exchanges while replenishing supplies, accessing services, or undertaking religious pilgrimages.

Otuzco se encuentra en una situación estratégica dentro del territorio ocupando un punto medio entre el recorrido de la capital de Trujillo y otras ciudades de menor escala en el lado este.

However, environmental degradation affects the river and adjacent areas. Establishing a communal public space is essential for promoting recreation, leisure, and community identity during religious festivals, concurrently mitigating pollution

Las personas provenientes de otras ciudades, antes de llegar a Trujillo, se dirigen a Otuzco por diversos motivos: abastecerse de alimentos, utilizar un servicio o como destino de peregrinación religiosa. Se genera así una red de relaciones económicas, comerciales y sociales entre las personas residentes y visitantes.

serie de espacios públicos que pueda albergar las actividades que realizan estas personas.

/ LOCATION-SPECIFIC CHALLENGES

RIVER WATER PURIFICATION

ZONA DE TRATAMIENTO DE AGUA:

AREA

Taking advantage of the centrality and flows offered by the Plaza de Armas, along with nearby municipal facilities, connecting them to the new riverfront axis, creates a new space for recreational and leisure activities. Similarly, the proposal aims to leverage the nearby school’s presence, enabling students to utilize the newly created spaces for their own activities

agua de rio y permite que agua limpia llegue a la parte baja

Area: Phytoremediation Ponds Gradually Cleanse Water

INFORMATION ZONE

ZONA INFORMATIVA:

Se adiciona al espacio publico un lugar que informe sobre los la ciudad, de manera que se genere un espacio que propicie la

A Public Space Informing on River Water Treatment Processes and Urban Benefits, Fostering Education

PARKING AREA

ZONA DE ESTACIONAMIENTOS

Rearranging Private Parking for Seamless Waterfront Connection

Actualmente la zona es usada como estacionamiento de autos particulares al no tener posibliidades de usar la plaza . Se plantea reordenar los estacionamientos y conectarlos al nuevo malecón.

ZONA DE DESCANSO

SHADED REST ZONE

Public Space with Protected Seating

Se genera un nuevo espacio público con mobiliarios protegidos por techos y arboles qu eles brinden sombra y protejan del sol y de las lluvias.

ZONA DE RECREACIÓN

RECREATIONAL SPACE

Fun Equipment for School Breaks and Public Use

Se plantean mobiliarios que puedans usarse de forma ludica por los niños del colegio durante sus momentos de recreo, y en gernal por todos los niños y personas que acudan al lugar.

conectandolos con el nuevo eje aledaño al rio otorgando un nuevo espacio para las actividades de recreación y descanso de las personas.Del mismo modo se propone aprovechar la presencia colegio para que sean usuarios directos de los nuevos espacios creados para el desarrollo de sus propias actvidades

RÍO POLLO

GREEN SPACES

ÁREAS VERDES:

Se las areas verdes mediante zonas de arborización y otras de cultivos

Combining Arborization and Cultivation Zones

INTERACTIVE WALL INSTALLATION

MURO CIEGO INTERACTIVO:

Activating the Boundary Wall

Como forma de darle un uso activo al muro colindante se le adosa una estructura ludica de acero.

CIRCULATION

RECORRIDO:

Multiple Descent Options

Se proponen distintas formas de descender por el proyecto permitiendo que los usuarios

Viguetas de acero ancladas a estructura preexistente (baño público)

Cubierta de bambú empernado a vigas para protección contra lluvias

Piso de caucho amortiguador para juegos infantiles

RELACIÓN CON EL AGUA:

RIVER ENGAGEMENT

La limpieza parcial del rio tine como objetivo que los ususrios tengan la posibilidad de entrar en contacto

Cleaning Initiative for Public Access

Malla metálica cubre la estructura de los juegos para seguridad de los niños

Losa de concreto armado con piso acabado de bloques de adoquines de alto tránsito

Columnas de acero de sección cuadrada acabada en pintura roja ancladas a la pendiente

Estructura de acero
infantiles anclada a columnas y a la losa de la plaza

ZONA DE TRATAMIENTO DE AGUA - SISTEMA DE FITOREMEDIACIÓN

Muro de concreto

MOBILIARIO URBANO

Muro de concreto Tuberias que permiten Agua

Rejilla Grava Grava

Carrizo

Adoquines de piedra porosa para evitar pisos muy lisos del sol.

El mobiliario que tiene contacto con los usuarios se piensa con piezas de madera

Vegetación

regada con agua de las luvias en época de verano.

Capa de arena sobre la que se asientan los adoquines Adoquines drenantes (porosos) Mobiliario de concreto

de agua de lluvia

Tablas
madera

ALPACA SAWU PROJECT

Alpaca Fiber: A Key to Technological and Economic Empowerment for Southern Puno’s Aymara Communities

Location: Huacullani, Puno, Peru

Type: Production and Community project

My role: Project Designer

Year: 2020

Puno, despite being the country’s largest alpaca fiber producer, has districts, particularly in the south, with over 60% of people living in extreme poverty and high chronic malnutrition rates among children. However, this southern region boasts unparalleled potential: conserving the largest number of Suri or colored alpacas, whose fiber is increasingly demanded globally for its fineness and exotic quality.

The ALPACA SAWU community center empowers southern Puno’s alpaca-breeding communities to associate, sell fiber in bulk with added value, and develop primary transformation processes like classification and categorization. It also offers specialized architectural programs teaching new skills, benefiting vulnerable populations: women and elderly.

Women receive training in classification and categorization, while elderly transfer ancestral knowledge on herding and weaving to younger generations.

Respectful of Aymara community habits and worldview, this productive and technological project incorporates ancestral wisdom, local materials, communal work, Ayni, and Minka principles. It reflects Andean spatial concepts and harmony with nature.

The architectural design balances economic development, industrial dynamics, and technology with cultural identity and environmental respect.

Benefiting over 30 alpaca-breeding communities within a 10km radius, they access training, technical assistance, and public spaces fostering social-economic exchange and entrepreneurial opportunities

/KNOWLEDGESQUARE/KNOWLEDGESQUARE

/DESIGNDETAILING-COLLECTIONSQUARE/DESIGNDETAILING-COLLECTIONSQUARE

/COLLECTIONROOM-SECTION/COLLECTIONROOM

D1D2

“INTENSE” MULTIFAMILY HOUSING

SanBorjaLima,Peru

Location: Lima, Peru

Type: Multifamily housing

My role: Quality Control Manager

Company: INMGENIO INMOBILIARIA

Year: 2020 - 2021

Six-story, 36-unit multifamily building with over 100m² apartments, 2 basement parking levels, and top-floor duplex featuring terraces. LEED-certified for efficient and sustainable design. Finishes: A1 quality. Amenities: multipurpose room and green areas.

/COMMONAREAS

/LUXURYAPARTMENTS/LUXURYAPARTMENTS

IPESA OFFICE BUILDING REMODELING

/COMMONAREASFLOORPLAN

/COWORKINGSPACES

CASA ANDINA PREMIUM HOTEL REMODELING

Miraflores, Lima, Peru

Location: Lima, Peru

Type: Hotel

My role: Site Architect

Company: MR Associated Architects

Year: 2022 - 2023

Casa Andina Premium Hotel’s luxurious renovation redefines elegance in Lima, Peru’s premier tourist destination. This iconic hotel, renowned for its exceptional luxury experience, underwent a comprehensive transformation.

The renovation encompassed sleek bathroom redesigns, refined common areas, and sophisticated room furnishings. High-end finishes included precision-crafted nightstands, spacious closets, plush beds, elegant vanities, polished flooring and ambient lighting.

Challenges were met with innovative solutions, as phased renovation ensured uninterrupted hotel operations. Efficient logistics and management yielded timely completion, bolstering the hotel’s reputation for excellence.

The revamped Casa Andina Premium Hotel showcases refined luxury, blending contemporary style with timeless sophistication. Guests indulge in enhanced amenities, savoring Lima’s quintessential luxury experience.

/HIGH-ENDS

//SPACIOUSANDSTYLISHLYLITROOMS LUXURYSPACES

-

EDUCATIONAL MODULE PROJECTS / COSTA, SIERRA Y SELVA

VISTATIMPANO1

VISTAFRONTAL

VISTAPOSTERIOR

/ Selva Modular Classroom / Selva Modular Classroom
/ Selva Modular Classroom

1. Instalar las graderias en la zona frontal o lateral, segun la opción elegida. Estas serán fijadas al sandwich piso modular con tornillos cabeza

08

TEMPORARY HOUSING UNITS FOR

EMERGENCY RESPONSE

Peru

Location: Lambayeque and La Libertad, Peru

Type: Temporary Housing Units

My role: Project Manager

Company: MSC CONSTRUCTORA SAC PRONIED

Year: 2023-2024

The Ministry of Housing, Construction, and Sanitation (MVCS) announced that 564 Temporary Housing Modules (THMs) have been delivered to families affected by natural disasters or emergencies as of 2024.

These modules come with easy assembly and disassembly instructions and are designed for rapid installation. They don’t require specialized labor and offer:

Cross-ventilation

Mosquito protection Thermal insulation

Each module spans 21 square meters, featuring three rooms, walls, roof, windows, natural lighting, cross-ventilation, electrical installations and can accommodate up to five people.

The MVCS has delivered modules in the following regions:

La Libertad received 122 modules. Lambayeque received 213 modules. Piura received 229 temporary modules.

Additionally, the MVCS plans to deliver 841 more modules to families in need in Huánuco, Huancavelica, Piura, Cajamarca, Áncash, La Libertad, Lima, Lambayeque, Arequipa and Apurímac by year-end.

CLIENTE:

CONTRATISTA:

CONSTRUCTORA S.A.C.

PROYECTO: ADQUISICIÓN, FABRICACIÓN Y ENTREGA DE 1000 MÓDULOS TEMPORALES DE VIVIENDA (MTV) PARA ATENCIÓN DE EMERGENCIAS Y DESASTRES

MINISTERIO DE VIVIENDA, CONSTRUCCIÓN Y SANEAMIENTO ELEVACIONES 1-2 OPCIÓN 3

/LOGISTICMANAGEMENT

/PACKAGINGPROCESS

/DELIVERING

MODULAR PUBLIC SCHOOLS / COSTA, SIERRA Y SELVA

Peru

Location: Peru

Type: Public Schools

My role: Project Manager

Company: MSC CONSTRUCTORA SAC PRONIED

Year: 2023-2024

The Ministry of Education (Minedu), through the National Educational Infrastructure Program (Pronied), launched the Modular Schools Project to provide rapid support to schools requiring infrastructure due to emergencies or location in rural and border areas.

The project commenced with IE N.° 20265 Los Atavillos-La Perla in Atavillos Bajo, Huaral Province, Lima Department, where the secondary school infrastructure collapsed due to a landslide.

With an investment exceeding S/8,000,000, the project includes comprehensive equipment and furniture. Pronied technical staff deployed to the site.

Progress stands at 41%, with earthmoving, compaction and terrain profiling completed, and concrete slab installation underway.

Modular structures will offer comfortable classrooms, science and technology laboratories, libraries, kitchens, multi-purpose areas and sanitary facilities. Additional features include perimeter fencing, entrance gates, gardens, water tanks and lightning rods.

These quick-assemble, temporary structures cater to diverse climatic zones and ensure durability exceeding 10 years, enhancing educational environments nationwide.

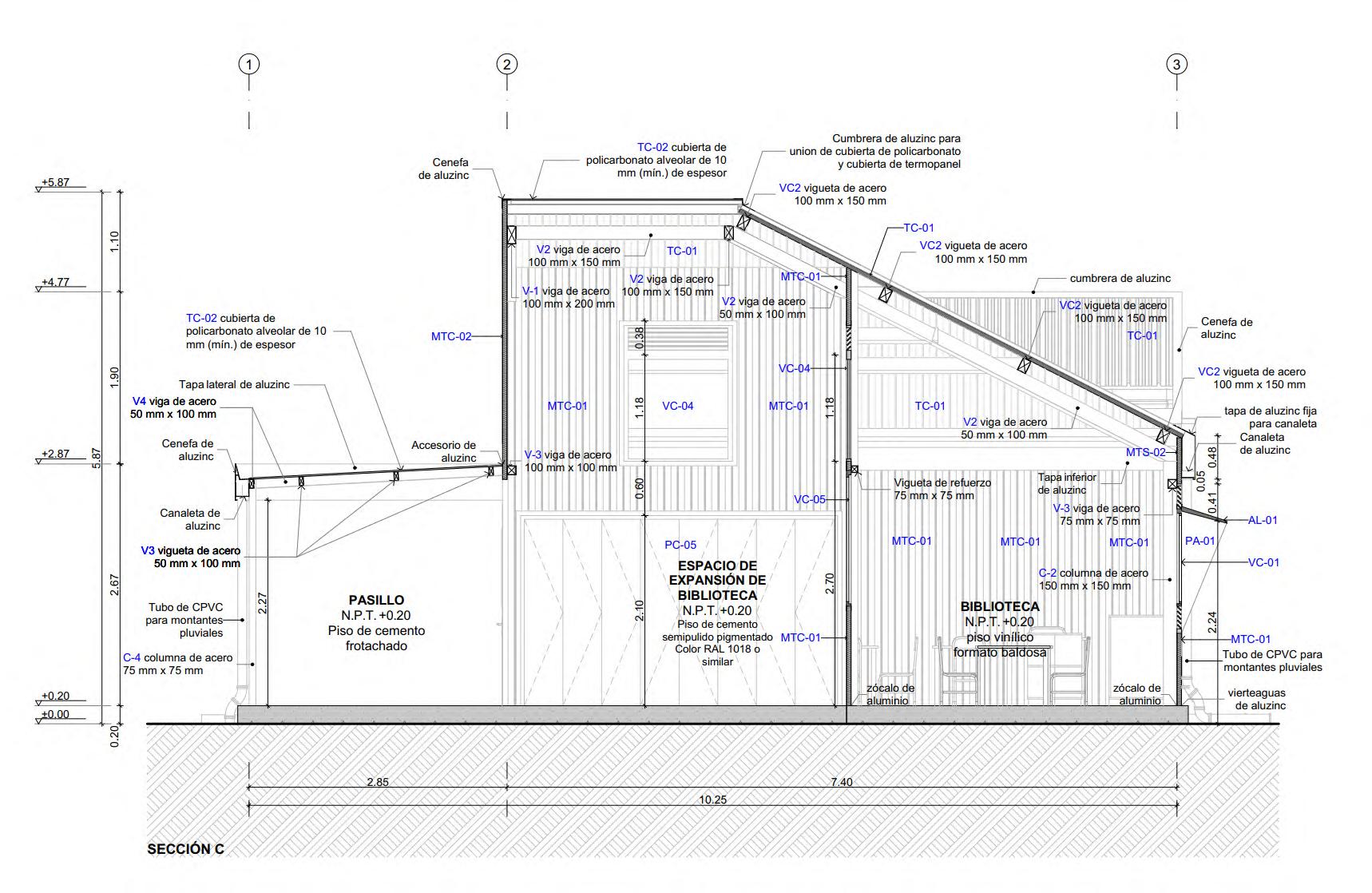
CUBIERTA DE ESPACIO DE EXPANSIÓN DE BILIOTECA O PSICOMOTRIZ Sección

V3

poliisocianurato

Accesorio de aluzinc para unión de cubierta de policarbonato y cubierta de termopanel

10

PREFABRICATED MODULES FOR PERU’S NATIONAL ARCHAEOLOGY MUSEUM

Peru

Location: Lima, Peru

Type: prefabricated modules

My role: Project Coordinator

Client: Ministry of Culture

Year: 2024

The project involves designing, manufacturing, and installing prefabricated modules for the National Museum of Archaeology, Anthropology, and History of Peru. These modules facilitate optimal operational conditions, organizational structures, and methodologies, comprising:

Spaces for cultural artifact conservation and custody Administrative areas Workspaces

This project enhances the museum’s functionality and preserves Peru’s cultural heritage.

MMM

LMP-XX-MM listón de madera 30x50mm

ESQUINERO 2-MM

LMP-XX-MM listón de madera 30x50mm

MONTAJE DE MUROS EXTERIORES

ENCAJAR LOS PANELES MURO EN LOS CANALES "U" INFERIORES DEL PERIMETRO DEL MODULO Y FIJARLOS CON TORNILLOS TA2-MTAH, 3 POR PANEL

MONTAJE DE MUROS Y ESQUINEROS

FIJAR LOS MUROS A LA VIGA DE TECHO CON TRNILLOS TA2-MTAH, POR PANEL

ENCAJAR LOS MUROS INTERIORES DENTRO DE LOS CANALES U PREVIAMNETE INSTALADOS Y FIJARLOS CON TORNILLOS TA-1-MM

EN EL CASO PARTICULAR DEL MURO MMTAH-08 MMTAH-09, ESTOS DEBEN ENCAJARSE ENTRE LAS VIGAS DE PLATAFORMA QUE SEPARAN LA ESTRUCTURA DEL BLOQUE TALLER BLOQUE OFICINA, Y SE DEBE FIJAR POR LA CARA EXTERIOR DE LAS VIGAS CON TORNILLOS TA2-MTAH PARA UNIR EL MURO CON LA ESTRUCTURA DEL MODULO

ASEGURAR LOS MUROS INTERIORES HACIA SUS LATERALES CON ANGULOS ESQUINERO 1-MM Y ESQUINEROS 2-MM, SEGUN DETALLE 4 Y 5

SELLAR TODAS LAS JUNTAS CON SELLO ELASTOMERICO 3

LOS PANELES DEBERÁN SER INSTALADOS FIJADOS CORRECTAMENTE A LA ESTRUCTURA PARA EVITAR DESPRENDIMIENTOS POR EFECTOS DE VIENTO Y/O FILTRACIONES POR MALAS UNIONES.

ESQUINERO 1-MM

NOTA: *cuando se requiera, se debe cortar muros termopanel para crear vano de puerta o ventanas

ESQUINEROS Y REMATES DET 041:8 TA-1-MM tornillo autoperforante M4.8x19 @35 cm

REMATE 5-MM

ESQUINERO 2-MM

ESQUINERO 2-MM TA-1-MM tornillo autoperforante M4.8x19 @35 cm MMM MMM

PLANTA-ESQUINEROS DET 051:8

TA-1-MM tornillo autoperforante M4.8x19 @35 cm

LMP-XX-MM listón de madera 30X50mm LATERAL

REMATE 5-XX-MM

REMATE EN VANO DE PUERTA DET 06.1 1:8

TW-1-MM Tornillo autoperforante #14x3" 04 por TA-1-MM tornillo autoperforante M4.8x19 @35 cm MONTAJE DE REMATES DE VANO DE MUROS INTERIORES

Notas

Proyecto No.

Revisiones MÓDULO

ADQUISICIÓN E INSTALACIÓN DE MÓDULOS PREFABRICADOS EN EL MARCO DEL PLAN DE CONTINGENCIA PARA EL MUSEO NACIONAL DE ARQUEOLOGÍA, ANTROPOLOGÍA E HISTORIA DEL PERÚ DEL PROYECTO CON CUI N°2320691

1. Las medidas se muestran en metros.

Propietario

Ministerio de Cultura

Contratista

Consorcio M & R

Profesional Responsable 2024.01

CAP: N° 12757

ARQ.Katherinne Joanna Cardoza Huapaya

REMATE1-01-MA

REMATE1-01-MA

REMATE1-01-MA

REMATE1-02-MA

REMATE2-01-MA

REMATE2-02-MA

REMATE2-02-MA

REMATE2-02-MA

REMATE2-02-MA

REMATE2-02-MA

REMATE2-02-MA

REMATE2-02-MA REMATE2-02-MA

REMATE2-01-MA

REMATE4-01-MA REMATE4-02-MA

REMATE4-02-MA

REMATE4-01-MA

REMATE2-02-MA REMATE2-02-MA REMATE2-01-MA

REMATE2-02-MA

REMATE2-02-MA

REMATE2-02-MA

REMATE2-02-MA

REMATE2-02-MA

REMATE2-02-MA

REMATE2-01-MA

REMATE4-01-MA

REMATE4-02-MA

REMATE4-02-MA

REMATE4-01-MA

MONTAJE DE MUROS INTERIORES

ANCLAR LOS REMATES 3 INFERIORES EN EL CONTRAPÍSO Y, SOBRE ELLOS, INSTALAR LOS MUROS DE TERMOPANEL CON LOS REMATES SUPERIORES PREVIAMENTE FIJADOS.

FIJAR LOS LATERALES DE LOS MUROS TERMOPANEL CON LOS ESQUINEROS 2 A LOS MUROS TERMOPANEL EXTERIORES.

COLOCAR EL LISTÓN DE MADERA Y FIJAR CON EL REMATE AL EXTERIOR.

V1-1-MTAH

C1-2-MTAH

V1-2-MTAH

V1-2-MTAH

V1-2-MTAH

V1-4-MTAH

C1-5-MTAH

V1-4-MTAH

C1-5-MTAH

V1-4-MTAH

C1-5-MTAH

V1-1-MTAH

V1-3-MTAH

01PERFIL CENEFA1:5

CUMBRERA-2-MA

CUMBRERA-1-MA

CENEFA1-1-MA

CENEFA1-2-MA

CENEFA1-2-MA

CENEFA1-1-MA

V1-2-MTAH

V1-2-MTAH

V1-2-MTAH

C1-5-MTAH

C1-5-MTAH

C1-5-MTAH

C1-4-MTAH

AXO 01CORTE CUMBRERA1:20

CUMBRERA-1-MA

CUMBRERA-1-MA

MONTAJE DE PORTICOS

ARMAR LOS DEMAS PORTICOS EN PISO ANCLARLOS A LOS PODIOS DE CONCRETO SEGUN LOS PASOS ANTERIORES, IZARLOS UNO POR UNO, UNIRLOS ENTRE SI MEDIANTE LAS VIGAS SECUNDARIAS MEDIANTE LOS PERNOS PBT58-MTAH EN LA ZONA DE BRIDAS. SEGUIR EL ARMADO SEGUN

CENEFA1-2-MA

CENEFA1-2-MA

CENEFA1-1-MA

MONTAJE DE CUMBRERA

COMENZAR COLOCANDO LA CUMBRERA EN LA PARTE SUPERIOR (UNIÓN) DEL PANEL COBERTURA TENER EN CUENTA LA UBICACIÓN MOSTRADA EN LA PERSPECTIVA DE ESTA LÁMINA.

FIJAR CON TORNILLOS Y ARANDELA DE NEOPRENE.TENER EN CUENTA QUE LOS TORNILLOS ESTARÁN UBICADOS EN CADA CRESTA DE LO PANELES DE TECHO. CORTAR EL EXCEDENTE QUE EXISTA EN LA PARTE SUPERIOR DEL TIMPANO.

CADA CUMBRERA DEBE TENER UN TRASLAPE ENTRE ELLAS DE 40mm.

AXOAXONOMETRÍA PERFIL ALUZINC CUMBRERA Y CENEFA1:175

Turn static files into dynamic content formats.

Create a flipbook
Issuu converts static files into: digital portfolios, online yearbooks, online catalogs, digital photo albums and more. Sign up and create your flipbook.
Portfolio Mayra Machado by mayra machado - Issuu