PORTAFOLIO
By Mayra Dayana



Pentágono


feb 2024 –mayo 2024
![]()
By Mayra Dayana



Pentágono


feb 2024 –mayo 2024







Diseño de Exposición y Escenarios
Diseño de Espacio
Hotelero
Proyecto de Grado
Diseño de Consultorio
Ginecológico

Diseño de Oficina de Empresa de Buses
12

13

Consultoría en Contribución En
Actualización De Guion Narrativo
Histórico, En Las Casas Museo, Palacio Portales Y Villa Albina, En Cochabamba .








El Diseño del escenario de pasarela, en el mirador de la Recolecta en Sucre. Fue un proyecto con características culturales contemporáneas, como ser el tejido artesanal “Jalkas”, abstrayendo las formas del tejido y colores, formando parte del diseño de paneles y distribución del recorrido, resaltando los tejidos con iluminación lineal led.







En planta se percibe la forma del recorrido de la pasarela, notando que la fuente forma parte importante del recorrido, también indica la distribución de los asientos generales y asientos vip.

















El proyecto se realizó en el Centro Juvenil de Cajamarca, a unos minutos de la ciudad de Sucre.
Como característica principal del diseño, fue, respetar el estilo rustico que tienen los espacios, haciendo uso de materiales convencionales del sector.
Cabaña de Recepción, cuenta con materiales naturales como las ramas, cañahueca, adobe, pisos de madera y empedrado, creando un espacio cómodo, atractivo y cálido.



En planta se percibe la distribución funcional del uso en el espacio, siendo la recepción el punto principal, teniendo en sus laterales el área de estar y descanso, seguido de un pasillo que lleva a la oficina de administración, y en frente la ubicación del baño.

















Cabaña Cafetería, un espacio que resalta los materiales naturales del lugar, como la piedra, cañahueca, ramas secas, hornos de barro, y como decoración los tejidos artesanales como cortinas, y el uso de piñas de los pinos como celosías, crenado un espacio atractivo que brinda nuevas experiencias como sentarse a nivel del piso, como lo hace la gente de la región.




















Cabaña Matrimonial, un espacio que resalta los materiales naturales del lugar, en el mobiliario y elementos de limitación de áreas, brindando una experiencia rústica.






En planta se percibe la distribución funcional del uso en el espacio, con área de descanso, área de estar y el baño. Creando una circulación limpia y ordenada.















Cabaña Grupal, es un espacio en el que resalta la rusticidad de los materiales naturales del sector. Complementado con elementos decorativos, como el tejido cultural en los cojines y armado de luminarias con ramas.
Al ser una cabaña grupal y aprovechar el espacio para las camas respectivas, se utilizó literas, y para la separación de sectores se hizo celosías de piedras y ramas, teniendo un equilibrio visual en el espacio se utilizó literas para







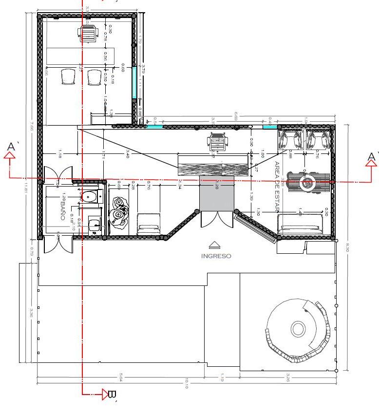
En planta se percibe la distribución funcional del uso en el espacio, con área de descanso, área de comedor, área de estar y cocina. Creando una circulación lineal.














El proyecto en el “Hotel Llallagua”, ubicado en el Municipio de Llallagua, es un proyecto con características históricas sobre el Auge del Estaño, así mismo representa el estilo ecléctico, referenciando la clase obrera (mineros), y la ostentosidad del estilo de vida del barón del estaño.
Recepción, en este espacio se interpreta la parte rustica abstracción del interior de las minas juntamente con elementos referenciales como los vagones, cascos mineros, rieles y abstracción rocosa en plafones, Así también se tiene elementos clásicos como molduras, mobiliario y pisos. Creando un espacio atractivo con identidad histórica.
Hotel Llallagua- Histórico del auge de la minería









Hotel Llallagua- Histórico del auge de la minería











Cafetería, en este espacio, se interpreta la rocosidad de las minas, en los muros, resaltando con luminarias de cascos mineros, en el mobiliario se tiene una inclinación a un estilo más clásico, siguiendo el patrón del mobiliario de uno de los salones de la casa del barón del estaño.
Salón de juegos, se realizó una recreación del interior de las minas, acompañado por los juegos de antaño de los mineros, así también se tiene un espacio de descanso, con el tipo de chimenea que se tenía en las casas lujosas de aquel entonces.
De tal modo que se ofrece nuevas experiencias con valor histórico.








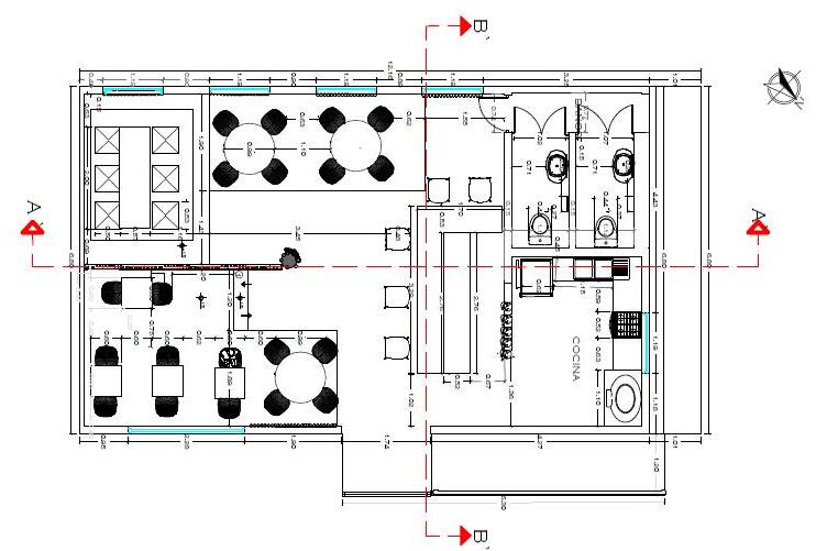
En planta se percibe la distribución funcional del uso en el espacio, teniendo una circulación lineal, que conduce de forma ordenada a la cafetería y el salón de juegos, en ambos espacios se logró tener orden y equilibrio visual, a pesar de las texturas exuberantes que se tiene.


Llallagua- Histórico










Espacio Abierto (Patio), hace referencia a lo árido de las minas, teniendo un desnivel bajo en el que se encuentra una representación del trabajo en el interior de las minas, este se encuentra rodeado por muros blancos y plantas áridas en las ventanas, logrando un espacio de contemplación atractivo con un gran valor e identidad histórica.
Hotel Llallagua- Histórico del auge de la minería







En planta se percibe la circulación arterial, que conduce de forma ordenada el movimiento de los huéspedes, también se percibe el equilibrio y peso visual, logrando que el punto focal sea apreciado desde las diferentes alturas de las habitaciones.
Hotel Llallagua- Histórico del auge de la minería










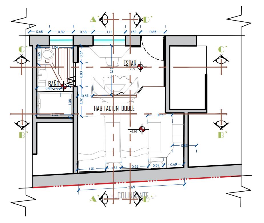
Habitación doble, este espacio representa la rusticidad de las minas, equilibrada con la abstracción de la rocosidad y el color neutro, formando un espacio cálido y atractivo con un poco de sofisticación.
Hotel Llallagua- Histórico del auge de la minería







En planta se percibe la circulación tipo abanico, que conduce de forma ordenada el movimiento del huésped, se consiguió tener un espacio con equilibrio y orden visual, a pesar de ser un espacio un poco reducido de tamaño.











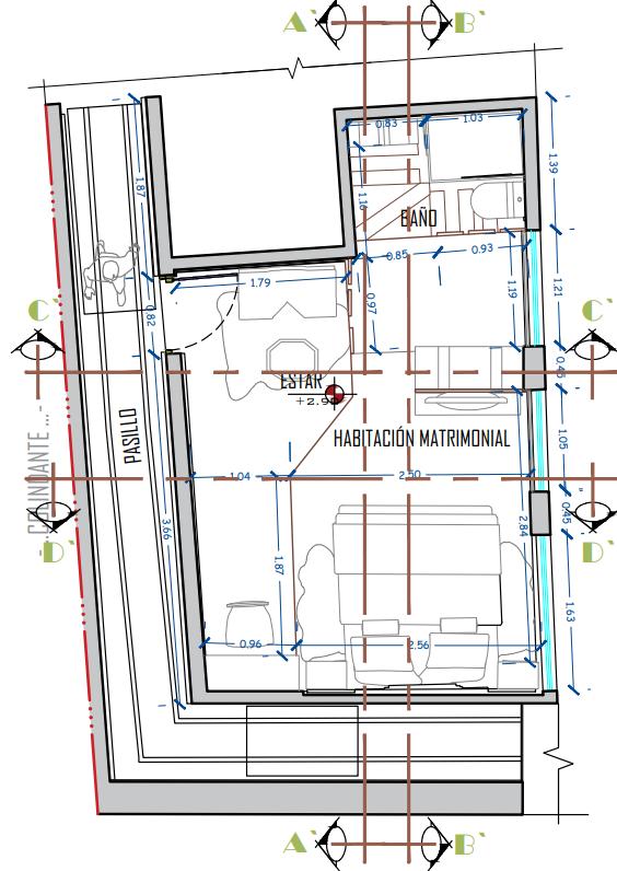
Habitación Matrimonial, este espacio está inspirado en la ostentosidad y elegancia, abstrayendo un poco de la rocosidad de las minas en plafones piramidales de espejos y textura de muros. Consiguiendo un espacio sofisticado y cómodo.

Hotel Llallagua- Histórico del auge de la minería








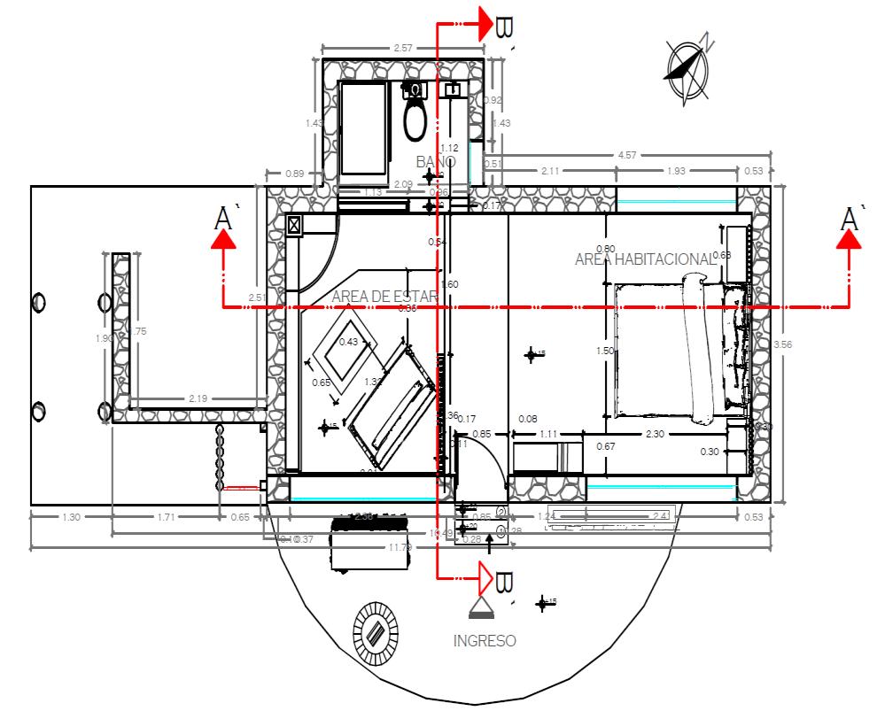
En planta se percibe la distribución funcional del uso en el espacio, teniendo una circulación lineal tipo peine, que conduce de forma ordenada al área de descanso, estar y baño. Se logró tener orden y equilibrio visual a pesar del espacio que es un poco reducido en tamaño.
Hotel Llallagua- Histórico









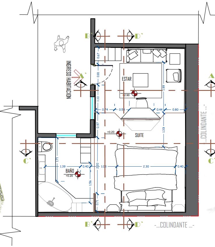
Suite, habitación inspirada y referencia sobre la ostentosidad y sofisticación de la riqueza del barón del estaño, teniendo mobiliario con detalles clásicos, muros en color neutro y molduras, elementos decorativos de la época que favorecen en el realce de la habitación.
Una de las características fundamentales de este proyecto, fue conseguir identidad y valor histórico para cada uno de los espacios, ya que este hotel fue el pionero y testigo de los acontecimientos del auge del estaño en Bolivia.
Llallagua- Histórico







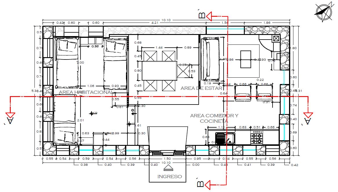
En planta se percibe la distribución funcional del uso en el espacio, teniendo una circulación lineal tipo peine, que conduce de forma ordenada al área de, estar, descanso y baño.
Logrando tener orden y equilibrio visual, a pesar de la demasía en los elementos de diseño.


Consultorio ginecológico- suite









El proyecto para el Consultorio Ginecológico tiene como característica representar un espacio contemporáneo.
Se tomó en cuenta el concepto de “formación” estableciendo un espacio que refleje confianza, seguridad y comodidad.
Oficina de empresa de buses 15 de agosto












El proyecto de Diseño Interior para la oficina de la Empresa de Buses 15 de Agosto, tiene la característica de un estilo contemporáneo.
Los elementos de diseño siguen el patrón del diseño de la marca de la empresa, consiguiendo un espacio atractivo y moderno.






metanoia.designing@gmail.com
meta_noiadesign