Skip to main content

Architecture Portfolio_Yining Ma

Page 1

-Yining Ma-

Selected Work 2017-2022

Architecture Portfolio

ACADEMIC PROJECT

CHILDREN AROUND THE HILL 01

- Primary School around the Hill -

OTHER WORKS

A. OMBAX CEIBA

- Interior Design of Baiyun Railway Station Waiting Hall -

B. BOXES DISSOLUTION

- High-rise complex design Design -

SEVEN HOUSES 02

- Bookstore Embedded in a Traditional Area -

I hope for public activity space in school acting as a haven in the complex learning environment and create a beautiful childhood for children. Is “the most beautiful bookstore” with web celebrity really beautiful?

UNFETTERED TUNE 03

- Bath Place by a River -

I want to explore the freedom of emotional experience from nonlinearity. One can and should stay as they desire, and not be directed away.

OVERLAPPED DAILY GRIDS 04

- A New Community in Naga -

The street in all directions has become an important place for community activities. I call it a daily grid.

AGRI-VALLEY 05

- Apartment above current block combining agriculture and housing -

A chance to imagine that every family has its own farm garden

C. LIGHT CABLE

- Analysis Model of La Lira Theatre Public Open Space -

D. ATRIUM

- Gothic Church Details Drawing for Future Preservation -

E. INDESCENCE

- Analysis Model of La Lira Theatre Public Open Space -

F. MAPPING OF A CHURCH

- Gothic Church Details Drawing for Future Preservation -

/ CONTENT /

01 CHILDREN AROUND THE HILL

Primary School around a Hill

Location: Shaoguan, Guangzhou, China

Partnership: Individual Work

Instructor: Prof. Wang Jing, Prof. Xiao Yiqiang

Time: 2020 Fall

In traditional Chinese schools, school life plays a vital role during the growth of children. With huge academic pressure in even primary school education, life in school tends to be grey and rigid. There are often 30-45 students in the class in a crowded classroom. Chinese students spend half of the whole year in school studying. Life in school should be put more attention to and I hope that the public activity space in my primary school can play an important role as a haven in the complex learning environment and create a beautiful childhood for children.

I think the specific classrooms such as music boxes and art classrooms are the key. In many cases, ordinary classrooms and specific classrooms are set separately, often in two buildings. And these classrooms are only used when extra curricular rather than break time. The streamline is unitary, regardless of the behavior and psychological condition of children. Maybe access to such boxes could be more convenient and enjoyable.

3 | Yining Ma 3

Chinese students spend half of the whole year in school studying, under huge pressure of exam an so on. Most of their time is spent in the ordinary classrooms for exam-oriented courses. And the short break for ten minutes is of great importance to use and relax, or do something, explore something they want.

[ Layout: Form a Concentric Circle ]

0 Functional Group Composition of a Primary School

Ordinary Classrooms

Corridors

Specific (interest) Classroom

Corridors acting as small reading corners

Classrooms was closed, not open yet

1 Traditional School Layout: Separated Ordinary Classrooms and Specific Classrooms

Students sit on the floor of corridor to play games

Keep Studying

Course to take

Corridors don't have enough place to contain such activities

Classrooms was opened but too far for students to use

Club Activities

Building of Ordinary Classrooms

Corridor and Stairs

Circulation

Building of Specific Classrooms

In the traditional layout mood, specific classrooms or activities boxes will be seriously underused, since students can hardly get access to another building during break.

2 New School Layout of Concentric Circle: Specific Classrooms are Placed in the Centre of a Circle

Also, there's no specific functional space here.

Classrooms was opened but too far for students to use

Building of Ordinary Classrooms

Building of Specific Classrooms

Circulation

Course to take

Classrooms was closed

Club Activities for short time

Classrooms was closed

Building of Ordinary Classrooms

Building of Ordinary Classrooms

A concentric Circle Structure enable students to get to middle playground with various specific interests classrooms in a short time.

[ One Day in Primary School ]
Noon Break Time Noon Break Time
Break Before Class Break Break Break Break Afternoon Break or Specific Class Noon Break Lunch Break
4 | Yining Ma 4

Psycological Cognition

GRADE 5/6

GRADE 3/4

1 Attention is difficult to concentrate, attracted by all kinds of information, consciousness appears SCATTERED;

2 With a vague direction of interest, consciousness appears as A LOOSE CLUSTER;

3 Gradually mature information processing methods and consciousness is presented as a more SYSTEMATIC tree.

Behavioral Habit

Curriculum Schedule

1 Free path without strong purpose, UNSTABLE social relationship, weak group consciousness;

2 Communication increases, the sense of domain is enhanced, and they stay in SOME FIXED places of interest

3 STABLE group relations, organized group activity space Individual Thoughts and Minds

Test-Oriented General Course Interest Fosting Course

Activity

Activities out of Ordinary Classrooms

Consciousness interest gradually clear, function type gradually clear.

1 relatively open, no separation, no specific activity functions: Playground

2 Mid-exploration period: rich exploration space, permeable separation, multi-functional space: Reading Corner, Game Room

3 A specific functional space is enclosed with computer room, painting room, piano room, dance room, study room and laboratory

GRADE 1/2
PENETRABLE DIVIDER FREE VARIABLE ISOLATED RANDOM SOLID DIVIDER SPECIFIC STILL GROUP
MULTIFUNCTIONAL SPECIFIC FUNCTION
Extra-curricular
Outdoors Free Time Break Time 1 Free and Random 2 Cluster Related 3 Solid Program
ORDERED
5 | Yining Ma 5
[ Create a Gradually Varied Concentric Circle Around the Hill ]

2nd Floor

3rd Floor

[2] Grade 2 Classroom [4] Grade 4 Classroom [6] Grade 6 Classroom [1] Grade 1 Classroom [3] Grade 3 Classroom [5] Grade 5 Classroom 7 Stadium Office 8 Language Platform 9 Gallary House 10 Gallery 11 Calligraphy House 12 Dancing House 13 Piano Room 1 Multi-Function Platform 2 Doodling Box 3 Nature Box 4 Art Room 5 Computer Room 6 Teacher Office 1 1 1 1 1 1 1 1 6 6 6 6 3 3 2 2 8 8 11 9 4 12 5 13 7 1 1 1 1 [1] [2] [1] [2] [1] [2] [1] [2] [3] [4] [3] [4] [3] [4] [3] [4] [5] [6] [5] [6] [5] [6] [5] [6] 0m 5m 10m 20m 6 | Yining Ma 6

The central activity space becomes a refuge from school fatigue and a place to develop interests. The students ran out as soon as the class was over, into the middle place, into their shared territory. It's a romantic intuition that triggers collective memory. The children will always remember that they once learned and lived around this hill.

7 | Yining Ma 7
Section A-A

02 SEVEN HOUSES

Bookstore of Seven Houses in a Traditional Community

Location: Liwan, Guangzhou, China

Partner Ship: Individual Work

Instructor: Prof. Zhuang Shaopang

Time: 2019 Fall

As Jane Jacobs had said: "everywhere in the city, people can be found enjoying watching other people and their activities." I regard people as the most beautiful topic in architectural design. I am thus opposed to emptiness or a palpable sense of order and serenity. However it seems that updown planning is growing more common, under whose control people may live against their own feeling or intuition, instead of being rigidly guided and controlled.

I wish for a bookstore that acts as a day-to-night anchor point in Liwan, a traditional area in Guangzhou, China. The seemingly thriving state of the neighborhood given by the shops only lasts throughout the weekend or during the holidays, and puts no consideration for the traditional lifestyle and needs of the local residents. To resolve these issues, I introduced a neighborhoodfriendly bookstore that can be integrated into the locals’ daily lives.

8 | Yining Ma 8

Traditional Local Stores

Traditional commercial (mixed with residential upfloor)---New Construction and Destroyed

[

Extraneous Commercial

Government put extraneous commercial to attract visitors and revive, however ignored the internal need of inhabitants

It is a scenic spot that must be made a special trip to visit.

Extraneous commercial put on the coat of traditional amorous feelings. This commercial is a must specially come to visit the scenic spots: OPERATORS DO NOT BELONG TO HERE, walking the brand operation of mechanization, and will close the shop to leave after work.

It is a neighborhood that can be integrated into daily life.

This bookstore is a neighborhood that can be INTEGRATED INTO DAILY LIFE. During weekdays, neighborhoods drop around and chat about life; During weekends, visitors come, witness and enjoy this community life.

In the middle of this traditional area with fragments, this bookstore acts as AN ANCHOR POINT that connects daily life of different people, including inhabitants and visitors. Inhabitants would like to treat this commercial as a neighborhood and visitors would like to regard this place as a window towards traditional life.

1 Scenic Area

2 Commercial

3 Traditional Commercial (Mixed with Residential Upfloor)

4 Traditional Residence

5 New Residence

6 Main Street

History Strategies Survey; Define a frame of residential function for the new seven Define theindividual space and adjoining space houses,leaving ground floor vacant Take charge; enjoy daily life

Visi ors Visitors Neighborhood NewNeighborhood
Fast Food Restaurant Hardware Store Japanese Food Restaurant Traditional Food Restaurant Traditional Handcraft Store Fruit Store CD Store Grocery Jewelry Store Cafe Milk Tea Bar Cyber Celebrity Bookstore Fashion Shop
What is the ideal commercial mode to revive the traditional area? ] [ Location and Site
]
NEW HABITANTS
DESIGNER
(SEVEN FAMILIES)
1 2 3 3 3 5 5 4 2 2 Past buildings on the site Frame of residential function provided Secondary design for seven bookstores
[ How to Integrate Into Community Daily life ? ]
9 | Yining Ma 9

SUNRISE is introduced for morning reading.

STAGE for Urheen show and CDs show. children go THROUGH interesting books

LOUVER is set in the middle allowing sunlight dropping tall brick wall, with LITTLE LIGHT passing through sit upstairs and downstairs chats happily through ATRIUM PLANTS with coffee with books could be life.

1 Balcony 2 Bedroom 3rd Floor for Seven Homes 2nd
Homes 1st Floor
Bookstores 3 Living Room 4 Bedroom 5 Kitchen 6 Bathroom 7 Double Height Space 8 Stairs 9 Shelf Hill 10 Stage 11 Children Furniture 12 Comfortable Seats 13 Quiet Seats 14 Lively Seats 15 Bar Counter 16 Garden 17 Water Basin 18 WCs 19 Storage [1] View-read Bookstore [2] Watch-read Bookstore [3] Play-read Bookstore [4] Sit-read Bookstore [5] Mediatate-read Bookstore [6] Talk-read Bookstore [7] Garden Rest-read Bookstore Families Moving Back Inhabitants Visitors 0m 2m 5m 10m [7] [6] [5] [4] [3] [2] [1] 16 18 18 18 18 17 10 11 5 5 5 5 5 5 5 3 3 3 3 3 3 3 4 4 7 7 8 6 6 6 6 6 6 6 18 18 18 18 18 18 18 18 18 18 13 12 19 19 19 14 19 19 19 19 15
Floor for Seven
for Seven
10 Yining Ma 10

"Come

[
]
Seven Houses Under Sunshine
up, welcome to visit~"
Sit down by the quiet bricks
11 Yining Ma | 11
People between and through floors

Welcome to the Seven Houses of Bookstore

[
]
1 Reinforced Concrete Frame Structure 2 Thermal Isolation Layer 3 Non-load BearingBrick Wall 4 Reinforced Concrete Girder 5 Hanging Steel Pipe 6 Sound Isolation Layer 7 Suspended Ceiling 8 Double-Glazed Glass Window 9 Double-Glazed Glass Sliding Door 10 Waterproofer Layer 11 Leveling Blanket 12 Steel Stair 13 Concrete Building Foundation
0m 1 2 3 4 12 5 6 7 8 10 11 13 9 14 1m 3m 5m 12 Yining Ma 12
14 Metal Garden Shed

03 UNFETTERED TUNE

Bath Place by a River

Location: Chenzhou, Hunan, China

Partnership: Individual Work

Instructor: N/A

Time: 2021 Fall

Once I visited Dongjiang River, Chenzhou, which is a beautiful spot with green mountains and mist above the river, like a wonderland. However, I didn’t enjoy it so much since there were so many visitors but only a straight catwalk for visitors to pass by. There was no place for me to stay for a while and I felt myself strictly guided.

I want to explore the freedom of emotional experience from nonlinearity. One can and should stay as they desire, and not be rushed or directed away, in contrast to the original design. Based on my interest in music and every similar emotional experience while diving into music, I would like to resonate music with it, specifically one type of special music with more freedom and emotion. That’s Gongche score and its tune.

13 Yining Ma 13

Tune Consisting of Every Single tone will be recomposed into an unfettered tune in this place. Space language acting as a vessel to contain or alter every condition of water. Embedded in a mountainous place, this bath house is rather a tour shelter than an enclosed box. People wandering here can stay as he desire.

1 Embrace Nature

Single pathway acting as a keep-going space regardless of the intuitive for human to stay--

-To recollect natural condition in this site and embrace it.

2 Basic Structure

Pitch and relative length are firstly decided in the place to create a basic melody. Relative lengthrelative dimension; pitch-extent of being embeded into the hill.

3 Two Boundaries

Two boundaries: the water inside basically remains still, and the water outside is altered as the weather changes, creating flexible experience

So many visitors gathered around but only a straight catwalk for visitors to pass by. There was no place for people to stay for a while and I felt myself strictly guided.

4 Nature Deduction

Improvisational site water affecting the space varies under weather change. And that is an unfettered tune, moving as one flow his mood.

Straight Catwalk By the River Dongjiang Lake Doushuai Island Dongjiang Dam Dongjiang River Site
14 Yining Ma 14
1 Entrance 2 Reception Counter 3 Tea Bar 4 Management Office 5 Changing Rooms 6 Make-up Rooms 7 Woods Track 8 Showers 9 WCs 10 Indoor Bath Chamber 28℃ 1.21.8m 11 Dry Rooms 12 Therapy Bath Chamber 34℃ 0.9m 13 Hot Bath Chamber 40℃ 1.2m 14 Dive Bath Chamber 28℃ 3m 15 Half-outdoor Bath 32℃ 0.9-1.2m 16 Rest Platforms 17 Stage Platforms 18 View Platforms 19 Lockers 20 Vending Machine 21 Seats 22 Drinking Fountain 0m (4.500) (4.000) 8 11 10 9 12 13 14 16 16 18 16 5 9 6 3 4 16 18 18 7 17 11 9 Down Down Up Down Down Down (2.000) (0.900) (-0.300) (±0.000) (0.500) 5m 10m 20m [ Ground Plan ] 15 Yining Ma 15

These architectural elements are used to build this shelter FILTERING THE INFLUENCE OF NATURE

When meeting clear day, we get sunlight filling and flying through our bath place.

Mist flying during early morning and late afternoon, people touch mist above pond. During light rain day, rainwater will be gathered between boundaries.

Ground Roof Wa l l Wall Soil Slope Retaining Wall R e t a i n i n g W a l l G l a s s BathPool Pond Rainwater Peope Peopl Peop e Ra nwate Condensate Wa er Condensate Wa er Rainwater R a i n w a t e r DimLght Mst M i t DimLight Mist Lght RefectLigh Light Mist
[ Enclosed Chapter ]
[ Opening Chapter ]
/ Clear Day / Temperature Temperature Temperature Water Vapour Content Water Vapour Content Water Vapour Content / Mist Around / / Light Rain /
16 Yining Ma 16
"
Mist Performing During Three Weather Condition "
12 9 5 10 1 2 3 4 6 12 7 8 13 14 15
1 Fibre Cement Panel 20mm 2 Steel Joist 3 Steel Beam 4 Double-Glazed Glass Sliding Door 5 Grey Waterproof Sliced Veneer 6 Waterproofer Layer 7 Leveling Blanket 8 Profiled Steel Sheet 9 Hanging Steel Pipe 10 Thermal Isolation Layer 11 Suspended Ceiling 12 Concrete Specially-Made Furniture 13 White Waterproof Tile 14 Vapor Barrier 15 Concrete Building Foundation 16 Reinforced Concrete Retaining Wall
0m 1m 2m 5m 17 Yining Ma 17
17 Gravel Bed 18 Nature Water

04 OVERLAPPED DAILY GRIDS

New Community in Naga Based on Overlapped Grid Strategy

Location: Naga, Philippines;

Partnership: Group Work (with Xuezhu Tian, Yangfeng Huang, Li Ju, Guanghao Yao);

Instructor: Prof. Wang Jing, Prof. Xiao Yiqiang;

Time: 2021 Spring

What is a city like? Sometimes a sense of loneliness and separation comes to fulfill my mind passing through a straight city road, which is rigidly graded and arranged. I then learned from City Is Not a Tree by Christopher Alexander. Its core contention is that urban planners tend to design cities as tree diagrams (with each node only having a relationship with a parent node), while successful unplanned cities have a SEMI-LATTICE structure (where each node has relationships with many nodes). This overlapping relationship is more natural, in line with residents’ daily intuitive activities.

A new community prototype is asked to meet the trend of Naga urbanization. Reproducibility is not mechanical and immutability. The newly-built community must retain the characteristics of Filipino culture. Neighbors dry, eat, communicate and sell in front of the house, and thus THE STREET IN ALL DIRECTIONS has become an important place for community activities. I call it a daily grid. And overlapping these grids both between blocks on the plane and vertically bridge residential grid above ecological successive grids is the starting strategy of this project.

18 Yining Ma 18

In Naga, Philippines, urbanization calls for new prototype of community to meet the need of growing population and climate problem. In Naga, people enjoy their daily life mostly outside their own house with their neighborhood, sitting, playing or doing things just on the street. Streets feature weigh high in a Naga community design.

"CITY IS NOT A TREE." —— CHRISTOPHER ALEXANDER

Rigidly arranged, end of branches is seperated to each other.

Inofficial self construction break the structure to some extent, but crowded.

works as semilattice that connected to each other.

] [ Naga Urbanization ]
[ Layout: Tree to Overlapped Grid
1 Children Playing 2 Market Time 3 Garden in the Frontage 1 Narrowed Street to Friend's house 2 Excessice Self Construction towards Street 3 Families all Gather
New
Public Activity Node Daily Routine Street Unit
City Center
Tree Structure ] [ Street Life ] STRUCTURE CIRCULATION PHOTO DESCRIPTION Mount Isarog [ Threaten ] [ Street Grid ]
Overlapped
]
]
]
arrangement
Crowded
[
[
Grid
[ Houses Layout
TWO LAYERS OF GRID [ Ad-hoc House Expansion ] [ Basic Grid
[ Gapped Tree Structure ] [ Semi-Lattice ]
City Land and New Planned Community SITE Nature Land 19 Yining Ma 19
Traditional Pattern Population Growth Influence New Community Prototype Underused

[ Basic Grids: Grass Path and Public Nodes]

We assume this community's is capable for 7200 people, with 1200 families, with 6 people per family, with 24 ㎡ site area per family and totally cover 12 hector.

The government builds and divides the site and builds modular houses. Later, with the help of local organizations, residents can expand based on their family population and economic level.

Bamboo handicrafts made at home will be sent to the community center for transfer and sale.

Some bamboo components and handicrafts are used for housing addition.

WomenSharingHub

Skills training centers can provide employment training for young people or the unemployed.

Lakas Kabaihan house is a transfer station for women’s hand-processing, and it is also a neighborhood mutual aid center.

Bamboo that can be used to make into handicrafts.

Children will be happy to play on the playground.The site is also used as a block gathering place during the festival.

Women do handwork in front of their house so they can take care of ther naughty children.

Resilent water storage space can store water during heavy rains.It is a place for children to play on sunny days.

Some festivals or procession will be held along the slow main road.

The first floors of some houses have been converted into commercial functions such as restaurants or shops.

Naga’s Night market vendors sell delicious specialties.

Farmer’s market has become a commercial node in the community, affecting the economy

Agricultural products will be processed and then transferred out and sold.

Adult Man (32%) Unemployment (12%) Skill Training Centers (1 Center + 200 Families)*6 (1 Center + 400 Families)*3 (1 Center + 55 Families)*21 Community Industry Chain Women Sharing Hub
CROWD
Shop Working (12%) Working (20%) Housewife (18%) Should Be Taken Care Of Adult Woman (30%) Children (33%) CATEGORY DATA RESIDENTIAL CLUSTER Residents Community Infrastraction Modular Houses Independent Extension Government Local NGOs
SkillTrainingCenter CommunityIndustryChain Market Process
[ Spontaneous
20 Yining Ma 20
Addition of Housing ]

[ Spontaneous Addition Change under Weather Change]

Sanitary Sewers The houses of residents are added along the street, which carries commercial vitaility to the community. Residents usually do business in the street space to earn money and carry out activities such as setting up stalls; when it rains, the doors and windows are closed, and the street green veins store water. Sewer System
21 Yining Ma 21
[ Bahalana, We Live in Naga ] [ Daily Life Between Streets ] This is the most common type of community street. Residents can spontaneously build roads, but the scope of construction is also limited to the range of grass ditch planned and designed by the government for rain drainage to ensure the order of community growth. Sewage Rainwater Back Alley Rain Water Daily Black Water from Bathrooms Daily Black Water from Bathrooms Septic Tank 1 Main Traffic Road 2 Street 3 Grass Grid 4 House Independent Extension 5 Spared Land 6 Women Sharing Hub 7 Skill Training Center 8 Community Industry Chain 9 Septic-Tank 10 WCs 11 Back Alley 2 2 3 5 5 11 10 4 7 8 6 9 22 Yining Ma 22

05 AGRI-VALLEY

Apartment combining agriculture and housing

Location:

Partnership:

Instructor:

Time:

This project is based on a group design of a 12 blocks community, for the topic of agritopia. To place “agri” and “housing” into the same footprint, we conduct the concept of “Multiple Layers”, which best split different functions, reducing conflict, but combining and connecting as well. We tend to create connections, including food distribution, water collection, gray water reuse, and so on.

I put the idea of layering into “unit scale” when I come into individual work on one block. That is to say, every family has its own farm garden. Every family farming roof faces the middle of the block to keep the idea of water collection and reuse.

Therefore, my intention is to create a valley for houses to send water and get purified through green walls (climbing plants), and eventually fall into the rainwater garden in the middle of the block, meanwhile keeping farming life and residential life connected vertically.

Oakland, CA, USA
Individual Work (Architecture part)
Prof. Rene Davids
2022 Fall 23 Yining Ma 23
UNIT 1 for family of 1-3 Roof Farm Garden UNIT 2 for family of 3-5 Poultry Hut Double-floor House Green Wall Frame Waste Reuse Farming Tools Storage Farming Tools Storage Children’s Playground Family Acitivities Living with farming Farming for every single families Farming water, rainwater Living grey water Green wall: climbing plants help purify water pouring into the valley Most of rainwater get treatment from rainwater garden Water goes into plant groove, above the path, and is collected to next step of purification and eventually get reused Load-bearing: All step onto the new market Plant Groove Water Treatment Center Rainwater Garden New Supermarket Farmer’s farmland Valley as water reuse container Valley as water reuse container Valley as water reuse container Public Garden
Pitched Roof Pitched Roof 24 Yining Ma 24
CurrentMarket---Storage

A. BOMBAX CEIBA Interior Design of Baiyun Railway Station Waiting Hall

Location: Guangzhou, Guangdong, China; Partnership: Individual; Instructor: Prof. Jiang Tao, Tian Ruifeng, Zhong Guanqiu; Time: 2022 Spring

Outer top panel

The waiting hall should reflect the regional characteristics of Lingnan, so on the basis of the existing structure and façade design On the basis of the existing structure and façade design, the elements of the outer and inner petals of the façade were continued to create a large space of the waiting hall with the characteristics of a flower city. At the same time, consider the combination of artificial and natural light from the skylight.

Structure

Keel System

Lighting

Flower Petal Ceiling

Inner Skylight Grille

Roofing, purlins, skylights Window system Light

Lighting

Flower Petal Ceiling

Inner Skylight Grille

strips,
lights
White
Petal Ceiling System as an Extension Petal Column Stamen Maintenance Channel Space Primary and secondary trusses 25 Yining Ma 25
concealed
Curved white perforated aluminum plate, light Red gradient stamen
aluminum square, from human viewpoint blocking upper equipment structure system

A. BOMBAX CEIBA Interior Design of Baiyun Railway Station Waiting Hall

Location: Guangzhou, Guangdong, China; Partnership: Individual; Instructor: Prof. Jiang Tao, Tian Ruifeng, Zhong Guanqiu; Time: 2022 Spring

West Section Elevation Of the Waiting Hall

Design Region Non-Design Region Low-e Laminated insulating glass Electric opening control window Side seal plate Side seal plate White aluminum square Hollow Toughened Glass 3.0 thick aluminum veneer door cover 2.5 thick aluminum ceiling Glazing Handrail 30 thick polished granite slabs Escalator projection line Air conditioner 1.0 thick golden downlight DL 6×4 white curved punched aluminum sheet light red curved punched aluminum sheet stainless steel lamp slot ventilating opening 3.0 thick white aluminium plate 30 thick polished granite slabs Corridor LED Suspender maintenance access Outer seal plate Main Truss Secondary Truss (Unit: mm) 26 Yining Ma 26

A. BOMBAX CEIBA Interior Design of Baiyun Railway Station Waiting Hall

Location: Guangzhou, Guangdong, China; Partnership: Individual; Instructor: Prof. Jiang Tao, Tian Ruifeng, Zhong Guanqiu; Time: 2022 Spring

The design of the waiting room bathroom mainly considers the placement of the suitcase, sparing gap for the suitcase under the washbasin and in the toilet. In addition, there is an invisible air vent integrated under the sink.

Wash Basin Detailed Section

(Unit: mm)

built-in fitting floor stab keel LED light strip 3.0 thick curved gold perforated plate anti-skid tiles 600×600×10mm anti-skid tiles 600×600×10mm grey anti-skid tiles 600×600×10mm faucet 25 thick white artificial stone Stainless steel backwater bend Wood brown curved finish panel Wood brown linear bar Waterproofer Wall Structure Etter plate 6.0 think clear mirror galvanized square tube 40×40×4m 3.0 thick dark grey aluminium plate
27 Yining Ma 27

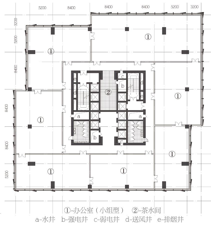
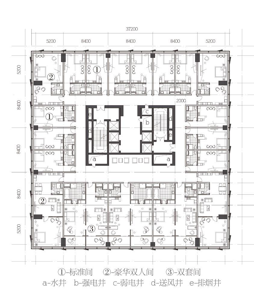
B. BOXES DISSOLUTION High-rise complex design Design

Location: Guangzhou, Guangdong, China; Partnership: Individual; Instructor: Prof. Yu Daxing; Time: 2020 Spring

① Standard Room ② Deluxe Double Room ③ Double Suite

a-Water Shaft b-Electricity Shaft c-Vertical Shaft for Light-Current

d-Air Conditioning Ventilation Shaft e-Smoke Ventilation Shaft

(Unit: mm)

① Office (group type) ② Kitchen

a-Water Shaft b-Electricity Shaft c-Vertical Shaft for Light-Current

d-Air Conditioning Ventilation Shaft e-Smoke Ventilation Shaft

(Unit: mm)

This design attempts to explore the future inside the box: by gradually dissolving the closed traditional pigeonholes and injecting a lively shared space. Inside and outside the box, at the intersection of dissolution, nodes of communication are built to break the closed space and burst into vitality.

28 Yining Ma 28

C. LIGHT CABLE

D. ATRIUM Station Suspension-cable Structure Opimization Design

Location: Guangzhou, Guangdong, China; Partnership: Team Work; Instructor: Prof. Xiao Yiqiang, Prof. Li Jin; Time: 2019 Spring

Green Renovation Design for an Existing Villa

Location: Guangzhou, Guangdong, China; Partnership: Team Work; Instructor: Prof. Wang Jing, Prof. Xiao Yiqiang; Time: 2020 Fall

1 Building Envelope 2 Frame Structural System 3 Column 4 Main Cable 5 Secondary Cable 6 Suspension Cable Structure System 7 Stay Cable 8 Purline 9 Roof Layer 10 Node 1 11 Node 2 12 Node 3

This scheme uses the SUSPENSION CABLE STRUCTURE to realize the functional requirements of the waiting hall while realizing the dynamic continuous roof. The suspension cable structure does not need to drop the column in the waiting hall. Compared with the truss structure, the section size is smaller, and the cleavage caused in the space is smaller, giving people A FEELING OF LIGHTNESS.

Our approach was to embed comprehensive thermal buffer spaces that internally transformed the stairwell space at the center of the villa into a small atrium to open up the space for ventilation. The space opens up a larger light inlet area, which makes the indoor natural lighting abundant and more uniform.

Physical Structure Model of
Station: Suspension Cable Structure 1 6 10 11 12 2 7 3 4 8 5 9 Detailed Node 1,2,3, Left to Right
a
Integrated
Solar Photovoltaic Panel Atrium West
Additional Side Court Components Before Renovation After Renovation Ventilation Condition Thin Film Photovoltaic Panels Purlines Air Layer Roof Intelligent control curtain Square inclined louver Intelligent ventilation opening Waterproof layer Light roof panel laying photovoltaic panels White two-layer shading panels Ventilation Opening Light color light shading panel Braced Frame Jointing Element Plant Groove Enclosed, muggy interior 1F Lighting Condition 2F Lighting Condition 3F Lighting Condition Air-flowing interior
Laying of New and Old Roofs With Solar Photovoltaic Panels
Double-skin facade
29 Yining Ma 29

E. INDESCENCE

F. MAPPING OF A CHURCH Analysis Model of La Lira Theatre Public Open Space Gothic Church Details Drawing for Future Preservation

Location: Ripoll, Spain; Partnership: Team Work; Instructor: Prof. Xiao Yiqiang, Prof. Li Jin; Time: 2019 Spring

Location: Zhanjiang Guangdong, China; Partnership: Team Work; Instructor: Prof. Feng Jiang; Time: 2021 Fall

Bridge Both Sides of the River Trusses Line and Sunlight Decorated with Festoons During Festivals

Ground Floor Plan

On sunny days, the high roof filters bright light onto the vine-covered side walls of the interior. The changing light and shadow during the day and the changes of the vines with the seasons reflect the passage of time, giving the place more vitality. The first five parallel trusses are difficult to resist the lateral thrust of the vertical truss, and the last oblique truss is used to form a triangular stable structure.

From the overall perspective, the style of the church tends to be a simplified version of the Gothic church, with a clear structural system and fewer decorative parts. The church as a whole strengthens the vertical lines - the facade continues the UPWARD DYNAMIC FORCE, and the balustrades are made into pointed pavilions. The internal arch also enhances the elevated sense of sacredness.

1 3 4 4 8 9 10 5 6 2
Chancel 2 Priest Chamber 3 Central Nave 4 Aisle 5 500*500 White Ceramic Tile 6 Rain Leader 7 Main Entrance 8 Small Pavilion Handrail 9 Gargoyle 10 Rose Window
La Lira Theatre Public Open Space by RCR Architects is located in Ripoll, which contains a beautiful vision of public life. The first floor uses TRUSS STRUCTURE to form a large space that is TRANSPARENT and COLUMN-FREE
1
Left: East Facade Right: Front Facade
30 Yining Ma 30
of California, Berkeley, Master of Architecture
China University of Technology, Bachelor of Architecture yining_ma@berkeley.edu
you for joining this journey.
University
South
-Yining MaThank

Turn static files into dynamic content formats.

Create a flipbook
Architecture Portfolio_Yining Ma by Yining Ma - Issuu