Selected Works - Maya Shamir

Page 1

Maya Shamir

SELECTED

WORKS

2019 - 2022 Bachelor of Architecture

Maya Shamir

University of Texas at Austin mayashamir@utexas.edu +1.512.632.7122

2
3 01 NIMBY 02 Analogue Research Center 03 Guadalupe Corridor 04 TSBVI
05 Notch
04 12 20 26 36 42 Contents
Expansion
Table Peterson Rich Office

NIMBY (Not in My Backyard)

Fall 2022 Carthage, Texas

Collaborator: Julia Szeto

Instructor: Kyriakos Kyriakou

Tasked with exploring the effects of capitalism in small town America, this speculative narrative and subsequent design proposal emerged from research into Carthage, Texas. Carthage’s boom-and-bust history as an oil and gas town has stripped many of its residents of ownership of their mineral rights, clashing with the proud culture of private ownership. The speculation dramatizes the exploitation of small towns by oil companies as a magnified reflection of existing legal, economic and cultural conditions.

In the imagined future, fracking booms in the United States again. A new advent of fracking requires more injection wells for wastewater from fracking processes.With climate change and drought looming, many states under pressure to recycle wastewater tighten regulations on drilling new injection wells. In order to accommodate the volume of fracking wastewater produced in-state and imported from out-ofstate, Texas permits more injection sites without restraint. Several years later, the ground of Texas becomes more unstable from increased fluids and increased fluid pressure of high-density injections, creating seismic activity. In Carthage, a small town in East Texas, many residents use zoning loopholes to block injection wells in their own backyards; since many homeowners have sold their mineral rights, their only recourse is to densify the town with accessory structures and leave no space for injection wells. Neighbors form community land trusts to prevent injection wells in the town’s green spaces. Strategic accessory guesthouses and sporting facilities quickly fill the town, sometimes turning private backyards into semi-public spaces and commercial strips into informal drive-through markets.

4
01
Advanced Studio Academic Work
5
6
Typical residential block with added accessory structures and sporting facilities
7
8

Left: Town square converted into rodeo

Above: Speculative plan of injection sites surrounding Carthage

9

Above: Tranformation of main commercial street, with drilling across from densified drive-throughs

Right: (top) Volleyball court and kiosks prevent drilling in a typical commercial parking lot; (bottom) Community land trust trail system near highway

10
11

Fall 2020 South Tyrol, Italy

Analogue Research Center

Designed to preserve the Tyrolean Mountains, this research center minimizes its footprint through the use of a large cantilever with minimal ground contact. The extreme site is analogous to potential future sites of habitation and study such as Patagonia and Siberia. In response to the steep site, the masonry base of the project embeds into the mountain slope, creating a visual and physical connection with the mountain. The long cantilever, supported by a large box truss, perches on top of the base. The stone and plaster layer reflects the typology of the region, which is characterized by the split-material houses. Moreover, the layers acknowledge and accommodate the center’s dual purpose as a research facility and hiking hut.

Sturdy and sheltered, the stone base houses researchers in private rooms and hikers in a shared bedroom. The cantilever contains a spacious kitchen and shared dining area for hikers and scientists, as well as labs and offices for glacier research. The dramatic gesture of the cantilever enables intimate views of the mountains surrounding the project. Visual connection to the surrounding landscape complements and vivifies research undertaken in the labs, while the large balcony creates a magnificent backdrop for hikers and scientists dining outdoors.

12 02
Intermediate Studio Academic Work
13
14
15
16 Section
Section C
A
17 Section
B
18

Above: the residential base offers outdoor gathering space on its roof

19

Spring 2020 Austin, Texas

Instructors: Suhash Patel + Kevin Sullivan

Guadalupe Corridor

The proposed urban intervention consists of graduate student housing perched above an inviting public space and transportation hub for Austin’s new underground train. The recessed plaza, which opens up to the busy intersection of Guadalupe Street and Martin Luther King Jr. Boulevard, blocks noise from traffic and distances the housing complex from the street, while a food hall and adjoining green spaces draw passersby in and encourage the use of public transport. The orientation of the plaza subverts the local norm of exclusive, concealed spaces; it insists that as Austin continues to grow rapidly, the need for accessible public spaces likewise increases.

Stretching above the plaza and landing on an adjacent parking lot, the apartment building addresses the scarcity of inclusive graduate student housing near the University of Texas’s campus. These residences accommodate graduate students with young children by providing generous outdoor spaces for recreation. Each apartment is accessed from a deep loggia, reducing excessive heat gain while fostering connections between neighbors. The relatively compact size of each unit enables the apartments to remain affordable despite their central location.

20
03
Intermediate Studio Academic Work
21
22
MLK Blvd
GuadalupeSt.
Guadalupe St MLK Blvd Lavaca St
23
24
25

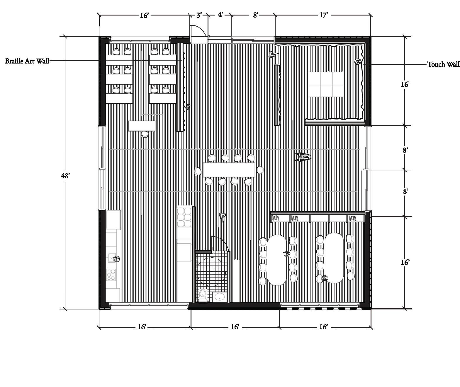
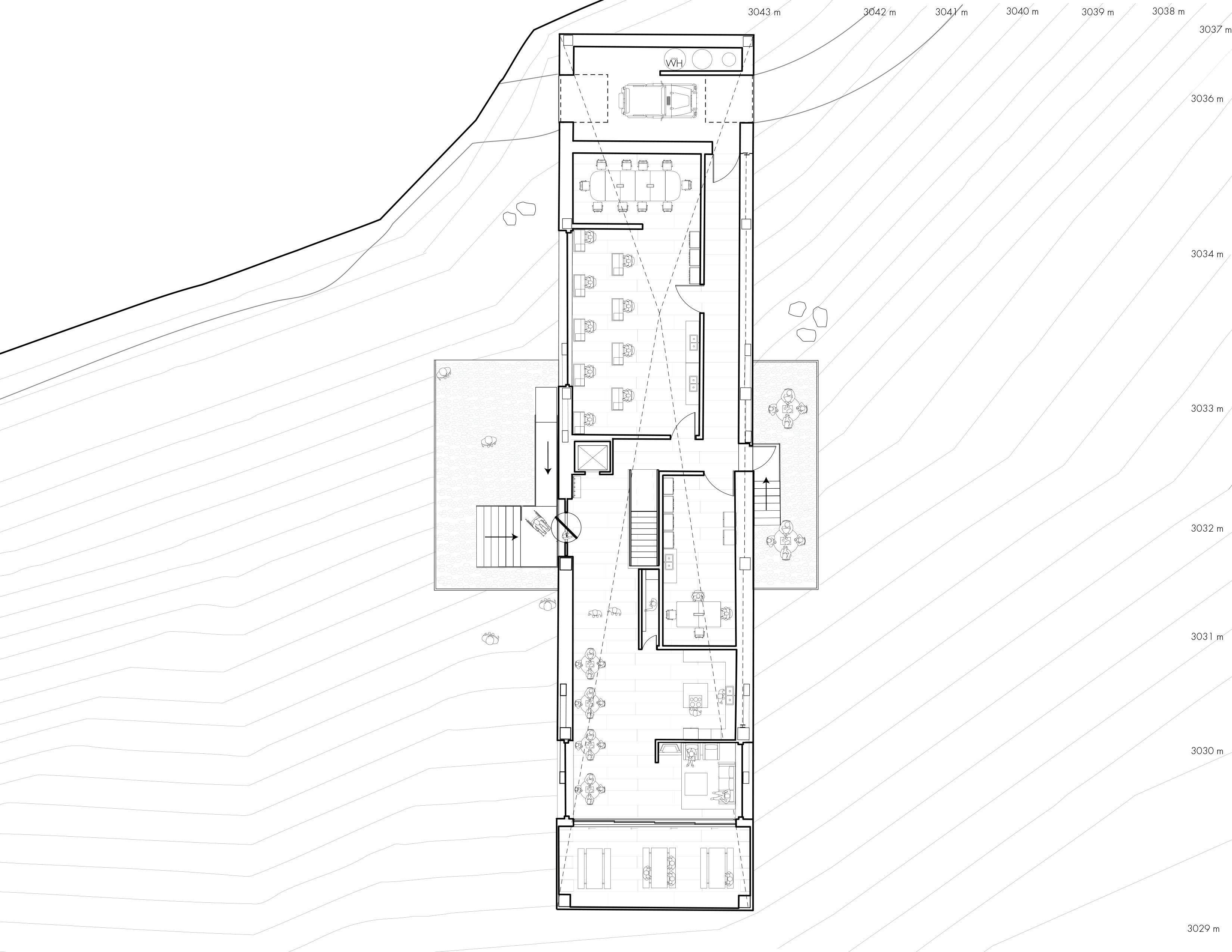
04 TSBVI Expansion

Spring 2020 Austin, Texas

Collaborator: Dany Chousal

Instructors: Claire Townley + Andrew Stone

The Texas School for the Blind and Visually Impaired Expansion is organized around a large central courtyard, centering the belief that public space has the power to transform and enrich a neighborhood. The orthoganality of the overall arrangement enables navigational ease for sighted and non-sighted occupants as they access the expansion’s makerspace, eatery, or residences. Folded roofs create visual and acoustic interest and cantilever to create shaded walkways between buildings. The walkways mediate between indoors and outdoors, creating an easy transition while providing distinct acoustic and thermal conditions to give non-visual navigational markers. Through the simplicity of the overall plan and the experiential differences between indoor, covered walkway, and outdoor conditions, users can rely on multiple senses as they inhabit the project.

Located in bustling north central Austin, the project further seeks to connect the school to its context while maintaining privacy for students and residents. Responding to the guarded campus and the busy intersection on which it is located, the expansion frames a public courtyard that encourages social interaction and serves as a public gathering place lacking in the neighborhood. The project’s exterior material is brick, referencing its context while creating dynamic, playful conditions with brick screens.

26
Comprehensive Studio Academic Work
28
29
30
Sloped
Wool
CLT Rigid
Flashing Jamb Extension Hardwood Frame Fire-resistant Sloped Mineral Wool Zinc Roof - Standing Seam System Waterproo ng Membrane Zip Sheathing CLT Rigid Insulation Double Glazing Glass Door Flashing Double Glazing Glass Door Threshold (Sill) Zinc Roof Waterproo ng Membrane Zip Sheathing Flashing Rigid Insulation CLT Wood Trim Double Header Shim Space Wood Decking Treated Wood Sleepers Facia Board
Fire-resistant
Mineral
Zinc Roof - Standing Seam System Waterproo ng Membrane Zip Sheathing
Insulation Flashing

Below: Adhering to the neighborhood scale, the addition maintains a modest height while increasing density

34

05 Notch Table

Fall 2022

This project playfully explores the most basic components of a coffee table – a table top and four legs. The connection of these elements is dramatized as an intrusion to the tabletop. The typical relationship between table and legs is distorted both by the irregular leg placement and the joint connecting the two. The hard maple table top is softened by the use of a roundover to manufacture a sense of elasticity, emphasized by the change in the roundover diameter of the edges on the long sides as opposed to the short sides. The legs are rounded at the top and bottom and notch into the table top at varying depths. Their uneven placement pinches the table on each of its sides, subverting the typical arrangement and creating tension across the table. This composition enhances the overall sense of elasticity. Without introducing unfamiliar elements, the standard coffee table’s components are re-contextualized to be more playful.

After milling and joining three maple boards to create the table top, I used a bandsaw and router to refine its geometry. The 2” diameter leg dowels were similarly created using a bandsaw, table saw, and router table.

36
Wood Design Academic Work
37
38
39
40

Professional Experience

41

Advanced Studio: Residency Program

Spring/Summer 2022 Brooklyn, New York

Peterson Rich Office

Peterson Rich Office is a midsize firm in Brooklyn, New York. During my six month residency there, I created presentation models and drawings for clients and a competition, assisted on construction administration for a bar in a historic venue, and planned and facilitated public housing design workshops.

42
Professional
Work

Kagan House/Studio

East Hampton, shaped by a rich legacy of artists, has a zoning ordinance that allows for artist studio additions. Peterson Rich Office renovated and expanded an existing house for an artist couple and their two children, adding a shared artist studio, expanded living quarters, and a pool. The use of wood in the model represents an addition while the existing house is shown in white.

Project Team: Nathan Rich, Martin Carrillo, Amber Farrow

43
44
45

P & T Knitwear

This bookstore in the Lower East Side contains a podcast studio. The studio has a circular bench with a built in light in the millwork; working from the lighting spec, I studied the bench back detail with physical models, testing various angles and lip lengths until selecting a solution that created soft, diffused light. I also created a presentation plan of the recently completed bookstore and podcast studio for promotion and lectures.

46
Project Team: Miriam Peterson, Laylee Salek Photo by Rafael Gamo

Above: Schematic floor plan; Below: Detail section of podcast studio bench

Left: Photo of podcast studio

47 PODCAST STUDIO AMPITHEATER CAFE BACK OF HOUSE CHILDREN’S AREA MAIN BOOKSTORE OFFICE WC STAGE UTILITY CLOSET POS

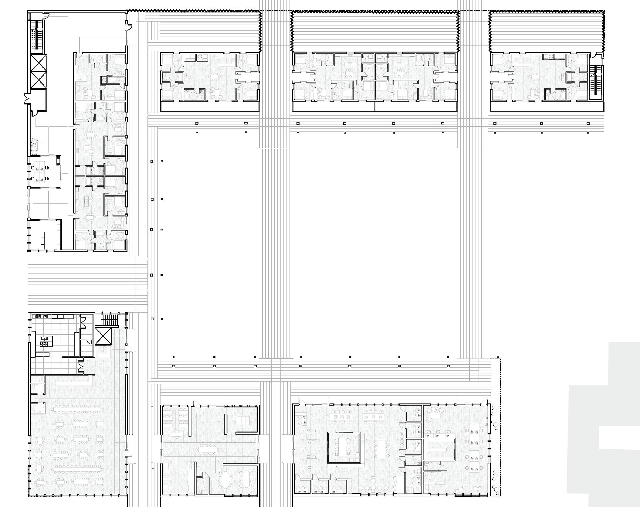
Rangel Houses

New York City Housing Authority

Through a fellowship with the New York City Housing Authority, PRO completed property assessment reports and design suggestions for three NYCHA properties, including Rangel Houses, an Upper Manhattan campus home to over 2,000. This feedback was solicited as a part of facilitated exercises and discussions designed to surface ideas and visions for the aging Rangel campus, buildings, and homes. I was responsible for creating materials for workshops at three properties, and then analyzing and distilling the information into a report. The template I developed alongside my supervisor will be used for future design workshop reports.

48
Project Team: Alek Tomich, Martin Carrillo, Yaiza
New Modern Appliances and Fixtures
New Plumbing Insulated Overclad Siding Larger Windows
Added Built-In Storage Warm Floor Finishes
Integrated Heating and Cooling Systems Cold, Hard Finishes Throughout Uninsulated Facade Individual A/C Units Aged Plumbing Systems Old, Small Windows Compartmentalized, dark kitchens Proposed Typical Apartment Conditions Existing Typical Apartment Conditions
Open Floorplan with Kitchen Island

Enhance Main Site Access Gateway and Establish Hierarchy of Pathways to clearly define limits of campus, improve accessibility, and create more welcoming connections from the south.

Beautify the Ring Road and Consolidate Parking to free the front of the site from vehicles in exchange for a large programmed outdoor community space.

Protect Against Flooding Threats with a recreational resiliency park at the vulnerable front of the site.

Multigenerational Activity Zones consolidate the recreational spaces around the central lawn and fitness track for separate, but adjacent, areas for resident families to gather, play, and exercise.

Interspersed Low-Maintenance Plantings improve campus aesthetics and stormwater absorption.

49
5 2 2 2 3 4 4 4 5 5 5 4 4 4
5 2 4 3
Harlem River Driveway
HarlemRiverDr
1 Map Legend:

Ground Floor Map Legend:

1 A Lobby Expansion marks a clear front entrance with added glazing and doors for increased daylighting and natural ventilation. Spaces formerly occupied by kitchens in the two apartments nearest the entry, which have been relocated and reclaimed as part of the expansion, become a space for a waste collection room and mail and package area.

Front Patios are expanded to create highly visible entry areas that feel safe to occupy. Exterior ramps from the main campus pathway allow for residents to enter the lobby at-grade, improving accessibility.

New Compliant Elevators are relocated and sized to fit an emergency medical service stretcher cab.

50
2 3
1 2 3

Typical Level Map Legend:

1 New Laundry and Lounge Spaces on the second floor allow for a row of washers and dryers within each building, making laundry convenient and providing a space for neighbors to congregate indoors.

Improved Corridors with updated finishes and improved lighting fixtures will transform the hallways on all levels from cold and dark to warm and inviting.

New Trash Rooms and Chutes on every floor improve waste infrastructure for contemporary-sized bags for separate waste streams.

4 Expanded Air Vents in the former trash chutes of every floor keep hallways fresh and well-ventilated.

51
2 2 1 4 3 2 3
52

Maya Shamir

mayashamir@utexas.edu +1.512.632.7122

Education

The University of Texas School of Architecture Bachelor of Architecture, May 2023 Minor

in History

Work Experience

Peterson Rich Office

Architectural Intern | January 2022 - July 2022 Brooklyn, New York

Planned and coordinated community engagement workshops for public housing residents Compiled workshop reports, including design suggestions Assisted in the construction administration for a historic music venue renovation

Created presentation models for cultural competition and residential projects

North Arrow Studio Architectural Intern | June - August 2021 Austin, TX

Created 3D models and 2D graphics in SketchUp for client presentations on five residential and commercial projects Surveyed three sites for feasibility studies and created site models

Communicated with contractors during construcion administration phase

Landmarks

Training Docent | August 2018 - May 2019 Austin, TX

Received specialized training for university public arts program

Volunteered at monthly Landmarks events that connect the public to art and local artists

Leadership and Awards

UTSOA Design Excellence Nomination | 2022 Project: Not in My Backyard UT College Scholar | 2021- present University Honors | 2019 - present First Year Mentor | 2019 - Present LEAD Texas Student Representative

Publications

Daily Texan Life and Arts Contributor | 2020

ISSUE 17 Copy Editor | 2020 - 2021 Copy editor for annual student-run publication Developed forwards, solicited pieces, then selected and curated submissions

Software Proficiencies

Adobe: Photoshop, Illustrator, InDesign

3D Modeling: Rhino, SketchUp BIM: Revit

Rendering: Enscape, Vray Fabrication: Laser cutting, Woodworking Misc: ArcMap GIS, Microsoft Suite, Bluebeam

References

Claire Townley | Lecturer, Architect at Pollen Architecture clairetownley@utexas.edu, +1(512) 499-0888

Nathan Rich | Principal, Peterson Rich Office nathan@pro-arch.com, +1(212) 390-1504

53

Turn static files into dynamic content formats.

Create a flipbook
Issuu converts static files into: digital portfolios, online yearbooks, online catalogs, digital photo albums and more. Sign up and create your flipbook.