Villa - Execution Design Project

Page 1

10.10 0.00 6.45 10.73 6.45 0.30 0.15 0.00 7.39 17.88 1.04 2.04 5.32 1.90 3.45 4.09 27.01 26.87 10.60 1 2 3 4 4 5 6 7 8 9 Project Base Point (0.4811 m,1.3702 m) (0.4811 m,2.5583 m) (0.4811 m,3.98 m) (0.4811 m,6.7 m) (0.4811 m,9.4 m) (0.4811 m,11.2 m) (0.4811 m,13.97 m) (0.4811 m,16.9 m) (0.4811 m,19.7 m) (0.4811 m,22.4 m) (0.4811 m,24.2 m) (0.4811 m,25.8 m) 1 3 1 1 2 1 1 4 6 2 7 2 2 7 0 1 8 0 2 7 7 2 9 3 2 8 0 2 7 0 1 8 0 1 6 0 (1.99 m,25.8 m) (3.88 m,25.8 m) (6.28 m,25.8 m) (8.86 m,25.8 m) (11.51 m,25.8 m) (13.7m 25.8 m) (16.02m , 25.8m) 1 51 1 89 2 40 2 58 2 65 2 27 2 24 0 3 0 0 7 4 0 3 0 0 6 3 0 3 0 0 9 1 0 3 0 0 8 2 0 3 0 0 8 9 0 3 0 0 9 5 0 3 0 0 7 4 0 3 0 1 0 1 0 3 0 0 9 5 0 3 0 4 22 8 8 5 6 5 0 3 00 2 51 0 3 0 0 7 0 0 3 0 0 7 0 0 3 0 0 8 4 0 3 0 0 7 3 0 3 0 Scale As indicated Execution Design 1 31/5/2023 Mayar Khaled 19016746 1 Site Finishing materials 1 2 3 4 5 6 7 8 9 Blue mosaic tiles for pool Grass Interlocking Cement Tiles Teak Wood Tiles Mosaic Tiles for roof Paint Sloped Green Roof Porcelain Tiles Stone for Coping Trees Hyphaene Palm Tree Mesquite Tree Hyphaene Palm Tree Mesquite Tree 1 : 50 Wooden Tiles Sloped Green roof NEIGHBOR STREET NEIGHBOR STREET STREET

D12.401.401Flush Aluminum D22.200.805Flush wooden door D32.200.905Panel door D42.201.504Aluminum sliding D52.352.501Aluminum sliding

W11.801.500.587Wooden hinged

W21.502.100.625Wooden hinged W31.501.000.582Wooden sliding W41.200.750.886Aluminum sliding W61.252Corner window

W73.001.003Skylight W153.201.250.001Corner window

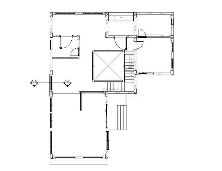
Execution Design 1

Ground Floor

2

31/5/2023 Mayar Khaled

19016746

12 11 10 9 8 7 6 5 4 3 2 1 2019181716151413 3 2 1 A A B B C C D D E E 1 1 2 2 3 3 4 4 5 5 6 6 4 00 3 00 3 00 3 00 1 6 1 6 1 5 1 5 W2 W2 W2 W2 W3 W3 W1 W1 W1 W5 0 60 2 10 0 86 2 10 0 58 0 40 2 10 0 86 2 10 0 38 4 1 4 1 5 0 0 2 0 1 5 0 0 8 2 7 00 6 36 13 36 1 6 8 7 13 48 4 00 3 00 3 00 3 00 4 0 0 4 0 0 2 0 0 4 0 0 2 5 0 1 6 8 8 5 77 2 2 1 1 8 1 8 1 9 1 9 D1 D3 D4 D2 D3 10 1 10 W5 D5 W4 W4 3 7 8 3 66 0 5 0 1 0 0 0 7 6 1 0 0 0 5 4 2 67 0 90 0 14 0 29 1 1 9 0 7 5 0 5 3 3 80 2 3 6 2 12 1 50 0 60 2 4 0 1 2 1 0 7 5 0 4 4 2 86 0 2 7 0 9 0 1 2 3 0 35 2 10 0 86 2 10 0 36 2 80 0 73 1 43 0 63 1 5 1 2 5 0 3 7 7 1 1 1 1 3 3 1 3 2 1 2 2 1 1 1 1 3 3 1 3 2 1 1 2 0.44 4 0 0 4 0 0 2 0 0 4 0 0 2 5 0 4 49 2 50 6 49 3 1 4 0 7 5 3 1 0 1 5 0 0 8 2 1 5 0 0 2 0 1 5 0 0 3 8 3 3 0 0 6 8 0 7 9 0 7 5 1 8 5 1 0 0 0 7 6 1 0 0 0 8 6 1 8 9 1 4 6 2 5 4 3 9 7 Scale 1 50
DoorsSchedule TypeHWNO.Description
Window Schedule TypeHeightWidth Sill HeightNo.Description
Finishing materials Walls Floors 1 2 3 1 2 3 4 Skirting Ceiling 1 2 3 4 1 2 Skip Beige colour Plaster Marble Ceramic Marble Marble Ceramic Ceramic Skip Beige colour Plaster Gypsum Board Tiles False ceiling Parquet Parquet Porcelean Porcelean walls ceiling skirting floors

Aluminum D22.200.805Flush wooden door D32.200.905Panel door D42.201.504Aluminum sliding D52.352.501Aluminum sliding

W11.801.500.587Wooden hinged W21.502.100.625Wooden hinged W31.501.000.582Wooden sliding W41.200.750.886Aluminum sliding W61.252Corner window W73.001.003Skylight W153.201.250.001Corner window

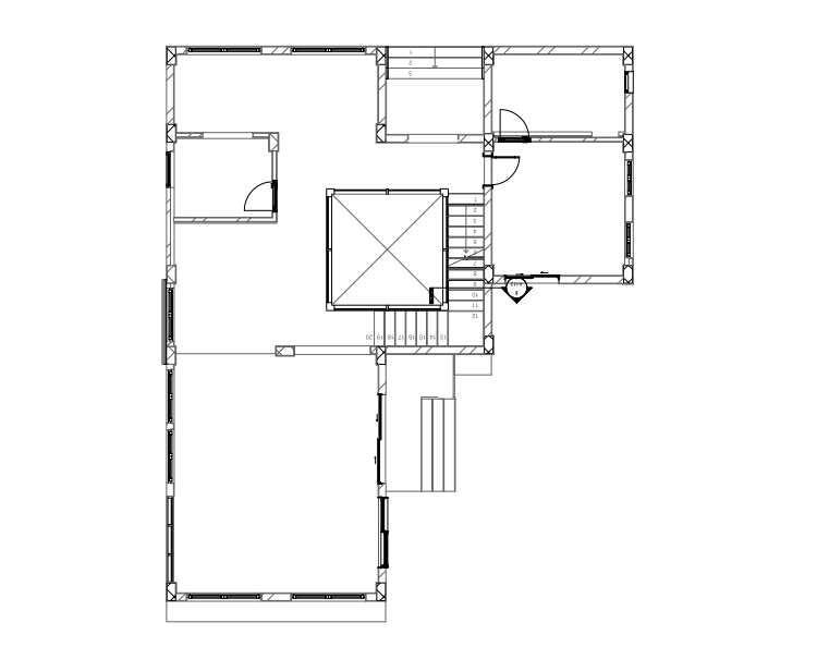
Execution Design 1

First Floor

31/5/2023

3

Mayar Khaled

19016746

11 10 201918171615141312 A A B B C C D D E E 1 1 2 2 3 3 4 4 5 5 6 6 1 6 1 6 1 5 1 5 W1 W1 W1 3.45 2.25 1 8 1 8 1 9 D3 D2 D2 D4 1 10 10 W6 W6 5 77 3 7 1 1 0 5 2 6 6 0 99 4 78 0 21 0 85 4 71 3 76 0 24 2 76 3 28 0 48 2 6 7 1 0 9 1 97 1 50 2 29 0 85 0 16 0 13 3 71 3 9 4 1 5 0 M 2 4 5 1 2 6 0 7 5 0 4 4 2 86 0 3 2 0 9 0 1 2 3 3 3 1 3 0 2 9 3 4 1 1 0 0 1 35 0 02 3 9 9 0 4 4 3 3 0 0 3 8 1 5 0 0 2 0 1 5 0 3 7 4 2 64 0 13 1 92 1 50 0 29 4 00 3 00 3 00 3 00 7 00 6 24 13 24 4 0 0 4 0 0 6 0 0 2 5 0 4 0 0 4 0 0 2 0 0 4 0 0 2 5 0 2 0 1 1 8 0 3 7 6 1 97 1 50 2 29 0 85 0 16 1 00 1 1 1 1 1 1 1 1 1 1 1 1 1 1 1 1 2 1 1 2 3 54 4 70 5 00 13 48 1 8 2 6 1 3 3 3 1 8 3 2 0 2 0 0 0 5 4 7 9 9 1 3 1 3 2 2 0 7 5 3 1 0 1 5 0 0 8 2 1 5 0 0 2 0 1 5 0 0 3 8 3 3 0 0 6 8 1 8 2 6 W4 4 00 3 00 3 00 3 00 Scale 1 50
DoorsSchedule TypeHWNO.Description D12.401.401Flush
Window Schedule TypeHeightWidth Sill HeightNo.Description
Finishing materials Walls Floors 1 2 3 1 2 3 4 Skirting Ceiling 1 2 3 4 1 2 Skip Beige colour Plaster Marble Ceramic Marble Marble Ceramic Ceramic Skip Beige colour Plaster Gypsum Board Tiles False ceiling Parquet Parquet Porcelean Porcelean walls ceiling skirting floors

Aluminum D22.200.805Flush wooden door D32.200.905Panel door D42.201.504Aluminum sliding D52.352.501Aluminum sliding

W11.801.500.587Wooden hinged W21.502.100.625Wooden hinged W31.501.000.582Wooden sliding W41.200.750.886Aluminum sliding W61.252Corner window W73.001.003Skylight W153.201.250.001Corner window

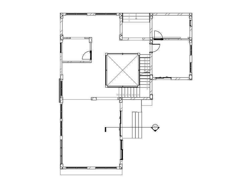
Execution Design 1

Second floor

31/5/2023

4

Mayar Khaled

19016746

11 10 A A B B C C D D E E 1 1 2 2 3 3 4 4 5 5 6 6 1 6 1 5 1 5 5.02 6.45 D2 D2 D3 D4 W4 W4 W1 W2 W7 W7 W7 W15 2 4 5 1 2 6 0 7 5 0 4 4 2 86 0 3 2 0 9 0 1 2 3 3 3 1 3 4 00 3 00 3 00 3 00 4 0 0 4 0 0 6 0 0 2 5 0 4 00 3 00 3 00 3 00 4 0 0 4 0 0 2 0 0 4 0 0 2 5 0 1 1 1 1 D4 5 77 3 7 1 0 34 0 85 4 57 0 99 4 78 2 6 4 1 0 8 2 76 6 93 0 67 0 75 1 31 0 75 0 77 1 4 3 0 42 0 75 1 31 0 75 0 53 5 8 4 0 2 9 1 4 6 0 5 4 3 2 0 0 3 5 0 84 2 10 0 83 2 77 0 90 0 05 4 5 0 0 8 9 0 4 5 3 77 1 5 9 3 15 1 35 3 4 6 0 1 4 1 5 0 1 8 2 3 45 1 50 0 67 2 9 7 6 17 0 9 0 5 81 1 00 2 1 2 2 3 3 1 3 1 1 1 1 1 1 1 1 6.45 W4 D3 13 48 0 78 0 75 1 31 0 75 0 77 2 76 1 23 5 09 8 0 0 8 7 4 1 4 8 1 8 2 1 1 19 2 10 3 82 0 83 1 25 0 43 1 25 0 54 1 14 0 93 1 8 2 4 0 3 7 3 1 8 4 1 8 0 6 6 1 5 0 3 1 0 0 7 5 3 2 0 1 3 2 13 48 1 1 1 1 Scale 1 50
DoorsSchedule TypeHWNO.Description D12.401.401Flush
Window Schedule TypeHeightWidth Sill HeightNo.Description
Finishing materials Walls Floors 1 2 3 1 2 3 4 Skirting Ceiling 1 2 3 4 1 2 Skip Beige colour Plaster Marble Ceramic Marble Marble Ceramic Ceramic Skip Beige colour Plaster Gypsum Board Tiles False ceiling Parquet Parquet Porcelean Porcelean walls ceiling skirting floors
1 2 3 4 5 6 0.45 B 13 A 13 C 13 Earth Plain Concrete 10cm Plain Concrete 15cm Water Insulation 8mm Sand 5cm Mortar 2cm Galala beige marble tiles 120x60x3cm Earth Plain Concrete 10cm Plain Concrete 15cm Water Insulation 8mm Sand 5cm Joists and noggings swedish wood 5x5cm Swedish panels 10x5x300xm Inner paint 2cm RC slab 15cm Sand 5cm Joists and noggings swedish wood 5x5cm Swedish panels 10x5x300xm Sand 5cm Mortar 2cm Galala beige marble tiles 120x60x3cm Inner paint 2cm RC slab 15cm 0 5 4 2 2 0 2 7 4 0 0 0 0 5 4 2 2 0 0 6 2 1 5 0 0 6 2 0 5 8 1 8 0 0 3 6 1 8 5 1 8 5 1 7 4 0 6 2 1 5 0 2 3 6 1 0 0 2 2 0 1 8 0 0 5 8 Sand 5cm Mortar 2cm Galala beige marble tiles 120x60x3cm Inner paint 2cm RC slab 15cm Sand 5cm Mortar 2cm Galala beige marble tiles 120x60x3cm Inner paint 2cm RC slab 15cm Sand 5cm Mortar 2cm Galala beige marble tiles 120x60x3cm Inner paint 2cm RC slab 15cm Aluminum sliding window with Glass 6 mm Aluminum sliding window with Glass 6 mm Corner Window Skylight Grass Earth Glass Handrail 90cm 6mm Lighting Fixture 3.45 6.45 9.83 3 1 9 7 5 7 1 1 1 3 2 0 0 2 4 2 7 7 0 2 6 0 6 2 1 5 0 1 0 7 1 0 7 6 0 5 5 0 1 2 1 3 8 Internal Paint 2cm Reinforced Conc. slab 15cm Foam Thermal Insulation 5cm Plain Conc for sloping 7cm Sand 5cm Mortar 2cm Mosaic Ceramic Tiles 25x25x2.5cm Skirting From mosaic tiles 15cm Bitumin Water Insulation 8mm Grass Earth Screed 2cm Scale 1 50
: 50 Section 1 1
Execution Design 1 31/5/2023 Mayar Khaled 19016746 5 Section (A-A) 1

Execution Design 1 31/5/2023

A B C D E E 13 F 13 D 13 Earth Plain Concrete 10cm Plain Concrete 15cm Water Insulation 8mm Sand 5cm Swedish panels 10x5x300xm Joists and noggings swedish wood 5x5cm Inner paint 2cm RC slab 15cm Sand 5cm Joists and noggings swedish wood 5x5cm Swedish panels 10x5x300xm Gypsum Board false ceiling Reinforced Conc. slab 15cm Foam Thermal Insulation 5cm Plain Conc for sloping 7cm Sand 5cm Mortar 2cm Mosaic Ceramic Tiles 25x25x2.5cm Skirting From mosaic tiles 15cm Bitumin Water Insulation 8mm Inner paint 2cm Plain Concrete 10cm Rc slab 15cm Water Insulation 8mm Sand 5cm Mortar 2cm Porcealin tiles 60x60x0.8cm Mortar 2cm Galala beige marble tiles 120x60x3cm Inner paint 2cm Rc slab 15cm 0 4 2 2 2 0 1 1 3 3 1 9 0 2 6 2 7 4 0 2 6 0 2 2 4 5 0 9 9 2 2 0 0 3 2 2 4 5 1 8 1 0 9 3 0 3 0 0 7 7 1 5 0 0 6 2 Grass Earth Grass Earth Sand 5cm Mortar 2cm Galala beige marble tiles 120x60x3cm Inner paint 2cm RC slab 15cm Sand 5cm Mortar 2cm Galala beige marble tiles 120x60x3cm Water Insulation 7mm PC slab 10cm Inner paint 2cm Plain Concrete 10cm Rc slab 15cm Water Insulation 8mm Sand 5cm Mortar 2cm Porcealin tiles 60x60x0.8cm PC slab 15cm Earth Steel Cantillever stairs Curtain wall Grass Earth Waterproofing insulation 7mm Glass Handrail 90cm x 6mm Stainless steel handrail with glass panels 90cm x 6mm Marble Plinth 50x50x3cm Screed 2cm Scale 1 50
50 Section 2 1
Mayar Khaled 19016746 6 Section (B-B) 1

1 2 3 4 5 6 7 8 9

Finishing materials

Galala Beige Marble tiles

Skip beige paint

Wooden panels

Stone Coping Clear Glazed Corner window

Aluminum Sliding Door

Wooden Sliding window

Interlocking Cement Tiles

Glass panelled Handrail

10 Aluminum Skylight Green Roof 11

DoorsSchedule

TypeHWNO.Description

D12.401.401Flush Aluminum

D22.200.805Flush wooden door

D32.200.905Panel door

D42.201.504Aluminum sliding

D52.352.501Aluminum sliding

Window Schedule

TypeHeightWidth Sill HeightNo.Description

W11.801.500.587Wooden hinged

W21.502.100.625Wooden hinged

W31.501.000.582Wooden sliding

W41.200.750.886Aluminum sliding

W61.252Corner window

W73.001.003Skylight

W153.201.250.001Corner window

Galala beige marble

Execution Design 1

Elevations

Scale 1 50

31/5/2023

7

Mayar Khaled

19016746

A B C D E 1 3 5 2 6 2 9 4 5 7 8 2 1 9 1 0 0 0 2 9 0 8 3 0 3 0 2 5 0 1 1 1 3 2 0 0 2 5 2 7 5 5 3 4 5 3 6 5 3 2 0 2 7 5 5 01 5 01 2 5 0 3 52 1 1 2 D1 W6 W15 D4 W4 W4 W6 E Reinforced Conc. slab 15cm FoamThermal Insulation 5cm Plain Conc for sloping 7cm Mortar 2cm Mosaic Ceramic Tiles 25x25x2.5cm Skirting Frommosaic tiles15cm Bitumin Water Insulation 8mm Earth Plain Concrete 10cm Plain Concrete 15cm Water Insulation 8mm Sand 5cm Mortar 2cm Porcelain 40x40x0.8cm RC Concrete 15cm Sand 5cm Mortar 2cm Porcelain 40x40x0.8cm RC Concrete 15cm Sand 5cm Mortar 2cm Porcelain 40x40x0.8cm 0 3 6 1 8 0 0 5 8 0 3 6 1 8 0 0 5 8 0 8 1 1 8 0 0 5 8 0 6 6 1 9 3 1 8 0 1 2 0 1 8 0 1 2 0 1 8 0 1 0 3 Grass Earth 0.00 3.45 0.45 6.45 9.64 A Earth Plain Concrete 10cm Plain Concrete 15cm Water Insulation 8mm Sand 5cm Swedish panels 10x5x300xm RC Concrete 15cm Sand 5cm Mortar 2cm Porcelain 40x40x0.8cm Rc slab 15cm Inner paint 2cm Sand 5cm Swedish panels 10x5x300xm Joists and noggings 5x5cm Reinforced Conc. slab 15cm FoamThermal Insulation 5cm Plain Conc for sloping 7cm Sand 5cm Mortar 2cm Skirting Frommosaic tiles15cm screed 2cm Joists and noggings 5x5cm 4 8 6 1 5 2 1 8 6 1 5 0 1 0 3 0 3 2 2 4 2 1 8 1 0 9 3 0 3 0 2 8 6 0 6 6 0.45 3.45 6.47 9.64 1 2 3 4 5 6 0 4 6 2 5 0 0 3 0 1 1 2 3 1 9 3 6 5 1 0 7 3 2 4 1 9 6 2 7 5 9 4 8 9 7 10 11 D5 W7 W3 W3 W4 W6 3 1 9 2 8 0 0 4 5 2 3 5 1 Sand 5cm Mortar 2cm Inner paint 2cm RC slab 15cm Galala beige marble tiles 120x60x3cm Sand 5cm Mortar 2cm Inner paint 2cm RC slab 15cm Galala beige marble tiles 120x60x3cm Interior Paint&Plaster 2cm Reinforced Conc. slab 15cm Foam Thermal Insulation 5cm Plain Conc for sloping 7cm Sand 5cm Mortar 2cm Mosaic Ceramic Tiles 25x25x2.5cm Skirting From mosaic tiles 15cm Bitumin Water Insulation 8mm Earth Plain Concrete 10cm Plain Concrete 15cm Water Insulation 8mm Sand 5cm Mortar 2cm Galala beige marble tiles 120x60x3cm 3 1 9 1 1 2 0 3 0 2 5 0 0 4 6 3 1 9 2 7 4 2 7 4 1 1 1 1 2 0 0 8 8 0 6 6 6 Earth Plain Concrete 10cm Plain Concrete 15cm Water Insulation 8mm Sand 5cm Joists and noggings swedish wood 5x5cm Swedish panels 10x5x300xm 3 2 0 1 5 0 1 0 7 2 8 5 1 5 0 0 6 2
1 : 50 South 1
1 : 50 West 4
E 0.45 9.80 Earth Plain Concrete 10cm Sand 5cm Mortar 2cm Interlocking Cement Tiles 30x30x3cm Earth Plain Concrete 10cm Plain Concrete 15cm Water Insulation 8mm Sand 5cm Mortar 2cm Porcelain 40x40x0.8cm Earth Plain Concrete 10cm Plain Concrete 15cm Water Insulation 8mm Sand 5cm Mortar 2cm Porcelain 40x40x0.8cm Earth Plain Concrete 10cm Plain Concrete 15cm Water Insulation 8mm Sand 5cm Mortar 2cm Porcelain 40x40x0.8cm Interior Paint&Plaster 2cm Reinforced Conc. slab 15cm Foam Thermal Insulation 5cm Plain Conc for sloping 7cm Sand 5cm Mortar 2cm Mosaic Ceramic Tiles 25x25x2.5cm Skirting From mosaic tiles 15cm Bitumin Water Insulation 8mm Stone Coping Nosing for rain 2cm Mechanical Fixation Cladding Marble Panels 150*60*4cm 2.76 2.76 3.19 0.38 1.80 0.58 0.38 1.80 0.58 0.81 1.80 0.58 6.45 3.45 screed 2cm Scale 1 : 10 Execution Design 1 31/5/2023 Mayar Khaled 19016746 8 Wall Section 1
C 3.35 Earth Plain Concrete 10cm Plain Concrete 15cm Water Insulation 8mm Sand 5cm Joists and noggings swedish wood 5x5cm Swedish panels 10x5x300xm Inner paint 2cm RC slab 15cm Sand 5cm Joists and noggings swedish wood 5x5cm Swedish panels 10x5x300xm RC slab 15cm Inner Paint 2cm Sand 5cm Mortar 2cm Porcelain 40x40x0.8cm Earth Plain Concrete 10cm Sand 5cm Mortar 2cm Interlocking Cement Tiles 30x30x3cm Earth Plain Concrete 10cm Sand 5cm Mortar 2cm Interlocking Cement Tiles 30x30x3cm Waterproofing 7mm Scale 1 10
Design 1 31/5/2023 Mayar Khaled 19016746 9 Wall Section 2
Execution
Interior Paint&Plaster 2cm Reinforced Conc. slab 15cm Foam Thermal Insulation 5cm Plain Conc for sloping 7cm Sand 5cm Mortar 2cm Mosaic Ceramic Tiles 25x25x2.5cm Skirting From mosaic tiles 15cm Bitumin Water Insulation 8mm Earth Rc slab 15cm Mechanical Fixation Cladding Rc slab 15cm Inner paint 2cm Sand 5cm Swedish panels 10x5x300xm Joists and noggings 5x5cm Mortar 2cm Interlocking cement tiles Screed 2cm Cantillever stairs Wood Cladding 2.5cm Steel Stairs Structure 5cm Beam Anchors Scale 1 : 10
Design 1 31/5/2023 Mayar Khaled 19016746 10
Section 3
Execution
Wall
1.40 2.45 2.35 1.30 1.30 Clear Opening 1.20 Inside Outside Front Elevation Plan Front Elevation Section Plan 2.30 2.80 1.35 1.35 0.09 1.35 1.35 2.01 2.30 D1 D5 Wall 20cm Plaster 2cm Aluminum Frame Aluminum Sash Gasket Rubber Interlocking sash meeting rails Sloped SIll Internal cavities optimized for thermal performance Aluminum Frame Aluminum Sash Thermal insulation (expanded polystyrene) EPS 6cm Aluminum Skin 0.004 Internal cavities optimized for thermal performance Scale As indicated Execution Design 1 31/5/2023 Mayar Khaled 19016746 11 Doors D1 D5 Flush Aluminum Door Aluminum Sliding Door
1.64 1.32 1.36 0.55 0.55 1.50 1.20 1.20 1.32 1.16 0.08 0.06 0.60 0.06 1.25 2.75 2.50 2.00 Corner window 1.25 Inside Outside Front Elevation Plan Inside Outside Front Elevation Plan Section Section 0.92 1.11 Scale 1 10 Execution Design 1 31/5/2023 Mayar Khaled 19016746 12 Windows W6 Aluminum Corner Window Window Schedule TypeHeightWidth Sill HeightNo.Description W11.801.500.587Wooden hinged W21.502.100.625Wooden hinged W31.501.000.582Wooden sliding W41.200.750.886Aluminum sliding W61.252Corner window W73.001.003Skylight W153.201.250.001Corner window W4 W3
panels 8mm
stainless steel support bar 0.95
fixation technique for handrail Waterproofing membrane Protection course Root barrier Drainage Layer Thermal insulation Gravel Filter Fabric Engineered Soil Grass Gutter Metal sheet counterflashing and protecting Concrete curb Metal sheet Skylight Outer skylight frame for installation Rc Slab 15cm Brick curb 15cm Wooden threshold for insulation support Door stopper Inner plaster 2cm Rc slab 15cm Water insulation 8mm Plain conc. for drainage 7cm Sand 5cm Gravel 5cm Soil 20cm Plaster 2cm 5cm brick for insulation secure Brick wall 10cm Plaster 2cm Water insulation 8mm 0.50 0.90m Marble capping 4cm Anchor Mechanical joint Fixed nut Stud screw Screw Marble Plastic fisher LED light source Steel angle for fixation Gypsum board panels 20mm Omega steel section Tie for suspending C-channel steel section 0.30 0.10 0.10 0.40 0.28 0.08 Scale As indicated Execution Design 1 31/5/2023 Mayar Khaled 19016746 13
1 : 5 handrail A 1 : 5 skylight and green roof B 1 5 toilet floor connection E 1 : 10 flower box C 1 : 2 cladding fixation F 1 : 5 False Ceiling Detail D Skylight Suspended Ceiling Marble facade fixation Handrail Fixation
stainless steel clips for holding glass Glass
Main
Side
Details
1.00m 0.10
31/5/2023
19016746 14
1 20
1 1 : 20
Scale As indicated Execution Design 1
Mayar Khaled
Cantillever Stair Details
Side elevation
2 1 20
3 1 5
Front Section
Side Section
5
Connection Steel Thread Support Timber threads cladding Brick Wall Plasterboard Cut for Threads penetration timber cladding anchors plasterboard steel support

U-PVCElbow45 2",4",6" U-PVCTee45 2",4",6" U-PVCTee45 [4",6"]to[2",4"] U-PVCconnections U-PVCTee90 2",4",6" U-PVCTee90 [4",6"]to[2",4"] SymbolsList Symbol W T D IC GT IC GT V Code Description CeramicVesselbasin RectangularIncludingfixation setandcuttingtemplate Includingwastewhitecover Ceramicwallstandingsingle BTWbowlwithfullyhidden fixationWashdown,backto wallHorizontaloutlet Stainlesssteelfloordrain siphon200mm Concreteinspectionchamber Notes 600*400*180 abovecounter withoverflow (slottedshape) 365*560*400 wallstanding withfullyhidden fixation 200200 stainlesssteel304 600*600 U-PVCgullytarp 300*300 Supplyvalvestainlesssteelor copper UPVC UPVCpipes2"4"6"

Thedrainagecontinuesoutsidethebuilding withaninspectionroomapproximatelyevery sixmetersuntilitreachesthepublic drainage

1:50 15

ExecutionDesign-1 31/5/2023

MayarKhaled

19016746

12 11 10 9 8 7 6 5 4 3 2 1 1314151617181920 3 2 1 A A B B C C D D E E 1 1 2 2 3 3 4 4 5 5 6 6 1 6 1 1 5 1 5 W2 W2 W2 W2 W3 W3 W1 W1 W1 W5 D1 D4 D2 D3 W5 D5 W4 0.45m UPVCElbow 45° UPVCElbow 90° UPVCPipe 1'' UPVC4" UPVCElbow 90° UPVCElbow 45° UPVCElbow 45° UPVCElbow 90° IC IC IC IC IC IC GT GT UPVCElbow 45° UPVCElbow 90° UPVCPipe 1'' UPVC4" UPVCElbow 45° UPVCElbow 45° UPVCElbow90°UPVCElbow 45° UPVCPipe 1'' UPVCElbow90° UPVCElbow 90° Scale
SanitaryDrain U-PVCCap 2",4",6" U-PVCElbow90 2",4",6" U-PVCElbow90 [4",6"]to[2",4"]
TherearethesamePVCconnections,but withaccesscapIfneeded

SanitarySupply

1:50 16

ExecutionDesign-1 31/5/2023

MayarKhaled

19016746

P-PTee [3/4",2"] Supplyvalve stainlesssteel orcopper P-PElbow90 3/4",1" P.Pconnections SymbolsList Symbol Code W W' T D IC P Recessedstainlesssteelpaper toweldispenserandwaste receptcale 150*50 stainlesssteel304 GT IC GT V V' PP.R UPVC Description CeramicVesselbasin RectangularIncludingfixation setandcuttingtemplate Includingwastewhitecover CeramicVesselbasin RectangularIncludingfixation setandcuttingtemplate Includingwastewhitecover Ceramicwallstandingsingle BTWbowlwithfullyhidden fixationWashdown,backto wallHorizontaloutlet Stainlesssteelfloordrain siphon200mm Concreteinspectionchamber Notes 600*400*180 abovecounter withoverflow (slottedshape) 300*300*150 abovecounter withoverflow (slottedshape) 365*560*400 wallstanding withfullyhidden fixation 200200 stainlesssteel304 600*600 U-PVCgullytarp 300*300 Supplyvalvestainlesssteelor copper Anglevalvestainlesssteelor copper polypropylenepipes 3/4"1"1.5" UPVCpipes2"4"6" PP.R PP.R ColdWaterSupply HotWaterSupply 12 11 10 9 8 7 6 5 4 3 2 1 1314151617181920 3 2 1 A A B B C C D D E E 1 1 2 2 3 3 4 4 5 5 6 6 1 6 6 1 5 1 5 W2 W2 W2 W2 W3 W3 W1 W1 W1 W5 D1 D4 D2 D3 W5 D5 W4 0.45m WaterP.PMainSupply Pipe1" P-PElbow90° SupplyValve P-PElbow90° AngleValve AngleValve P-PPipe3/4" P-PElbow90° P-PElbow90°SupplyValve P-PElbow90° AngleValve AngleValve P-PPipe3/4" P-P Tee P-PElbow90° P-PElbow90° P-P Tee AngleValve Heater Heater Scale

Turn static files into dynamic content formats.

Create a flipbook
Issuu converts static files into: digital portfolios, online yearbooks, online catalogs, digital photo albums and more. Sign up and create your flipbook.