Portfolio

Page 1

16 16
17 Suíte 1 Suíte 2
Lavabo Banheiro
18 3D + plantas rua josé leardini, 201 MAUÁ SP 209,16 m² Projeto de reforma de uma residência com mais de 30 anos, o projeto adaptouse para o novo programa de necessidades de uma família de 4 pessoas, sendo um casal e duas crianças. Utilizando a estrutura existente como base, projetouse o programa de uma sala integrada com a cozinha, dois quartos, um banheiro social e uma suíte. Na área externa, comquintaleespaçogourmetaosfundos. Quarto01 Sala Cozinha Bh Quarto 02 Garagem
19 GARAGEM SALA COZINHA QUARTO01 QUARTO02 BANHEIRO SUÍTE QUINTAL LAVANDERIA LAVABO CHURRASQUEIRA
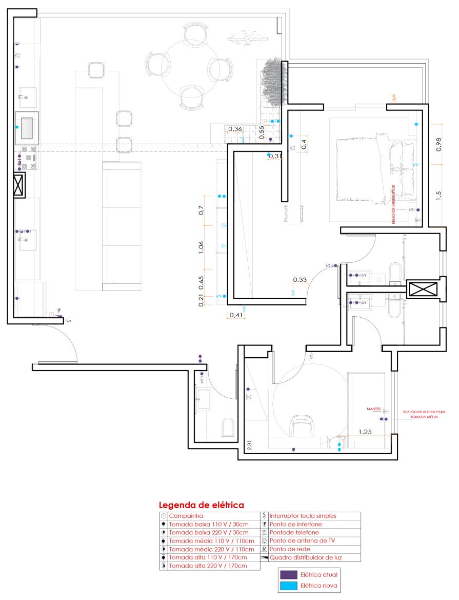
20 ELÉTRICA SIMPLES HIDRÁULICA SIMPLES ILUMINAÇÃO E CIRCUITOS

Sala

21 Garagem
22 Cozinha
Acesso quarto
01 Sala+Cozinha Quarto 02
23 Quarto 02 Quarto 01 Quarto 01 Quarto 01
24 Suíte
25 Quintal Churrasqueira Lavanderia
Lavabo
26 3D + detalhes cozinha rua das flores, 201 RIBEIRÃO PIRES SP Projeto completo Sala de jantar Sala Suíte
27 Banheiro Quarto 01 Quarto 02
28 3D + plantas rua quirino de lima, 201 RIBEIRÃO PIRES SP 66,96 m² Projeto completo Sala + Cozinha
29 Suíte 01 Suíte 02
30 3D + plantas rua carmo coelho, 145 RIBEIRÃO PIRES 112,64 m² Projeto de reforma do térreo e de nova arquitetura do pavimento superior. Foi mantido o layout dos ambientes do térreo, alterando se apenas a suíte e a lavanderia para o pavimento superior. SALADEJANTAR COZINHA CANTOALEMÃO BANHEIRO1 ESCRITÓRIO SALA planta layout térreo
31 QUINTAL SALA
32 SALA SALA DE JANTAR
COZINHA CANTO ALEMÃO
33 ESCRITÓRIO + BANHEIRO 01
34 planta layout pav.superior SUÍTE1 SUÍTE2 LAVANDERIA VARANDA SUÍTE 01
35
36
37 LAVANDERIA
VARANDA
38 TÉRREO PAV. SUP.
39
40 3D + planta rua Olavo Bilac, 169 RIBEIRÃO PIRES SP Bar e restaurante COZINHA BANCADAS DEPREPARO BHFUNCIONÁRIOS PALCO BHPNE 128m²
41
Espaço para mesas
Cozinha
Espaço para mesas
42 Espaço para mesas
Palco
Banheiro
43 3D Av. Francisco Monteiro, 1178 RIBEIRÃO PIRES SP Consultório de odontologia; estudo de layout v v
44
45 3D Rua dos jacintos, 495 SÃO PAULO PRAÇA DA ÁRVORE Estudoparatrocadearmárioeprateleiras
46
47 3D + Plantas rua leila gonçalves, 502 SÃO BERNARDO DO CAMPO SP 490,89 m² PAV.INFERIOR TÉRREO COZINHA SALA SALADEJANTAR GARAGEM LAVABO LAVANDERIA PERGOLADO QUINTAL
PAV.SUPERIOR1 PAV.SUPERIOR2 HOMEOFFICE SALADE TV BANHEIRO SUÍTE ATELIÊ RESERVATÓRIO COBERTURA COBERTURA+HORTA PAINEISSOLARESFOTOVOLTAICOS
48 GARAGEM GARAGEM FACHADA DA RUA LEILA GONÇALVES SALA
49 SALA COZINHA COZINHA
50 PERGOLADO LAVANDERIA COZINHA COZINHA LAVABO COZINHA
QUINTAL CIRCULAÇÃO PAV. SUP. 1
SALA DE TV BH SALA TV VARANDA HOME OFFICE
HOME OFFICE BH HOME OFFICE
SUÍTE
BH SUÍTE ATELIÊ

COBERTURA

Turn static files into dynamic content formats.

Create a flipbook
Issuu converts static files into: digital portfolios, online yearbooks, online catalogs, digital photo albums and more. Sign up and create your flipbook.
Portfolio by Mayara Luppi - Issuu