

![]()







ARCHITECT – MAYAN JHAVERI

WORK – 2016 TO CURRENT ACADEMIC – 2011 TO 2016

INTERNSHIP -
KAKANI ASSOCIATES, AHMEDABAD
WORK EXPERIENCE – 03-15
SHILPPVASTU, AHMEDABAD
Project Consultant - Mr. Fenil Jhaveri
a. Institute Building At Ahmedabad [Jaipur Stone & Heritage]
b. Corporate Building At Ahmedabad [Vastu, Green & Modern]
c. Bungalow At Jodhpur [Jodhpur Stone & Contemporary]
d. Parlour At Jodhpur [Jodhpur Stone & Contemporary]
e. Farm House At Gurgaon [Vastu & Green Concepts] WORK EXPERIENCE – 16-17
LESSARD ARCHITECTURE AND LAND PLANNING PVT. LTD., AHMEDABAD
Architect – Mr. Christian J. Lessard, USA
a. Worked On About 10 Projects Of USA [Modern & Contemporary]
NOTE: Due to Non-disclosure for Projects in USA, the works cannot be displayed
WORK EXPERIENCE - 18-24
HORIZON CREATIONS PVT. LTD., AHMEDABAD
Consultant – Mr. Xitij Jani
a. Baker’s Dozen Production Industry At Kheda [Industrial]
b. Bungalow At Bopal, Ahmedabad [Contemporary]
c. Dairy Farm 2 At Modasa [Industrial]
d. Flourish Food Processing Industry At Ahmedabad [Industrial]
WORK EXPERIENCE - 25-31
RAMESH PATEL AND ASSOCIATES, AHMEDABAD
Architect – Mr. Ramesh Patel [Professor – CEPT & Anant Institute]
a. Farm House At Mehsana [Unique & Contemporary]
b. Car Showroom At Mehsana [Unique & Contemporary]
c. Corporate Office Building At Ahmedabad [Unique & Contemporary]
d. Scheme And Residence At Mehsana [Unique & Contemporary]
e. Sarvajanik School At Mehsana [Unique & Contemporary]
f. Residences And Apartments At Mehsana & Ahmedabad [Contemporary]
Architect – Mr. Surya Kakani [Former Dean – Arch. Department, CEPT]
a. Anandniketan School At Gandhinagar [Sustainable]
b. Fluent Grid Corporate At Vishakapatnam [Contemporary]
c. Gaudium School At Hyderabad [Contemporary]
WORKS - 36-41
a. Institute Of Life Sciences [Thesis], Ahmedabad
b. Garment Factory, Urban Design, Ahmedabad
c. Low Income Group [LIG], Housing, Vadodara

I strengthened different architecture styles and construction skills from scratch to complete, by working on several projects of various types in companies.
Languages – English, Hindi, Gujarati
Date Of Birth - 19TH AUGUST, 1993
B.Arch. [B.C.T.] - Bachelor Of Architecture with [Building Construction Technology]
6.07 CPI July 2011 – June 2016
College of Architecture, S.V.I.T. [Sardar Vallabhbhai Patel Institute Of Technology], Vasad near Vadodara
NATA by NIASA [Council Of Architecture]
108 SCORE June 2011
GUJCET [Gujarat Board]
61.875 % Obtained April 2011
Percentile Rank - 89.58
12TH / HSC - P,C,M [Gujarat Board - GHSEB]
53.69 % Aggregate Obtained March 2011
St. Xavier’s High School Loyola Hall, Ahmedabad.
10TH – SSC [Gujarat Board - GSEB]
74 % Obtained March 2009
St. Xavier’s High School Loyola Hall, Ahmedabad.



+91 9429520395 mayanjhaveri@gmail.com
91-A, Yogeshwarnagar society, Bhattha, Paldi, A’bad – 380007, Gujarat, India.
As An Architect Nov 2022 to Current & [Aug’ 2018 To Mar’ 2022]
Project Consultant – Mr. Fenil Jhaveri
Projects: Institute Building at Ahmedabad [Jaipur Stone & Heritage]
Corporate Building At Ahmedabad [Vastu, Green & Modern]
Bungalow At Jodhpur [Jodhpur Stone & Contemporary]
Farm House At Gurgaon [Vastu & Green Concepts]



As An Architectural Designer Apr 2022 To Nov 2022
Architect – Mr. Christian J. Lessard, USA
Projects: For USA clients [Modern & Contemporary]
Several projects of USA of various types
Residential, Commercial and Mix Use types
Design documents for single / multi family

As A Junior Architect Jan’ 2018 To Aug’ 2018
Consultant – Mr. Xitij Jani
Projects: Baker’s Dozen Production Industry At Kheda [Industrial] Dairy Farm 2 At Modasa [Industrial] Flourish Food Processing Industry At Ahmedabad [Industrial]
As A Junior Architect Aug’ 2016 To Jan’ 2018
Architect – Mr. Ramesh Patel [Prof. – CEPT & Anant Institute] Projects: Car Showroom At Mehsana [Unique & Contemporary]
Sarvajanik School At Mehsana [Unique & Contemporary]
Apartments At Ahmedabad [Unique & Contemporary]
KAKANI
AHMEDABAD
Training / Internship Feb’ 2016 To Jul’ 2016
Architect – Mr. Surya Kakani [Former Dean – Arch Dept. CEPT]
Projects: Anandniketan School At Gandhinagar [Sustainable]
Professionally registered with COA, Council of Architecture, New Delhi, India.
VASTU ASTRONOMY GREEN [ANCIENT INDIAN ARCHITECTURE]
PROFESSIONAL EXPERIENCE
STONE ARCHITECTURE, INDIA
MODERN ARCHITECTURE, USA
INDUSTRIAL ARCHITECTURE
CONTEMPORARY ARCHITECTURE
SUSTAINABLE ARCHITECTURE
SOFTWARE SKILLS
AutoCAD 2D, Drafting
Revit 2D & 3D, [Both]
Sketchup 3D, Modeling
Photoshop, Rendering
InDesign, Documentation
Bluebeam Revu, Review
MS Office, Presentation
CONSTRUCTION

Innovative conceptual designs, plan and elevation, design development, internal layout, 3D model, working drawings, electrical layout, conceptual fabrication details, services, drawing coordination, interior design, landscape design, site visits, construction, client, contractors & vendor meetings.
Learning knowledge from seniors, Reading new techniques, Attending lectures and meeting faculties of Institutes, Attending seminars, conferences and visiting exhibitions and sketching. Other than it, chess, badminton, table tennis, cricket, football, pc games, paleta and much more.
GICEA [Gujarat Institute Of Civil Engineers And Architects] - Lectures and Seminars Jan’ 2025
ARCON 2022 - Exhibition and Seminar at Ahmedabad [for architects and engineers] Dec’ 2022
FICCI - Conference on Solar Energy at Mahatma Mandir, Gandhinagar Oct’ 2019
ASSOCHAM - Holistic Approach in Constructing Sustainable Buildings, Ahmedabad Aug’ 2019
VIBRANT GUJARAT STARTUP SUMMIT at Mahatma Mandir, Gandhinagar Oct’ 2018





1. INSTITUTE OF LIFE SCIENCES [THESIS], AHMEDABAD
SUMMARY :
The aim of the project is to propose and design the institute of life science under Ahmedabad University because the existing college for same was small.
2. GARMENT FACTORY, URBAN DESIGN, AHMEDBADAD
SUMMARY :
The aim is to carry out urban research and analysis of the area around Marsden Mills i.e Rakhial area and to propose schemes based on the research done that is suitable to the area and the city.
3. WORKSHOP
T-shirt Printing, Calligraphy, Model Making, Clay Model.
Presentation for Institute Building at Ahmedabad. May 2024
Presentation for Bungalow at Jodhpur, Rajasthan. Aug’ 2020
Presentation for Corporate Building at Ahmedabad. Aug’ 2019
Tree Plantation Day – Drawing Competition
3rd Prize 24th July 2004
St. Xavier’s High School, Loyola Hall
Rangoli Competition
Runner-up 6th November 2004
St. Xavier’s High School, Loyola Hall
Gujarat State Art Teacher’s Association Awards
2nd [Second] Prize 05th February 2000
Painting Competition For Standard One
AutoCAD & Revit Arch. – Autodesk Certified Professional
Intermediate Drawing Grade Exam [GUJARAT BOARD] 66 – A Grade September 2006 Elementary Drawing Grade Exam [GUJARAT BOARD] B Grade September 2005
1st Annual Gujarat School Drawing Competition
Gujarat Beauty.Com August 2006
Trekking Camp At Mt. Abu
Aarohi Organization 26th April – 1st May 2004
The Annual Day Programme ‘ Dance Medley ’
St. Xavier’s High School Loyola Hall 24th Feb 2002
Special Summer Camp St. Xavier’s High School Loyola Hall 24

NOVEMBER 2022 TO CURRENT & [AUGUST 2018 TO MARCH 2022]

INFERENCE :
I had opportunity to work as a sole Architect at SHILPPVASTU firm, who is known for predesign concepts based on astronomy such as sun path, moon path, polar star and 5 elements of Nature. Predesign drawings are prepared based on any latitude and longitude in whole world. Thereafter only, the first concept plan of project is prepared. I prepared design of Corporate Printing Press Building from scratch based on Vastu [Ancient Indian Architecture], Astronomy and Green architecture. I also created architectural 3D of many projects in Revit software and rendered day and night views. I visited sites for construction management.






The land is located near S.P. ring road in Dholka town, Ahmedabad. The building covers 15000 sq.feet built up area on site area of 30000 sq.feet.
SCOPE OF WORK : Design of whole project, communication with client.
STYLE AND CONCEPT : Heritage architecture style design based on Jaipur stone architecture.
Designed with symmetry, proportion, and balance of pillars and stone jalis.
Cross ventilation air flow in entire building. Natural stone jalis for ventilation and reduction of heat.
Natural stone claddings for thermal insulation. Natural stone floorings for coolness in summer.
Combination of urban and rural infrastructure.
Ambaji marble stone architecture design. Bansi Pahadpur, Jaipur stone architecture design. Kota, Dholpur stone architecture design.
SPACES : 12 Suites and 4 Single Rooms with a glass lift, electric room all comprising with generator backup.






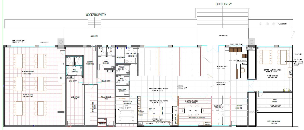
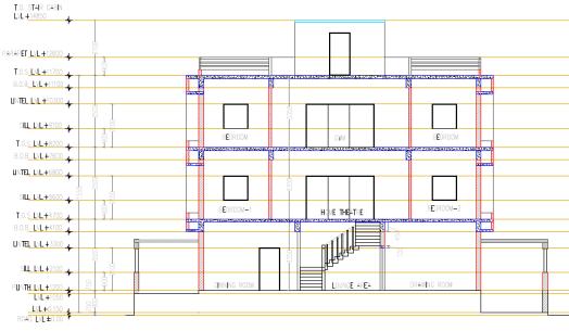
PROJECT : INSTITUTE BUILDING AT AHMEDABAD
The land is located near S.P. ring road in Dholka town, Ahmedabad. The building covers 15000 sq.feet built up area on site area of 30000 sq.feet.
SCOPE OF WORK : Design of whole project, communication with client.
STYLE AND CONCEPT : HERITAGE STYLE DESIGN
INTERIOR : Heritage type furniture inclusive of beds with storage drawers, side bed tipoys, multi layer wardrobes, heritage chair, heritage sofa cum bed, wooden shoe rack with chequered plates, luggage racks with steel rivets, dressing tables, books corner, LED.
1.Claddings : Ceramic stone finish tiles for maintenance free walls and door window sills with stone claddings.
2.Utilities : Two Air conditioners, Wash Basins in Bath and WC, Sink with platform, Cloth Drying Stand, Solar Water, Aqua / R.O. Water.








PROJECT : CORPORATE BUILDING AT AHMEDABAD
The land is located near cow circle, S.P. ring road in Ahmedabad.. The building itself covers 6000 sq.yards built up area on site area of 10000 sq yards.
SCOPE OF WORK : Design of whole project, communication with client.
STYLE AND CONCEPT : Modern architecture style design of expose RCC and brick work with symmetry, proportion, and balance. Plot selection as per Vastu principles and green architecture.
Project designed with sun diagrams and green architecture for Vastu benefits and solar energy benefits.
Planning with concept of summer, winter, equinox sun. Green architecture for reduction of carbon footprint.
Factory building comprising of indoor air quality standards, fresh air circulation and ventilation.
\palleting areas numbered as per process, inspection areas defined as per technical requirements.
Unloading, goods movement and loading planned as per ISO standards.
Huge landscape areas, water pond, water fountain, dense trees and plantation for climate control.
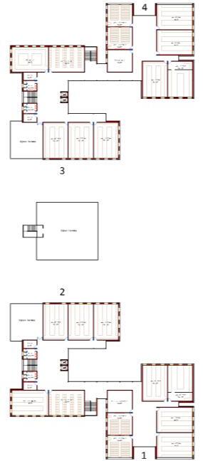
SPACES : 1.0 lac sq feet land area and 60000 sq feet built up area, 150 persons footfall.
Campus planning with loading and unloading heavy vehicles movement.
Reception, administration, godown, production areas.
Huge courtyard for natural sunlight and moonlight.
Corporate social responsibility : creche, breakout space, sports, medical room, smoking zone, jogging track.



















CONCEPT :
Simplicity yet corporate look. Alternate skylights from top. Expose Brick & Expose R.C.C. with Vastu planning, and designing. A decent and elegant look.










PROJECT : BUNGALOW AT JODHPUR
SCOPE OF WORK : Design of whole project, communicating with client, site visits.
STYLE AND CONCEPT : Contemporary architecture style design blended with Jodhpur stone design.
Project designed with sun diagrams and green architecture for Vastu benefits and solar energy benefits.
Planning with concept of summer, winter, equinox sun.
Lighting designs with engineered lumens, CCT, CRI, M/P Ratio for healthy eye vision and body.
SPACES : Inbuilt club house, home theatre, jacuzzi, recreation amenities, club class interior, sunrise and sunset garden.
Drawing room, living / dining room, modular kitchen and steam warming facilities.
Daylighted bed rooms with openable dressings and semi glass toilets.






















PROJECT : PARLOUR AT JODHPUR
SCOPE OF WORK : Design of whole project.
STYLE AND CONCEPT : Contemporary and modern architecture style design.
Parlour building incorporated with sunlight ventilation benefits.
Parlour floors connected with elevator and colourful passages.
SPACES : Modern amenities for hair spa, shampoo station, pedicure and manicure, facial, waxing.
Bridal makeup for high profile weddings.










PROJECT : FARM HOUSE AT GURGAON
SCOPE OF WORK : Design of whole project.
STYLE AND CONCEPT : Contemporary Architecture style design of RCC structure and wooden elements to align with nature.
Farm house with Vastu benefits, five elements, sky, air, fire, water, earth benefits of nature.
Sunrise to sunset benefits and moonrise to moonset.
Huge landscape areas, trees and plantation for climate control.
Swimming pool, water falls, fountain, water pebble channels, walking pebble tracks, meditation sit outs. Bird zone, animal zone, bamboo gazebo, jogging track, badminton / lawn tennis court.
SPACES : 1.0 lac sq feet open land area and 11000 sq feet built up area.
Spacious 4 bed rooms, dressings, lavish toilets, drawing room, living room, kitchen, store, puja.
Rocky stone masonry high walls and huge wooden gate and wicket gate for rugged look at entrance. 10 car parking, 10 scooter parking, 10 cycle stands, hand cart, watch tower.
















APRIL 2022 TO NOVEMBER 2022
INFERENCE :
I worked with Architect Mr. Chris Lessard, a USA based architect having his architecture branch firm at Ahmedabad, India.
I worked on single/multifamily and mix use type projects of USA.
I worked upon different USA building design norms such as IBC International Building Codes, zoning regulations state wise and ANSI criteria. Units are also designed for specially abled persons according to ANSI type A or type B and many other norms. There are also different construction parameters as per norms defined in USA standards.
I worked here as an Architectural Designer with design team and coordinated with USA team.
I prepared design based on all these criteria of USA such as International building codes, USA bye laws, zoning regulation and ANSI design criteria for specially abled people. Here, I also prepared shadow study of a building project, which is very rare in India.
I strengthened my various software skills such as in, Photoshop, InDesign, Office, BlueBeam Revu.

NOTE : Due to Non-disclosure for Projects in USA, the works cannot be displayed.


:
SEVERAL PROJECTS OF USA
Worked on about 10 projects of USA.
SCOPE OF WORK :
Worked as an Architectural Designer. Working on design documents for single / multi family residential projects in USA. Bulk of work was accomplished with design team for many of their USA clients including developers and builders.
Work also included construction document development and document set editing. It also included understanding and implementing the local USA bye laws and international building codes, zoning regulations, ANSI design criteria for specially abled people in building designing.
NOTE :
Due to Non-disclosure for Projects in USA, the works cannot be displayed.




JANUARY 2018 TO AUGUST 2018

INFERENCE :
I worked with firm Horizon Creations Pvt. Ltd. where I was sole architect. Single handedly, I prepared plans, elevations, 3D and its working drawings for a residential project. I also worked on many industrial projects. Among many industrial projects, in a project named Gangotri, P.E.B. [Preengineered building] technique was used for construction on which I worked and executed site visits. I also did site visits for the construction site at CEPT. I worked on Industrial Architecture and did site visits in this firm.







PROJECT:
THE BAKER’S DOZEN (Bakery and Pastry Production Plant).
The building itself covers 3900 square meters on land that is 1 Acre. The Baker’s Dozen had shifted from Mumbai to Ahmedabad. It is managed by Core company owners. Mainly the site has Cel packaging corrugated boxes production out of which the baker’s dozen has a small part for its upcoming development in bakery and pastry production. Total site area is 100 acres.
SCOPE OF WORK : Design development, designing elevations, site visits, client meetings. CONCEPT: The already existing sheds for the purpose of Cel packaging Pvt. Ltd., underneath a new ISMC structure ceiling has been build in 1 acre area of it. It's shown in section, there is a chequered plate floor for technical purpose in small part out of the ceiling of 1 acre.













PROJECT : Admin area of THE BAKER’S DOZEN plant.
SCOPE OF WORK : Interior Designing with joyful theme.
CONCEPT: The theme of modern interior with feelings of happiness and joy reflecting elements. specific colours used and repeated in the context of the theme. As in terms of modern glass features were used. Furniture in terms of average cost is used with better colour effective elements, flooring used is white satuario italian marble for grand elegance.
























PROJECT: BUNGALOW AT BOPAL, AHMEDABAD.
A five-bedroom bungalow for Mr. M.B. Dholakia, H.O.D. of Water Resources Department (L.D. college). Site area is 400 square yards. SCOPE OF WORK : Dealt whole project single handedly from scratch including client meetings to working drawings, developing elevations and preparing 3D.
CONCEPT: This bungalow is designed according to Vastu principles including symmetry as per client's requirement. With accomplishing all the requirements, a cube concept and contemporary architecture has been followed. Maintaining Vastu and contemporary architecture, the resultant can be seen in 3D.












PROJECT: DAIRY FARM 2 AT MODASA (milk production)
It is half part of whole 25 acres of land and a new project with already existing dairy farm 1. It’s a milk producing unit. Site area is 25 Acres.
SCOPE OF WORK : Design development, dealing with client, site visits, developing 3D.
CONCEPT: The main design concept is to keep Netherlands cow movement freely and not tying a single cow for their purpose of freedom and for their stress-free health . The milking cow internal shed has been designed in such a way that no manual and only semi-automatic technology is used for milking cow care and milk production. The shed is a PEB structure with R.C.C. structure in foundation. Vehicles such as rotavator, feed wagon, manure truck and pit are used. There is a drinking water provision named water trough for cows. Also, water sprinklers are provided in barn area for temperature control.





SPACES : The hatched parts shown are structures of new project Dairy Farm 2. Faded hatch shown are already existing 6 sheds of the project Dairy Farm 1. In Dairy farm 2, 4 larger sheds located downsides in this master plan are the milking cow sheds and milking parlor is located in center of them. Two smaller sheds located above these 4 larger sheds in the master plan are the dry cow sheds (non-milking producing cows) The water body shown is modified water canal which passes through whole site.

PROJECT: FLOURISH FOOD PROCESSING INDUSTRY AT CHANGODAR.
The milk products food processing plant has each sections for milk pouch, paneer and cheese products, and for juice. It has many outlets in Gujarat named Flourish just like Amul. It is owned by Claris group. Site area is 5 Acres.
SCOPE OF WORK : Design and elevation development, dealing with client, site visits.
CONCEPT: Admin area is separated and located in front and at backside there is production plant unit. The plant structure is pre engineered building with R.C.C. structure foundation and are attached with J bolts. The front structure of admin is designed with glass façade and full heighted windows. There is a floor for technical equipment and maintenance.







AUGUST 2016 TO JANUARY 2018

INFERENCE :
I worked as a junior architect with Architect Shri Ramesh Patel, professor of Interior Design department at CEPT and professor of Architecture department at Anant Institute in Ahmedabad city. Here, I learned unique designs which were actually developed and built. I made contemporary design elevation of a residence project. I prepared designs such as conceptual fabrication detail of a glass facade with triangular glasses. I also prepared a new concept of cluster-based classrooms and elevational massing for a school project. I learned Modern and Contemporary Architecture in this firm.





PROJECT : FARM HOUSE OPTIONS FOR MR. S.R. CHAUDHARY AT MEHSANA SCOPE OF WORK : Plan development











PROJECT : SUTARIYA CORPORATE OFFICE AT AHMEDABAD
SCOPE OF WORK : Preparing internal layout and developing 3D.






PROJECT : LANDSCAPE DESIGN FOR RATAN VIHAR SCHEME AT MEHSANA
SCOPE OF WORK : Landscape design
CONCEPT: Garden in curve nature looks more beautiful with surrounding good plantation and sitout. Sitout in back having pebbles and plantation. Also, privacy for people inside garden is maintained. Gazebo in entrance for gathering and sitting for people surrounded with flower bed. A lot of paved area walkway before entrance of club house for free movement with frontage of water body and a fountain.

PROJECT : RESIDENCE DESIGN FOR MR. HITESH CHAUDHARY AT MEHSANA
SCOPE OF WORK : Elevation design of whole bungalow and preparing design in 3D.
CONCEPT: The main thought behind this development of elevation was the intersection of different planes and cubes forming frames producing contemporary architecture.




PROJECT : NILKANTH AUTOCARE CAR SHOWROOM AT MEHSANA
SCOPE OF WORK : Developing conceptual fabrication detail of a triangular glass façade.
PROJECT : FACTORY AT KADI
SCOPE OF WORK : Electrical layout of admin area.
PROJECT : SURYAN DREAM TOWN AT AHMEDABAD
SCOPE OF WORK : Electrical layout of club house.




SEPARATE SCHOOL ENTRANCE
FUTURE PROPOSED COLLEGE
PROJECT : SARVAJANIK SCHOOL AT MEHSANA
SCOPE OF WORK : Conceptual design of school.
CONCEPT: 1. The main concept of school is cluster of three classrooms with opening provided exactly opposite to the foyer of this cluster for natural air light and ventilation. Also due to cluster formation, privacy of classrooms is maintained so classrooms remains undisturbed against frequently used main corridor and its noise pollution and frequent movements. 2. Whole central open space merges into the main ground. 3. Inside the building, with clusters on both sides of straight long central corridor, the linear uniformity of it was broken to avoid boring visualization 4. The elevational form of classes was derived by two intersected cubes. In plan, each class was placed alternately on the floor above and forming terraces. Thereby form shadowing completed the task of weather shed.





PROJECT : RESIDENCE FOR MR. SHAILESH AT MEHSANA
SCOPE OF WORK : Planning and designing of Bungalow
CONCEPT : Garden in curve nature looks more beautiful with surrounding good plantation and sit out. Sit out in back having pebbles and plantation.
Privacy of garden was taken into care.

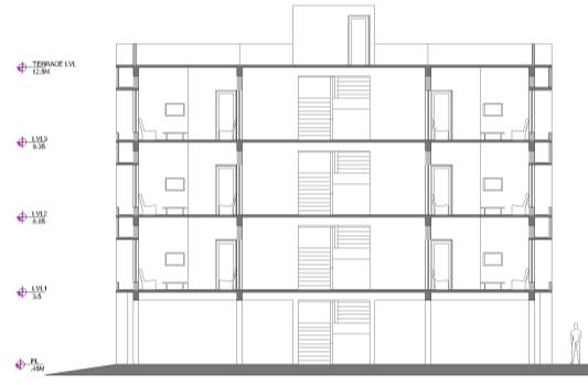
PROJECT : 13 FLOORS STOREY 2BHK APARTMENTS AT AHMEDABAD
SCOPE OF WORK : Designing and planning site layout of apartments.
PROJECT : RESIDENCE FOR MR. JAGDISH AT AHMEDABAD
SCOPE OF WORK : Planning and designing of bungalow.
CONCEPT : Garden side view for all rooms.

CONCEPT: The site layout has been developed in such a way that no side of building faces any other side of the building opposite to it. Each flat on a floor gets a clear garden view which are formed in pockets in all over the site. Also, three sides of each flat are open except the flat with a common wall.

PROJECT : RESIDENCE FOR MR. KANU AT SUVAS SOCIETY, AHMEDABAD
SCOPE OF WORK : Planning and designing of bungalow
CONCEPT : Garden in curve nature looks more beautiful with surrounding good plantation and sit out. Sit out in back having pebbles and plantation.



FEBRUARY 2016 TO JULY 2016 - INTERNSHIP

INFERENCE :
In training / internship at Kakani Associates, I worked with Architect Shri Surya Kakani, Former Dean of Architecture department at CEPT university located in Ahmedabad city. I worked upon many details in different projects such as Bamboo Jali details, staircase details, toilet details, flooring details and preparing 3D with structural details for the projects. I went for case studies of the previous projects done by the firm and did site visits of new projects to explore and learn. During this period, I came upon to know about recycled materials and sustainable technologies and methods used by the firm in these different projects. I learned different building detailing, planning and Sustainable Architecture in this firm.






SCOPE OF WORK : Preparing Bamboo Jali details for the project..


Type 4 & 5

SCOPE OF WORK : Preparing Staircase details for the project..





SCOPE OF WORK : Preparing 3D with structural details for the sports complex of the project..


JULY 2O11 TO JUNE 2O16

INFERENCE :
In second year of college, our studio project was designing of cultural center at Patan. I took the challenge to preserve the existing banyan trees of site and instead showcasing it as the elements of the site. Planning of the building blocks was placed in campus accordingly to avoid the future damage to the foundation of the building which can be caused by the spreading of the roots and branches of trees under the ground.
Thereafter, In third year, our studio project was designing of low-income group housing project. There was an existing water body, just adjacent to the site. So, I planned the layout in such a way that almost every person entering into the site, had to compulsorily pass by through the scenic view of the water body surrounded by the common plot green spaces around it with open area activities of C.O.P.. Also 70% of all designed building blocks in the site had the view of water body. This layout was also considered one of the best in our final jury. Apparently, I also achieved second highest marks in survey and leveling subject.


INFERENCE :
In fourth year, it was an urban and design studio, which was at a very large scale. The necessary comparisons of the whole surrounding area of the site were surveyed and analyzed. After S.W.O.T. analysis, I came to the conclusion for proposing garment factory for this designing studio.
The fifth and final year included design thesis. The location of site and the new institute of life sciences project was proposed due to lack of this field college. Here, the site size was not too large so the challenge was to manage the cluster form in design with a single block building. The cluster included the departments of : 1. Biochemistry 2.Microbiology 3. Biotechnology 4. Zoology 5.Botany 6. Cell and Molecular Biology. Thereafter, last semester comprising of training / internship.



SITE :


The site is located in the heart of the Ahmedabad city, between CEPT university and the new I.E.T college, Ahmedabad University of Ahmedabad Education Society land. The aim of the project is to propose and design the institute of life science under Ahmedabad University because the existing college for same is too small.
SITE AREA – 4.5 ACRES (18,500 sqm] TOTAL LAND AREA – 78 ACRES
CONCEPT :
As the shape of the site was linear, the shape and massing of building was formed accordingly with huge central green space comprising of Amphitheatre. Even though the built up area was 7.15 acres with small site area of only 4.5 acres, the design of building managed to form G+4 building with less ground coverage including more stilts area. As east and west side were open, cavity wall was provided with louvres to maintain temperature.
PROGRAM :
Six Departments – 1. Biochemistry 2.Microbiology 3. Biotechnology 4. Zoology 5.Botany 6. Cell and Molecular Biology
Common Areas – Seminar Hall, Conference Room, Staff Room, Administration, Recreation(T.T), Principal and Vice principal cabin, etc.

Staff Room at the end so as to give privacy
Common toilet and Canteen at the end Conference room and all other on one side of the building
Amphitheatre at the centre of the building and site
Admin and all common areas on ground floor






1. Zoology
2. Biochemistry
3. Botany
4. Microbiology
Second Floor Plan is typical as First Floor Plan

1. Cell and Molecular Biology
2. Biochemistry
3. Botany
4. Biotechnology

1. Cell and Molecular Biology
2. Biochemistry
3. Botany
4. Biotechnology







Site Profile
SITE :
The site is an abandoned land area of Marsden Mills in Rakhial area of Ahmedabad. The mill was abandoned in 1980. In 2009, the state government purchased the 1.06 lakh sq. m land area. People use it as a shortcut between Rakhial Road and Taj Mohammed Pathan road. Local people feed their cattle, carry out illegal activities etc at the mill compound.
PROJECT :
The aim is to carry out urban research and analysis of the area around Marsden Mills i.e Rakhial area and to propose schemes based on the research done that is suitable to the area and the city.
PROPOSALS :
1) Textile Industry (Cotton, Denims)
3) Industrial Training Institute 4) Affordable Housing (LIG) 5) Industrial Estate 6) High School

Land Use

Pushp Industrial Estate
Vivekanand Industrial Estate

Rakhial Road
Edge Profile – Rakhial Road


Rakhial BRT
Road Width- 24 m
BRTS Corridor- 7 m
P JUNCTION - This junction experiences moderate traffic throughout the day This junction is less accident prone though there is a hospital and a primary school at the junction.
Q JUNCTION - Traffic is heavy here during the day and evening time as BRTS and AMTS buses pass on this road. Traffic is less during afternoon between 1 p.m-5 p.m.

Building Heights
Built Up Vs Open Public Vs Private




R JUNCTION - This is the most important and busiest cross road of the area. With coming up of Rakhial BRT station, it has become more congested. Traffic is heavy during peak hours in morning and evening
S JUNCTION - This cross road has no traffic lights and it becomes much prone zone. There is a Muslim school near to this junction so it becomes dangerous for them to cross it with no safety



FINAL PROPOSAL :
Textile Industry (Cotton, Denims)
PROCESS : Raw Material – Ginning – Spinning –Weaving / Knittiing – Processing Production

SITE :

The site is located in Waghodia area of Vadodara, where residential development is not observed. The aim of the project is to develop a housing scheme for Low Income Group (LIG) which includes 1 and 2 BHK row houses and 2 and 3 BHK apartments along with recreational facilities.
SITE AREA : 15540 sq.m
GROUND COVERAGE : 5290 sq.m (37.8%)
PERCENTAGE [%] OF ROAD : 13.8% (2155sq.m)
TOTAL NO.OF UNITS : 176 units (12 1BHK ROW HOUSES, 24 2BHK ROW HOUSES, 36 1BHK APARTMENTS AND 104 2BHK APARTMENTS).
CONCEPT:



1. Placement of different category building blocks in campus, planned in such a way with [70%] maximum possible view of waterbody in respect to its building heights which can be seen in above site model.
2. C.O.P green space for the whole campus placed surrounding to the lake so that lake view can be enjoyed along with open recreational activities in green space.
3. G+5 Apartments placed at backside of the site as it can get the view of waterbody from backside too, due to its tall height .




As in for LIG housing, row houses were to be designed with minimum dimensions. Hence with minimum use of dimensions, maximum space was utilized yet giving the feeling of a large space and each and every portion of the house space was optimumly used with no waste of space. Wooden pergolas were used in entrance.









1 BHK apartment were designed such that all living space and bed room were facing the frontage with maximum utilization in a smaller space. While 2 BHK apartment without lift and with lift were designed such that living space, dinning space and a bed room, all faced the frontage.







INFERENCE :
During school and high school, I had passion for making sketches, drawings and paintings related to 3D perspectives, live objects, nature and many more. I obtained good grades in additional government recognized drawing exams.
1. ONE POINT PERSPECTIVES 2. LIVE SKETCHES 3. OBJECT DRAWING
PORTRAIT

















