Maya.Campbell_Sample-Portfolio_2025

Page 1


High Low Resolution

Academic

Rhode Island School of Design

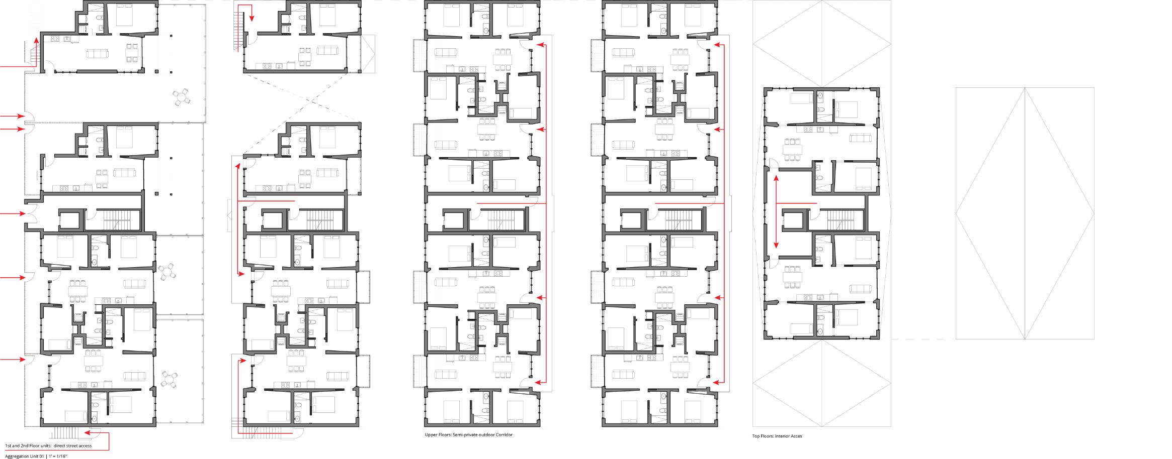
Thesis: Towards your own information

Professor: Jess Myers

High-Low-Resolution seeks to dissect an aesthetic discourse which was happening over the course of my undergraduate education. This discourse primarily included Michael Meredith and Mark Foster Gage seeking answers to the field of architecture’s atomization, and architecture’s inherent inability to cope with social media. While there was a flurry of articles, lectures, and exhibitions, the aesthetic debate failed to produce any field of unification among the aesthetics or produce a successful response to the core issue of architecture in a world dominated by social media. After these stylistic terms had run their course within American East-Coast architecture, the debate simply faded away. The thesis comprises an academic paper, a design response, and a book.

Sugi Ban Box

Academic

Rhode Island School of Design Studio: Integrated Building Systems

Professor: Laura Briggs In collaboration with: Erika Ng and Hannah Gensaw

The Sugi Ban Box looks to integrate the systems within a built project into a high performance building with the class integrating building systems and construction tightly into the design process. The Sugi Ban rain screen dictated the structural material of CLT and inspired the staggered wooden ceilings in order to neatly integrate the building’s mechanical systems with the wooden elements. The project includes wall details, structural plans, code compliant egress (for Rhode Island State), and day lighting + PV panel calculations.

Madang & Making

Academic

Rhode Island School of Design

Studio: Of House and Home Time

Professor: Peter Tagiuri

In order to take an informed position on housing in Korea, the Hanok, the traditional Korean home, became the focal point of research. After collaborative research, the studio visited our sites in Seoul, South Korea and collaborated with Arumjigi and Jang Yoongyoo of Unsangdong Architects in order to better understand both the traditions and contemporary climate of South Korean architecture. My project recalls the Madang, a garden of bare earth meant for work, by mixing housing with the current site program of book binding. In order to address the housing pressure on the neighborhood, micro-units are mixed in with live/work units. Multiple Madang-like spaces are created within the project, starting with the central courtyard and ending at the roof garden spaces.

Wetland Restoration

Academic

Rhode Island School of Design

Studio:Urban Ecologies

Professor: Manuel Alvarado

The project proposes redevelopment for the site of the currently abandoned Urban League of Rhode Island building in South Providence. The focus of the master plan calls for the restoration of wetlands on site and in the greater providence area. With the removal of the Urban league the project seeks to address the housing shortage by creating family apartments combined with community services. The new campus seeks to bridge the gap between downtown/hospital complex and the existing neighborhood. Behind the new campus is wetlands for on site water treatment and a new publicly accessible park.

Market Square Installation

Rhode Island School of Design

Studio: Printing Form: Architectural Geometry, Graphics, + Material Interference

Professor: Hans Tursack & Viola Ago

Studio Collaboration

The studio began with focusing on the possibility for graphics to reinforce or disrupt the geometry of proto-architectural objects. Through dropping and trimming a series of primitives a protoarchitectural object was generated. Next the studio took one design to fabricate into an installation for market square. Material was provided by a sponsorship from Richlite. My portion of the work centered on writing scripts to generate the graphic and have it readily machinable according to the design.

Turn static files into dynamic content formats.

Create a flipbook
Issuu converts static files into: digital portfolios, online yearbooks, online catalogs, digital photo albums and more. Sign up and create your flipbook.