PORTFOLIO
ARCHITECTURE / SCENOGRAPHIE
![]()
ARCHITECTURE / SCENOGRAPHIE
- Musée Cananga, Mayotte - Scénographie et architecture des lieux de représentation, Aubervilliers - Extention de l’ENSAPLV sur le canal, Paris 19
- Opération logements collectifs, Pré-Saint-Gervais - Immeuble collectif, Paris 20
- Film : A l’oncle Walt - Film : Disneyland Paris: entre maquette et animation


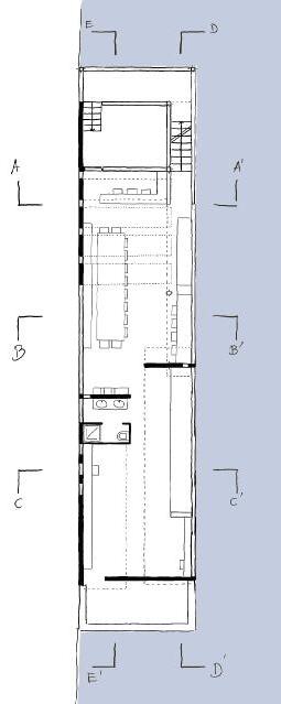
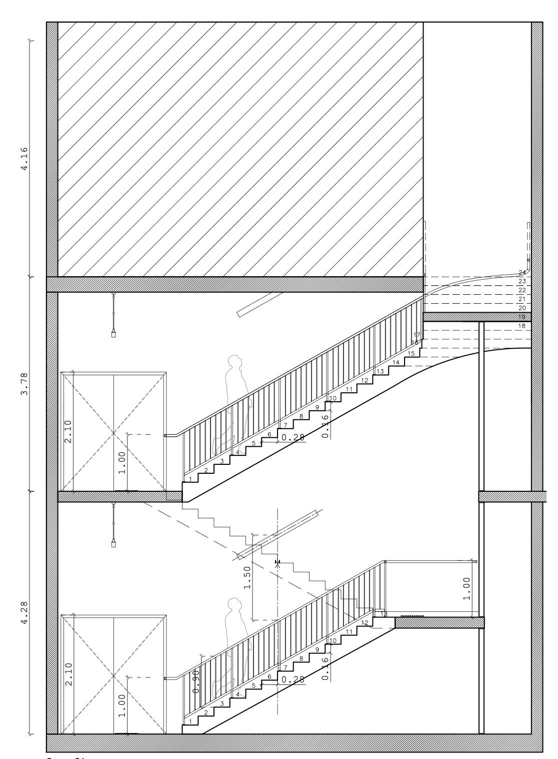
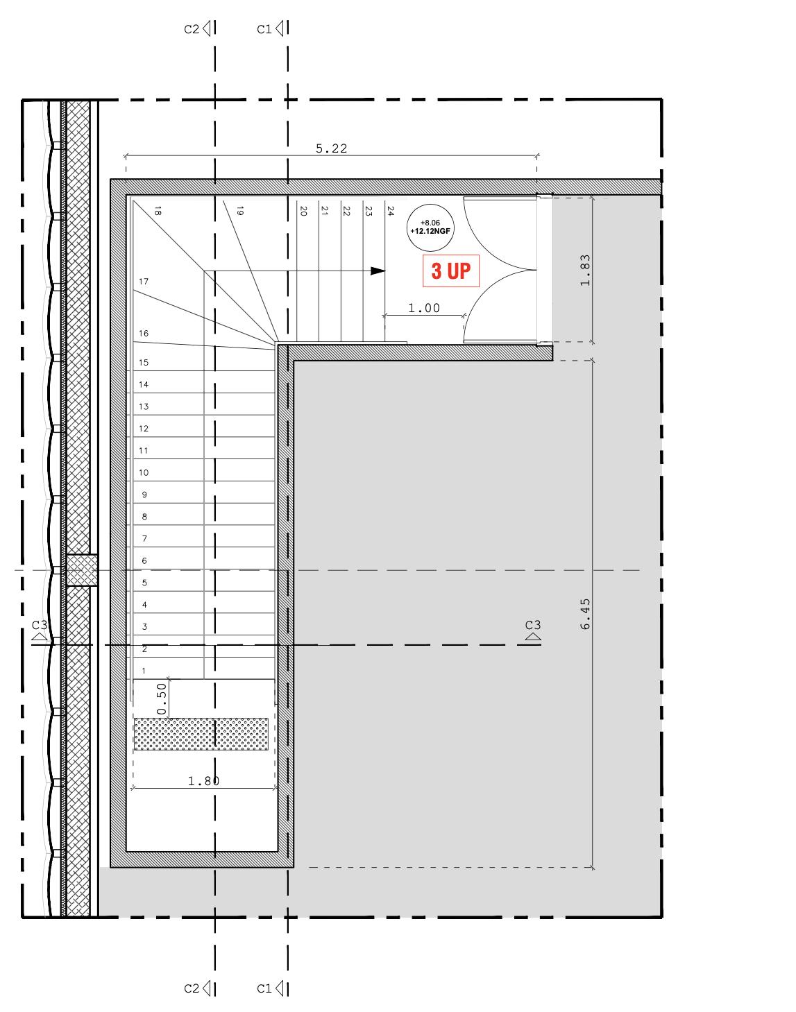
Kawéni s’est développé autour des plantations de Ylang-Ylang et l’installions de l’ancienne entreprise du parfum Sppm. Le projet sera une mémoire pour les ouvriers, et leurs pratiques autour des senteurs mahorais. L’élément majeur du projet est l’escalier présent au patio, qui marquera le début de la visite. Il permet l’accés directement au 3eme étage. Le musée est pensé comme une pyramide olfactive d’un parfum : composé de trois étages et chaque étage représente une note olfactive, d’où la visite commence au 3eme étage directement. Ce dernier abrite la salle d’exposition temporaire marque le début de la visite. C’est la note qui fait rêvé et qui incite le visiteur à continuer la suite de la balade. Le 2eme et 1er étages présentes l’exposition des deux salles raconte le parcours des feurs de la cueillette jusqu’a l’arrivé au laboratoire en passant par une exposition photographique des ouvriers mahorais. Le RDC : contient le senteur botanique . La visite commence et se termine dans le patio: le coeur du projet avec les diférents senteurs mahorais proposés et l’escalier.






















Le projet traite le sujet de l’art vivant: le thêatre. Il est composé d’une grande salle, une salle modulable, un restaurant avec un bar, un foyer d’artistes et un pôle administratif avec un patio et une terrasse accessible. Dès les premières réfexions, il était question de distinguer les 3 types de circulations présents dans l’équipement: visiteurs, artistes et techniciens et employés. Une fois le hall traversé, chaque usager retrouve une circulation verticale ou horizontale, qui lui est destinée. Une partie d’exposition temporaire est installée dans le hall , des passerelles permettants l’accès aux salles de spectacles et donnants sur le hall, un escalier monumental nous permet d’accéder aux étages et en dessous de se dernier les acteurs accédent à leurs locaux. Ainsi, l’espace comme une grande exposition oferte à tous: nous allons afaire à une une vraie scène de l’art vivant.

Plan R+4

Plan R+3

Plan R+2


Plan R+1







Ici, le projet s’agit de traduire le mot rêve à travers l’architecture. Un travail scénographique est mis en place afn que l’espace intérieur du bateau reféte le mot choisi par le biais des cadrages. Or, plus on se déplace, plus on découvre des vues à l’interieur ou à l’exterieur du projet. Les parois nous permets de créer une inftée de cadrages d’esapce en ofre une infnité de scénarios entre Ciel, Terre et Canal, ainsi les mobiliers participent à l’organisation de l’espace.
L’espace représente une partie haute avec l’netrée du bateau et le cabinet de pilotage donnant une vue sur l’ensemble du bateau. La partie basse comporte une salle de classe avec une partie bibliothéque et une partie de salle d’étude modulable en dortoire en cas de navigation, avec une salle de bain. Concernant la partie technique, le bateau est un monocoque faisant 25m de longeur, 5m de largeur et 3,5m d’hauteur., un déplacement de 46,7 T et un tirant d’eau de 0,36.

étage courant








Perspective insertion dans le site

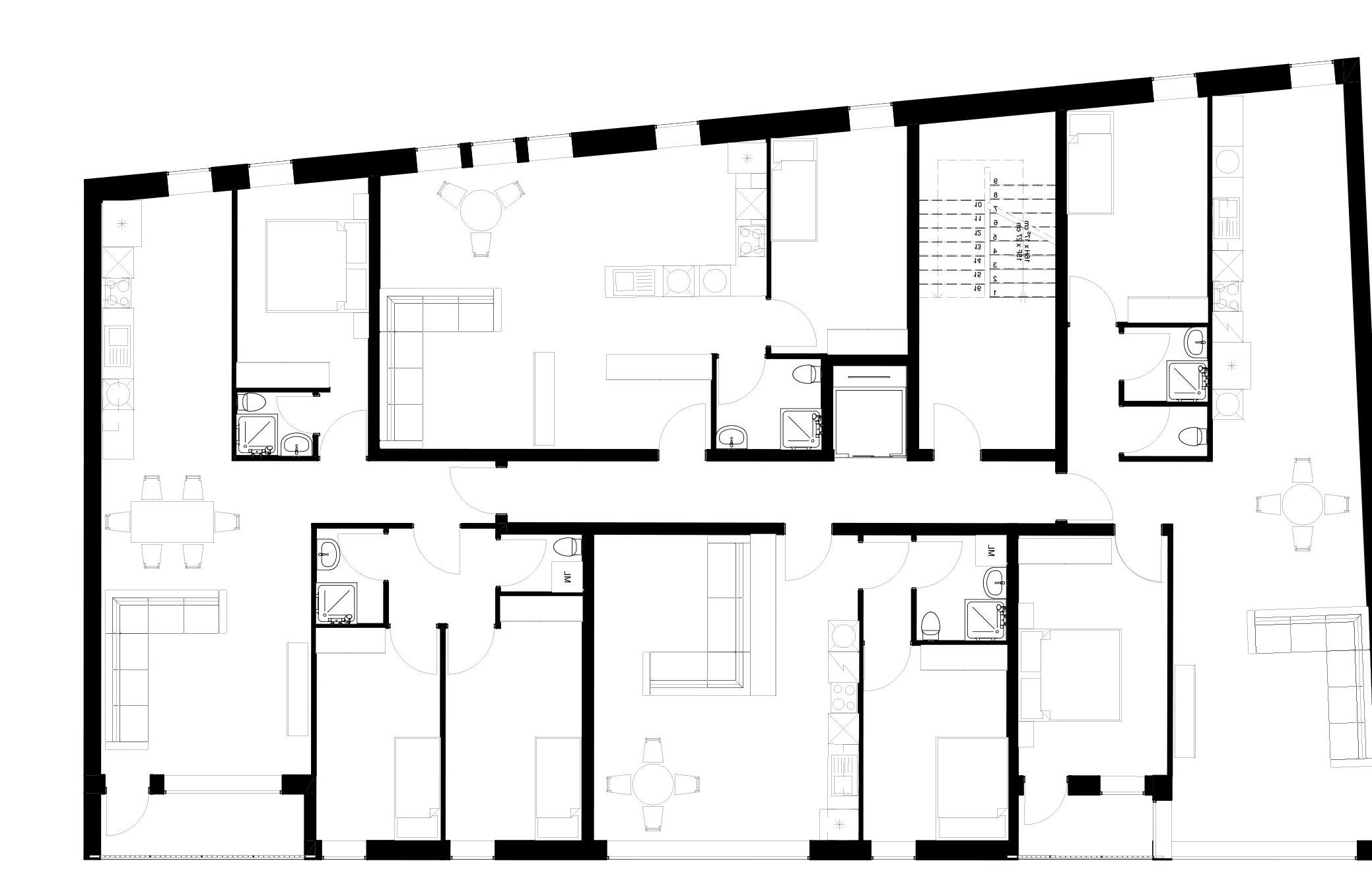
Le terrain abritant l’opération présente deux pentes diferentes: la premiére sur Av.Edouard Vaillant est de 5% et la deuxieme sur Av.Faidherbe est de 9% . Le projet présente deux immeubles distincts: le premier présent sur Av. Ed. Vaillant avec 4 immeubles de 2 étages présentant le même principe: un duplex ascendant de demi-niveau au Nord avec un séjour/cuisine traversant et deux chambres à l’étage, et deux appartements T2. L’immeuble Faidherbe présente 4 étages avec un module de pricinpe présentant un T3 et T4 avec cuisne et séjour traversants , orientés Nord/Sud et deux T2 monorienté, 2 étages de sous-sol comportant des celliers et un étage de parking reliant les deux immeubles Vaillant et Faidherbe.






Un immeuble à redans , inspiré de l’immeuble du même arrondissement de l’architecte française Edith GIRARD. Le travail a été élaboré à travers l’imagination d’un module d’un apparetement idéal à insérer par la suite dans l’immeuble afn de le constituer. L’appartement idéale est composé de trois chambres avec un séjour/ cuisine traversants. La façade sud comporte des redans orientés Sud -Ouest afn de benéfcier de la lumiére tout au long de la journée. Le systéme des redans permet de préserver l’intimité des usagers, de même pour les dispositifs mis en place sur les balcons qui représentent des tablettes et des bacs à feurs .
Plan RDC

Plan étage impair courant
Plan 5eme étage
Plan 6eme étage
Plan étage pair courant
Plan 7eme étage
Typologies des logements








Le flm intitulé ‘A l’oncle Walt’ est réalisé dans le cadre du séminaire art architecture et cinéma, accompagné de mon mémoire de fn d’étude traitant le sujet d’architecture du rêve sur les pas de walt Disney. Le flm retrace le parcours d’un visiteur au parc à travers les décors des flms présents dans le parc et les attractions. Certaines scènes mélenges la réalité et la fction afn de montrer la contunuité entre le monde fctif de Walt DISNEY et la ville et l’a créé intitulé Disneyland. La suite du flm, suit les traces d’un Cast Member ( employé Disney ) au sein des coulisses afn de préparer la magie.






Ce court métrage présente Main Street, USA, la rue principale à Disneyland Paris. Toute l’allée , ainsi que les personnages ont été fabriqué en maquette . Le tourange était fait avec un fond vert afn d’intégrer des images réelles. Le but était de flmer sur les pas de Walt Disney, où animation et prises réelles sont mélangées.







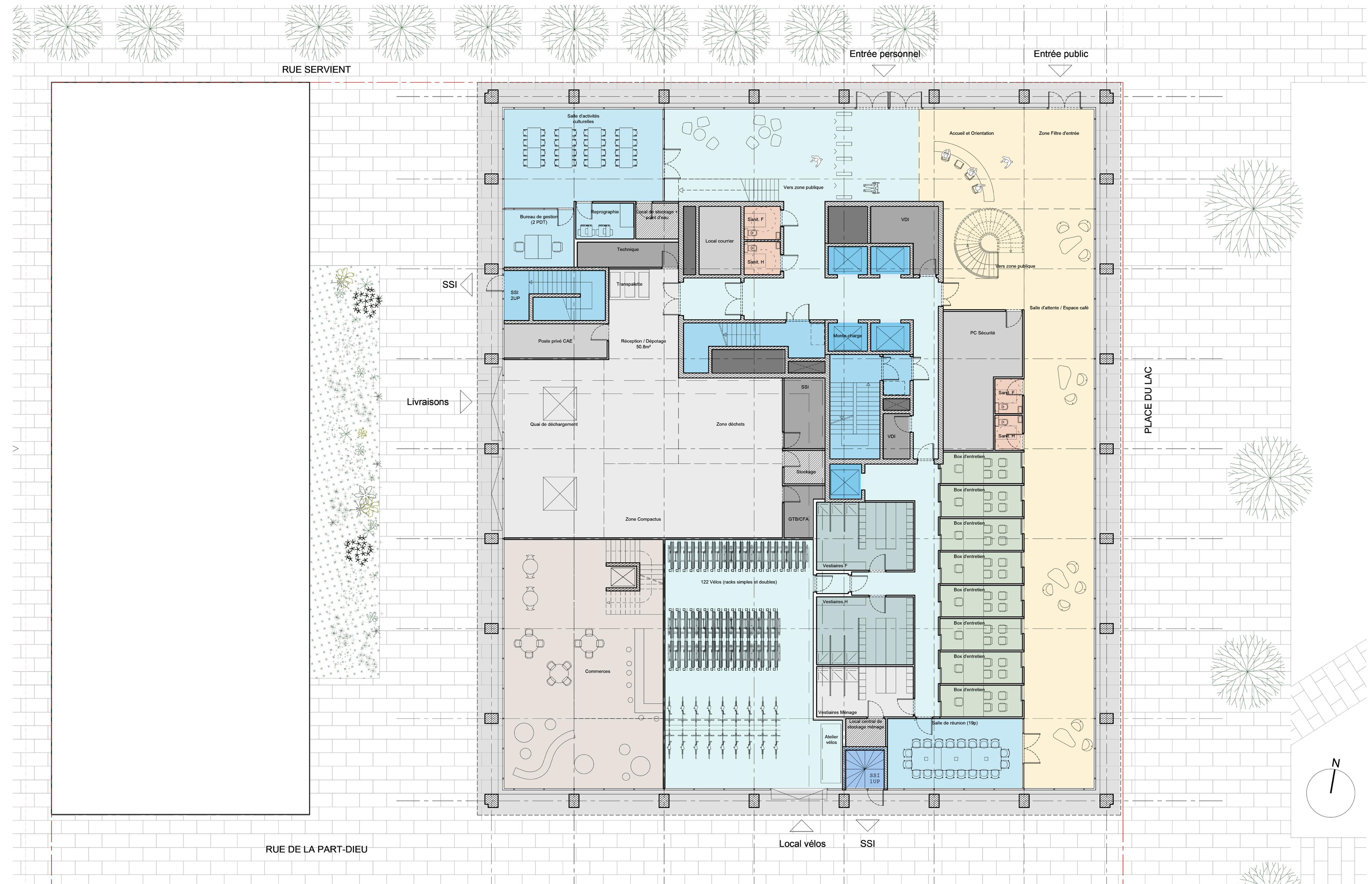
Le projet consiste à la deuxième phase du concours d’un immeuble de bureaux CAE 2 ( Centre Administratif et Économique) situé à Lyon, en réponse aux réfexions menées lors de la première phase et aux évolutions possibles du programme, l’organisation du socle du projet a été repensée.
En retrait de la pierre, imposante et majestueuse, s’exprime la façade vitrée en double hauteur, légère et délicate. La transparence du socle sur les deux rues les plus animées témoigne de la perméabilité du projet avec le paysage végétal et urbain, partagé avec le public. D’un coté, on trouve deux points d’accès distincts permettent l’accueil des visiteurs extérieurs d’une part, et d’autre part le personnel de la CAE. Sur la rue intérieure pourront circuler les véhicules de livraison qui y trouvent la zone de logistique de la CAE, tandis que la rue perpendiculaire à celle-ci ofrira au personnel de la CAE circulant à vélo une voie calme et piétonne pour accéder à son local sécurisé. Conformément aux recommandations de l’urbaniste, le socle joue sur les transparences, les double-hauteurs et les continuités visuelles.

RDC Plan R+1 Plan R+2 Plan R+3 Plan étage courant








Le complexe « Sportica » se trouve à Gravelines, dans le quartier du Petit Fort Phillipe, au Nord de la ville. Sa réhabilitation complète tend à le faire rayonner à l’échelle de la France et de l’Europe. La salle rénovée est métamorphosée, sa nouvelle image réinterprète la puissance massive aux nuances de rouges pour l’inscrire dans son époque et lui donner une identité remarquable. La Salle des Pas Perdus, située au cœur de Sportica, en est également l’entrée principale. Elle se déploie sur deux niveaux. Au centre du Hall se trouve une large circulation verticale desservant le R+1, naturellement éclairée par six lanterneaux. Un petit jardin de palmiers entoure cette circulation au Rez-de-chaussée. Au R+1, des vues sont créées sur la piscine et la salle de basket, positionnées en vis-àvis. A cet étage se trouve également un restaurant permettant l’accueil d’activités diverses liées à la ville ou aux clubs, ainsi qu’à une série de bureaux / salle de réunions.






Le projet se situe à Marseille. Dans le périmètre de la ZAC de la Joliette à proximité du vieux port. Le bâtiment a pour particularité de se situer dans un environnement en mutation, dynamique, tout à la fois neuf et empreint de patrimoine caractéristique de la ZAC de la Joliette. Situé en façade maritime, le quartier de la Joliette, possède de nombreux atouts. Un positionnement stratégique entre port et centreville et une accessibilité remarquable avec des liaisons aéroport (20 minutes en voiture), gare TGV (15-20 min à pied).
Tout en étant conforme à la réglementation urbaine, le projet s’insère dans la ville de Marseille et le site de la ZAC de la Joliette en évoquant un pan de la culture du bassin méditerranéen au travers de sa géométrie, ses couleurs et ses façades. Inspirés par les exemples de moucharabieh et de claustras, dans la poursuite de notre travail sur la mise en profondeur des écritures de façade, le bâtiment s’habille d’une résille métallique qui participe à la protection solaire et mise en valeur du bâtiment.



Plan érage courant
Coupe principale


Photos exterieures du projet, dans son contexte avec plusieurs points de vue.

Façade principale









Court métrage : Abîme







Court métrage : Abîme




































R + 1
E n t r é e + A c c u e i l
d é p l a c e m e n t m o y e n
R D C
d é p l a c e m e n t d u r
R - 1
R - 1
S a l l e d ’ E x p o s i t i o n G. VANTONGERLOO G. VANTONGERLOO G. VANTONGERLOO
p o i n t d ’ E a u S a l l e d ’ E x p o s i t i o n
d é p l a c e m e n t d o u x
E s p a c e e x t e r i e u r
S a l l e d ’ E x p o s i t i o n

O e u v r e « I n t e r r e l a t i o n
d e s v o l u m e s »

P e i n t u r e « C o m p o s i t i o n
é q u a t i o n = - a x 2 + b x + 1 8 »
R D C

V o l u m é t r i e d u p r o j e t O r g a n i s a t i o n s p a t i a l e d u p r o j e t
b r y c e C a n y o n
p a r c n a t i o n a l
U t a h


a n t e l o p e C a n y o n
a r i z o n a


YLANG-YLANG: YLANG-YLANG: YLANG-YLANG:







ARCHITECTURE / SCENOGRAPHIE