

URBANISM
PUBLIC INFRASTRUCTURE TO SUPPORT COGNITIVE HEALTH AND COMMUNAL CARE IN BARTON-ON-SEA
00. CONTENTS
01. RESEARCH
DEMENTIA AS CRISIS
UNDERSTANDING DEMENTIA
WAYFINDING
HISTORY OF DEMENTIA
02. EXISTING CONTEXT
PRECEDENT STUDIES
CARE MATRIX
CASE STUDY 01: DAX
CASE STUDY 02: GRANDMA’S HOUSE
EXPLODING CARE
03. FIELDWORK
04. SITE ANALYSIS
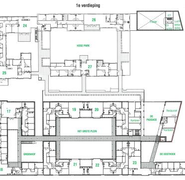
BARTON_ON_SEA
CONTEXTUAL ANALYSIS
05. DESIGN DEVELOPMENT
SITE 01
SITE 02
SITE 03
SITE 04
SITE 05
PROJECT OVERVIEW


KEY FEATURES
- MEMORY LOSS
- DIFFICULTY WITH COMMUNICATION
- PROBLEMS WITH REASONING
- DISORIENTATION
- CHANGES IN MOOD OR BEHAVIOUR
- LOSS OF ABILITY TO PERFORM ACTIVITIES OF DAILY LIVING
- AGNOSIA
- APATHY
CAUSES_RISK FACTORS
- AGE (MOST TYPICAL IN PEOPLE 65+)
- GENETICS
- CARDIOVASCULAR CONDITIONS
- BRAIN INJURY OR DISEASE
- LIFESTYLE FACTORS, e.g. SMOKING, LACK OF EXERCISE, DIET
Frontotemporal
01. Located in the upper part of the back of the brain. The right-hand side helps people to understand the position of their bodies and objects in space. Damage to the parietal lobes is common in Alzheimer’s disease. It can lead to problems with performing gestures and skilled movements.
02. Main roles involve memory processing, hearing and language. Both temporal lobes store semantic memory, which is different from the type of memory related to day-to-day experiences. Within each temporal lobe is a region called the hippocampus, which processes memories to allow them to be stored and found when needed.
03. Limbic system (amygdala, hippocampus, hypothalamus, thalamus) controls levels of hunger, thirst, body temperature, many of the hormones control metabolism. The thalamus is heavily involved in consciousness, perception, attention, memory and movement.
04. Co-ordinate movements, balance and posture, and helps the eyes to work together.
05. At the front of the brain, behind the forehead. This part of the brain eventually becomes damaged in most types of dementia. This is where information is stored and processed, which allows a person to make rational decisions and judgements. Damage to the frontal lobes can make it hard to pay attention for very long, switch between tasks or do more than one thing at a time.
06. Located at the back of the brain and deals with visual information. This region processes visual information and makes sense of it, including recognising colours and shapes. When the occipital lobes become damaged, a person experiencs difficulty working out what they see.
Basal Ganglia
Basal Ganglia
Temporal Lobe_02
EXECUTIVE FUNCTION
Parietal Lobe_01
Cerebral Cortex
Occipital Lobe_06
Limbic System_03
Cerebellum_04

Right Hemisphere
Left Hemisphere VISION

ALLOCENTRIC WAYFINDING
EGOCENTRIC WAYFINDING












































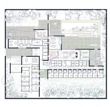
Dovehouse Court Cambridge Mole Architects

De Hogeweyk The Netherlands Buro Kade Architects
De Korenbloem Sheltered Housing Belgium Sergison Bates

Alzheimer’s Respite Centre Ireland Niall McLaughlin Architects Alzheimer’s Village France NORD Architects


ADAPTED HOME GENERAL NEEDS
MAINSTREAM HOUSING SPECIALISED HOUSING CARE HOMES
GETTING
BUILDING COMPLEXITY
SPATIAL NOVELTY
ROUTINE NOVELTY
PHYSICAL ACTIVITY
LONELINESS
DEPRESSION SYMPTOMS
ANXIETY BEHAVIOURS
COGNITIVE IMPAIRMENTS

























































































03. FIELDWORK

Constantine Holle Fifth Year Medical Student University College London
Dementia Carer Interview 10_11_2024


‘I worked at Compton Lodge, a dementia care home in Swiss Cottage, London, from September 2019 to September 2020’
‘The lodge combined private patients and referrals from local authorities’
‘It had a capacity of 32 beds, 30 single rooms and 2 double rooms’
‘It wasn’t designed to be a care home; it is a large Edwardian house that has been refurbished and modified to suit its needs’
‘Sundowning was a huge issue. It is when dementia patients exhibit specific symptoms in the evening and during the night. It causes a lot of hassle for the night shift carers as patients wander and get restless. They want to go somewhere but they don’t know exactly where they want to go’
‘We had a lady who escaped twice by climbing over a low wall. She is an example of a patient who has physically fit but had very bad dementia’
‘it is theorised that the reason why there are more women than men is not due to a biological difference but because women tend to outlive due to men typically having issues with their heart and lungs. Men are often under-reported in dementia cases as their wives and partners care for them at home’
‘Personal touches were so important to well-being. Photographs and mementos of memories in patient’s rooms reminded them where they were and gave them something to speak about’
‘Carpet is a terrible idea for a dementia care home. It is good for falls but for stains and fluids it is not practical. It also gets in the way of helping patients move using technology like hoists and supports’
‘Creating a sense of routine in the life of a dementia patient is crucial. There was one lady who walked five laps of the garden a day, which to an outsider looked a bit sad but it was very good for her establishing a sense of self’
‘People eat better when they are in communal settings and nutrition is a huge thing in care homes. We would write down every day what everyone ate’
‘I think it is important for carers to have space where they can get away from the residents. When was on a break, loved being out in the garden when the weather was nice but did not want to have to deal with patient issues when I was trying to have my lunch’
‘Visitors and families can get distressed when they hear us helping the patients. It is good to maintain a level of privacy when dealing with intimate problems’



It
built environment is really important. Are people in individual rooms, and what does that do in terms of loneliness and isolation? Are people getting out of their rooms for social activity? Is there social space? Are there communal areas for eating? Are they encouraged to get out of their rooms?... And one of the really interesting things is, how secure is the environment?
Genuine real fear... patients calling out for hours every day unless there is someone by their bedside. The noise is quite distressing of people calling out.
The majority of care homes that work in are easy to get lost in for you and I... just think about the experience of someone with cognitive impairment.
Care homes can feel remarkably un-homely
To what extent does it feel like a home and to what extent does it feel like an institution?
ON PROVISION OF CARE
Social care staff are poorly paid, undervalued, often overseas, often with little English or strongly accented English, which really makes it difficult with those who are severely cognitively impaired.
It is a very demanding job... These are amongst the most vulnerable members of our society. It is often quite gendered... daughters will typically look after the elderly


























































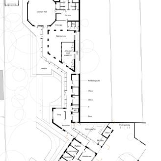
CONCEPT AND MATERIALITY
1. MATERIALITY
A material language of brightly coloured plastic accents provide a visual cue to the use of the intervention. Walls finished in roughcast render hint to vernacular elements of Barton-on-Sea. Metal bracing on external elements gives reference to medical apparatus such as zimmerframes.
2. WAYFINDING
Repeated elements such as the external planters and the lavender that grows in them creates a multisensory reference point for the intervention.
3. PUBLIC INTEGRATION
The intervention occupies a main public street, often used for markets. It provides a covered shelter for kiosks and stalls, with the WC being accessible by anybody. It replaces the previous public noticeboard and provides greater flexibility and space to display public news.
4. AGENCY Floor grates allow for the accidental overflow of sinks in case of forgetfulness.
DEMENTIA RESEARCH
1. NEED FOR PUBLIC TOILET PROVISION
Powell RM. Public Toilet Deficiencies Contribute to Social Isolation for Persons Living With Dementia and Their Caregivers. Journal of Gerontological Nursing.
2. IMPORTANCE OF SMELL IN SENSE OF PLACE
D’Andrea F, Tischler V, Dening T, Churchill A. Olfactory stimulation for people with dementia: A rapid review. Dementia.
3. USE OF SOLITUDE FOR OVERSTIMULATION
Andrea Nevins, Darlene Yee, Working Late, The Gerontologist, Volume 29, Issue 4, August 1989, Pages 576–577,
4. APATHY Gramegna, S.M., Biamonti, A., Valusyte, R. (2023). The Role of Interior Design Materialities in Dementia Care: Mundane Elements from the Past. In: Houben, M., Brankaert, R., Hendriks, N., Wilkinson, A., Morrissey, K. (eds) Dementia Lab 2022: The Residue of Design.















PROGRAMME
A single-storey Potting shed/ sensory garden pavilion. Gardening offers tactile, olfactory and visual stimulation, which has been shown to reduce agitation in dementia patients. The programme will hybridise a traditional potting shed, a greenhouse and a therapeutic horticulture studio. The intervention will support intergenerational gardening with local schools or families, and will act as a space for teaching and learning. The design will include accessible raised beds, shelter, and tool storage.
The programme will be open to the garden on one side, will have a sheltered bench for rest or conversation, rainwater collection and softer natural materials, such as timber, as it is away from the sea air.
The form will be an enclosed but glazed timber-framed space, accessible to wheelchairs and walking aids. Passive ventilation, raised beds and familiar domestic objects will be used.



CONCEPT AND MATERIALITY
1. MATERIALITY
A material language of brightly coloured plastic accents provide a visual cue to the use of the intervention. Walls finished in roughcast render hint to vernacular elements of Barton-on-Sea. Soft cork floor finish to allow for falls. Glazing to provide visible programmatic understanding to those with dementia.
2. WAYFINDING
Repeated elements such as the external planters and the lavender that grows in them creates a multisensory reference point for the intervention.
3. PUBLIC INTEGRATION
The intervention occupies a public space of land yet straddles a private care home. It provides a public learning space and greenhouse for the community, with the WC being accessible by anybody. It gives private space for dementia residents yet offers public amenity.
4. AGENCY Floor grates allow for the accidental overflow of water in case of forgetfulness.
DEMENTIA RESEARCH
1. NEED FOR PUBLIC TOILET PROVISION
Powell RM. Public Toilet Deficiencies Contribute to Social Isolation for Persons Living With Dementia and Their Caregivers. Journal of Gerontological Nursing.
2. IMPORTANCE OF SMELL IN SENSE OF PLACE D’Andrea F, Tischler V, Dening T, Churchill A. Olfactory stimulation for people with dementia: A rapid review. Dementia.
3. GARDENING AND DEMENTIA
Murroni, Veronica, Raffaele Cavalli, Andrea Basso, Erika Borella, Chiara Meneghetti, Andrea Melendugno, and Francesca Pazzaglia. 2021. “Effectiveness of Therapeutic Gardens for People with Dementia: A Systematic Review” International Journal of Environmental Research and Public Health 18, no. 18: 9595.
4. APATHY Gramegna, S.M., Biamonti, A., Valusyte, R. (2023). The Role of Interior Design Materialities in Dementia Care: Mundane Elements from the Past. In: Houben, M., Brankaert, R., Hendriks, N., Wilkinson, A., Morrissey, K. (eds) Dementia Lab 2022: The Residue of Design. D-Lab 2022. Design For Inclusion, vol 3. Springer, Cham.














PROGRAMME
A music folly/ sound garden a structure for group singing, performance or listening. A flexible stage and listening space that can shift vertically up and down to allow for cars to move underneath, facilitating musical play, quiet listening and social connection. Music therapy is typically used in care homes as a communal activity that improves mood, social interaction, and memory recall. The intervention uses acoustic forms, storage for musical instruments and equipment and hanging, tactile instruments where the building becomes something that is playable. The intervention will be roofed with corrugated iron, catching rain sounds. Structural framing will include places to attach instruments and resonant materials, creating a connection with the workshop intervention and facilitating collaboration.



CONCEPT AND MATERIALITY
1. MATERIALITY
A material language of brightly coloured plastic accents provide a visual cue. Curtains that provide porosity and hint to a subtle medical language. Soft cork floor finish to allow for falls.
2. WAYFINDING
A round floorpan creates a circulation route that discourages disorientation and allows visibility between carers and people with dementia
3. PUBLIC INTEGRATION
The intervention occupies a public space of land that is underused. It provides a public performance space for care homes and the broader public, increasing socialisation. The WC being accessible by anybody.
4. AGENCY Floor grates allow for the accidental overflow of water in case of forgetfulness. Flexibility of design allows for its use on a large and small scale.
DEMENTIA RESEARCH
1. NEED FOR PUBLIC TOILET PROVISION Powell RM. Public Toilet Deficiencies Contribute to Social Isolation for Persons Living With Dementia and Their Caregivers. Journal of Gerontological Nursing.
2. IMPORTANCE OF SMELL IN SENSE OF PLACE D’Andrea F, Tischler V, Dening T, Churchill A. Olfactory stimulation for people with dementia: A rapid review. Dementia.
3. CIRCULAR FLOOR PLAN AND WAYFINDING van Buuren LPG, Mohammadi M. Dementia-Friendly Design:
A Set of Design Criteria and Design Typologies Supporting Wayfinding. HERD: Health Environments Research & Design Journal. 2021;15(1):150-172.
4. APATHY Gramegna, S.M., Biamonti, A., Valusyte, R. (2023). The Role of Interior Design Materialities in Dementia Care: Mundane Elements from the Past. In: Houben, M., Brankaert, R., Hendriks, N., Wilkinson, A., Morrissey, K. (eds) Dementia Lab 2022: The Residue of Design. D-Lab 2022. Design For Inclusion, vol 3. Springer, Cham.















CONCEPT AND MATERIALITY
1.
2.
3.


4. AGENCY Floor grates allow for the accidental overflow of water in case of forgetfulness. A central work space creates visibility and a curtained off section allows seclusion of
DEMENTIA RESEARCH
1. NEED FOR PUBLIC TOILET PROVISION Powell RM. Public Toilet Deficiencies Contribute to Social Isolation for Persons Living With Dementia and Their Caregivers. Journal of Gerontological Nursing.
2. IMPORTANCE OF SMELL IN SENSE OF PLACE D’Andrea F, Tischler V, Dening T, Churchill A. Olfactory stimulation for people with dementia: A rapid review. Dementia.
3. DUTCH CARE AND COERCION ACT 2020 Esther H. Bisschops, Noud Frielink, J. Clasien Schipper, Carlo Schuengel, Petri J. C. M. Embregts, Evaluating a Virtual Community‐of‐Practice as Implementation Strategy for the Needs Assessment Framework in Intellectual Disability Care: A Quasi‐Experimental Multi‐Methods Study, Journal of Applied Research in Intellectual Disabilities
4. APATHY Gramegna, S.M., Biamonti, A., Valusyte, R. (2023). The Role of Interior Design Materialities in Dementia Care: Mundane Elements from the Past. In: Houben, M., Brankaert, R., Hendriks, N., Wilkinson, A., Morrissey, K. (eds) Dementia Lab 2022: The Residue of Design. D-Lab 2022. Design For Inclusion, vol 3. Springer, Cham.

















CONCEPT AND MATERIALITY
1. MATERIALITY
A material language of brightly coloured plastic accents provide a visual cue. Timber verticals reference previous interventions along route. Roughcast render finish hints at vernacular of Barton-on-Sea.
2. USE The programme takes direct inspiration from the publicly operated shop at Reigershoeve. It provides a point of display for objects created in workshops and showcases talents of the elderly.
3. PUBLIC INTEGRATION The intervention occupies a public strip whilst parasitically linking to a private domain of an elderly community member. It provides a public kiosk open to all who walk by, increasing interaction. The WC is accessible to anybody.
4. AGENCY
Floor grates allow for the accidental overflow of water in case of forgetfulness. The kiosk’s form provides a wide view across the site, increasing visual connection.
DEMENTIA RESEARCH
1. NEED FOR PUBLIC TOILET PROVISION
Powell RM. Public Toilet Deficiencies Contribute to Social Isolation for Persons Living With Dementia and Their Caregivers. Journal of Gerontological Nursing.
2. IMPORTANCE OF SMELL IN SENSE OF PLACE D’Andrea F, Tischler V, Dening T, Churchill A. Olfactory stimulation for people with dementia: A rapid review. Dementia.
3. DUTCH CARE AND COERCION ACT 2020 Esther H. Bisschops, Noud Frielink, J. Clasien Schipper, Carlo Schuengel, Petri J. C. M. Embregts, Evaluating a Virtual Community‐of‐Practice as Implementation Strategy for the Needs Assessment Framework in Intellectual Disability Care: A Quasi‐Experimental Multi‐Methods Study, Journal of Applied Research in Intellectual Disabilities
4. APATHY Gramegna, S.M., Biamonti, A., Valusyte, R. (2023). The Role of Interior Design Materialities in Dementia Care: Mundane Elements from the Past. In: Houben, M., Brankaert, R., Hendriks, N., Wilkinson, A., Morrissey, K. (eds) Dementia Lab 2022: The Residue of Design. D-Lab 2022. Design For Inclusion, vol 3. Springer, Cham.















