


![]()




Arquitecto Freelance, con experiencia en renders, planos y construcción/remodelaciones.
Trabajador arduo, curioso, proactivo y organizado.
Whatsapp: +52 (271) 1407626
Email: maxnav99@gmail.com
Instagram: @artchitects.ig
Web:
https://www.linkedin.com/in/maximilianonav https://www.behance.net/maximilianofn
Encargado de proyectos
Grupo Constructor CYPRO
Octubre 2024 - Julio 2025
Coordiné proyectos de construcción, con enfoque en infraestructura
Industrial. Supervisión de actividades y recursos en campo. Generación y ejecución de programas de obra. Reportes operativos, gestión de inventario y cotizaciones
Diseñador y residente
S.H.O.A. architects
Abril 2020 - Septiembre 2024
Desarrollé más de 20 proyectos ejecutivos Aprendí a utilizar herramientas de IA y software de gestión de obra Oficinas ejecutivas modernas, casas elegantes, naves industriales ejecutivas, gimnasios modernos y remodelaciones.
Dibujante de planos
Freelance
Nov 2021 – Feb 2022
Diseñé el proyecto ejecutivo arquitectónico de la nave industrial principal del Banco de Alimentos de las Altas Montañas (B.A.A.M.)
Renderista
Freelance
Jul 2020 - Sep 2021
Realicé el diseño arquitectónico de 2 casas, 1 loft y 1 vivienda de estilo californiano.
Español: Nativo
Ingles: Fluído
Frances: Básico PORTFOLIO | OSCAR MIRANDA
Licenciatura en Arquitectura
Universidad Anahuac
2017 - 2022
Revit avanzado
ArchiCAD avanzado
D5 Render avanzado
Autocad
Sketchup
MS Office (Word, Excel, PP) Adobe Ph, Ill & InD
Tecnología
Autodidacta
Organizado
Proactivo
Atención al detalle
Curioso
Desarrollo de diseño
Comunicación
-Instalación y mantenimiento de equipos A/C
-Marketing +IA
Tabla de Contenido

1. Nave industrial
-Sala de exhibición de autosExecutive Design and construction execution
P. 6
2. Comercial
-Vintatería / RestauranteDiseño interior del local
P. 14
3. Restaurante
-LaParroquia. CoatepecProyecto de renovación de restaurante
P. 22
4. Oficinas ejecutivas
-Oficinas “MIG”Oficinas “Torre Mayor JV”Diseño y construcción
P. 26, 44
5. Residencia
-Casa residencial “BC”Diseño ejecutivo y ejecución de obra
P. 54

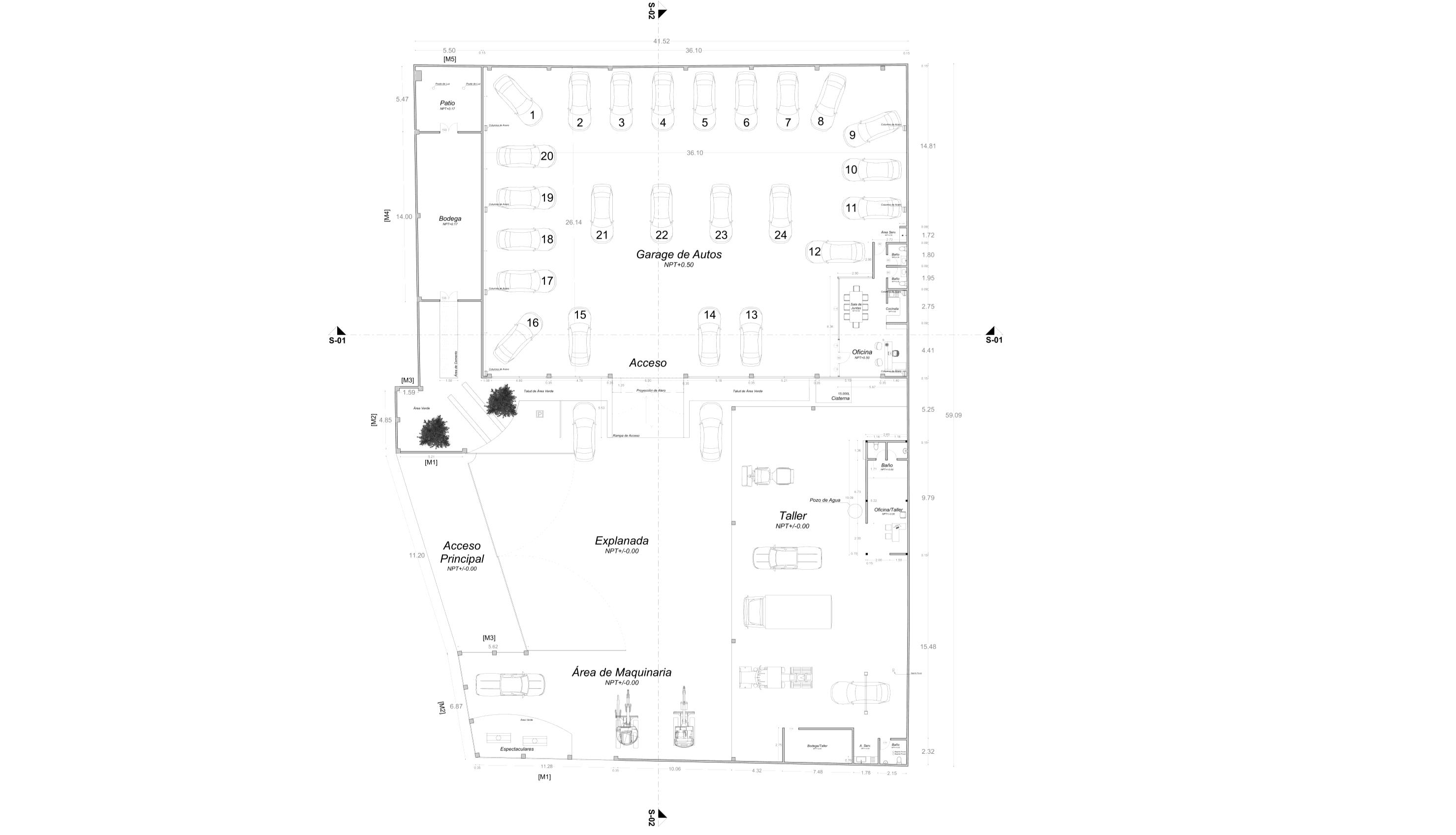
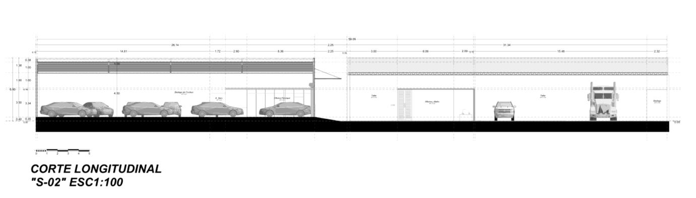
Ubicación: Veracruz Mexico.
Tipo: Interior moderno, exterior rústico campestre
Año: 2023
Diseño arquitectónico de una bodega industrial con intervenciones exteriores de más de +1000 m². El proyecto ejecutivo principal fue para una bodega destinada a albergar más de +25 autos clásicos, con una oficina moderna que incluye un área principal para eventos y una fachada de estilo rústico campestre. Además, el diseño contempla una bodega lateral para almacenamiento, la construcción de una nueva plaza, baños para empleados, oficina de gerencia y otros detalles de las instalaciones.









Ubicación: Xalapa, Mexico.
Tipo: Rústico moderno
Año: 2024
Se llevó a cabo la renovación de un local en una zona comercial de alto tránsito. El concepto arquitectónico combina elementos rústicos, elegantes, modernos e industriales, ideal para una tienda de vinos dirigida a clientes con gusto por sándwiches, vinos, embutidos, tablas de quesos, etc. El objetivo es ofrecer una experiencia inigualable desde la entrada, con una ambientación de noche estrellada simulada, hasta el interior, que se adentra en una atmósfera iluminada por la luna.









Ubicación: Coatepec, Mexico. Tipo: Rustico Moderno Año: 2023
La renovación de una cadena de restaurantes/cafeterías llamada La Parroquia incluyó la ampliación de las ventanas de la fachada exterior y el ensanchamiento del área de la terraza. Se realizaron cambios en el mobiliario de madera, se aplicó nueva pintura, se incorporó una estación de alimentos y se instaló un plafón moderno en el techo.



Ubicación: Xalapa, Mexico.
Tipo: Moderno
Año: 2023
Las “Oficinas MIG” fueron diseñadas y construidas meticulosamente con un enfoque en proporcionar un espacio de almacenamiento funcional para productos en un área específica. Además, se crearon oficinas ejecutivas para albergar a empleados de distintos departamentos dentro de la empresa de comercio de productos en línea

















Ubicación: Xalapa, Mexico.
Tipo: Moderno
Año: 2022
El proyecto ejecutivo y la construcción de oficinas de lujo en la Torre Mayor “JV” fueron desarrollados para atender funciones administrativas, reuniones, oficinas privadas, recepción y cocina, además de presumir increíbles vistas.











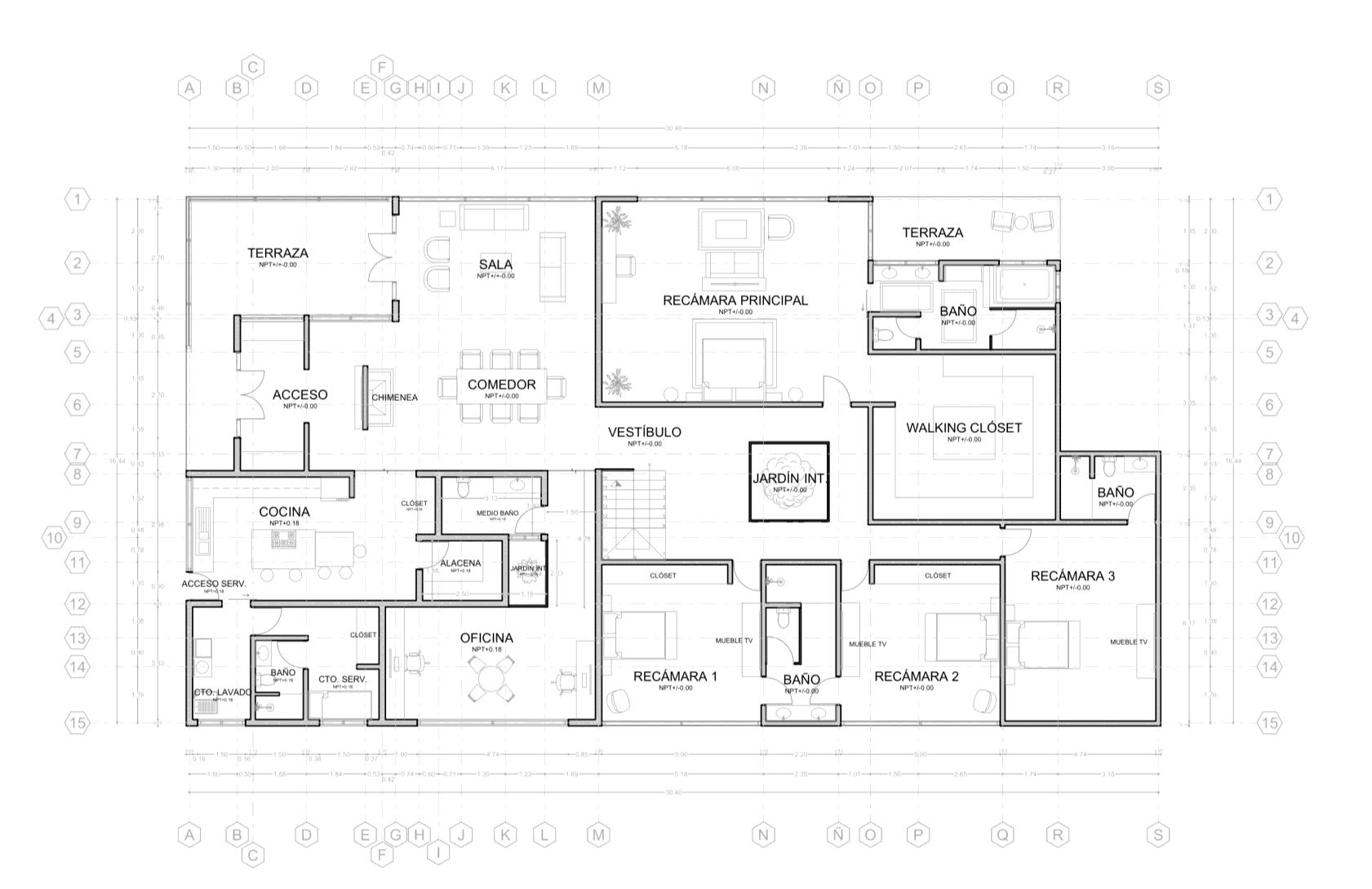
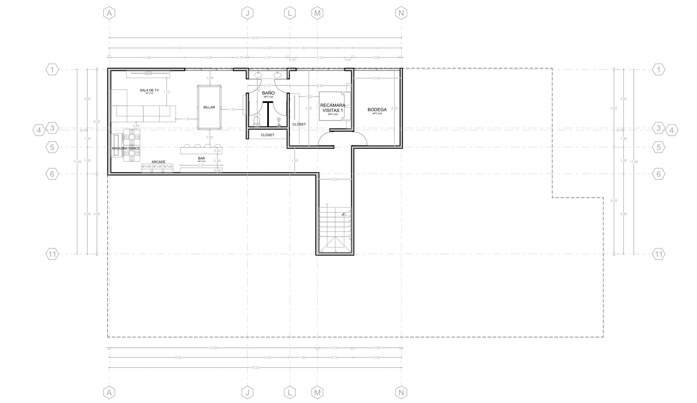
Ubicación: Xalapa, Mexico.
Tipo: Contemporaneo
Año: 2024
El diseño y proyecto ejecutivo fueron desarrollados para la construcción, ampliación y remodelación de la Casa “BC”. La vivienda está diseñada para alojar y garantizar la comodidad de 5 personas, con áreas sociales, recreativas y privadas, así como un área de juegos. Además, se diseñó un área social independiente dentro del predio para visitas y eventos familiares o entre amigos.

























maxnav99@gmail.com
https://www.linkedin.com/in/maximilianonav https://www.behance.net/maximilianofn +52 (271) 140 7626