隱 渡 兒童少年圖書館

Page 1

1 2022 Maxime Ai

隱 渡 淡江建築大三上學期 第一題兒童少年圖書館

基地位於淡水河岸,面對著對岸的觀音 山,風景宜人。

從基地中得到靜與動的元素對應到圖書 館中,再透過隱與渡兩個動作去穿梭在 圖書館中,接著利用明亮的顏色搭配創 造一座充滿童趣的圖書館。

2

Maxime Flamans 艾昶宏

學號:409360343

3
指導老師:李美惠
第一題 組別: 五
4 ONEDRAWING 基地分析 案例分析 設計 -設計發展 -正圖和模型 p14 p16 p22 p8 p8

基地觀察與分析 淡水 動與靜

從淡水捷運站走到基地,特別注意到七條小巷子能夠穿 梭到淡水河畔,其中心境有不同的轉變,並分析其尺度。

6
7 3 2 17 22 17 17 17 12 12 8 6 6 17 12 12 8 6 6 6 6 12 6 9 12 7 7 5 2 2 2 2 3 7 5 6 3 2 6 6 6 6 6
淡水 動與靜
8
9
10
11

空間組合想像草圖

12
13
16
17

隱與渡的概念模型

隱: 避開熱鬧的活動

渡: 行走的過程停下來觀看熱鬧的活動

18
隱 渡

空間型態草模

19
20
21
22
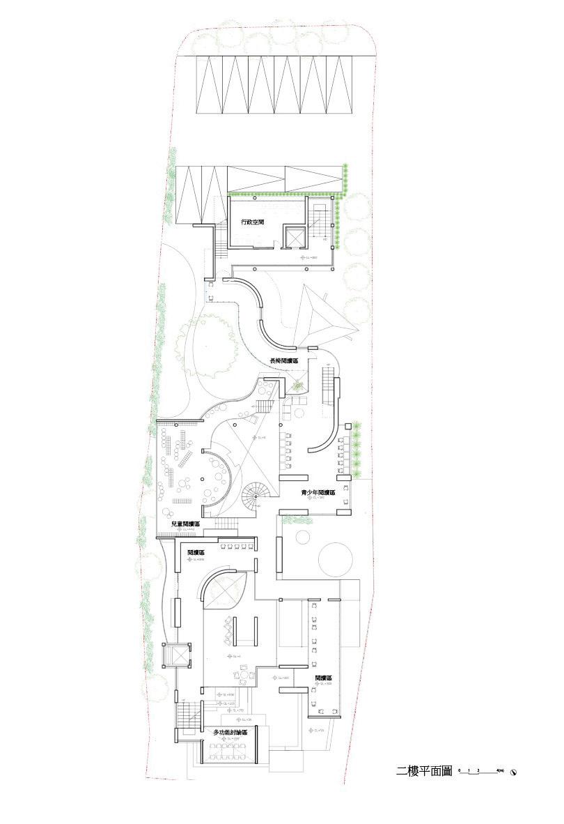
設計圖面
23
24
25
26
27
28
29
30
31
33 模型
a
37

Turn static files into dynamic content formats.

Create a flipbook
Issuu converts static files into: digital portfolios, online yearbooks, online catalogs, digital photo albums and more. Sign up and create your flipbook.