MaxwellHarrington_Portfolio

Page 1

1 ISSUE 201a MAX HARRINGTON
RELEASED 01 MAY 23
BOOK 1/201
2 MAX HARRINGTON... MAXWELLHARRINGTON @YAHOO.COM 816.863.5079 M A X H 5 YEAR MASTERS OF ARCHITECTURE 2023 GRADUATE KANSAS STATE UNIVERSITY

SELECTED WORK

3
2020-2023 EDITION
HARRINGTON...
01 WHAT IM DOING RIGHT NOW 03 STUDIO PROJECT 02 STUDIO PROJECT 04 STUDIO PROJECT 06 WHAT INSPIRES ME LATELY ETC. 05 ART

“GENUINE CREATIVITY CHARACTERIZED BY AWARENESS, CONSCIOUSNESS.”

4

CREATIVITY IS BY AN INTENSITY OF

A HEIGHTENED

(ROLLO MAY)

5
AWARENESS,
6 1. 01

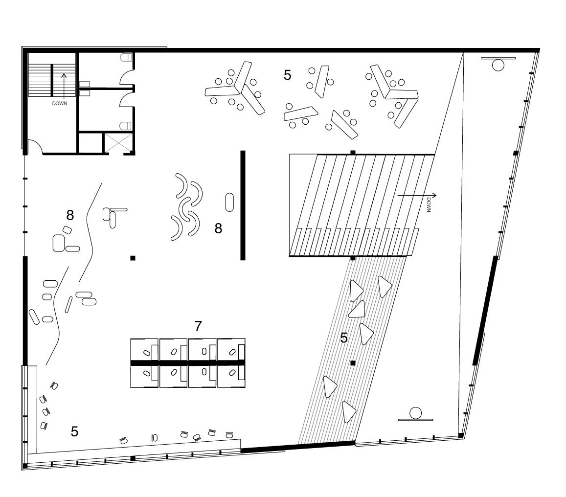
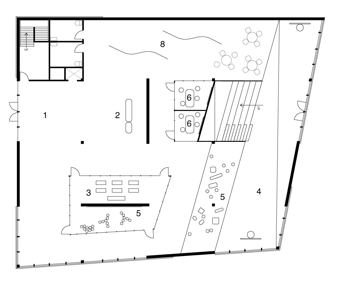
The site is located on the shores of Cernostes Lake in Latvia, one of Europe’s greenest countries. The project brief outlines the need for a new residence that serves as both a temporary home and workshop for painters and their families for a duration of three months. It would replace the current home on the property and would need to offer a balance of privacy and interaction so that both families could live together during the prolonged period of time. The form of the new home consists of two horizontal bars stacked on top of one another connected via a central spiral stair and a separate workshop. These bars are stretched along the E-W axis to maximize the amount of sun coming in, maximize the views to the lake, and to minimize the square footage. Leaving the landscape as is and preserving as many trees as possible. The form evolved from observing the site and noticing the horizon line of the lake aligning with the original home’s roof line. This observation led to the idea of maintaining that line of the upper floor, then having it supported by native limestone and connected by a spiral stair. The volumes were then pushed or pulled in order to frame and preserve views. The design of the spiral stair was carefully thought out to encourage a deliberate and mindful transition between the two floors and their respective spaces. As you ascend or descend, the stair guides your gaze towards different focal points: the serene pond and the warm sunlight streaming in with one turn, followed by the cozy living spaces, kitchen, and dining areas with the next, and finally, the breathtaking view of the lake. Beyond its functional role, the stair offers a unique opportunity to be fully present and heighten your awareness. With each step, you have the chance to appreciate and immerse yourself in the distinct views and elements of the home, acknowledging their individual significance. Positioned at the center of the home, the stair invites you to engage not only in vertical movement but also in meaningful interactions within the ground floor spaces, creating a sense of confrontation.

7
PAINTERS LAKE HOUSE COMPETITION (IN PROGRESS) 02 COMPETITION SITE 03 ORIGINAL HOUSE 01 CONCEPT SKETCHES 02 03

The ground floor, encompassing the living spaces, kitchen, and dining areas, is intentionally designed to foster connections and interactions among the families. The spaces are then wrapped by outdoor spaces of varying degrees of enclosure, seamlessly connecting interior to exterior. The captivating southern courtyard harmoniously engages with the adjacent kitchen, shielding residents from the road while welcoming sunlight. The upper floor is divided into wings for each family, oriented parallel to the lake, ensuring equally captivating views and sun access. The north facing facade is faced with operable folding wood panels that mimic light filtering through tree branches, integrating the home with the landscape. Closed, they shelter from brisk winds coming from the lake, while open, reveal the lake’s expanse and offer privacy for each family. The selection of materials, including stone, board-form concrete, wood, and the green roof, fosters a cohesive connection between the home and its surroundings. These materials thoughtfully echo the site’s essence through shared colors and textures. The stone walls on the ground floor evoke continuity, as if emerging from the remnants of the original home, bridging the past and present. This continuity extends to the roofs of both the home and workshop, where plantings further dissolve the boundaries between built and natural environments. The meticulously curated material palette, selected for durability and organic qualities, enriches the home’s inherent attributes, seamlessly merging it with the site. This deliberate approach invites residents to engage with the rich textures of each material, fostering a profound connection to the home and its surroundings.

8 04 EXTERIOR VIEW FIREPIT AREA 04 05
9 05 EXTERIOR VIEW FRONT OF HOUSE
10 06 GROUND FLOOR PLAN 07 1ST FLOOR PLAN 06
11 07
12 08
08 EXTERIOR VIEW BACK OF HOUSE VIEW FROM LAKE
13 09 09 E-W SECTION
14 11 10

The workshop space is designed to offer both functionality and a sense of serenity. Providing ample room and storage for artists, it also serves as a space for stillness and creative thinking. Positioned above the lake, this secluded retreat fosters a deep connection with nature and inner stillness. Its separate entrance creates a distinct sense of arrival, inviting artists on a transformative journey. With captivating views and a serene ambiance, the workshop space becomes an oasis of inspiration, enhancing the creative process.

15 10 FORM DIAGRAM 11 INSIDE THE STUDIO
16 12 13
12 LIVING SPACES 13 LIVING SPACES VIEW OF CENTRAL SPIRAL STAIR
17 14 15 14
KITCHEN 15 KITCHEN VIEW OF CENTRAL SPIRAL STAIR
18 16
19 16 PROCESS WORK
20 2.

The home design centers around a functional core, creating a circulation loop that balances private spaces and shared areas for optimal sunlight and ventilation. The kitchen forms the communication hub, connecting to the living room for quality family time, while the design encourages passive cross ventilation and transitions from grand shared spaces to more intimate private areas.This design harmoniously integrates functionality and comfort, embodying the warmth of a family home while maintaining architectural integrity.

21 SPRING
NET ZERO HOME OGDEN, KANSAS 01 EXTERIOR RENDER
GREEN HOUSE
01
22 02 E-W SECTION 03 VIEW TOWARDS CENTRAL CORE 02 03
23 04 PLAN 05 STUDY MODEL 04 05
24 06 EXTERIOR FRONT 06
25
26
3.

A part of The Net Positive Studio through Kansas State University where we worked with our clients and partners to research, design, analyze, document, prefabricate, and build an affordable, net zero house in the community of Ogden, KS. The home is set to be completed by the end of June 2023.

27 NET ZERO DESIGN
+ BUILD
01 LIVING ROOM 02 KITCHEN 01 02
28 03 EXTERIOR VIEW + FRONT PORCH 03
29 04 PLAN 04
30 UNDER CONSTRUCTION 05 VIEW TOWARDS ENTRANCE 06 VIEW OF LIVING ROOM 07 EXTERIOR CONSTRUCTION 05 06 07
31
32 4.

The mission of the Boys and Girls Clubs of America to empower young people is the foundation for this design. The layout of the building aligns with this goal, segregating play, learning, and study spaces, while maintaining a cohesive environment, mirroring the natural phenomenon of a cocoon’s protective and nurturing nature. In this design, three primary areas — Play, Learn/Teaching Kitchen, and Study/Resource — are realized as double-height volumes, distinguishing spaces for different age groups while simultaneously promoting unity. Taking inspiration from nature’s nurturing cocoon, the building’s envelope enfolds these three distinct spaces. As these areas extend upward, the enveloping structure of the building wraps around them, reminiscent of the protective sheath of a cocoon.

33 BOYS & GIRLS
KS 01 PARTI DIAGRAM
CLUB ALMA,
01
34 02 EXTERIOR RENDER + ELEVATIONS 02
35 1 FOYER 2 RECEPTION 3 KITCHEN | CLASSROOM 4 GYM 5 STUDY | RESOURCE AREAS 6 CONFERENCE | OFFICE 7 PRIVATE STUDY SPACES 8 LEARNING AREAS 03 GROUND FLOOR FIRST FLOOR 03

ART...

36
5.
37 01 UNTITLED 02 GRAB 01 02
38 03 BREATHE 04 BE THE PORTAL TO WHICH LOVE CAN ENTER 03 04
39 05 THE WINDOW 06 TEACHING FLOWERS 05 06
40 07 UNTITLED 07
41

WHAT INSPIRES ME LATELY...

42 6.

AD REINHARDT

BRIAN DONNELLY

JURGIS TARABILDA

ARJAN JANSSEN

TAKASHI MURAKAMI

STEVEN HALL

HENSE

TADAO ANDO

SAOTA

JOE ADSETT ARCHITECTS

STUDIO MK27

NATURE

43
44 01 HAWKINS FERRY HOUSE COMMISSIONED PAINTING / HENSE 04 A NEW LIFE / GELMI ART STUDIO 02 KAWS / BRIAN DONNELLY 03 NIKE FLIGHT PREMIUM SOCCER BALL / NIKE 01 02 03 04
45 05 911 IN FABRICS / THIAGO
06
TALLMANN
NANCY AND RICH KINDER MUSEUM / STEVEN HOLL ARCHITECTS
05 06 07
07 CANTILEVER TABLE LIGHT / LOUIS FILOSA. GANTRI

“HOW MIGHT LIGHT STRUCTURE A SPACE OR SURFACE SO AS TO BRING ORDER TO IT - BRING IT SCALE, BRING IT TEXTURE, BRING IT HIERARCHY? AS LIGHT IS INCREMENTALLY INTRODUCED, OBJECTS AND SURFACES ARE ARTICULATED AS THEY COME IN AND OUT OF FOCUS AND IT IS THE DIALOGUE OF THIS LIGHT WITH THE SURFACES THAT IT ILLUMINATES OR PASSES THROUGH THAT PRODUCES AN EXPANDED SPATIAL EXPERIENCE - A CONTINUOUS TRANSFORMATION OF FORM.

YET, IT IS NOT THE LIGHT, PER SE, THAT CREATES THE SPACE - IT IS THE SHADOWS THAT ARE CAST THAT CONSTRUCT THE SPACE.” / P. 116-117 THE LANGUAGE OF ARCHITECTURE

“PARALLAX - THE CHANGE IN THE ARRANGEMENT OF SURFACES THAT DEFINE SPACE AS A RESULT OF THE CHANGE IN THE POSITION OF THE VIEWER - IS TRANSFORMED WHEN MOVEMENT AXES LEAVE THE HORIZONTAL DIMENSION. VERTICAL OR OBLIQUE MOVEMENTS THROUGH URBAN SPACE MULTIPLY OUR EXPERIENCES.” / STEVEN HOLL

LE CORBUSIER PROMENADE ARCHITECTURALE: “ARCHITECTURE CAN BE THOUGHT OF AND EXPERIENCED AS A SERIES OF SPATIAL STILLS OR FILMIC FRAMES THAT TOGETHER CONSTITUTES A COMPLETE SPTIAL EXPERIENCE.” / P.125 THE LANGUAGE OF ARCHITECTURE

“WE ALWAYS SAY THAT OUR GOAL IS TO DESIGN A BUILDING THAT LOOKS LIKE ITS ALWAYS BELONGED THERE.” / MARK BULLIVANT PRINCIPAL ARCHITECT AT SAOTA

“AN OBJECT HAS TO BE TALKATIVE, IT HAS TO TELL AN INTERESTING STORY.” / OKI SATO

“GENUINE CREATIVITY IS CHARACTERIZED BY AN INTENSITY OF AWARENESS, A HEIGHTENED CONSIOUSNESS.” / ROLLO MAY

46
47

MAXWELL HARRINGTON MASTERS OF ARCHITECTURE

48
KANSAS STATE UNIVERSITY 2020 - 2023 COLLECTION

Turn static files into dynamic content formats.

Create a flipbook
Issuu converts static files into: digital portfolios, online yearbooks, online catalogs, digital photo albums and more. Sign up and create your flipbook.