BPN Portfolio - Mauricio J.

Page 1


Mauricio J.

PORTFOLIO

ARCHITECTURE

Skill Set

Hi, I'm Mauricio Jiménez. I've been an architect for 10 years, with the past 3 years working on projects in the US. I’ve worked on residential homes, commercial buildings, Warehouses, ADU’s, Sidewalks, House remodel, Restaurants, landscape, I’m experienced in making 3D models, creating construction documents (CDs), doing interior design, and Project management. I use softwares like AutoCAD, Revit, SketchUp, and Adobe Creative Suite, Lumion, Twinmotion, 3ds Max, Trello, office suite, to bring my ideas to life and communicate clearly with clients and contractors. I love designing creative spaces and bringing them to life.

Education

University 2018 - 2021 Master's Degree in Construction Management.

University 2013 - 2017 Architect.

Additional Courses

Arkitectonik studio 3Ds Max Online 2018 Dynamo Basic level Online. 2020

Software

Lumion

AutoCAD V-Ray

Photoshop

SketchUp

Illustrator Revit Twinmotion 3DS MAX Rhinocero s Dynamo

Language s

Spanish | Advanced English | Advanced

German | Basic

WORK EXPERIENCE

| Tezontepec México | Senior Architect Designer | 2024 - Present | in-person

Main task list:

- Design and construction of the most important Warehouses in Hidalgo

- Coordination with external MEP and structural engineers

- Responsible for the design of one of the three warehouses.

- Conduct meetings with contractors, clients, and stakeholders.

- Development of the full project in accordance of the city codes

- Layout design according to customer requirements.

- Create construction documents and plans

- Establish schedules and deadlines with external consultants.

Main task list:

- Establish timelines, budgets, and deliverables for MEP projects.

- Conduct regular video conferences with the design and field teams to ensure alignment.

- Provide clear and frequent updates to clients, contractors, and consultants.

- Use platforms like BIM 360, ACC, or Trello for task tracking and file sharing.

- Review and approve change orders with cost implications.

- Clearly define the scope of MEP work and align it with the overall project goals.

- Organize and lead project kickoff meetings to ensure all stakeholders understand roles and responsibilities.

- Ensure all team members are working with the latest versions of project documents.

- Verify that submittals, RFI responses, and project changes adhere to regulations and project requirements.

Hermosillo
Pro Engineering consulting | San Diego, California | Project Manager | 2023-2024 | Remote

De

Build Group | Oakland California | Construction Manager | 2020-2023| Remote

Main task list:

- Manage the submission and approval of required permits remotely.

- Negotiate contracts and pricing with vendors to stay within budget.

- Coordinate city inspections and special inspections with local authorities or third-party inspectors.

- Use technology (e.g., live video feeds, drones, or site reports) to monitor on-site activities.

- Conduct lessons-learned sessions after project completion to improve future projects.

- Ensure the project meets all contractual and regulatory requirements.

- Review project drawings and specifications to plan construction activities.

- Coordinate the ordering of concrete, ensuring the correct mix, strength, and delivery schedule based on structural specifications.

- Oversee the selection and approval of paint colors, flooring, wall coverings, and other finishes.

Espacio Consultores | Mexico City | Drafter | 2018 - 2020 | in-person

Main task list:

- Create detailed floor plans, elevations, and sections of hospital facilities.

- Develop structural drawings for beams, columns, foundations, and other elements.

- Draft layouts for mechanical, electrical, and plumbing systems based on engineer inputs.

- Design room layouts, furniture plans, and specialized medical equipment placements.

- Use BIM software like Revit to create accurate 3D models of the hospital.

- Collaborate with architects, engineers, and consultants to ensure accuracy.

- Update drawings based on feedback or changes in design requirements.

- Participate in regular design coordination meetings.

PROJECTS

Multifamilia

PUNTA LAS HADAS DEPARTMENTS

2022 01

Brief description:

The complex has three buildings, each with four floors, a roof garden, and a basement. It is situated on sloping terrain near the beach, in one of the most exclusive areas of Manzanillo, México.

The complex features a shared recreational area that includes a pool, a small gym, and a recreation area with a bar and barbecue facilities. The apartment on the top floor has exclusive access to the roof gardens.

Location: Manzanillo, México.

Duration: 1 year

Created with: Revit, Lumion and Photoshop

Team: Own Project

Floor plan

01. PUNTA LAS HADAS | PLANS

1rst and 2nd plan

Basement Plan

3rd plan

Roof garden

Render Pool

Render living room and Dining

01. PUNTA LAS HADAS | RENDERS

01. PUNTA LAS HADAS | MEP

Hydraulic BIM design

Plumbing BIM design

Electrical plans

01. PUNTA LAS HADAS |

Concrete Pouring Wall rebar and forms

SELF STORAGE HORSHAM RD, PA

Brief description:

Development of Self storage project located in 901 Horsham Rd, Horsham, PA 19044, USA.

KMA Team created the Architectural design of this self storage Project, and me in collaboration with Pro Engineering consulting Developed all the MEP Engineering, It also included Fire system protection. Location: Horsham, Philadelphia. Duration: 4 months

Created with: Revit and AutoCAD Team: KMA Design studio & Pro Engineering consulting

Roof Plan
Floor plan
Revit Model
Elevations

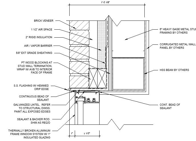
02. SELF STORAGE HORSHAM RD | SECTIONS

Stair section Wall sections

3D Exploded View

sill detail

Typical brick corner
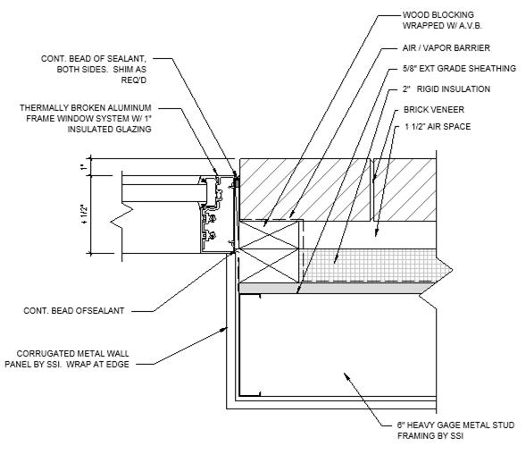
Window head Detail
Window jamb detail
Stair landing - Pickets
Slab at brick sill
Storefront

MERCADO LIBRE WAREHOUSE 2024 03

Brief description:

We are developing three warehouses, each measuring 100,000 m², located in Tezontepec, Mexico, for Mercado Libre. The structures will feature Tilt-Up walls. As a Senior Designer, I am responsible for the complete building design. My role involves coordinating with external consultants and collaborating with our construction team on-site.

Location: Tezontepec, México.

Duration: Actual

Created with: Revit, AutoCAD, Twinmotion, ACC Team: Hermosillo “Experience Matters”.

Warehouse Facade

Master plan - Site plan

03. MERCADO LIBRE WAREHOUSE |

Connections

Structural Sections

Tilt up wall rising

Completed Warehouse

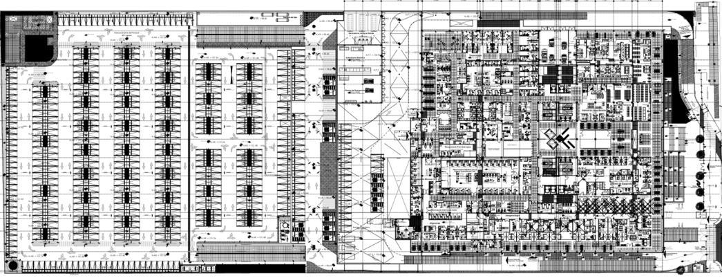
SPECIALITIES HOSPITAL

2020 04

Brief description:

This six-story hospital, located in Pachuca, Mexico, was designed with a capacity of 144 beds. It features 7 operating rooms and offers over 98 medical specialty services. The hospital's modern design includes facades made of engineered glass, and it is equipped with two water treatment plants, hazardous biological-infectious waste control systems, and specialized installations. Additionally, the hospital began providing services during the COVID-19 pandemic, making it a crucial asset to the community in my city.

Location: Pachuca, México

Duration: 3 years

Created with: Revit, Autocad, MS Project, Navisworks Team: Espacio Consultores

04. SPECIALITIES HOSPITAL | PLANS

The first floor covers approximately 8,674 m². Each subsequent floor, starting from the second, has an area of approximately 3,438 m². 5th Floor Roof

Revit BIM Model

04. SPECIALITIES HOSPITAL |

I-Beams placement
Dome Roof Hospital Placement

Thank you for exploring my portfolio!

Turn static files into dynamic content formats.

Create a flipbook
Issuu converts static files into: digital portfolios, online yearbooks, online catalogs, digital photo albums and more. Sign up and create your flipbook.