2023 - Design Portfolio

Page 1

M S

MAURICIO SANTAMARIA DESIGN PORTFOLIO

MAURICIO SANTAMARIA

EDUCATIONCONTACT

University of Oklahoma

Bachelor of Architecture

Class of 2023

WORK EXPERIENCE

Beck Design | Architectural Intern

Oklahoma City, OK | Oct. 2022 - Present

-Produced construction documents for city permitting.

-Assisted on correcting interior elevation redlines.

-Conducted consultant meetings with project engineer.

BOKA Powell | Architectural Intern

Dallas, TX | Jan. 2022 - Aug. 2022

-Produced waterproofing details & construction drawings.

-Composed concept submittals for city approval.

-Participated in meetings involving project leaders and clients.

-Created programming and facade studies for varies projects.

Candid Home Design | Remote 3D Visualizer

Portland, OR | Oct. 2021 - Oct. 2022

-Generate plan diagrams and high-quality renderings for clients.

-Assist in 3D modeling of existing site conditions.

BOKA Powell | Architectural Intern

Dallas, TX | May 2021 - Aug. 2021

-Assisted in developing design concepts for a variety of projects.

-Created site analysis, 3D diagrams, graphics, and renderings.

-Researched zoning requirements for new projects.

-Put together client presentations involving site research and studies.

BR Architects & Engineers | Architectural Intern

Richardson, TX | May 2019 - Aug 2019

-Corrected redline drawings.

-Arranged/attended AIA Small Firm Round Table meetings.

-Attended/reported site visits and client meetings.

(214) 516-0503

mauricio_santamaria@ou.edu

linkedin.com/in/mauricio-santamaria

SCHOLARSHIPS/AWARDS

2022-2023

-Jane & Joe Buskuhl Endowed Scholarship

-James L. Nicholson Scholarship

-Michael & Mary Mahaffey Scholarship

-R. Boyd Gunning Scholarship

2021-2022

-Trousdale Endowed Scholarship

-Christopher C. Gibbs Endowed Scholarship

2020-2021

-President’s Honor Roll (Fall)

-Dean’s Honor Roll (Fall & Spring)

-Trousdale Endowed Scholarship

-Wayland Bowser Scholarship

-OU Sooner Heritage Award

2019-2020

-President’s Honor Roll (Spring)

-Dean’s Honor Roll (Fall & Spring)

-Trousdale Endowed Scholarship

-Micheal F. Price Scholarship

-Joe & Jane Buskuhl Endowed Scholarship

2018-2019

-Dean’s Honor Roll(Spring)

-OU Nonresident Merit Scholarship

-OU Nonresident Institutional Award

SOFTWARE SKILLS DESIGN COMPETITIONS

2021 AIA Central Region Student Competition

Kansas City, Ks

A day long design charrette for a sheltered event space that enriches the diversity and culture found in the Strawberry Hill Neighborhood.

2020 NOMA Student Competition

Oakland, Ca

A mixed-use community-owned development that integrates positive and welcoming community connections.

01
-Enscape -Lumion -Illustrator -Photoshop -InDesign -Lightroom
Pro -SketchUp -Revit -Vray -Rhino 3D -AutoCAD
Effects
-Premiere
-Grasshopper -After
ARCHITECTURE STUDENT
02 CONTENTS 03 04 02 01 08 OU CULINARY SCHOOL URBAN FARMING CENTER THE INTERSECTION OU NATIVE NATIONS CENTER ART & PHOTOGRAPHY pg. 17 pg. 25 pg. 09 pg. 03 pg. 33 Introducing culinary arts to the University of Oklahoma Design to bring food production in an urban environment Multi-family housing project for a community-based organization Experimentation of AI and how it can be incorporated into the design process ACADEMIC WORK CREATIVE WORK pg. 30 pg. 31 pg. 32 06 MCKINNEY AVE. OFFICE TOWER Site and facade study for a 16-story office building 05 RENDERINGS Varies renderings for residential projects 07 UNIVERSITY STUDENT HOUSING Programming and facade study for a 120-unit housing project Varies art projects and photography PROFESSIONAL WORK

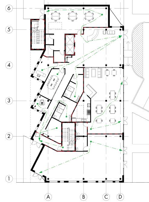
NATIVE NATIONS CENTER

NORMAN, OKLAHOMA | DESIGN IX - FALL 2022

The Native Nations Center seeks to provide a stronger connection between the University of Oklahoma, students, professors, and the 39 Native American tribes of the state. The building will serve the Department of Native American Studies and the Native Nations Center and will foster community engagement by incorporating public spaces that can be used by the programs and the university. In combination with traditional programing studies, AI image generator, Midjourney was used as a source of inspiration by using our design narrative to foster design ideas.

PROGRAMS USED

SketchUp

Revit

Enscape

Illustrator

Photoshop

MidJounrey Bot

03
01
| NATIVE NATIONS CENTER
04 NATIVE NATIONS CENTER |

FIRST FLOOR PLAN

SECOND FLOOR PLAN

THIRD FLOOR PLAN

05| NATIVE NATIONS CENTER
06 NATIVE NATIONS CENTER |
CONCEPTS
MIDJOURNEY -
07| NATIVE NATIONS CENTER
The Community Space is combined with a kitchen to be able to host community events. The incorporation of a learning staircase will be an attraction for students in between classes and help grow that relationship between users and space.

SECTION AAMIDJOURNEY - FINALIZED

BB

08 NATIVE NATIONS CENTER |
SECTION

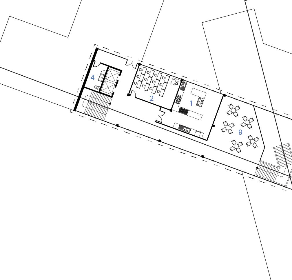
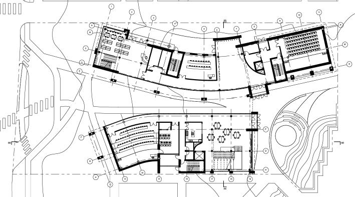
THE INTERSECTION

PROGRAMS USED

A multi-family housing project for ABLE Community-Based Services, a nonprofit located in Norman, Oklahoma with the goal to enable people with special needs to live normal lives. The design is centered around fostering community connections from Andrews Park towards the north and Downtown Norman towards the south. The mixed-use building also seeks to provide accessible and affordable housing for the organization and the surrounding neighborhood.

Revit

09
02
NORMAN, OKLAHOMA | DESIGN VII - FALL 2021 Enscape SketchUp Illustrator
| THE INTERSECTION
Photoshop
10 THE INTERSECTION |
11 | THE INTERSECTION

Inspired by the city’s grid system rotating 25 degrees at this location, the building is composed of two Intersecting masses. The combination of these two angles creates a series of balconies on the west that step back to allow for shading on the lower floors. The building used beige brick to relate back to the surrounding government buildings and glass-fiber reinforced concrete panels because of their durability, ease of installation, and sustainability.

12
THE INTERSECTION |
13 | THE INTERSECTION

WALL SECTION NORTHEAST ELEVATION

SOUTHEAST ELEVATION

With over 7,000 square feet of roof and balcony surface area, the building can collect an average of 24,000 gallons of stormwater a month. The building is equipped with two 1,500 cubic feet collectors located underground that decrease the amount of water going into storm drains and risk polluting local creeks and rivers.

14 Level 1 1' - 0" Level 2 16' - 0" Level 3 28' - 0" Level 4 40' - 0" Foundation -1' - 6" 12" x 12" GLULAM COLUMN 10' x 18" GLULAM GIRDER 12' 0" Roof 53' - 0" OVERFLOW DRAIN 3" PIPE TO WATER STORAGE 3' 6" 2' 0" 6" x 12" GLULAM SECONDARY COLUMN 6' x 14" GLULAM SECONDARY GIRDER A Wall Assembly |R-Value: 22| int ext 5/8” Gypsum Board 6” Metal Studs w/ Batt Insulation 5/8” Plywood Sheating Vapor Barrier 1 1/2” Rigid Insulation 1 1/2” Air Space 3 5/8” Brick Wall Assembly |R-Value: 26| int ext 5/8” Gypsum Board 6” Metal Studs w/ Batt Insulation 5/8” Plywood Sheating Vapor Barrier 2 5/8” Rigid Insulation 2 3/8” Air Space 1 1/4” Glassfibre Reinforced Concrete Panels (1’x6’ ea) Ext Floor |R-Value: 22| top bottom 1/2” Flooring 3/4” Rigid Insulation 5-PLY CLT Floor Panel Vapor Barrier 3 3/8” EIFS Insulation 1/2” Finish Balcony Floor |R-Value: 22| ext int 1/2”Decking 6” Air Space w/ Drain Vapor Barrier 1 5/8“ Sloped EIFS Insulation 5-PLY CLT Floor Panel Int 2-HR Wall Assembly | int ext 5/8” Gypsum Board (2) 4” Metal Studs 5/8” Gypsum Board (2) Roof Assembly |R-Value: 22| ext int 3/4” EPDM Roof Membrane 12 1/2” Rigid Insulation Vapor Barrier 5-PLY CLT Roof Panel Int Floor |R-Value: 10| top bottom 1/2” Flooring 3/4” Rigid Insulation 5-PLY CLT Floor Panel
THE INTERSECTION |

FIRST FLOOR PLANSECOND FLOOR PLAN

THIRD FLOOR PLANFOURTH FLOOR PLAN

15
| THE INTERSECTION

NORTHWEST ELEVATION

16
SOUTHWEST ELEVATION
THE INTERSECTION |

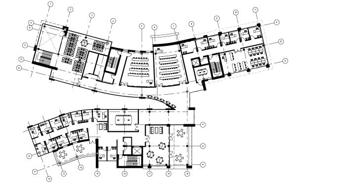
OU CULINARY SCHOOL

PROGRAMS USED

DIVA Plugin

Located two miles south of the main part of campus, the culinary art school for the University of Oklahoma provides an academic setting for the culinary arts and study of sustainable methods for food preparation. It emphasizes the importance of food culture and its power on the surrounding community.

17
Rhino 3D Vray Flow Design Illustrator Photoshop
03
NORMAN, OKLAHOMA | DESIGN V - FALL 2020
| CULINARY SCHOOL
18 CULINARY SCHOOL |
19 | CULINARY SCHOOL

The first iteration experimented with the building’s orientation to direct summer winds towards the teaching kitchens, on the west wing, while creating an open space for a garden.

The second iteration also involved the building’s orientation but to capture the most sunlight during winter mornings to naturally heat the large rooms on the east wing.

The building attempts to keep a close connection to the site by having the three roofs slope down to meet the ground at different elevations. The final design is a combination of two design iterations to obtain cooling/heating benefits from both models.

20
CULINARY SCHOOL |

FIRST FLOOR PLAN

SECOND FLOOR PLAN

TEACHING KITCHENS CLASSROOMS

MAIN OFFICE

RESTROOMS

CAFE/DELI

LECTURE HALL

WINE CELLAR

GUEST HOUSE

CAFETERIA

HYDROPONIC ROOM

WALK-IN FRIDGE

UTILITY ROOM

21
1 2 3 4 5 6 7 8 9 10 11 12
| CULINARY SCHOOL
22
SECTION AA
CULINARY SCHOOL |
SECTION BB
23
| CULINARY SCHOOL
When a user arrives from the parking lot, they are led down to the center garden that is surrounded by a glass facade and wood structure consisting of load-bearing rammed earth walls to absorb heat.

NATURAL VENTILATIONDAYLIGHT ANALYSIS

The building is rotated 20 degrees to capture southwest winds during the summer to allow for natural ventilation.

Daytime analysis helped determined which areas needed a reduction in window exposure to avoid excessive solar heat gain.

24
CULINARY SCHOOL |

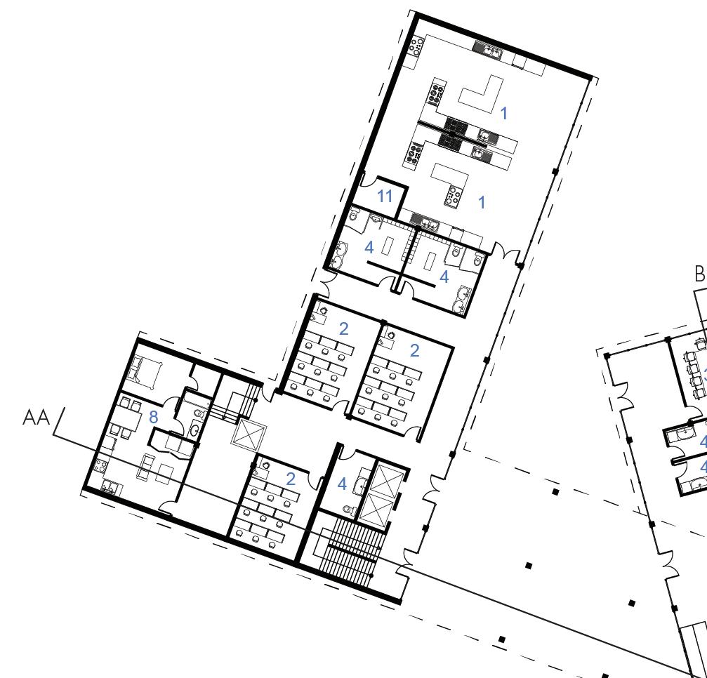
URBAN FARMING CENTER

FORT WORTH, TEXAS | DESIGN IV - SPRING 2020

PROGRAMS USED

Located in the Cultural District, just west of Downtown Fort Worth, Texas, the Urban Farming Center aims to focus on serving as a site for demonstrating, producing, and the consumption of stable foods. The materiality of the outdoor areas consists of concrete retaining walls and colored limestone for the flooring to relate to that of the Kimbell Art Museum, designed by Louis Kahn, located west of the site.

25
Rhino 3D Vray Illustrator Photoshop
04 | URBAN FARMING CENTER
26 URBAN FARMING CENTER |

FIRST FLOOR PLAN

SECOND FLOOR PLAN

THIRD FLOOR PLAN

27
1 2 3 4 5 6 7 8 9 10 11 RECEPTION AREA OFFICES HYDROPONIC STORAGE RESTROOM GALLERY CAFE CONFERENCE ROOM KITCHEN GREENHOUSE OUTDOOR GALLERY | URBAN FARMING CENTER

With its compact

the building respects to the crowded urban

while still meeting programming requirements. To prevent

28
STUDY MODELS URBAN FARMING CENTER |
form, space solar heat gain on the south side of the building, a wire-frame is built onto the structure’s exterior to allow for the growth of dense Boston Ivy vines that grow during warm months.

SECTION BB

29
SECTION AA
| URBAN FARMING CENTER

RENDERINGS

Varies renderings produced for proposed home remodels/new builds

30
05 RENDERINGS |

UPTOWN OFFICE TOWER

31
06 | UPTOWN OFFICE TOWER
Site & facade study for a 16-story 350,000 square foot office building located in Dallas, Texas

STUDENT HOUSING

Programming and facade study for a 46,000 sq. ft. 120-unit university housing building

32
07 2-Bed Unit Director’s Unit Rooftop Patio 4-Bed Unit 2nd 3rd 1st Community Room Community Room RA Unit Front Lobby Offices Community Kitchen Community Room STUDENT HOUSING |

ART & PHOTOGRAPHY

33 COW SKULL | 2017DURER’S HEAD REPLICATION | 2019 OKLAHOMA CITY NATIONAL MEMORIAL | 2018 GRAPHITE GRAPHITE
Compilation of past artwork and photography 08 | ART & PHOTOGRAPHY
34
GRAPHITE PRACTICE | 2019 KIMBELL ART MUSEUM | 2020 WATERCOLOR PRACTICE | 2017OIL PASTEL | 2019
PEROT MUSEUM | 2022 ART & PHOTOGRAPHY |
MODERN ART MUSEUM OF FORT WORTH | 2020

Turn static files into dynamic content formats.

Create a flipbook
Issuu converts static files into: digital portfolios, online yearbooks, online catalogs, digital photo albums and more. Sign up and create your flipbook.