2024 - Design Portfolio

Page 1

Mauricio Santamaria

Design Portfolio 2024

Eye Institue of Nevada Resume

A new hub for clinical eye care and research in Las, Vegas Work experience, skills, and awards

Native Nations Center

The Intersection

Multi-family housing project for a community-based organization

Culinary Arts School

Introducing culinary arts to the University of Oklahoma

Construction Documentation

Drawings for a type-5B building

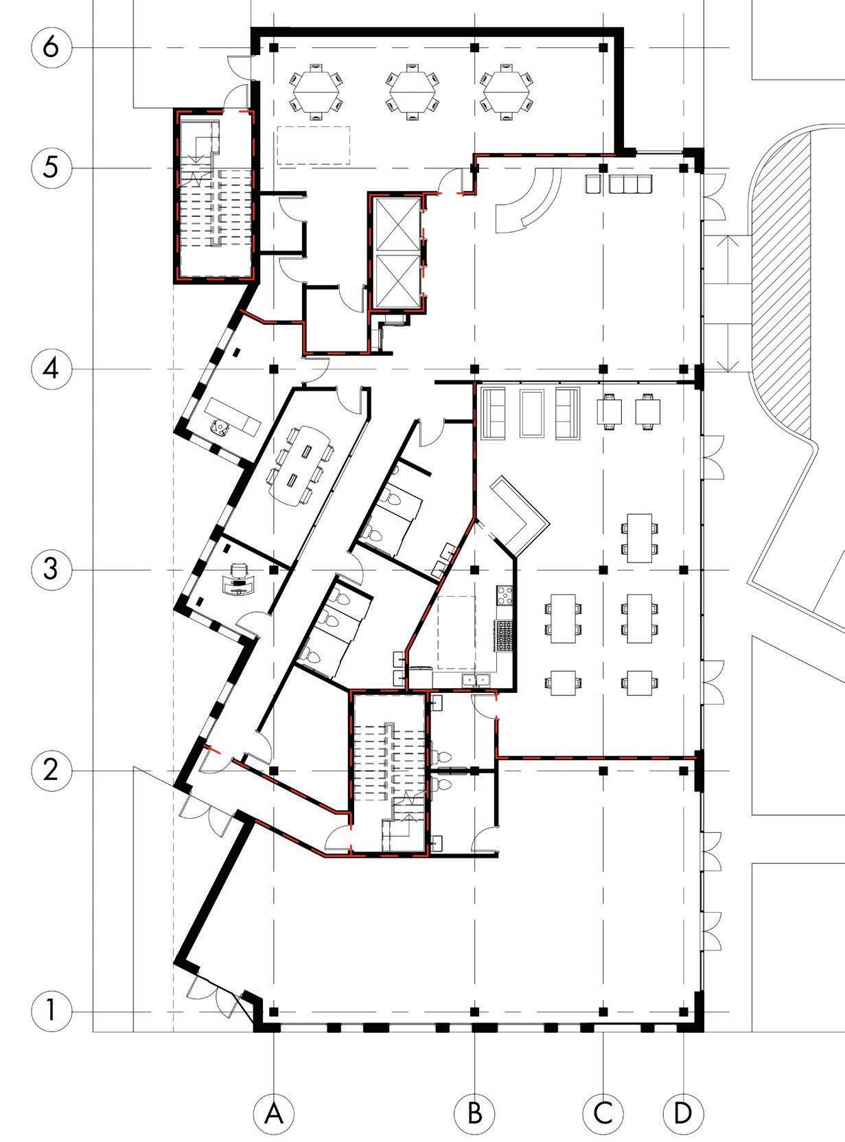
Multi-Family Housing

Programming study for a mixed-use building

05 02 01 06 07 04 03

Compilation of renderings for residential projects

PROFESSIONAL WORK

08 Renderings

McKinney Ave. Office Tower

Site and facade study for a 16-story office building

Programming and facade study for a 120-unit housing project

09

10 University Student Housing

Incorporating AI into the design process ACADEMIC WORK CREATIVE WORK

Proportion Studies

Using a series of proportions to create physical models

11

Art and Photography

Compilation of art projects and photography

12

Contents
pg. 02 pg. 03 pg. 08 pg. 11 pg. 15 pg. 19 pg. 20 pg. 20 pg. 21 pg. 21 pg. 22 pg. 23

MAURICIO SANTAMARIA

Architectural Design Professional

EDUCATION

The University of Oklahoma | Bachelor of Architecture With Special Distinction Graduation Date: May 2023

WORK EXPERIENCE

BOKA Powell | Architectural Design Professional

Dallas, TX | Jun. 2023 - Present

- Conducted code research and produced life safety drawings for a variety of building types.

- Coordinated with product reps and project consultants to complete construction drawings.

- Assisted on design development packages, used for pricing estimates, for office renovation projects.

- Created ceiling, millwork, and interior window/door construction details for various types of conditions.

- Collaborated in design competitions involving local redevelopments/masterplanning.

Beck Design | Architectural Intern

Oklahoma City, OK | Oct. 2022 - Apr. 2023

- Assisted in producing construction documents for a new 25,000 Sq-Ft multi-purpose building for a school.

- Produced city permit drawings for water well houses for the local zoo.

- Coordinated with project engineers to produce construction drawings and specifications.

BOKA Powell | Architectural Intern

Dallas, TX | Jan. 2022 - Aug. 2022

- Developed programming analysis and facade studies for a 77-unit student housing project.

- Assisted on roof and wall section details for a 120-key boutique hotel.

- Composed concept submittals for city approval for a 116-unit multi-family building.

- Assembled client presentations, and participated in meetings involving project consultants and clients.

Candid Home Design | 3D Visualizer

Portland, OR - Remote | Oct. 2021 - May 2022

- Generated plan diagrams and high-quality renderings for clients and pricing estimates.

- Assisted in modeling existing site conditions and new additions using Revit.

BOKA Powell | Architectural Intern

Dallas, TX | May 2021 - Aug. 2021

- Researched zoning requirements and created site analysis diagrams for client proposals.

- Developed massing and facade studies for a 350,000 Sq-Ft office building.

- Created massing studies for multi-family, office, and mixed-use developments.

BR Architects & Engineers | Architectural Intern

Richardson, TX | May 2019 - Aug. 2019

- Shadowed project civil engineer/architect on site visits and client meetings.

- Created schematic drawings for a 16,000 Sq-Ft gym that also functions as a storm shelter for a school.

- Assisted on design development drawings for a 2,500 Sq-Ft lakeside home.

DESIGN COMPETITIONS

Panther Den by the Real Estate Council of Greater Fort Worth Fort Worth, TX | 2024

Created a masterplan for the historic Butler Place adjacent to downtown Fort Worth in collaboration with local land developers, civil engineers, and landscape architects.

15 Minute City by Charette - Honorable Mention

Dallas, TX | 2023

A submittal to an international competition that re-imagines downtown Dallas, Texas as a new hub comprised of living, work, transportation, and public spaces.

AIA Central Region Student Competition

Kansas City, KS| 2021

A day long design charrette, with a team of four, for a sheltered event space that enriches the diversity and culture found in the Strawberry Hill Neighborhood.

NOMA Student Competition

Oakland, CA| 2020

A mixed-use community-owned development that integrates positive and welcoming community connections in collaboration with other architecture students.

LEADERSHIP + ACTIVITIES CONTACT

(214) 516-0503 mauricio_santamaria@yahoo.com linkedin.com/in/mauricio-santamaria

- 2019-2023 OU AIAS Member -2020-2021 NOMAS OU Chapter Treasurer

SCHOLARSHIPS + AWARDS

2022 - 2023

- President’s Honor Roll (Spring)

- Dean’s Honor Roll (Fall & Spring)

- Jane & Joe Buskuhl Endowed Scholarship

- James L. Nicholson Scholarship

- Michael & Mary Mahaffey Architectural Scholarship

- R.Boyd Gunning Scholarship

2021 - 2022

- Dean’s Honor Roll (Fall)

- Trousdale Endowed Scholarship

- Christopher C. Gibbs Endowed Scholarship

2020 - 2021

- President’s Honor Roll (Fall)

- Dean’s Honor Roll (Fall & Spring)

- Trousdale Endowed Scholarship

- Wayland Bowser Scholarship

- OU Sooner Heritage Award

2019 - 2020

- President’s Honor Roll (Spring)

- Dean’s Honor Roll (Fall & Spring)

- Trousdale Endowed Scholarship

- Micheal F. Price Scholarship

- Jane & Joe Buskuhl Endowed Scholarship

2018 - 2019

- Dean’s Honor Roll (Spring)

- OU Nonresident Merit Scholarship

- OU Nonresident Institutional Award

SOFTWARE SKILLS

- SketchUp

- Revit

- AutoCAD

- Rhino3D

- Cove.Tools

- Enscape

- Vray

- Lumion

- Illustrator

- Photoshop

- Indesign

- Lightroom

- Premiere Pro

- After Effects

02 RESUME

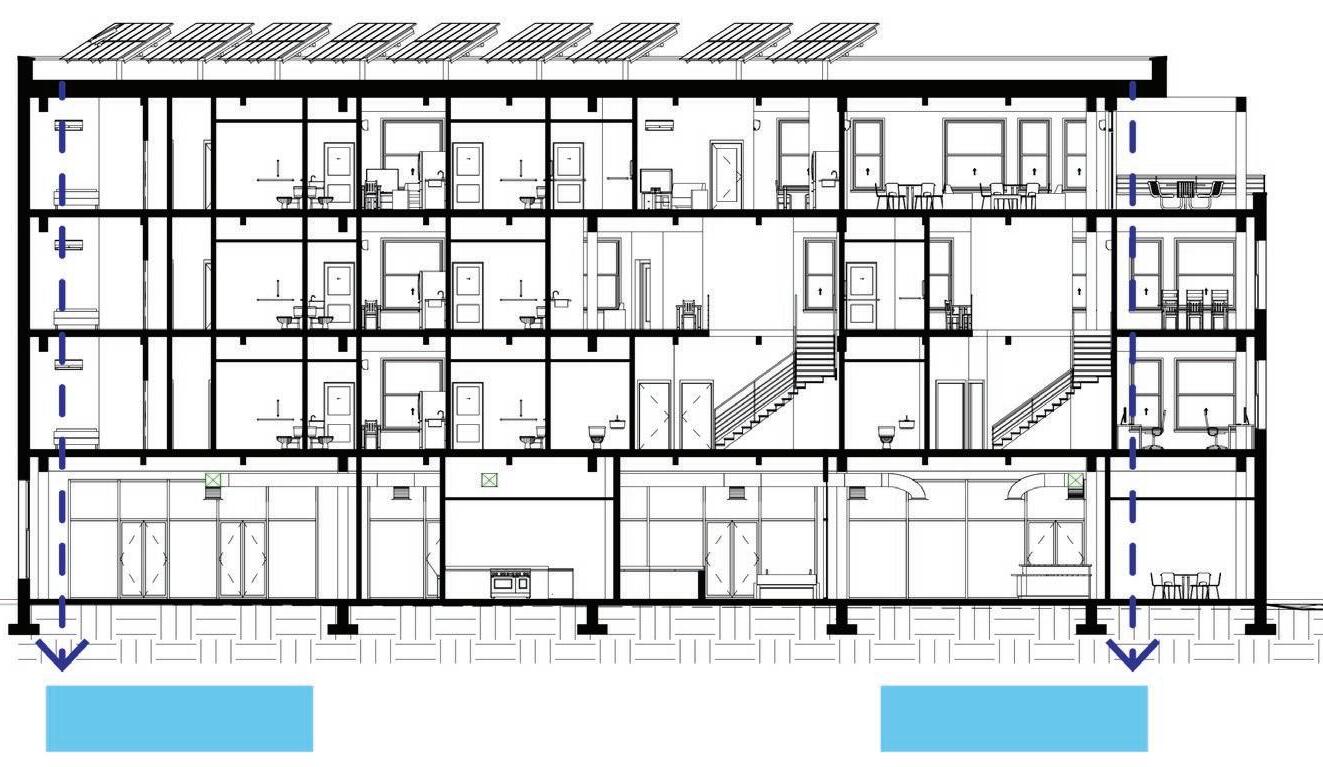
EYE INSTITUTE OF NEVADA

Las Vegas, Nevada| Design Studio X - Spring 2023

In a region that has low access to eye care and an increasing aging population, the Eye Institute of Nevada seeks to create a hub for clinical eye care, education, research, and community engagement. With the help of Las Vegas’ well known hospitality industry, digital infrastructure, global presence, and close proximity to the University of Nevada, the Eye Institute is equipped with 125,000 square feet of state of the art exam rooms, operating rooms, research labs, and classrooms.

03
02 PROGRAMS USED Enscape SketchUp Illustrator Revit Photoshop Cove.Tools EYE INSTITUTE OF NEVADA

Basement Level Plan

Below-grade parking, sunken courtyard, cafe, kitchen, and mechanical rooms

2nd Floor Plan

Classrooms, faculty offices, courtyard, billing/call center, vitreo-retinal, oculoplastics, neuro, and pediatrics exam rooms

1st Floor Plan

Ophthalmic ambulatory surgery center (ASC), auditorium, glaucoma, optometrists, refractive (lasik), and anterior segment (cataract) exam rooms

3rd Floor Plan

Research labs, executive offices, and roof terrace

04
EYE INSTITUTE OF NEVADA

Journey Map - Ophthalmologists

Ophthalmologist/Optometrist Resident Student/Technician Patient

Journey Map - Patient

The use of journey mapping helped visualize where users spent most of their time along with how they might feel in each space. Journey mapping in combination with bubble/adjacency diagramming, helped in determining how employees move throughout the building and increase efficiency by reducing travel distances.

05
Bubble Diagram Journey Map - Ophthalmologist Resident (Student)
EYE INSTITUTE OF NEVADA
Key
06 Section AA
Daylight Analysis
EYE INSTITUTE OF NEVADA
Section BB
Before Phase II - Additional 80,000 square feet of clinical and educational space After adding shading devices
07
EYE INSTITUTE OF NEVADA
Typical Operating Room
Typical Exam Room

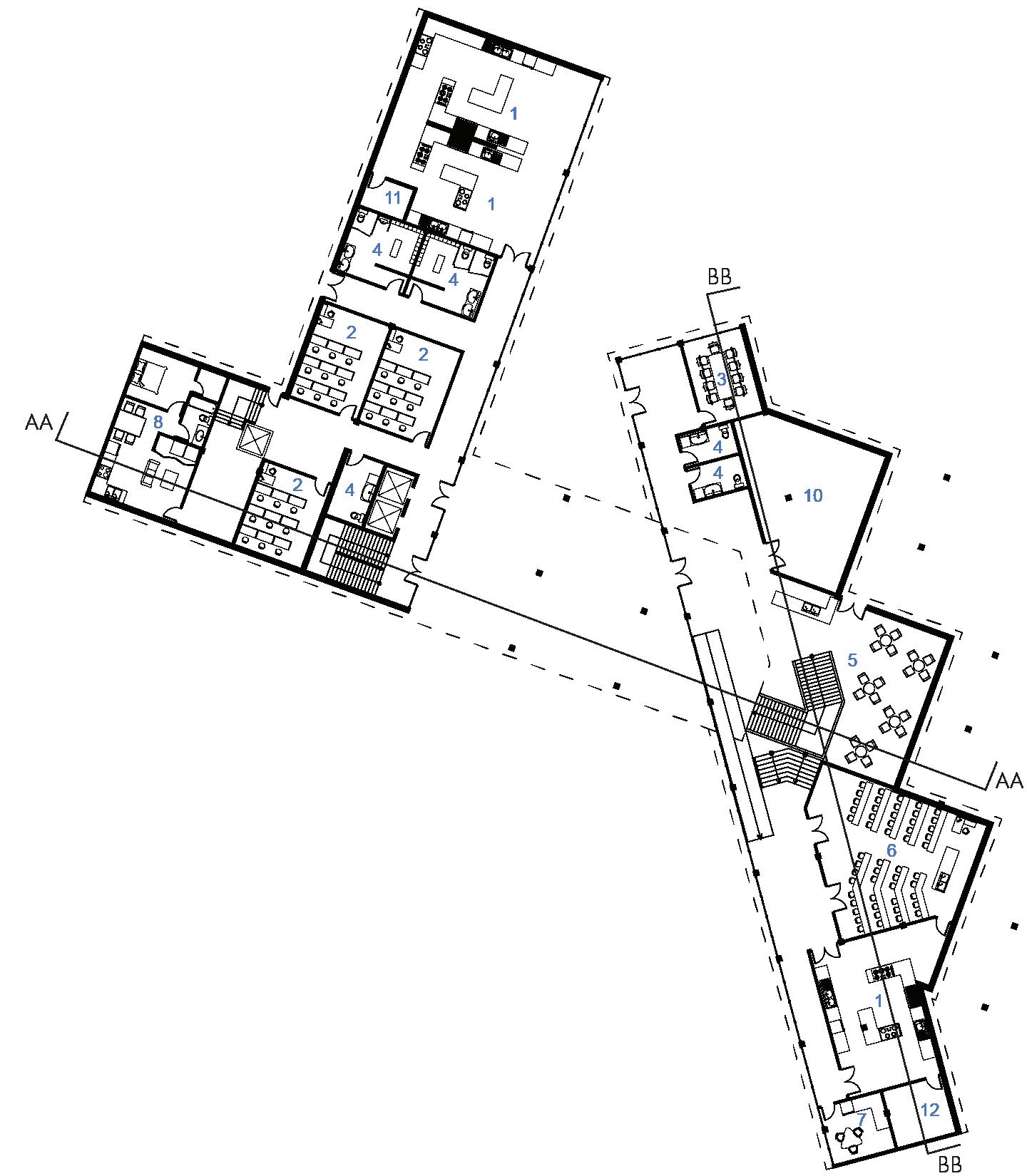
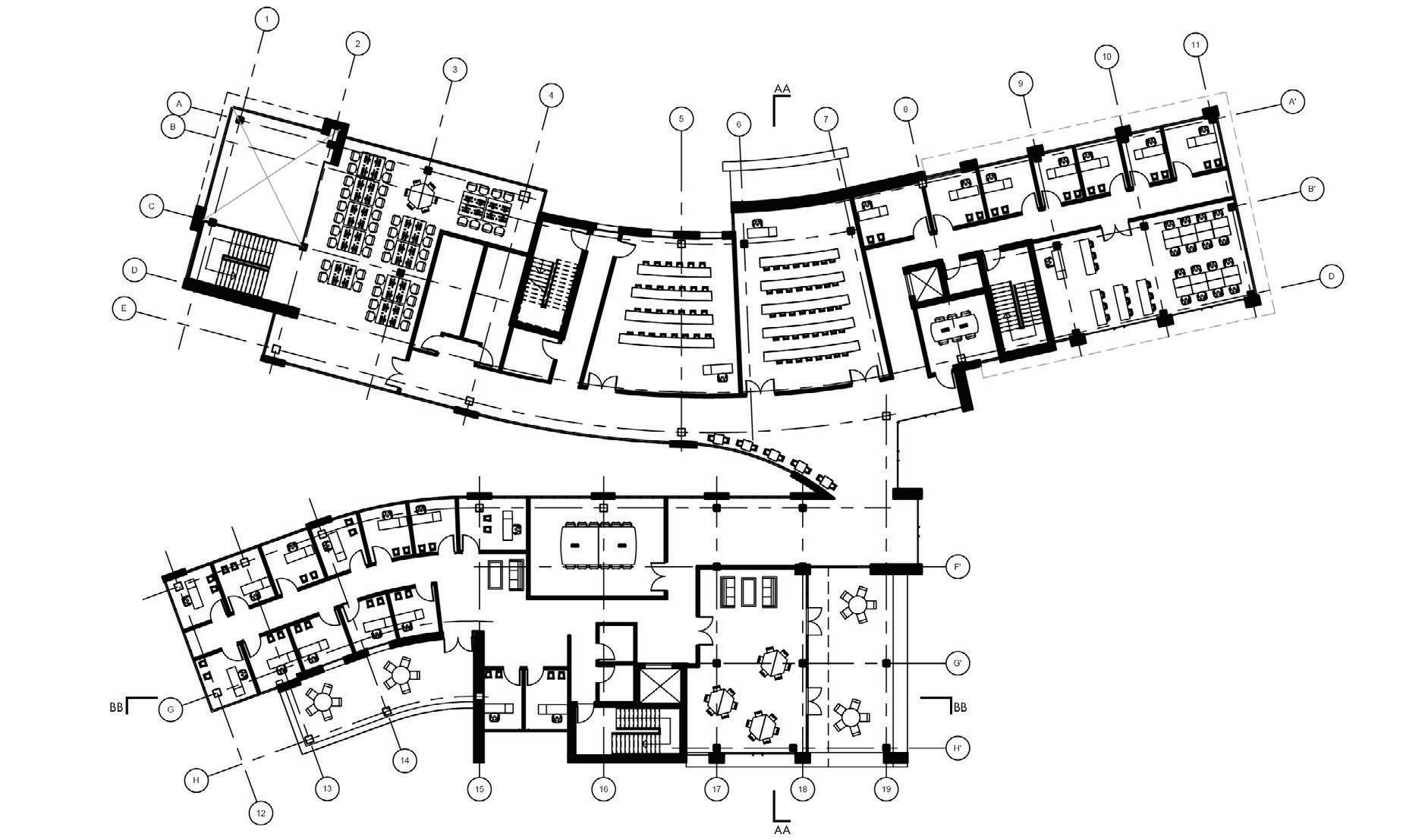
NATIVE NATIONS CENTER

Norman, Oklahoma | Design Studio IX - Fall 2022

The Native Nations Center seeks to provide a stronger connection between the University of Oklahoma, students, professors, and the 39 Native American tribes of the state. The building will serve the Department of Native American Studies and the Native Nations Center and will foster community engagement by incorporating public spaces that can be used by the programs and the university. In combination with traditional programing studies, AI image generator, Midjourney was used as a source of inspiration by using our design narrative to foster design ideas.

08
03 NATIVE NATIONS CENTER PROGRAMS USED Enscape SketchUp Illustrator Revit Photoshop MidJourney AI Bot

Using our concept statement, key worlds were used to create prompts that were imported into Midjounery which created the images above.

09
3rd Floor Plan
1st Floor Plan MidJourney - Concepts
2nd Floor Plan Prompt: Organic/Contemporary Building/Garden Space
NATIVE NATIONS CENTER
Prompt: Community at a Sage burning/Circular garden/Organic building
10 Section AA MidJourney - Finalized
BB
Section
The Community Space is combined with a kitchen to be able to host community events and has the ability to open up and overlook the yard. The incorporation of a learning staircase will be an attraction for students in between classes and help grow that relationship between users and space.
After a mass was established, new prompts were created and imported into MidJouney along with 3D views to aid in facade design.
Prompt: Thick brick walls with glazing/Community Gathering/Nighttime
NATIVE NATIONS CENTER
Prompt: Thick brick walls with glazing/Community Gathering/Native American/Ceremony

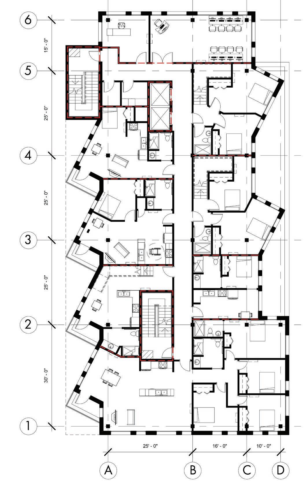
THE INTERSECTION

Norman, Oklahoma | Design Studio VII - Fall 2021

A multi-family housing project for ABLE Community-Based Services, a nonprofit located in Norman, Oklahoma with the goal to enable people with special needs to live normal lives. The design is centered around fostering community connections from Andrews Park towards the north and Downtown Norman towards the south. The mixed-use building also seeks to provide accessible and affordable housing for the organization and the surrounding neighborhood.

11
04
THE INTERSECTION PROGRAMS USED Enscape SketchUp Illustrator Revit Photoshop

Inspired by the city’s grid system rotating 25 degrees at this location, the building is composed of two Intersecting masses. The combination of these two angles creates a series of balconies on the west that step back to allow for shading on the lower floors. The building used beige brick to relate back to the surrounding government buildings and glass-fiber reinforced concrete panels because of their durability, ease of installation, and sustainability.

12
THE INTERSECTION

Water Conservation

With over 7,000 square feet of roof and balcony surface area, the building can collect an average of 24,000 gallons of stormwater a month. The building is equipped with two 1,500 cubic feet collectors located underground that decrease the amount of water going into storm drains and risk polluting local creeks and rivers.

13 Level 1 1' - 0 Level 2 16' - 0 Level 3 28' - 0 Level 4 40' - 0 Fo nda n -1 - 6 2 2" G AM OLUMN 0 G AM DRoof 53' - 0 OVER OW R N 3 PE O WATE STO AG6" 12" G AM SECON A Y CO MN 14" U AM S CONDA D A Wall Assembly |R-Value: 22| int ext 5/8” Gypsum Board 6” Metal Studs w/ Batt Insulation 5/8” Plywood Sheating Vapor Barrier 1/2” Rigid Insulation 1/2” Air Space 5/8” Brick Wall Assembly |R-Value: 26| int ext 5/8” Gypsum Board 6” Metal Studs w/ Batt Insulation 5/8” Plywood Sheating Vapor Barrier 2 5/8” Rigid Insulation 2 3/8” Air Space 1 1/4” Glassfibre Reinforced Concrete Panels (1’x6’ ea) Ext Floor |R-Value: 22| top bottom 1/2” Flooring 3/4” Rigid Insulation 5-PLY CLT Floor Panel Vapor Barrier 3/8” EIFS Insulation 1/2” Finish Balcony Floor |R-Value: 22| ext int 1/2”Decking 6” Air Space w/ Drain Vapor Barrier 5/8“ Sloped EIFS Insulation 5-PLY CLT Floor Panel Int 2-HR Wall Assembly | int ext 5/8” Gypsum Board (2) 4” Metal Studs 5/8” Gypsum Board (2) Roof Assembly |R-Value: 22| ext int 3/4” EPDM Roof Membrane 12 1/2” Rigid Insulation Vapor Barrier 5-PLY CLT Roof Panel Int Floor |R-Value: 10| top bottom 1/2” Flooring 3/4” Rigid Insulation 5-PLY CLT Floor Panel Vapor Barrier Stormwater flow Wall Section Northeast
Elevation Southeast Elevation
THE INTERSECTION
14 1st Floor Plan 2nd Floor Plan
3rd Floor Plan
Southwest
4th Floor Plan
Elevation
THE INTERSECTION
Northwest Elevation

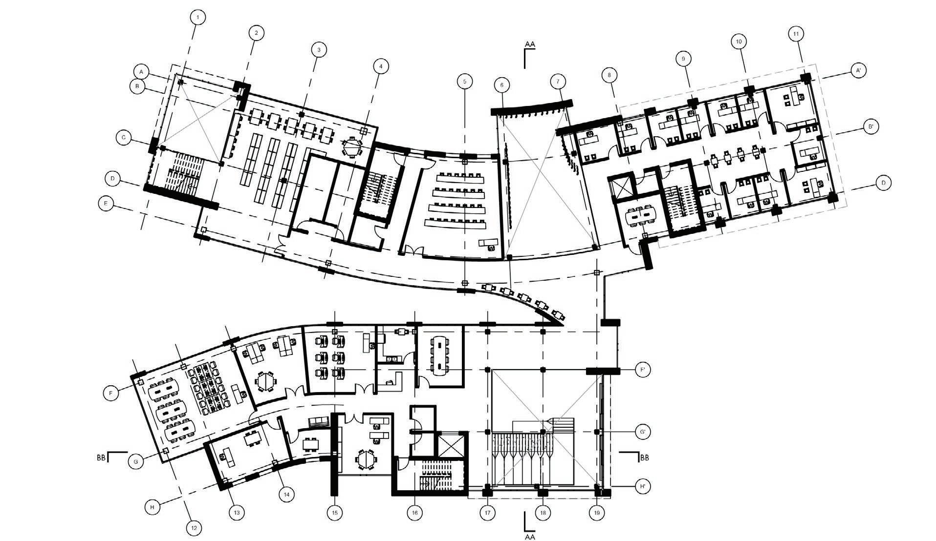
CULINARY ARTS SCHOOL

Norman, Oklahoma | Design V - Fall 2020

Located two miles south of the main part of campus, the Culinary Art School for the University of Oklahoma provides an academic setting for the culinary arts and study of sustainable methods for food preparation. It emphasizes the importance of food culture and its power on the surrounding community.

15
05
CULINARY SCHOOL PROGRAMS USED Vray Rhino 3D Illustrator Flow Design Photoshop DIVA Plugin

The first iteration experimented with the building’s orientation to direct summer winds towards the teaching kitchens, on the west wing, while creating an open space for a garden.

The second iteration also involved the building’s orientation but to capture the most sunlight during winter mornings to naturally heat the large rooms on the east wing.

16
CULINARY SCHOOL
Model #1 Model #2
17 Section AA
TEACHING KITCHENS CLASSROOMS MAIN OFFICE RESTROOMS CAFE/DELI LECTURE HALL WINE CELLAR GUEST HOUSE CAFETERIA HYDROPONIC ROOM WALK-IN FRIDGE UTILITY ROOM 1 2 3 4 5 6 7 8 9 10 11 12 1st Floor Plan
Section BB
CULINARY SCHOOL
2nd Floor Plan
elevations.
maximum cooling/heating
two iterations.
The building attempts to keep a close connection to the site by having roofs gently sloping down to meet the ground at different
The final design is a combination of two design iterations to obtain
benefits from the

The building is rotated 20 degrees to capture southwest winds during the summer to allow for natural ventilation. Daytime analysis helped determined which areas needed a reduction in window exposure to avoid excessive solar heat gain.

18
CULINARY SCHOOL
Natural Ventilation Daylight Analysis

CONSTRUCTION DOCUMENTATION

19
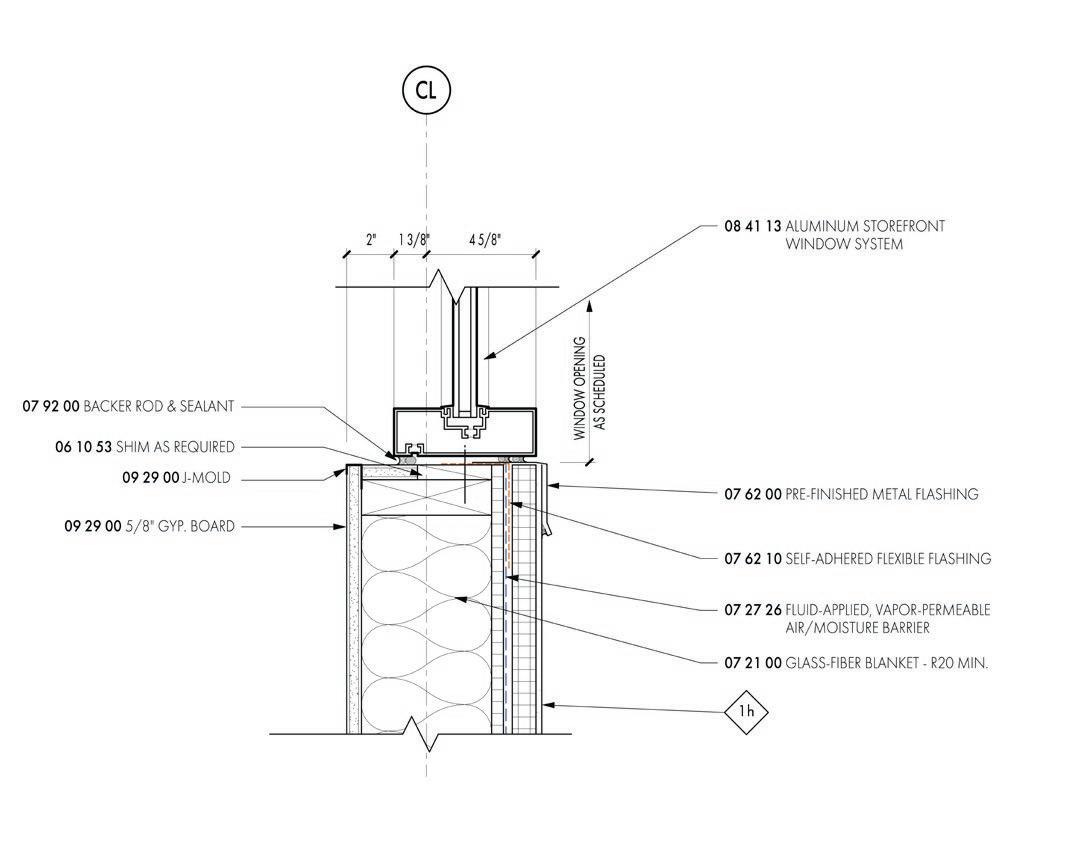
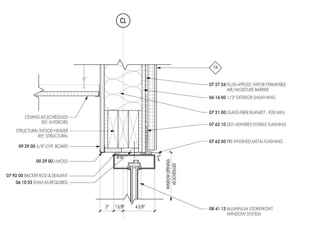
2023 - Detail drawings for a Type-5B construction building. 06 Wall Sections Wall Type Roof Type Section/Plan
01|EFIS Wall to T&G Decking 04|EFIS Wall at Foundation 02|Aluminum Window Header 03|EFIS to Aluminum Transition Header 05|Aluminum Window Sill 06|EFIS to Aluminum Transition Sill 07|Aluminum Window Jamb CONSTRUCTION DOCUMENTATION
Details

2022 - Programming study for 13 story, 165-unit mixed-use building near Downtown Denver.

2022 - Produced for home remodels/new builds proposals and pricing estimates.

20 RENDERINGS
08
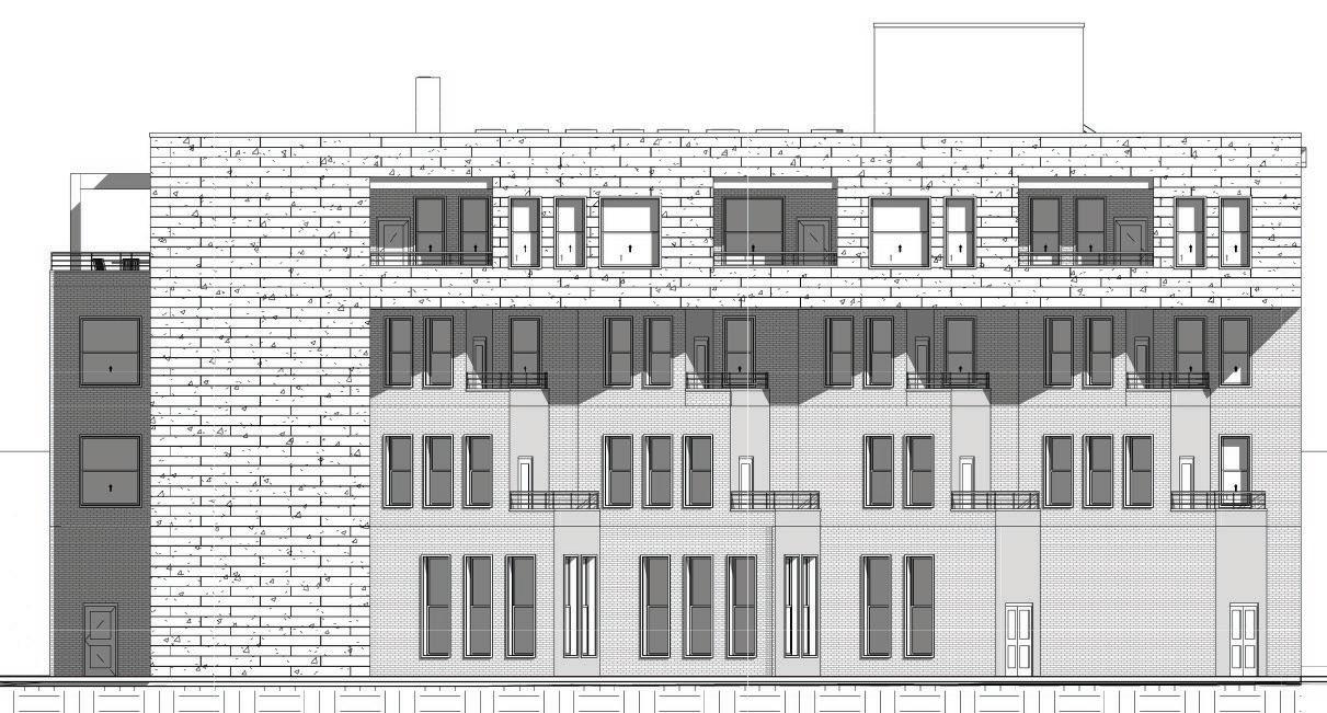
MULTI-FAMILY HOUSING
07 MULTI-FAMILY & RENDERINGS Ground Floor Typical Floor

UPTOWN OFFICE TOWER

21
2021 - Site
facade study for a 16-story, 350,000 Sq-Ft office building near Downtown Dallas, Tx. 09
and
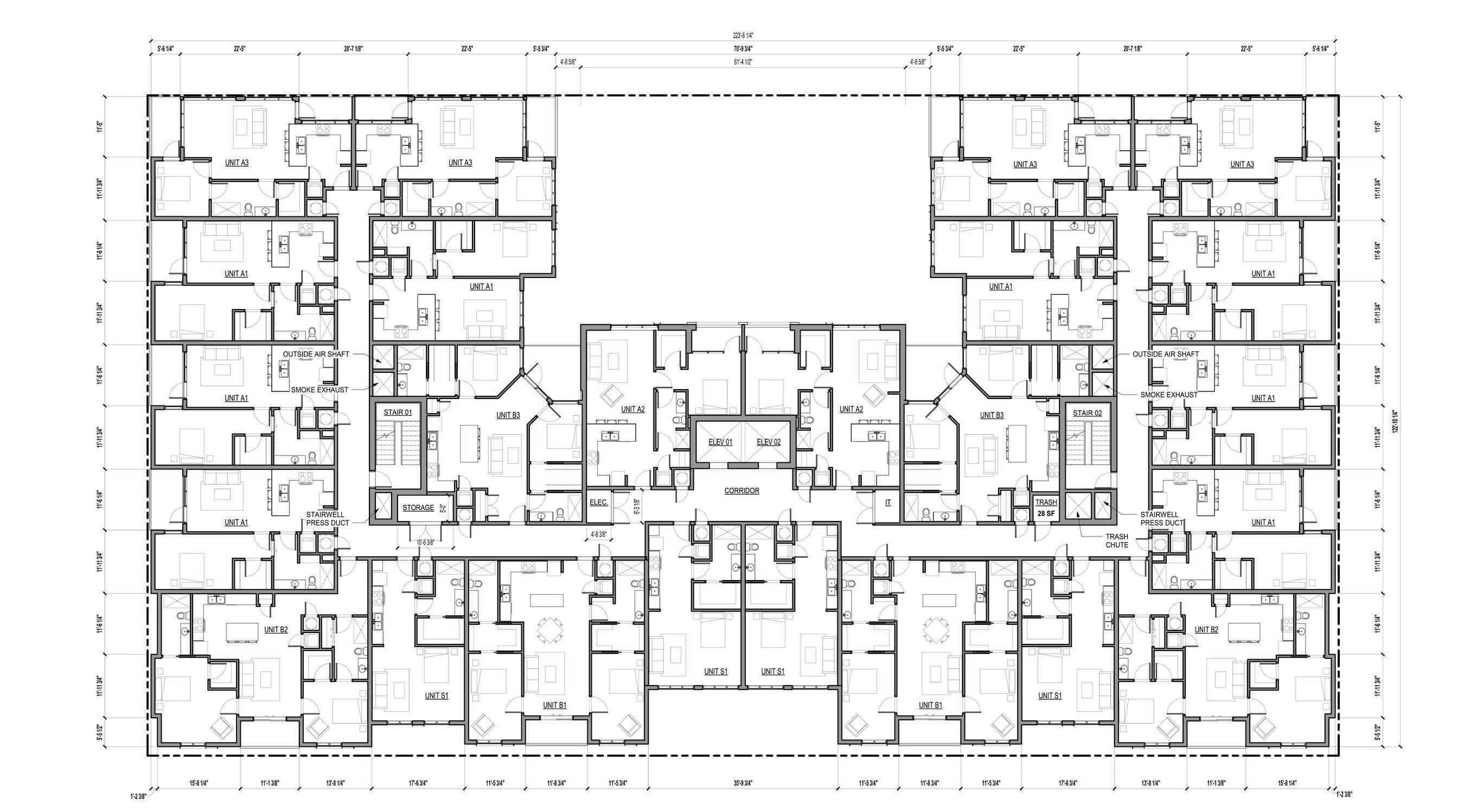
2021 - Programming and facade study for a 46,000 Sq-Ft, 120-unit university project in Lubbock, Tx. 10 2-Bed Unit Director’s Unit Rooftop Patio 4-Bed Unit 2nd 3rd 1st Community Room Community Room RA Unit Front Lobby Offices Community Kitchen Community Room Typical Floor Plan Zoning Maximum Site Plan OFFICE TOWER & STUDENT HOUSING
STUDENT HOUSING

PROPORTION STUDIES

2020 - Using a series of proportions to create spaces.

Using scrap wood cut down to long, narrow proportions to create a series of spaces while experimenting with light and shadows.

from pouring Hydro-Stone into a mold made from insulation board using proportions from the Wood Tower. Spaces were created within a 6” x 12” x 18” hydro-stone slab.

22
Floor Plan 2 Floor plan 1 Floor plan Sections Sections
Created
11
Wood Tower Hydro-Stone Slab
CREATIVE WORK
Negative Space (Casting Mold)

ART & PHOTOGRAPHY

Compilation of artwork and photography.

23
GRAPHITE | 2017 GRAPHITE | 2021
ART MUSEUM, RENZO PIANO PAVILION | 2023 LOU RUVO CENTER | 2023
KIMBELL GRAPHITE | 2019
| 2020 OIL PASTEL | 2019
OKLAHOMA CITY NATIONAL MEMORIAL | 2019 WATERCOLOR
ART MUSEUM | 2023 PEROT MUSEUM | 2022 CREATIVE WORK
KIMBELL
12

University of Oklahoma Gibbs College of Architecture Class of 2023

“A city is a place where a small boy, as he walks through it, may see something that will tell him what he wants to do with his life.”

Turn static files into dynamic content formats.

Create a flipbook
Issuu converts static files into: digital portfolios, online yearbooks, online catalogs, digital photo albums and more. Sign up and create your flipbook.
2024 - Design Portfolio by mauricio_santamaria - Issuu