Matt Blevins | Undergraduate Portfolio

Page 1

ARCHI TECT URE POR T

F OL I O

MATT

BLEVINS

DETROIT/MI PROJECTS
GLETA HEADQUARTERS | 3 Office, Fall 2021
DETROIT MUSEUM OF SPORTS | 15 Museum, Spring 2021
| 29
37
DETROIT CINEMA CENTER | 21 Research & Education, Spring 2022 OAKLAND ROW
Mixed-Use, Summer 2021 WHISKEY HARBOR DISTILLERY |
Culture & Leisure, Summer 2022

GLETA HEADQUARTERS

YEAR: Fall 2021 TYPE: Office

SITE: Detroit Riverfront, Detroit, MI

TEAM: Matt Blevins, Issa Daher

CONCEPT

Sustainability was the main focus of this project as we derived our initial form using cove.tool, which to gave us the massing concept to move towards a net-zero building. Experientiality was a goal to give users the ability to interact on the ground level with bypassers of the highly trafficked area around the riverfront.

DESIGN

The innovative design of the building is based on the use of a mass timber diagrid structure. This system was chosen to remove the necessity of columns from the floor plate and allow for a more flexible workspace. The building offers amenities such as an auditorium, cafe, and galleries.

5 | Project Description
GROUND LEGEND 01 LOBBY 02 GALLERIES 03 SERVICE 04 CAFE 05 AUDITORIUM 01 02 03 02 04 05 Plans | 6
7 | Urban Map
Urban Map | 8
1 CURTAIN WALL SECTION DETAIL 01 ALUMINUM SHADING PANEL 02 BOLTED SHADING PANEL BRACKET 03 8” BACK MULLION 04 TRIPLE-PANE GLAZING 05 DIAGRID STRUCTURE 06 RING-BEAM BEYOND 07 3’ GLULAM BEAM 08 2” CONCRETE TOPPING 09 7” CLT FLOORING 10 SUSPENDED ACTIVE CHILLED BEAM 2 3 4 5 6 7 8 9 10 15 FT. 11 FT. 9 | Structural Diagrams
Interior Perspectives | 10

MECHANICAL HIDDEN WITHIN CAP OF BUILDING INDIRECT NORTHERN LIGHT

MECH.
11 | East-West Section
LIGHTING
SOUTH/WEST FACADES
East-West Section | 12
DIRECT
FOR
SOLAR PANELS COVER ROOF AREA

DETROIT MUSEUM OF SPORTS

YEAR: Spring 2021 TYPE: Museum

SITE: Capitol Park, Detroit, MI

MISSION

Detroit Museum of Sports is dedicated to the achievements accomplished by the professional teams and athletes in the city of Detroit. Showcasing history through physical artifacts, photography, videography, and event spaces.

CONCEPT

The museum is located in the historic Capitol Park of downtown. This area allows for easy access between sporting venues and the museum. The design utilizes clusters of exhibits that ramp upwards allowing users to experience floor plates in an unorthodox sequence. The dynamism of the structure is created to mimic the flow and feel of a sporting event.

17 | Project Description
Conceptual Model | 18

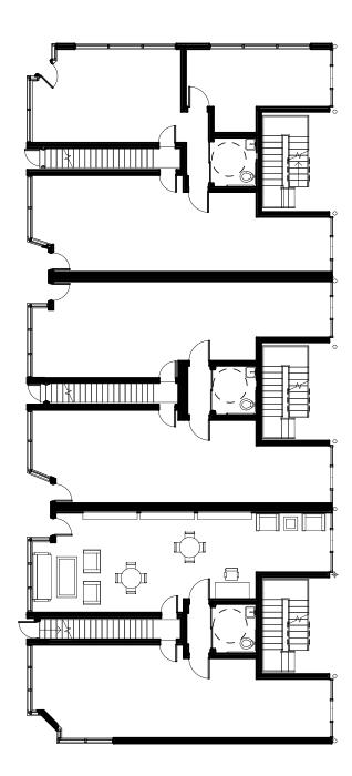
DETROIT CINEMA CENTER

YEAR: Spring 2022

TYPE: Research & Education

SITE: Detroit Riverfront, Detroit, MI

TEAM: Matt Blevins, Issa Daher

MISSION

The Detroit Cinema Center’s goal is to create an interactive community-oriented research center based around education and experiencing film from a director’s perspective. Our user narrative based on Christopher Nolan’s style of cinematography was the catalyst for our design concept.

CONCEPT

The design was derived from exploring intellectual, psychological, and unorthodox processes in Nolan’s films that creates a point of intersection between architecture and cinema. Storytelling through sight and sound, documentary-style lighting, and over-illumination gives the user a cinematic experience.

23 | Project Description
Site Axonometric | 24
25 | Plans
Section, Elevations | 26
SOUTH ELEVATION NORTH ELEVATION WEST ELEVATION

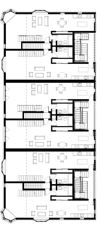
OAKLAND ROW

YEAR: Summer 2021 TYPE: Mixed-Use SITE: North End, Detroit, MI TEAM : Matt Blevins, Issa Daher, Caris Heminger

SITE

Located in the historic north end of Detroit, Michigan, The Oakland Row project was ignited by the development of a sculptural project known as the American Riad. The Riad which is sited at the rear of the row, is designed with Arabic motifs to signify the religious neighborhood’s movement towards a modern progressive environment.

DESIGN

For each residential unit, we designed loft spaces to give tenants an extra 100+ square feet in the 800 square foot unit. Our focus on sustainable strategies to keep costs low for the residential tenants enabled us to use a unique downspout pattern that gives residents runoff water from the roof. A Geothermal system is used for heating and cooling that will be located in the basement along with the cisterns.

31 | Project Description
01 02 03 04 05 06 07 LOFT LOFT LOFT LOFT LOFT LOFT COMMERCIAL FLOOR RESIDENTIAL FLOOR Plans | 32
33 | East - West Section
Interior Perspectives | 34

WHISKEY HARBOR DISTILLERY

YEAR: Summer 2022 TYPE: Culture & Leisure SITE: Whiskey Harbor, Port Hope, MI

SITE

Whiskey Harbor Distillery is sited at the edge of Lake Huron in Port Hope, MI. The site includes a beautiful landscape and a former channel used by bootleggers during prohibition. The land offers natural resources of timber and water capable of supporting a completely self-sufficient structure.

DESIGN

The distillery design was to revolve around the former bootlegger channel and the history of the area. A portal frame structure was used to adhere to the vernacular and pragmatic archetype of the city. The space leads the user towards a grand patio situated above the channel to experience the waterfront view and access to Lake Huron.

39 | Project Description 3/4" 1'-0" 1 ROOF
DETAIL 2"x 6" TIMBER PURLIN 2"X12" LVL RIDGE BEAM 12"X 15" GLU-LAM PORTAL FRAME RAFTER 2.5" X 5" ALUMINUM MULLION 1/2" DOUBLE PANE TEMPERED GLAZING RIGID INSULATION RIDGE CAP PRE-FORMED ALUMINUM RIDGE FLASHING
Structural Model | 40
CONC. FOOTING 2X6 TIMBER PURLIN GLU-LAM PORTAL FRAME
41 | Entrance Perspective
Exterior Perspective, Plan | 42 DN DN DN 1 A6 MECHANICAL/ STORAGE WOMEN'S MEN'S BARREL ROOM PATIO VESTIBULE STILL ROOM WHISKEY SHOP LOUNGE LOUNGE WHISKEY SHOP CONT. SHIPPING & RECEIVING TASTING BAR N 1/8" 1'-0" FIRST FLOOR DISTILLERY

Turn static files into dynamic content formats.

Create a flipbook
Issuu converts static files into: digital portfolios, online yearbooks, online catalogs, digital photo albums and more. Sign up and create your flipbook.