Portfolio 2024

Page 1

2

Mathys RINGARD FORMATIONS

Paris, FRANCE

mathys.rgd@gmail.com

+33 6 95 00 29 84

COMPÉTENCES

Langues

Français - Langue maternelle

Anglais - Niveau B2

Espagnol - Niveau B1

Permis B

Architecture

Revit

Autocad

Archicad

Sketchup

Enscape / Twinmotion

Bureautique

Microsoft Office

Suite iWorks

Graphisme / Vidéo

Photoshop

InDesign

Illustrator

Premiere Pro

CENTRES D’INTÉRÊTS

2010 - 2016

Baccalauréat Économique & Social Avec Mention Spécialité Maths - Option Arts Institut Saint Dominique de Mortefontaine

2016 - 2019 Licence d’architecture

ENSA Paris La Villette

EXPÉRIENCES PROFESSIONNELLES

Sept. 21 - à Auj.

Paris

Fév. 19 - Mars 19

Lille

Fév. 18 - Mars 18

Drancy

2015 - 2017

Senlis

Juin 2014

La Chapelle

Juin 2014

Béthune

2019 - 2020

Master 1 - Architecture et design à Montréal

Participation au concours international de design BRP

UQAM - Université du Québec À Montréal

2020 - Juillet 2021

Master 2

Diplôme d’État Architecte

ENSA Paris La Villette

PietriArchitectes , CDI - Chef de projet junior et Référent Revit

• Conception de projets de logements collectifs, en région IDF et PACA, de l’esquisse jusqu’au dépôt du PC.

• Participation à des concours de logements collectifs en région IDF et à La Réunion.

• Réalisation de DCE de logements collectifs et de bureaux.

• Référent Revit : Assistance auprès des collaborateurs, création de familles et de gabarits pour améliorer la méthodologie et la productivité sur Revit au sein de l’agence.

• Référent Perspectives : Réalisation de perspectives pour l’agence en concours et PC.

MAES Architectes & Urbanistes, Stagiaire

Participation à un DCE de logements collectifs sur un projet de réhabilitation, visites de chantier et apprentissage de Revit.

Cassinari Bâtiment, Stagiaire

Découverte du monde du chantier dans une entreprise indépendante pluridisciplinaire.

Scouts & Guides de France, Trésorier

Trésorier du groupe compagnons, réalisation et financement d’un projet humanitaire.

GP Architecte & Urbanistes, Stagiaire

Découverte du métier au sein d’une agence d’architectes et d’urbanistes.

Gauthier LEMAY Architecte, Stagiaire

Découverte du métier chez un architecte libéral.

Montage vidéo Scoutisme Natation
Voyages
3

L’ÎLOT JARDIN p 6-7

PARC DU BROUAZ p 8-9

logements collectifs - PC logements collectifs - PC

CENTRE MÉDICAL p 10-11

PORTES DE L’OCÉAN p 12-13

ERP - PC Logements collectifs - Concours

PROJETS D’AGENCE

01 02 03 04
4
06 07 08 AU CŒUR DE LA FORÊT p 16-19 L’HABITATION COLLECTIVE p 20-21 LES MARRONNIERS p 22-23 PROJETS D’ÉTUDES logements collectifs - DCE logements collectifs - PFE logements collectifs - M1 groupe scolaire - L2 05 LA PRESQU’ÎLE p 14-15 5 portfolio mathys ringard

L’ÎLOT JARDIN

Ormesson-sur-Marne, France

PietriArchitectes - Lauréat et Permis de construire - 2023 70 logements - SDP 4378m2

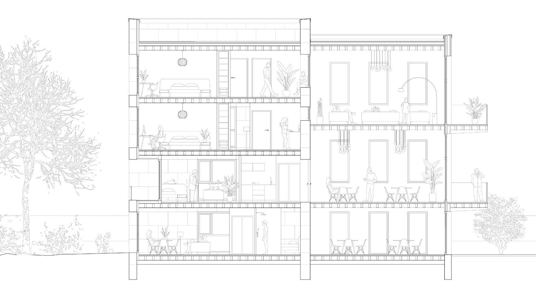
Implanté dans la ZAC de la Plaine des Cantoux à Ormesson-sur-Marne, le projet comprend 350 logements répartis sur différents lots. Nous avons fait le choix de diviser notre îlot de 70 logements en 7 bâtiments permettant une mixité de typologie d’habitat mais aussi de façades. Chacun a son propre langage et se démarque de part sa hauteur, ses matériaux et son écriture architecturale. Ainsi, depuis la sente, le linéaire bâti parait moins imposant et rythme les façades de l’espace public. Le projet s’inscrit dans une démarche bioclimatique et respecte de nombreux labels environnementaux. Les matériaux choisis sont bio-sourcés et la structure en mixte bois-béton. Le cœur d’îlot et les toits terrasses végétalisés créent des espaces de rencontre entre les habitants.

01
6
Axonométrie Plan d’un étage courant
N 7 portfolio mathys ringard
Façade Nord

PARC DU BROUAZ

Annemasse, France

PietriArchitectes - Permis de construire - 2024 45 logements - SDP 3200m2

Situé sur la commune d’Annemasse (74) à proximité de la Suisse, le Projet du Brouaz comprend 45 logements spacieux. Les balcons aux formes organiques rythment la façade et permettent un vrai prolongement extérieur, offrant aux habitants une vue dégagée sur le Mont Blanc. Les garde-corps en tôle perforée préservent l’intimité tout en évitant d’obstruer la vue sur le parc, depuis l’intérieur des logements. Ce bâtiment à la forme disgracieuse est le résultat d’une multitude de contraintes : une nappe souterraine limite l’emprise du parking et nous a forcé à surélever le bâti - la réglementation très sevère sur l’emprise au sol et la pleine terre - le passage de réseaux sous le terrain.

02

8
Façade Nord Est Détail de balcon
N 9 portfolio mathys ringard
Plan d’un étage courant

CENTRE MÉDICAL

L’Isle-sur-la-Sorgue, France

PietriArchitectes - Permis de construire - 2023 Bureaux et ERP - SDP 1066m2

Ce projet, situé à l’Isle-sur-la-Sorgue, a été conçu pour un groupe d’ophtalmologues. Il comprend un local orthodontiste et deux commerces au rez de chaussée, et un centre d’ophtalmologie à l’étage. Le projet a fait l’objet de nombreuses recherches au niveau des façades. L’idée retenue s’inspire du champ de vision : la façade est creusée créant ainsi des alcôves extérieures pour chaque bureau. Contraints par une certaine hauteur à l’égout nous avons choisi d’intégrer une voûte en toiture, permettant de créer un étage supplémentaire qui accueillera les salles de conférence et de réception et la terrasse. Cette voûte rappelle également les roues à aubes typiques de la commune, dont le dessin est repris sur façade est. Les nombreuses réunions de travail avec les professionnels de santé nous ont permises de cibler leurs besoins et d’adapter les plans, afin de faciliter leur quotidien.

03
10

• Creuser la façade pour créer des alcôves extérieures pour chaque bureau

• Le champ de vision comme inspiration

Plan de principe bureaux

Façade Ouest Façade Est
11 portfolio mathys ringard

PORTES DE L’OCÉAN

La Réunion, France

PietriArchitectes, Urban Architectes - Lauréats - 2023 69 logements - SDP 4872m2

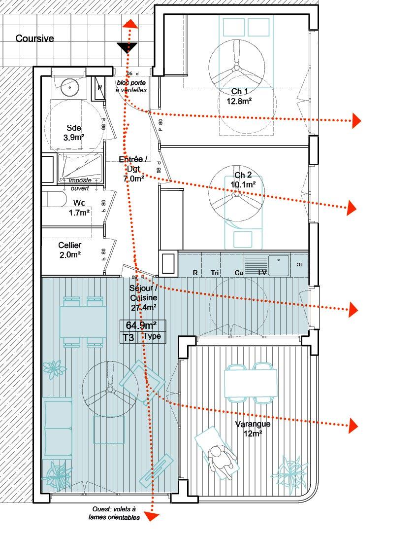
Conçu en collaboration avec Urban Architectes, ce projet de 69 logements est situé dans la ville du Port (974) à La Réunion. Il s’insère entre l’océan et la montagne et fait partie d’un projet de développement et de requalification des espaces portuaires de l’île. Les trois bâtiments sont implantés de façon à optimiser les vues sur l’océan et sur le cœur d’îlot végétalisé. Au rez de chaussée, le socle actif comprend des commerces qui dynamisent le quartier en créant des lieux vivants de rencontre, tout en faisant le lien entre espace public et privé. Aux étages, l’intégralité des logements du T2 au T5 sont traversants et disposent de séjours doubles orientés et d’une varangue. Cette dernière est une véritable pièce à vivre et un prolongement extérieur en étant protégé du soleil et des intempéries.

04
Perspective réalisée en externe 12

Creuser un cœur d’îlot vert généreux

Percées depuis la ville vers l’océan

Sculpter le volume pour s’intégrer au contexte

Plan type d’un T2 Plan type d’un T3
13 portfolio mathys ringard
Coupe Océan

LA PRESQU’ÎLE

La Seyne-sur-Mer, France

PietriArchitectes - DCE - 2023/2024

3 bâtiments, 105 logements - SDP totale 6370m2

Le projet s’insère dans un grand terrain arboré sur la commune de la Seyne-sur-Mer (83) à quelques centaines de mètres de la mer méditerranée. Il forme un ensemble mixte d’habitat individuel sous forme de villas, et collectif de sept bâtiments. Trois d’entre eux sont réalisés par PietriArchitectes. Après une interruption d’une décennie suite à l’obtention du permis de construire, le DCE a été réalisé cette année. Les problématiques actuelles n’étant plus les mêmes et les prestations de la maitrise d’œuvre ayant évoluées, elles nous ont permis de retravailler les plans des appartements et des espaces extérieurs. Des détails techniques ont été réalisés afin d’illustrer nos intentions architecturales en témoignent les descentes d’eau cachées dans des faux poteaux des balcons.

05

Plan détaillé d’un T3 14

Détail de terrasse RDC

Détail de balcon

15 portfolio mathys ringard

AU CŒUR DE LA FORÊT URBAINE

Saint Denis, France

Situé au sud de la ZAC Confluence de Saint Denis (93), ce projet prend forme au bord d’un parc boisé. Il accueille un bâtiment de bureaux, une école culinaire à l’Ouest et 190 logements à l’Est, de l’individuel au collectif. L’emplacement en forêt constitue un cadre de vie idéal, dans un environnement urbain dense comme Saint-Denis. C’est pourquoi, l a volonté principale de ce PFE était d’amener la nature au cœur du projet, et de se concentrer sur la qualité de l’habitat. Ainsi, on retrouve différentes typologies qui permettent une mixité générationnelle , de la maison en bande à la tour, en passant par les plots, ainsi que la résidence étudiante. Les espaces communs et services répartis au sein de l’îlot favorisent la rencontre entre voisins. Une attention particulière a été portée à la qualité des logements en travaillant la spatialité, la matérialité, les vues, ou l’évolutivité. L’emplacement des bâtiments et les jeux de hauteurs maximisent l’ensoleillement et assurent un maximum de vues sur le parc. La structure poteaux-poutres permet aux usagers de faire évoluer leur logement selon leurs besoins. Le choix du bois et de matériaux bio-sourcés permet aux bâtiments de s’intégrer de façon harmonieuse et dans le respect de leur environnement.

06
16
Plan d’un étage courant
N 17 portfolio mathys ringard
Coupe perspective

Résidence

Végétal et minéral

Maisons en bande

Appartements en tour

Appartements en plot

Immeuble-villas

Typologies de logement

Axes & Ensoleillement

Plan d’un T4 duplex Niveau haut - Plot Plan d’un T4 duplex Niveau bas - Plot
culinaire
Bureaux Ecole
et
N N 19 portfolio mathys ringard
étudiante
colocations

L’HABITATION COLLECTIVE

Brétigny-sur-Orge, France

Perrine Bellin - Jerôme Vinçon

Master 2 - ENSAPLV - 2020

Réalisé avec Olivier Larere et Matthieu Mancel

Situé dans la ZAC de Brétigny-sur-Orge (91), ce projet de logements avait comme objectif de repenser notre façon d’habiter et notre manière de construire. Par groupe de 3, nous avons fait le choix d’utiliser des matériaux bio sourcés et nous avons défini une autre manière d’habiter, inspirée des coopératives suisses et suédoises. De ce fait, nous avons scindé les plots en différents espaces : D’une part les piliers, construits en pierre de taille, composés de pièces privées telles que les chambres, salles de bain, coins détente et cuisines d’appoint. Et d’autre part de grandes pièces communes très ouvertes sur l’extérieur, en structure bois, comprenant de grandes cuisines, salons, coins repas et bureaux partagés. Outre les plots, nous avons ajouté sur le terrain deux autres typologies plus traditionnelles tels que l’habitat intermédiaire en barre ou la maison en bande.

07

20

Plot en coopérative Barre intermédiaire

Maison en bande

Typologies de logement

Axes & Ensoleillement

Hypothèse choisie Plan d’un étage courant Coupe détail d’un plot
N 21 portfolio mathys ringard

LES MARRONNIERS

Romainville, France

Fanny Roze - Jonathan Bruter Licence 2 - ENSAPLV - 2018

Réalisé avec Matthieu Mancel

Après avoir visité et analysé plusieurs écoles, nous avons travaillé en binôme sur un groupe scolaire situé à Romainville (93). Un des objectifs du projet était de s’intégrer au parc, sans occuper sa totalité et en libérant la perspective sur Paris. Ainsi nous avons utilisé la déclivité du site pour y insérer une partie du bâtiment composé de 4 niveaux. Le premier, semi-enterré comprend l’administration, éclairée par des patios, ainsi que le gymnase. Le toit de ce dernier crée ainsi une cour pour les écoles maternelle et élémentaire et le restaurant scolaire se trouvant sur les deux niveaux supérieurs. Le bâtiment forme 4 ailes qui sont alignées par rapport au pavillonnaire ou à la pente, mais aussi par rapport à l’orientation et à la vue.

08
22

Stratification du sol

Implantation de l’aile primaire

Ajout de l’aile maternelle

Extrusion dans la strate

Plan R-1 Plan RDC Plan R+1 Coupe Transversale
N N N 23 portfolio mathys ringard
24

Turn static files into dynamic content formats.

Create a flipbook
Issuu converts static files into: digital portfolios, online yearbooks, online catalogs, digital photo albums and more. Sign up and create your flipbook.