Mateusz Lipert 2024

Page 1


PROFIL ZAWODOWY

Asystent architekta z doświadczeniem w projektowaniu i realizacji przestrzeni mieszkalnych oraz komercyjnych. Posiadam wiedzę na temat materiałów wykończeniowych, obecnych trendów wnętrzarskich i ergonomii. Ścisła współpraca z klientem, to mój klucz do stworzenia projektu dopasowanego do jego oczekiwań i potrzeb. Aktualnie poszukuje pracy w obszarze szeroko pojętego projektowania architektonicznego która pozwoli mi na rozwój moich kompetencji i umiejętności oraz zdobywanie kolejnych doświadczeń, ale również realizację wielu kolejnych, ciekawych projektów.

EDUKACJA

Magister Achitekt

WSPiA

2023 - 2024

Uzupe ł nienie ró ż nic programowych, obrona pracy magisterskiej

MATEUSZ LIPERT

asystent architekta

+48 695 987 850 mateuszlipert@gmail.com

https://tinyurl.com/5n79rww8

DO Ś WIADCZENIE

Architekt wnętrz

Freelance

Projektowanie wnętrz mieszkalnych i usługowych Wykonywanie inwentaryzacji, układów funkcjonalnych, rysunków technicznych, modeli 3D, wizualizacji. Nadzory prac wykończeniowych, kosztorysowanie, rozplanowanie robót.

Zrealizowane projekty wnętrz mieszkaniowych. Zrealizowany projekt wnętrza apteki z ścisłą współpracą z inwestorem, branżystami. Współpraca przy rozplanowywaniu stoisk cateringowych podczas Igrzysk Europejskich 2023.

Asystent architekta

Pracownia AKM

11.2022 – obecnie

08.2022 - 02.2023

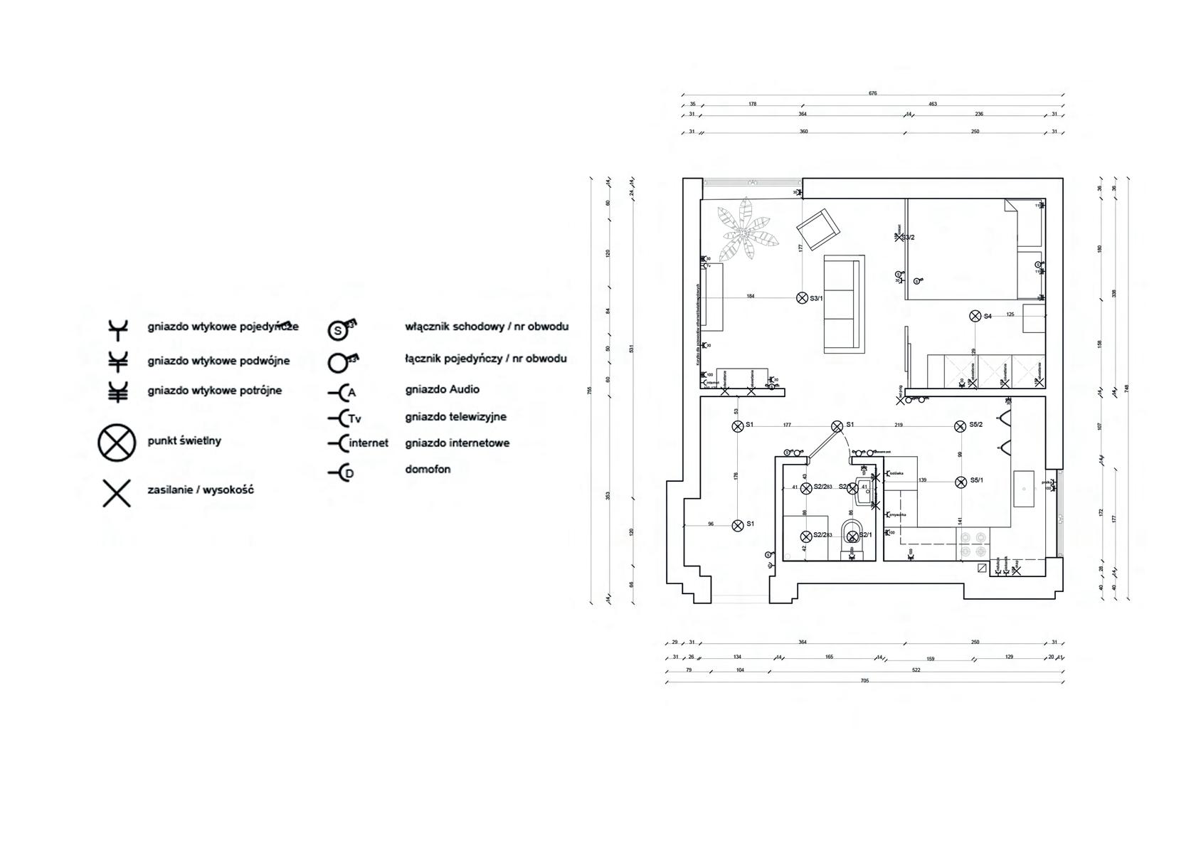
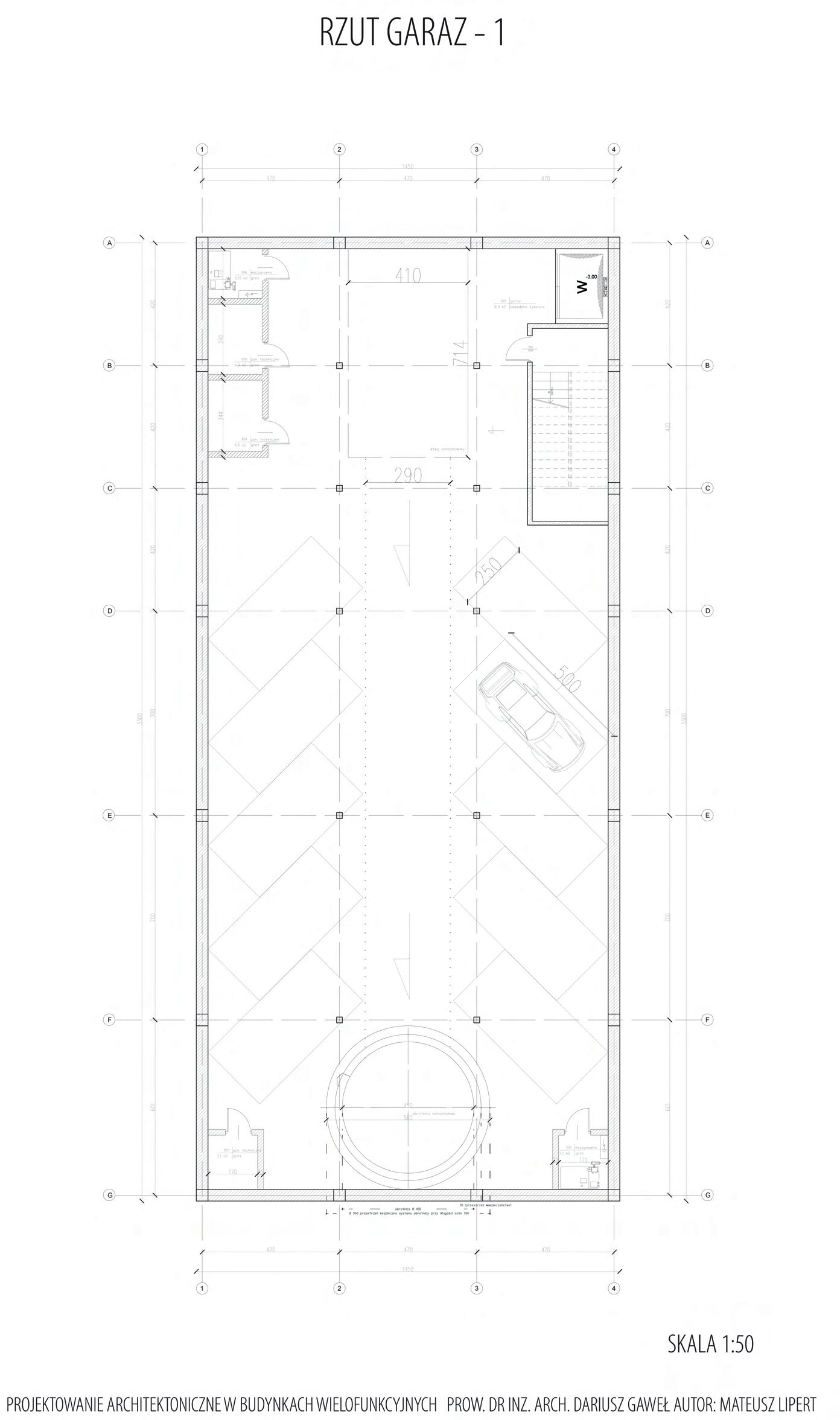
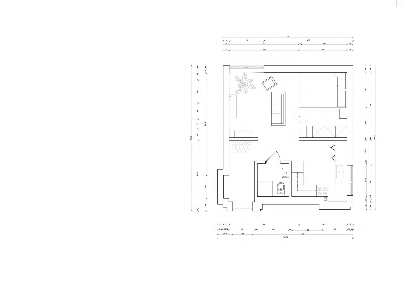
Wykonywanie dokumentacji na potrzeby projektów budowlanych i wykonawczych obiektów mieszkaniowych wielorodzinnych - ArchiCAD BIM. Modelowanie w technologii BIM obiektów istniejących jak i projektowanie na potrzeby konkursowe.

Menadżer

Pętla Sklep

Analiza sprzedaży, realizacja promocji i zamówień, prowadzenie księgowości sklepu.

Szkolenie kasjerów, ustalanie grafików, kontakt z klientem b2b, obsługa oprogramowanie pc-market.

09.2016- 08.2022

Politechnika Lubelska

Magister Architekt 2020 - 2021

Inżynier Architekt

Politechnika Lubelska

2016 - 2020

J Ę ZYKI

Angielski - B2 Niemiecki - A1

ZAINTERESOWANIA

Modelowanie parametryczne Architektura współczesna

PROGRAMY

ArchiCAD - poziom średniozaawansowany

AutoCAD - poziom średniozaawansowany

Photoshop/Illustrator - poziom podstawowy

Sporządzanie dokumentacji technicznej

Umiejętność pracy w zespole

Znajomość prawa budowlanego

SketchUp - poziom zaawansowany

Vray - poziom średniozaawansowany

Revit, Rhino- poziom podstawowy

Znajomość trendów w projektowaniu

Organizacja pracy

Umiejętność rozumienia potrzeb klienta

Lublin, 2020

Praca dyplomowa

MUZEUM FOTOGRAFII W LUBLINIE

Politechnika Lubelska Wydzial Budownictwa i Architektury Praca dyplomowa inzynierska Muzeum Fotografii w Lublinie
Promotor: dr hab. inz. arch. Jan Wrana prof PL , Rok opracowania 2020
Autor: Mateusz Lipert

Projekt

Lublin, 2019

Warszawa, 2019

Turn static files into dynamic content formats.

Create a flipbook
Issuu converts static files into: digital portfolios, online yearbooks, online catalogs, digital photo albums and more. Sign up and create your flipbook.