
TABLE OF CONTENT:
"The Harmony - Symphony of Tones" _mixed-used district 6-9
"Breathable house" _private house 10-14 studies
"Revalorization and restructurization of late modernist complex" _master thesis 15-19
"Museum of art & ecological awerness" _museum 20-23
"Eco-village 2075" _estate 24-27
"Revitalisation of Podgorze district in Wałbrzych" _urban plan 28-31
"The spatial plan for Kamień Pomorski" _spatial design 32-33


12/2024 internship
_location
"The Harmony - Symphony of Tones" _mixed-used district Amsterdam _The Netherlands
team: Mateusz Baranowski, Powerhouse Company
The Harmony is located in Amsterdam, within the dynamic Zuidas district. The project acts as a vital link between Zuidas, a prominent business hub, and the emerging residential neighborhood of Ravel. The strategic placement ensures excellent connectivity and facilitates a seamless integration of living, working, and leisure activities, creating a vibrant urban environment.
_idea
The project aims to foster a harmonious coexistence of diverse functions: office spaces, commercial facilities, and affordable housing. The concept is articulated through two distinct yet interconnected architectural elements—The Canyon and The Coast. These elements represent contrasting themes that together establish a unified architectural ensemble.
_form shaping
Een korrelgrootte passend bij haar omgeving


Een korrelgrootte passend bij haar omgeving Architectonische gebaren voor
The Harmony comprises two city blocks, each characterized by its unique theme and form. Together, these forms create a balanced interplay of textures, volumes, and perspectives, emphasizing a sense of place and identity. The grid layout is designed to respect and respond to the surrounding urban fabric, while new passages enhance connectivity and pedestrian flow between the Zuidas and Ravel districts. Iconic architectural gestures contribute to the project's distinctive identity and its role as a landmark within the cityscape.
Gershwin sequentie van specials
2. Optimizing layouts to meet functional and spatial requirements,
3. Designing layouts for apartments in both the residential tower and the social housing units,
4. Working on facade designs, focusing on aesthetics, materiality, and integration with the overall vision.

gebaren voor





1. Modeling buildings using Building Information Modeling (BIM) software to ensure precision and collaboration.
Nieuwe doorgangen slaan verbindingen
Nieuwe doorgangen slaan verbindingen




The Canyon op de hoek van de Maurice Ravellaan en de Beethovenstraat





Gevels Coast Materiaalstudie
Architectonische gebaren voor iconische uitstraling
city blocks, two themes



Nieuwe doorgangen slaan verbindingen
grid size appropriate to its surroundings

gestures for iconic appearance
Gevels Canyon Materiaalstudie


passages make connections


Competitie januari 2024

Gevel met diepte en detail aan de Beethovenstraat met herkenbare bogen in de plint

11/2023 competition "Breathable house" _private house Dubai _UAE
team: Mateusz Baranowski, Maja Stankowska
_back to the roots
It is stated that nowadays residential buildings due to their large amount of CO2 emission are responsible for most of the carbon footprint in the UAE. However, it is also believed that traditional houses of the UAE are the most sustainable buildings with the best thermal performance. We believe that sometimes in order to move forward you need to take a step back and realize that all the answers you’re desperately looking for are already there, standing on the old streets or on the dusty shelves of our bookcases.
_courtyard typology
Taking that into consideration, we’ve chosen a courtyard typology which resembles a vernacular way of dividing spaces in the traditional Emirati house. The division between public and private life is an essential element of all Islamic communities so our main aim was to provide the degrees of privacy within the house. From the most exposed and representative zones for family guests and servants to the peaceful sanctum for family members. As it was traditionally designed, our house is conceived from the inside outwards.
_private microclimate
It is the inside that establishes attractive and decorative center of the building, the external facades are kept relatively modest and plain. We aim to highlight the importance of the courtyard which was always the heart of everyday’s life as well as the center of social events. Another advantage of such a typology is a possibility of providing a natural daylight and air flow to each of the spaces that need it and creating a hidden garden inside the house with its own microclimate. The garden provides not only a private oasis for the family but also acts as a natural cooling system.
_natural air flow
The free airflow is provided not only by the courtayrds, it is strenghten by the presence of a pool extended over the entire length of the house, dividing it into two parts: the family suits and the public zones. The breathable house Our proposal creates a composition of indigenousness with the fresh breeze of modernity. We aimed to maintain the vernacular spirit and enrich it with the addition of a modern twist.












expandability
The project includes the idea of modular expandibility. The whole concept is maintained in the regular grid in order to be easily transformable and expandable adjusting to incessantly changing needs of the users. thanks to the possible flexibility of organizing the space within a modular grid, each house might be unique despite following the same principles. The process of expansion is divided into 4 suggested steps that the users may build in their own time. scope of study

1









07/2024 thesis "Revalorization and restructurization of late modernist complex" _Center for social activity and local entrepreneurship
Wrocław _Poland
_research, analyses, strategies
As a result of the research, the problems occurring in the Krzywoustego neighborhood in Wroclaw were defined and the trends occurring there were identified. During the study, detailed analyses of the estate were carried out, including analyses of existing service functions. This research allowed to determine the directions of potential interventions within the estate. The collected data were used to develop strategies aimed at revitalizing the neighborhood in urban, architectural and social aspects.
_scenarios
In the end, 4 potential scenarios were proposed and one of them was carefully developed. The Center for local activity and entrepreneurship project assumed the application of the phenomenon of newly emerging service pavilions and the development of technology on how this could function on a larger, more organized and structured scale. To this end, a prefabricated modular structure created from panels and elements that allow for any arrangement, modification and expansion of the space was proposed.
_potential
Large slab estates, despite their bad reputation, can also serve as examples of good solutions. These settlements are both a problem due to the potential costs of renovation and refurbishment, as well as a great opportunity, as they have great potential for transformation and, with the right interventions, can be a model for newly built housing estates. The present work aimed to raise awareness of the potential hidden in these estates, introduce the processes occurring there and show how they can be used in the process of estate transformation.
_center for local activity and entrepreneurship
The main objective of the work was to propose a catalog of solutions, which would solve the problems occurring on the analyzed neighborhoods. The proposed form of Center for Local Activity and Entrepreneurship fosters the formation of social ties and supports local entrepreneurship by creating new jobs and transforming the settlement into a mixed-use area operating under the principles of a 15-minute city and creating the model estate.

_scenarios based on strategies







1 | floor slab STEICO
2| flat roof construction
3| MODCELL module wall panels
4| bearing corners with internal insulation
5| floor slab made from concrete















_location
03/2024 studies "Museum of art & ecological awerness" _museum
Grotte di Catullo
_Italy
team: Mateusz Baranowski, Maja Stankowska, Kinga Kopczyk, Catalina Vasquez, Juanita Jimenez
The Grotte di Catullo archaeological site sits in Sirmione on Lake Garda's southern shore, extending 3 kilometers into the water. Once home to one of northern Italy's largest villas, it now covers nearly 5 hectares atop a rocky spur, surrounded by a historic olive grove with over 1500 plants. Nature and archaeology dominate here. The Roman villa's rectangular footprint remains, though some eastern parts are missing.
_echoes of historic beauty and nature
To implement our key ideas of showcasing sculptures and highlighting the natural beauty of the region, we designed a visitor path that winds through both indoor and outdoor areas of the site. Choosing the most captivating spots, we integrated Roman villa remnants and scenic landscapes along the way. To deepen the bond between nature and art, we consistently pair sculptures with natural elements like olive trees or organic materials such as mycelium or wood in the backdrop, enriching their aesthetic appeal and creating visually cohesive scenes.
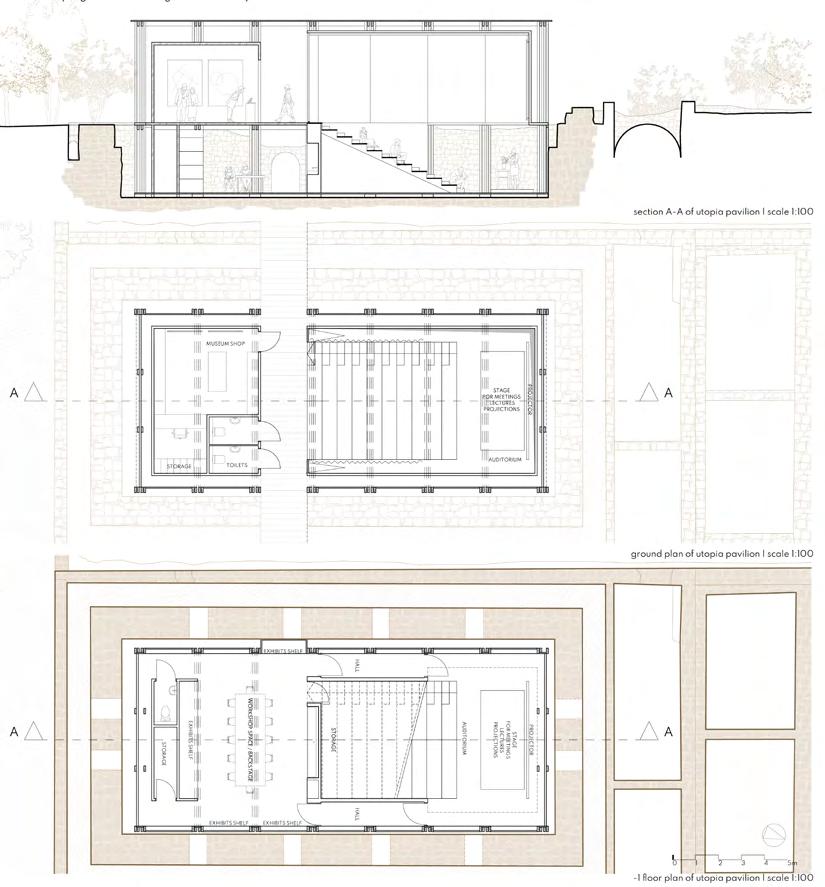
_utopia and dystopia axes
Our concept aims to contrast alternative future scenarios, highlighting the urgency of sustainable choices. By juxtaposing Utopia and Dystopia, we magnify their extremes for visitors. The Dystopia axis, hidden among trees, features foreign waste objects amidst natural beauty, symbolizing the environmental consequences of pollution and degradation. Conversely, the Utopia axis, illuminated and open, showcases archaeological history and leads towards the sun, symbolizing a hopeful future rooted in sustainability.

_axonometry view of the whole complex


_elevation and placement of sculptures

_exploded axonometry






_location
06/2023 studies
_estate Wrocław _Poland
team: Mateusz Baranowski, Maja Stankowska, Klaudia Ryś
The ecovillage project is located in the small village of Rędzin, in Lower Silesia. It presents a forward-looking vision of residential architecture that illustrates the slogan 'back to the roots' using traditional and local solutions for sustainability. This approach recognises that the future of architecture does not lie in purely futuristic, detached designs, but in learning from what has been known but forgotten for years. We believe that the answer to our questions about the future of architecture lies in its history and the correct use of its assets.
_ diversity, adaptability, accessibility, affordability
In the design process it was very important for us to provide diverse, flexible, accessible and affordable spaces. We also focused on defining the potential audience of the estate and identifying their most important needs such as a sense of security, inter-neighbourhood integration and education, and a strong emphasis on 'well being' and mental health.
_form shaping
The heart of the ecovillage is made up of buildings maintained in a three-block layout, comprising: "residential barn", "vehicle barn" and greenhouse. This type of development was taken from traditional 3-building homesteads present in villages in Lower Silesia. It was characterised by a rather regular layout in which the farm buildings formed small semi-private or private courtyards. In our project we used these layouts to create three residential zones differing in density and typology.
_ecological aspects
The diversity in terms of functionality and geometry of the housing in the village, in addition to fitting the different needs of the user, also aims to educate the residents. We are proposing different ways of uncomplicated and sustainable construction: load-bearing straw building, straw blocks on a timber frame, the hempcrete system, recycled bricks and complementary 3D printing using ecological plant-based materials. Modern construction drawing knowledge from practices known for generations, combined with circular economics and in-depth ecological education of residents can be a recipe for the future of suburban housing.











_location
06/2023 studies "Revitalization of Podgórze district in Wałbrzych" _urban plan Wałbrzych _Poland
team: Mateusz Baranowski, Maja Stankowska
The city of Wałbrzych is a picturesque place located in a basin surrounded by mountains in Lower Silesia voivodeship in Poland. It’s famous for its rich industrial history which flourished during the 19th century when textile manufacturing and coal mining hubs were rapidly developing. Impressive factory complexes along with tall chimneys were dominating the landscape, symbolizing Wałbrzych`s industrial spirit.
_ challanges
However, the city’s economy significantly declined as a result of the closure of Walbrzych’s mines in 1998 caused by its unprofitability. As a result, several factories were shut down, contributing to high unemployment in Walbrzych and neighboring villages. Since then the city has been neglected and under the huge depopulation process thus couldn’t use its full potential. Currently attempts are being made to restore the town’s former glory by boosting its tourism potential, while creating new job opportunities and introducing sustainablesolutions for the revitalization process.
_ revitalization
The revitalization of Podgórze district aims to improve the quality of the surrounding and enhance the livability of the area. The task was to establish the strategy of revitalization process highlighting main steps that may help achieving the main goal. The authors formed 4 stages which include the restoration of the river trace, the development of a commercial zone, the creation of a cultural center, and the revitalization of post-industrial zones.



_location _historic photos _masterplan _stages of intervention




_analyses _analyses _strategies _strategies


_strategy of mobility _strategy of greenery




05/2024 studies "The spatial plan for Kamień Pomorski" _spatial design Kamień Pomorski _Poland
_assumptions
Use of the potential of the waterfront location; proposing an alternative to vehicular transport in the form of water canals; opening up and connecting to the neighboring island ; creating clear areas for residential and mixed-use development; increasing the potential for tourism through the development of recreational infrastructure (bike paths, canals, campsites, parks); introduction of three typologies of residential districts : water, solar, green.
_ three stages
The project envisions developing the city in three stages, each consisting of two phases. In the first phase, a water canal is constructed as a transportation core, followed by the creation of a mixed-use zone. In the second phase, the remaining areas are developed into less dense residential neighborhoods.
_ waterbased districts
Housing estates and wetlands that are beneficial for the city as they: provide new job opportunities, boost tourism (channels might be used for kayaking and other water activities), strengthen the biodiversity of the area and reduce noise pollution, contamination.
_ green districts
Livable, self-sustainable and resilient neighborhoods which provide various green areas for permaculture and recreation and promote ”healthy mobility” - moving from the current car-dominated infrastructure to one that prioritizes walking and cycling.
_ solar districts
Maximize energy production by incorporating solar panels on rooftops and facades, orienting homes for optimal sunlight, and using energy-efficient designs and materials. Shared solar installations and energy storage systems help balance supply and demand, making the most of solar potential.
_ vision






Thank you for your attention!
Author : Mateusz Baranowski
Contact:
mail address: phone number: linkedin profile: mbaranowski99@gmail.com +48 506 396 672 linkedin.com/in/mateuszbaranowski
