Architecture Portfolio- Beatriz Mata

Page 1


ARCHITECTURE PORTFOLIO

1 2 3 4 5 6 7

8

BIRD HOUSE

A single-family home located in Acosta, Costa Rica, designed for a Red Capped Manakin.

AQUA WEB

A Mixed-Use commercial building located by the West Loop Area in Chicago. Half Resturant, Half Office Space.

BOOKSCAPE LIBRARY

A six-story library located in the Gràcia neighborhood, in Barcelona. The structure and facade is inspired by an open book.

TERRACING & MODULARITY

A residential complex located in the neighbohood of Poblenou, that has both work & living, and typical residential housing.

GENERATIONAL HOUSING

A mid-rise apartment complex located in the neighborhood of Gold Coast, designed to fit generational families.

SOLAR HOUSE

A single-family home located in Champaign, Illinois that is ran by solar panels. Its a collaboration with Habitat for Humanity.

IDEALS

An Innovative center located in Chicago, Illinois that is a competition submission for Illinois Solar Decathalon Design Team.

Digital Modeling

Using Rhino to create digital models from scratch. A mix of realism with the digital world.

9

Mechanisms of Envelope Design

Detailed annotations of connections within a builing, and envelope systems. Pg 33

10 Sketches Throughout The Years

Pictures of my hand drawn sketches throughout the years that bring my designs to life. Pg 34

11 Models Throughout The Years

Pictures of my models throughout the years that bring my designs to life.

BIRD HOUSE

Year: Spring 2021

Type: Single-Familiy Residential

Location: Acosta, San Jose, Colombia

Class: ARCH 171 Freshman Studio

Professor: Dr. Bliss

Nestled in Acosta, Costa Rica, this unique single-home residence is a lofted 2-bedroom, 1-bath tailor-made for a Red-capped Manakin Bird. Embraced by flourishing greenery, the house ingeniously arranges all public spaces on the ground level, echoing the bird’s social tendencies during mating rituals. This design emphasizes communal interactions and entertaining guests amid the natural surroundings. The private quarters find their sanctuary on the second floor, providing the bird with the seclusion it craves. Featuring a double-height space, skylights, and sliding doors, the residence seamlessly integrates the vibrant, nature-inspired indoors with the lush landscape. This thoughtful architecture not only captures the essence of the Red-capped Manakin’s sociable nature but also ensures a harmonious blend between the avian dweller and its verdant habitat, creating a captivating and environmentally attuned dwelling.

Concept Diagrams

Acosta, San Jose, Colom-
Step1: Add Half A Floor
Step 2: Building Is Lofted
Step 3: Add Slanted Roof
Step 4: Add Front Patio, Windows, & Sky Lights
Sun Path Diagram
24’

Kitchen:

Dinning Room:
Living Room:
Bathroom:
Closet:
Mechanical Room:
Office:
1. Bathroom:
2. Bedroom:
3. Primary Bedroom:
24’

AQUA WEB

Year: Spring 2022

Type: Mixed-Use Commercial Space

Location: 918 W Randolph St, Chicago, IL 60607

Class: ARCH 274 Sophmore Studio

Professor: Andrea Melgarejo De Berry

Positioned in the vibrant West Loop neighborhood of Chicago, this building seamlessly integrates both restaurant and office spaces into a cohesive architectural design. The structure is thoughtfully divided, with the two lower floors dedicated to the restaurant, while the upper two floors serve as office spaces. A distinctive facade feature emerges through the strategic use of shading devices, not only enhancing the building’s aesthetics but also setting it apart from its surroundings. Careful consideration was given to the building’s height and materiality, aligning with the neighboring structures, as the site is deemed an urban infill site. This deliberate approach ensures that the building harmonizes with the existing urban fabric, creating a balanced and visually appealing addition to the dynamic West Loop neighborhood.

Step 2: Push Back Two Sections
Step 3: Add Shading Devices
Step 4: Final Form Regulates Sun Light In The Building
Chicago, Illinois

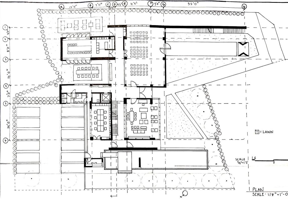
Ground Floor Plan Third Floor Plan

Second Floor Plan

BOOKSCAPE LIBRARY

Year: Fall 2023

Type: Educational Building

Location: Calle de Milà i Fontanals 4, 08012 Barcelona, Spain

Class: ARCH 371 Junior Studio

Professor: Carles Marcos

Partner: Keith Kiraly

Nestled in the heart of the Gràcia neighborhood, this six-story library redefines the essence of a book, offering a unique literary experience. The library’s non-rectilinear layout draws inspiration from the concept of an open book, where structural beams and columns serve both functional and aesthetic purposes. The columns cleverly create the illusion of pages within a book, enhancing the overall design. Each floor unfolds as a new chapter, presenting diverse ways to engage and enlighten the public with knowledge. Abundant gathering options, whether sitting or standing, cater to various preferences. The top two floors, carved out intentionally, provide an expansive open space, allowing people to reconnect with nature and their surroundings. This innovative library harmoniously blends structure, aesthetics, and nature to create an immersive and enriching experience for its visitors.

Northeast Elevation

TERRACING & MODULARITY

Year: Spring 2023

Type: Mixed-Use Residential Complex

Location: Carrer del Perelló, 808005 Barcelona, Spain

Class: ARCH 372 Junior Studio

Professor: Alejandro Lapunzina

Partner: Olivia Smith

Situated in the lively Poblenou neighborhood of Barcelona, close to the picturesque beach, this residential complex encompasses both working and living accommodations, typical residential housing, and commercial/retail spaces. The design of the project seamlessly integrates with the surrounding urban landscape, incorporating both the taller and shorter scales found in the neighborhood. It embraces the classic courtyard scheme characteristic of the region. The incorporation of duplex units not only maximizes natural light in each dwelling but also minimizes wasted space in corridors. Balconies are provided for each duplex unit through terracing on every other level. To ensure privacy, all balconies face away from the street and are oriented toward the private central courtyard. The project utilizes modular Cross-Laminated Timber (CLT) units, allowing for flexibility in accommodating various family sizes.

Step 2: Make Terraces With Different Depth
Step 3: Add Shading Devices
Step 4: Final Form with Green Space

Third Floor Plan

Fifth Floor Plan

Fourth Floor Plan

Sixth Floor Plan

67’
67’

GENERATIONAL HOUSING

Year: Summer 2023

Type: Multigenerational Mid-Rise Housing

Location: 110 W Oak St, Chicago, IL 60610

Class: ABC Studio- Senior

Professors: Kevin Hinders, Patricia Natke, Ingedia Sanchez, & Maria Pellot

Partner: Eliza Peng Fall 2023 Earl Prize Nominee

Placed in the heart of the Gold Coast neighborhood, this multi-generational housing initiative addresses the pressing need for affordable accommodation among low-income individuals. Strategically situated in a transit-oriented neighborhood, the project contributes to cost effective living by minimizing transportation expenses. The thoughtful design of each complex prioritizes solar heat maximization, effectively lowering overall costs for residents. Embracing innovation, the project incorporates modular Cross-Laminated Timber (CLT) units, providing adaptability to cater to diverse family sizes. It fosters unity by offering spaces that encourage meaningful connections among residents. Marked by open voids and communal areas, the housing serves as an ideal environment for both intergenerational living and younger adults, emphasizing a sense of community and shared experiences.

160’
160’

Second Floor Plan

Third Floor Plan

Plan

Fourth Floor Plan

Seventh Floor Plan

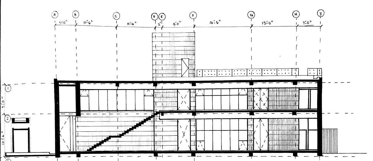
Section A
Section B

SOLAR HOUSE

Year: Fall 2023

Type: Single-Story Residential

Location: 114 W Eads and 1106 N Wright St Champaign, IL 61820

Class: ARCH 473 Senior Studio

Professors: Mark Taylor

Situated in Champaign, this 3-bedroom, 2-bath home represents a collaboration with Habitat for Humanity, emphasizing cost-effectiveness in every design element. The ceiling height is strategically set at eight feet to minimize heating and cooling expenses. Elm and Maple trees flank the west and east sides, utilizing fallen leaves as winter insulation. Bushes on the north and south sides act as natural cooling elements for the main windows during summer. Cost efficiency is further achieved by attaching the garage to the house, sharing the foundation. The gable roof is insulated for winter heat and snow melt. Notably, solar panels on the south roof generate electricity. Each detail in this Habitat for Humanity project is meticulously crafted for affordability and sustainability.

South Elevation

Champaign, IL Placement Is Based On Zones Throughout The House

420-440W Residential AC Module

• M-Series: M440

• AC Electrical Data @240 VAC

• Weight 48lb

• Reccomend max. module spacing

1.3 in

Sun Path Diagram

Kitchen:

Dinning Room:

Living Room:

Bedroom 1

Mechanical Room

Primary Bedroom

Bathroom

One-Car Garage

Section B
Exploded Axon 10’ 17’

IDEALS

Year: Fall 2023-Spring 2024

Type: Commercial Use

Location: 1139 W. Harrison Street, Chicago, IL 60607

Illinois Solar Decathalon

Situated in Chicago, this is a collaboration with Illinois Solar Decathalon. The site is located at the northwest corner of UIC’s campus. It’s easily accessible by both public and private transport from Chicago’s west and south sides. The site, a large underused parking lot owned by UIC, is part of the 2024 Master Plan for educational development but currently contributes to heat island effects in the area. IDEALS was designed to create a sustainable school model for Chicago’s most underprivileged populations, addressing systemic inequities in education. It focuses on early intervention for K-8 students, rebuilding trust with communities historically displaced by UIC’s expansion.

Massing Diagram
North Elevation
Learning Commons Render
Ground Floor Plan
Second Floor Plan
Third Floor Plan
East Elevation
Atrium Render Structural Exploded Axon

HVAC Strategies

Courtyard Render
South Elevation

Digital Modeling

Year: Spring 2024

ARCH 490MOD

Professor: Gideon Schwartzman

In this course, I explored conceptual, philosophical, and critical approaches to architecture. I developed the ability to think abstractly and represent ideas through drawing and modeling, both as a means of discovery and provocation. I enhanced my three-dimensional dexterity, using software to comprehend and imagine form and space. All of my final versions of my work was made all from scratch.

Perspective

Mechanisms of Envelope Design

Year: Spring 2024

ARCH 490DD

In this course, we delve into building envelope design by focusing on the intricate art of detailing. Details play a crucial role in conveying a deep understanding of both buildings and design intent. Through lectures, hands-on practice, and discussions, I explored envelope design at a micro level, ultimately applying my knowledge to a previous design studio work.

Sketches Throughout The Years:

Incubation Reception Center Elevation

Incubation Reception Center Section

Incubation Reception Center Floor Plan

Chicago Cultural Center
UIUC Foellinger Auditorium
Illini Tower Mezzanine
Louvre Museum
Arc De Triomphe
Torre Glòries Eiffel Tower
Casa Gomis

Models Throughout The Years:

Spring 2021: Freshman Year- Bird House
Spring 2022: Sophmore Year- Mixed-Use Commercial
Fall 2022: Junior Year- Library
Spring 2023: Junior Year- Co-Housing Apartment Complex
Summer 2023: Senior Year- Multi-Generational Co-Housing
Fall 2023: Senior Year- Solar Panel House

Turn static files into dynamic content formats.

Create a flipbook
Issuu converts static files into: digital portfolios, online yearbooks, online catalogs, digital photo albums and more. Sign up and create your flipbook.
Architecture Portfolio- Beatriz Mata by matabeatriz15 - Issuu