

PORTFOLIO
Albert (Masayuki) Tamura
Architectural Designer
Born and raised in Tokyo, Japan. Graduated from Northeastern University in 2022 with a Master of Architecture. Bachelor’s Degree in Architecture was recieved from Northeastern University in 2021. I have been at Perkins&Will since graduation, working mostly in the Science and Technology practice. I have contributed to a variety of project typologies, ranging from large scale institutional Core&Shell laboratory+office buildings, adaptive reuse of 100 year old historical buildings to support laboratory usage, down to small / medium tenant lab fitouts in a variety of existing conditions. My combined experience in Tokyo and Boston, along with extended time in other cities, gives me a varied perspective on how the built environment influences our daily lives from a spatial and sustainable standpoint. My experiences have taught me to not only value new construction, but to seek out innovative ways to problem solve the repurposing of the existing.
I have also taken on roles as project photographer and model maker, supporting my own and other project teams that require abbreviated turnaround times and in-house production. about me







01 02 03 04 05 06


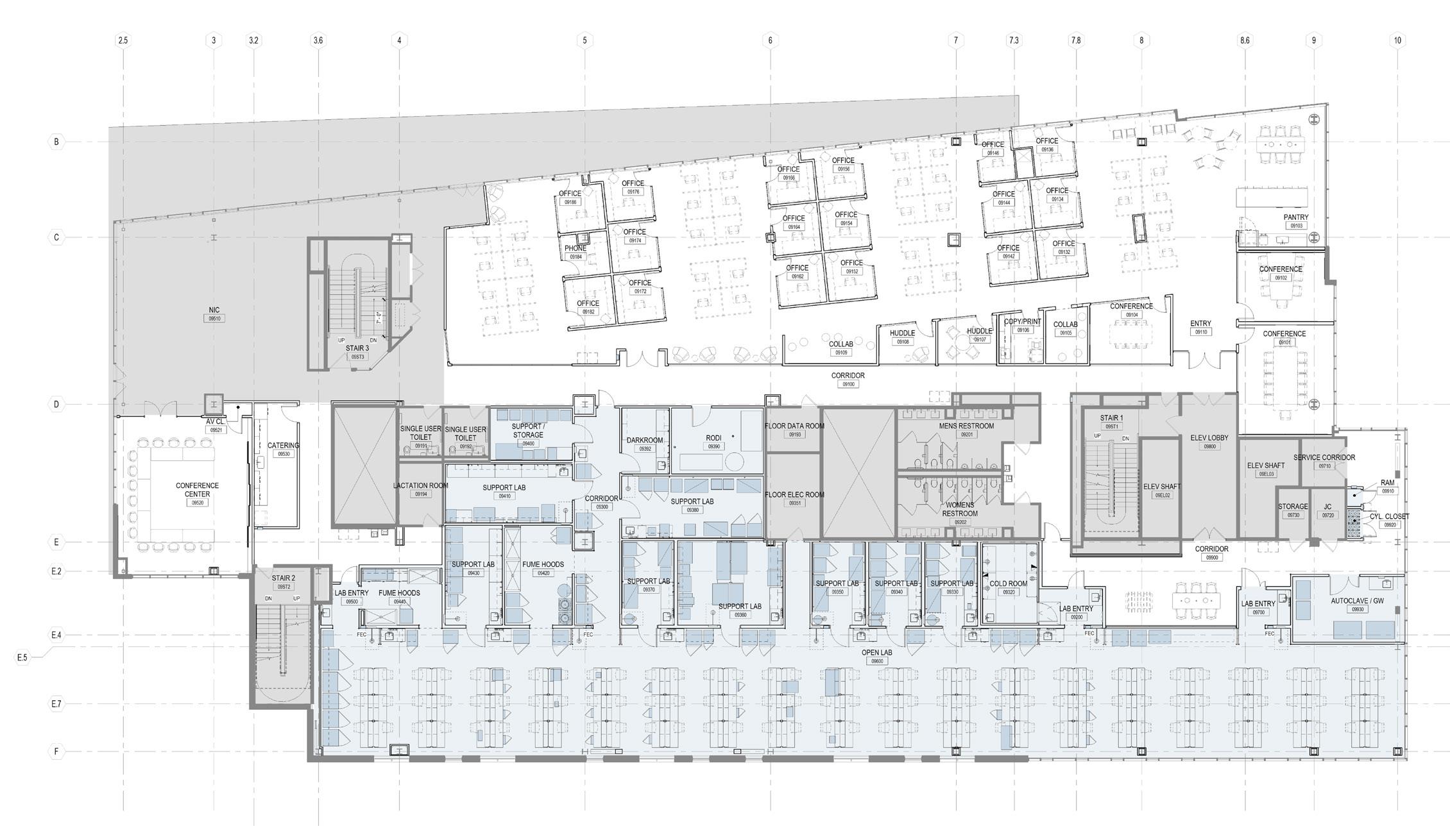
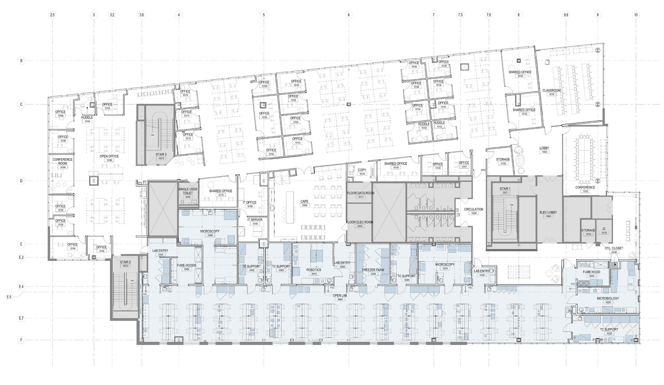
Project: Computational Science Biology & Swing Labs, University of Pittsburgh
Years: 2024 - Present (Under Construction)
Fit-out of levels 09 and 10 in a new construction Core&Shell building purchased by the University of Pittsburgh School of Medicine. Program includes faculty & student office space, classrooms, conference rooms, cafe space, open lab and support spaces for the Department of Computational Science Biology on level 10, and swing lab space on level 9. The design process included multiple rounds of meetings with the University and the primary user group to create a space that caters to the evolving needs of higher education scientific research and teaching. Design was complicated by the Core&Shell layout, which was not intended for lab use. This project was done in cooperation with the Core&Shell architect, Strada.
Under guidance and review from the PM, PA, Interior Designer, and Managing Principal, one other team member and I were responsible for design iterations, refinement, and documentation during SD and DD, along with creating graphics for client presentations. I was the primary on documenting the lab side during CDs, and am currently managing and coordinating Construction Administration.







Project: 12 Farnsworth Street, Developer Client
Years: 2022 - 2024 (Complete)
Located in Boston’s Fort Point District, 12 Farnsworth Street is a building rehabilitation for office and research & development use. Project consisted of the conversion of 68,000SF, originally constructed in 1917, to accommodate a mix of office and life science use. Significant interior and structural upgrades were made to support new MEP. I joined the project as Construction Documents were concluded, and transitioned into the primary architectural representitive during Construction Administration. I worked closely with the General Contractor and the OPM throughout construction to navigate various unforseen existing conditions, and designed and detailed solutions for coordination items and owner driven design decisions during construction. I also assisted in creating submission items for the project’s LEED Gold certification, along with photographic documentation of the project.








Project: 241 Friend Street, Comprehensive Design Studio
Years: Spring 2021
The brief for the final year of the undergraduate program at Northeastern was to design a building with a life expectancy of 100 years. This was done in tandem with a building systems course, and the expectation was to create a project that would provide architectural and MEP flexibilty, along with targeting sustainability during its construction and operation. The site was located in the dense North End neighborhood of Boston, complicating any considerations towards daylighting. 241 Friend Street consists of double T precast concrete beams that are suspended between two cores. One conventional cast-in-place concrete core contains egress, elevators, and MEP shafts, while a steel truss acts as the second core which caters towards human needs such as daylight, greenery, and air circulation. Operable windows at the atrium and occupied floors allow for passive cooling and heating, and a rainwater fed interior green wall improves air quality. Passive systems are supplemented mechanically by an exhaust fan at the top of the atrium, with radiant floor heating and a chilled beam system in the body of the building for more extreme weather.


“Peel
Away” Axonometric View: building components, construction, and systems flow

Section Perspective View: building components and passive & mechanical systems flow

Project: Anthropology Lab, Boston University
Years: 2023 (Complete)
This project consisted of a 700 SF of dry laboratory space in an existing Boston University research building. The primary researcher’s work consists of Anthropology, African American & Black Diaspora Studies, and repatriation of human remains. The sensitive nature of their work required a space that would allow for the researcher to effectively and compassionately carry out their work while meeting modern lab standards. The open lab layout and mobile benches allow for both teaching and research configurations, while a support room provides a secure storage space, along with a write up space for graduate & PhD students. This project team consisted of the Project Manager and myself, allowing me to have ownership over design, design meetings with the client, and documentation.




Write Up Space & Research Storage





Open Lab (Research Layout)

Project: 7 Channel Center, Developer Client
Years: 2022 (Unbuilt)
Located in the historic Fort Point Channel District in Boston, the design of 7 Channel Center was subject to review and approval from the historic commission. I contributed towards design iterations and created graphics for presentations nuanced towards aligning with the vision and requirements of the commission. The project went through an enhanced SD phase, with advanced early coordination with MEP consultants in order to work with the tight constraints of the site. 7 Channel Center was programmed for mixed office and lab use, and maintained the existing historic three-story building while adding an additional six levels with a facade that would celebrate the district’s industrial roots. Project recieved approval from the Historic Commission and the Boston Planning Department, but was ultimately paused by the client.


Years: 2014 - current
















