Marwa_Portfolio

Page 1

marwa’s

A fourth year student of architecture who is inquisitive, and has developed a passion to design during the course of her study. The interaction of the built/unbuilt and the people, and developing site sensitive approaches to design keeps me intrigued throughout. Narrating stories through photographs and sketches, and analysing design problems through drawings has helped me delve deeper in this field.

CONTACT +91 9447621302 +91 7510875587 Kilachaparambil, Kummanam PO Kottayam, Kerala,
marwajubairiya.19@avani.edu.in @bint_savad
Avani Institute of Design, Calicut, India.
India.

INTERESTS

Photography Sketching Travel Model making Diagram making Art

SOFTWARES

Autodesk AutoCAD Adobe Photoshop Adobe InDesign Adobe Lightroom Lumion Rhino3D SketchUp

WORKSHOPS

Bamboo furniture-making workshop Ar. Peter Rich sketching workshop Oorali theatre workshop Metaplay 1.0 Photography workshop by Ar. Prashant Mohan Korero- conversation with Ar. Keerthi S (Satkriya Tales)

TALKS

Ar. B.V. Doshi Prof. Neelkanth Chaaya Ar. Anupama Kundoo Ar. Peter Rich

Artist Bose Krishnamachari Ar. Alex De Rijke Artist Tom Burckhardt Dr Kush Patel Ar Afifa Nuzhat

SOFT SKILLS

Ability to keep an open mind. Leadership experience. Problem solving abilities. Attention to detail. Analyze through drawings/ sketches.

EXPERIENCES

one of the leads of avani merchandise team.

took part in NASA industrial design competition, and microhome competition by Archdais

Photogragh taken during my visit to Old Ahmedabad, India, 2022.
“Architecture is about people.”
~Francis Kere

CONTENTS

POTTER’S RESIDENCE COLIVING SPACE THANAL CARTABLE HOME ANGAMI BAKSAA ARCADIA PAVILION

02 03 04 05 06
01

POTTER’S RESIDENCE

01The project is to design a space for work and living for pottery artists who are an extroverted couple from a muslim household, situated in the culturally rich context of Kuttichira, Calicut, India. The site(hypothetical) lies in close proximity to the age old Mishkal Mosque, a prominent commercial stretch and a well-knit neighbourhood.

CORE LEARNINGS

- Sensitivity to a culturally rich context.

- Reflecting the clients’ character into the built

- Analyzing spacial qualities through models and drawings

- Formation of varying degrees of privacy and publicness though site modulation

PLAN OF LARGER CONTEXT

PEOPLE DENSITY MAJOR ACCESS TO MAINROAD MADRASSA (Islamic school) MISHKAL MOSQUE

APARTMENT

People from outside as well as natives stay here on a temporary or permanent basis.

NEIGHBOURING HOUSES

TEMPLE

Mainly visited by the neighbouring community.

WEST ELEVATION

COMMUNITY CENTRE

The neighbourhood gathers here often for special occasions, meetings, etc.

PAVILIONS FOR SEATING

An interaction and resting space for people from the neighbourhood as well as tourists, by enjoying the view of the pond

NORTH ELEVATION

SITE CONTEXT ELEVATIONS

MADRASSA (Islamic school)

MISHKAL MOSQUE

A prominent age-old mosque, which is a major landmark of kuttichira

EAST ELEVATION

COMMERCIAL STRETCH

Mainly consists of shops selling goods of day-to-day needs, restaurants, godowns and some abandoned shops.

SOUTH ELEVATION

BANYAN TREE

Serves as a good communal space for people to gather.

IDEATION PROCESS

After intial ideations of the programme and zoning, based on the site, context and client requirements, a series of solid block massing models and wireframe models were made to attain a core idea, which serves as an anchor to the project.

THE MORE ACCESSIBLE SPACES ARE PLACED AT THE GROUND LEVEL, AND THE MORE PRIVATE AND SERVICE SPACES ARE AT THE BASEMENT AND FIRST FLOOR.

THE RAMP IS RE-ORIENTED, MAKING THE CIRCULATION ITSELF AS AN EXPERIENCE TO THE VISITORS, AND NOT INTERRUPTING THE CLIENT’S WORK.

A HIERARCHY OF OUTDOOR SPACES IS CREATED DUE TO GROUND-PLANE MODULATION AND ORIENTATION OF BLOCKS.

INTRODUCED RAMP AS CIRCULATION ELEMENT IN THE PUBLIC(WORK) DOMAIN FOR EASE OF ACCESS TO VISITORS AND USERS.

PUBLIC SEMI-PUBLIC SEMI-PRIVATE PRIVATE

CORE IDEA

Giving an idea of the client’s profession(pottery) through circulation(ramp) and provide spaces for community to gather and experience the art of pottery making.

PLAN AT +0.50 M PLAN AT +2.50 M
ROOF
PLAN

SECTION AA’ (WEST)

SECTION BB’ (SOUTH) SECTION CC’ (NORTH) KEY PLAN

SECTIONS
PROCESS MODELS FINAL MODEL SOLID BLOCK MASSING 01 SOLID BLOCK MASSING 02 WIREFRAME MODEL 03 WIREFRAME MODEL 04 PLACE OF ARRIVAL FOR VISITORS ENTRY TO THE PRIVATE LIVING SPACE AND GARDEN RUIN AS A COMMUNAL SPACE ELEVATION FACING THE POND

EXCAVATION PLAN

PERIMETER PLAN

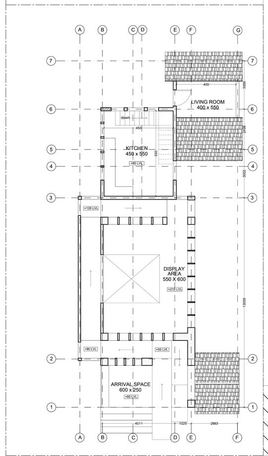
GROUND FLOOR PLAN

FIRST FLOOR PLAN

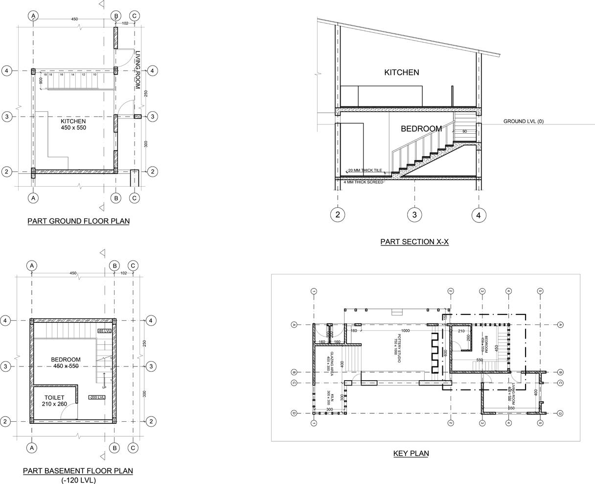
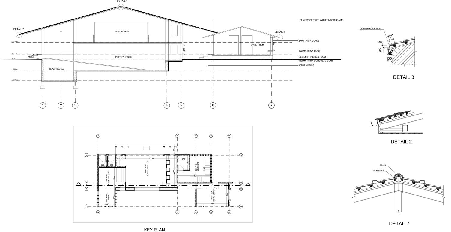
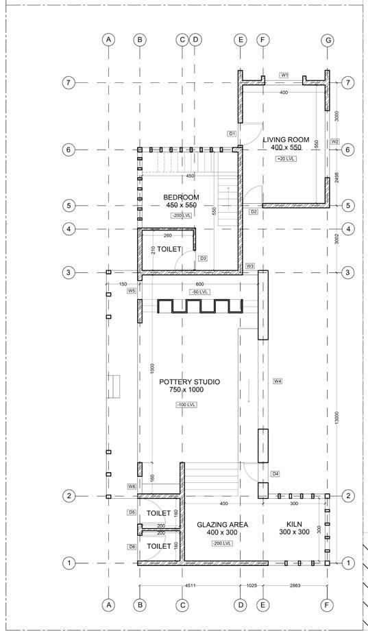
WORKING DRAWINGS
STAIRCASE DETAILS SECTIONAL DETAILS

COLIVING SPACE

02The project is to analytically design a coliving space in a site situated in a locality called Ambayathode in the town Thamarassery, Calicut, India, and near to Avani institute, an architectural college in close proximity to the national highway that also has probable visitors from the prominent towns nearby.

CORE LEARNINGS

- Incorporating and analysing larger number of varied users groups into the project.

- Sensitivity to the context and the surroundings.

- Inclusion of the neighbouring community

- Degrees of sharing and shared spaces

INSTITUTE OF DESIGN

POND

RESIDENTIAL AREA
SITE
AVANI
VIEWS TO AND FROM THE SITE
USER - ACTIVITY ANALYSIS

ZONING

A final zoning idea of the indoor and outdoor spaces was formulated based on which the design is developed further.

IDEATION OF FORM

Multiple models were made based on the zoning idea, and a core idea was developed as a result.

PROCESS MODELS

Volumetric massing of blocks based on the programme

Connecting the different masses to form a single structure

Creation of organic forms in order to blend with the existing topography of the site

OAT CO-WORKING SPACE GYM, STORE, CAFE PARKING AREA DINING AREA
RECREATIONAL
SECTIONS ENTRANCE TO SEMI-PUBLIC LOBBY COMMON LOBBY
POND LIBRARY
SPACE

The people of Valiyangadi, an age-old market street in Calicut, Kerala, India.

THANAL

Architecture and the city

The project aims to create a built environment that is responsive to the unique historical, cultural and climatic context of Kozhikode, Kerala, India, by reinterpreting and revitalizing traditional vernacular architecture in the region. Another important aspect of the project is to create a design that is culturally and socially responsive, reflecting values and histories of the local community.

CORE LEARNINGS

- Detailed analysis of specific user groups and their activities.

- Respecting the existing built, and responding to exisitng site conditions.

- Establishing ownership of the built by the users/community even in a public property.

- Strengthening the unity of community by giving oppurtunities to interact and discuss their thoughts.

- Inclusion of the minority community and respecting their needs.

W
03

VALIYANGADI

Valiyangadi is a centuries-old market and one of the busiest commercial street, which is about 800 metres long, situated at the heart of Kozhikode city, at close proximity to the beach and the railway station. Every element of this market has a story to tell, the shops, head loaders, traders, truckdrivers, even the limestone plastered walls reek of history.

SCALE SHADOW PROGRAMME CENTRAL ACCESS INTERFACE 1. footpath 2. stairs 3. godown 4. extended godown 5. pathways 6. veranda 7. cashier counter 8. road to masjid 9. seating space SHOPS WITH DOUBLE HEIGHT STORAGE SPACES FOR ENOUGH LIGHT AND AIR, AND SMALL OFFICE SPACE AT THE FIRST FLOOR

REVITALISATION OF VALIYANGADI

Over the years, several businesses dwindled and shut shop, many lost their jobs, and the age old shop-houses are facing stuctural deterioration. This leads to an emerging need for revitalising parts of this street for maintaining its heritage without unsettling the heritage structure and improving the lives of the people of Valiyangadi, by adaptively reusing the unused shops, structurally reinforcing the existing shops, providing spaces for interaction, refreshment zones and open green spaces for resting and gatherings to encourage social activities amongst them.

-SITES
OF INTERVENTION

THANAL

Thanal, which means shade, is a retreat primarily for the workers of Valiyangadi where they can relax, socialise and discuss their problems among themselves, or with a central body. The building also functions as a reminiscence of the foot soldiers of Valiyangadi and their evolution over the years through stories and exhibits.

SITE IDEA DIAGRAMS

Based on the programme, an appropriate site is to be chosen from the whole stretch of valiyangadi. A group of seventeen shops which is mostly abandoned and not of use currently is chosen, along with with an unbuilt area behind it. The site lies at the junction where the market street connects to cherooty road, which is a major link connecting to other prominent places in Calicut. It is also connected to a private road from behind.

EXISTING SITE PLAN
GROUND FLOOR PLAN FIRST FLOOR PLAN

A slum in Colaba, Mumbai, India, 2022.

WW

‘Slums are the visible marker of the inequality that marks our cities and a result of a specific trajectory of urban development that has continued even in post-colonial times.’ (source: outlookindia.com)

04 CARTABLE HOME

Due to the sheer increase in population and urbanization in India, public spaces have traditionally become social spaces in which people began to dwell. As a result, there was very little land available for people to build homes.

The idea behind portable homes was to assure people that they could be placed even on rooftops when space was limited or when a person needed to consider relocating quickly.The advantage of this structure being lightweight, foldable and portable people could easily place it anywhere and it could be transported.

The curved roof serves as a runaway for rainwater, which is filtered and stored in a detachable tank beneath the flooring.

BY OPENING OUT THE CURVED SURFACE ON ONE SIDE AND CONNECTING MULTIPLE MODULES, COMMUNITY SPACES COULD BE ESTABLISHED, WHICH PROMOTE SOCIAL LIFE AND COMMUNITY LIVING.

THE WATER COLLECTED, FILTERED, AND STORED IS ALSO A SUSTAINABLE WAY OF LIFE WHERE SUFFICIENT AMOUNTS OF WATER FOR THE BASIC NEEDS OF THE PEOPLE LIVING IN THE HOME ARE GENERATED BY THEMSELVES.

THE DOUBLE LAYER POROUS SHEET FACILITATES IN WATER HARVESTING

FURNITURES ARE PLACED IN A PIT WHICH IS PART OF THE FLOORING, AND IS PULLED OUT TO BE USED. THE TOP PORTION OF THE FURNITURE BECOMES PART OF THE FLOORING WHEN UNFOLDED AND KEPT BACK.

IN COMPACTED SHAPE, THE ENTIRE STRUCTURE CAN BE READILY TRANSPORTED.

5 2 1 1
2
3
4
5
3 4
OF CARTBALE
FOLDABLE WORK TABLE
BED PIT
TOILET
DINING TABLE
FOLDABLE KITCHEN TABLE
PLAN
HOME

05

Splitting of young bamboo culm.

Splitting of bamboo by a dao.

Base- interlocking of splits in a pattern.

The edges are plaited diagonally to achieve a closed structure

ANGAMI BAKSAA

The project is to design a product based on a grassroot level understanding of a craft by a community, creating a dialogue between the designer and craftsmen.

The Angami tribes in Nagaland are known for their superlative basketry skills. The craft of Khonoma basketry was rooted in the fabric of rural economy and was an intrinsic part of their everyday life. Local canes and bamboos were gathered and woven through a specific process. These baskets are used for various purposes for their day-to-day activities, and also depend on it for their income, hence it forms an integral part of their lives.

( NASA INDUSTRIAL DESIGN TROPHY)

Angami Baksaa is a portable multipurpose storage units which satisfies the user’s need of space utilization. These units help to store and organise our belongings in a very effective way, and multiple units can be stacked one above other. This would be useful to the Angami tribes as they live in small houses which lack space to systematically organize and store belongings.

Through this concept, it would make a great change in the community by introducing an organising nature, thus increasing their productivity and effieciency.

Current living condition of craftsperson.

Joinery at the edges

Living condition of craftsperson in an organised environment.

Flaps rotate inwards forming the upper cover , part of the stacked unit

Flaps move inwards making the box into a portable form

Lock mechanism

The built as an experience.

~Austria pavilion, Expo 2020, Dubai

Water body as a communal space.

(Visualization of the river bank opposite my ancestral home, where the neighbours come to bath, wash clothes and socialise.)

ARCADIA PAVILION

06A pavilion that escalates our mind from worldly sorrows, giving a sense of happiness and freedom in sharing thoughts and an oppurtunity in interacting with people from different spheres of life.

Reimagining a space in college. (A visualisation done to rethink our college as a public space.)

Sarkhej Roza, Ahmedabad, 2022. Central gathering space, Sarkhej Roza. Sangath, Ahmedabad, 2022. Faculty of Architecture, CEPT, Ahmedabad.

A market street in Mumbai, 2022.

Hotel Taj, Mumbai, 2022. thank you.

Turn static files into dynamic content formats.

Create a flipbook
Issuu converts static files into: digital portfolios, online yearbooks, online catalogs, digital photo albums and more. Sign up and create your flipbook.