Skip to main content

Herepoort

Page 1

HEREPOORT 7AUX0 | Bachelor End Project Martin Markovsky | 1458566

CONTENTS

urban analysis

public squares and green areas

landmarks

gates

research question

urban and architectural design program

dementia care home

new landmark tower of the people

windows

facade

1 2 2 4 6 9 10 10 12 14 16 18 20

LANDMARKS

As a city of century-old history, Groningen is home to numerous landmarks, both old and new.

The Martinikerk and its tower, the Groninger Museum and the Forum are among the most important symbols of the city.

The apparent lack of notable landmarks in the southern half of the city centre shows the potential in the site of the C&A building becoming one.

3
Scale 1:10000 Martinitoren

PUBLIC SQUARES AND GREEN AREAS

The most prominent features of Groningen’s city centre are the large public squares around its most important landmarks, as well as the inner courtyards, also known as the ‘hofjes’.

To keep up with the spirit of the city, it is only natural that these elements are incorporated in any new development in the area.

5 Vismarkt
Scale 1:10000

GATES

Entrance gates of all sorts can be found all around the historic city centre. As the former site of a city gate, the Herepoort, the implementation of gates in the redevelopment of the C&A building block serves not only as a link to the character of the city, but also as a tribute to its past.

7
The original Herepoort, now located in the Rijksmuseum in Amsterdam

How can the C&A building block activate the corner of the Herestraat?

9
a new landmark inner courtyards gates

PROGRAM

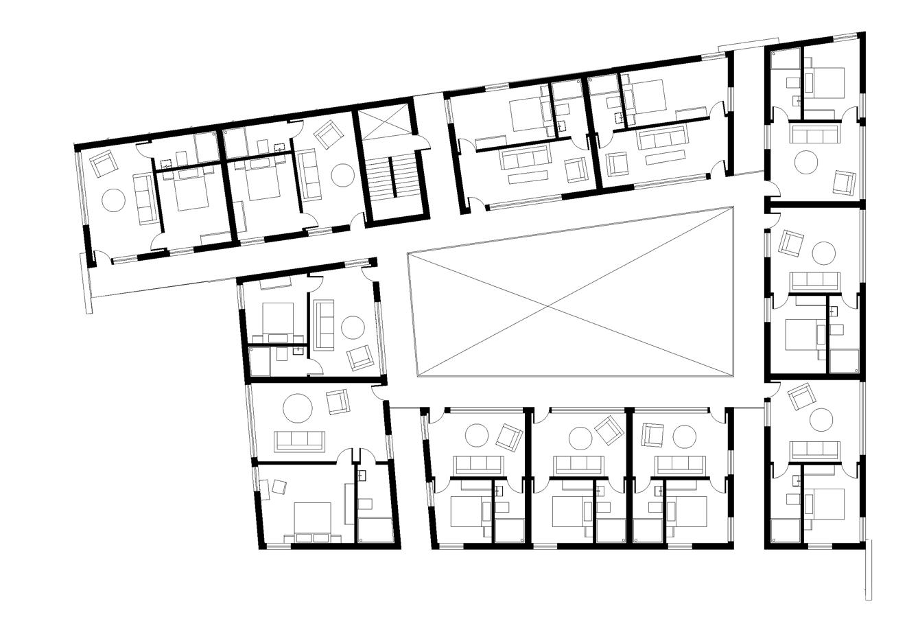
The redevelopment of the C&A block introduces two new funtions, - a care home for people with dementia and a residential tower on top of the C&A building.

The dementia care home is structured as a gated community, and is separated from the C&A building and the tower by the reintroduction of the Burchtstraat to the block.

11
GedeempteZuiderdeep
Scale 1:1000 Program in context
Carolieweg Burchtstraat Kleine Gelkingestraat Herestraat

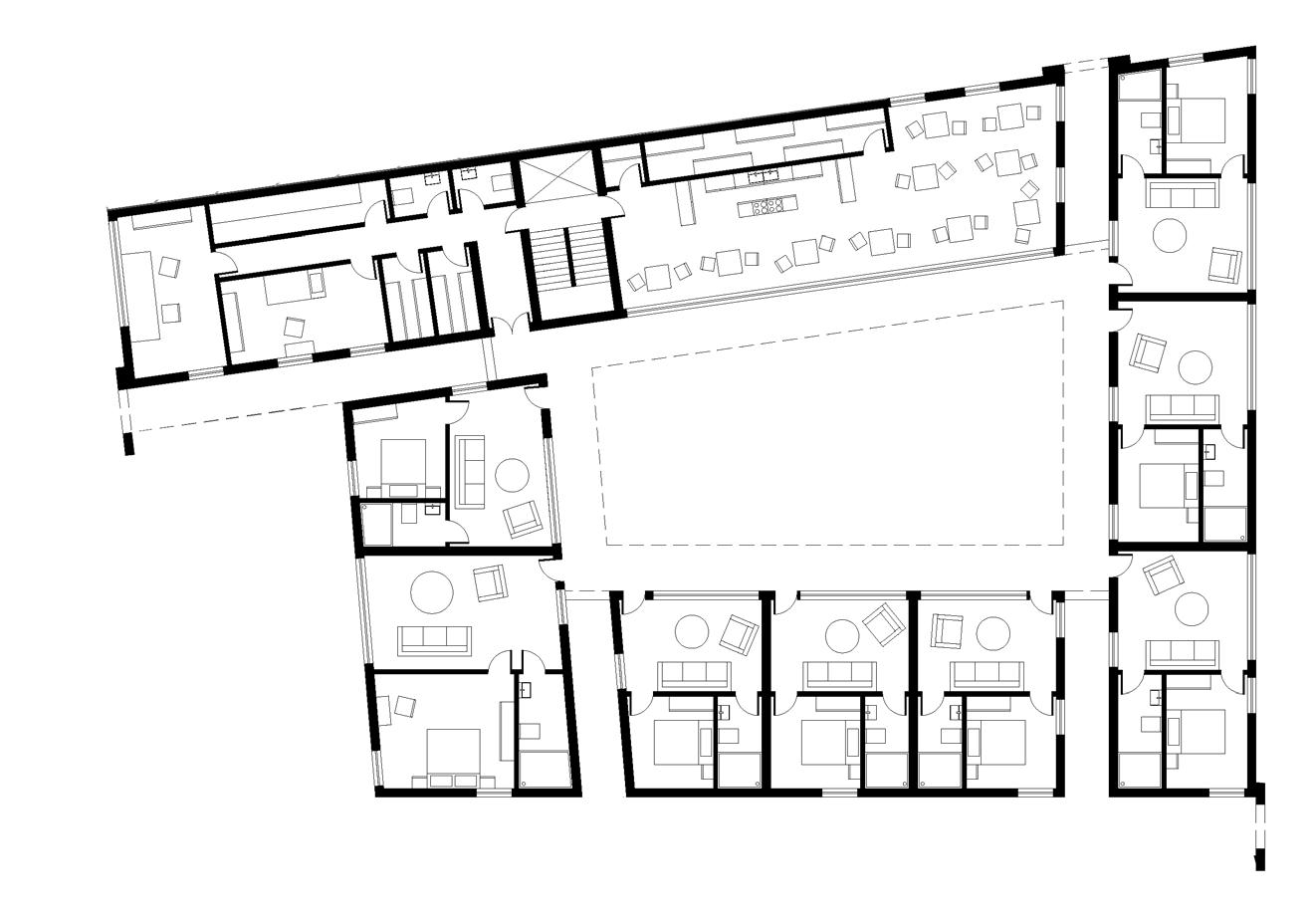
First Floor

and South Elevations
Ground Floor North
1:1000

DEMENTIA CARE HOME

The dementia care home follows a radial organization - each unit is centered around a communal courtyard. The ground and first floor house all residents of the facility, as well as the shared spaces, while the second floor serves as the home of the care couple responsible for the home.

13
Scale 1:400 Section AA 1:500 Second FLoor
Urban Profile Gedeempte Zuiderdiep 1:1000 Urban Profile Herestraat 1:1000

NEW LANDMARK

Opposite the dementia care home and on top of the C&A building, sits the tower of the people. It rises 10 stories above the C&A building, and each third floor two of its facades shift inward, creating large shared balconies for its residents.

It is meant to serve as the new landmark on the corner of the Herestraat, as well as providing its residents with striking views over Groningen.

15
Tower of the People
Elevations 1:1000
1:500
Ground Floor Tower (Level 3)
1:500
Third Floor (Level 6)
1:500
Sixth Floor (Level 9)
1:500
Ninth Floor (Level 12)

Seventh/Eight Floor

(Levels 10-11)

1:1000

TOWER OF THE PEOPLE

The residents of the tower have their own separate entrance at the back of the C&A, guaranteeing privace from the lively Herestraat.

Fourth/Fifth Floor

(Levels 7-8)

1:1000

First/Second Floor

(Levels 4-5)

1:1000

At each setback floor, half of the apartments are replaced by a shared living room - a communal space meant for residents to gather, relax, work, study, but most importantly - to connect to the city of Groningen visually.

Section BB

1:500

17
Eight Floor Tower (Level 11)

WINDOWS

Each apartment in the tower features two types of windows - an extruded and an indented one.

Each apartment has its living room at the corner, the most prominent location - and each corner has an indented window at one side. Furthermore, each room has at least one extruded window. This rule ensures that each room is properly lit, and in the same time it creates the distinctive pattern of the facade of the tower.

19
Window Detail 1:15

FACADE

The facade of the tower uses bluish green ceramic panels - reminiscent of the window frames of Groningen’s historical homes. Each floor with a terrace and a communal living room has a different pattern - similar to the one seen at the current C&A building.

21
C&A Building Facade

Turn static files into dynamic content formats.

Create a flipbook