Skip to main content

Architecture Portfolio

Page 1

martin markovsky 2018-2023
P T L O F I R O O
architecture intern v8 architects architecture intern studio morphè 09/2022 - 01/2023 rotterdam, nl 07/2021 - 09/2021 sofia, bg EDUCATION msc architecture, building and planning eindhoven university of technology bsc architecture, urbanism and building sciences eindhoven university of technology MARTIN MARKOVSKY martin.markovsky@gmail.com +359888931434 Eindhoven, NL WORK EXPERIENCE LANGUAGES Bulgarian English Native C2 SOFTWARE Photoshop Illustrator InDesign ArchiCAD AutoCAD Twinmotion SketchUp Rhinoceros 09/2023 - ongoing eindhoven, nl 09/2019 - 07/2023 eindhoven, nl
1
herepoort public squares and green areas landmarks gates research question program dementia care home new landmark tower of the people windows façade de ruïne the missing link unfolding envelope kröller-müller museum extension all roads lead to rome a vertical bridge english gothic cathedral the encyclopedia of english gothic visual trip (r)evolution 4 6 8 10 12 14 16 18 20 22 24 26 28 30 32 34 36 38 40 42 44
CONTENTS

location: groningen, nl year: 2023

HEREPOORT

Project Location

Landmarks

LANDMARKS

As a city of century-old history, Groningen is home to numerous landmarks, both old and new.

The Martinikerk and its tower, the Groninger Museum and the Forum are among the most important symbols of the city. The apparent lack of notable landmarks in the southern half of the city centre shows the potential in the site of the C&A building becoming one.

7
Scale 1:10000 Martinitoren

Project Location

Public Squares

Public Green

Private Green

Water

Scale 1:10000

PUBLIC SQUARES AND GREEN AREAS

The most prominent features of Groningen’s city centre are the large public squares around its most important landmarks, as well as the inner courtyards, also known as the ‘hofjes’.

To keep up with the spirit of the city, it is only natural that these elements are incorporated in any new development in the area.

9 Vismarkt

GATES

Entrance gates of all sorts can be found all around the historic city centre. As the former site of a city gate, the Herepoort, the implementation of gates in the redevelopment of the

C&A building block serves not only as a link to the character of the city, but also as a tribute to its past.

11
The original Herepoort, now located in the Rijksmuseum in Amsterdam

a new landmark inner courtyards gates

Herestraat
How can the C&A building block activate the
corner?
13

PROGRAM

The redevelopment of the C&A block introduces two new funtions, - a care home for people with dementia and a residential tower on top of the C&A building.

The dementia care home is structured as a gated community, and is separated from the C&A building and the tower by the reintroduction of the Burchtstraat to the block.

Dementia Care Home

Commercial

Residential

Scale 1:1000

Program in context

15
GedeempteZuiderdeep
Kleine Gelkingestraat
Carolieweg Burchtstraat
Herestraat

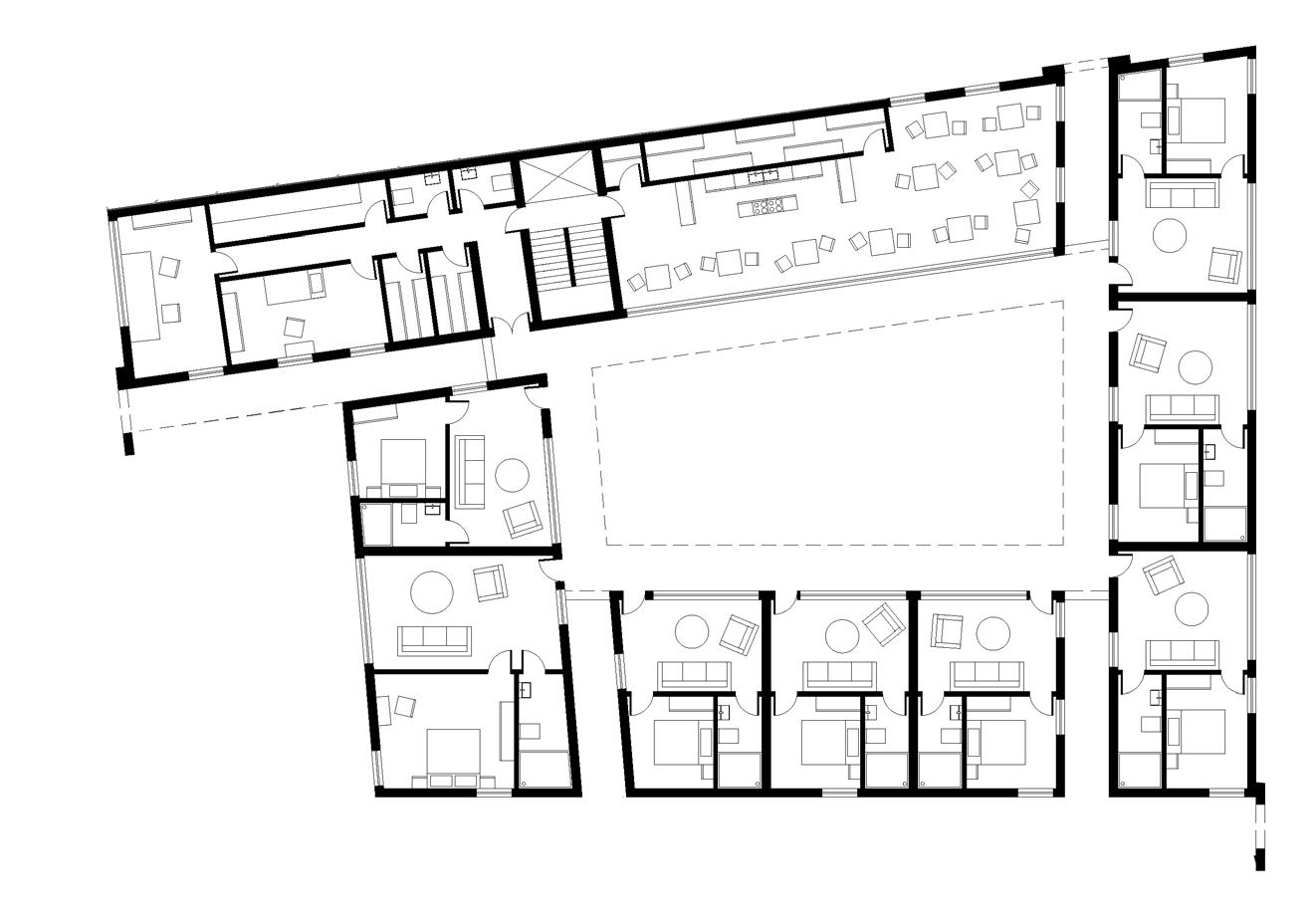
Ground Floor

First Floor

North and South Elevations 1:1000

DEMENTIA CARE HOME

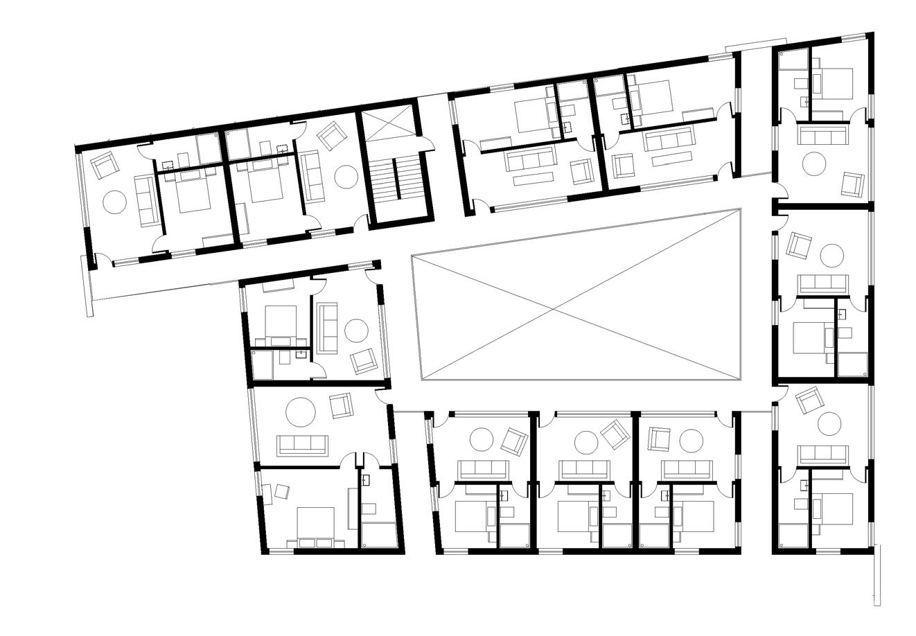
The dementia care home follows a radial organization - each unit is centered around a communal courtyard. The ground and first floor house all residents of the facility, as well as the shared spaces, while the second floor serves as the home of the care couple responsible for the home.

17
Scale 1:400 Section AA Second Floor

Urban Profile Gedeempte Zuiderdiep

Urban Profile Herestraat

Scale 1:1000

NEW LANDMARK

Opposite the dementia care home and on top of the C&A building, sits the tower of the people. It rises 10 stories above the C&A building, and each third floor two of its facades shift inward, creating large shared balconies for its residents.

It is meant to serve as the new landmark on the corner of the Herestraat, as well as providing its residents with striking views over Groningen.

19
Tower of the People
3) 1:500
6) 1:500 Sixth
1:500
1:500
Elevations Ground Floor Tower (Level
Third Floor (Level
Floor (Level 9)
Ninth Floor (Level 12)

Seventh/Eight Floor (Levels 10-11)

TOWER OF THE PEOPLE

Fourth/Fifth Floor (Levels 7-8)

The residents of the tower have their own separate entrance at the back of the C&A, guaranteeing privacy from the lively Herestraat. At each setback floor, half of the apartments are replaced by a shared living room - a communal space meant for residents to gather, relax, work, study, but most importantlyto connect to the city of Groningen visually.

First/Second Floor (Levels 4-5)

Scale 1:1000

Section BB 1:500

21
Eight Floor Tower (Level 11)

WINDOWS

Each apartment in the tower features two types of windows - an extruded and an indented one.

Airtight Seal

Each apartment has its living room at the corner, the most prominent location - and each corner has an indented window at one side. Furthermore, each room has at least one extruded window.

Waterproofing

Membrane

Flashing

Waterproofing

Membrane

Airtight Seal

This rule ensures that each room is properly lit, and in the same time it creates the distinctive pattern of the facade of the tower.

Airtight Seal

Flashing

23
Scale 1:15 Window Detail Ceramic Cladding Glass Railing

FAÇADE

The façade of the tower uses bluish green ceramic panels - reminiscent of the window frames of Groningen’s historical homes.

Each floor with a terrace and a communal living room has a different pattern - similar to the one seen at the current C&A building.

25
C&A Building Façade

location: rotterdam, nl

year: 2021

RUÏ NE
DE

THE MISSING LINK

Situated on a narrow plot, surrounded by buildings on three sides and bound by strict height restrictions, De Ruïne makes full use of its surroundings.

The volume is carved for maximizing the usable space, while simultaneously opening the building up – providing balconies with striking sights of Rotterdam, and a clearly distinguishable entrance.

29
Scale 1:650 Skin and Skeleton West and North Elevations Sections AA and BB

UNFOLDING ENVELOPE

De Ruïne follows a clear organizational hierarchy – separating public from private completely.

As it ascends from the public square, the volume gets lighter and lighter, in tandem with the interior. It shifts from the public shops, through the densely stacked studios, the spacious apartments, and culminates in the rooftop terrace.

31
Scale 1:350
B B B A A A A A A B B B
Floors 3-7 - Apartments Floors 1-2 - Studios Ground Floor - Shops

KRÖLLER-MÜLLER MUSEUM EXTENSION

location: otterlo, nl year: 2021

Basement First Floor 4 2 3 1 8 9 1 2 5 5 7 6 3 5 5 10 4 Ground Floor 1:650 B A C C B A

2021

1970s

1950s

1938

To be demolished

Visitors

Artists

Employees

Scale 1:1000

ALL ROADS LEAD TO ROME

The museum has seen numerous transformations,. The symmetry of the original building has been disrupted, with little attention paid to the routing, which the latest expansion aims to address.

The visitor, the employee and the artist all share similar paths, ensuring easy access to each one’s destination, while remaining in tune with the organism of the building.

Routing

35
1. Artwork Depot 2. Atelier 3. Study House 4. Inner Courtyard 5. Exhibition Space 6. Entrance to Offices 7. Entrance to Hotel and Basement 8. Hotel 9. Offices 10. Rest of Museum Old Entrance
New Entrance
Current Entrance
Section AA 1:300
South Elevation/Section BB West Elevation/Section CC

A VERTICAL BRIDGE

The use of vertical voids in the wing emphasizes the connection between the building’s different functions, tying the public with the private. They ensure that everyone inside (and outside) gets to experience the whole package, without interfering with any activities taking place.

Exploded diagram

37
Scale 1:500

ENGLISH GOTHIC CATHEDRAL

location: minecraft

year: 2018

THE ENCYCLOPEDIA OF ENGLISH GOTHIC

The structure of the cathedral is a museum by itself - spanning centuries of medieval architecture.

The façades flow from the simplicity of Norman and Early English, throught the richness of the Decorated style, culminating in perhaps the “most English” style of them all - the Perpendicular.

The different periods of English Gothic

41
1 2 3 4 5 6 7 10 12 13 14 11 15 15 15 15 8 9
South Elevation
Cathedral Plan
West Elevation

VISUAL TRIP

The earliset surviving structure of the Cathedral can be traced to its Norman choir. The planned single west tower was never completed, and was incorporated in later expansions unfinished. The east end and transept were the next sections to be completed, entirely in the Early English style, with the exception of the crossing tower.

43
West tower Scale 1:1000 1. Main Entrance 2. Nave 3. Norman Crossing 4. Northwest Transept 5. Southwest Transept 6. Choir 7. Crossing Tower 8. Northeast Transept 9. Southeast Transept 10. East End 11. Cloister 12. Dormitory 13. Refectory 14. Chapter House 15. Chapel North Elevation North Section East Elevation

(R)EVOLUTION

The nave, the bases of the west towers, as well as the south portion of the west transept, were largely built during the Decorated period.

The north part of the west transept, the top of the west towers, the cloister, the main entrance, as well as the crossing tower, were the last sections to be built, all during the Perpendicular style.

45
View of the dormitory with the nave in the background Scale 1:1000
martin markovsky 2018-2023

Turn static files into dynamic content formats.

Create a flipbook
Architecture Portfolio by Martin Markovsky - Issuu