Dibujo y Presentación de Proyectos - Portafolio

Page 1

1

4

PORTAFOLIO DIBUJO Y PRESENTACIÓN DE PROYECTOS

PROFESORES: CHRISTOPHER

INGRESO ESTACIONAMIENTO TERRAZA COMEDOR COCINA SS.HH MUJERES SS.HH HOMBRES PATIO INGRESO SERVICIO 23.85 3.13 4.29 7.33 2.94 6.15 16.25 6.61 6.71 2.93 2.75 .25 2.90 .15 1.00 .25 1.50 4.25 1.52 2.43 .60 6.00 .25 2.05 .50 2.00 11.20 .25 .90 2.14 .15 2.14 .90 .25 5.56 .90 .60 1.15 .60 .25 1.70 1.50 .03 .03 2.97 .03 2.07 .03 1.72 .03 3.00 1.25 1.55 6.00 3.10 9 8 7 6 5 4 3 2 1 1.00 1.30 .22 1.30 3.00 3.00 Carrera de Arquitectura -Área de Comunicaciones Ciclo 2021-0 Facultad de Ingeniería y Arquitectura
20192433 20180921 20163703 20173011
SCHREIER
DEL CÁRMEN PALACIOS
B 2 3 1 4
JOSE
521

LEVANTAMIENTO

CG6

ESCALERA

CG1 - CG6 - CG7 - CG11

PG T2

SS.HH. + COCINA

CG1 - CG6 - CG7 - CG11

PG T3

CERRAMIENTOS

CG1 – CG5 - CG6 - CG7 – CG8 – CG9 - CG11

PG T4

CARPINTERÍA

CG1 - CG6 - CG7 - CG11

PG

INFORMACIÓN DEL CURSO

PG

T1
ÍNDICE
PG T5
IC

B D C  

.65 3.20

T1

LEVANTAMIENTO 1

El trabajo consistió en el levantamiento de la vivienda de cada alumno a mano alzada o con instrumentos.

1. Dibujos de levantamiento a mano

2. Arquitectura: 1 planta y 1 corte (1:50), cuadro de puertas, mamparas y ventanas.



2 3 1

• Suministrar a los alumnos un instrumental conceptual y operativo que les permita expresar conceptos y planteamientos de diseño con coherencia, rigor técnico e impacto visual.

4 5 6 3.40

3 2 .25 1.53 1.00 .65 .90



B 2 3 .25

3 .25

20.00
2
1 4
CG6 EXPEDIENTE OBJETIVOS 8.10 .25 1.00 .20 3.05  CUARTO DE JUEGOS
DESCRIPCIÓN JARDÍN BAÑO .22

CRÍTICA 1 T1

Esta primera entrega en grupo tuvo como preámbulo el levantamiento personal de vivienda en dibujo a mano de cada integrante, de esta la cátedra eligió uno de los levantamientos para poder realizar las plantas y cortes en el programa de Autocad. Con esto tener un primer acercamiento a los requerimientos de la planimetría en escala 1/50, y esto se vio reflejado en la primera crítica de nuestro trabajo, en donde se hablo sobre qué elementos deberiamos detallar y cómo hacerlo; además de correcciones sobre el dibujo como el hatch y tomar en cuenta sobre que debería verse en el plano.

LEVANTAMIENTO A

MANO DE VIVIENDA

2 3 1

PROBLEMAS CON ESCALA DEL HATCH Y DE LÍNEAS PROYECTADAS

FALTA DE ANOTACIONES Y COTAS INTERNAS IMPIDEN ENTENDER LA CONSTRUCCIÓN 8.10

 
.25 3.10 .25 1.00 .75
A
C   06 07
A
B
PLANTA
8.10 .25 3.10 .25 1.00 .20 3.05  DORMITORIO CUARTO DE JUEGOS LAVANDERIA JARDÍN COCINA BAÑO GARAJE SALA DE ESTAR DE HUÉSPEDES 1.50 .20 1.30 .20 4.55 .20 1.30 1.70 .25 .90 2.30 .25 3.40 .25 20.00 8.10 .25 3.10 .25 1.00 .25 .75 2.50 1.50 .20 .22 .25 .25 3.40 .25 20.00 1.50 .70 1.00 5.45 1.00 .25 1.00 1.53 1.00 .65 .90 .65 3.20 RETIRO A A B B .65 A B D C    A B D C    2 3 1 4 5 6      2 3 1 4 5 6      .25 3.10 .25 1.00 .20 3.05  DORMITORIO CUARTO DE JUEGOS LAVANDERIA JARDÍN COCINA BAÑO GARAJE SALA DE ESTAR DE HUÉSPEDES 4.55 .20 1.30 1.70 .25 .90 2.30 .25 3.40 .25 20.00 .22 .25 .25 3.40 .25 20.00 .70 1.00 5.45 1.00 .25 1.00 1.53 1.00 .65 .90 .65 3.20 .65            DORMITORIO COCINA GARAJE DE HUÉSPEDES 1.30 .20 4.55 .20 1.30 1.70 .25 .90 2.30 20.00 .70 1.00 B .65 3 4        LAVANDERÌA    CORTE A-A' ESC. 1/50 TECHO
8.15
NPT:

COMENTARIOS

En este primer corte presentado en crítica se tuvieron dudas sobre todo en la valor de los trazos, es decir, en su grosor debido a que no se lograba mostrar claramente ciertos elementos que necesitaban mostrarse cortados pero que debido a la cercanía entre trazos, si se ponian del mismo grosor se vería como una sola línea, como en el caso del revestimineto del piso.

COCINA A B D             LAVANDERÌA       DORMITORIO COCINA GARAJE CORTE A-A' ESC. 1/50 CORTE B-B' ESC. 1/50 2 3 1 4 5 6    C
4 5 6   PROBLEMAS
EL REVESTIMIENTO
GARAJE 1.50 .25 1.25 .20 4.50 .25 .65    1.50 .25 1.25 .20 8.10 .25 3.10 .25 1.00 .25 .75 2.50 1.50 .20 1.50 RETIRO A A B D C     5 6  09 08 CRÍTICA
8.10 A A B D C 8.10 .25 3.10 .25 1.00 .20 LAVANDERIA .25 3.40 .25 .65 A A B C   2 1    DORMITORIO COCINA T1
PARA EXPRESAR
DEL PISO
1

PROCESOS

Durate el proceso de esta entrega para lograr una mayor eficiencia se dividió el trabajo dejando a cada integrante encargado de una parte(planta,corte A-Á,corte B-B´ y cuadros de vanos y puertas), y se hicieron reuniones y revisiones del trabajo según el conocimiento adquirido luego de las clases teóricas. Fueron tomados en cuenta los criterios de sistema de funcionamiento(marco de ventanas y puertas) ,elementos que conforman la construcción y cuales no( que se pueden añadir sin necesidad de construir) y distinción en grosores de trazo para lograr una mejor expresion gráfica en la planimetría y no mostrar elementos innecesarios a la escala trabajada.

A B D

COMENTARIOS

Con esta primera entrega tuvimos que tomar conciencia sobre el uso de las anotaciones par facilitar la comprensión de lo mostrado en el plano y la correcta forma de detallar algunas partes de la construccion como el poyo , el revestimiento de piso y paredes; y cómo deben verse estas expresadas en los cortes. Además del uso de las cotas internas y la recomendación por parte de los profesores de pensar en el proceso constructivo para que asi se vea diferenciado qué elemento forma parte de un solo vaciado de concreto y que otros no, como en el caso e del poyo.

COCINA A B D      CORTE B-B'    C         LAVANDERÌA   COCINA GARAJE CORTE A-A' 2 3 1 4 5 6    DORMITORIO DE HUÉSPEDES         
COCINA
     CORTE B-B'    C       LAVANDERÌA CORTE A-A' DORMITORIO DE HUÉSPEDES     VISTA DE POYO Y BALDOSAS DE PISO .25 .75 2.50 D  13 12
ENTREGA T1
2 3 1 4 CUARTO DE JUEGOS BAÑO SALA DE ESTAR .20 .22 .25 20.00 5.45 1.00 .25 1.00 1.53 1.00 .65 .90 3.20 B 3 4    A     MEZZANINE
B A
NPT: 4.15



DESCRIPCIÓN COCINA GARAJE 

3.05 

T2

ESCALERA

JARDÍN .25 3.40 .25

 



  

El trabajo consistió en el desarrollo de un expediente de planos de obra sobre detalles de escalera y su presentación en láminas.



 

   



D



    SALA DE ESTAR 1.50 .20

 2 1

1. Arquitectura: 1 planta y 1 corte (1:50)

2. Detalle Escalera: 1 planta y 2 cortes (1:20) y 4 detalles (1:5 / 1:2 / 1:1)

3. Referentes y chas técnicas



 



• Suministrar a los alumnos un instrumental conceptual y operativo que les permita expresar conceptos y planteamientos de diseño con coherencia, rigor técnico e impacto visual.

 



TECHO NPT: 8.15 

1.50 5.45

 

• Dotar de los fundamentos conceptuales y técnicos a los alumnos para la expresión e caz de detalles constructivos.

• Desarrollar soluciones a nivel de detalle arquitectónico y constructivo, como fundamento para desenvolverse en los campos del diseño arquitectónico, de la construcción, la administración y gestión de obras.

 NPT: 0.15 NPT: 0.15 

NPT: 4.15 



6 5 4 3 2 COCINA PATIO



A 

23 22 21 20 19 18 17 16 15 14 13 12 8

11 4

10 9

RETIRO 4 5 6

MEZZANINE COMEDOR TERRAZA ESTACIONAMIENTO NPT: 0.00 NPT: 0.15 NPT: 0.00

5 2

  

3 1

B D C 23 22 21 20 19 18

CG1 - CG6 - CG7 - CG11
EXPEDIENTE OBJETIVOS D

CRÍTICA 1 T2

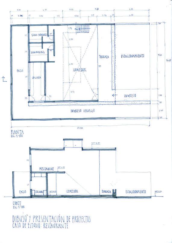
Para este trabajo fue brindado por los docentes un caso de estudio(restaurante) y un referente de escalera, de los cuales se comenzó a desarrollar las plantas y cortes en el programa Autocad, tomando en cuenta los errores del primer trabajo, asi como las recomendaciones de la cátedra . Al igual que en la primera entrega se dividió el trabajo y se compatibilizaron los grá cos para poder criticar la mayor parte del expediente y tener más claras las observaciones dadas por los maestros sobre todo en el desarrollo de la escalera del proyecto.En las primeras críticas nos dieron una retroalimentación sobre los elementos necesarios en estos planos(como ejes,cotas,textos,npt., anotaciones, etc) y como estos elementos deben tener una cierta armonía para no saturar los planos. Para eso nuestro equipo decidió realizar cuadros sobre pisos,carpintería y vanos, para asi tener más espacio libre para las anotaciones.

CUARTO DE JUEGOS BAÑO .22 .25 20.00 1.00 .25 1.00 1.53 1.00 .65 .90 3.20 B 2 3   LEVANTAMIENTO A MANO DE CASO DE ESTUDIO CUADROS DE PISOS, VANOS Y CARPINTERÍA CÓ GO E C ÓN D M N AM N E R G E 1 b 45 HH bres 1 b 45 S H Mujeres 1 o b anco ma 45 C ina mm 2 eláni m ación made 75 C m d 2 mm 2 eláni ación ade 75 Mez anine 2 2 eláni ación ade 75 Te 2 3 Piedr gris 50 g e 1 3 Piedr gris 50 E a onamie 1 mm 3 Piedr gris 50 g e o e io 1 mm 3 Piedr gris 50 io 1 4 M pe 0 ale 5 C D O D O CU D O D A P N E CÓD GO D C C A A N E O A CHO an or iza o ans a e n pe e alumin o iza d d n pe alu in n an or iza d d ans n e n pe e alumin o pe alumin o M mpa or diza ist c pe alu in -01 Pue n aplacada made a - 1.8 2.05 0.85 V-02 1 1.25 1.45 4.51 V-01 3 - 0.85 0.95 V-03 1 0.9 1.8 4.51 M-01 - - 7.85 1 85 V-04 0.3 1.25 - 5.95 ÓD O A O AN HO V-01 0.9 V-02 1.5 4.56 V-03 1.85 4.56 V-04 1.3 M-01 7.9 -01 2.1 0.9 U DR D ANO 16 17
PRIMERA PLANTA ESC. 1/50 INGRESO ESTACIONAMIENTO TERRAZA COMEDOR COCINA SS.HH MUJERES SS.HH HOMBRES PATIO INGRESO SERVICIO 23.85 16.25 A B C D 2.94 6.70 6.61 1 2 3 4 5 6 3.13 4.29 7.33 2.94 6.15 1 2 3 4 5 6 A B C D 16.25 6.61 6.71 2.93 23.85 3.13 4.29 7.33 2.94 6.15 .25 2.75 .25 2.90 .15 1.00 .25 1.50 2.50 3.27 2.43 .60 6.00 .25 2.05 .50 .25 .90 1.00 4.56 .25 1.00 2.04 .15 2.04 1.00 .25 .25 2.75 11.85 3.00 6.00 .25 2.05 .50 2.00 11.20 .25 .90 2.14 .15 2.14 .90 .25 5.56 .90 .60 1.15 .60 .25 1.70 1.50 3.00 .03 3.00 .03 2.97 .03 2.07 .03 1.72 .03 3.00 2.77 1.05 6.00 3.10 2.80    

PROBLEMAS CON EL HATCH Y VALORACIÓN DE TRAZO

COMPLICA LA COMPRENSIÓN

CRÍTICA 1 T2

Se buscó criticar primero la comprensión del edi cio usado para caso de estudio, con lo cual en el grupo no hubo inconvenientes mayores, pues ciertos procesos de levantamiento se repetian como en la primera entrega del curso, como el cambio de nivel de la losa del primer nivel. Por otro lado, a pesar de haber comprendido el concepto de valoración de hatch y de trazos en la primera entrega aun se presentaron problemas con este, sobre todo respecto al criterio de proceso constructivo de elementos de vaciado de concreto como el poyo de la cocina.En esta primera fase de escala de 1/50 consideramos visibles tanto en planta como en corte respecto a la escalera los peldaños y su per l de soporte, que podrían ser acotados desde el exterior del proyecto y también interiormente sin complicar la claridad de la expresión grá ca; además se muestra la lógica de diseño de la escalera,la cual se caracteriza por la forma en que los peldaños se anclan al per l de acero.

CORTE B-B' ESC. 1/50

19 18

                  6 5 4 3 2 1 CORTE A-A' ESC. 1/50 COCINA PATIO MEZZANINE COMEDOR TERRAZA ESTACIONAMIENTO NPT: 0.00 NPT: 0.15 NPT: 0.00 NPT: 4.15   23 22 20 19 16 14 13 10 NPT: 0.15 NPT: 0.15   15 TECHO NPT: 8.15 COCINA  NPT: 0.15  

T2 CRÍTICA 1

El siguiente paso fue pensar en el espacio que ocuparía la escalera dentro del edi cio y cómo implementar el referente de escalera en el diseño de esta para el expediente. Para ello tuvimos cuidado de que la escalera no ocupe más espacio del necesario; por lo que el primer diseño consistió en una escalera de 4 tramos, pero luego de la crítica cambiamos a una escalera pegada al muro ya que 4 tramos en una escalera eran demasiado complicado y cansado para subir solamente un nivel.

MODELO DE LA ESCALER A

PUNTOS A MEJORAR

REFERENTE DE MATERIALES

8.15

Lo que más se quizo criticar de la escalera fue su espacio respecto al edi cio por lo que en esta crítica no hubo tanto detalle en los cortes y planta como debería ser, es decir , el hatch de lo cortado en los peldaños de madera y e el per l de metal.

Valor de trazos y de hatch

Comprensión de elementos visibles según escala

            B B     A A PLANTA 20 21
COCINA  B-B'    .19 .04 .01 17 16 14 13 12 11 10 8 7 5 15 9 6 DESCRIPCIÓN D ÁREA ÁREA FUNCIÓN: https://w w w.taranwilk hu.com/warley-
COMENTARIOS
close
PERNO 1 PERNO 2 BARANDA DE ACERO DE PERFIL CUADRADO
   B A    TECHO NPT:

DESCRIPCIÓN

ÁREA TOTAL DEL TERRENO: 387.563 m2

ÁREA NO CONSTRUIDA: 87.64 m2

FUNCIÓN: RESTAURANTE

TERRAZA

NPT: 0.15

FALLA EN LA LÓGICA CONSTRUCTIVA Y FALTA DE ORDEN EN ACOTACIÓN

TALLE: ESCALERA EN FORMA DE L CON PERFIL DE ACERO Y PELDAÑOS DE MADERA DE PINO FIJADA CON 2 PERNOS

T2 CRÍTICA 1

COMENTARIOS PUNTOS A MEJORAR

MATERIALES

El primer diseño del empotramiento de la escalera a la losa no fue aprobado por la cátedra debido a su esfuerzo innecesario , y por ende numerosos pernos; esto en cuanto a la lógica constructiva. En cuanto a la expresión grá ca , en esta critica nos dijeron que la acotación paralela a los objetos solo ensuciaba el dibujo en vez de aportar información, además de la valorización de trazo, pero esto se debió a falta de organización en equipo para esta crítica.

DETALLE 03

Valor de trazos y de hatch Lógica constructiva Orden de cotas y anotaciones

FALTA DE EXPRESIÓN GRÁFICA NO SE ENTIENDE QUÉ ES CORTADO COTAS SIN ORDEN

DETALLE

B
23
DETALLE 03 ESC: 1/2 DETALLE 04 ESC: 1/2 .30 135° .07 .19 .21 .09 .01 .31 .05 .05 .16 .19 .04 .01
ESC: 1/2 .30 135° .07 .19 .21 .09 .01 .05
ESC:
.31 .05 .16
1/2
.19 .04 .01
D
C

T2 ENTREGA

COMENTARIOS PUNTOS A MEJORAR

En el desarrollo de la planta aparecieron nuevos conceptos de elementos a aplicar como el “arranque de piso” para las texturas del suelo que indicaría por donde comenzaría a construirse este. También fue en esta fase en donde se comenzó a utilizar cotas internas en planta debido a la necesidad de comprensión del espacio, que hubiera sido complicado de comprender con cotas externas, estas indicarían las medidas de elementos destinados a la construcción solamente.

Valoración y tipo de hatch Orden en las cotas y anotaciones Traslape de información(cotas y proyecciones)

VISTA DE ARRANQUE Y COTAS INTERNAS

COCINA SS.HH MUJERES SS.HH HOMBRES PATIO 23.85 16.25
6.70 6.61
3.13 4.29 7.33 .25 2.75 .25 2.90 .15 1.00 .25 1.50 4.25 4.56 .25 1.00 2.04 .15 2.04 1.00 .25 .90 2.14 .15 2.14 .90 .25 5.56 .60 1.15 .60 .25 1.70 1.50 3.00 1.55 6.00
1.00 1.30
COMEDOR
A B
4 5 6
A
B
PRIMERA PLANTA ESC. 1/50 INGRESO ESTACIONAMIENTO TERRAZA COMEDOR COCINA SS.HH MUJERES SS.HH HOMBRES PATIO INGRESO SERVICIO 23.85 16.25 A B C D 2.94 6.70 6.61 1 2 3 4 5 6 3.13 4.29 7.33 2.94 6.15 1 2 3 4 5 6 A B C D 16.25 6.61 6.71 2.93 23.85 3.13 4.29 7.33 2.94 6.15 .25 2.75 .25 2.90 .15 1.00 .25 1.50 4.25 1.52 2.43 .60 6.00 .25 2.05 .50 .25 .90 1.00 4.56 .25 1.00 2.04 .15 2.04 1.00 .25 .25 2.75 11.85 3.00 6.00 .25 2.05 .50 2.00 11.20 .25 .90 2.14 .15 2.14 .90 .25 5.56 .90 .60 1.15 .60 .25 1.70 1.50 .03 .03 2.97 .03 2.07 .03 1.72 .03 3.00 1.25 1.55 6.00 3.10 A A 1.00 1.30 .22 1.30 3.00 3.00 B B PRIMERA PLANTA ESC. 1/50 TERRAZA COMEDOR COCINA SS.HH SS.HH PATIO INGRESO 23.85 16.25 A B C D 2.94 6.70 6.61 1 2 3 4 5 6 1 2 3 4 5 6 A B C D 16.25 6.61 6.71 2.93 23.85 3.13 4.29 7.33 2.94 6.15 .25 2.05 .50 .25 .90 1.00 4.56 .25 1.00 2.04 .15 2.04 1.00 .25 .25 2.75 11.85 3.00 6.00 .25 2.05 .50 2.00 11.20 .25 .90 2.14 .15 2.14 .90 .25 5.56 .90 3.00 .03 3.00 .03 2.97 .03 2.07 .03 1.72 .03 1.05 6.00 3.10 2.80 B
PLANTA      
CORTE

DISTRIBUIDOR: Homedepot

DETALLE 04

ESC: 1/2

DISTRIBUIDOR: Hiperaluminio

https://w ww.promar t.pe/perno - coche ---tuerca---arandela-3-8x3--x4-unids-/p

https://w ww.promar t.pe/huacha-plana-3-8--x100-unids/p

https://w w w.homedepot.com.mx/ferreteria/ferreteria- gene tornillos-tuercas-y-arandelas/tornillo -para-metal-981986

PERFIL DE VIGA TUBULAR CUADRADA

HUECA DE ACERO DE 15CM

DISTRIBUIDOR: Aceros Arequipa

chas/2020-11/9.%20HOJA%20TECNICA-TUBO_LAC- GA LV_0.pdf?fv=7WhGsDJ7

En esta segunda entrega aprendimos lo importante de la orientación de los planos a la construcción por lo que colocar ambientacion (personas y carros) es totalmente innecesaria. Uno de nuestros problemas al hacer los cortes fue que no poniamos las anotaciones necesarias para cada pieza construida, o no especificabamos sus medidas o materialidad como en las anotaciones de la cocina del corte B-B´.

PELDAÑO MADERA DE PINO DE GROSOR 5cm

DISTRIBUIDOR: Sodimac

https://ww w.sodimac.com.pe/sodimac-pe/produc t/2856654/TAbla- de -Madera-Pino -Radiata1x6x105-pies/2856654

ORNILLOS ADHESIVOS

DISTRIBUIDOR: Sodimac

https://ww w.hiperaluminio.com/catalogo/tubo - cuadrado/ -

https://ww w.sodimac.com.uy/sodimac-uy/produc t/2252406/tapa-tornillo -adhesivo - 20-unidades -haya-13- cm

B

ANOTACIÓN NO ESPECIFICA DE BARRA (SIN ESPESOR)

Alinear mejor las anotaciones y que las cotas no pasen por los hatch para que no se dificulte leerlas y no ensucien el dibujo.

No deben verse monigotes en cortes arquitectónicos de estructuras.

  3 2 1 CORTE A-A' ESC. 1/50 COMEDOR TERRAZA ESTACIONAMIENTO NPT: 0.15 NPT: 0.15     D C A CORTE B-B' ESC. 1/50      MEZZANINE INGRESO SERVICIO COCINA NPT: 0.15 NPT: 0.15 NPT: 0.15 SS.HH MUJERES SS.HH HOMBRES         TECHO ESCALERA      
ESTACIONAMIENTO TERRAZA 1
2.94 6.15
16.25 6.71 1.52 2.43 .60 6.00 11.20 .03 .03 2.97 .03 2.07 1.25 A 8 7 6 1.30 .22 3.00 3.00
PUNTOS
ENTREGA
                  6 5 3 2 CORTE A-A' ESC. 1/50 COCINA PATIO MEZZANINE COMEDOR TERRAZA ESTACIONAMIENTO     TECHO NPT: 8.15
3
COMENTARIOS
A MEJORAR
T2
(ESCALERA) (EMP )
  CORTE A-A' CORTE MEZZANINE NPT: 4.15 COCINA NPT: 0.15 NPT: 0.15 NPT: 0.15 SS.HH MUJERES SS.HH HOMBRES   ESCALERA   

A PINO ESTRUC TURA DE ACERO SOPOR TE

escala 1/20 tuvimos que corregir la escala del hatch usado en los muros cortados porque al momento de plotearlo las líneas salian muy separadas y con bajo grosor, lo que no permi tía diferenciar que ele mentos estaban corta dos y cuales no;y cuales se encontraban adelante o detrás en cuanto a profundidad. Debido al aumento de escala se mostraron a mayor detalle elementos como la acotación entre peldaños de la escalera en los cortes y planta; y la proyección de pernos de anclaje de los peldaños en la planta. En esta fase se comenzó a reflexionar sobre la lógica constructiva de la escalera, su proceso constructivo(qué elementos se instalan primero y cuáles después), y qué elementos de la escalera serían necesarios de detallar a una mayor escala para facilitar la comprensión de la estructura de la escalera, y a su vez su construcción en el proyecto.

CORTE B-B'

UNIVERSIDAD DE LIMA

FACULTAD DE INGENIERIA Y ARQUITECTURA

DIBUJO Y PRESENTACIÓN DE PROYECTOS

 A-07



RESTAURANTE REFERENTES 

INGRESO SERVICIO

NPT: 0.00

COMENTARIOS PUNTOS A

A pesar de que se tenía noción de que al aumento de escala se aumentaba el nivel de detalle en la gráfica, la escalera en escala 1/20 se parece mucho a la escalera 1/50 excepción de la vista de las proyecciones de piezas, la presencia de pernos y la acotación de las uniones de peldaños a perfil de acero.

MEJORAR

Recordar que la linea de corte pasa por 1.20 del npt por lo que debería pasar por el escalón 6.

Mejorar la valoración del trazo y del hatch para comprender qué está cortado y que está más o menos profundo en la gráfica.

CORTE A-A' ESC. 1/20
0.05 0.03 0.01 2.77 1.23 4.00 0.15 0.50 1.00 0.03 0.16 PLANTA ESC. 1/20 0.25 0.25 0.25 0.25 0.25 11 B MEZANINE 0.52 0.30 0.30 0.30 0.30 0.30 0.15 0.30 1.50 0.75 0.15 1.35 14.25 COMEDOR 4.56 0.22 0.22 0.30 0.30 0.30 0.30 0.30 0.30 0.30 0.30 0.30 0.30 0.30 0.30 0.30 0.30 0.09 1.79 1.00 1.20 1.00 COMEDOR MEZANINE 0.58 0.58 DETALLE CORTE A-A' ESC. 1/20 CORTE B-B' ESC. 1/20 0.03 0.01 2.77 4.00 0.50 0.03 0.16 0.25 0.50 0.25 0.25 0.25 0.25 0.25 0.25 0.25 0.25 0.25 0.25 0.25 0.25 0.25 0.25 0.25 1.30 0.03 3.75 5.55 COMEDOR MEZANINE PLANTA ESC. 1/20 1.30 0.25 0.25 0.25 0.25 0.25 0.25 0.45 0.45 0.33 A B B MEZANINE 0.52 0.30 0.30 0.30 0.30 0.30 0.15 0.30 1.50 0.75 0.15 14.25 COMEDOR 4.56 0.22 0.22 0.30 0.30 0.30 0.30 0.30 0.30 0.30 0.30 0.30 0.30 0.30 0.30 0.30 0.30 0.30 0.09 1.79 1.00 1.00 COMEDOR MEZANINE 0.58 0.58 28 29
FALTA DE ELEMENTOS PROYECTADOS Y DIFERENCIACIÓN DE LO CORTADO CORTE B-B' ESC. 1/20
ENTREGA
            B B     A A CORTE A-A' CORTE B-B' PLANTA

BARANDA DE ACERO
   

La última fase del trabajo en donde se desarrollaron detalles e isometrías en escala 1/2 . Para esto fue necesario realizar una investigación pues la escalera no era prefabricada, por lo que se pensó a fondo cómo podría ser construida la escalera y cómo sus piezas se unirían a la losa y entre sí, es decir, su proceso constructivo Para ello se consiguió información sitios web de tiendas como sodimac, maestro y promart, además de proveedores especializados en ciertas uniones como perfiles de acero y peldaños de madera.

COMENTARIOS PUNTOS A MEJORAR

Se tomaron en cuenta el tipo de perno y su espesor necesario para la uniones de la escalera a la losa de concreto, y la unión entre sus propias piezas.También se decidió cómo sería mejor la union entre dos piezas , si empernadas, como los peldaños a la lamina de acero, o soldadas como la lamina de acero al perfil de acero de la escalera.

Primero se desarrollaron los detalles, y a partir de estos las isometrías, aunque tanto detalles como isometrías se hicieon para mejorar la comprensión del proceso constructivo de la escalera, las isometrías se creyeron pertinentes para graficar con mayor precisión la ubicación de algunas piezas en cuanto a profundidad-

Líneas de ejes en los pernos.

Usar bien el espacio en las láminas, esta bien poner los detalles con los cortes.

Usar en los detalles unos tetos y cotas con menor tamaño

Poner nombre a cada detalle.

HUELLA DE MADERA DE PINO DE 30X125 CON GROSOR DE 5cm TRATADA CON DETALLE 04 ESC: 1/2 .10 .30 .05 .15 .05 .15 .06 .05 .05 .05 .10 .05 .05 .05 .06 .02 .05 .20 .25 .02 DETALLE 03 ESC: 1/2 135° .21 DETALLE 1 ESC: 1/2 .05 .05 .01 .05 .19 .07 135° DETALLE 2 ESC: 1/2 .05 .10 .15 .30    AXONOMETRIA DETALLE 02 ESC: 1/2 AXONOMETRIA DETALLE 04 ESC: 1/2 AXONOMETRI DETALLE 01 ESC: 1/2 .08 1.15 DETALLE 2 ESC: 1/2
PRIMERA PLANTA ESC. 1/50 INGRESO SERVICIO C D 2.94 4 5 6 23.85 3.13 4.29 7.33 .25 2.05 .50 .25 .90 1.00 .25 2.75 11.85 .90 3.10 B 31 30 T2 ENTREGA
ESC.

Todo el expediente se resumió en la ficha técnica en donde se pueden encontrar los materiales implementados asi como las piezas necesarias para las uniones y para construir la escalera. También se encuentra la imagen del referente de escalera a partir del cuál se adaptó el diseño para aplicarlo al caso de estudio de restaurante brindado al inicio del encargo. El objetivo de esta ficha técnica es facilitar la información dentro de todo el expediente, es decir, se puede ver la ficha técnica para tener una idea de lo que está representado gráficamente en todo el expediente, tener una idea de los materiales que se implementarán y por tanto una idea del proceso constructivo, y con eso tener más claro qué es lo que se quiere construir.

DISTRIBUIDOR: Hipe aluminio

https://www.sodima com.pe/sodima -pe/pdu t/2856654/ bla- -Made a- ino-Radi ta1x6x105-pies/2856654

DISTRIBUIDOR:

DISTRIBUIDOR: odimac https://www.sodima com.uy/sodima -uy/p odu t/2252406/tapa- o nill -adhesi - 20-unidades -h a-13-cm

DETALLE 04

ESC: 1/2

INGRESO 1 2
C D 2.93 2.94 6.15 3.00 6.00 .25 2.05 .50 2.00 .03 1.72 .03 T2 ENTREGA CORTE
ESC. 1/50 31 30 DIBUJO PRESENTACIÓN DE PROYECTOS UNIVERSIDAD DE LIMA FACULTAD DE INGENIERIA Y ARQUITECTURA  A-07 RESTAURANTE REFERENTES    DESCRIPCIÓN DE ALLE: ESCALE A EN FORMA DE CON PERFIL DE ACERO PELDAÑOS DE MADERA DE PINO FIJAD CON 2 PERNOS ÁREA TO AL DEL TERRENO: 387.563 m2 ÁREA NO CONSTRUIDA: 87.64 m2 FUNCIÓN: RES AU ANTE A PINO ESTRUCTURA DE ACERO https://www.hipe aluminio om/c talogo/tub -cuad ado/chas/2020-11/9.%20HOJA%20TECNI A-TUBO_L C-GA V_0.pdf?fv=7WhGsDJ7 ttps://www.p oma .pe/pe o- och ---tue ca---a andela-3-8x3--x4-unids-/p DISTRIBUIDOR: Homedepot
3
B-B'
odimac DISTRIBUIDOR: A os equipa ttps://www.p oma .pe/huacha-plana-3-8--x100-unids/p https://www.ta a wilk u om/wa ley-close ttps://www.homedepo com.mx/ e ia/ e e ia-gene al/nillos-tue cas-y-a andelas/ o nill -pa a-metal-981986 MODELO DE LA ESCALERA REFERENTE DE MATERIALES PERNO 1 PERNO 2 (ESCALE A (EMPOTRAMIENTO BARANDA DE ACERO DE PERFIL CUADRADO HUECO DE 3X3cm PERFIL DE VIGA TUBULAR CUADRADA HUECA DE ACERO DE 15CM PELDAÑO MADERA DE PINO DE GROSOR 5cm ORNILLOS ADHESIVOS MATERIALES SOPORTE BARANDA DE ACERO
VISTA DETALLE EN ESCALA TRABAJADA EN EXPEDIENTE HUELLA DE MADERA DE PINO DE 30X125 CON GROSOR DE 5cm TRATADA CON ANTITERMITA Y ACABADO EN POLIURETANO
.10 .30 .05 .15 .05 .15 .06 .05 .05 .05 .10 .05 .05 .05 .06 .02 .05 .20 .25 .02

SS.HH. + COCINA

El trabajo consistió en el desarrollo de un expediente de planos de obra sobre detalles de SS.HH. y Cocina, y su presentación en láminas.

1. Arquitectura: 1 planta y 1 corte (1:50), cuadros de vanos y cuadro de puertas, mamparas y ventanas.

2. Detalles de 1 SS.HH.: 1 planta y 4 cortes / elevaciones (1:20), detalles de tablero, espejo con iluminación y encuentro entre materiales (1:5 / 1:2 / 1:1).

3. Detalle de 1 Cocina: 1 planta y 4 cortes / elevaciones (1:20), y detalles (1:10 / 1:5).

4. Referentes y chas técnicas.

• Suministrar a los alumnos un instrumental conceptual y operativo que les permita expresar conceptos y planteamientos de diseño con coherencia, rigor técnico e impacto visual.

• Dotar de los fundamentos conceptuales y técnicos a los alumnos para la expresión e caz de detalles constructivos.

• Desarrollar soluciones a nivel de detalle arquitectónico y constructivo, como fundamento para desenvolverse en los campos del diseño arquitectónico, de la construcción, la administración y gestión de obras.

T3
MEZZANINE NPT: 4.15 INGRESO SERVICIO NPT: 0.00       TECHO NPT: 8.15 ESCALERA          NPT: 0.15 NPT: 0.15 SS.HH MUJERES SS.HH HOMBRES  
CG1 - CG6 - CG7 - CG11
OBJETIVOS EXPEDIENTE DESCRIPCIÓN

T3 CRÍTICA 1

Esta entrega comenzó con el rediseño de la distribución de espacio en los baños y cocina del edificio referente de estudio, buscando sobre todo optimizar el espacio existente para el referente que contaba con una tipología de restaurante y encontrar una distribución en la cual pudiera aplicarse los elementos encontrados en los referentes brindados por la cátedra. Paralelamente a este proceso se investigó medidas oficiales para cada espacio trabajado según documentos oficiales como el libro de Neufert y el R.N.E, además de buscar elementos constructivos respeto a los referentes de baño y cocina en paginas como sodimac, promart y en importadores especializados.

D C B A
     MEZZANINE NPT: 4.15 INGRESO SERVICIO NPT: 0.00       TECHO NPT: 8.15 ESCALERA             NPT: 0.15 NPT: 0.15 SS.HH MUJERES SS.HH HOMBRES   COCINA
CORTE B-B'
20 20
SS.HH. MUJERES

SS.HH.

En este caso se señalo que solo se debía detallar un baño. Asimismo, que se debia mejorar los elementos del hatch, como el tamaño de las cotas y ejes, los cuales estaban incompletos. Y detallar más en el corte, ya que la escala era más grande. A

T3 CRÍTICA 1

REFERENTE

Terminada esta primera parte se pasó a desarrollar las plantas y cortes en escala 1/20 una planta y cuatro cortes por cada espacio, con la finalidad de que se entendiera en su totalidad la vista del espacio por cada muro teniendo presente la diferencia de los detalles visibles y los no visibles por el cambio de escala. Para esta fase de desarrollo se implementaron ejes de instalación para elementos internos de cada espacio, y debido al aumento de escala y por ende de detalle se mostró con mayor claridad la diferencia entre los muros cortados, y el revestimiento de estos. De igual modo la diferencia y el detalle entre los muros y los elementos instalados.

COMENTARIOS PUNTOS POR MEJORAR

Debido a la poca información, se tuvo complicaciones en relación a los procesos de instalación de baño y cocina referente a los graficos y determinación de información respecto a cada escala. Razón de ello, fue la aglomeración de información en una escala 1/50 y poca información en la de 1/20.

B

• Valorización del hatch de acuerdo a la escala.

• Ejes y cotas completos.

• Nivel de detalle respecto a la escala.

SS.HH MUJERES SS.HH HOMBRES A A                                
PLANTA BAÑO CORTE A-A'
20 20

T3 CRÍTICA 1

PLANTA -COCINA

REFERENTE

CORTE A

COCINA

COCINA

En este caso se señalo que se tenía que diferenciar mejor las líneas de proyección en la planta. Asimismo, faltaba señalar las cotas y valorar mejor. Por otra parte, en el corte se tenía que graficar mejor la sección de la ventana, ya que se debia mostrar las dos hojas de vidrio.

VENTANA

COMENTARIOS

Igual que el anterior caso, se tuvo la mismas complicaciones. Asimismo, al ser un espacio industrial, se tenía que investigar más sobre los materiales y elementos, teniendo asi más complicaciones.

A MEJORAR

•Valorización del hatch de acuerdo a la escala.

•Ejes y cotas completos

•Nivel de detalle respecto a la escala.

•Líneas de proyección

COCINA                       COCINA                                 A A 20 20
PUNTOS
        

T3 ENTREGA

En el caso de los sanitarios, solo se detallo el de varones, mostrando los accesorios habituales y particulares por cada caso. Se tomo en consideración los referentes dados, mostrando en mayor detalle en los lavamanos , el cual estaba integrado con un espejo iluminado y con perfil de madera. Este detalle se tenía que expresar a través de diferentes tipos de hatch. Asimismo, se enfatiza la ventilación del baño a partir de las vanos altos, los cuales son graficados con mejor precisión tanto en la planta como los cortes.

20





           







    

C

 

 

D         

 

Al estar en una escala mayor, faltaba gráficos que detallar en los diferentes cortes. También, tuvimos problemas al diferenciar los materiales en los planos, ya que algunas de las texturas proporcionadas por la cátedra no se podían emplear.

 





4  



 

 







4 5  

 

PUNTOS POR MEJORAR

• Valorización del hatch de acuerdo a la escala.

• Ejes y cotas a escala.

• Nivel de detalle respecto a la escala.

B B

20
SS.HH HOMBRES A A  A B 4 5 B B B 4 5 A                                     
C D          
TEXTURA / HATCH
C D
4 5
COMENTARIOS

T3 ENTREGA

Finalmente se realizaron vistas de los detalles en escala 1/2 de los elementos constructivos que consideramos necesarios para poder instalar las piezas correspondientes al baño, prestando especial atención a las uniones y anclajes hacia los muros y losas de concreto. En estas vistas en detalle se enfatizó el proceso de instalación detallando la distancia entre ejes de pernos con respecto al elemento instalado y al muro en donde se instalaría dicho elemento. CUBÍCULOS

Uno de los problemas encontrados fue la falta de comunicación oportuna como grupo, ya que el detalle del baño resulto ser diferente a los del corte. Asimismo, los hatch no estaban en la escala correspondientes

• Valorización del hatch de acuerdo a la escala.

• Ejes y cotas a escala.

• Cotas de instalación

• Nivel de detalle respecto a la escala.

      5 4       5   
ESC:
.22 .10 .23 .18 .06 .01 .02 .02 .02 .01 .25 .25 .08 .06 .05 .03 .03 .10 .05 .10 .08 .05 DETALLE
ESC: 1/2 .05 .01.02 .02 .01.02 .03 .11
DETALLE 3
1/2
4
DEL TECHO CIELO
ILUMINACIÓN DE ESPEJO
20 20
ILUMINACIÓN
RASO
LAVADERO
COMENTARIOS PUNTOS POR MEJORAR

COCINA - CORTE ESC 1/20

Gráfico en escala real, igual que en el expediente

DETALLE 2 - BAÑO ESC 1/2

Gráfico en escala real, igual que en el expediente

             .25 .25 .03 .03 .10 .05 .10 .08 .05
T3 ENTREGA

T3 ENTREGA

En el caso de la cocina, esta se encuentra adaptada para un restaurante, la misma que tiene como características el referente proporcionado. De este modo, se diseño el uso correcto de los muebles y artefactos a instalar. El material a emplearse en la barra será de madera de roble, la misma que se expresa en los cortes a traves de una diferente textura.

CORTE COCINA A-A'

LÍNEAS DE PROYECCIÓN

ESC. 1/20

COCINA

Como grupo, en el caso de la cocina, no hubo una buena comunicación para poder detallar mejor esta parte del restaurante, Asimismo, en los cortes nos faltó detallar más y haber ubicado de manera correcta los cortes para dar la mayor información.

No se logra apreciar las divisiones

• Valorización del hatch de acuerdo a la escala.

• Ejes y cotas a escala.

• Cotas de instalación

• Nivel de detalle respecto a la escala.

CORTE COCINA B-B'

20 20
A MEJORAR COCINA A A PLANTA COCINA B B C C D D B B C C 4 5 4 5       COCINA
COMENTARIOS PUNTOS
5 4 5 COCINA 02
5 5
02

DETALLE 1

DETALLE 2

TEXTURA / HATCH

No se aprecia lo cortado

ANEXO DE LAVADERO

DISTRIBUIDOR: Sodimac

COMENTARIOS

Asimismo, en el caso de la cocina no se logro detallar todos los elementos por desconocimiento, y se mostró un detalle que no proporcionaba su ciente información. La valorización no es la correcta

PUNTOS A MEJORAR

•Valorización del hatch de acuerdo a la escala.

•Ejes y cotas a escala.

•Cotas de instalación

•Nivel de detalle respecto a la escala.

•Comprensión de proceso de instalación

20 20
T3 ENTREGA
4
4

T3 ENTREGA

COCINA A A

B B

PLANTA - COCINA ESC 1/20

Gráfico en escala real, igual que en el expediente

DETALLE 2 - COCINA ESC 1/2

Gráfico en escala real, igual que en el expediente

20
20

MODELO DE LA COCINA COCINA

REFRIGERADORA

DESCRIPCIÓN

MODELO DE BAÑO

ÁREA CONSTRUIDA: 27.78 m2

ALTURA: 3 m

FUNCIÓN: Cocina-Restaurante

MATERIALES

DISTRIBUIDOR: Hiraoka

CAMPANA

DISTRIBUIDOR: Grupo Inoxchef

https://inoxchef.com/producto/cocina-industrial-mural-de-06-quemadores-plancha-y-horno-2/https://hiraoka.com.pe/refrigeradora-samsung-side-by-side-rs50n3503s8-pe-no-frost-501l

LUMINARIA

DUCTO DE VENTILACIÓN

REFERENTE DE MATERIALES

Melamina blanca

Pernos y huacha plana 3/8"

DISTRIBUIDOR: Infhostel

https://www.infhostel.com/como-se-dimensiona-una-campana-industrial/

DISTRIBUIDOR: Promart

https://www.promart.pe/lampara-colgante-lucie-e27-1l/p

LAVADERO DE ALIMENTOS GRIFO

INFORMACIÓN: Promess

https://promess.ru/es/kak-pravilno-vypolnit-podklyuchenie-kuhonnoi-vytyazhki-k-ventilyaciikuhonnye.html

LAVADERO DE UTENSILIOS

Mayólica color blanco Acero inoxidable

Rollo de 5 metros de Tira de Luz LED Directa a 220v.

MATERIALES

DISTRIBUIDOR: Promart

https://www.promart.pe/huacha-plana-3-8--x100-unids/p

Listones de madera Roble Piedra de cuarzo

Panel pdf melamine blanco 10mm

SOPORTE

DISTRIBUIDOR: Promart https://www.promart.pe/tablero-mdf-alto-brillo-blanco/p?gclid=CjwKCAiAsOmABhAwEiwAEBR0ZlgVr wmuLQAJKc2JSk3mPxQ3-DHPLj20YPb0

Concreto armado

DISTRIBUIDOR: Amazon

https://www.amazon.es/LED-transformador-Resistente-luminosidad -Electricistas/dp/B07BVFDW1C/ref=r_1_6?__mk_es_E S=%C3 %85M %C3%85%C5%BD%C3%95% C3%91&dchild=1&keywords=tiras+de+led&qid=1612341970&s=lighting&sr=1-6

de plantilla de doble corte universal T-Tracks con agujeros de montaje preperforados

DISTRIBUIDOR: Sodimac

https://www.sodimac.com.pe/sodimac-pe/product/2703459/Griferia-Monocomonado-deCocina-IN-915/2703459

TORNILLO (dispensa)

DISTRIBUIDOR: Sodimac

https://www.sodimac.com.pe/sodimac-pe/product/2121751/Tornillo-Madera-Aglomerada4x40mm/2121751

DISTRIBUIDOR: Sodimac

https://www.sodimac.com.pe/sodimac-pe/product/1251317/Lavadero-1-poza-sin-escurridero -40-cm/1251317

TAPA PARA TORNILLO DISTRIBUIDOR: Sodimac

https://www.sodimac.com.pe/sodimac-pe/product/1036661/Tapa-para-tornillo-blanco /1036661

DISTRIBUIDOR: Sodimac

https://www.sodimac.com.pe/sodimac-pe/product/227471X/Lavadero-1-poza-sin-escurridero -40-cm/227471X

SOPORTE DE ESTANTE

con Cubierta Blanca Lechosa

TORNILLO 1 (ventana)

DISTRIBUIDOR: Amazon

DISTRIBUIDOR: Emuca DISTRIBUIDOR: Promart

https://www.emuca.es/sistemas-de-montaje-tornillos-y-tuercas/soportes-de-estantes-paramuebles/soportes-de-plastico-para-estantes-de-madera/soporte-para-estante-con-pernometalico/soporte-para-estante-con-perno-metalico-5081020-1000-5-transparente

TORNILLO 2 ( ventana)

BASTIDORESY

https://www.promart.pe/tornillo-autorroscante-amarillo-4x50-mm-x500-unids-/p

https://www.amazon.es/Aluminio-LED-Difusor-completo-instalacion-incluido/dp/ B07Q9WK6M2/ref=sr_1_2?dchild=1& keywords=marcos+de+led&qid=161234 1483&s=lighting&sr=1-2

DISTRIBUIDOR: Promart

https://www.promart.pe/tornillo-shipboard-5x60-mm-x100-unids-/p

RESTAURANTE REFERENTES

https://www.amazon.com/-/es/carpinter%C3%ADa-plantilla-universal-T-Tracks-preperforados/ dp/B083K2MKJR

DISTRIBUIDOR: Sodimac

DISTRIBUIDOR: Amazon https://www.sodimac.com.uy/sodimac-uy/product/2252406/tapa-tornillo-adhesivo- 20-unidades -haya-13-cm

20 20 ..\..\..\OneDrive\Escritorio\DIBUJO PRESENTACIÓN\ULIMA.jpg
ÁREA
FUNCIÓN: PORCELANATO
ANEXOS
DESCRIPCIÓN DETALLE: ÁREA TOTAL
NO
DIBUJO Y PRESENTACIÓN DE PROYECTOS UNIVERSIDAD DE LIMA FACULTAD DE INGENIERIA Y ARQUITECTURA
A-14
20 T3

El trabajo consistió en el desarrollo de un expediente de planos de obra sobre detalles de cerramientos (fachadas y sol y sombra), y su presentación en láminas.

1. Arquitectura: 2 plantas y 1 corte (1:50), cuadros de vanos y cuadro de puertas, mamparas y ventanas.

2. Detalle de Cerramiento (sol y sombra o fachada): 1 planta (ejes y geometría) y 1 escantillón (planta, sección y elevación) (1:20), y detalles de encuentros (1:5 / 1:2 / 1:1).

3. Referentes y chas técnicas.

OBJETIVOS

• Suministrar a los alumnos un instrumental conceptual y operativo que les permita expresar conceptos y planteamientos de diseño con coherencia, rigor técnico e impacto visual.

• Dotar de los fundamentos conceptuales y técnicos a los alumnos para la expresión e caz de detalles const ructivos.

• Desarrollar soluciones a nivel de detalle arquitectónico y constructivo, como fundamento para desenvolverse en los campos del diseño arquitectónico, de la construcción, la administración y gestión de obras.

A B              A B
T4 CERRAMIENTOS
DESCRIPCIÓN CG1 – CG5 - CG6 - CG7 – CG8 – CG9 - CG11 DORMITORIO PATIO SS.HH. TERRAZA PISCINA E D C B
3 4 5 A WC COCINA SS.HH. SALA 1.40 .25 .80 .95 .25 2.10 .65 .25 10.00 .25 .25 1.00 3.00 .50 12.00 .25 4.75 .25 A 10 11 12 13 14 15 16 17 1 2 3 4 E D C
B B C
EXPEDIENTE
A
B A

T4 ENTREGA

Al iniciar el trabajo se realizó el levantamiento arquitectónico de una vivienda en ladera. Dicha información fue brindada por los docentes para su dibujo técnico. A partir de ello se debía de considerar los niveles del terreno donde se construyó el proyecto. Además de reconocer los ambientes y cómo estás se habían propuesto considerando la pendiente del terreno.

3 4 5

20
DORMITORIO ESTAR SS.HH. PATIO SS.HH. TERRAZA PISCINA PATIO PRIMERA PLANTA ESC. 1/50 E 1 2 3 4 5 E D C B A D C B A 1 2 3 4 5 A A WC COCINA SS.HH. SEGUNDA PLANTA ESC. 1/50 SALA 1.40 .25 .80 .95 .25 2.10 .65 .25 10.00 .25 .25 1.00 3.00 .50 12.00 .25 4.75 .25 10.00 11 12 13 15 16 17 1 2 3 4 1 2 3 4 E D C B A B B B C C 1 E D C B A 1 B 1 2 3 4 5 CORTE A-A' CLOSET NPT: 3.00 TERRAZA NPT: + 0.00 COCINA               DORMITORIO NPT: 3.00 NPT: 0.00 TERRAZA NPT: - 3.00 PISCINA NPT: 4.50
A-A' ESC. 1/50 DE TECHOS 1/50 A 5.00 1.00 C  B 12.00 .25 4.75 .25 3.35 10.00    2
   E D C  UNIVERSIDAD DE FACULTAD DE INGENIERIA PISCINA        1 2 3 4 TERRAZA NPT: 3.00 SALA              DORMITORIO NPT: - 3.00 NPT: - 4.50 NPT: + 0.00  TERRAZA NPT: + 0.00 DORMITORIO NPT: 3.00 TERRAZA NPT: - 3.00 PATIO NPT: 3.00 PISCINA NPT: - 4.50 CORTE A-A' ESC. 1/50 E D C DIBUJO Y PRESENTACIÓN DE PROYECTOS UNIVERSIDAD DE LIMA FACULTAD DE INGENIERIA Y ARQUITECTURA     VIVIENDA EN LADERA CORTE A-02 A PISCINA         1 2 3 4 5 TERRAZA NPT: 3.00 TERRAZA NPT: + 0.00 SALA                 DORMITORIO NPT: - 3.00 NPT: - 4.50 NPT: + 0.00   1 2              TERRAZA NPT: + 0.00 DORMITORIO NPT: 3.00 TERRAZA NPT: 3.00 PISCINA NPT: - 4.50 CORTE A-A' ESC. 1/50         A 1.00 5.00 1.00 C  B 12.00 4.75 .25 3.35 10.00   3 4 5    E D B C    PRIMERA PLANTA ESC. 1/50 1 2
CORTE
20 20 ENTREGA T4 TERRAZA 3.10 .25 12.00 .50 3.35 5 5 E D B A C B C C 1.25 3.00 DORMITORIO ESTAR SS.HH. PATIO SS.HH. TERRAZA PISCINA PATIO PRIMERA PLANTA ESC. 1/50 E 2 3 4 5 D C B A 2 3 4 5 A A WC COCINA SS.HH. TERRAZA SEGUNDA PLANTA ESC. 1/50 SALA 1.40 .25 .80 .95 .25 2.10 .65 .25 3.10 .25 10.00 12.00 .50 .25 .25 1.00 3.00 .50 12.00 .25 4.75 .25 3.35 10.00 A A 11 12 13 15 16 17 1 2 3 4 5 1 2 3 4 5 E E D C B A D B A C B B B C C C C 1.25 3.00 1 2 3 4 5 CORTE A-A' CLOSET NPT: 3.00 TERRAZA NPT: 0.00 COCINA               DORMITORIO NPT: 3.00 NPT: 0.00 TERRAZA NPT: + 0.00 DORMITORIO NPT: 3.00 PATIO NPT: 3.00 LIMA INGENIERIA Y ARQUITECTURA VIVIENDA EN LADERA A-02 A D C B     TERRAZA NPT: + 0.00 DORMITORIO NPT: - 3.00 TERRAZA NPT: - 3.00 PATIO NPT: 3.00 PISCINA NPT:           5 TERRAZA NPT: + 0.00    DORMITORIO A-02
    TERRAZA NPT: + 0.00 DORMITORIO NPT: - 3.00 TERRAZA NPT: - 3.00 PATIO NPT: 3.00 PISCINA NPT: 4.50          A B  DORMITORIO PATIO NPT: - 3.00     PISCINA        3 4 5 TERRAZA NPT: 3.00 TERRAZA NPT: + 0.00 SALA     DORMITORIO NPT: 3.00 NPT: + 0.00   PATIO NPT: - 3.00         PLANTA 3 4 5 A SEGUNDA PLANTA ESC. 1/50 1 2 3 4 C
D C B

T4 ENTREGA

TR ABA JO IV: C ASA EN LA LADE

REFERENTE

Adicional a ello, se debía de plantear un cerramiento de la terraza que se ubica en el segundo nivel. El diseño de este cerramiento debe de partir del grupo, no solo por la forma que tendrá sino también por los referentes a utilizar para crear este elemento.

REFERENTE DE MATERIALES

Tubo estruc tural cuadrado negro Pilares de

DIBUJO Y PRESENTACIÓN DE PROYECTOS  
B-B' ESC. 1/50
O D E L O 3 D CORTE C-C' ESC. 1/50
B-B' ESC. 1/50
O D E
CORTE ESC. 1/50    DIBUJO Y PRESENTACIÓN DE PROYECTOS UNIVERSIDAD DE LIMA
DE INGENIERIA Y ARQUITECTURA     20
CORTE
M
CORTE
M
L O 3 D
FACULTAD
REFERENTE 1
PLANO DE TECHOS ESC. 1/50 B 1.40 .25 .80 .95 .25 2.10 10.00 .25 .25 1.00 3.00 .50 12.00  .25 4.75 10.00       1 2 3 1 2 3     E D C B A  D C B  DORMITORIO NPT: 3.00 TERRAZA NPT: 3.00 PISCINA NPT: 4.50 CORTE A-A' ESC. 1/50     PLANO DE TECHOS ESC. 1/50 A A 1.00 5.00 1.00     C C  B B 1.40 .25 .80 .95 .25 2.10 .65 .25 3.10 .25 10.00 .50 .25 .25 1.00 3.00 .50 12.00  .25 4.75 .25 3.35 10.00         1 2 3 4 5 1 2 3 4 5        E E D C B A D A C      1 2 3 4 5 CORTE A-A' CLOSET NPT: 3.00 TERRAZA NPT: 0.00 COCINA              DORMITORIO NPT: 3.00 NPT: 0.00 A
    DORMITORIO NPT: - 3.00 TERRAZA NPT: - 3.00 PATIO NPT: 3.00 PISCINA NPT: 4.50                 12.00 .50     E D B A C      D C    TERRAZA NPT: + 0.00          A 1.00 5.00   C  .65 .25 3.10 .25 12.00 .50  4 5   B A C      http://w w w.dipacmanta.com/tubo - estruc tural- cuadrado -negro DISTRIBUIDOR: DIPAC
D C B
.11 .22 .04

VIVIENDA EN LADERA CORTE

LADER A

TR ABA JO IV: C ASA EN LA LADER A

B-B'

REFERENTE

CORTE C-C'

DESCRIPCIÓN MATERIALIDAD

ESC. 1/50

DESCRIPCIÓN

UNIVERSIDAD DE LIMA

ÁREA TOTAL DEL TERRENO: 120 m2

FACULTAD DE INGENIERIA Y ARQUITECTURA  

ÁREA NO CONSTRUIDA: 2.76 m2

 

FUNCIÓN: CASA UNIFAMILIAR

REFERENTE 2

DE TALLE: ESCANTILLÓN DE MADERA CON ACCESORIOS Y BARANDILLLA DE ACERO

REFERENTE DE MATERIALES

ubo estruc tural cuadrado negro

VIVIENDA EN LADERA CORTE

En el dibujo arquitectónico de cortes de la vivienda en ladera, el grupo presentó 3 cortes distintos, con la intención de mostrar el amarre y soporte del cerramiento en ambos lados de la terraza, así como la eleva-

ÁREA TOTAL DEL TERRENO: 120 m2

ÁREA NO CONSTRUIDA: 2.76 m2

FUNCIÓN: CASA UNIFAMILIAR

ESTRUC TURA DE MADERA PINO ACCESORIOS DE ACERO

DE TALLE: ESCANTILLÓN DE MADERA CON ACCESORIOS Y BARANDILLLA DE ACERO

UNIVERSIDAD DE LIMA

FACULTAD DE INGENIERIA Y  

DIBUJO Y PRESENTACIÓN DE PROYECTOS

Perno anclaje madera de 20x20cm Plancha de Polibambu Clear 1x2m

DISTRIBUIDOR: Sodimac

DISTRIBUIDOR: DIPAC

https://w w w.sodimac.com.pe/sodi-

mac-pe/produc t/2856654/TA-

bla- de -Madera-Pino -R adiata-

Pilares de madera de 20x20cm Plancha

DISTRIBUIDOR: Sodimac

DISTRIBUIDOR: Sodimac

https://w w w.sodimac.com.pe/sodi-

mac-pe/produc t/2069032/Plan-

mac-pe/produc t/2856654/TA-

PROYECTOS   A-02 CORTE C-C' ESC. 1/50 DIBUJO Y PRESENTACIÓN DE PROYECTOS UNIVERSIDAD DE LIMA FACULTAD DE INGENIERIA Y ARQUITECTURA     VIVIENDA CORTE
DIBUJO Y PRESENTACIÓN DE PROYECTOS
A-03

NPT: 4.50
  ARQUITECTURA  
20 20
ENTREGA
PUNTOS A MEJORAR
A-02
T4
Pensar en el revestimiento de todos los ambientes A D C B     TERRAZA DORMITORIO NPT: 3.00 TERRAZA NPT: 3.00 PATIO NPT: 3.00 PISCINA NPT: 4.50 CORTE A-A' ESC. 1/50          A A     C C  B .25 3.10 .25 .50 .25 3.35   4 5 4 5    E D B A     A  PATIO 1 2 3 4 5 CORTE A-A' CLOSET NPT: 3.00 TERRAZA NPT: 0.00              DORMITORIO NPT: 3.00    
http://w w w.dipacmanta.com/tub al cuad ad https://w w w.sodimac.com.pe/sodi-
bla d Made Pin R adi ta-
cha d Polibambu Clea -1x2m/20690

T4 ENTREGA

Tablero de melamina Blanco Biocote

S of t 18 mm

DISTRIBUIDOR: Barania World S.L.

https://w w w.promar t.pe/tablero - de -melamina-blanco -biocote -sof t-18-mm/p? gclid=CjwKCAiA65iBBhB-EiwAW253WxH707Oc v5GDWdU8aM7jKU-RQ v68MbdnZ5R VOMZw-Xy

PIEZAS SOL Y SOMBRA ESC. 1/20

_Sgk rCNcqIRoCggEQAvD_BwE

A partir de ello se debía de reconocer la silueta que seguía el soporte del cerramiento de un lado era similar al otro lado, entiéndase esto en los ángulos de inclinación de los soportes y el ángulo de inclinación del techo.

Pasamanos de madera de haya Pletina a satinado

DISTRIBUIDOR: Barania World S.L.

Primer soporte de cerramiento

https://w w w.pasamanosonline.com/pasamanos/pasamano - cuadrado - de -maderade -haya -lacada-1219-1284-1285- detail

Segundo soporte de cerramiento



 

Recubrimiento de cerramiento

COMENTARIOS

Analizar los tipos de amarres y anclajes de la propuesta de cerramiento se veía complicado, porque no se quería ensuciar demasiado la terrada. Por ese motivo, una parte del cerramiento se encuentra por encima del techo de la vivienda para poder anclarlo en el muro existente de la vivienda, de esta forma las cargas se transmiten al muro existente.

PUNTOS A MEJORAR

Valoración de líneas con respecto a más cerca y más lejos

       1 2 3 CORTE B-B' ESC. 1/50 SALA              NPT: + 0.00 20 20
A C B   TERRAZA NPT: 0.00 DORMITORIO NPT: 3.00 PATIO NPT: 3.00        
1/50 PISCINA        2 3 4 5
B-B' ESC. 1/50 TERRAZA NPT: 3.00 TERRAZA NPT: 0.00 SALA                 DORMITORIO NPT: 3.00 NPT: 4.50 NPT: + 0.00  2 3 4 5
A-A' CLOSET NPT: 3.00 TERRAZA NPT: 0.00 COCINA               DORMITORIO NPT: 3.00 NPT: 0.00                  PLANTA
ESC. 1/20 A B             1                  1 A B 1 CORTE A-A' ESC. 1/50 DIBUJO Y PRESENTACIÓN DE PROYECTOS UNIVERSIDAD DE LIMA FACULTAD DE INGENIERIA Y ARQUITECTURA     VIVIENDA EN LADERA CORTE NPT: 3.00 PISCINA NPT: - 4.50 CORTE A-A' ESC. 1/50 A C B .25 3.35  4 5  E D DIBUJO Y PRESENTACIÓN DE PROYECTOS UNIVERSIDAD DE LIMA FACULTAD DE INGENIERIA Y ARQUITECTURA 
CORTE C-C' ESC.
CORTE
CORTE
SOL Y SOMBRA
Tablero G
PIEZAS SOL

ranito Gris Estano 240x60x2cm

Tablero de melamina Blanco Biocote

PORCELANATOS

S of t 18 mm

DISTRIBUIDOR: Barania World S.L.

Tablero Granito Gris Estano 240x60x2cm

Gres Porcelánico Piedra Gris

Rústico 60x60 cm para piso

DISTRIBUIDOR: Sodimac

A-02

https://w w w.sodimac.com.pe/sodimac-pe/produc t/324279X/Tablero - Granito- Gris-Estano -240x60x2cm/3 24279X?k id=bnnex t80033&gclid=Cj0

https://w w w.promar t.pe/tablero - de -melamina-blanco -biocote -sof t-18-mm/p? gclid=CjwKCAiA65iBBhB-EiwAW253WxH707Oc v5GDWdU8aM7jKU-RQ v68MbdnZ5R VOMZw-Xy

CORTE EN ESCANTILLÓN

cero inoxidable con acabado

Pasamanos de madera de haya

A B 1

_Sgk rCNcqIRoCggEQAvD_BwE

DISTRIBUIDOR: Estebro

DISTRIBUIDOR: Barania World S.L.

https://w w w.estebro.es/produc to/pletina/

https://w w w.pasamanosonline.com/pasamanos/pasamano - cuadrado - de -maderade -haya -lacada-1219-1284-1285- detail

https://w w w.sodimac.com.pe/sodimac-pe/produc t/2232499/cerami-

Gres Porcelánico Ar tic Grigio 60x60 cm para piso

Código 2189755

DISTRIBUIDOR: Sodimac

https://w w w.sodimac.com.pe/sodimac-pe/produc t/324279X/Tablero - Granito- Gris-Estano -240x60x2cm/3

ca- celeste -piscina-rustico -36x36cm -para-piso - o -pared

24279X?k id=bnnex t80033&gclid=Cj0

PORCELAN Gres Porcelánic

DISTRIBUIDOR: Sodimac

https://w w w.sodimac.c mac-pe/produc t/2232499/

ESC. 1/20

ca- celeste -piscina-rusti -para-piso - o -pared

DIBUJO Y PRESENTACIÓN .11

ESCATILLÓN

1

Pepelma cerámica azul glaciar 30.6 x 30.6cm

Pletina acero inoxidable con acabado

Porcelánico imitación made

satinado

DISTRIBUIDOR: Sodimac

https://w w w.sodimac.com.pe/sodimac-pe/produc t/2232499/cerami-

DISTRIBUIDOR: Estebro

Pepelma cerámica

DISTRIBUIDOR: Sodimac

https://w w w.alibaba.c ap -Wood-Look-Porcelain

ca- celeste -piscina-rustico -36x36cmpara-piso - o -pared

les-Square_60733655394.

k=google_shopping&biz=pla&lang

UNIVERSIDAD DE LIMA

FACULTAD DE INGENIERIA Y ARQUITECTURA

DIBUJO Y PRESENTACIÓN DE PROYECTOS

20 20 ENTREGA
T4 A D C B     TERRAZA NPT: + 0.00 DORMITORIO NPT: 3.00 TERRAZA NPT: 3.00 PATIO NPT: 3.00 PISCINA NPT: 4.50          CORTE C-C' ESC. 1/50 PISCINA  4 5 TERRAZA TERRAZA NPT: 0.00    DORMITORIO NPT: 3.00 NPT: 4.50  1 2 3 4 5 CORTE A-A' CLOSET NPT: 3.00 TERRAZA NPT: + 0.00 COCINA               DORMITORIO NPT: 3.00 NPT: 0.00 D   TERRAZA NPT: 3.00 PISCINA NPT: 4.50            A B                   1              
     .11 .22 .04
PUNTOS A MEJORAR Criterios de cotas Líneas de nivel Mejorar valoración en lo cortado NPT: 3.00
VIVIENDA EN LADERA CORTE A-02
Rústico 60x60
https://w w w.estebro.es/produc to/pletina/
DISTRIBUIDOR: Sodimac
ESC. 1/20 ELEVACIÓN
UNIVERSIDAD FACULTAD .22 Y SOMBRA CORTE EN ESCANTILLÓN ELEVACIÓN

T4 ENTREGA

PIEZAS ESC.

En este trabajo se diseñó un cerramiento que se puede dividir en tres niveles. Estas se dividían en Esqueleto de soporte, trama de soporte y piel de cerramiento. Se realizó esta división para entender el uso de materiales y la forma de disposición del cerramiento en un ángulo de inclinación de 5º.

2

PIEZAS SOL Y SOMBRA ESC. 1/20

PIEZAS SOL Y SOMBRA

ESC. 1/20

                                 PLANTA SOL Y SOMBRA ESC. 1/20 2
A B
                   2 1 A B A B 2 1 PIEZAS SOL Y SOMBRA ESC. 1/20 20 20
1
A B
        B 2
          
         
2 A B SOMBRA UNIVERSIDAD DE LIMA

UNIVERSIDAD DE LIMA FACULTAD DE INGENIERIA Y ARQUITECTURA

DIBUJO Y PRESENTACIÓN DE PROYECTOS



 

VIVIENDA EN LADERA

ESCANTILLON DE SOL Y SOMBRA A-04

Además en el cortes y elevaciones se muestra la superposición de esta y la forma de anclaje entre los elementos existentes.

COMENTARIOS

UNIVERSIDAD DE LIMA

FACULTAD DE INGENIERIA Y ARQUITECTURA 

DIBUJO Y PRESENTACIÓN DE PROYECTOS

Analizar los tipos de amarres y anclajes de la propuesta de cerramiento se veía complicado, porque no se quería ensuciar demasiado la terrada. Por ese motivo, una parte del cerramiento se encuentra por encima del techo de la vivienda para poder anclarlo en el muro existente de la vivienda, de esta forma las cargas se transmiten al muro existente.

PUNTOS A MEJORAR

Indicar los ejes de instalación Indicar el ángulo de inclinación en todas las plantas Diferenciar la valoración en los detalles de corte y elevación

M O D E L O 3 D UNIVERSIDAD DE LIMA FACULTAD DE INGENIERIA ARQUITECTURA  A-09 CASA_EN_LA_LADERA MODELO 3D PIEZAS SOL Y SOMBRA ESC. 1/20 CORTE EN ESCANTILLÓN ESC. 1/20 ELEVACIÓN ESCATILLÓN ESC. 1/20 20 20 T4 ENTREGA

  2 A
   VIVIENDA EN LADERA ESCANTILLON DE SOL Y SOMBRA A-05     2 A B 2 DIBUJO Y PRESENTACIÓN DE PROYECTOS UNIVERSIDAD DE LIMA FACULTAD DE INGENIERIA Y ARQUITECTURA     VIVIENDA ESCANTILLON    VIVIENDA EN LADERA PIEZAS SOL Y SOMBRA 1/20 CORTE EN ESCANTILLÓN ESC. 1/20

T4 ENTREGA

Partiendo del diseño y análisis de anclaje y amarre del soporte del cerramiento, se tenía que mostrar cómo se unían estos a la estructura de la vivienda. En esta ocasión se debía de analizar con mayor cuidado la forma de instalación de dichos soportes y sus amarres respectivos.

COMENTARIOS

Al trabajarse con acero y pernos, se debía de colocar los ejes de instalación adecuados, para su fabricación correcta de estas placas de acero. Sin embargo, el orden de las cotas confundía un poco en los ejes de instalación. Además, se debe de plantear todos los hatchs posibles en los detalles, y la valoración de estas deben de diferenciarse.

PUNTOS A MEJORAR

Valoración de detalle

.20 .10 .10 .07.20 83° 97° .06 .04 .07 .04 .12 .08 .06 .05 .04 .05 .10 .06 .07 .07 .02 .06 .02 .02.04 .02 DETALLE 04 ESC: 1/2 .05 .18 .05 .05 .17 .05 .05 .18 .05 DETALLE 05 ESC: 1/2 20 20
Cotas de instalación
    .07 .07 .07 .07 .04 .04 .15 .03 .03 .02 .11 .11 .03 .03 .07 .04 .03 .07 .04 .03 .04 .03 .15 .10 .03 .10 .03 .15 .03 .03 .20 .20 .20 .20 .04 .04 .15 .03 .03 .10 .05 .05 .05 .10 .05 .02 .04 .04 .02 .04 .13 .12 .14 .35 .25 .35 .25 DETALLE 01 ESC: 1/2 .24 .11 .20 .10 .21 DETALLE 02 ESC: 1/2 DETALLE 03 ESC: 1/2 .18 .03.03 .03.03 .20 .10 .04 .03 .07 .07 .07 .07 .04 .04 .15 .03 .03 .02 .11 .11 .03 .03 .07 .04 .03 .07 .04 .03 .04 .03 .15 .10 .03 .10 .03 .15 .03 .03 .20 .20 .20 .20 .04 .04 .15 .03 .03 .10 .05 .05 .05 .10 .05 .02 .04 .04 .02 .04 .13 .12 .14 .35 .25 .35 .25 DETALLE 01 ESC: 1/2 .24 .11 .20 .10 .21 DETALLE 02 ESC: 1/2 DETALLE 03 ESC: 1/2 .18 .03.03 .03.03 .20 .10 .04 .03

T5 CARPINTERÍA (PUERTA, MURO CORTINA Y CLOSET)

DESCRIPCIÓN TERRAZA NPT: + 0.00 COCINA 

  DORMITORIO NPT: - 3.00



El trabajo consistió en el desarrollo de un expediente de planos de obra sobre detalles de carpintería y su presentación en láminas.

NPT: + 0.00

1. Arquitectura: 2 planta y 2 corte (1:50), cuadros de vanos y cuadro de puertas, mamparas y ventanas.

2. Detalles de 1 Puerta: planta, corte, elevación (1:20) y detalles (1:10 / 1:5). Considerar Paño jo y paño móvil.

3. Detalle de 1 Muro Cortina: planta, corte, elevación (1:20) y detalles (1:10 / 1:5). Considerar Paños jos y paños móviles.

4. Detalles de 1 Closet: planta, corte, elevación (1:20) y detalles (1:10 / 1:5)

5. Referentes y chas técnicas

OBJETIVOS

• Suministrar a los alumnos un instrumental conceptual y operativo que les permita expresar conceptos y planteamientos de diseño con coherencia, rigor técnico e impacto visual.

• Dotar de los fundamentos conceptuales y técnicos a los alumnos para la expresión e caz de detalles constructivos.

• Desarrollar soluciones a nivel de detalle arquitectónico y constructivo, como fundamento para desenvolverse en los campos del diseño arquitectónico, de la construcción, la administración y gestión de obras.

CG1 - CG6 - CG7 - CG11
EXPEDIENTE 3 4 5 CLOSET NPT: 3.00

CRÍTICA 1 T5

Para iniciar este proyecto, se realizo otro corte general de la Vivienda en ladera, en esta se puede observar la carpintería. En primer lugar, esta el muro cortina, el cual es cortado y se observa como se abre algunos vanos. También, se corta el walking closet, en este caso, se observa una parte de sus divisiones como las puertas. Finalmente, se puede apreciar una elevacón interior de la puerta principal de la casa.

MURO CORTINA

20 20 1 2 3 4 5 CORTE A-A' CLOSET NPT: 3.00 TERRAZA NPT: + 0.00 COCINA               DORMITORIO NPT: 3.00 NPT: + 0.00
PUERTA CLOSET

T5 CRÍTICA 1

Para solucionar dicho problema y mantener la textura al exterior, se cambia la puerta a una contraplacada, es decir, hueco al interior, teniendo así un marco de madera más delgada. A este marco se le atornilla las listones de madera para generar mayor soporte y durabilidad.

Se inicio detallando la puerta principal, la cual tenía en la fachada principal listones de maderas, estas estaban integradas en todo el muro. Para la planta, se modi co las medidas anteriores para marcar predominancia al resto. Para la primeras criticas, se presento una estructura compacta, donde solo los listones de madera estaban pegadas, esto no era recomendable , ya que con el tiempo se podría despegar.

En el referente se podia ver un entramado de listones de madera,sinembargo habia cierta visibilidad del interior de la vivienda, haciendola no muy segura, por lo que se debia realizar una cambio en el diseño.

COMENTARIOS

Al momento de diseñar y basarnos en una , nos dio cierta libertad de realizarlo como lo creiamos e caz y de una manera que iba con el concepto de una puerta de ingreso a una vivienda, teniendo en cuenta los factores de esta

Entre ploteos, se veia que en el hatch estaba muy saturado en algunas partes, por lo que en la futura entrega se corregira.

20 20
PUNTOS A MEJORAR
        REFERENTE        A A
PLANTA DE PUERTA ESC. 1/20

Finalmente, se realiza tres detalles para completar la información, los dos primeros detalles, se centran en mostrar el sistema de anclaje pivotante que tiene la puerta , tanto en la parte superior e inferior.

Asimismo, en el tercer detalle, se observa como esta anclado el marco de la puerta con los listones como también con el muro.

Ambos anclajes se realizan a través de diferentes tornillos.

Se di culto el proyecto al momento de encontaraccesorios que encajaran con el tipo de puerta hecha, por lo que nos guiamos de algunos accesorios para cambiar las medidas y así para que funcionara

Entre ploteos, se veia que en el hatch estaba muy saturado en algunas partes, por lo que en la futura entrega se corregira.

Para detallar más la puerta, se realiza un corte como elevación, en estas se muestra a mayor detalle lo mencionado anteriormente. Asimismo, en el corte se comienza a observar los sistemas de mecanismo de la puerta. En estos detalles se tomo en cuenta el funcionamiento del anclaje pivotante hacia la losa y hacia el peril de madera. Hubo problemas en el hatch debio ha que estaba muy saturado pero esto fue por problemas de cambiar de escala al moment de plotearlo.

20 20
T5 CRÍTICA 1
COMENTARIOS PUNTOS A MEJORAR
  
ELEVACIÓN DE PUERTA ESC. 1/20    DETALLE 1 ESC: 1/5          DETALLE 3 ESC: 1/5                          DETALLE 2 ESC: 1/5            
CORTE A-A´ DE PUERTA ESC. 1/20

T5 CRÍTICA 1

Para el muro cortina, primero se realizo las plantas como la elevación. En el caso de las plantas, los ejes estaban mal planteados, ya que eran diferentes tanto en la planta 1 y 2. Asimismo, con la proyección dibujada de como se abre los vanos no era la correcta, ya que no se lograba entender el mecanismo.

Aunque en las proyecciones de la mampara estaba ma hecha el dibujo porque esto no era la representación de una ventana en biombo, para la corrección de esta esta parte tomamos en cuenta la crítica del profesor y revisamos el libro Neufert.

Neufert, E. (2013). Arte de proyectar en arquitectura (16a, renovada y actualizada ed.). Gustavo Gili.

COMENTARIOS

Para este muro cortina propusimos el sistema biombo y realizamos un mosaico con la estructura general de per l de aluminio hueco y con un entramado de varillas de madera, esto para seguir con la materialidad ya empleada en la vivienda

En el caso de la elevación, paso algo similar, ya que tampoco se entendia el mecanismo. Por otra parte, faltaba completar, ya que no estaba las cotas ni los ejes. Asimismo, se tenía que gra car el exterior para entender donde estaba localizado.

PUNTOS A MEJORAR

Recordar de poner mas contexto, para saber en qué parte de la edi cación se encuentra ese elemento arquitectónico (mampara).

20 20
PLANTA 2 PISO ESC. 1/20 PLANTA 1 PISO ESC. 1/20  A B C D E F G H I       A B C D E F G H               ELEVACIÓN ESC. 1/20                                               A A REFERENTE CORTE A-A¨ - MAMPARA ESC. 1/20 3 A B C D E                   

ENTREGA T5

Para esta entrega se corrigio la valorizacion de las plantas y cortes, ademásde actualizarlas con las nueva informacion del muro cortina, puerta y closet.

Para esto realizamos dos cortes donde pasen y miren a estos tres elementos

20 20
DORMITORIO ESTAR SS.HH. PATIO SS.HH. TERRAZA PISCINA PATIO PRIMERA PLANTA ESC. 1/50 E 1 2 3 4 5 E D C B A D C B A 1 2 3 4 5 WC COCINA SS.HH. TERRAZA SEGUNDA PLANTA ESC. 1/50 SALA 1.40 .25 .80 .95 .25 2.10 .65 .25 3.10 .25 10.00 12.00 .50 .25 .25 1.00 3.00 .50 12.00 .25 4.75 .25 3.35 10.00 1 2 3 4 5 1 2 3 4 5 E E D C B A D B A C A A A A B B B B DIBUJO Y PRESENTACIÓN DE PROYECTOS UNIVERSIDAD DE LIMA FACULTAD DE INGENIERIA Y ARQUITECTURA VIVIENDA_EN_LADERA PRIMERA PLANTA C D GO D Ó E N A B N G 00 Cemen pulido - io 8m 00 Cerámica gris marmolizado 0x30 SSHH 7.5mm 00 Cerámica gris marmolizado 0x30 SSHH 7.5mm 00 Porcelánic imitación madera 0x70 Estar 0m 00 Porcelánic imitación madera 0x70 Dormit 0m 00 Porcelánic imitación madera 0x70 Sala 0m 00 Gres Porcelánic Artic Grigio 0x60 Cocina 0m 00 Gres Porcelánic Piedra Gris Rústico 0x60 Te 0m 00 Gres Porcelánic Piedra Gris Rústico 0x60 Te aza 0m 00 Pepelma cerámica Azul glaciar 30.6x30.6 Piscina 5m C D O D C A O D N C D GO D C Ó E A O HO Ventana alta corrediza de vidrio transparente con perfil de T de aluminio Ventana alta corrediza de vidrio transparente con perfil de T de aluminio Ventana alta corrediza de vidrio transparente con perfil de T de aluminio Mampara corrediza de cristal con perfil de aluminio Mampara corrediza de cristal con perfil de aluminio Mampara corrediza de cristal con perfil de aluminio Mampara corrediza de cristal con perfil de aluminio Mampara corrediza de cristal con perfil de aluminio P-01 Puerta contraplacada de madera - 0.65 2.05 0.75 P-02 Puerta contraplacada de madera - 0.65 2.05 0.85 P-03 Puerta contraplacada de madera - 0.65 2.05 0.95 P-04 Puerta con listones de madera de pino - 0.65 2.05 1.70 M-03 - -2.70 0.70 3.05 M-04 - -2.704.70 M-05 - -2.702.60 V-03 2.00- 1.50 M-02 - -2.702.20 M-01 - 5.70 - 4.45 2.70 V-01 2.00-0.701.45 V-02 2.00-0.70 C D GO O H V-01 0.75 1.50 V-02 0.75 2.75 V-03 0.75 1.55 M-01 5.75 4.50 M-02 2.75 2.25 M-03 2.75 3.10 M-04 2.75 4.75 M-05 2.75 2.65 P-01 2.10 0.80 P-02 2.10 0.90 P-03 2.10 1.00 P-04 2.10 1.75 C O D N S A-0 1 2 3 4 5 CORTE A-A' ESC. 1/50 CLOSET TERRAZA COCINA DORMITORIO NPT: 0.00 A D C B TERRAZA DORMITORIO NPT: 3.00 TERRAZA PATIO NPT: 3.00 PISCINA CORTE B-B' ESC. 1/50

En la puerta desde la ultima critica mejoramos la escala y en los detalles añadimos cotas sobre el espacio y grosos de los elementos y donde van a estar los accesorios.

COMENTARIOS

Analizar diversos factores y materialidades para la puerta principal ayudo a tener una mejor variedad de referentes y saber de diferentes estilos.

PUNTOS A MEJORAR

Detallar los accesorios y añadirles cotas excesivas son innecesarias debido que esa informacion va en la cha de los accesorios.

20 20
         DETALLE 2 ESC: 1/5    DETALLE 1 ESC: 1/5       A A PLANTA DE PUERTA ESC. 1/20 ELEVACIÓN DE PUERTA ESC. 1/20 CORTE A-A´ DE PUERTA ESC. 1/20   DETALLE 3 ESC: 1/5                                         DIBUJO Y PRESENTACIÓN DE PROYECTOS UNIVERSIDAD DE LIMA FACULTAD DE INGENIERIA Y ARQUITECTURA CARPINTER�A A-03 PUERTA    
ENTREGA T5

T5 ENTREGA

Se inicio detallando la puerta principal, la cual tenía en la fachada principal listones de maderas, estas estaban integradas en todo el muro. Para la planta, se modi co las medidas anteriores para marcar predominancia al resto. Para la primeras criticas, se presento una estructura compacta, donde solo los listones de madera estaban pegadas, esto no era recomendable , ya que con el tiempo se podría despegar.

COMENTARIOS

Para solucionar dicho problema y mantener la textura al exterior, se cambia la puerta a una contraplacada, es decir, hueco al interior, teniendo así un marco de madera más delgada. A este marco se le atornilla las listones de madera para generar mayor soporte y durabilidad.

PUNTOS A MEJORAR

Indicar los ejes de instalación Indicar el ángulo de inclinación en todas las plantas Diferenciar la valoración en los detalles de corte y elevación

WC CLOSET A A B B CORTE ELEVACIÓN A-A' ESC. 1/20 C B 2 2 A C B B DIBUJO Y PRESENTACIÓN DE PROYECTOS UNIVERSIDAD DE LIMA FACULTAD DE INGENIERIA Y ARQUITECTURA CLOSET DETALLE DETALLE DETALLE DETALLE DETALLE 1 ESC: 1/2 DETALLE 2 ESC: 1/2 A-0 CORTE B-B' ESC. 1/20 A B DETALLE 3 PLANTA ESC: 1/2 DETALLE 4 PLANTA ESC: 1/2 DIBUJO UNIVERSIDAD FACULTAD 20 20
3 1 2 3 4 5 A DIBUJO Y PRESENTACIÓN DE PROYECTOS UNIVERSIDAD DE LIMA FACULTAD DE INGENIERIA Y ARQUITECTURA VIVIENDA_EN_LADERA CORTES GENERALES C D G D N D M N Ó M A U 00 Cemen pulido - 8m 00 Cerámica gris marmolizado 0x30 SSHH 7.5mm 00 Cerámica gris marmolizado 0x30 SSHH 7.5mm 00 Porcelánic imitación madera 0x70 Estar 0mm 00 Porcelánic imitación madera 0x70 Dormit io 0m 00 Porcelánic imitación madera 0x70 Sala 0mm 00 Gres Porcelánic Artic Grigio 0x60 Cocina 0m 00 Gres Porcelánico Piedra Gris Rústico 0x60 Terraza 0mm 00 Gres Porcelánic Piedra Gris Rústico 0x60 Te 0m 00 Pepelma cerámica Azul glaciar 30.6x30.6 Piscina 5mm C D O D O C O D N C G Ó D N C O Ventana alta corrediza de vidrio transparente con perfil de de aluminio Ventana alta corrediza de vidrio transparente con perfil de de aluminio Ventana alta corrediza de vidrio transparente con perfil de de aluminio Mampara corrediza de cristal con perfil de aluminio Mampara corrediza de cristal con perfil de aluminio Mampara corrediza de cristal con perfil de aluminio Mampara corrediza de cristal con perfil de aluminio Mampara corrediza de cristal con perfil de aluminio P-01 Puerta contraplacada de madera - 0.65 2.05 0.75 P-02 Puerta contraplacada de madera - 0.65 2.05 0.85 P-03 Puerta contraplacada de madera - 0.65 2.05 0.95 P-04 Puerta con listones de madera de pino - 0.65 2.05 1.70 M-03 - -2.70 0.70 3.05 M-04 - -2.704.70 M-05 - -2.702.60 V-03 2.00- 1.50 M-02 - -2.702.20 M-01 - 5.70 - 4.45 2.70 V-01 2.00-0.701.45 V-02 2.00-0.70 Ó O O A O V-01 0.75 1.50 V-02 0.75 2.75 V-03 0.75 1.55 M-01 5.75 4.50 M-02 2.75 2.25 M-03 2.75 3.10 M-04 2.75 4.75 M-05 2.75 2.65 P-01 2.10 0.80 P-02 2.10 0.90 P-03 2.10 1.00 P-04 2.10 1.75 A O NO A-0

Finalmente, se realiza tres detalles para completar la información, los dos primeros detalles, se centran en mostrar el sistema de anclaje pivotante que tiene la puerta , tanto en la parte superior e inferior.

CORTE B-B' ESC. 1/20 A B DETALLE 3 PLANTA ESC: 1/2 DETALLE 3 CORTE ESC: 1/2 DETALLE 3 ELEVACIÓN ESC: 1/2 DETALLE 4 PLANTA ESC: 1/2 DETALLE 4 CORTE ESC: 1/2 DETALLE 4 ELEVACIÓN INT. ESC: 1/2 DIBUJO Y PRESENTACIÓN DE PROYECTOS UNIVERSIDAD DE LIMA FACULTAD DE INGENIERIA Y ARQUITECTURA

COMENTARIOS

compatibilizar la nueva informacion de la planta en el corte. Además de tener diferentes cotas.

Para detallar más la puerta, se realiza un corte como elevación, en estas se muestra a mayor detalle lo mencionado anteriormente. Asimismo, en el corte se comienza a observar los sistemas de mecanismo de la puerta.

Asimismo, en el tercer detalle, se observa como esta anclado el marco de la puerta con los listones como también con el muro. Ambos anclajes se realizan a través de diferentes tornillos.

DETALLE 3 CORTE 1/2 DETALLE 3 ELEVACIÓN ESC: 1/2 DETALLE 4 CORTE 1/2 DETALLE 4 ELEVACIÓN INT. ESC: 1/2 PRESENTACIÓN DE PROYECTOS UNIVERSIDAD DE LIMA FACULTAD DE INGENIERIA Y ARQUITECTURA A-07 CLOSET WC PLANTA DE CLOSET ESC. 1/20 A A B B CORTE ELEVACIÓN A-A' ESC. 1/20 C B 1 2 1 2 A C B B A C B DIBUJO Y PRESENTACIÓN DE PROYECTOS UNIVERSIDAD DE LIMA FACULTAD DE INGENIERIA Y ARQUITECTURA CLOSET DETALLE DETALLE DETALLE DETALLE 1 ESC: 1/2 DETALLE
ESC: 1/2 A-0 20 20 T5 ENTREGA
2
Indicar los ejes de instalación Añadir cotas necesarias a los detalles. PUNTOS A MEJORAR
CLOSET
Falto
A-07

T5 ENTREGA

Para en el la entrega dela mampara enfocamos en dibujo en el estilo de como se abririan las ventanas (biombo). El hecho de tener una combinación entre los referentes tenidos ayudo a que el grupo se cuestionara que elementos debiamos rescatar de cada uno y como estos potenciarian al proyecto

Con esta entrega nal, nos ayudo a ver y sintetizar todo nuestra. De esta manera poder generar asi nuestro propio sistema de trabajo y realizando un “check list” para cada proyecto, recordar actualizar los referentes y tener una mejor capacidad de trabajar en equipo

COMENTARIOS

Aunque se dio contexto del proyecto se veia poco, e uturas entregas colocar mas este factor.

PUNTOS A MEJORAR

Recordar de poner masmas cotas internas y en ela elevación mejorar la valoración de las proyecciones de las ventanas.

20 20
ESC. 1/20                                               1 2 3 4 5     A B C D E A B C D E 1 2 3 4 5              DETALLE 2 ESC: 1/5   DETALLE 3 ESC: 1/5    DETALLE 1 ESC: 1/5    UNIVERSIDAD DE LIMA FACULTAD DE INGENIERIA Y ARQUITECTURA     DETALLES DE MURO CORTINA ESC. 1/20                                               1 2 3 4 5     A B C D E A B C D E 1 2 3 4 5              DETALLE 2 DETALLE 3 ESC: 1/5 DETALLE 1 ESC: 1/5 UNIVERSIDAD DE LIMA FACULTAD DE INGENIERIA Y ARQUITECTURA     A-05 DETALLES DE MURO CORTINA CORTE A-A¨ - MAMPARA ESC. 1/20 3 A B C D E                    PLANTA 2 PISO ESC. 1/20 PLANTA 1 PISO ESC. 1/20                      1 2 3 4 5 1 2 3 4 5 A A A A DIBUJO Y PRESENTACIÓN DE PROYECTOS UNIVERSIDAD DE LIMA FACULTAD DE INGENIERIA Y ARQUITECTURA     A-0 DETALLES DE MURO CORTINA CORTE A-A¨ - MAMPARA ESC. 1/20 3 A B C D E                    PLANTA 2 PISO ESC. 1/20 PLANTA 1 PISO ESC. 1/20                      1 2 3 4 5 1 2 3 4 5 A A A A DIBUJO PRESENTACIÓN DE PROYECTOS UNIVERSIDAD DE LIMA FACULTAD DE INGENIERIA Y ARQUITECTURA     A-0 DETALLES DE MURO CORTINA CORTE A-A¨ - MAMPARA ESC. 1/20 B C D E                  PLANTA 2 PISO ESC. 1/20 PLANTA 1 PISO ESC. 1/20           1 2 3 4 5 A A A DIBUJO PRESENTACIÓN DE PROYECTOS UNIVERSIDAD DE LIMA FACULTAD DE INGENIERIA Y ARQUITECTURA     A-0 DETALLES DE MURO CORTINA

REFERENTE

TRABAJO V: CARPINTERÍA MATERIALES

Tubo estructural cuadrado negro Perno anclaje 1/2x3 3/4"

DISTRIBUIDOR: DIPAC

http://www.dipacmanta.com/tubo-estructural-cuadrado-negro

DESCRIPCIÓN

ÁREA TOTAL DEL TERRENO: 120 m2

ÁREA NO CONSTRUIDA: 2.76 m2

FUNCIÓN: CASA UNIFAMILIAR

DETALLES: CARPINTERÍA DE PUERTA MAMPARA Y CLOSET

MATERIALIDAD

Listones de madera pino de 2x5cm

DISTRIBUIDOR:

http://www.dipacmanta.com/tubo-estructural-cuadrado-negro

Varilla de madera ranurada 1/2"

Paños Vidriados de 3mm

DISTRIBUIDOR: Sodimac

https://www.sodimac.com.pe/sodimac-pe/product/161195/perno-anclaje-1-2x3-3-4%22

DISTRIBUIDOR: Promart

https://www.promart.pe/varilla-de-madera-ranurada-1-2-/p?gclid=Cj0KCQiAvbiBBhD-ARIsA GM48bzwIkamT4F5NtKhma

OuN0SygZbrmyoDvQCQA5UrvFpW836JSAziSwaAuqME ALw_wcB

Eje ajustable de cierre automático de acero inoxidable

DISTRIBUIDOR: aliexpress

https://es.aliexpress.com/item/4000738149738.html?channel=pinterest

Puerta hoja de madera de cedro

DISTRIBUIDOR: Maestro

https://www.maestro.com.pe/cart/search/5d4776149fde6b6d8ac75017a8dfef6e?rel= page&page=4

DISTRIBUIDOR: Corporación Corrales

https://corporacioncorrales.com/productos/vidrios-y-espejos/vidrios-primarios-o-monoliti cos

Tornillo de cabeza plana para madera, hexagonal, galvanizado

DISTRIBUIDOR: Alibaba

https://www.alibaba.com/pla/Galvanized-carbon-steel-hex-socket- at_60671399527.html?mar k=google_shopping&biz=pla&l

CLOSET

Bisagra mariposa de acero inoxidable Rieles Y Carros para Puertas Corredizas

DISTRIBUIDOR: Alibaba DISTRIBUIDOR:: Mercado Libre

https://spanish.alibaba.com/product-detail/sus-304-stainless-steel-durable-butter y- ush-hi nge-for-commercial-door-6073619 5955.html?spm=a2700.7724857.no rmal_o er.d_image.288d5a465hyy

LX

PINO

ESTRUCTURA Y ACCESORIOS DE ACERO

https://www.pinterest.com/pin/229754018474113368/

Per l de aluminio Per l de aluminio

DISTRIBUIDOR:: Corporación Limatambo

https://www.corporacionlimatambo.com/wp-content/uploads/2019/11/CATALOGO-C ORPORACION-LIMATAMBO-2 020.pdf

DISTRIBUIDOR:: Grupo AGV

http://grupoagv.com.pe/wp-content/uploads/2018/06/CATALOGO-DE-PERFILES.pdf

20 20 ENTREGA T5 A-05 DIBUJO Y PRESENTACIÓN DE PROYECTOS UNIVERSIDAD DE LIMA FACULTAD DE INGENIERIA Y ARQUITECTURA ..\..\..\OneDrive\Escritorio\DIBUJO PRESENTACIÓN\ULIMA.jpg A-08 CARPINTERÍA REFERENTES
MADERA
CLOSET PUERTA PUERTA MAMPARA MAMPARA
VARILLAS Y LISTONES DE MADERA PINO

I. SUMILLA

Es una asignatura teórico-práctica donde se desarrollará grá camente la representación de proyectos y detalles arquitectónicos (planos de obra).

Se aplicarán técnicas de dibujo asistido por computadora para la representación de proyectos arquitectónicos hasta el nivel de detalles de arquitectura y construcción, de acuerdo a la normativa técnica establecida. En la segunda parte se despliegan otros recursos digitales e impresos para la presentación profesional de proyectos de arquitectura.

II. OBJETIVO GENERAL

Suministrar a los alumnos de instrumentales conceptuales y operativos que les permita expresar conceptos y planteamientos de diseño con coherencia, rigor técnico.

III. OBJETIVOS ESPECÍFICOS

1. Dotar de los fundamentos conceptuales y técnicos a los alumnos para la expresión e caz del Proyecto Arquitectónico como herramienta fundamental de la construcción arquitectónica.

2. Dotar de los fundamentos conceptuales y técnicos a los alumnos para la expresión del detalle arquitectónico - constructivo, como fundamento parte del campo del diseño arquitectónico, de la construcción, la administración y la gestión de obras.

CONCLUSIÓN FINAL DEL CURSO

De este curso se pudo aprender y desarrollar principalmente el conocimiento de la correcta realización de planos de estructuras cuyo objetivo es la clara comunicación de elementos presentes en el proyecto arquitectónico, y así evitar errores al momento de la construcción del mismo. Por este motivo fue de mucha importancia el desarrollo de criterio de comunicación grá ca respecto a la planimetría en donde se logró entender qué elementos planimétricos debían ser mostrados a detalle y con una evidente diferenciación de los que no.

Otro aprendizaje clave y que se desarrolló a lo largo del periodo del curso fue la metodología de trabajo personal, que fue de la mano con la organización de trabajo en equipo. Estas dos fueron que fueron cambiando conforme se trabajaba cada expediente y se requería una mayor e ciencia en el el trabajo.De lo cual como grupo podemos constatar que una mejor metodología de trabajo personal mejora el trabajo en equipo y viceversa con la organización de trabajo en equipo, en especial si se establecen plazos de avances y se tiene una lista de puntos a mejorar.

Finalmente, el criterio de proceso constructivo de elementos, como carpinterpia y cerramientos, y la metodología de investigación implementada para encontrar información acerca de estos elementos fue imprescindible en este curso ,gracias a estos se adquirió conocimiento sobre fuentes o ciales en donde buscar cada vez que se necesite resover los detalles constructivos de algún elemento.

A futuro, este curso tendrá gran relevancia por el nivel de detalle que se pondrá en cada expediente de proyecto que se realize y en el trabajo con profesionales del mismo rubro.

Turn static files into dynamic content formats.

Create a flipbook
Issuu converts static files into: digital portfolios, online yearbooks, online catalogs, digital photo albums and more. Sign up and create your flipbook.