interior architecture portfolio
MADISON ARMBRUSTER
SELECTED WORKS

RETROGRADE HUES
MAIN LIVING SPACES REMODEL
LAYERED REVIVAL
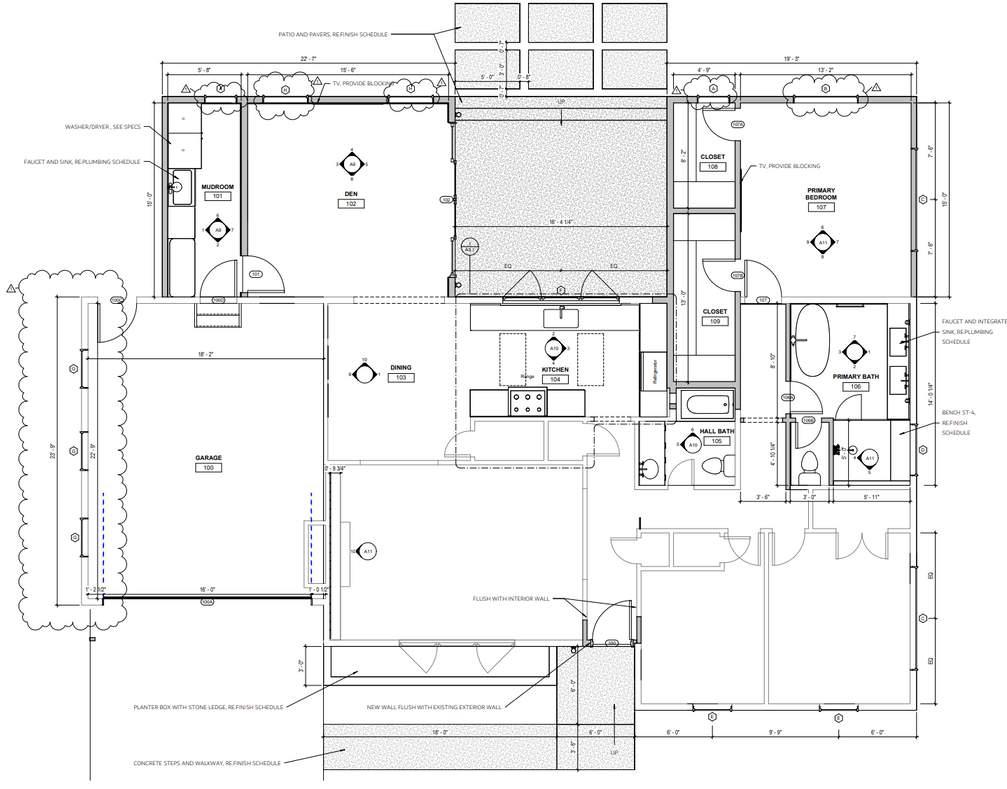
HOME REMODEL + ADDITION
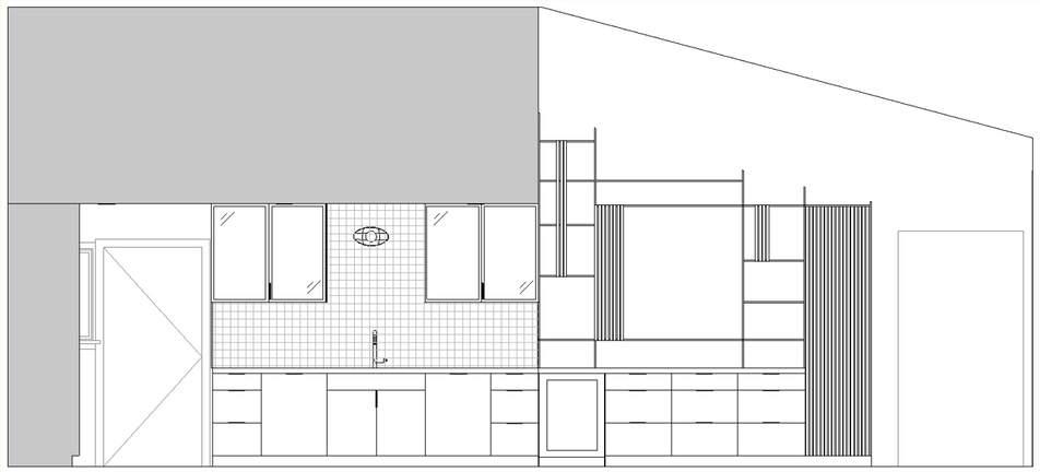
MID MOD NOD KITCHEN
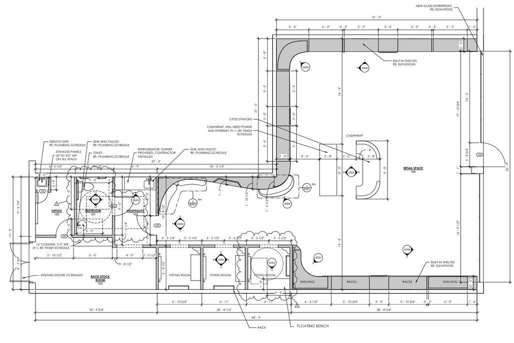
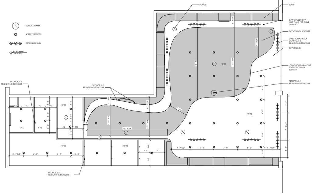
CLAIRVAUX RETAIL
JAPANDI COUNTRYSIDE
MAIN LIVING SPACES REMODEL
CLASSIC CHATEAU HOME ADDITION
DISCO ESSENCE
MAIN LIVING SPACES REMODEL
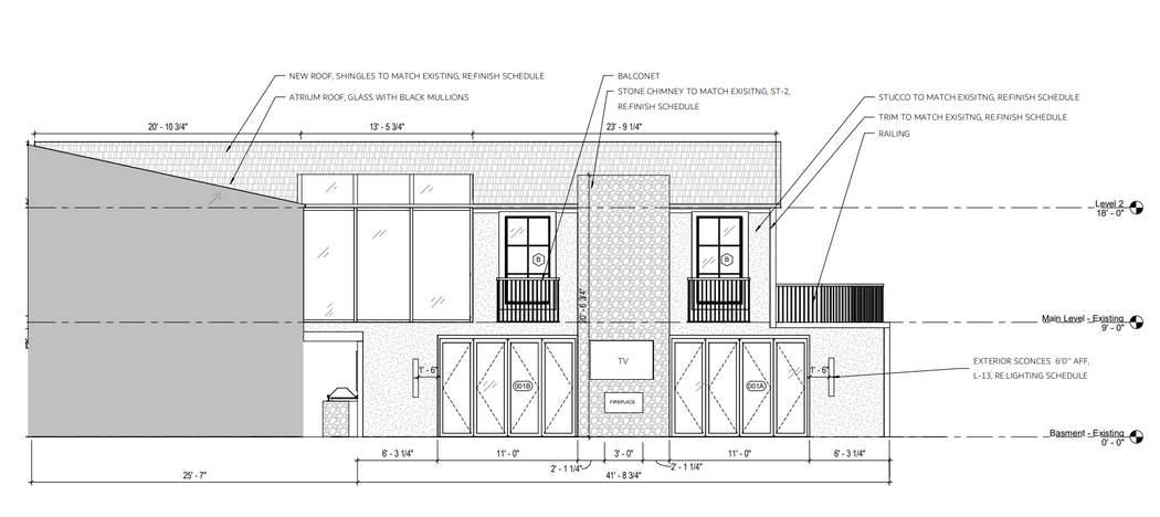
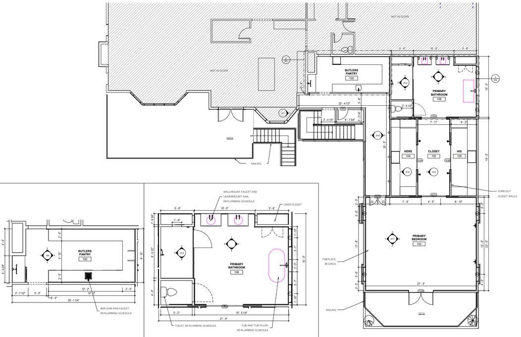
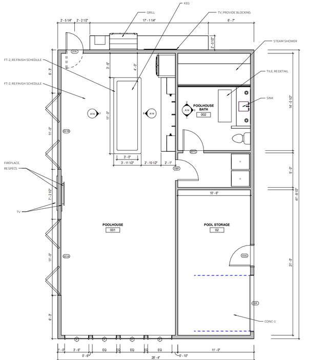
PARTY IN THE BACK
HOME REMODEL + ADDITION
LUDO’S SHUFFLEBOARD RETAIL
COFFEE CONCEPTS RETAIL


























































































































































































