

portfolio.
Marley Ramirez
Harmony Gardens
Group members: Elvia Delgado, Lara Rafols, Marley Ramirez
This group project, developed in collaboration with two other students, explores the intersection of sustainability, preservation and cultural heritage through the design of a music archive in Third Ward, Houston. The site is located along Elgin Street next to El Dorado Ballroom, a key part of the neighborhood’s jazz and blues legacy. This music archive is meant not only to protect an extensive vinyl collection, but to also honor the neighborhood’s musical heritage.

Elvia Delgado, Lara Rafols, Marley Ramirez

Elvia Delgado, Lara Rafols, Marley Ramirez




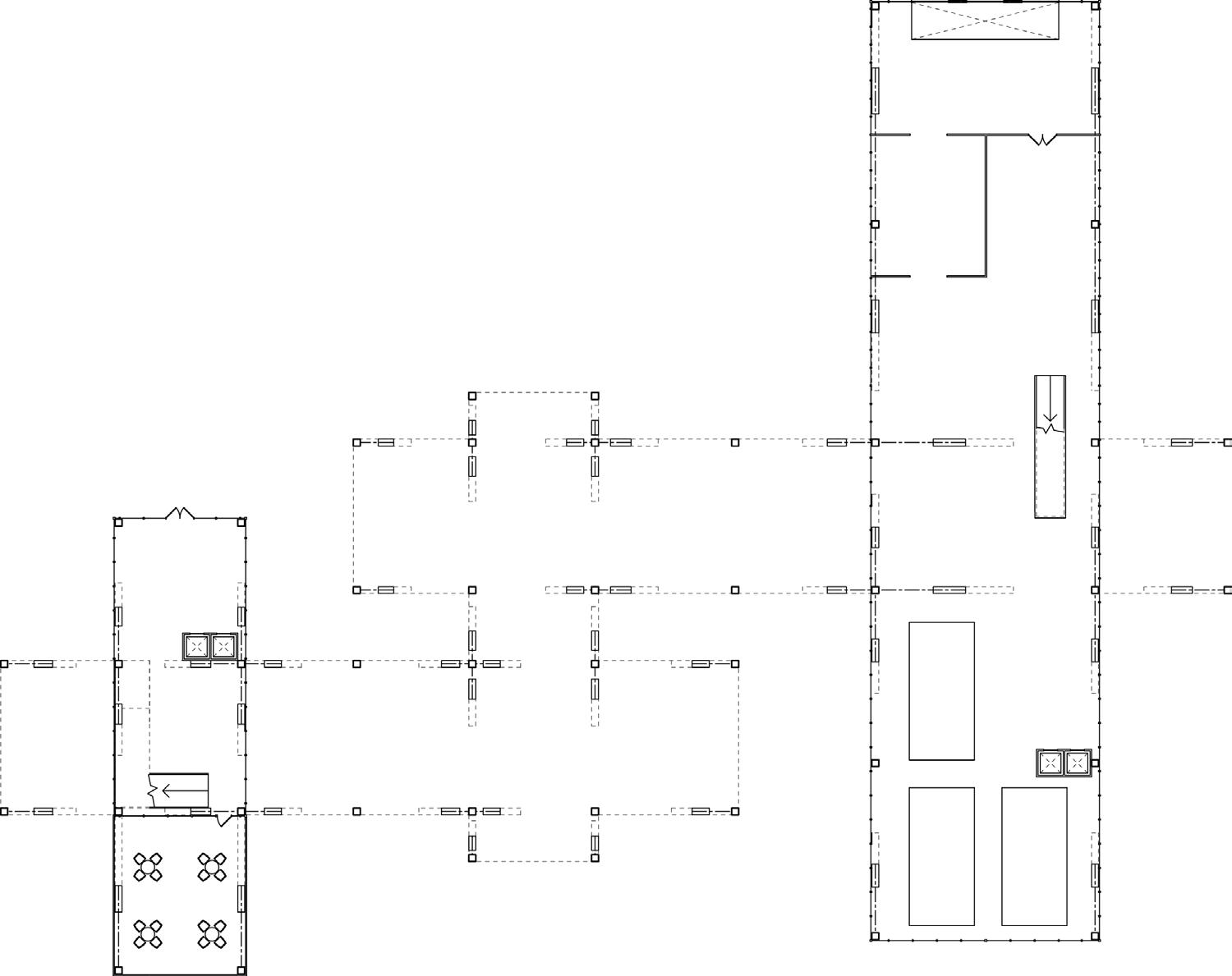
Second Floorplan Detail
Third Floorplan Detail
Second Floorplan
Third Floorplan
Elvia Delgado, Lara Rafols, Marley Ramirez

Site Isometric

Elvia Delgado, Lara Rafols, Marley Ramirez

North Section

Elvia Delgado, Lara Rafols, Marley Ramirez

Elvia Delgado, Lara Rafols, Marley Ramirez

Elvia Delgado, Lara Rafols, Marley Ramirez
Woven Community
Group members: Jessica Cotrofeld, Jennifer Franta, Favour Ogunyinmi, Marley Ramirez
This project designed in collaboration with three other students envisions a sustainable housing development in Houston’s Third Ward. Fabric is a central theme inspired by the neighborhood’s history with cotton production and textiles. Along side the site is the Columbia Tap Trail, which was once a railroad that played a keyrole in transporting cotton all while keeping the area connected to a larger market. Just as fabric connects people through clothing, this project connects residents to their neighborhood’s history, community and environment

Jessica Cotrofeld, Jennifer Franta, Favour Ogunyinmi, Marley Ramirez

Jessica Cotrofeld, Jennifer Franta, Favour Ogunyinmi, Marley Ramirez



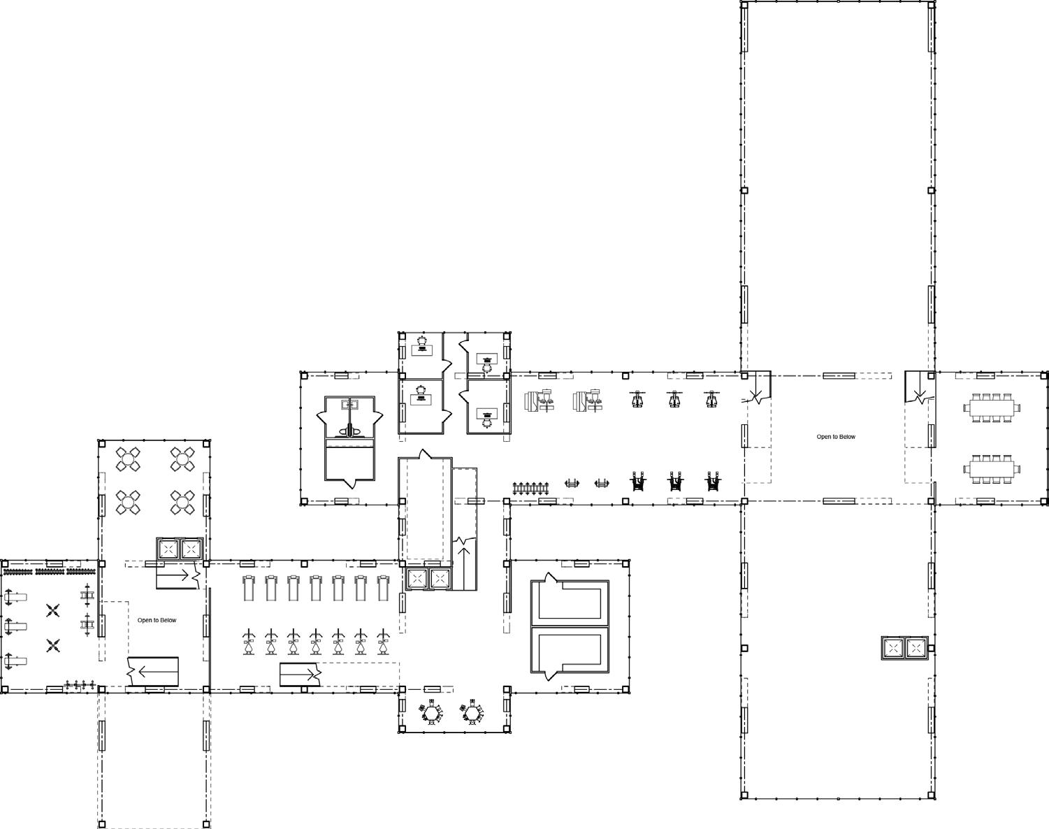
Ground Floorplan
Second Floorplan
Third Floorplan
Jessica Cotrofeld, Jennifer Franta, Favour Ogunyinmi, Marley Ramirez


Studio Dwelling Unit
One Bedroom Dwelling Unit
Jessica Cotrofeld, Jennifer Franta, Favour Ogunyinmi, Marley Ramirez


Two Bedroom Dwelling Unit
Three Bedroom Dwelling Unit
Jessica Cotrofeld, Jennifer Franta, Favour Ogunyinmi, Marley Ramirez

Jessica Cotrofeld, Jennifer Franta, Favour Ogunyinmi, Marley Ramirez

Jessica Cotrofeld, Jennifer Franta, Favour Ogunyinmi, Marley Ramirez
The Steel Joint
This project responds to a need for sustainable architecture and a community center in Channelview, Texas by proposing the creation of The Steel Joint, a scrap metal salvage facility that reuses salvaged steel as it’s primary material. The design draws inspiration from the 90-degree intersections of the buildings, symbolizing both the literal and metaphorical connections between the region’s industrial past and the future of sustainable building practice.




Second Floorplan

East Section







