UNIVERSIDAD PERUANA UNIÓN
FACULTAD DE INGENIERÍA Y ARQUITECTURA
ESCUELA PROFESIONAL DE ARQUITECTURA
ESCUELA DE ARQUITECTURA
HABILITACIÓN URBANA CATTLEYA
Asignatura: TALLER DE PROYECTOS
ARQUITECTÓNICOS V
Estudiante: Marleny Hilda Pintado Cordova
Docente:
Arq Mg Luis Armando Escudero Ruiz
Tarapoto, Julio- 2024
Agradecimientos
Como estudiante de la Universidad Peruana Unión del V ciclo de Arquitectura, quiero expresar mi sincero agradecimiento a las siguientes personas y recursos que han sido fundamentales en mi desarrollo académico:
A mis docentes: Su guía experta y dedicación han sido esenciales en mi formación como arquitecto.
A mis compañeros de clase: La colaboración y el intercambio de ideas enriquecedoras han sido un motor de mi crecimiento
A mi familia: Su apoyo constante me ha dado la fuerza para superar desafíos y persistir en este camino de la Arquitectura
1 ANÁLISIS DEL LUGAR / UBICACIÓN Y LOCALIZACIÓN
1.1. Ub cación
1 2 Topografia
2 ESTRATEGIAS PROYECTUALES / CONCEPTUALES / BOCETO
2 1 Concepto
2 2 Estrategias de configuración
2 3 Un dades de pa saje
2.4. Estrategias para art cu ar
2 5 Tipologías y emplazam ento
2 6 Abstracción de formas tipológicas
2 3 Proceso proyectual
2.4. El lenguaje desde el emplazam ento
3 VISUALIZACION DEL PROYECTO ARQUITECTÓNICO / PACK DE PLANOS
3 1 Habilitación urbana
3 2 Unifamiliar
3 3 Multifamiliar
3 4 Conjunto residencial
4 .CONCLUCIONES
1 . Análisis del Lugar
1.1.Análisis del Lugar
El análisis del lugar en Tarapoto Morales revela un entorno con un enorme potencial debido a su riqueza natural, cultural y económica. El diseño de la habilitación urbana debe aprovechar estas características, asegurando la sostenibilidad ambiental, respetando la cultura local y mejorando la infraestructura y la conectividad Con un enfoque holístico y considerado, el proyecto puede crear un entorno de vida atractivo y sostenible para los futuros residentes.

El terreno de intervención para desarrollar la habilitación urbana, se encuentra en Perú, Distrito San Martin, en el distritos de Morales. Abarca 62,784 m2 de área en total, en las cuales no presenta una topografia pronunciada.




El terreno presenta una topografia con una minima pendiente, su rio cercano es el río cumbaza . Está rodeado de exuberante vegetación tropical debido a su proximidad a la selva amazó- nica
Debido a su ubicación cerca del ecuador, Morales experimenta una cantidad relativamente constante de luz solar durante todo el año

En la rosa de los vientos, se observa que los vientos predominantes para Tarapoto provienen del norte, con velocidades que pueden alcanzar hasta 12 m/s. A lo largo del año, Tarapoto experimenta vientos frecuentes que superan los 5 km/h. Durante todos los meses del año, los vientos menos comunes oscilan entre 5 y 12 km/h

En términos de orientación cardinal, durante los equinoccios (alrededor del 21 de marzo y el 23 de septiembre), el sol sale aproximadamente por el este y se pone aproximadamente por el oeste, siguiendo una trayectoria cercana al ecuador celeste Durante los solsticios de verano e invierno (alrededor del 21 de junio y el 21 de diciembre, respectivamente), el sol puede tener una trayectoria ligeramente más al norte (en verano) o más al sur (en invierno), pero aún seguirá predominando su movimiento de este a oeste.
Por otro lado, febrero presenta los vientos menos vigorosos, con velocidades mínimas de 1 km/h y máximas de 4 km/h

2 . Estrategias Proyectuales
2.1.Las estrategias proyectuales
Las estrategias proyectuales para la habilitación urbana en Tarapoto Morales deben enfocarse en la sostenibilidad, la integración con el entorno natural, la diversificación de viviendas, la creación de espacios de recreación, la incorporación de usos mixtos, la mejora de la movilidad y accesibilidad, la seguridad y el bienestar, y la participación comunitaria. Estas estrategias no solo garantizarán un entorno de vida atractivo y funcional, sino que también promoverán un desarrollo urbano sostenible y resiliente que respete y celebre la rica biodiversidad y cultura de la región amazónica
CONCEPTO
El concepto se inspira en la elegancia y belleza de la orquídea Cattleya, conocida por su notable capacidad de adaptarse a diversos entornos El proyecto tiene como objetivo diseñar espacios arquitectónicos que integren estética y funcionalidad de manera armoniosa Al emular las cualidades de la Cattleya, buscamos crear ambientes que no solo sean visualmente atractivos, sino también altamente adaptables y eficientes en su uso. Esta combinación permite que los espacios no solo cumplan con sus funciones prácticas, sino que también ofrezcan una experiencia estética refinada y agradable.

O íd C ttl

Abtracción de formas curvas



Habilitación Urbana Cattleya
Se considera un espacio centra de manera que todos los residentes tengan un area comun la cual puedan acceder facilmente y tambien que sea como parte de la distribucion en toddo el proyecto.
1. MANZANAS
Las manzanas ref ejan a delicadeza de los pétalos de la orquídea, formando curvas suaves y armoniosas
2. VIAS
Las vías rodean todas las manzanas, lo que facil ta una mejor accesib lidad y conectividad en la urbanización.
3 ESPACIO CENTRAL Se cons dera el p stilo de a orquídea como un e emento central que conecta todas las partes y espacios

ESTRATEGIAS DE CONFIGURACIÓN

Llenos
Orden morfológico Vacios

El orden morfológico se desarrolla a partir de la formulación de la lotización en la habilitación urba- na. La principal estrategia consiste en dividir los espacios en proporciones equilibradas, organizando los volúmenes. Los vacíos se forman con las áreas designadas para aportes como recreación, educa- ción y otros usos
Orden proporcional

En el orden proporcional se consideran las alturas de las tipologías en el proyecto, organizándolas de menor a mayor. Esto se hace para asegurar una buena vista y lograr una apariencia proporcional entre volumenes.
UNIDADES DE PAISAJE
Zona de creación pasiva La habilitación cuenta con una zona de recreación pasiva ubicada en el centro del proyecto, funcionando como una estrategia para crear un punto de encuentro para los residentes

Zona de creación activa
Se encuentra al frente de la zona de recreación pasiva, complementándola con el objetivo de ofrecer opciones tanto de recreación pasiva como activa, promoviendo así una conexión entre los habitantes de la habilitación

ESTRATEGIAS PARA ARTICULAR




Puntos de descanso
Las bancas dispuestas alrededor de un árbol, proporcionan áreas sombreadas y cómodas para que los residentes puedan relajarse y disfrutar del entorno natural
Las bancas semicirculares constituyen otro punto de descanso, ofreciendo una experiencia diferente y entretenida. Este diseño fomenta la interacción social y brinda un espacio cómodo y atractivo.
Se implementaron pérgolas como puntos de descanso y también como espacios para observar la recreación activa. Estos elementos propor-
Puntos de conexión con la naturaleza.
La fuente de agua se integran al diseño para crear un entorno armonio- so y relajante. Estos elementos no solo embellecen el espacio
TIPOLOGÍAS Y EMPLAZAMIENTO
TIPOLOGÍA 01 Vivienda unifamiliar - Dúplex 90 m2


TIPOLOGÍA 02 Vivienda
Multifamiliar - Dúplex 120 m2


TIPOLOGÍA 03
Conjunto residencial
600 m2


© Arquitectura UPeU © Arquitectura UPeU
ABSTRACCIÓN DE FORMAS TIPOLÓGICAS
La abstracción de formas tipológicas utilizando simetría, jardines internos y terrazas con ritmo resulta en una propuesta arquitectónica que combina lo mejor de las tradiciones históricas con las necesidades y tecnologías contemporáneas. Este enfoque no solo enriquece la estética del edificio, sino que también mejora su funcionalidad y sostenibilidad, ofreciendo un entorno habitable que promueve el bienestar y la armonía
01 JARDINES INTERNOS
Los jardines internos como elementos de ventilación natural y luz

02 SIMÉTRIA
La simetría en el diseño se u para organizar los espacios ma- nera coherente, creand una sensación de orden y balance.

03 TERRAZAS Y RITMO
Las terrazas en los volúmenes sobresalientes pueden ofrecer vistas panorámicas, mientras que las terrazas en los volúmenes hundidos pueden proporcionar mayor privacidad y protección contra el viento
PROCESO PROYECTUAL
Estos diagramas que muestran la evolución del volumen, comenzando con formas simples y progresando hacia configuraciones más complejas.
MÓDULO 01
Vivienda unifamiliar

MÓDULO 02


MÓDULO 03
Conjunto Residencial




UNIFAMILIAR
Se ha considerado distribuir la casa de manera que la zona social se ubique en el primer piso y la zona íntima en el segundo piso. Esta disposición asegura una mayor accesibilidad y co modidad para los usuarios

SEGUNDO PISO
Sala de estar
Dormitorio principal
Dormitorio 1
Dormitorio 2
SS.HH Balcón
VIVIENDA MULTIFAMILIAR
En esta vivienda se ha diseñado la construcción de dos dúplex, cada uno con su propio acceso principal independiente Para garantizar la privacidad de cada familia, se ha incorporado una escalera interior en cada unidad. Además, se ha añadido una piscina en la azotea, como una zona social común.
PRIMER PISO
Cochera
Saa
Cocina
Comedor
Lavandera
Jardin
SSHH
TERCER PISO
Sala
Cocina
Comedor
Lavanderia
Jardin
SSHH
SEGUNDO PISO
Dormitoro principa Dormitoro 1 Dormitoro 2 SSHH Balcón
PRIMER PISO
Cochera
Sala
Cocina
Comedor
Lavanderia
Jardin
SS.HH
QUINTO PISO
Azótea Piscina
CUARTO PISO
Dormitorio principal
Dormitorio 1
Dormitorio 2
SS.HH Balcón

3 . Visualización del Proyecto Arquitectónico
Planos Post-Procesados Axonometrías
Renders
3.1. Book de planos
La visualización del proyecto arquitectónico mediante planos post-procesados, axonometrías y renders es esencial para comunicar de manera efectiva la complejidad y la belleza del diseño. Los planos proporcionan detalles técnicos precisos, las axonometrías ofrecen una comprensión clara de las relaciones espaciales, y los renders presentan una imagen atractiva y realista del futuro desarrollo
© Arqu tectura UPeU
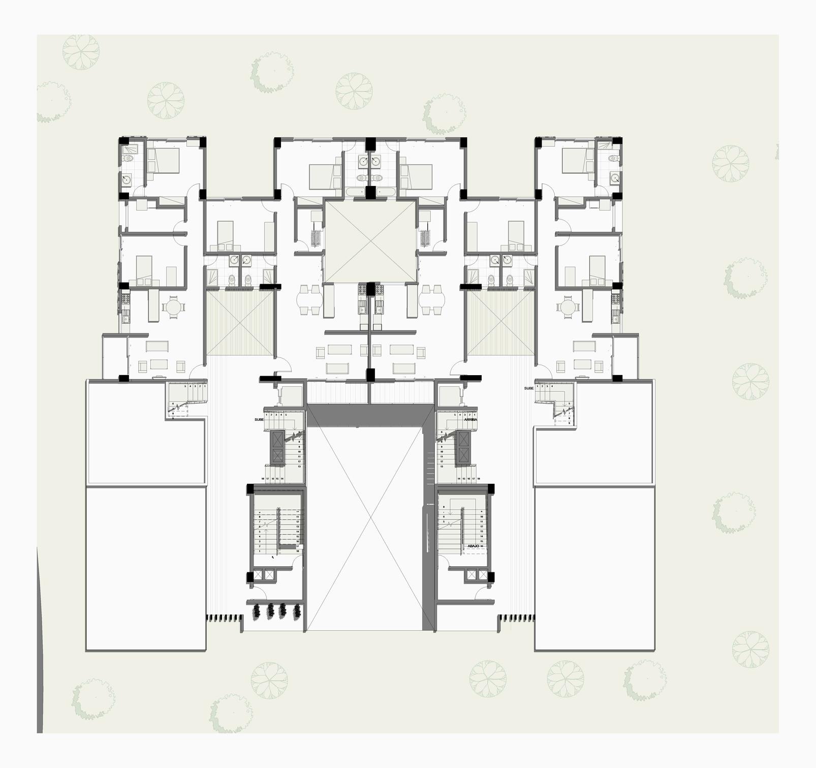
CONJUNTO RESIDENCIAL
En esta vivienda se han diseñado 14 departamentos, distribuidos de la siguiente manera: tres en cada piso, excepto en el quinto piso, donde solo se encuentran dos Además, se ha incluido una piscina, y en el sexto piso se ha diseñado un roof garden que funcionará como una zona social.
DEPARTAMENTO 01 AL 14
Sala
Cocina
Comedor
Lavanderia
Dormitorio principal
Dormitorio 1
SSHH
SEXTO PISO
Rood garden
Cafeteria
SS.HH
TERCER PISO
Departamento 07-09
SEGUNDO PISO
Departamento 04 -06
PRIMER PISO
Departamento 01-03
Recepción
Jardín
© Arqu tectura UPeU
VISUALIZACIONDELPROYECTOARQUITECTÓNICO
HABILITACIÓNURBANA

Zonas de descanso
QUINTO PISO
Departamento 13-14
Piscina
CUARTO PISO
Departamento 10 -12

TIPO
DE APORTES DE HAB LITAC ÓN URBANA





RECREACIÓN ACTIVA










UNIFAMILIAR

PRIMER PISO

SEGUNDO PISO
PUNTO DE FUGA


PUNTO DE FUGA






Multifamiliar

PRIMER PISO
TERRAZA
COCNA SALA
COMEDOR JARDN
JARDN LAVANDERA BALCÓN DORMITORIO1
SSHH
COCHERA

SEGUNDO PISO























Conclusiones
El proyecto de habilitación urbana en Tarapoto Morales, inspirado en la flor Cattleya, establece una identidad estética y simbólica distintiva que permea todo el diseño urbano La inclusión de diversas opciones de vivienda, como unifamiliares, multifamiliares y conjuntos residenciales, permite atraer a diferentes tipos de familias y estilos de vida, promoviendo una comunidad diversa y dinámica. Además, la planificación de áreas de recreación tanto pasiva (parques y jardines) como activa (canchas deportivas y áreas de juego) fomenta un estilo de vida saludable y facilita la interacción social y la cohesión comunitaria. La incorporación de usos mixtos, incluyendo servicios educativos y comerciales, mejora significativamente la calidad de vida de los residentes al ofrecer comodidades y servicios esenciales dentro de la urbanización, reduciendo así la necesidad de desplazamientos largos y promoviendo un entorno de vida más integrado y sostenible.
Recomendaciones
Para diseñar una habilitación urbana, es fundamental implementaralgunas de estas recomendaciones:
Prácticas de sostenibilidad mediante el uso de materiales ecológicos y soluciones energéticas renovables, lo que no solo reducirá el impacto ambiental sino también los costos operativos a largo plazo
Diseñar senderos peatonales bien iluminados y ciclovías seguras, asegurando además la accesibilidad para personas con discapacidad, fomentará una movilidad más inclusiva y segura.
Aprovechar la flora y fauna local en los espacios verdes contribuirá a apoyar la biodiversidad y a mejorar el bienestar de los residentes, creando un entorno natural y agradable Involucrar a la comunidad en el proceso de diseño y planificación permitirá identificar y responder a necesidades específicas, asegurando que el proyecto cumpla con las expectativas de los futuros residentes.
Planificar viviendas con capacidad de adaptación a necesidades cambiantes permitirá futuras modificaciones y ampliaciones, ofreciendo flexibilidad a las familias
Garantizar la seguridad mediante buena iluminación, puntos de vigilancia y una planificación urbana que evite zonas oscuras o aisladas es esencial para crear un entorno seguro.
Equipar la urbanización con tecnología moderna, como internet de alta velocidad y sistemas inteligentes de gestión de energía y seguridad, mejorará la calidad de vida y la eficiencia del barrio