Bozó Márk Attila: Épületek, építmények túraútvonalon

Page 1

DEBRECENI EGYETEM MŰSZAKI KAR

ÉPÍTÉSZ MSC SZAKDOLGOZAT

ÉPÜLETEK, ÉPÍTMÉNYEK

TÚRAÚTVONALON

Konzulens:

Keller Ferenc

Kovács Péter DLA

Készítette:

Bozó Márk Attila

építész hallgató

DEBRECEN 2023
TARTALOM BEVEZETÉS................................................................................................................................ 3 Témaválasztás 3 ÚTVONAL ................................................................................................................................. 4 A természet hatása az emberre 4 Túrázás 4 Hegymászás............................................................................................................................................. 5 A hegymászás pszichológiája................................................................................................................... 8 Az út jelentősége 9 MENEDÉK............................................................................................................................... 11 Menedék szó jelentése 11 Menedékház jelentése 11 Menedékház története ......................................................................................................................... 11 MENEDÉKHÁZ, TURISTAHÁZ.................................................................................................... 16 Szlovénia, Stara Fuzina, Alpesi menedékház, Premica Architects......................................................... 16 Szlovénia, Skuta, alpesi menedék, OFIS 18 Szlovénia, Kanin, alpesi kabin, OFIS 20 Olaszország, Vertosan völgy, Bivacco Bredy, BCW Collective 22 Olaszország, Dolomitok, New Bivouac Fanton, DEMOGO .................................................................... 24 Olaszország, Észak Tirol, Messner Corones Hegyi Múzeum, Zaha Hadid építész ................................. 26 Svájc, Monte Rosa menedékház, Bearth and Deplazes Architekten..................................................... 28 Norvégia, Tungestolen Turistaház, Snohetta ........................................................................................ 32 Norvégia, Rabot, Turistaház, JVA 34 Norvégia, Bergen, Tubakuba Hegyi menedék, Espen Folgero építész 36 Magyarország, Galyatető menedékház, Nartarchitects 38 Magyarország, Galyatető kilátó, Nartarchitects.................................................................................... 40 FORRÁSJEGYZÉK ..................................................................................................................... 42 KÉPJEGYZÉK............................................................................................................................ 44

BEVEZETÉS

Napjainkban egyre jobban előtérbe kerül a természetjárás, vissza a természetbe. Sokan választják a kirándulást, túrázást egy vagy akár többnapos kikapcsolódásnak. A városok egyre jobban besűrűsödnek mind beépítés, mind pedig népesség szempontjából is, ezért sokan eljárnak, kimennek, elvonulnak a természetbe kikapcsolódni, kirándulni, túrázni, sportolni, feltöltődni.

Témaválasztás

A szakdolgozat a túraútvonalakon megjelenő emberi viselkedésről, épületekről, építményekről szól. Taglalja a térrel való viszonyukat, elhelyezkedésüket, a természettel való kapcsolatukat, és az interakciókat.

Személyes indíttatásom, gyakran kirándulok és túrázok Célom a diplomatervvel az ember és a természet kapcsolatát erősíteni és olyan objektumot létrehozni, ami a természetjáróknak kedvez és segíti a természethez való közeledést.

3

ÚTVONAL A természet hatása az emberre

Ha a természetbe megyünk megváltozik az ember, megtapasztalható az, hogyha más embertársunkkal találkozunk köszöntjük a másikat. A túrázók, kirándulók a természetes közegben sokkal közvetlenebbé válnak, hiszen mindenki kikapcsolódni, feltöltődni megy. Az elvárosiasodás egyik következménye az lett, hogy gondolkodás és lelkiismeretfurdalás nélkül haladunk el embertársaink mellett. Ha azonban egy társasházban vagyunk, liftbe szállunk be, vagy csak elmegyünk vidékre, akkor arra az időre annak a kis közösségnek a tagjává válunk, és ebben a kis közösségben már illik köszönteni a másikat. Következésképpen, ha egy erdei túraútvonalon járunk gyalogosan, futva, kerékpárral vagy más módon ugyanilyen úgynevezett túrázó közösség tagjai vagyunk Amikor találkozunk valakivel, szinte biztos, hogy az illető is hasonló módon érez a természet iránt, és mint a túrázó közösségének a tagját, illik köszönéssel üdvözölni. [1]

Túrázás

Ahhoz, hogy a természetben legyünk, és kikapcsolódjunk számos lehetőség van. A túrázás, amelyet egykor a költők, felfedezők és kalandorok engedhettek meg maguknak mára az egyik leggyakoribb szabadidős tevékenység Túrázás közben van időnk magunkra. A gondolat a lépés ritmusában halad, az embert elragadja a képzelet elidőzik az érzésnél, anélkül elemez egy problémát, hogy azonnal meg akarná oldani. A hétköznapok néhány órára, néhány napra eltávolodnak, zárójelbe kerülnek, ezalatt nem hatnak ránk és egy belső utazáson veszünk részt, miközben a természetet járjuk Minden lépésünkkel egyre messzebb kerülünk a civilizációtól, a biztonságtól, az emberektől. A házakból kiszűrődő zajok hangját a lágy szellő susogása váltja fel, az agglomeráció fülledtségét pedig a friss, tiszta levegő. Megszabadulva a feszültségtől, szabadnak érezzük magunkat. Jól esik a puha, nedves fű a talpunk alatt. [2] [3] [4]

Ehhez hasonlóan a különféle hangok, szagok vagy a tapintás is az épített környezettől eltérő érzelmeket és testélményt tudnak kiváltani. Az ember nem pontosan tudja, mitől, de jobban érzi magát. A japánok nem véletlenül beszélnek az erdőfürdőről. Ez olyan, mintha megfürödne az idegrendszer ezekben az élményekben. De a fizikai élmény mellett szimbolikus élményt is tud nyújtani, például egy hegy megmászása. A természetben, olyan kihívásokkal is találkozunk, melyeket városi környezetben nehéz reprodukálni, hiszen az ember zsigerileg képes arra, hogy megkülönböztesse a

4

valós és szimulált kihívásokat. Éppen ezért, ha egy valós természeti helyzetet győzünk le az sokkal nagyobb túlélésélménnyel jár, ilyenek az extrémsportok is valójában. [5]

Hegymászás

A hegynek tiszta, világos formája van. Főleg a kisgyermekek ábrázolásában, ők a hegyeket határozott vonalakkal ábrázolják és ezek a vonalak mind fölfelé törnek a magasba, ezek a vonalak egyetlen pontban futnak össze, a csúcsban. A gyerekek számára magától értetődő, hogy én fel akarok mászni egy hegyre. [3]

A hegymászás vagy alpinizmus, olyan szabadtéri tevékenységek összessége, amelyek magas hegyekre való feljutásból állnak. A hegymászással kapcsolatos tevékenységek közé tartozik a hagyományos szabadtéri hegymászás és ferratákon való átkelés.

A via ferrata egy olyan mászóút, ahol acélkábelek, kiszögellések és létrák vannak a sziklához rögzítve, a hegymászók ezekhez a fémtartókhoz rögzítik magukat. A via ferrata eredete a 19. századra nyúlik vissza, de gyakran az első világháborúhoz kötik, amikor Olaszországban a Dolomitok hegyvidékén több is épült, hogy segítse a csapatok mozgását. A modern via ferraták előfutárának tekinthető építmény az alpesi felfedezés és turizmus növekedéséhez nyúlik vissza. 1843-ban Friedrich Simony vezetésével egy útvonalat építettek Ausztriában a Dachsteinen, vasszegeket és csapokat vertek a falba, melyet nemcsak a kenderkötél kikötésére, hanem a mászás segítéseként lépésekre, és fogásokra is használtak. [6]

5

Az ember az őskor óta jelen van a hegyekben, Kr.e. a 4. évezredben élt gleccserben találták meg Ötzit az Ötztali Alpokban. A legmagasabb hegyeket azonban elég ritkán látogatták meg, és természetfeletti vagy vallási fogalmakhoz kapcsolták őket. Ennek ellenére számos dokumentált példa van arra, hogy az emberek hegyet másztak a sportág formális kifejlődése előtt a 19. században, bár ezek közül a történetek közül sokat legendának tekintenek.

A híres költő, Petrarka leírja 1336. április 26.-ai feljutását az 1912 méter magas Mont Ventoux-hegyre egyik Epistolae familiares-ében A középkori ember a bűnök forrását és a démonok lakhelyét látta a természetben. Petrarca volt az első, aki megfogalmazta, hogy a természeti szépség és a nagytáji látvány mély hatással van az emberi lélekre. Az ő tájábrázolásában jelenik meg először a természet világával szembeni őszinte csodálat érzése. Ez fontos természetszemléleti fordulópontnak tekinthető, hiszen az ókor óta feltehetően kevesen másztak meg egy hegyet kizárólag azzal a szándékkal, hogy a kilátás szépségében gyönyörködjenek. [7]

Az ókor nagy részében a hegymászás gyakorlati vagy szimbolikus tevékenység volt, általában gazdasági, politikai vagy vallási célból 1492-ben VIII. Károly francia király parancsba adta alattvalóinak, hogy jussanak fel a több száz méter magas, függőleges falakkal határolt 2093 méter magas Mont Aiguille csúcsára. Antoine de Ville királyi főlovászmester a falu számos erőforrását igénybe vette a parancs teljesítéséhez, míg végül sikerült megoldania a lehetetlennek tűnő feladatot. Többek között 3 kilométernyi falétrát használt fel a küldetéshez. A világ első via ferratáját a megmászás után lebontották, hogy más ne érhesse el a királyi csúcsot. A hegy második meghódítására egészen 1832-ig kellet várni, amely jelzi a nem mindennapi vállalkozás nehézségét. [8]

Az Andokban az 1400-as évek végén és az 1500-as évek elején az inkák és alattvalóik számos emelkedést végeztek rendkívül magas csúcsokon. A Llullaillaco vulkán 6739 méteres magassága a legmagasabb, amit biztosan megmásztak. Az inkák nemcsak a fizikai kihívásokat küzdötték le, hanem a pszichológiai akadályt is, melyet a szent hegyekben lakó istenségektől való félelem idézett elő. [9]

6

A legtöbb sporttal ellentétben a hegymászásból hiányoznak a széles körben alkalmazott formális szabályok, előírások és irányítás, a hegymászók sokféle technikát és filozófiát követnek.

A hegymászás mindig fejben kezdődik, a saját korlátaink, állóképességünk ismerete és felmérése, amely mind összekeveredik ebben a szenvedélyben. Nagy hatással van arra, aki átadja magát ennek a gyakran saját drámákon keresztül megélt kalandnak. A magas hegyek látogatása rengeteg lehetőséget, különlegességet ad. Túrázást havon, jégen, sziklás területen, északi oldalakon, napos falakon, hegygerinceken, alpesi mészköveken vagy a Himalája óriásain. Minden helynek megvannak a maga hegyei és hegymászási módja, ahogy minden embernek megvan a maga hegye és útválasztása, melyek egy napra vagy egy életre felejthetetlen pillanatokat okoznak vagy okoztak [10]

Egy nehéz mászás, különösen egy nehéz szólómászás kezdetén fokozottan tudatosul bennünk a hátunk mögött tátongó mélység. Szüntelenül érezzük vonzását, kielégíthetetlen étvágyát. Hallatlan szellemi erőfeszítést igényel, hogy ellenálljunk neki, egy pillanatra se merjünk lazítani. A szakadék sziréndala éberségre késztet minket, puhatolódzóvá, sutává, görcsössé teszi mozdulatainkat. A mászás előrehaladtával azonban egyre inkább megszokjuk a kitettséget, a végzet érintését, lassan elhisszük, hogy bízhatunk saját kezünkben, lábunkban, fejünkben. Megtanulunk az önfegyelmünkre hagyatkozni.

Figyelmünk apránként annyira összpontosul, hogy már észre sem vesszük kidörzsölődött ujjperceinket, combunk sajgását, az állandó koncentráltság fenntartásának feszültségét. Révületszerű állapot fedi el az erőfeszítést, a mászás éberen megélt álommá szépül. Órák röppennek el, akár a percek. A hétköznapi létezés fölhalmozódott bűntudata és zavara - a lelkiismereti botlások, a kifizetetlen számlák, az elfuserált lehetőségek, a por a kanapé alatt, a kínzó családi bajok, a gének könyörtelen börtöneátmenetileg feledésbe merül, kiszorítja gondolatainkból a világosan kirajzolódó, hatalmas cél és a pillanatnyi feladat komolysága - mondja Jon Krakauer, amerikai író és hegymászó [10]

A hegymászás konkrét tevékenység, a hegy meghódításáról szól Sartre az egész emberi létezés lényegének a világ, az önmagában való elsajátítását tartja. Az ember, az egész világot el akarja sajátítani, önmagában-önmagáért való létként kíván ki- vagy inkább beteljesedni. Azt mondja Sartre egy helyen az vagyok, amit birtoklok. Ez a hegy, amit megmászom, annyiban szintén én vagyok, hogy legyőzöm azt és amikor a tetején vagyok, amit elértem, akkor ugyanezen erőfeszítések árán én vagyok az a tágas nézőpont is, amely a völgyre és a környező csúcsokra nyílik. [11]

7

A hegymászás pszichológiája

Mi vonz bennünket a hegyre? Miért vagyunk boldogok, ha elértük a csúcsot? Mi történik út közben?

Miért más az érzés miután lejöttünk mielőtt felmentünk volna? Mi játszódik le bennünk? Mit is jelent számunkra ez?

George Mallory-t mikor megkérdezték, miért akarja megmászni a Mont Everestet egyszerűen csak azt válaszolta "mert ott van" Mallory angol hegymászó, a világ legmagasabb hegyének megmászására vállalkozott és a Mount Everest első expedícióiban vett részt, köztük az 1922-es expedícióban, mely során Mallory és társai lettek az első emberek, akik 8000 méter fölé jutottak majd 1924-ben szintén megpróbálták, 6500 méterről indultak neki a csúcsnak Andrew Irvin-nel, viszont tragédiával végződött. A hegymászásról nem tértek vissza, valahol a hegyen rekedtek. Utoljára 7925 méteren látták őket, holttestüket csak 1999-ben találták meg.

Az ember úgy van megalkotva, hogy az a jó neki, ha hatékony, erőfeszítéseket tehet, amikor használja a képességeit, tágíthatja a határait, bevetheti az erőforrásait. Mindez örömet okoz, és fejlődési lehetőséget. Az ember azt hiszi, elérkezett a határaihoz, de ha nem áll meg, hanem megtapasztalja, hogy a határok rugalmasak, akkor jobb és erősebb tud lenni. [12] A teljesítőképesség határát csak az képes átlépni, aki az apró lépések útját választja. A határok csak fokozatosan tolhatók ki, lépésről lépésre, ha tudom, hogy A és B lehetséges, akkor C is lehetségessé válik. [3]

8

A nehezen elérhető csúcsra törekvő hegymászó tisztában van azzal, hogy az út nagy része fárasztó és veszélyes lesz, de ha túl könnyen feladja, akkor a vállalása is értéktelenebb lesz. Aki vállalja a kihívást, életútjának célt és értelmet ad. A csúcsra, vagy épp egy útra tekintve célt állítunk magunk elé. Egy ilyen cél megnyitja az elmét, és energiákat mozgat meg és szabadít fel. Életünkben az általunk kitűzött célok elérése például a hegy megmászása boldogságérzetet keltenek. [13] A módosult tudatállapot létrejöttében közrejátszik a kellemes fáradtság érzése és a minél érintetlenebb természeti környezet. Ilyenkor egyszerre kiélesednek az érzékeink, tudatába kerülünk a színeknek, sokkal élesebben halljuk az ágak reccsenését, vagy a bogarak neszezését. Elfogja az embert az érzés, hogy milyen jelentéktelen porszemek vagyunk mi ebben a hatalmas világmindenségben. Az én eltűnik, feloldódik valami magasabb minőségben. [14]

Az út jelentősége

Túrázás során, egy útvonalon megyünk és azon keresztül érjük el a csúcsot. Vajon mit jelent számunkra az út? Elvégre az út a fontos nem a végcél.

A hegymászás mindig egy zarándokút is egyben, az úton többször is szembekerül a mászó saját magával. A csúcstámadás hajnali órái a nagy hidegben és a sötétben egy önismereti képzésbe is beleillik.

Egy úton haladunk, megyünk és megyünk, felnézünk, tájékozódunk. Útközben feltérképezzük a helyet, a környezetet, ahol vagyunk. Felbukkannak látnivaló, dolgok melyre felfigyelünk, majd ismét magunk elé pillantunk a lábunkra a lépéseinkre. Egy hegyi ösvényen gyalogolni egészen más, egy túrázó számára minden egyes lépés új, és az előzőtől eltérő feladatot jelent, mely során úgy kell feljebb lépni, hogy az a legkedvezőbb legyen

„Mozgásomat megpróbálom minél egyenletesebbé tenni, megpróbálom minél jobban tompítani azt a konfliktust, amely a két szilárd test, a saját testem és a talaj érintkezése során keletkezik. Két szilárd felszín érintkezése, miközben a levegő és a föld kapcsolatáról szól. Igyekszem minél gördülékenyebbé tenni mozgásomat. A szó szoros értelmében is: igyekszem szinte átgördülni a talpamon, mintha csak egy biciklikerék részlete lenne. (…) A tér tovább konkretizálódik: a lassabb haladási sebesség miatt ellaposodik, a fókuszpont közelebbre tevődik át, s közben a tér oldalirányban kiszélesedik. A hangok, a szagok is jobban azonosíthatók, a sebesség csökkenésével egyre több jelentéssel telítődnek. Minden arra csábít, hogy bámészkodjam. De nem ez az egyetlen csábítás. Mivel nem vagyok feloldódva egy

cselekvés értelem-összefüggésében, mivel nem kell egy adott mozdulatsort a lehető legpontosabban

9

végrehajtanom, mivel a tevékenység, amit folytatok, órákig tart, ezért a gondolataim nagyon hajlamosakká válnak az elkalandozásra. ” [11]

A természetben kicsit átszellemülünk lelassul minden körülöttünk. Majd az út során nem csak kifelé, hanem befelé is figyelünk. A folyamat során előbb-utóbb előjön a fáradtság, a fájdalom, egy belső

feszültség. Nem árt megállni néha és átgondolni miért vagyunk itt, miért csináljuk. Motivációt, erőt kell gyűjteni, hogy végig tudjuk járni a felfelé vezető utat. Amikor a testünk már jelzi, hogy elég, akkor fejben kell ott lenni, hogy elérjük a célt és ezáltal tudjunk fejlődni.

A Mount Everest csúcsán elhelyezni a zászlót egy pillanat csupán, azonban évek munkája összegződik abban az egyetlen pillanatban. Ezek olyan élmények, amelyek értéktelenek lennének az odavezető út teljesítménye nélkül. Maga az út önmagában is értéket képvisel, még akkor is, ha a hegymászó sosem éri el a csúcsot. [15]

A következő szavak egy hegymászótól származnak: „A hegymászás titka magában a mászásban rejlik, amikor felérsz egy szikla tetejére, akkor örülsz, hogy vége van, de valójában azt kívánod, bárcsak örökké tartana.” [16]

Ha elértük a csúcsot, boldogság tölt el, megállunk, szétnézünk, szusszanunk egyet, gyönyörködünk a látványban, a tájban, kicsit lepihenünk, megnézzük honnan jöttünk.

Elindulunk az úton lefelé egyik láb a másik után, valahogy könnyebben megy, visz a lendület, gyorsabb, könnyebb. Sokszor a lefelé vagy haza vezető úton történik valami, nem összpontosítunk eléggé, vagy elkészülünk az erőnkkel. A gyakorlott mászó felkészül minden eshetőségre, de bármikor történhet valami váratlan fordulat, amit az adott pillanatban kell megoldani. Hirtelen rosszra fordul az idő, besötétedik, vagy netalántán egy rossz lépés bekövetkeztekor megsérülünk. Éppen ezért több helyen megjelennek különböző menedékek a csúcs közelében akár a csúcson, vagy a hegy lábánál. Az idők során egyre több különböző épület, építmény épült, amelyek segítik a mászókat egy-egy ilyen nem várt fordulat bekövetkeztekor.

10

MENEDÉK

Menedék szó jelentése

Védelmet jelentő hely, amely egy támadó személy vagy káros hatás, jelenség elől az odamenekülőknek oltalmat nyújt. A katonának a lövészárok menedék lehetett a háborúban. A menekülő eléri a menedéket, ahol megpihenhet. Átvitt értelemben védelmet nyújtó dolog, eszköz, tárgy, személy, amely oltalmat, vigasztalást, megkönnyebbülést nyújthat. Menekülési lehetőség veszély elől, kibúvó egy nehézség alól. Régen a pajzs a katona menedéke volt az ellenséges kardcsapások elől. A kisgyerek számára az anya jelenti a menedéket.

Régies: Lejtős hágó, átjáró, keskeny ösvény a hegyek között, amelyen át lehet kelni a hegyek között. A meredek hegyoldalak között egy menedék vezet át, ahol a lovak gyorsabban mennek. A menedékben könnyebb a menet, mint a sziklás hegyoldalon lenne. [17]

Menedékház jelentése

A hosszabb túraútvonalakon különböző épületek, építmények jelennek meg, melyek a túrázás élményét segítik a természetkedvelőknek. Egy vagy többnapos túrákon, ha rosszra i fordul az időjárás különböző turistaházak, menedékházak biztosítják a védelmet az időjárási viszontagságok ellen. A világ minden táján a hegyi menedékek hosszú évek óta menedéket nyújtanak a hegyvidéki utazóknak, például a síelőknek és a hegymászóknak. Európában több száz kunyhó van a hegyeken, és sok közülük több mint egy évszázada használatban van.

A kunyhó szó eredetileg egy olyan kis építményt jelentett, amely gyakran kapkodva épült és mulandó volt. A modern természetjárás megjelenésével a szó új értelmet nyert, és az egyszobás menedékhelyektől kezdve, a több hálószobásokon keresztül, a komfortot növelve vízvezetéket és fűtést is tartalmazó építményekig mindent leír.

Menedékház története

Henry Russell-Killough gróf, a "Pireneusok remetéje" nem volt mindennapi 19. századi ember. A Russell-ház ír ágának legfőbb képviselője az 1860-as évektől kezdve lemondott a civilizációról, és helyette a Pireneusok hatalmas, kopár tájain húzta meg magát. Az 1880-as években hét barlangot

11

ásatott a Vignemale oldalában, a francia Pireneusok legmagasabb csúcsán, ahol legendás lakomákat rendezett.

Csendesebb éjszakákon a gróf egy báránybőrből készült zsákkal mászott fel a csúcsra. Ott, betemette magát a sziklák és a föld alá, és csak a feje látszott ki, hajnalig maradt. Russell-Killough-nak tulajdonítják a bivak, vagy hegyi menedék feltalálását. A bivakolás a hegymászó sporttal együtt jelent meg az 1800as évek végén, amikor a hegymászók rájöttek, hogy néha aludniuk kell a csúcsra vezető úton. A "bivvy" Russell-Killough szerint egy egyszerű zsák is lehet. Lehet egy sziklafalra vagy fára függesztett sátor, vagy egy ágakból és levelekből rögtönzött szerkezet. Lehet kunyhó is, amely hagyományosan fából vagy fémből készült építmény.

Heinrich Harrer hegymászó A fehér pók című műve egy az Eiger északi falának, az akkoriban az Alpok legveszélyesebb falának 1938-as gyötrelmes első megmászásáról mesél. Leír a csúcs közelében lévő bivakot, amely az expedíció sikerének központi eleme volt. Sikerült egyetlen sziklacsapot a szikla egy apró hasadékába vezetniük. Először minden dolgukat ráakasztották, majd magukat is becsatolták. A hegymászók kötélhurokból alakítottak ki ülőhelyet, és 4000 láb magasan a hegyen lógtak a szakadék tövében. "Egyáltalán nem túlzás azt állítani, hogy mindannyian nagyon jól éreztük magunkat, és valóban kényelmesen " - mondja Harrer.

12

A hegymászás évtizedekig az úriemberek és vándorok időtöltése volt, de az utóbbi években a legmodernebb hegymászófelszerelések, a kézi GPS-nyomkövető technológia és a 21. századi, mohó vándorlási vágy feltalálásával jövedelmező és virágzó üzletággá vált. A hegyekben azonban a dolgok gyorsan rosszra fordulhatnak. Két francia hegymászó, egy apa és egy fiú, a rossz időjárás miatt kénytelen volt feladni a Mont Blanc megmászását. A Refuge Vallot-ban kerestek menedéket, egy 4362 méteren található bivakházban, ahol 12 hegymászó tud aludni. A páros addig adagolta az élelmet, amíg a mentők három nappal később megérkeztek. [18]

13

A hegymászáshoz bátorságra, kitartásra és ügyességre van szükség. Az építészek számára is számos

kihívást jelentenek a hegyek. Charlotte Perriand volt az egyik első illusztris építész, aki komolyan foglalkozott a bivakolással. Az 1903-ban született Perriand gyermekkorát Párizs és nagyszülei Savoie hegyvidéki otthona között töltötte, mielőtt a korai modernista mozgalom egyik legbefolyásosabb tervezőjévé vált, 1937-ben, miután Le Corbusier műtermében dolgozott.

A természet iránti szeretetének köszönhetően Perriand úgy érezte, hogy olyan hegyi menedéket kell terveznie, amely képes elviselni a hegycsúcsok zord időjárási körülményeit, ugyanakkor elég könnyű ahhoz, hogy kézzel lehessen szállítani

Perriand együttműködve Andre Tournon-nal megalkotott egy 8 négyzetméteres, hat személy számára kialakított menedékhelyet a Mont Joly-hegyen. A népi építészet által inspirált szerkezetet előregyártott, acélcsöves vázra építették. Perriand alumínium alkatrészeket használt, mivel ezek könnyűek és könnyen szállíthatóak A szűkös körülmények enyhítése érdekében az ágyak kivehetőek voltak, és padokként funkcionáltak a nap folyamán, míg a kocka alakú zsámolyok tárolóként funkcionáltak. A Mont Joly havas lejtőin a második világháború utánig maradt.

14

Perriand egy szintén alumíniumból készült változatot is megtervezett, amely azonban soha nem épült meg. Hengeres alakja miatt hordónak nevezték el. Ezt a nomád építészeti alkotást, amelyet "Le Refuge Tonneau"-nak nevezett el, azzal a szándékkal építette meg, hogy minimális hatást gyakoroljon a természeti környezetre. Ugyanazokat a bioklimatikus elveket, összeszerelési technikákat és mobil bútorrendszereket alkalmazta, amelyeket az alpesi prototípus építésénél sikeresen alkalmaztak.

A zord éghajlaton való építkezéssel kapcsolatos kihívások továbbra is érdeklik az építészeket. David Garcia, a koppenhágai székhelyű Map Architects alapítója a szélsőséges környezetben való lakhatást kutatja.

„Szerintem az az érdekes, hogy amikor ilyen szélsőséges környezetben vagy, sokkal könnyebb elveszíteni a vonatkoztatási keretedet, és nyilvánvalóvá válik, hogy nem építhetsz úgy, mint bárhol máshol.” -mondja Garcia.

Amikor ezekbe a régiókba költözöl, amit valószínűleg egyre többet fogunk tenni, ahogy a népesség növekszik és a helyek elérhetőbbé válnak, akkor behatolunk ezekbe az új kontextusokba. Meg kell próbálnunk ezt a legkevésbé agresszív módon tenni". [18]

15

MENEDÉKHÁZ, TURISTAHÁZ

Szlovénia, Stara Fuzina, Alpesi menedékház, Premica Architects

Az építészek az egykori első világháborús óvóhelyet átalakították egy alpesi menedékhellyé. Az egész alpesi bivak betonalapokon áll, az egykori menedékház maradványain. Az ellátó utak és ösvények helyenként szinte érintetlenül megmaradtak, és ma már kijelölt túraútvonalként szolgálnak. Ezekből több száz út maradt fenn, amelyek viszonylag könnyű és biztonságos, egyenletes lejtéssel rendelkező megközelítést kínálnak az Alpok e részének magashegyi világába.

Az egész bivakot előre egy völgyben lévő műhelyben gyártották le és szerelték össze. A szétszerelt, keresztbe rétegelt paneleket ezután helikopterrel szállították a helyszínre. A szállítás lehetővé tétele érdekében 20 hasonló súlyú csomagra osztották őket.

A menedékhelyen nincs folyóvíz vagy áram, kivéve egy kis napelemet, amely egyetlen fali lámpát működtet.

Az ember szükségletei és a természethez való viszonya közötti alapvető ellentétet bemutatva a bivakok megértéssel fordulnak a környező terephez, ami kulcsfontosságú az érzékeny vad környezetbe történő beavatkozásoknál [19]

16
17

Szlovénia, Skuta, alpesi menedék, OFIS

Ez az apró alpesi menedékház a szlovén hadsereg által a helyére szállított helikopterrel a Skuta-hegy alatti sziklán áll, és akár nyolc hegymászót is el tud szállásolni.

A Skuta alpesi menedékházat a Harvard Egyetem hallgatói tervezték egy építészeti workshop során, amelynek házigazdái Rok Oman és Spela Videcnik, a szlovén OFIS stúdió munkatársai. Oman és Videcnik a Habitation in Extreme Environments (Lakhatás szélsőséges környezetben) című workshopjuk során arra kérték a hallgatók kis csoportjait, hogy tervezzenek olyan kunyhókat, amelyek ellenállnak a zord alpesi éghajlatnak.

Frederick Kim, Katie MacDonald és Erin Pellegrino javaslatát választották ki, amely egy 50 éves viharbarlangot váltana fel a szlovéniai Skuta-hegy, a Kamnik Alpok harmadik legmagasabb csúcsa alatti részen A környezeti erőknek való szélsőséges kockázatvállalás kontextusában fontos olyan épületeket tervezni, amelyek ellenállnak a szélsőséges időjárásnak, a radikális hőmérsékletváltozásoknak és a zord terepviszonyoknak. Az első modul a bejáratot, a tárolást és az ételkészítésre szolgáló területet biztosítja, míg a második az alvás és a társas tér helye. A harmadikban emeletes ágyak találhatók. [20]

18
19

Szlovénia, Kanin, alpesi kabin, OFIS

Ez a szlovén OFIS Arhitekti stúdió által tervezett apró, alumíniummal burkolt menedékház az olaszszlovén határon levő hegyek peremén magasodik. Úgy tervezték ezt az apró 9,7 négyzetméteres kabint, hogy ellenálljon a szélsőséges időjárási körülményeknek

A helyszínt csak hegymászással lehet megközelíteni, ezért a stúdió a szlovén hadsereg szolgálatait vette igénybe, hogy a kabin légi úton kerüljön ebbe a bizonytalan helyzetbe.

A viharos időjárási körülmények miatt három kísérletbe telt, mire a szlovén fegyveres erők helikopterének legénysége a sziklás alapokra juttatta a kabint. Mindezt végül acél kábelekkel rögzítették le. Belül a faburkolatú menedékben három pihenőplatform található, amelyek egy nagy panorámaablakon keresztül a völgy felé néznek.

Egészen 360 fokos kilátás nyílik Szlovénia és Olaszország felé, valamint látványos kilátás nyílik a Triglavra, a Soca-völgyre és az Adriai-tengerre is. A túrázók, hegymászók, barlangászok, természetbarátok célpontja. A belső kialakítás a funkciónak van alárendelve, és akár kilenc hegymászónak is szállást biztosít. [21]

20
21

Olaszország, Vertosan völgy, Bivacco Bredy, BCW Collective

A menedékház Claudio Brédy, a Valle d'Aosta-i ismert politikus és alpinista emlékét őrzi, aki tragikus módon életét vesztette egy hegymászóbalesetben. Claudio életéből és a hegyekből, amelyekért annyira rajongott, inspirálódva egy olyan emlékmű-építészet jött létre, amely a szimbolizmuson keresztül megragadja az ember és a hely szellemét. A minimalista koncepció a hegyvidéki környezet lényegét foglalja magába, míg a semmibe nyúló, konzolos forma a Claudio által hátrahagyott hiányt idézi.

Az bivak helyszíne 2528 méter magasságban, a Dzioule-tavak közelében található.

A szerkezet, mint egy távcső, délre nyílik a völgy felé. Egy nagy ablak keretezi a Grivola csúcsot és a Gran Paradiso-t, azon 4000 méteres csúcsok egyikét, amelyet Claudio megmászott alpesi törekvései során. A szimbolizmus mellett a tájolás megválasztása is fontos volt, amely segíti a napfény bejutását, hogy a hideg téli hónapokban felmelegítse a menedéket. [22] [23]

22
23

Olaszország, Dolomitok, New Bivouac Fanton, DEMOGO

A Marmarole hegyén 2667 méterrel a tengerszint felett található ez a menedékhely. A Bivouac Fanton egy apró mű, a kitágult térben egy magaslati helyen jelenik meg, ahol egy „távcsőn” keresztül figyelhetjük a tájat.

Egy ferde tömeg követi és alkalmazkodik a Marmarole vonulatához, és egy erőteljes tengelyen keresztül egyensúlyoz az épület, a súlytalanság érzetét keltve.

A belső tér fából készült, amely lágyítja a vad természet hatását, majd az üvegszál, amely rétegről rétegre vastagodik, mint egy második bőr, amely együtt válik héjjá és szerkezetté.

Egy távcső lencséi közé helyezzük magunkat, ez a kísérlet a tér bekeretezésére, körülírására, az ember és a környezet közötti kapcsolat művévé téve

„Önmagát mérve, a teret mérve, önmagát elveszítve, a térbeli dimenziót elveszítve, saját élőhelyét megtalálva, ellenállva, hajlítva, lehorgonyozva, az érzékelést variálva, kifelé nyúlva, billenve ” [24]

24
25

Olaszország, Észak Tirol, Messner Corones Hegyi Múzeum, Zaha Hadid építész

A múzeum a hegységtörténetnek szenteli magát, és egyedülálló kilátást nyújt a Dolomitok és az Alpok nagy hegyfalaira. Zaha Hadid által tervezett jellegzetes múzeumépületben a kilátás Dél-Tirol határain túlra, az ég minden iránytűpontjára kiterjed.

A hegy a három dél-tiroli kultúra a német, a ladin és az olasz találkozási pontján áll. Reinhold Messner elképzelése a Kronplatz-hegy csúcsába merülő múzeumról három nagyon konkrét helyszínt részletezett, ahol a múzeumnak ki kell emelkednie a földből. Délnyugatra, Peitlerkofel hegycsúcsra, délre, Heiligkreuzkofel hegycsúcs felé nyugatra, az Ortler és Dél-Tirol felé kell néznie.

Télen a Kronplatz Dél-Tirol legnépszerűbb síterepének számít, nyáron azonban csak kevés turistát vonz.

A kilátó ötletét a fennsík melegebb hónapokban való felvirágoztatására és a felvonók fenntarthatóbb használatának biztosítására találták ki. Reinhold Messner meghallotta ezt az ötletet, és kulturális felértékelést javasolt: a csend, a lassulás, a menedék és az élmények. Dél-Tirol síelők és túrázók hegye, amely egyben a sárkányrepülők és siklóernyősök indulópontja is.

A múzeumon keresztül lépcsősorok sorozata fut végig. A legalsó szinten a látogatók a galériákon keresztül a kilátóablakok mellett haladva a teraszra lépnek, amely 6 méterrel kiemelkedik a hegyoldalból, és 240 fokos panorámát nyújt az Alpokra. Az 1000 négyzetméteres múzeum több szinten helyezkedik el, hogy csökkentsék a múzeum alapterületét. Az építkezés során 4000 köbméter földet és sziklát tártak fel, majd a kész épület fölé és köré visszatöltötték - így a múzeum a Kronplatz-hegy belsejében helyezkedik el, és segít fenntartani az állandó belső hőmérsékletet. A széles ablakok lehetővé teszik, hogy a természetes fény teljesen bejusson a múzeumba, és a látogatókat a belső téren keresztül messze a völgy fölé magasodó panorámaablakok és a kilátóterasz felé terelje. A helyben épített vasbetonból készült múzeum szerkezete 40-50 centiméter vastagságú falakkal rendelkezik, míg a múzeumot a hegybe ágyazó, kicserélt földet és sziklát tartó tetőzet vastagsága eléri a 70 centimétert is.

A múzeum külső és belső paneljeinek többsége szintén helyben készült betonból, és a külső panelek

csúcsainak és támaszainak kialakításához egy kúpos felületű zsaluzatot használtak, amely a környező táj szikla- és jégformációit idézi. A múzeum alépítményét egy acélszelvényekből álló, a tűréshatárokat kiegyenlítő, állítható konzolokkal ellátott állványzat alkotja. Az összekötő konzolok ellenlemezeit az előregyártási folyamat során közvetlenül az egyes paneleken belül laminálják. [25]

26
27

Svájc, Monte Rosa menedékház, Bearth and Deplazes Architekten

A menedékház egy esettanulmány-projekt, a környezet és a város közötti kapcsolódási pontról. Először elszigetelten válik nyilvánvalóvá a természeti és a városi erőforrások érzékenysége, amelyektől az élet függ. Itt nem egyszerűen egy fenntartható épület, vagy egy energiatakarékos hegyi kunyhó megalkotásáról van szó, hanem sokkal inkább arról, hogy tudatosítani kell ezeket a kritikus függőségeket, mind a természeti erőforrásokkal való tiszteletteljes bánásmód értelmében egy olyan tájban, amely valójában véges

Az épületet is a célok határozták meg tehát minél kevesebb anyagból építeni, minél több energiát megtakarítani és elegendő energiát előállítani. Az épületet a legenergiahatékonyabban gömb, vagy henger alakúra terveznék: ez a forma kínálja a legkisebb felület-térfogat arányt, és a legkevesebb hő távozik Ugyanakkor a kunyhónak a lehető leghomogénebb módon kellett beleolvadnia az alpesi környezetbe, és építészeti jelként kellett szolgálnia az útvonal mentén. A projekt alapja egy ötemeletes, szegmens alakú faesztergályos építési mód. A számítógéppel támogatott gépi gyártási folyamat lehetővé teszi a hagyományos építési módszerek, például a geometrikusan összetett facsomópontokkal rendelkező félfaépítés alkalmazását.

A homlokzatszerű, fémből készült héj fotovoltaikus panelekkel van ellátva, amelyek az épületet a szükséges működési energiával látják el. Az egész épületet körbe tekeri egy spirál alakú üvegszalag, amely követi a napot, és passzív energiát vezet az étkezőbe és a periférián felfelé vezető lépcsőtérbe és lenyűgöző tájpanorámával ajándékozza meg a vendéget.

A "hegyi kristály" néven emlegetett innovatív épület az energia több mint 90 százalékát maga állítja elő A szerkezet mellett elhelyezett napkollektorok naphőt termelnek, amely meleg vizet biztosít és felmelegíti a szellőztető rendszer táplevegőjét, hogy szabályozni lehessen a szobák hőmérsékletét. Az év azon néhány hónapjában, amikor a jég elolvad, a vizet összegyűjtik és egy barlangban tárolják, hogy a vendégek számára vízöblítéses WC-t és négy meleg vizes zuhanyzót biztosítsanak. A szennyvizet egy baktériumalapú mikroszűrőrendszer tisztítja, a szürkevizet ezután újra felhasználják a WC öblítésére és mosakodásra.

Az épület 2009 nyarán mindössze öt hónap alatt készült el az előregyártott elemeknek köszönhetően, amelyeket kezdetben vonaton szállítottak, majd helikopterrel az építkezés helyszínére kerültek, ezután a helyszínen szerelték össze. [26] [27]

28
29
30
31

Norvégia, Tungestolen Turistaház, Snohetta

A Norvégia nyugati részén, Lusterben, a Jostedalen gleccserre néző kis fennsíkon található Tungestolen egy ötszögletű turistaházakból álló épületegyüttes, amelyet a Snohetta építész iroda tervezett a Norvég Nemzeti Túrasport Szövetség számára. A hegyvidéki helyszín változó időjárási viszonyaira tervezett különálló kunyhókat, melyek kényelmes menedéket nyújtanak a látogatóknak a nyári és őszi hónapokban

2011 karácsonyán az eredeti Tungestolen turistaházat teljesen lerombolta a Norvégián és a szomszédos országokon végigsöprő Dagmar ciklon. Az eredeti kunyhó pusztulásának friss emlékével a Snohetta kilenc robosztus ötszögletű, ferde kabinból álló új konstellációt tervezett, amelyek fakeretből készültek, CLT lapokkal borítottak és ércfenyővel burkoltak. A kabinok kifelé néző falai csőrszerű formát kaptak, hogy lassítsák a völgyfenékről felsöprő erős szeleket. Belül a kabinok játékos formája szögletes és panorámaablakokon keresztül keretezi a kinti hegyeket és völgyeket, kilátást és fényt adva a tereknek.

A Tungestolen fő kabinja alkalmas a nagyméretű faasztalok körüli közös étkezésekhez. A legmagasabb ponton a mennyezet 4,6 méteres, ami egy társasági és tágas találkozóhelyet teremt, ahonnan panorámás kilátás nyílik a környező tájra. A faházban egy kényelmes társalgó is található, amelyet egy nagy, kővel burkolt kandalló keretez, és amely hangulatos menedéket nyújt a kinti, hűvös nyári napok elől.

A többi kabin többférőhelyes, valamint egy kisebb privát egységből áll, amely összesen körülbelül 30 látogatónak kínál éjszakázási lehetőséget.

A minden oldalról meredek hegyekkel övezett, drámai tájjal körülvett turistaház tökéletes kiindulópontként szolgál a túrázók számára, akik szeretnék megmászni a helyi gleccsereket [28]

32
33

Norvégia, Rabot, Turistaház, JVA

A Rabot turistaház egyike a DNT (Norvég Túrasport Szövetség) számos szálláshelyének Norvégiában. A szálláshely 1200 méteres tengerszint feletti magasságban, az észak-norvégiai Okstindan gleccserének közelében található. A hely látványos, a hegyek és a gleccserek pedig a közelben vannak. Az időjárás rendkívül zorddá válhat, éppen ezért a szerkezetet minél erősebbre építették, hogy ellenálljon a szélnek és viharnak.

A fő épülettől 50 méterre egy másodlagos mentőkunyhót helyeztek el, amely biztonságos menedékként szolgál a fő épület megsemmisülése esetén. A helyszín közúton megközelíthetetlen, csak gyalog vagy síléccel érhető el. A kunyhót Charles Rabot francia gleccserkutatóról és geográfusról nevezték el, aki alaposan feltérképezte Nordland tartomány hegyvidéki területeit éppen ezért helyi anyagokból tervezték és építették.

A faházban 30 ágy található, hét hálószobára elosztva. A jellegzetes ablakok két irányba nyílnak, az egyik a hegyvonulat, a másik a hegyi fennsík és a völgy felé. Ezzel szemben a különböző hálószobák kisebb ablakokkal keretezik a környéket.

A két kémény alakja a hegytetők topográfiáját utánozza, és a feszítőkábelek használatának elkerülése érdekében védőszerkezetként működik.

A külső burkolat helyben vágott, vastag, durva felületű fadeszkákból áll, amelyeket vas-szulfáttal kezeltek, hogy szürke, természetes hatást keltsenek.

Minden ablakot a helyszínen kalibráltak a pontos gáznyomásra, hogy megvédjék az üveget az esetleges magaslati pusztítástól. A hegyi faházban nincs vezetékes áram, napelemes energia biztosítja a belső világítás áramellátását. A fűtés két hatékony tűzhelyen alapul, egy-egy közös helyiségben. Az épület úgy van kitalálva, hogy a kabin egyik felét tolóajtókkal lehet lezárni a hatékonyabb fűtés érdekében, amikor kevesebb ember látogatja meg a kabint. [29]

34
35

Norvégia, Bergen, Tubakuba Hegyi menedék, Espen Folgero építész

Egy keskeny faalagút a bejárata ennek az erdei menedékháznak, amelyet egy hegy mellett építettek Bergenben. A Tubakuba Mountain Hub egy tervezési és építési workshop eredménye, amelyet Espen Folgero építész a bergeni építészeti iskola diákjaival készített.

A csőszerű ajtónyílást egy rézfúvós hangszer formája ihlette. Egy olyan térbeli játékosságot hoz létre, ahol belépsz egy apró lyukon keresztül, és a másik oldalon előtárul a kilátás.

Az íves nyílás hosszú fenyőfaforgácsokból, egy helyi fűrészüzemből származó vágási hulladékból készült és ezeket vízzel lágyították, mielőtt egy íves keretre rétegezték.

A megfeketedett fát a Shou Sugi Ban néven ismert japán szenesítési technikával készítették, amely segít megvédeni az épületet a gombásodástól Ezzel szemben a déli fal kezeletlen vörösfenyő maradt, mely az idő múlásával szürkévé válik, és megmutatja az épület korát.

Az épület szerkezetéhez is fát használtak, a falakon belül pedig faanyagszálak biztosítják a szigetelést.

A belső teret rétegelt lemez borítja, és beépített ülőelemet, valamint egy zárt fürdőszobát is kialakítottak belőle, amelynek tetején egy alvóhely található. Nincs áram, így a fűtést egy kis fatüzelésű kályha biztosítja.

Az épület vonzó a családok számára, és sok gyermeknek nyújtja az első élményt az erdőben töltött éjszakáról. [30]

36
37

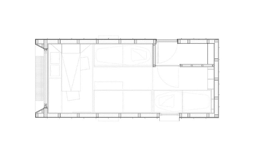
Magyarország, Galyatető menedékház, Nartarchitects

A turisztikai központ egy felújítási projekt Galyatetőn, egy kis kőből épült hegyi kunyhó bővítés. Az épület, olyan anyagokból épült, amelyek a hegyvidéki időjárási körülmények között is tartósságot

biztosítanak Az épületet innovatív módon gondolták újra, és igazi kortárs mérföldkő lett belőle.

Egy, olyan menedékház, melyben megtalálhatók különböző közösségi funkciók, mint a közösségi

konyha, közösségi tér, mosoda, bisztró étterem, turisztikai felszerelések boltja és meditációs terem A felső szinteken a hálóhelyiségek kaptak helyet. A turistaközpont többféle típusú és szintű szállást kínál, mindenki megtalálhatja a sajátjának megfelelőt. A központban 22 fő részére van szálláslehetőség

kétágyas és négyágyas hálószobákban. Ezen kívül további 32 turista elhelyezésére van lehetőség a legfelső emeleten. Van benne egy szoba, amely kifejezetten a mozgássérültek számára van fenntartva, és van egy kemping terület is. Mindent úgy terveztek, hogy az egyszerűséget, a praktikumot és a kényelmet szolgálják. [31]

38
39

Magyarország, Galyatető kilátó, Nartarchitects

A projekt az 1100 kilométer hosszú Országos Kék Túra útvonalának közepén helyezkedik el, amely Észak-Magyarországon halad át a hegyek között. A kilátótorony innovatív és kontextuális hatást gyakorol Galyatetőre, amely fokozza a Mátra-hegység második legmagasabb csúcsának elhelyezkedésének és természetének élményét. Ez egy kőből készült talált tárgy, ahol a felhasznált anyagok meglehetősen szerények, a meglévő kőbánya és a látható beton harmóniája érvényesül az épület rekonstrukciójában és bővítésében. A régi és az új anyagok együttesen egy kortárs épített környezetet hoznak létre.

Az évek során a fák az épület legfelső szintje fölé nőttek, magasításra vágyott. A legfelső szintet egy vasbeton toldalék formájában emelték meg. A bővítmény betonszerkezetének belső magjában 3 színes kör alakú ablakokkal megvilágított bivak szállás található, különleges hangulatot teremtve a túrázóknak, akik útjuk során pihenésre vágynak. A jelentős szerkezeti átalakítás után a megmaradt külső fal is új szerepet kap. A belső mag és a körbefogó acéllépcsőrendszer kettős tömegét a lépcső külső síkján rozsdamentes acélháló zárja le.

A menedékház olyan tárgy, amely alapvető emberi szükségletet képvisel. A bivak minden hegymászónak menedékül szolgál, akinek szüksége van rá. [32]

40
41

FORRÁSJEGYZÉK

[1] [Online]. Available: https://enbudapestem.hu/2021/10/kis-erdei-etikett-kell-e-koszonni/. [Hozzáférés dátuma: 22 09 2022].

[2] [Online]. Available: https://www.kaland.sport.hu/kalandjaink/szakagak/turazas-magashegyitrekking. [Hozzáférés dátuma: 22 09 2022].

[3] R. Messner, Egy hegymászó hitvallása, PolgART, 2001.

[4] K. Jornet, Semmi sem lehetetlen, GABO, 2020.

[5] [Online]. Available: https://index.hu/tudomany/egeszseg/2017/03/22/termeszet_termeszethiany_egeszseg_stress z_figyelemzavar/. [Hozzáférés dátuma: 22 09 2022].

[6] [Online]. Available: https://www.viaferratainfo.hu/viaferrata-tortenete/. [Hozzáférés dátuma: 22 09 2022].

[7] [Online]. Available: https://www.hetedhetorszag.hu/franciaorszag/mont-ventoux. [Hozzáférés dátuma: 22 09 2022].

[8] [Online]. Available: https://www.turistamagazin.hu/hir/vasalt-utakon-a-magasban. [Hozzáférés dátuma: 22 09 2022].

[9] [Online]. Available: https://hmn.wiki/hu/Alpinism. [Hozzáférés dátuma: 22 09 2022].

[10] [Online]. Available: https://www.kaland.sport.hu/kalandjaink/szakagak/hegymaszassziklamaszas. [Hozzáférés dátuma: 22 09 2022].

[11] T. Seregi, A jelen, Kijárat, 2016.

[12] [Online]. Available: https://ng.24.hu/magazin/2022/04/14/mert-ott-van-mi-van-ott/. [Hozzáférés dátuma: 22 09 2022].

[13] [Online]. Available: http://csucstamadas.blogspot.com/2012/09/a-hegymaszas-pszichologiajain-memoriam.html. [Hozzáférés dátuma: 22 09 2022].

[14] [Online]. Available: https://www.turistamagazin.hu/hir/semmi-nem-tolt-fel-annyira-mint-atermeszet. [Hozzáférés dátuma: 22 09 2022].

[15] [Online]. Available: https://teveszmek.blog.hu/2018/06/17/_az_ut_celja_az_ut_maga. [Hozzáférés dátuma: 22 09 2022].

[16] M. Csíkszentmihályi, Flow: Az áramlat, Akadémiai, 2010.

[17] [Online]. Available: https://wikiszotar.hu/ertelmezo-szotar/Mened%C3%A9k. [Hozzáférés dátuma: 22 09 2022].

42

[18] [Online]. Available: https://ofis.si/eng/projects/research/8_habitation_units.html. [Hozzáférés dátuma: 22 09 2022].

[19] [Online]. Available: https://www.archdaily.com/797997/alpine-shelter-bivak-na-prehodavcihpremica-architects. [Hozzáférés dátuma: 22 09 2022].

[20] [Online]. Available: https://www.archdaily.com/773265/alpine-shelter-skuta-ofis-arhitekti-plusakt-ii-plus-harvard-gsd-students?ad_source=search&ad_medium=projects_tab. [Hozzáférés dátuma: 22 09 2022].

[21] [Online]. Available: https://www.dezeen.com/2016/11/10/cantilever-alpine-shelter-kaninwinter-cabin-ofis-architects-climbers-slovenia/. [Hozzáférés dátuma: 22 09 2022].

[22] [Online]. Available: https://divisare.com/projects/456547-bcw-collective-bivacco-bredy. [Hozzáférés dátuma: 22 09 2022].

[23] [Online]. Available: https://bcwcollective.com/NEWS-1. [Hozzáférés dátuma: 22 09 2022].

[24] [Online]. Available: https://divisare.com/projects/449522-demogo-iwan-baan-new-bivouacfanton. [Hozzáférés dátuma: 22 09 2022].

[25] [Online]. Available: https://www.zaha-hadid.com/architecture/messner-mountain-museumcorones/. [Hozzáférés dátuma: 22 09 2022].

[26] [Online]. Available: https://archello.com/project/new-monte-rosa-hut-sac. [Hozzáférés dátuma: 22 09 2022].

[27] [Online]. Available: https://www.schnetzerpuskas.com/en/projekte/1284_monte-rosahuette.html. [Hozzáférés dátuma: 22 09 2022].

[28] [Online]. Available: https://www.archdaily.com/942033/tungestolen-hiking-cabinsnohetta?ad_source=search&ad_medium=projects_tab. [Hozzáférés dátuma: 22 09 2022].

[29] [Online]. Available: https://www.archdaily.com/537957/rabot-tourist-cabin-jva. [Hozzáférés dátuma: 22 09 2022].

[30] [Online]. Available: https://www.archdaily.com/602226/tubakuba-mountain-hub-opaform?ad_source=search&ad_medium=projects_tab. [Hozzáférés dátuma: 22 09 2022].

[31] [Online]. Available: https://www.archdaily.com/782240/mountain-hut-at-galyatetonartarquitects?ad_source=search&ad_medium=projects_tab. [Hozzáférés dátuma: 22 09 2022].

[32] [Online]. Available: https://www.archdaily.com/782238/lookout-tower-at-galyatetonartarchitects?ad_source=search&ad_medium=projects_tab. [Hozzáférés dátuma: 22 09 2022].

H. Harrer, A fehér pók, Budapest: Park, 2003.

43

KÉPJEGYZÉK

https://www.hallstatt.net/about-hallstatt/weltkulturerbe-en-US/themed-trails-and-audio-guidetour/themed-trail-hallstatt-echerntal/ein-pionier-des-dachsteins-en-US/ [Hozzáférés dátuma: 22 09 2022].

https://fr.wikipedia.org/wiki/Antoine_de_Ville_%28capitaine%29# [Hozzáférés dátuma: 22 09 2022].

https://en.wikipedia.org/wiki/Llullaillaco [Hozzáférés dátuma: 22 09 2022].

http://sujoyrdas.blogspot.com/2017/06/mallory-and-irvine-8th-june-1924.html [Hozzáférés dátuma: 22 09 2022].

https://www.ft.com/content/55b781f4-7d9a-11e5-98fb-5a6d4728f74e [Hozzáférés dátuma: 22 09 2022].

H. Harrer, A fehér pók, Budapest: Park, 2003.

https://en.wikipedia.org/wiki/Vallot_Hut# [Hozzáférés dátuma: 22 09 2022].

https://www.designboom.com/architecture/charlotte-perriand-pierre-jeanneret-le-refuge-tonneau/

https://www.archdaily.com/797997/alpine-shelter-bivak-na-prehodavcih-premica-architects. [Hozzáférés dátuma: 22 09 2022].

https://www.archdaily.com/773265/alpine-shelter-skuta-ofis-arhitekti-plus-akt-ii-plus-harvard-gsdstudents?ad_source=search&ad_medium=projects_tab. [Hozzáférés dátuma: 22 09 2022].

https://www.dezeen.com/2016/11/10/cantilever-alpine-shelter-kanin-winter-cabin-ofis-architectsclimbers-slovenia/. [Hozzáférés dátuma: 22 09 2022].

https://divisare.com/projects/456547-bcw-collective-bivacco-bredy. [Hozzáférés dátuma: 22 09 2022].

https://bcwcollective.com/NEWS-1. [Hozzáférés dátuma: 22 09 2022].

https://divisare.com/projects/449522-demogo-iwan-baan-new-bivouac-fanton. [Hozzáférés dátuma: 22 09 2022].

https://www.zaha-hadid.com/architecture/messner-mountain-museum-corones/. [Hozzáférés dátuma: 22 09 2022].

https://archello.com/project/new-monte-rosa-hut-sac. [Hozzáférés dátuma: 22 09 2022].

: https://www.schnetzerpuskas.com/en/projekte/1284_monte-rosa-huette.html. [Hozzáférés dátuma: 22 09 2022].

https://www.archdaily.com/942033/tungestolen-hiking-cabinsnohetta?ad_source=search&ad_medium=projects_tab. [Hozzáférés dátuma: 22 09 2022].

https://www.archdaily.com/537957/rabot-tourist-cabin-jva. [Hozzáférés dátuma: 22 09 2022].

https://www.archdaily.com/602226/tubakuba-mountain-hub-opaform?ad_source=search&ad_medium=projects_tab. [Hozzáférés dátuma: 22 09 2022].

44

https://www.archdaily.com/782240/mountain-hut-at-galyatetonartarquitects?ad_source=search&ad_medium=projects_tab. [Hozzáférés dátuma: 22 09 2022].

https://www.archdaily.com/782238/lookout-tower-at-galyatetonartarchitects?ad_source=search&ad_medium=projects_tab. [Hozzférés dátuma: 22 09 2022].

45

Turn static files into dynamic content formats.

Create a flipbook
Issuu converts static files into: digital portfolios, online yearbooks, online catalogs, digital photo albums and more. Sign up and create your flipbook.
Bozó Márk Attila: Épületek, építmények túraútvonalon by markbozo - Issuu