

ARCHITECTURE PORTFOLIO

MARISSA RODRIGUEZ


01 URBAN, NEIGHBORHOOD, SITE
Community Center located in Southside San Antonio Spring 2025
ACADEMIC WORK
02
A DANCE FOR THE COMMUNITY
American Indians In Texas at the Spanish Colonial Missions Community Center Spring 2022
ACADEMIC WORK
03 PASEO DEL ARTE
An Artistic Enclave Fall 2024 ACADEMIC WORK
04 BIOPHILIC ENHANCEMENT
A Venue for Enhanced Living Spring 2024
ACADEMIC WORK

05 NIGHT STAND LAMP
Architectural Lighting Design Spring 2024 ACADEMIC WORK
HORIZON TABLE LAMP
Architectural Lighting Design Spring 2024 ACADEMIC WORK
06 FREEHAND DRAWINGS
ACADEMIC WORK
Urban, Neighborhood, Site
Site Location: Southside San Antonio
Timeline: Spring 2025 Masters of Architecture
Candidate
Professors: Courtney Jones & Logan Notestine (Overland Partners)
Area 3 Team Members: Marissa Rodriguez, Hannah Alvarez, Mark Lopez
Project Description
In this first phase of the project our team was to research the histories, assets, and challenges of the assigned area 3 neighborhood areas. By critically analyzing both physical and social contributions to the community health, we were to identify various “nodes” within the neighborhoods that hold opportunities for meaningful architectural interventions. These nodes will serve as the cornerstone for next design projects, laying the groundwork for investigating the ways in which architecture may promote the overall well-being of both individuals and communities.
Community Center located in Southside San Antonio. Project ongoing. Location TBD 1 2 3 4 5 6




SOUTHSIDE - SAN ANTONIO, TX









A Dance For The Community
American Indians in Texas at the Spanish Colonial Missions Community Center
Site Location: 1616 East Commerce
Timeline: Fall 2024 Masters of Architecture
Candidate
Professor: Prof. David Bogle, R.A., AIA
Project Description
The idea for the space is to draw in the community to experience the culture at AIT-SCM. The design concept, A Dance for the Community brings in the movement and flow of American Indian dances. The goal is to break down barriers and build good will among the community. The building’s design flows as if it were dancing itself. The outdoor performance space will prioritize a natural, open area with elements that respect American Indian traditions, allowing for ceremonies, dance, drumming, storytelling, and cultural displays, while incorporating features like a central gathering circle, natural materials, and designated areas for specific activities, while also considering the local tribal community’s specific needs and










North Elevation





South Elevation West Elevation
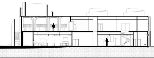
South Section
Section
03 PASEO DEL ARTE
An Artistic Enclave | Academic Work
Site Location: 100 Gugert Ave., San Antonio, TX
Timeline: Fall 2023
Professor: Steve Patmon
Project Description
The idea for the space is to extend an invitation to everyone of all cultures in the community. The building should respond to the urban context of the site and surrounding areas. The proposed building will consist of various elements of Brazilian architecture throughout the design and use of materials. The building will extend along the San Antonio River side of the property to allow for enjoyable views to the outside. Open spaces outdoors will allow for various areas to be landscaped and used for outdoor activities such as events or community gatherings.











Elevation
Elevation
South Elevation
Elevation
Precast Concrete Veneer
Pivoting Glass Panel Walls
Curtain Wall System
Curtain Wall System
Pivoting Glass Panel Walls
Transformational
Curtain Wall System
04 BIOPHILIC ENHANCEMENT
A
venue for enhanced living | Academic Work
Site Location: 10440 Wurzbach Pkwy, San Antonio, TX
Timeline: Spring 2024
Professor: Steve Patmon
Project Description
Investors are looking to develope a wellness facility at the location of the Longhorn Quarry. Their plans are to resuse most of the structures on the site. Sustainablility and net zero building are priority for the investors. They also are looking to become a LEED certified facility. The idea for the design will establish a fluid order defined by its structure which morphs and expands to define the generous landscape, and open views from the building. Other sustainable options include mixed use of the property such as community gardens, and organic architecture (the architecture evolves according to the need). There will be paths leading to different areas of the site, but all connect together leading back to the main wellness center.







05 NIGHTSTAND LAMP
Architectural Lighting Design | Academic Work
Timeline: Spring 2024
Professor: Alizara Jahanara
Project Description
A customer is inquiring about a lamp for their nightstand or bedside table. It must be distinctive while providing a variety of lighting options, such as a fading light that may be turned up for midnight reading or left brighter for sleep reading. They would rather have LED strip lights since they don’t want to deal with replacing ordinary light bulbs.



06
HORIZON TABLE LAMP
Architectural Lighting Design | Academic Work
Timeline: Spring 2024
Professor: Alizara Jahanara
Project Description
Assigned as a team project. The concept is to create a table lamp that is easy to engage with, and at the same time offer adequate lighting for the space. The user can engage with the lamp by choosing what type of lighting they are wanting to display in the space. They can either keep the light inside of the housing to give a reflection of a horizon or waves or the main light source can be removed out of it’s housing to give a soft solid reflection.
Team Members:
Marissa Rodriguez
Lauren Gronnevik



07 FREEHAND


THANK YOU


Marissa Rodriguez